
BuildYourDreams

![]()


R E E T I N G S
Congratulations on starting your custom home journey! It is an adventurous and rewarding path to take You are in the right place to learn moreandtakethenextsteps.



Simply put, we are fanatical about custom building We have never built the same home twice, and every project we complete has thousands of details to manage Since 2007, our team of professionals has honed the skill of managing those details so that you don’t have to!

We are proud of our stellar reputation in the building industry Our trade partners enjoy working with us, our workmanship warranty is the best in the region, and we actively engage in the community
Here’s to the relentless pursuit of excellence, every single day!


Mark Kessler President & Co-Owner

Sandy Wilson
Executive Assistant to President

John Hugunin
Pre-construction Manager

Teresa Kessler
CFO & Co-Owner

Administrative & Accounting Assistant

Brian Neely
Estimating Manager








We engage in the relentless pursuit of excellence every single day; our world-class service is the key to the success of our organization.
We are personally responsible and accountable for knowing what is right and then following through; we take pride in our work, our accomplishments, our reputation, and ourselves.

We are a forward-thinking organization encouraging new ideas, innovation, and creativity; we embrace technology and the exploration of new products and services.
Through open communication, active collaboration, and education we provide a great place to work and empower our team members and trade partners to succeed.

We dedicate time, talent and financial support to strengthen our community

01
Initial Site Visit
Walk your homesite with your Pre-Construction Consultant Home placement and site details are discussed

02

Initial Consultation
Share your home building goals and budget with us. Have questions about cost, warranty, timeline, and more? Ask away!
Contract Congratulations! Your Specifications Agreement is signed, which details each scope of work in your new home

04

03
Pre-Construction Agreement
This is the big planning stage! We help you develop your home plan, complete site analysis work, and price your home
Construction
We break ground on your new home! Enjoy seeing your plans come to life! Our software keeps you in the loop throughout the entire build, and keeps all the details organized in one place


05
Permitting & Selections
While our in-house selections coordinator helps you with your finishes, your home is moving through engineering, permitting, and financing
06 07

Orientation Tour
A final walk through with your team & you are ready to move in!




Ask friends and relatives for recommendations. Ask for builders they have dealt with directly, or ask them for names of acquaintances who have recently had a good experience with a builder.
Visit the builder’s homes that are under construction.
Ask the builder about their warranty program What is covered and for how long?
Listen to your gut Is this builder someone you can trust? Are they in your corner? Are they considering all of the details and helping you make informed decisions?
Don’t go off of online reviews alone. Speaking to a personal reference goes a long way.
Don’t make a decision based on pictures. Check for quality craftsmanship in person
Don’t choose a builder with only a one-year warranty
Don’t make your choice based on price alone, unless you are willing to receive unexpected bills and sacrifice quality.
Don’t sign any documents or make a deposit if you have outstanding questions or concerns.















































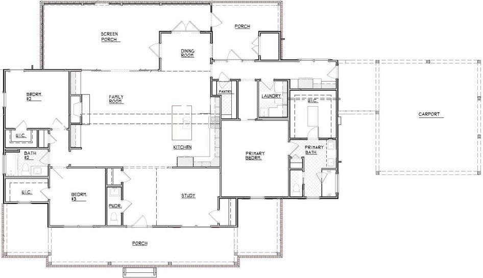
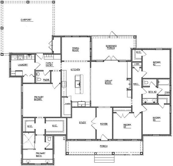
browse our galleries & home plans











Our hot water circulation loop exceeds building industry standards and Florida building code Water does not sit in pipes and get cold, instead it circulates so hot water is at every faucet quickly
Plan your cabinetry to work for you and your lifestyle Choose the location of each cabinet, specialty accessories or inserts, cabinet faces, stain or paint color, handles, and pulls
Enjoy lower utility bills with insulation that exceeds building code requirements, an energy recovery ventilator (ERV) that pulls fresh air in and pushes stale air out without temperature loss, and a radiant barrier that reflects radiant heat to reduce cooling costs
Your home is built to last with critical components like 50-year architectural shingles and low E insulated vinyl windows.
Your home is built to be truly your own. This begins with the home site location on your lot, the entire plan design of your home, and each and every finish inside and out




