M.Arch Portfolio_Kenworthy_Fall2024

Page 1


Brooke Kenworthy

M.Arch ‘27 Cornell AAP

B.S. Civil Engineering

Selected Works 2020-2024

As an interdisciplinary student of structural engineering, studio art, and architecture, my focus lies in the intersection of design and mathematics. My choice to study civil engineering has allowed me to hone my technical understanding of the interface between humans and the built environment. I am personally committed to a career trajectory which fosters inclusive, eye-catching, and sustainable projects rooted in universal design to shape how we interact with the urban landscape.

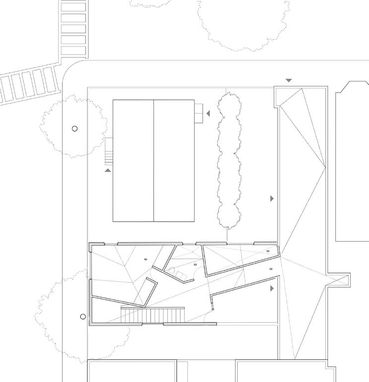
Harvard GSD Design Discovery, 2023

On my site visit to the East Boston project, I observed its preciousness to the surrounding community, and felt this was being abetted by voids in a way that negatively affected engagement with the site.

Elements of community within the neighborhood surrounding the site included children at play and being walked in a group to surrounding schools. It was found that while this area had a large number of children, it contained no educational experiences outside of schools.

Haus Gables was used as a design prescient. The whimsy and inherit sense of play in the roof plan informed the design process. The gable lines and angular form yielded itself well to the project because the center was meant to add a sense of adventure to education for the children that occupied it.

Precedent Study Redrawn: Haus Gables

While the elevations of the structure read as solid planes of color or material, the plan roof view exhibits the variation in material that creates the elevation experiences. Each gable section is designed with intention, adding to the narrative of the moments from the ground.

Model Plan View Iteration (1’: 1/8”), Museum Board

The development of a stage set allowed for a closer look at the experience of the building. The contrast of the red walls and gables to the white facade leads the eye while also using the red to stimulate the analytical processing side of the brain. The S.T.E.M. to Stern Learning Center aims to engage the waterfront community of children in a playful accessory commons.

By applying a sense of whimsy to the Haus Gables plan, I aided community values by generating a STEM learning center for children to encourage public access to educational resources. Through the exploration of section, the learning center created differing sensory and tactile experiences to the viewer depending on the street view. The gables work in section to create a folding effect for the visitor, feeling as though they are being enveloped into the building.

Model Elevation View 1 (1’: 1/8”), Museum Board
Model Elevation View 2 (1’: 1/8”), Museum Board Stage Set (1/4”), Museum Board, Laser Print
Section

Environmental Communion

Independent Conceptual Study, 2023

Environmental Communion aims to provide a space for spirituality untethered from denomination. Invoking elements of traditional church design while maintaining autonomy in programming, this space focuses equally on the natural world surrounding it as it does the architecture itself. The form provides a natural circulation from more private space to a larger social gather space. Unique wall geometry frame views of the natural environment and allow visitors to create moments for reflection and connection between the soul and it’s natural surroundings.

Primary hub for community gathering takes place in the head of the structure
Circulation through the atrium
The tail provides a smaller more private space for reflection
Model Plan View, Basswood & Museum Board
Exterior Model View, Basswood & Museum Board
Model Plan View, Basswood & Museum Board

By strategically interweaving the use of rafters and geometric beam placement, the space benefits from an eye-catching series of light reflections. Each of the three distinct elements of the space experience different series of shadows and lighting sources that intermingle depending on the time of day.

The addition of prayer labyrinths encompassing trees on the site provide a space for isolation and reflection. Within the concentric circles, one feels enveloped by the nature within.

Atrium Interior Experience, Basswood & Museum Board
Wall Geometry Unfolded, Rhino 8

Biophilic Public Productivity Space

Independent Study, 2023

The emerging popularity of biophilic design allows for the exploration of how modern productivity culture can be improved when situated within the environmental matrix. The concept of a biophilic public workspace has the capabilities to improve both the physical and emotional health of it’s occupants while also expanding one’s focus.

The structure is situated to allow for maximum light for plant growth
Interior Workspace Rendering, Lumion
View into the Workspace Rendering, Lumion
Airflow through the work atrium keeps the space cool during warmer months
The central tower and workplace contain large elements of greenery

Not Quite Round

Cornell University, Core Studio 1: Not Quite In collaboration with Sophia Zaita (M.Arch ‘27)

Instructors: Leslie Lok, Nikole Bouchard, Zak Leazer

Cornell AAP M.Arch | Studio 01 F24 | Brooke Kenworthy + Sophia ZaitaUlparit ut ulparci optatem isciet occulpa di quis et pedicidel incium, simaiorum est ommolute verae alignis cullore ptatur solorrorum et veriatus eatus.Omnimpe dionsequo mil ma nemolor estrum, seque doluptaeperi dolorest, con rerferum voluptatur cum eicatqu assimag nitatemquae. Uptaecati acerum ipsae culparum volupti in ra voles nem di omniendis moditat emquam aceperum que conecum sequi is nis dolore, sapiduciis et doluptur alic te et, nullaut ut experibusam quam eaquos voluptatiur saerit, nobit aut pe postectum fugit labore volesequist dolore, estrum consequo velibus eaquo consequ ibusanime dolupta tenihit, solenda ectatectur, totatur?

Cornell AAP M.Arch Studio 01 F24 | Brooke Kenworthy + Sophia ZaitaUlparit ut ulparci optatem isciet occulpa di quis et pedicidel incium, simaiorum est ommolute verae alignis cullore ptatur solorrorum et veriatus eatus.Omnimpe dionsequo mil ma nemolor estrum, seque doluptaeperi dolorest, con rerferum voluptatur cum eicatqu assimag nitatemquae. Uptaecati acerum ipsae culparum volupti in ra voles

Not Quite Round | Cornell AAP M.Arch | F24 | Brooke Kenworthy + Sophia Zaita

Not Quite Round | Cornell AAP M.Arch | F24 | Brooke

Environmental Study

Interlocking Exploration

Cornell AAP M.Arch Studio 01 | F24 Brooke Kenworthy + Sophia Zaita

ENVIRONMENTAL STUDY

Interlocking was the selected mode of design for the sphere. Deer will intertwine their antlers when in conflict, but often struggle to disengage this connection. The variation of size, angle, and connection technique was investigated and used to construct the spherical form.

F24 Brooke Kenworthy + Sophia Zaita

Not Quite Round emphasizes the creation of form through the exploration of modules within animals. The sphere was chosen as the exploratory form due to its geometric class and it’s large amount of space in relation to it’s surface area. The sphere has the geometric capacity to envelop other geometric forms. The goal of Not Quite Round was to observe, analyze, distill, abstract, translate, and deploy an existing condition present within the groups selected animal into the design and construction of a 1’ sphere. The animal, in this case the white tailed deer, was used to establish a set of conditions and parameters, that can function as independent but also work together as part of a larger system. The finished product was meant to be not just a visual artifact representing the animal, but an abstract translation of the condition selected to explore.

Kenworthy + Sophia Zaita

Plan, Elevation, and Section Drawings (Sophia Zaita)
Physical Model Photography 1:1 Scale, Chipboard
Modular Interlocking (Sophia Zaita)
Antler Seasonal Life Cycle

Not Quite Flat

Cornell University, Core Studio 1: Not Quite

In collaboration with Sophia Zaita (M.Arch ‘27)

Instructors: Leslie Lok, Nikole Bouchard, Zak Leazer

Not Quite Flat is the second installation in the Core Studio 1 curriculum. The goal of the project is to translate the animal exploration into the design of an observation tower. The shape of the tower is selected from the form options of a tetrimino. A site visit was conducted to the Mundy Wildflower Garden within the Cornell Botanical Gardens to facilitate a site selection. The process of lamination was carried from project one into the design of the observation tower. The base of the cantilever structure is made up of four primary elements that are situated in a reciprocal manner. This mimics the interlocking of the deers antlers expressed in the sphere design in project one. A logic was formulated to inform when view-ports were sealed in with wooden slabs verses when it was left open, framing a view of the environment. The cantilever was selected from the options of tetriminos, affording the opportunity to situate the structure over the pre-existing walking trail.

structure was placed to cantilever over the pathway to create a moment for those passing along the walking trail. The design of the space creates two primary views, one facing the creek and one facing the forest.

Plan View (Drawn to 1’: 1/16”)
Structural System Diagram (Sophia Ziata)
mundy wildflower garden:
Wind and Solar Circulation Diagram (Sophia Ziata)
The
Plan View 1 (Drawn to 1’: 1/2”), (Sophia Zaita)
Plan View 2 (Drawn to 1’: 1/2”), (Sophia Zaita)
Model Photography (1/2”=1’), Basswood & Vellum Paper
Model Elevation View 2 (1’: 1/8”), Museum Board
Model Elevation View 2 (1’: 1/8”), Museum Board
Elevation View 1, (Drawn to 1’: 1/2”)
Model Interior (1/2”=1’), Basswood & Vellum Paper
Model Entrance (1/2”=1’), Basswood & Vellum Paper
Elevation View 2, (Drawn to

Not a Zoo Core Studio

Cornell University, Core Studio 1: Not Quite Instructors: Leslie Lok, Nikole Bouchard, Zak Leazer

Not a Zoo is the third and final exploration within the Core Studio 1 curriculum. The goal of Not a Zoo is to gain an understanding of the separation between public and private through the design of an animal rehabilitation center. The site of the center must be contained within the Mundy Wildflower Garden on Cornell’s campus and be large enough to house both animals in residence, staff and visitors. The animal must be found in the state of New York, so the white tail deer remained the subject of exploration. The goal for midterm review was to present a building concept with a clear logic and consideration of public vs private. Even deeper study and diagramming of the animal subject was also required to ensure that the health of the animal was central to the design.

The guiding principle which informed the structural logic of the project centered around the height at which deer detect potential threats. Due to the size of their natural predators, deer will almost never look upwards. The proposed design utilizes the same tactic taken by hunters and applies it as a means of non-intrusive observation.

Animal Study Diagram

The study of reciprocal structures was carried through from project two into project three. The proposed program is completely contained within walls made of reciprocal spatialized concrete elements. These elements were altered to provide one of four conditions, including viewports for animal observation and external viewing stands.

Exterior Render 2
Section View 1, (Drawn to 1’: 1/4”)
Final Model: Interior View

Reinforced Concrete Frame Design Calculations and Performance Results

Saint Louis University, Structural Analysis Laboratory CVNG 3160, 2022

In collaboration with Carly Sear, Morgan Voissem, and Jake Cullotta

The purpose of this project was to implement hands-on structural design to understand the structural behavior of reinforced concrete. The group was tasked with fabricating the frame from scratch by drawing the blueprint, forming the rebar and stirrup cage, and assembling the mold into which the concrete was poured. The need of this frame project was to design a frame that fit required weight and size parameters while withstanding 5,000 lbs of force. To maximize the strength while keeping the weight of the frame under the threshold of 90 lbs., an I-beam was chosen for the top portion of the frame. Since most of the force would be taken by the beam, the group felt it best to focus on the design of the beam above the design of the columns. Tension in the columns is experienced on the outside edges of the column, so four pieces of rebar were placed on the outer edges, while only two bars ran through the inside.

Column Interaction Diagram

Concrete Frame Plan, AutoCAD
Concrete Frame (1:1 Scale), Concrete Mix Design & Rebar
Flexural Ultimate Load Calculations

- (331 0.7 50 • 6.534)((16-9.15)/(22.2-9.15)) M = 277.0 k-in P = 4M L n n n n P = (4 (277))/129 P = 8.59 kips n

Steel Beam Design Competition

Saint Louis University Structural Analysis Laboratory CVNG 3160, 2023 in collaboration with Jack Tapy, Mariandrea Miranda, Maddy Kieffer, and Steven Lum

In order to complete this project successfully, the engineers were required to successfully design, analyze and fabricate the steel beam to hold at least 5000 lbs. There were several constraints placed on the engineers. One of the constraints was the type of steel used had to have been A569 steel and all steel plates chosen had to be welded together by the engineers using weld material provided by Hillsdale Fabricators. The steel beam could not weigh more than 110 lbs. after welding was completed. Additionally, the steel beam had to meet dimensional requirements. The total length of the steel was required to be 10 ft 9 in.. The height and width of the steel beam was required to not exceed 7 in. in height and 6 in. in width. The web was required to be at least 4 in. in depth.

Curve

To follow standard design practices, the welds were designed for every 12 inches of the beam and would alternate sides. Therefore, the length of each weld is calculated using the following equation. In the equation, sweldis the spacing between welds on the same side and dweld is the depth of each weld.

Top: Beam Design, AutoCAD
Bottom: Assembled Beam Load Test (1:1 Scale), Steel

Brooke Kenworthy

bnk28@cornell.edu

kenworthybrooke@gmail.com

(901)-825-0423

Turn static files into dynamic content formats.

Create a flipbook
Issuu converts static files into: digital portfolios, online yearbooks, online catalogs, digital photo albums and more. Sign up and create your flipbook.