

PORTAFOLIO
...y dícese del arte como expresión, como fuente del alma, como voz del corazón. un todo, expresado en sensaciones...
PRESENTACIÓN

Arquitecto egresado de la facultad de diseño en la Universidad Católica de Colombia. Me desempeño facilmente en la labor creativa y de imaginación, haciendo uso del dialogo, la lógica y la norma para producir diseños de calidad. Manejo coordinación de proyectos bajo metodología BIM, gerencia de obras de construcción y planificación de costos y programaciones de proyectos.
APTITUDES
Trabajo en equipo / Organización / Creatividad / Comunicación / Responsabilidad / Propositivo
Nombre: Juan Sebastian Ariza Gutiérrez
Fecha de nacimiento: 24 agosto de 1996 (26 años)
Lugar de nacimiento: Bogotá D.C. Colombia
EDUCACIÓN
2008-2013
Formación secundaria: Colegio Liceo Moderno Campestre (LIMCA)
2014-2018
Formación universitaria: Universidad Católica de Colombia
HABILIDADES
AutoCAD / Revit / SketchUp / V-Ray / Lumion / Illustrator / Microsoft Office / Costos y presupuestos / Manejo de personal / Licitación / Manejo de normativa / Manejo de herramienta y material / Project
ESTUDIOS ADICIONALES
Diplomado BIM con Revit para Arquitectura, Ingeniería y Afines, Bogotá, UdeCataluya
2021
2021 Curso en gerencia de proyectos, UdeCataluya
2024 REFERENCIAS
Especialización en Metodología BIM para el desarrollo de proyectos de la edificación, Universidad Colegio Mayor de Cundinamarca
Familiar:
Blanca Ruth Gutiérrez enciso / Profesional Instrumentadora Quirúrjica / Clínica Reina Sofía +57 301 510 23 09
Personal:
Carlos Julio Murcia Montoya / Profesional Arquitecto / Construcciones Torre Victoria +57 301 285 4966
IDIOMAS
Español: Nativo
Inglés (B2): Escucha: Avanzado
Habla: Avanzado
Escritura: Medio
Lectura: Avanzado
CONTACTO
C.C. 1018488412
+57 301 680 1819
jsariza99@gmail.com
Calle 168 #65-50
EXPERIENCIA LABORAL
10/06/2015 - 23/07/2015
07/06/2016 - 24/07/2016
10/06/2018 - 31/08/2018
Empresa: MyC Diseño y Construcción
Cargo:
Auxiliar de Arquitectura
Función:
Apoyo en representación a mano alzada y digital de dibujo arquitectónico; Apoyo en gestión financiera; Elaboración de cartillas de hierro; Representación de despieces estructurales; Análisis de norma.
Teléfono: (1) 7 02 7803 (+57) 322 286 5822
05/01/2016 - 21/07/2016
Empresa: Contexto Urbano
Cargo:
Auxiliar de Arquitectura
Función:
Apoyo en representación a mano alzada y digital de dibujo arquitectónico
Teléfono: (+57) 314 301 55 86
18/10/2019 - 18/03/2020
Empresa: Consorcio ALFA
Cargo:
Auxiliar de arquitectura, arquitecto diseñador, coordinador de dibujo.
Función:
Apoyo en representación digital de dibujo; diseñador de espacios y detalles arquitectónicos; manejo de documentación; realización de presupuestos y memorias de cantidades; análisis de norma.
Teléfono: (+57) 321 317 55 15
18/09/2020 - 30/11/2021
Empresa: Construcciones Torre Victoria S.A.S.
Cargo:
Residente de obra Junior Función:
Dirección y coordinación de personal, herramienta y maquinaria según indicaciones de diseño y cronograma de obra. Realización de pagos de nómina y compra de material.
Teléfono: 321 317 55 15
26/09/2021 - 10/11/2021
Empresa: Consorcio CMI SENA Tuluá
Cargo:
Auxiliar de presupuestos
Función:
Apoyo en la realización de presupuestos, memorias descriptivas, de cantidades y cotizaciones.
Teléfono: 319 238 1333
02/04/2022 - 30/09/2022
Empresa: First Life ONG
Cargo:
Arquitecto diseñador
Función:
Diseño, representación y coordinación de propuestas arquitectónicas y estructurales. Cantidades de obra y creación de detalles constructivos.
Teléfono: 310 867 7015
04/10/2022 - 29/03/2024
Empresa: Ingetecho
Cargo:
Residente de obra Función:
Dirección y coordinación de personal, herramienta y maquinaria según indicaciones de diseño y cronograma de obra. Manejo de caja menor y presupuesto.
Teléfono: 350 281 1044
01/06/2024 - 30/09/2024
Empresa: Omar Castaño Arquitectura diseño de mobiliario y de interiores
Cargo:
Residente de obra
Función:
Dirección y coordinación de personal, herramienta y maquinaria según indicaciones de diseño y cronograma de obra. Manejo de caja menor y presupuesto.
Teléfono: 310 274 9452
15/11/2024 - Actualidad
Empresa: Compañía Nacional Inmobiliaria CNI
Cargo:
Residente de obra
Función:
Dirección y coordinación de personal, herramienta y maquinaria según indicaciones de diseño y cronograma de obra. Manejo de caja menor y presupuesto.
Teléfono: 311 2597148
CARTA DE PRESENTACIÓN
Siempre he sentido un grato sentimiento por el diseño, la creación, el arte y la construcción, y siempre es bastante agradable la sensación que se tiene al momento de realizar un nuevo proyecto.
Personalmente siempre he sido reconocido por ser una persona proactiva dispuesta a dar la mejor solución, los problemas son inevitables pero las soluciones deben ser rápidas y eficientes. No me gusta la mediocridad, así que hago uso de la mayor cantidad de herramientas posibles para dar fin a una misma situación.
Tengo buena actitud frente al trabajo en equipo, como arquitecto es imprescindible saber cómo relacionarse con distintos tipos de poblaciones, sean clientes, profesionales o comerciantes.
Como profesional he tenido la oportunidad de realizar, apoyar y complementar proyectos arquitectónicos de tipo:
-Interiorismo (Local comercial)
-Institucional (Colegios y UPIs).
-Residencial (Unidades de vivienda unifamiliar y multifamiliar).
-Industrial (Bodegas de almacenamiento y distribución)
-Cultural (Escenario para conciertos).
-Recreativo (Centro acuático y pista de patinaje).
-Comercial (Centro empresarial y comercial).
-Urbanismo (Cartilla de espacio público).
Varios proyectos han sido requerimientos de entidades públicas como la Alcaldía de Bogotá (IDIPRON), o la alcaldía de Sopó, Cundinamarca; otros han sido diseños para privados dentro de firmas de arquitectura y construcción.
Como residente he tenido la oportunidar de estár al frente de la construcción de un edificio de vivienda desde su replanteo hasta su punto de terminados. También he estado al frente de la construcción de una bodega para productos químicos diseñada con estructura metálica y cubierta autoportante.

Juan Sebastian Ariza Gutiérrez. C.C. 1018488412



PORTAFOLIO
UPI 27
Edificio de vivienda en Hayuelos
Bodega industrial Ibañez
05 04 06
Centro empresarial y comercial en Salitre
07
Parques del Folkclore Llanero
Casa contenedor
08
Torre Victoria Suba
1011
Bodega Amoquímicos
Trendy C.C. Galerias
CCC-Centro de Conciliación Ciudadano
09
Polihábitat Caribe San Andrés Isla
12
Arte a mano alzada
ÍNDICE
UPI 27
/ Antonio Nariño, Bogotá / 2019


La Unidad de Protección Integral (UPI) es un equipamento de alcance zonal el cual se encarga de recuperar, rehabilitar y reubicar la población menos favorecida por la sociedad (Drogadictos, habitantes de la calle, desamparados). Este proyecto hace parte de la entidad IDIPRON (Instituto Distrital para la protección de niñez y la juventud) de la alcaldía de Bogotá. Cuenta con áreas destinadas para la formación y el aprendizaje como lo son aulas, talleres de cerámica y mecánica, y un auditorio.




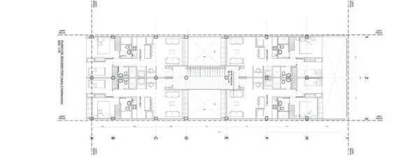
EDIFICIO DE VIVIENDA
EN HAYUELOS
/ Hayuelos, Bogotá / 2015
Propuesta de vivienda multifamiliar que busca cumplir los requerimientos de confort y normativos.



BODEGA INDUSTRIAL
IBAÑEZ
/ Puente Aranda, Bogotá / 2018
Se desarrollaron modelos, diagramas y plantas técnicas según requisitos del cliente. Paralela mente fueron realizadas cartillas de hierros de despieces de elementos estructurales.













CENTRO EMPRESARIAL Y COMERCIAL
/ Ciudad Salitre, Bogotá / 2016


Bajo la tutoria de la firma Contexto urbano S.A. y sus arquitectos diseña dores, se desarrollo una propuesta de espacio público con base a los edificios ya propuestos y las áreas comerciales en primer y segundo nivel.
El concepto de diseño trata de una óptima integración entre el espacio público y el interior por medio de la fluidez de la naturaleza, sus formas y elementos.



CASA CONTENEDOR
/ 2020
Se plantea la construcción de unidades de vivienda modulares a partir de contenedores marítimos de 20 y 40 ft.
La iniciativa parte de generar un prototipo residencial económico y de alta eficiencia ambiental haciendo uso de materiales sostenibles y energías alternativas.


CCC-CENTRO DE CONCILIACIÓN CIUDADANO
/ Bosa, Bogotá / 2024

Se trata de un ejercicio académico que, por medio del uso de la metodología BIM, se realiza la coordinación en modelo 3D de distintas especialidades para un proyecto de construcción. Se hace uso de herramientas como el ciclo de vida, MIPD, IDMs y parametrizacion de objetos.




PARQUES DEL FOLKCLORE LLANERO
/ Puerto López, Meta / 2020
De la mano de la alcaldía y el partido liberal en el municipio de Puerto López, se proponen una serie de parques cuya identidad sea resaltar el folkclore haciendo uso de componentes recreativos, culturales e históricos propios de la cultura llanera.




TORRE VICTORIA SUBA
/ Suba, Bogotá / 2021
Partiendo con un proyecto de vivienda tipo VIS, se realiza la dirección y coordinación del personal de obra junto con su herramienta y maquinaria necesaria.



POLIHÁBITAT CARIBE
/ San Andrés Isla / 2022

En sociedad con un grupo de trabajo de ECOPETROL, se realiza el diseño y la construcción de vivienda emergente en estructura metálica y materiales reciclados, como una respuesta a los últimos acontecimientos clímaticos en la Isla de San Andrés.






BODEGA AMOQUIMICOS
/ Funza, Cundinamarca / 2023
Se realiza la coordinación y la planificación de la construcción de una bodega de 2.000 m2 para la empresa AMOQUIMICOS. Su ejecución se realiza desde el el relleno y replanteo del terreno, pasando por todo el proceso de montaje de estructura metálica, hasta su punto culmen en acabados y urbanismo.
Se coordinan contratistas de distintas especialidades y se administran recursos materiales, herramientas y diseños.


TRENDY C.C. GALERIAS
/ Teusaquillo, Bogotá D.C. / 2024
Se toma como punto de partida la estética de TRENDY como pauta de diseño para el diseño arquitectónico y el diseño del mobiliario.
Se coordina así, un local de 200 m2 dentro del Centro Comercial Galerias que cuenta con dos niveles: Uno principal de de ventas y un segundo destinado para bodega y oficina.
La alta iluminación se ve compensada con un adecuado uso de una red HVAC.



ARTE A MANO ALZADA















