ARCHITECTURE PORTFOLIO



![]()



Introducción
Currículum Vitae
Polideportivo Tabacalera – Proyecto Urbano
San Judas Tadeo – Intervención de Fachada
Netwey – Infraestructura Nacional
Diseño Editorial y Visual Arquitectónico
Firma y Agradecimientos



Alolargodelosúltimosaños,herecorridodiversosterritorios—geográficosyconceptuales— dentro del ejercicio arquitectónico. Desde la supervisión de obra en contextos rurales y urbanos, hasta la visualización hiperrealista de espacios aún no construidos, mi trabajo ha buscado siempre articular la técnica con lo sensible.
Este portafolio reúne una selección de proyectos desarrollados entre 2020 y 2025, incluyendo intervenciones en infraestructura, diseño de espacios públicos y propuestas conceptuales. Cada obra presentada aquí responde a un contexto particular, pero todas comparten una intención común: hacer arquitectura con conciencia del entorno, del oficio y del usuario.
He tenido la oportunidad de colaborar en proyectos de escala nacional con Netwey, fundar JAK Arquitectura junto al Mtro. Adán Rodríguez, y explorar procesos editoriales y gráficos que me han permitido consolidar una visión propia del diseño. Esta recopilación no es solo un compendio de imágenes, planos o renders, sino una mirada crítica a mi trayectoria, a los retos enfrentados y a las posibilidades futuras.
Cada página de este portafolio es un fragmento de una búsqueda constante: la de una arquitectura más honesta, más humana y más significativa.
No se trata solo de proyectar espacios, sino de proyectar ideas, valores y preguntas. Este documento no marca un final, sino un punto de partida hacia nuevos contextos, nuevos lenguajes y nuevos desafíos.
Gracias por mirar con atención. Aquí comienza lo que sigue.



Contacto:
Celular: (962)-152-0358
Email: Kenjibm14@gmail.com
Domicilio: CDMX, México
Redes:
Instagram: @KenjiBarrosom
Instagram: @JAKStudioMX
Behance: behance.net/kenjibarroso1
Experiencia Profesional
Ubicacionesconproyectosrealizados
Habilidades
Cursos y Formación Adicional
Arquitectocon5+añosdeexperienciaendiseño,supervisióndeobraconexperienciaeninstalacioneseléctricas.Especializadoenproyectosarquitectónicosdealtacalidad ,visualización3D,renders hiperrealistas.ExperienciaencoordinacióndeequiposygestiónderecursosenMéxico,conenfoque encumplimientodeplazos,administración,innovaciónyoptimizacióndeprocesos.
NetweyFibraÓptica|SupervisordeObrayProyectistaanivelnacional CDMX, 2022 - Actualidad
Supervisiónycoordinacióndeproyectosdeinfraestructura,gestióndepresupuestosycontrolde calidad.
Modelado3Dyrenderizacióndeproyectosparapresentacionesdeclientesanivelnacional. Gestióndepagosyproveedoresanivelnacional.
JAKStudio|Fundador|RenderistayProyectista CDMX, 2023 - Actualidad
Creacióndevisualizaciones3Ddealtoimpactoparaproyectosresidencialesycomerciales. Promocióndeproyectosatravésdeplataformassociales(Behance,Instagram).
WHArquitectura|Becario-ProyectistayRenderista CDMX, 2019 - 2020
Diseñoymodeladodeproyectos,apoyoenpropuestasyconcursos. Desarrollodeplanosyrendersdealtacalidad.
DiseñoyModelado3D:AutoCAD,Revit,SketchUp
Renderización:Lumion,VRAY(hiperrealistas.)
GestióndeProyectos: Coordinacióndeequipos,controldepresupuestos,seguimientodeplazos
Software:Photoshop,Illustrator,MicrosoftOffice
Lenguajes:Español(nativo),Inglés(C1)
LumionRender2.0–NunoSilva(2020)
RenderVRAY–Arq.LuisJasso(2020)
AutodeskCADyRevit(2020)
D5Render –NunoSilva(2024)
Revit-DiplomadoenRevitStructure&Architecture

Ubicación: Calle Ezequiel Montes 139, Tabacalera, Ciudad de México, México | Área de metros cuadrados: 1,260 m2
I mágenes: Kenji Barroso







La colonia Tabacalera, situada en el perímetro central de la Ciudad de México, es una de las zonas más históricas y complejas del tejido urbano capitalino. Nacida a finales del siglo XIX como una colonia de clase media trabajadora, su nombre se origina por la presencia de la Real Fábrica de Tabacos, un establecimiento industrial que marcó la identidad productiva de la zona. Su cercanía con el MonumentoalaRevoluciónyelCentroHistóricolaconvirtió enunejeestratégicodeactividadsindical,políticaycultural
Sin embargo, hoy en día la colonia enfrenta una serie de problemáticas urbanas, sociales y espaciales que condicio-
Deterioro del patrimonio arquitectónico: Muchos de los edificiosporfirianos,artdécoeindustrialesoriginalesestánen estadodeabandono,subutilizaciónohansidoalteradospor intervencionessincriteriosdeconservación.
Fragmentación del espacio público: Las banquetas estrechas, la falta de mobiliario urbano y el exceso de vialidadesparaelautomóvilimpidenlaconsolidacióndeuna
Falta de infraestructura comunitaria: A pesar de su centralidad, la colonia carece de equipamientos deportivos, culturales y recreativos adecuados para atender a sus







ElproyectoselocalizaenunprediosubutilizadodelacoloniaTabacalera,dondeunequipamientodeportivoobsoletoyanorespondealasnecesidadescontemporáneas delbarrio.Anteello,seproponedemolerloexistenteyplantearunaintervenciónintegralquereorganiceelespaciodesdenuevaslógicassociales,funcionalesy


Eledificioseconcibecomounaestructuravertical,articuladaenmúltiplesnivelesprogramáticos—deporte,salud,tecnologíaycomunidad—ysostenidaporunnúcleode circulacionesquenosoloorganizalosflujos,sinoqueactúacomocolumnaestructuralycimentaciónprincipal,almododelgranparaguascentraldelMuseoNacionalde
Cadaniveloperacomounaplataformaautónomaperointerdependiente,yjuntosconfiguranunatopografíaconstruidaquedesdibujaloslímitesentrecuerpo,ciudady tecnología.Así,elnuevoPolideportivoTabacaleradejadeserunsimpleedificioparaconvertirseenunainfraestructurasocialvertical,abiertaalencuentro,alcrucede
LasménsulasenVconstituyenelsistemaestructuralclavedelproyecto.Másquesoportes,operancomoelementosdetransiciónentrelosnivelesyelnúcleoverticaldecirculacio-
InspiradasenelpabellóncentraldelMuseoNacionaldeAntropología,estasménsulasarticulancargasconeficienciayexpresividad.Permitenliberarlasplantas,optimizarla
Ensurepetición,generanunritmoestructuralquenosóloordena,sinoquedefinelaidentidaddelproyecto.


Un sistema vertical de salud, deporte y tecnología
MULTICANCHA/AZOTEA

CIRCULACIONES
GIMNASIO DANZA
ACONDICIONAMIENTO
GIMNASIO MULTICANCHA
AUDITORIOE-SPORTS
GIMNASIO/COMBATE
ENTRENAMIENTO/GIMNASIO
SERVICIO

MULTICANCHA
AUDITORIOE-SPORTS
GIMNASIO/COMBATE
ENTRENAMIENTO/GIMNASIO
SERVICIO
SANITARIOS H/M AREAPUBLICA COMERCIO COMERCIO
ALBERCASEMIOLIMPICA
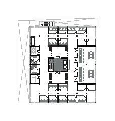
El programa del Polideportivo Tabacalera se estructura en niveles superpuestos que responden a distintas escalas de actividad: cuerpo, mente y comunidad. Desde las canchasdeportivasyáreasdeboxeo,hastalos gimnasios, zonas de nutrición y espacios dedicadosalosE-sports,eledificioarticulaun ecosistemaintegraldebienestarfísicoydigital.
Cada nivel se conecta a través de un núcleo verticaldecirculaciónquepermitetransiciones fluidasentredisciplinas,manteniendoindependencia funcional y continuidad espacial. El proyecto no organiza actividades de manera jerárquica, sino que plantea una estructura abierta, capaz de adaptarse a los ritmos cambiantesdesususuarios.
Más que un edificio, es una infraestructura cívica para el movimiento, el aprendizaje y la interaccióncontemporánea.



La fachada del Polideportivo Tabacalera no es únicamente un envolvente arquitectónico: es el resultado de un proceso proyectual profundamente vinculado con el contexto histórico, las necesidades programáticasdeledificioylasposibilidadestecnológicascontemporáneas.Sudiseñonacedelavoluntaddearticularunarelacióndirecta entre la tradición industrial de la colonia Tabacalera y una expresión formalinnovadora,funcionalyprecisa.
Medianteunenfoqueparamétrico,lafachadaseestructurasobreuna retículageométricaquefuncionacomobasedeunsistemadeperforaciones moduladas. Esta retícula, inspirada en patrones de fábricas y celosíasmetálicastípicasdeprincipiosdelsigloXX,seconvierteenel lenguaje visual del edificio, estableciendo un vínculo con la memoria materialdelbarrio.Sinembargo,estaherencianosereplicadeforma literal,sinoquesetransformapormediodeherramientasdigitalesen unamatrizadaptableydinámica.
Elsistemadeperforacionessedeformaatravésdelaintroducciónde puntos atractores, que operan como nodos de control dentro del plano. Estos puntos permiten manipular variables como la escala, rotación,densidadydistribucióndelosvacíos,generandounalectura variableyvivadelafachada.Laszonascercanasalatractorpresentan mayorapertura,mayorluzyventilación,mientrasquelasmásalejadas permanecenmáscerradas,densasoinclusocompletamenteopacas. Estalógicareactivapermitequelafachadanosóloatiendaexigencias estéticas, sino que responda a las condiciones térmicas, visuales y funcionalesdecadaespaciointerior.
Cada uno de los elementos del patrón perforado funciona como un módulo repetible y ajustable. Esta estrategia de diseño no sólo resuelvelaidentidadformaldeledificio,sinoqueposibilitaunproceso de prefabricación eficiente, disminuyendo el desperdicio de material, optimizando los tiempos de obra y garantizando precisión en el montaje.Elsistemaseconcibedesdesuorigencomouncomponente constructivoynocomounañadidosuperficial.

Ademásdesueficienciatécnica,lafachadaactúacomoundispositivo urbano,generandoundiálogoconelentornoinmediato.Alobservarla, sepercibeungradientedeluz,sombrayritmoquecambiasegúnla horadeldíayelángulodelobservador.Estacualidadcinéticaconviertealedificioenunorganismoactivodentrodelpaisajeurbano,capaz decomunicarmovimiento,escalaypropósito.
EnuncontextocomoeldelacoloniaTabacalera—cargadodecapas históricas,identidadobreraytensionesurbanascontemporáneas—el diseñodelafachadabuscaestablecerunaposicióncrítica:nonegarel pasado,perotampococopiarlo,sinoreinterpretarlodesdeunalógica arquitectónica actual. El resultado es una piel vibrante, funcional y culturalmente enraizada, que convierte al edificio en un nuevo nodo cívicoenelcorazóndelaciudad.





EnmediodeltejidohistóricodelaColoniaTabacalera—unodelos barriosmásantiguosydensosdelaCiudaddeMéxico—surgeun edificioqueseposicionanocomoobjetoaislado,sinocomouna intervencióncrítica.Esteproyectonopretendereplicarlanostalgia delentorno;proponeunavisiónalternativa:activarlaciudaddesde laarquitecturamediantelainclusióndeprogramasolvidadosenla zona, como el deporte y el espacio público compartido.
Eledificioseerigeenunaesquinaclavedelbarrio,retomandolalógicadeintersección y dinamismo propia del contexto urbano. Su planta baja, completamente liberada graciasaunsistemadecolumnasinclinadastipoV,creaunvacíoarquitectónicoque se ofrece al peatón como una plaza cubierta, habitada por comercio activo y vegetación controlada. Bajo la sombra de la gran estructura se insertan locales de marcas internacionales —como Nike y Starbucks— que funcionan como puentes entreloglobalylolocal,incentivandoelusocontinuodelespacioalolargodeldía.






Más allá de su impacto comercial, la principal innovación del edificio radica ensupropuestasocial:reinsertareluso deportivoenunbarrioquecarececasi por completo de espacios públicos para la activación física. El núcleo del programa se articula en torno a una cancha deportiva profesional techada, ubicada en niveles superiores. Este espacio no es decorativo ni exclusivo; está concebido como una plataforma deencuentro,entrenamientoycompetencia para la comunidad.
La fachada, una piel paramétrica tridimensional blanca, actúa como un diafragma entre interior y exterior. Este sistema modular nosolorespondealaorientación solar, también produce un juego desombrasenconstantecambio que otorga al volumen una dimensión cinética. En contraste con la masa ciega de muchos edificios vecinos, este gesto configura una arquitectura porosa, viva, conectada.



































La intervención de acceso al conjunto San Judas Tadeo se concibe como un gesto arquitectónico sobrio, simbólico y contemporáneo, que define el umbral entre lo público y lo privado. El diseño busca dignificar el ingresovehicularypeatonalalconjunto,atravésdeunavolumetríalimpiayunapaletadematerialesatemporal, en donde el concreto aparente, la piedra lavada y la madera configuran un lenguaje formal cálido y sobrio.


El volumen central destaca con una iconografía religiosa estilizada de San Judas Tadeo, sutilmente integrada a una celosía vertical que actúa como remate visual y elemento de identidad. Este gesto no sólo enmarca el acceso, sino que también funciona como símbolo de protección y pertenencia para los habitantes del conjunto.




noche, reforzando la percepción monumental y segura del acceso.
































La elaboración de sites para Netwey Fibra Óptica representóundesafíotécnicoylogísticoanivelnacional. El reto principal consistió en adaptar soluciones arquitectónicas e infraestructurales eficientes, funcionales y replicables, en contextos geográficos, climáticos y sociales sumamente diversos, incluyendo zonas urbanas,ruralesydedifícilacceso.
Cadasiterequeríaunacoordinaciónintegralentrediseño arquitectónico, instalaciones eléctricas, normativas locales y tiempos de ejecución muy precisos, bajo una estrategiadedesplieguemasivo.Setratódeinfraestructura crítica para telecomunicaciones, donde el margen de error debía reducirse al mínimo, considerando factorescomo:
● Variabilidad en condiciones de terreno (desde zonas costerashastaaltiplanos),
●Integracióndeestructurasprefabricadasomodulares,
●Cumplimientodeespecificacionestécnicasdeconectividadyventilación,
●Supervisiónsimultáneademúltiplesfrentesdeobra, Gestión remota y presencial con contratistas y proveedoreslocales.
Además, el proyecto implicó trabajar bajo presión constanteparamantenerlaoperatividadyexpansiónde redentiemporécord,locualexigióunavisiónestratégica,habilidadesderesolucióndeproblemasencampo,y un entendimiento profundo de las instalaciones eléctricas,estructuralesylogísticasdelservicio.


1 2
NOTA:UBICACION RACK SERVICIO FIBRA
Espacio
NPT±0.00
B 1 2 A B
NOTA:CENTRODECARGADE70A-2POLOSBIFASICO PARALINEAPRINCIPAL C/CABLECAL.6
Espacio
NPT±0.00
NOTA:REVISAR DETALLE DE CABLEADO EN DT-01
PLANTA TIPO SITE
NOTA:LAORIENTACIONDETABLAROCA PUEDEVARIARCONLAUBICACIÓNDEL LOCAL CONSTRUCCION
01 I OLD ESCALA 1:50
B A
PLANTA TIPO SITE
NOTA:LAORIENTACIONDELMEDIDOR PUEDEVARIARCONLAUBICACIÓNDEL LOCAL ELECTRICO I
02 I OLD ESCALA 1:50
B A
Simbología de Instalacion electrica
ACOMETIDA MEDIDOR INTERRUPTORTERMOMAGNETICO TIERRAFISICA TABLERODEDISTRIBUCION CONTACTO 1000W.
NOTA:UBICACION RACK SERVICIO FIBRA
NOTA:CENTRODECARGADE70A-2POLOSBIFASICO PARALINEAPRINCIPAL C/CABLECAL.6
NOTA:REVISAR DETALLE DE CABLEADO EN DT-02 02 DT-02
SECCIÓN TIPO SITE
NOTA:LAORIENTACIONDETABLAROCA PUEDEVARIARCONLAUBICACIÓNDEL LOCAL CONSTRUCCION
1:50
SECCIÓN TIPO SITE
NOTA:LAORIENTACIONDELMEDIDOR PUEDEVARIARCONLAUBICACIÓNDEL LOCAL ELECTRICO I
02 I OLD CORTE A / ESC. 1:50


1

Espacio
NPT±0.00
NOTA:CENTRODECARGADE125A-12POLOSBIFASICO
PARALINEADISTRIBUCIONINTERIOR C/CALIBRECAL.8
2 A B 1 2 A B
PLANTA TIPO SITE
NOTA:LAORIENTACIONPUEDEVARIAR CONLAUBICACIÓNDELLOCAL ELECTRICO II 03 I OLD ESCALA 1:50
±3.00 NIVEL
Espacio
NPT±0.00
NOTA:CENTRODECARGADE125A-12POLOSBIFASICO
PARALINEADISTRIBUCIONINTERIOR C/CALIBRECAL.8
PLANTA TIPO SITE
NOTA:LAORIENTACIONPUEDEVARIAR CONLAUBICACIÓNDELLOCAL CONTACTOS 04 I OLD ESCALA 1:50
B A B A
Simbología de Instalacion electrica
NOTA:CENTRODECARGADE125A-12POLOSBIFASICO
PARALINEADISTRIBUCIONINTERIOR C/CALIBRECAL.8 03 DT-03
NOTA:REVISAR DETALLE DE CABLEADO EN DT-03
NOTA:UTILIZARPARALINEADISTRIBUCIONINTERIORDECONTACTOS C/CALIBRECAL.8
SECCIÓN TIPO SITE
NOTA:LAORIENTACIONPUEDEVARIAR
SECCIÓN TIPO SITE
NOTA:LAORIENTACIONPUEDEVARIAR CONLAUBICACIÓNDELLOCAL CONTACTOS 04 I OLD
A / ESC. 1:50



1
2 A B 1 2 A B
Espacio
NPT±0.00
NOTA:CENTRODECARGADE125A-12POLOSBIFASICO
PARALINEADISTRIBUCIONINTERIOR C/CALIBRECAL.8
Espacio
NPT±0.00
NOTA:CENTRODECARGADE125A-12POLOSBIFASICO
PARALINEADISTRIBUCIONINTERIOR C/CALIBRECAL.8
PLANTA TIPO SITE
NOTA:LAORIENTACIONPUEDEVARIAR CONLAUBICACIÓNDELLOCAL ELECTRICO II
03 I OLD ESCALA 1:50
PLANTA TIPO SITE
NOTA:LAORIENTACIONPUEDEVARIAR CONLAUBICACIÓNDELLOCAL CONTACTOS
04 I OLD ESCALA 1:50
B A B A

NIVEL
LAL ±3.00
Simbología de Instalacion electrica
NOTA:CENTRODECARGADE125A-12POLOSBIFASICO
PARALINEADISTRIBUCIONINTERIOR C/CALIBRECAL.8 03 DT-03
NOTA:REVISAR DETALLE DE CABLEADO EN DT-03
NOTA:UTILIZARPARALINEADISTRIBUCIONINTERIORDECONTACTOS C/CALIBRECAL.8
SECCIÓN TIPO SITE
NOTA:LAORIENTACIONPUEDEVARIAR
SECCIÓN TIPO SITE
NOTA:LAORIENTACIONPUEDEVARIAR CONLAUBICACIÓNDELLOCAL CONTACTOS 04 I OLD CORTE A / ESC. 1:50












Durante mi colaboración con Netwey Fibra Óptica como supervisor de obra y proyectista a nivel nacional, enfrenté una serie de retostécnicos,logísticosyhumanosderivados del desplazamiento constante por múltiplesestadosdelaRepúblicaMexicana, incluyendo Veracruz, Tabasco, Guerrero, Coahuila, Sonora, Yucatán, Nuevo León, Ciudad de México, Campeche y Chiapas. Esta experiencia no sólo fortaleció mi perfil profesional, sino que también consolidó mi capacidad de adaptación, organización y liderazgoencontextosdiversos.
Uno de los principales desafíos fue la coordinación logística en regiones con características geográficas, climáticas y de conectividad completamente distintas. Adaptarmealosritmoslocales,altransportedisponible,alagestióndeinsumosyalos recursos técnicos en campo fue clave para garantizar la ejecución oportuna de los proyectos. Cada traslado implicaba una nueva lectura del territorio, una planeación precisadetiemposdeobra,yunaestrategia flexibleparaafrontarimprevistos.
La gestión remota de múltiples frentes de trabajo representó otro reto sustancial. Supervisar obras activas desde diferentes ubicaciones requirió establecer sistemas claros de comunicación asincrónica, seguimiento técnico detallado y coordinación constante con equipos locales. La implementación de reportes digitales, bitácoras fotográficas, y evaluaciones semanales permitió mantener un control riguroso de los avances constructivos, incluso en zonas con baja conectividad o recursoslimitados.
Trabajar en regiones cultural y socialmente diversas también implicó una profunda capacidad de empatía, negociación y adaptabilidad. Las diferencias en dinámicas laborales,formasdecomunicaciónyestructuras sociales me exigieron adoptar una postura respetuosa, abierta al diálogo y enfocadaenlacolaboración.Estaexperiencia fortaleció mis habilidades interpersonales y mi sensibilidad hacia los contextos comunitarios donde se implementaban los proyectos.
A nivel personal, los constantes viajes supusieron un esfuerzo físico y mental significativo.Jornadasextensasdetraslado, condicionesclimáticasextremasyelretode mantener la productividad en campo reforzaron mi resiliencia, autodisciplina y capacidad de autogestión. Aprendí a tomar decisiones estratégicas bajo presión, a resolverproblemastécnicosentiemporealy amantenerlamotivacióndelequipo,incluso encondicionesadversas.
Finalmente, cada intervención requería un control presupuestal estricto y una toma de decisiones efectiva en sitio, lo cual me permitióoptimizarrecursos,evaluaralternativas constructivas, y negociar con proveedores locales de manera eficiente. Esta experiencia consolidó mi perfil como arquitectoconvisiónejecutiva,técnico-operativa y estratégica en proyectos de gran escalaanivelnacional.
















































Agradezco,antetodo,aDios,pordarmevida,propósitoyfuerzaencadapasodeestecamino.Por acompañarmeenelsilenciodelprocesocreativo,enlaincertidumbredelosdesafíosyenlaluzque guíacadadecisióntomadaconfeyconvicción.
Amifamilia,gracias.Suapoyoincondicionalhasidoelcimientoquemehasostenidoencadaetapa. A mis padres, por enseñarme el valor del esfuerzo, la constancia y la honestidad. A quienes han estadocercademí,porrecordarmesiemprequiénsoyyporacompañarmeinclusoenlosmomentosmásexigentes.Sineserespaldoemocional,nadadeestohabríasidoposible.
Agradezco profundamente a mis formadores. A quienes, en el aula y fuera de ella, creyeron en mi potencial,meimpulsaronacuestionar,apensarmásalládelobjetoarquitectónico,aleerelcontexto y asumir el compromiso ético y social de cada proyecto. Su guía fue esencial para cimentar un pensamientocríticoytécnico.
Este documento también es un reconocimiento a todos los equipos, colegas y colaboradores con quieneshecompartidoideas,obrayvisión:desdelasadecuacionesenChiapas,hastalosdesplieguestécnicosparaNetweyanivelnacional;pasandoporlasimbologíaconstruidaenlaFachadade San Judas Tadeo, el Polideportivo Tabacalera, o las exploraciones gráficas y conceptuales en JAK Studio.Cadaproyectofueunaoportunidadparaaprender,crecerytransformar.
Este documento no es un cierre, sino una pausa. Un espacio para mirar atrás con gratitud, para honrar a quienes han sido parte de este recorrido, y para seguir diseñando con responsabilidad, sensibilidadyvisióndefuturo.
Gracias.
KenjiBarrosoMar CiudaddeMéxico,2025