Skip to main content

TKU EA1

Page 1

TKU EA1-2024 SPRING GROUP 6 -江庭毅
PORTFOLIO KU ARCHITECT RE
江庭毅 JIANG TING-YI EA1 GROUP 6 指導老師:許偉揚

Learning Form Master I

第二題 向大師學習 第一階段 2024 春季
between 第一題 窗景
Window-Scape : in

Learning Form Master II

Learning Form Master III

第三題 向大師學習 第二階段
第四題 向大師學習 第三階段

Window-Scape : in between

第一題 窗景

形式只是事物的表層;但生活方式卻是建築物的深層結構

滬尾漁港

SITE
基地測繪 觀察、紀錄、測繪、分析

SITE MODEL

動線分析 人行道 中 正 路 滬 尾 魚 港 使用酒吧的人 使用理髮廳的人 行人
基地分析

經過觀察,由於建築本體的樓梯外掛在建築外,對於沒有意圖要使用二、 三樓的店家的人,不會有機會去接觸到建築的垂直空間。

設計目標在於如何引導、設計出動線。結合觀察發現此建築或周邊有很多 可以駐足的觀景區,設計出融合動線的可環視觀景建築。

設計概念

隨時間行為變化的樓梯

使用酒吧的人動線

時間:下午5:00~上午1:00

使用理髮廳的人動線

時間:上午10:00~下午8:00

瞭望台 滬尾漁港 中正路
建築內外視線可觀察到漁港位置

樓梯與建築本體的融合

節點 交集點

與海的鏡像關係

PROCESS MODEL

FINAL MODEL

Learning Form Master I

第二題 向大師學習 第一階段

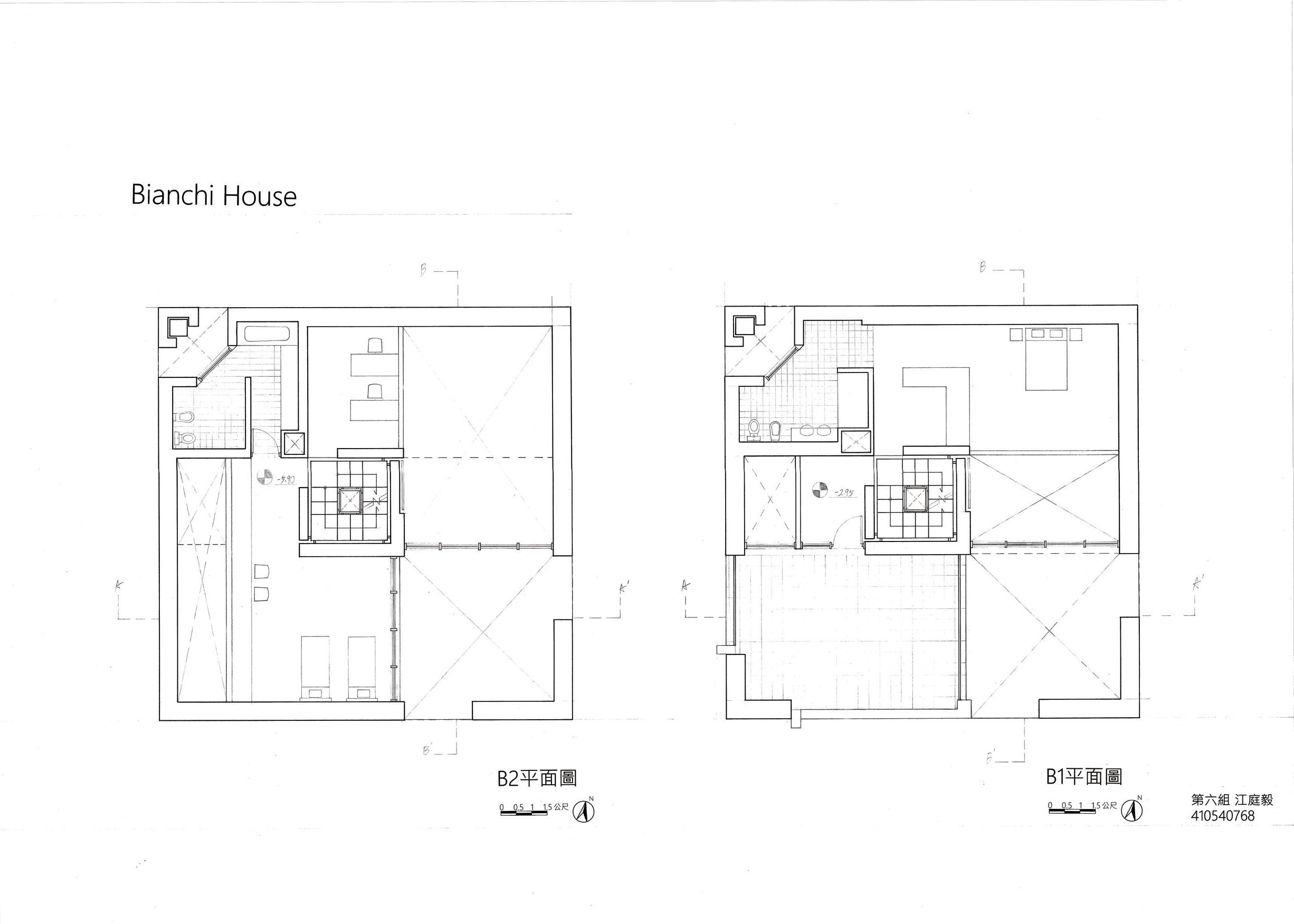
Bianchi House

建築師: Mario Botta

建造時間: 1971~1973年

地點: Riva San Vitale ,Switzerland

Bianchi House的設計與20世紀中期的現代主義建築運動密切相關

這一時期的建築師們傾向於追求功能性、簡潔性和創新性,並且注重建築

與周圍環境的關係,這些特點在博塔的設計中得到了體現

這座住宅體現Botta的典型風格

包括簡潔的幾何形狀,強調結構性設計以及對光線和空間的精心處理

建築外觀採用了混凝土等現代材料,呈現出現代主義風格特徵

建築語彙

自然光線 中心對稱 幾何線條
San Giovanni Battista 教堂 Papa Giovanni XXIII 教堂

建築是人與自然之間不斷的鬥爭,是壓倒自然、佔有自然的鬥爭。建築的第一個行為就是把一塊石頭放在地上。

這一行為將自然狀況轉變為文化狀況;這是一個神聖的行為。

建築材料

Botta 偏愛使用自然材料

如混凝土、玻璃、石材、磚等

這些材料不僅質感豐富

還能展現出建築物的穩重與永恆感

環境涵構

除了Riva San Vitale的 16 世紀圓形寺廟

還有歷史悠久的“Roccoli”正是這種令人印

象深刻的自然風光與這些基本結構讓博塔認

識到在自然基礎上進行建設不可避免地會改變自然

因此他主張透過建立有吸引力的人類空間來進行妥協。

基地分析

這棟房子位於瑞士提契諾州Riva San Vitae的亞阿爾卑斯地區

坐落在通往盧加諾湖的陡峭斜坡上,處於鄉村環境中位於一條蜿 蜒上山的古老小路的盡頭到達茂密的森林終止於比安奇地塊的人 行道周圍的地區都遭受了不加區別的城市開發的影響因此,馬裡 奧·博塔從一開始的主要目標之一就是設計一座能夠標記村莊擴 張過程中被忽視的邊界的房屋,從而保護森林。

空間垂直減法

此圖形由一系列大型垂直減法組成 產生不同高度的空隙

就其周圍環境而言

該作品旨在實現主要垂直的體積

以免失去與山脈的關鍵聯繫

因為它們也以垂直形式呈現

空間構圖比例

這棟房子可以被認為是博塔所有 特色構圖方法的概要這棟房子由

清晰明確的主要幾何形式決定這 可以被視為對柯比意對基本形式 的奉獻的迴響 1.4 : 1 : 1.6

外觀系統

立面上的每個切口都標誌著一個特定的視圖

並表達了Mario Botta的信念:建築是一個地方的設計

正因為如此,它的外牆不僅僅是裝飾建築物外表面的手段 它們表達了房屋內部與其周圍環境、太陽運動或歷史建築位置的關係 其立面的幾何形狀與周圍景觀的抽象相對應

路線分析

位於作品中心的樓梯在每層樓形成放射狀分佈 並形成連接所有樓層的垂直連接點。它的螺旋

軌跡為我們提供了一系列不同的觀點。

光線分析

因為建築本身座落於山上與河畔旁,自然採光充足 大型窗戶和開口帶來自然光,同時將室內與室外環境連接起來 利用光線和影子的效果來營造空間的變化和動感 使建築內部在不同時間和季節呈現不同的景觀。

Bianchi House

SITE MODEL

Learning Form Master II

第三題 向大師學習 第二階段
中心對稱 立面開口對稱 垂直減法 空間加法 幾何分割 平面加法
設計分析
開口 外殼

CONCEPT MODEL

Learning Form Master III

第四題 向大師學習 第三階段

設計概念

平面立面分割&堆疊

透過案例學習到的垂直減法與平面切割手法達到垂直量體內的視線交流

在原案例中發現與以往的空間配置不同的是鮮少有「門」的存在 而沒有了門來區隔空間,在聲音上也能做到垂直流動,想法是透 過轉換材料利用網格狀材料可穿透聲音的特性來達到目的並取代 牆在平面中阻擋視線的角色

垂直減法 視覺

聽覺

看與被看

構成內部量體後透過覆蓋外殼與開口 達到保護內部量體的隱私

外殼

在案例中的一個獨特的斜角設計與外殼的開口可以達到人在空間內部可以看到 外部全部的景而外部往內的視線上卻有所限制透過開口與斜角的運用,可以控 制在每個空間節點上的視線可到達的地方

開口 視覺節點

錯層

工作室 討論空間 私人空間

空間需求 路線 休憩空間

希望工作和私人區域可以明顯劃分,如有兩條不同路線 但在感官上希望又可以有一些些的接觸 空間劇本 我和另一半住一起,我們是同一個工作室的建築師 這是一個事務所和住家融合的建築 偶爾會有朋友來家裡小住與同樂

立面材料

設計空間分析圖

選擇透光的材料呼應原案例的開洞採自然光 並讓建築更有穿透感,和輕盈的感覺

客廳 廚房 陽台

客房 陽台 休憩區 廁所 廁所

主臥

外殼

會議室 休憩區 廁所

工作室 工作室

公共客廳

健身房 廁所

路線

設定有2條路線、2個入口,一條由進出工作室的人使用 一條是私人使用,兩條路線纏繞建築,互不相交 但在視線上可相互交流

在公私領域間,利用錯層、開口、連接的室外 半室外空間作為過渡 以案例的外殼為概念,將外殼托開 以增加由內而外的視野 也達到增加許多虛空間 與地形的關係

空間領域劃分

一樓主要為工作室空間、會議室

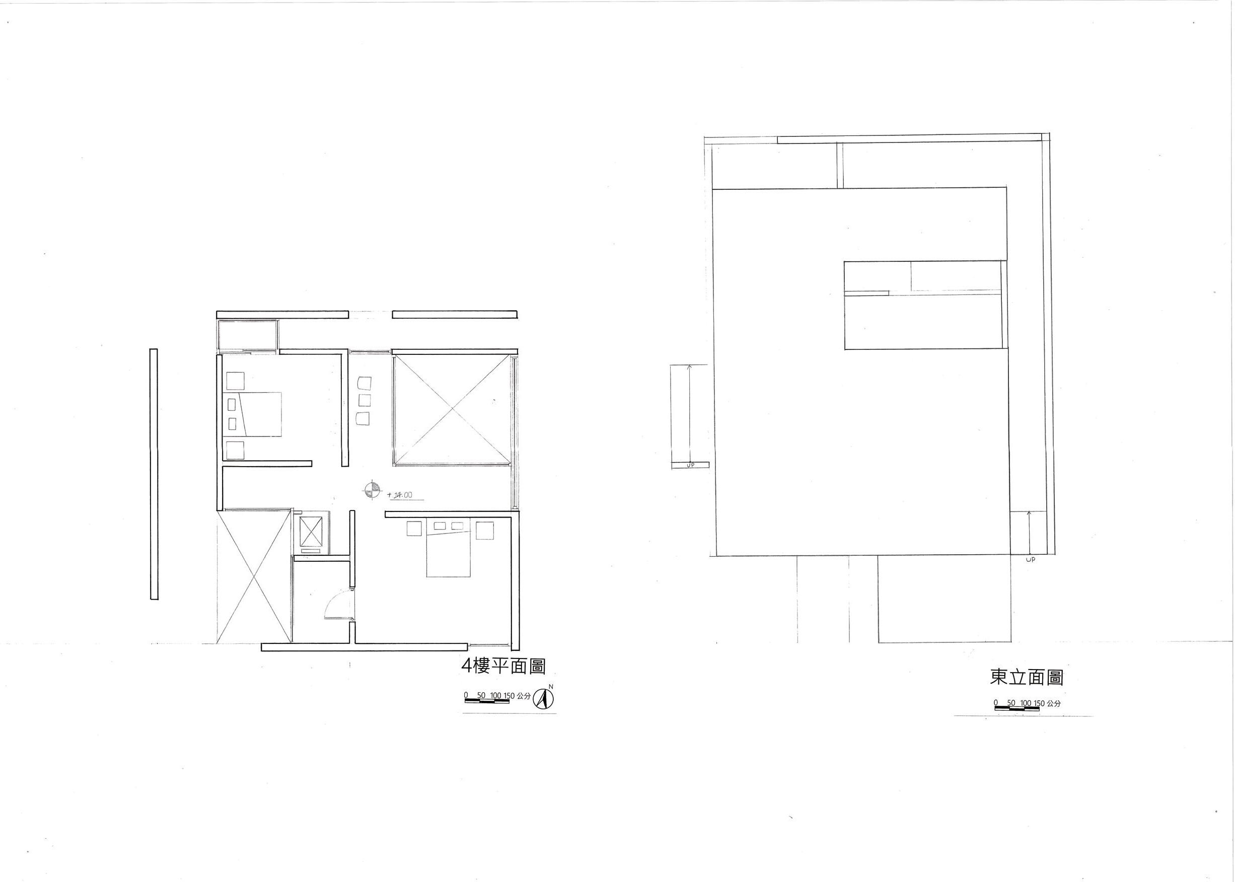
二樓主要為公共休憩空間、健身房 三樓主要為私人用客廳、廚房 四樓主要為私人主臥、客房

中介空間

在空間的轉換中 , 採用坡道作為連結 , 呼應地形之關係

一樓 二樓 三樓 四樓

PROCESS MODEL

FINAL DESIGN

SPRING
TKU ARCHITECTURE EA1

Turn static files into dynamic content formats.

Create a flipbook
TKU EA1 by 江庭毅 - Issuu