INTERIOR DESIGN









![]()































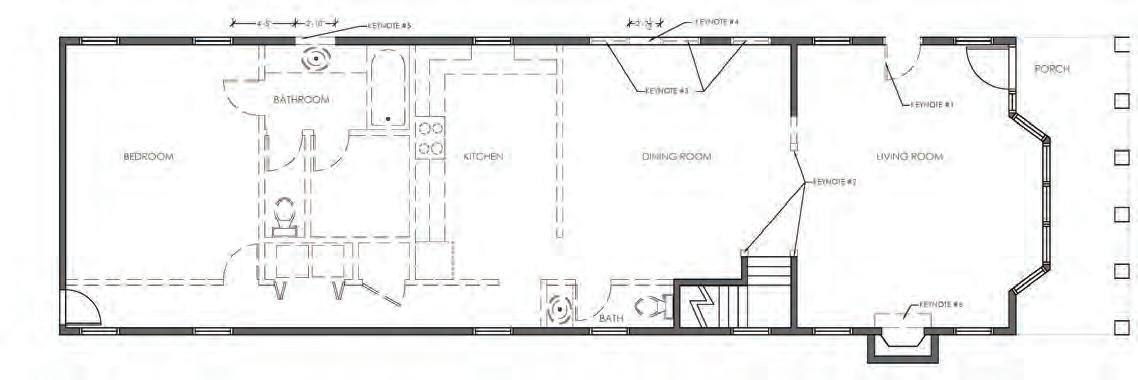
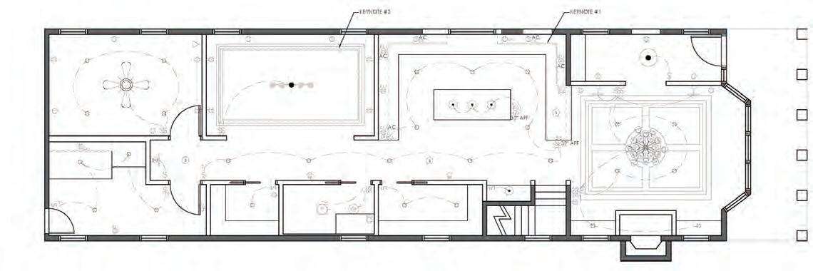
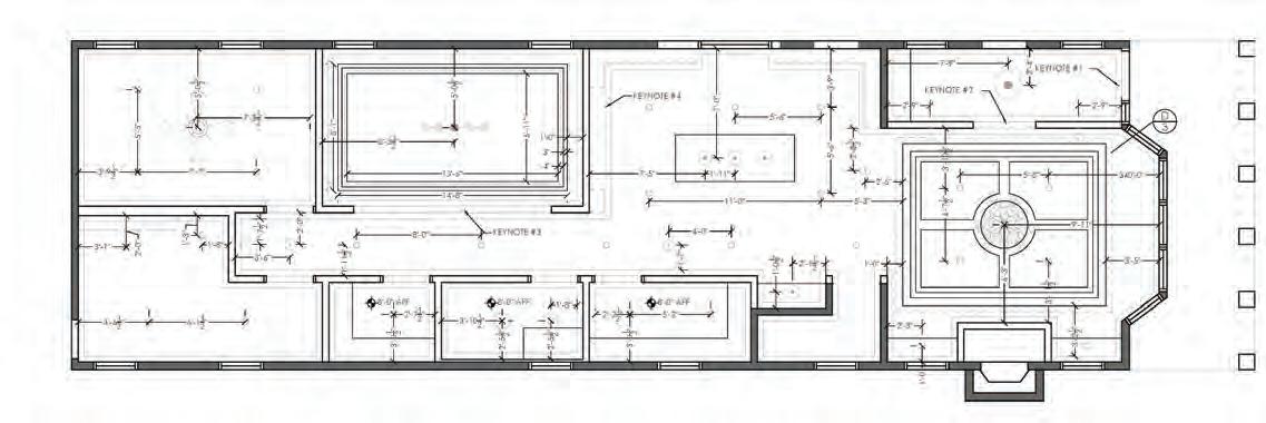
Produced in Autodesk AutoCAD | Original Scale 1/4” = 1’-0” balance of comfort, durability ,

ease of cleaning
enhance guest comfort







A central ceiling element features full-surface backlit acrylic, creating a soft, ambient glow that highlights the cashwrap and enhances visibility. Wrapped in Surfacing Solution’s T383 Walnut Flexible Wood Tambour Panels, the curved form adds warmth, material contrast, and a visual anchor to support intuitive wayfinding.


Arktura’s SoftSpan 48 ceiling system in Soft Sound Wood Texture – Oak is recessed into the ceiling to support acoustical control in a high-energy pet retail environment. The trellis-inspired structure adds visual interest and helps define circulation paths while reducing noise in active zones.

This rendering series demonstrates the full development of a custom reception desk, starting with freehand curves created using the Pencil and Arch tools in SketchUp. The form was shaped with the Push/Pull tool, then refined using the Follow Me and Offset tools to add depth and architectural detail. Additional elements like fixtures and product were imported from the SketchUp 3D Warehouse. The final rendering was completed in Enscape, where lighting, materials, and finishes were applied to accurately communicate scale, texture, and design intent.





































Kelsey Evans is a graduate of the College of DuPage, earning her Associates of Applied Sciences in Interior Design with a 4.0 GPA. She also holds a Bachelor of Arts in Art History & Visual Arts from Emory University.
In 2024, she was awarded first place in the Kravet Design of Distinction Competition for Furniture, Specifications & Budgets, and was recognized as a finalist in the Residential Studio category later that year.
Kelsey enjoys sketching, graphic design, and creating bold, story-driven interiors that balance function with personality. She looks forward to building a career where thoughtful collaboration, curiosity, and creative risktaking are at the heart of every project.




317.753.8499 kkrzyst@gmail.com https://www.linkedin.com/in/kelseykevans/ https://issuu.com/kelseykevans