OBSERVE & SHAPE:
the KELLY YU collection










![]()










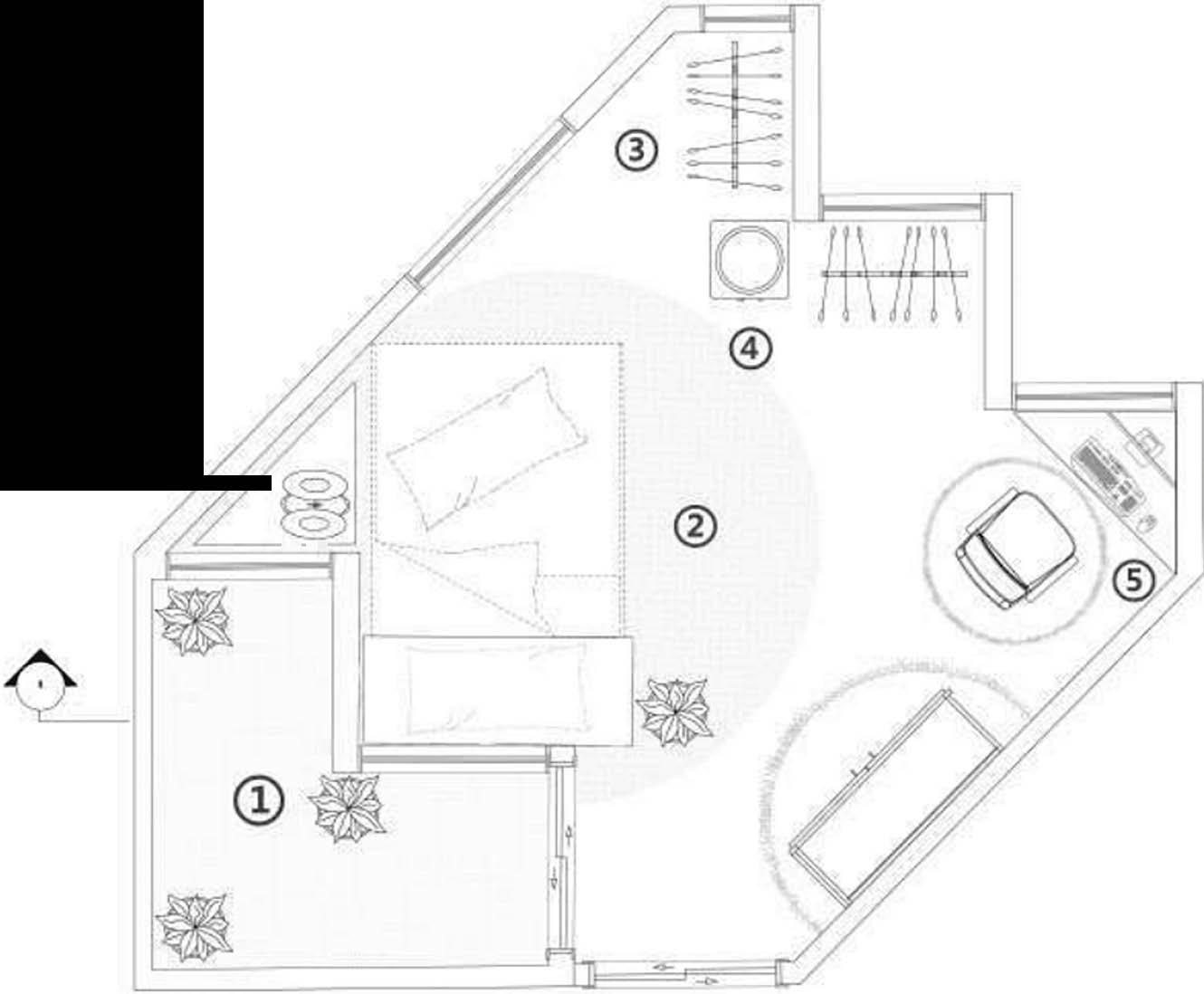
A 45-degree rotated grid structures the space, with a modular framework defining zones and allowing quick reconfigurations. A central patio offers fresh air and a private outdoor retreat, enhancingthe interior experience.





Enter to access the patio on the left or indoor spaces ahead. Privacy increases from storage to workspace, sleeping, and dressing areas. Flexible design lets users adapt spaces to changingneeds.






















































