2025 Kelly Shea architecture portfolio

Page 1


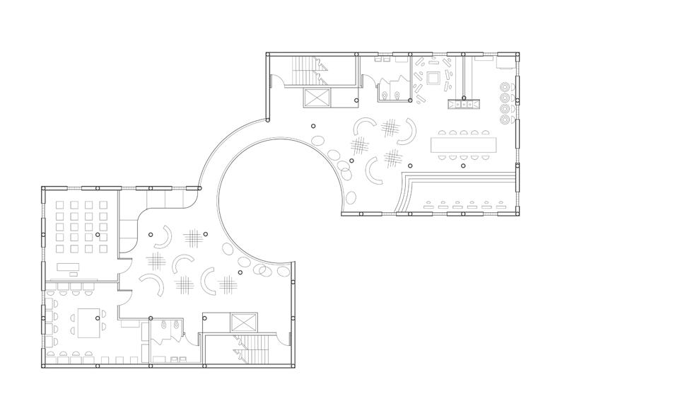
Creator’s Library

4th year Integrative Studio

Site: Alexandria, VA

Size:

Year:

Programme: Spaces, Computer Lounge

The new Art Center and Special Collections Library strives to bring a community of creative people together to make art and inspire one another. Being creative is the essence of being human, so this space is equiped to foster artisitc minds of all backgrounds.

The guiding principle behind the design of this community library was to facilitate a seamless and organic flow throughout the site, allowing individuals to traverse from one end to the other effortlessly. Central to this design approach is the deliberate creation of an open and inviting garden area, strategically positioned at the heart of the library. This lush oasis not only serves as a visually appealing focal point but also plays a pivotal role in letting natural light flood all corners of this building.

Heart of Alexandria

This project was developed in a heavily trafficked area of Alexandria, Virginia. The proposed site currently serves as a parking lot, occupying a large amount of underutilized real estate that could be transformed into a more valuable community space for local residents. The site is adjacent to popular clothing stores, restaurants, and antique shops. Most notably, it shares a block with Virginia Tech’s D.C. satellite campus for architecture students, who could greatly benefit from a shared public space where they can relax and gather between classes.

Design

Consideration

Movement through the site guided the concept design, shaping the layout and form. Initial massing responded to the site, followed by designing a central pathway to promote free-flowing movement, transforming the open space into a gathering area that evolved into an outdoor garden linking both sides of the library.

Map of Alexandria
Central garden unites
Massing to site Pathway cut through

Programme and Amenities

The library’s design prioritizes seamless movement, with the building massing opening into a central courtyard that connects nature to interior spaces. The first floor welcomes newcomers with a reception area, community events board, and art-focused amenities, including a maker space and loaner equipment. The second floor offers diverse creative resources like art studios, a display stage, and cozy reading nooks, along with a classroom for workshops and a computer lab for digital art. The third floor provides quiet, private spaces, library offices, and an art gallery showcasing local talent.

Canal-Edge Sauna

4th year Study Abroad

Site: Nokken, Denmark

Size: 200 sq ft

Year: 2024

Programme: Sauna, Winter Bathing, Swimming, Kayak Launch

This sauna, located in Amager, harmonizes nature’s tranquility with the industrial landscape across the water, attracting local swimmers, kayakers, and sunbathers. Nestled in a small residential community, its purpose is to unite the Nokken neighborhood in enjoying the many amenities Copenhagen’s beautiful canals offer.

This design features industrial materials paired with natural reused wood, reflecting the contrast between Nokken’s serene landscape and the industrial view across the water. This blend of elements creates a seamless connection between land and water, offering an immersive, yearround experience.

The serene, tranquil neighborhood of Nokken.
The bustling, industrial city of Copenhagen.

Bridging the Gap

The canal-edge sauna’s design draws inspiration from the contrasting typologies that exist on opposite sides of the canal. By combining Nokken’s natural charm with the industrial character of Copenhagen across the water, the sauna seamlessly blends harsh edges with gentle, sloping curves.

Multiuse Space

This sauna offers a dynamic range of programs designed to embrace water-based activities throughout the year. The main structure houses a sauna, men’s and women’s changing rooms, and a storage closet, with interior benches that provide a warm retreat on colder days. Outside the building you are met with steps that gently descend into the canal, outdoor showers for a refreshing rinse, and a designated plunge zone for exhilarating jumps. An accessible ramp invites individuals of all abilities to engage with the water, which doubles as a kayak landing for effortless embarkation. Completing the experience, a hot tub nestled on the deck offers a welcoming embrace of warmth after a dip in the canal.

EAST ELEVATION
NORTH ELEVATION

03

School of Medicine

3rd year Design Studio

Site: Roanoke, VA

Size: 150,000 sq ft

Year: 2023

Programme: Lecture halls, Classrooms, Medical Research, Community Space, Appartments

The new Virginia Tech School of Medicine, situated within downtown of Roanoke, embodies a commitment to community health and academic excellence. Its design emphasizes open, accessible movement through its lower-level programs, fostering dynamic engagement with the surrounding community and encourages a seamless blend of learning and public interaction. In contrast, the upper floors offer private, focused spaces tailored for medical students’ intensive studies and research.

At the heart of the building, a central social stair serves as a symbolic and functional bridge, uniting the dual worlds of education and community. This architectural feature not only connects students and local residents but also reinforces a spirit of collaboration, making it a vibrant nexus for dialogue, connection, and shared purpose.

A Diamond in the Rough

Roanoke, one of Virginia’s larger cities, is home to a substantial population yet remains surprisingly underserved in spaces for community gathering, relaxation, and green respite. The urban fabric is dominated by underutilized areas and vast parking lots, leaving little room for meaningful public interaction or natural reprieve. The Virginia Tech School of Medicine seeks to transform this dynamic, introducing essential elements of connection and greenery to the heart of downtown. Strategically located at the city’s core, the site invites citizens to engage with accessible community spaces, unwind in lush balcony gardens, and gather in a place designed to foster both camaraderie and tranquility.

FLOOR 7 (STUDENT CENTER)
FLOOR 8 (RESTURANT)
Axonometric Map of Roanoke
Site Plan

A United Center

The Virginia Tech School of Medicine aspires to transcend the traditional definition of a classroom, positioning itself as an integral extension of the Roanoke community. At its core lies a grand social stair that seamlessly connects the community-focused lower levels. As one ascends, the program transitions toward more private and specialized spaces, including laboratories and dedicated medical classrooms. At the top, student housing options for an academic life with convenience, offering residents effortless access to the many amenities and communal opportunities the building provides.

The Future Roanoke

As Roanoke continues to grow and develop, the School of Medicine strives to grow alongside it. The city is currently looking for new ways to expand and revitalize unused properties for the good of the existing citizens. With the addition of more usable greenspace, bike lanes, and farmers’ markets, this building will continue to flourish as a beacon for the community. By continuing the research in Roanoke, we can work together to transform the vision of a better Roanoke into a reality.

An Urban Sanctuary

This neighborhood in northern Copenhagen, home to many schools and children, is surrounded by playgrounds that often feel stark—bare concrete, fully exposed, and lacking vibrancy. This underutilized green space offers a much-needed retreat from the bustle of the city. Unlike the towering skyscrapers around it, the building nestles gently into the earth, creating a sense of warmth and intimacy. By blending the natural landscape with concrete surfaces for street sports, the design invites children to explore and choose their own paths, fostering freedom, creativity, and connection with their surroundings.

Site Based Design

This site is an underutalized green sanctuary within the dense urban fabric. Existing pathways created by existing users are preserved and integrated into the design, guiding movement through the space. The heart of the site will be used as a gathering area, designed as a congregation area for its users. The program is distributed across three distinct buildings, physically separated yet seamlessly unified through the shared community space. Organic curves dominate the design, contrasting the rigid geometry of the surrounding city. This not only provides a tranquil escape but also reinforces the natural rhythms of the urban environment, offering a place for relaxation, connection, and renewal.

05

Artwork

Art has always been one of my greatest passions, encompassing painting, drawing, and various forms of visual expression. This creative pursuit often intersects with my architectural work while also extending into diverse subjects that inspire me. Many of the pieces presented here were created during my free time and reflect my deep fascination with the natural world. I am particularly drawn to exploring landscapes, organic forms, and light, utilizing various mediums to capture their essence.

Beyond personal exploration, I have experience working on commissions, selling artwork at various events, and contributing illustrations to published books. I strive to integrate art into all I do, as I believe creativity is fundamental to human expression and experience.

Turn static files into dynamic content formats.

Create a flipbook
Issuu converts static files into: digital portfolios, online yearbooks, online catalogs, digital photo albums and more. Sign up and create your flipbook.