PORTAFOLIO

Page 1

P O R T A F O L I O

B A C H I L L E R E N A R Q U I T E C T U R A
Kelly Sandoval Olaya

Sobre mí

Me llamo Kelly Sandoval Olaya y adoro el diseño en todas sus modalidades. He terminado mis estudios superiores de Arquitectura, artes y urbanismo, obteniendo mi bachiller en dicha carrera .

En estos años he aprendido mucho en la rama de arquitectura y he hecho varios cursos para poder complementar mis estudios . También he llevado proyectos que se han ejecutado y he puesto en practica mis conocimientos en obra, gabinete y post producción..

P R O Y E C T O 0 1 .

Planteamiento de vivienda unifamiliar en un terreno de 8x20 m.

Planteamiento de departamentos en el segundo nivel de vivienda existente.

P R O Y E C T O 0 2 .

Vistas interiores de diferentes perspectivas de los departamentos.

P R O Y E C T O 0

Propuesta baño para niña

3 .

P R O Y E C T O 0 4 .

PROYECTO 05.

Render maqueta de propuesta de vivienda multifamilares.

Render maqueta de Proyecto de vivienda multifamiliares

PROYECTO 06.

Corte en Photoshop - proyecto de una propuesta de geodésica

Isometria en Photoshop - proyecto de una propuesta de geodésica

PROYECTO

Sección constructiva de oficinas

P R O Y E

Escantillón sistema spider

T O 0 8 .
C

Se realizaron los planos de las diferentes especialidades para que el proyecto sea ejecutado

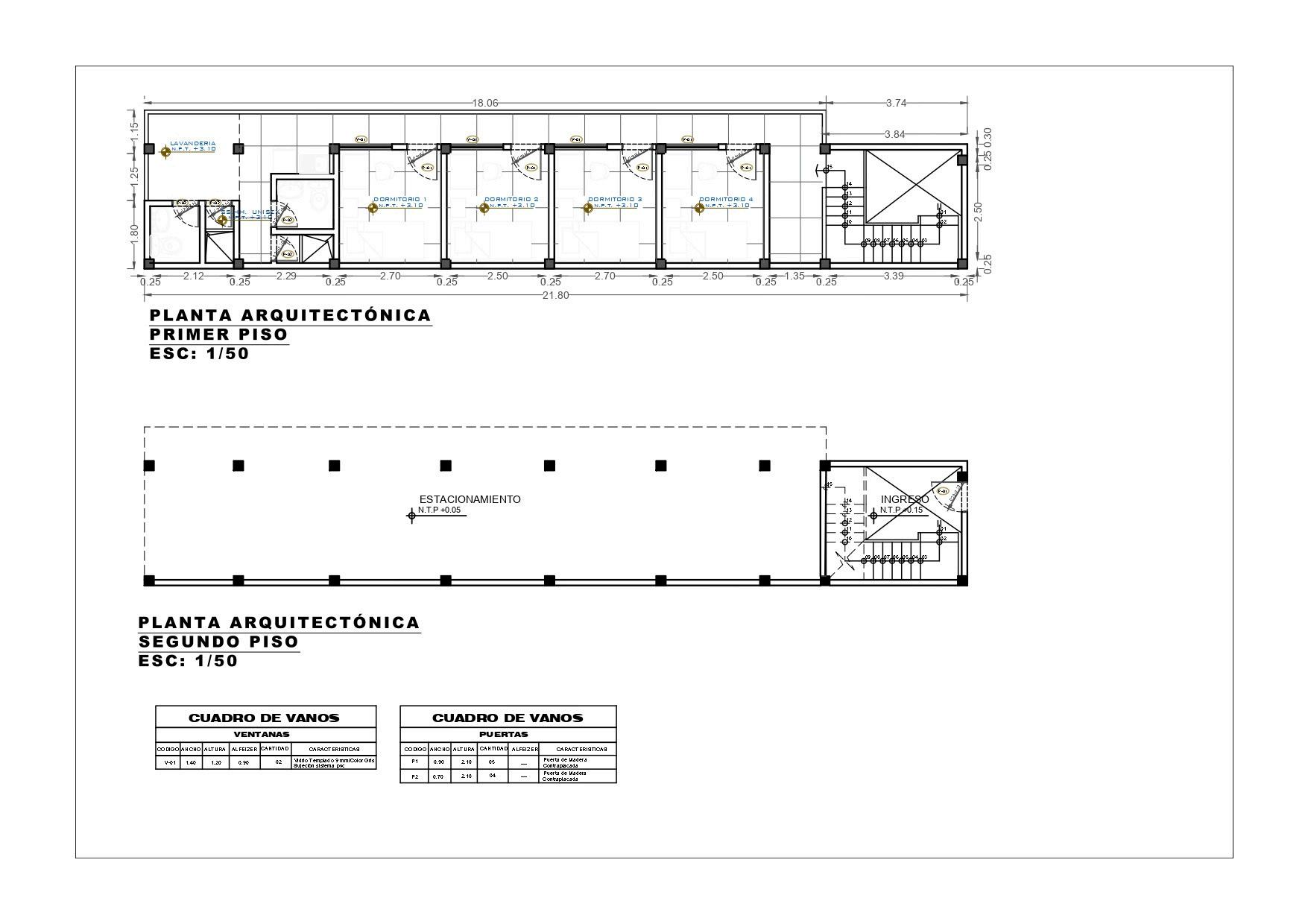
PROYECTO

Proyecto de habitaciones para alquiler

09.

Vistas de las diferentes zonas del proyecto ejecutado

Contacto 971-659-398 arq.kellysandoval@gmail.com

Turn static files into dynamic content formats.

Create a flipbook
Issuu converts static files into: digital portfolios, online yearbooks, online catalogs, digital photo albums and more. Sign up and create your flipbook.
PORTAFOLIO by Kelly Alessandra Sandoval Olaya - Issuu