Long Branch Community Center For Autistic Adults

Page 1

LONG BRANCH COMMUNITY CENTER FOR AUTISTIC ADULTS

KALEXA30@STUDENT.SCAD.EDU

KELLIE ALEXANDER

INDIVIDUALS WITH AUTISM FACE NUMEROUS CHALLENGES, AS OUTLINED BELOW:

DIFFICULTIES

TRANSITIONING INTO ADULTHOOD

1 LENGTHY FACILITY WAITING LISTS 2 3 4 5

ASD ADULTS

ARE NOT CONSIDERED “DISABLED ENOUGH”

ANXIETY FROM UNCERTAINTY OF THE FUTURE

CUT OFF FROM SUPPORT

HOW CAN DESIGN EMPOWER AUTISTIC ADULTS AND FOSTER A MORE INCLUSIVE AND COMPASSIONATE COMMUNITY THAT RESPECTS THEM AS INDEPENDENT INDIVIDUALS?

GOALS AND OBJECTIVES

EMPOWER

Empower autistic adults by designing a space that supports and satisfies their needs. The center will host as a place that will boost the confidence of many autistic adults. It will provide users with services that will help them succeed independently.

INCLUDE RESPECT

Including autistic adults in the community amongst typical people. Creating a safe place for adults with autism to spend their day learning, working, interacting, and enjoying services that are offered to benefit them. The center will help adults with autism by educating them on ways of societal inclusion.

Respecting adults with autism involves acknowledging their unique qualities and accepting their individual traits. Creating a space that fosters a community that positively affects the wellbeing of autistic adults and appreciates them.

1 2 3

ASD RESEARCH

79%

MEN AND WOMEN AGE 16 AND OVER WITH A DISABILITY ARE NOT IN THE LABOR FORCE IN NJ

26%

ADULTS WITH AUTISM ARE AFFECTED BY DEPRESSION

35%

YOUNG ADULTS WITH AUTISM HAVE NOT HAD A JOB OR RECEIVED POST GRAD EDUCATION AFTER HIGH SCHOOL

42%

ADULTS WITH AUTISM ARE AFFECTED BY ANXIETY DISORDERS

ALL RESEARCH GENERATED IS GROUNDED IN THE STATE OF NEW JERSEY.

1 IN 20 BOYS

NOTENOUGHSERVICESAND SUPPORTFORADULTSWITH AUTISMAFTER21

MENTALHEALTHDIFFICULTIES AFFECTTHEQUALITYOFLIFEFOR AUTISTICADULTS

IMPROVEMENTSARETIEDTHE DEVELOPMENTALJOURNEY

1 IN 85 GIRLS

PARENTSOFCHILDRENWITHASD CARRYCONCERNSABOUTTHE FUTUREANDDEALINGWITHAGING.

YOUNGADULTSWITHAUTISMARE READYTOLIVEINDEPENDENTLYIN SUPPORTEDLIVINGSITUATIONS

FEELING UNDERSTOOD

WHAT DO THE USERS NEED?

FREEDOM FROM SELF DOUBT

ENGAGEMENT WITH EMOTIONS

SOCIAL INTERACTION

INDEPENDENT LIVING SKILLS

SAFETY

WHAT DOES DESIGN NEED TO PROVIDE?

LANGUAGE/POETRY

END

SENSE OF SELF

PERSONAL FINANCE SKILLS

GROUPS/CLUBS IN SMALLER SETTING

OWNERSHIP OF EVERYDAY LIFE

DISPLAY OF PERSONAL INTERACTIONS

DISCOVERY OF SERVICES & PROGRAMS

CONFIDENCE INSPIRE EDUCATE CONNECTION REASSURANCE BEGIN

COMFORTED

DISPLAY OF LEARNING OBJECTIVES

ATMOSPHERIC CONTROL

KITCHEN/COOKING CLASSES

INTERACTIVE TOOLS

NEW SKILLS GRASPED

SENSE OF CONTROL

ARTWORK

USER JOURNEY

LARGER CONTEXT OF SITE:

COUNTRY- United States of America

COMPANY ORGANIZATION

STATE- New Jersey CITY- Long Branch

“Our goal is to develop a model community for adults with autism and other related developmental disorders. Across the United States, 500,000 individuals with autism are aging into adulthood. Today, children have a 1 in 59 chance of being diagnosed with autism. According to the CDC, the rate in New Jersey is 1 in 34. Parents With A Plan is currently evaluating & providing thought leadership addressing how we can address the housing & lifespan needs of this under-served population.”

CONCEPT

PIER

The scent of salty air and seagulls chirping in the distance evokes a memory that has been living within your core. Gradually, you feel the mist from the sea softly touch your skin as the waves crash upon the shore and that's when you know you're at the pier. Your feet begin to tread upon the trusty boards, leading you to embark on the seemingly impossible journey across the water.

The ease with which you approach the action is tied to your reliance on the aged wooden supports protruding from the sea and the recollection of carefree childhood moments, sprinting barefoot along the creaking boards. It is during this moment that you recognize your exclusive access of passage to and from the sea without contending with the currents.

LIBRARY SALON OFFICE
STORAGE ROOMS
ROOM
GENERAL CAFE
REST ROOMS
MECHANICAL
PROGRAMMING
CLASS ROOM
CAFE LOUNGE
KITCHEN

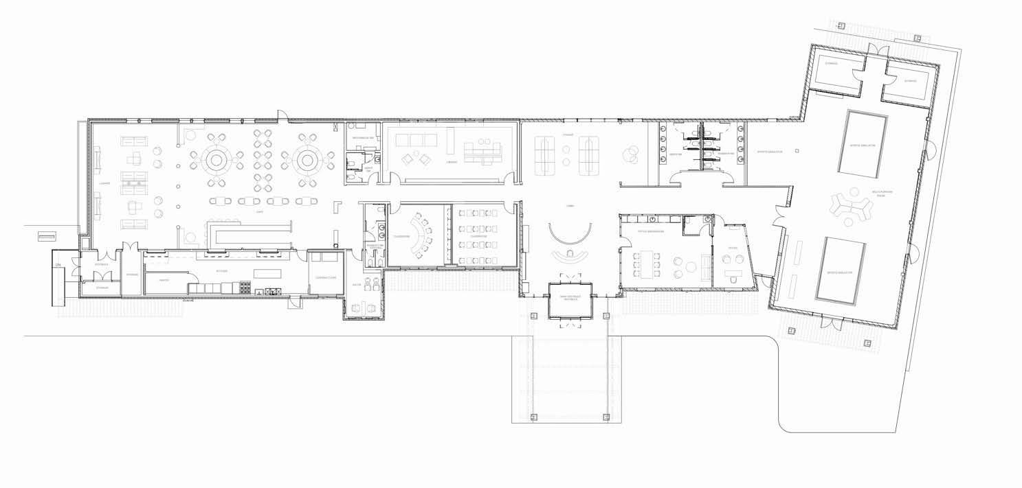
AREAS OF FOCUS: LOBBY, LOUNGE, MULTIPURPOSE ROOM, LIBRARY, CAFE, CAFE LOUNGE

RELATION TO USER

LOBBY LOUNGE OFFICEBREAKROOM OFFICE MULTIPURPOSEROOM 02 03 04 05 06 07 08 09 10 11 12 13 14 15 01 04 06 07 08 09 10 11 12 13 STORAGE STORAGE CLASSROOM LIBRARY CLASSROOM SALON TEACHINGKITCHEN KITCHEN CAFE CAFELOUNGE
02 03 05 14 15 01
FLOOR PLAN
JOURNEY

LOUNGE

ENGAGEMENT WITH EMOTIONS

LOUNGE PRIVATE ALCOVE

In the area with the private nooks, there will be individual sections for users of the space to enjoy moments by themselves in a comfortable setting.

THEORIES

Refuge, Social Learning, Visual Connection with Nature, Risk

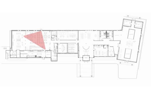
LOBBY

INTERACTIVE TOOLS

FEELING UNDERSTOOD

LOBBY WALL OF EMPOWERMENT

This interactive wall will be positioned in a high-traffic area, aiding as a tool to empower users, allowing them to engage with uplifting inspiration by contributing their favorite quotes or activities.

Learning, Sensory Stimulation
THEORIES Social

MULTIPURPOSE ROOM

SOCIAL INTERACTION

SENSE OF SELF

SPORTS SIMULATORS

This space is designed to provide users with a delightful sports experience by utilizing simulators to choose their preferred game in a fun-filled environment.

THEORIES

Affordance, Social Learning

LIBRARY

ENGAGEMENT WITH EMOTIONS

SENSE OF SELF

LIBRARY QUIET QUARTERS

This space is designed to provide users with a sense of safety and tranquility, allowing them to select their favorite book and customize their seating for maximum comfort.

THEORIES

Prospect, Material Connection with Nature, Affordance

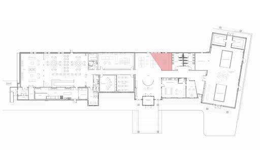
CAFE

SOCIAL INTERACTION

INDEPENDENT LIVING SKILLS

CAFE

The cafe offers opportunities to users who are eager to acquire new skills and work experience for their future. With the support from trained staff, the cafe serves as a place that guides users toward success.

THEORIES

Attribution, Sensory Stimulation, Prospect

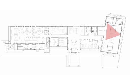
CAFE LOUNGE

GROUP IN SMALLER SETTING

SOCIAL INTERACTION

PUBLIC CAFE LOUNGE

This lounge is designed to offer users the choice of whether they prefer a quieter space or a more engaging space. The columns are put in place to separate the area from the cafe so that the user can be connected to socialization but have privacy.

THEORIES Control, Affordance

CAFELOUNGE

LOBBY WALL OF EMPOWERMENT
SPORTS SIMULATOR
CAFE
LIBRARY
LOBBY LOUNGE

FOSTERING A MORE INCLUSIVE COMMUNITY THAT RESPECTS AND EMPOWERS AUTISTIC ADULTS AS INDEPENDENT INDIVIDUALS

INDS-480-05

KALEXA30@STUDENT.SCAD.EDU 732-962-8182

ALEXANDER
KELLIE
WINTER 2024

Turn static files into dynamic content formats.

Create a flipbook
Issuu converts static files into: digital portfolios, online yearbooks, online catalogs, digital photo albums and more. Sign up and create your flipbook.