MANZANA

Page 1

E S T A C I Ó N D E T R E N D E L B A R R I O D E S A N P E D R O - C U S C O PROBLEMATICA MASTER PLAN PROPUESTA
HUR N CUSCO A CH NCHAYSUYO C ANT SUYO B) CONT SUYO D) COLLASUYO SECTOR A NTERVEN R QHAPAQ ÑAN GRAL BUEND A 223ML HOTEL MONASTER O SAN PEDRO AV EJERC TO CALLE HOSP TAL 367ML GLES A DE SAN PEDRO HOTEL MONASTER O SAN PEDRO ESTAC ÓN SAN PEDRO CALLE CASCAPARO 132ML) ZONA LLANA O DESÉRT CA PEND ENTES ZONA PUNA PUENTES ZONA PANTANOSA Anchos mayo es emped ados para soportar fue za de uv as s stemas de drena e Pos es de made a o p edra de recho en echo Casos excepc ona es muros ba os de p edra o bar o La gas ca zadas sobre terrap enes se man enen s empre por enc ma de n ve máx mo de agua D stanc as cor as troncos v gas de p edra Vo ad zos Puentes co gantes Largas ampas y esca na as de p edra Muros de con enc ón en pend entes ho zontales PRAGMAT SMO Y SENT DO ECONÓM CO POS C ÓN NTEGRAL STA Obtener máx mo aprovecham en o agr co a E uso de pa sa e como e emento de d seño Todo en a una unc ón y un ugar espec co S s ema de ceques y cosmov s ón and na PRAGMAT SMO Y SENT DO ECONÓM CO CREENC AS MÁG CO REL G OSAS 2019 a estac ón ue constru da en as pr meras décadas de s g o XX uego de a promu gac ón en 907 de una ey de Congreso del Pe ú que o denaba a construcc ón de rama errov ar o que un era e Cusco con a Hac enda de San a Ana 983 a v a érrea ya egaba a a oca dad de Pachac a 63 k ómet os de la c udad XVI Y X X 1972 se evan aba el Hosp ta de Natura es de Cusco 923 a ser parte de casco h s ór co de a c udad de Cusco forma par e de a zona centra dec a ada por la UNESCO como Patr mon o Cu tura de a Human dad e inmueb e fo ma parte de a Zona Monumenta de Cusco dec arada como Monumento H stór co de Pe ú se re nic ó e uso de a estac ón pero m tado a serv c os que sa en temprano en la mañana cuando hay menor af uenc a de personas en e trayecto de la ruta XX 1913 en la gest ón de Ben am n de a Torre ordeno a construcc ón de un ferrocarr con e ob et vo de un r a c udad de Cusco con a prov ncia de La Convenc ón 2022 La Estac on ha perd do n ens dad de uso y se ha vue to un espac o de segregac on pues si ve so o a a act v dad tur st ca de a ta gama H TOS HISTORICOS ANTECEDENTES ESTACION DE TREN DE SAN PEDRO Se uvo que espe ar 38 años has a e 14 de sept emb e de 1688 cuando se puso a p ed a fundamenta de a nueva g esia hoy g esia de San Pedro) contando con e apoyo de Ob spo de Cusco Manue de Mo nedo y Angu o se construye una cap a en 1572 gracias a apoyo de v rrey And és Hu tado de Mendoza 1556 Está constru da sobre o que fue el Hosp tal de Natura es del Cusco fue un ed f c o de a época v rre na 1688 se in c a a reconst ucc ón a n c at va de Cu a Párroco Don Franc sco Sor a conc uyéndose ésta en 1572 1650 En el terremo o se derrumba on todas as estructuras con excepción de una so a sa a de hosp ta e nuevo Pár oco de Hosp ta de os Natu a es L cenciado And és de Mo nedo y Rado n c a a sus expensas a const ucc ón de ac ua Templo ba o os p anos de Arqu tecto y escu tor JUAN TOMAS TUYRU TUPAQ NKA 1668 1657 HITOS H STORICOS ANTECEDENTES TEMPLO DE SAN PEDRO (ANTES HOSPITAL DE NATURALES) AV EJERC TO (25 ML) ESTAC ÓN SAN PEDRO parque umanchata DELIMITACIÓN PERÚ CUSCO ZONA MONUMENTAL DEL CUSCO ANALISIS DE LA DEMANDA 1. FECHA: 21/11/2022 U N I V E R S I D A D A N D I N A D E L C U S C O F A C U L T A D D E I N G E N E R A Y A R Q U T E C T U R A E S C U E L A P R O F E S O N A L D E A R Q U T E C T U R A C A T E D R A : T O R R E S S E R N A D I S E Ñ O V I ARQ MARCO ANTONIO SERNA CUBA ARQ MAR A CECILIA TORRES VARGAS DOCENTES: CARDENAS MONCADA DANNA MERY JANE L CONA CORDOVA PAOLA DEL MILAGRO MED NA QUISPE KEL NETH JENNIFER CONDOR HUAMAN BRAYAN CONDORI JILAPA KAROL NA PFOCCO QU SPE EZEQU EL INTEGRANTES: ENTREGA: PROBLEMÁTICA Y MASTER PLAN EN SECTOR DE SAN PEDRO CUSCO 2022 LAMINA: L-03 EMPLAZAMIENTO SG 6 mercado de san pedro mercado cascaparo ch co RELIGIOSO COMERCIAL RECREACION 3 A O C E R N GSPAR N ( 977) ARQU TECTURA NCA S CALLVO ( 980 CUSCO LA TRAZA URBANA DE LA C UDAD NC MUN CUSCO (2002) PLAN MAESTRO CUSCO P AZEVEDO 1982 CUSCO C UDAD H STOR CA CONT NU DAD Y CAMB O PDU D STR TAL DEL CUSCO EVOLUC ON URBANA TRAZADO N C AL 1977 2 CRECIM ENTO DE BARR OS 980 3 CUSCO 660 1700 4 CUSCO 186 870 5 CUSCO 2000 20 3 s s ema v a nca co de ap ox madamente 23 000 km en e cua une os es ab ec m en os nca a o argo de os Andes Cada cam no art cu aba as c udades y con aba con estab ec m entos a o a go de cam no depos os co ra es a o am entos e c Canz an 2009 QHAPAQ ÑAN Su o gan zac ón parte de a p aza cen ra d v d da en re Huacaypata y Cus pata De es e cent o parte a d v s ón hac a e nor e Hanan Cusco y Hur n Cusco y os 4 suyos Ch nchaysuyo Co lasuyo Ant suyo y Con suyo Forma de Puma en a cabeza Sacseyhuaman y Qor kancha y en a co a a un on de os os Huatany y Tu umayo Los ncas u zaron este modelo de c udad con e s gn f cado de a func ón de as formas de as un dades que o componen LA TRAZA REPRESENTAC ÓN DE LOS CEQUES POR BR AN BAUER s stema Rad a 9 ceques 4 ceques 4 suyos CH N HA SUYO AN SUYO COL ASUYO CON SUYO Cont suyo en sent do an horar o un s stema de 42 neas mag na as que paren desde e temp o de Qor kancha as cua es se pro ongan de mane a rad a hac a una se e de santua os (huacas d v d das en re os 4 suyos LOS CEQUES (Bauer 2000) LAS HUACAS Son os san uar os que se encargaban de d g a d recc ón de os ceques Son 328 que se encont aban mayormente en os manant a es Luga es de sac f c o ord na o o so emnes 4 M 1 4 M 3 M 9 M CALLE CASCAPARO 132ML) GRAL BUEND A (223ML) AV EJERC TO 25 ML) CALLE HOSP TAL 367ML 3425M 34 5M 3425M ENTORNO DIRECTO ANALISIS HISTORICO DE LA MANZANA TOPOGRAFIA HITOS HISTORICOS DE LA ESTACION DE SAN PEDRO HITOS HISTORICOS DE LOS ANTECENDENTES TEMPLO DE SAN PEDRO(ANTES HOSPITAL DE NATURALES)
C UMANCHATA TIPOS DE VÍA NODOS DE ARTICULACIÓN CONFLICTIVOS CALLE CASCCAPARO FLUJOS D URNOS FLUJOS NOCTURNOS PUNTOS DE QU ETUD PUNTOS DE QUIETUD 1. ANALISIS DE LA MANZANA FECHA: 21/11/2022 ARQ MAR A CECILIA TORRES VARGAS DANNA MERY JANE LA DEL MILAGRO ETH JENNIFER YAN CONDORI JILAPA KAROL NA PFOCCO QU SPE EZEQU EL LAMINA: L-04 12 00 15 00 m 8 00 12 00 m 25 00 28 00 ml 20 00 25 00 ml 15 00 18 00 m AV EJERCITO MERCADO SAN PEDRO CALLE NUEVA AV EJRC TO CONSEV DAYOQ FLUJOS DIURNOS Y NOCTURNOS ALT 3 39 PRES 1122 0 VIENT Hast (Ago A DE V ENTOS OS MERCADO CASCAPARO AV EJERC TO SS HH MERCADO SAN PEDRO AV ARCOPATA AV EJERC TO CALLE HOSP TAL AV BAJA CALLE BAYONETA ESTACIÓN DE TRENES DE SAN PEDRO E a o u o peatonal y veh cu ar en e ba r o de San Pedro unto a as ca es estrechas han generado conf ctos para la esca a humana e trans to pea ona se ve m tada por fa a de espac os públ cos y espac os ve des Vereda ut zada como estac onam ento para veh culos Ca e hosp ta Ag omerac ón de comerc an es ambu antes Cascaparo Ch co Espac o pub co ocupado hab tua men e para fer as nerantes depend endo de a fecha o fest v dad cercana P azo e a San Pedro SATURACION DE LLENOS OPORTUNIDADES LIBERACION 1 2 3 POCOS ESPAC OS VAC OS ALTO FLUJO DE PEATONES ALTO FLUJO VEHICULAR ESPAC OS PUBL COS NEF CAZ ALTA ACT V DAD COMERCIAL ESCASES DE ESPAC OS VERDES ESPAC O CON VALOR H STOR CO ESPAC O AMPL O FACHADAS A VIAS DE ALTO FLUJO CONEX ON V SUAL ESPAC O DESCONGEST ONADOR ESPAC O COMO ATAJO ENTRE BARR OS CONEX ON DE EXTREMOS SOPORTE PARA EL EJE PROCES ONAL DESART CULAC ON DEL ALTO FLUJO PEATONAL ESPAC O PUBL CO Y DE ENCUENTRO E P OCE ON L V E ER T CON XON CONEXIÓN AL ENTORNO ESPACIOS CONFLICTIVOS La veloc dad de os v entos y as empe a uras se encuen ran en re ac on d recta o que s gn f ca que a sensac ón térm ca es mucho menor duran e os meses donde as temperatu as nocturnas son mas ba as V entos predom nantes de no oeste a su es e 19km/h) CARACTER STICA CLIMAT CA ANALISIS DE ACCESIBILIDAD ANALISIS SENSORIAL ANALISIS SENSORIAL
1 ANALISIS DE LA MANZANA U N I V E R S I D A D A N D I N C U S C O F A C U L T A D D E I N G E N E R A Y A R Q U T E C T U R A E S C U E L A P R O F E S O N A L D E A R Q U T E C T U R A ARQ MARCO ANTONIO SERNA CUBA ARQ MAR A CECILIA TORRES VARGAS DOCENTES: MED NA QUISPE KEL NETH JENNIFER CONDOR HUAMAN BRAYAN CONDORI JILAPA KAROL NA PFOCCO QU SPE EZEQU EL PLAN EN SECTOR DE SAN PEDRO CUSCO 2022 LAMINA: L-05 temp o san pe TEMPLO SAN PEDRO DECLARADO COMO PATR MONIO CULTURAL NMUEBLE INTEGRANTE DE PATRIMON O CULTURAL DE LA NACION NMUEBLE INTEGRANTE DE PATRIMONIO CULTURAL DE LA NACION INMUEBLE INTEGRANTE DE PATRIMONIO CULTURAL DE LA NACION PANA PEDR USO DE SUELOS AREA DE ESTRUCTURACION SECTORES DEL CHC N° DE INMUEBLES DECLARADOS (PM ) AE I Manzana a nterven r 1 SECTORES DEL CHC (AE I) PI I VC II EP IV SV V ANC Manzana a ntervenir 4 3 9 3 4 PLANO DE CATALOGACION DE INMUEBLES PI II EP IV SV I PM I INMUEBLES DECLARADOS COMO PATRIMONIO MONUMENTAL DE LA NACIÓN LOTES POR CATEGORÍA DE CATALOGACIÓN EN EL CHC inmuebles declarados patr mon o monumental con valor patr mon a indiv dua I con algun elemento patrimon al . sin va or espec f co viv enda taller dens dad med a mob l dad urbana serv cios pub icos de asistenc a estab ecimiento rel gioso y cultura comercio USO DE SUELOS NORMATIVA

ECONOMICAS

PATIOS

Para os nmueb es catalogados con as categor as VC I EP V y SV V la cobertura se perm t rá prev a autor zac ón y con f nes de confort amb enta con tecno og as que garant cen as cond c ones de segur dad

Se proh be e techado del pat o de nmueb es con categoría VC I que posean m n mamente 02 o más cruj as or g na es La a tura máxima de a cubierta no debe sobrepasar a nea def n da por a cumbrera de la cru a de fachada n a terar la lectura del te do urbano tradic onal desde os m radores de a ciudad ILUMINACIÓN CENITAL

Por confort térm co se perm t rá e empleo de teat nas o raga uces en coberturas de nmueb es donde no sea pos b e a i um nac ón a través de vanos en muros Las cubiertas de as teat nas endrán a m sma nc nac ón que os techos de a ed f cac ón y se ub carán ún camente en os fa dones nternos de as cub ertas

farmac as pas e er as centros denta es

ven a de a mentos desordenado hospeda e ven a de a men

bordadu a

venta de a men a men o ho a ate a

a g

COSTUMBRES Y TRADICIONES VIDA COMUNAL

E va or de pat mon o nmater a como parte de as man es ac ones cu tura es que se v ven en e barr o de San Pedro son muy mportantes deb do a fuerte ar a go costumbr s a y a h stor a que moldeado a forma de ve y v v e espac o cu tural en e que se v ve

Presenta V v endas Ta er Presenta ac v dades costumb stas Presen a act v dades gastronom cas

Las es v dades de San Pedro la V rgen de Buen Suceso V rgen de Carmen Seño de Unupunku V gen de as N eves Santa Ana Sant ago Apósto San Cr s óba San a C ara de As s San a Rosa V rgen de a Nat v dad Seño de a Exa tac ón V gen de as Mercedes Seño de Consue o Señor de Huanca Todos os Santos

La act v dad comuna ayni a convivenc a y ayuda mutua de vec nos es una de sus pr nc pa es conv venc as además de organ zar a gun est v dades Por otra parte personas mayores d edad aun s guen cons derando algunas t ad c ones como e puche o en os carnava es y se organizan uegos a a re bre

GRUPO 3 ANALISIS DE FACHADAS DE LA MANZANA OMICO f orer a y h e bas ANALISIS DE LA MANZANA 1. FECHA: 21/11/2022 U N I V E R S I D A D A N D I N A D E L C U S C O F A C U L T A D D E I N G E N E R A Y A R Q U T E C T U R A E S C U E L A P R O F E S O N A L D E A R Q U T E C T U R A C A T E D R A : T O R R E S S E R N A D I S E Ñ O V I ARQ MARCO ANTONIO SERNA CUBA ARQ MAR A CECILIA TORRES VARGAS DOCENTES: CARDENAS MONCADA DANNA MERY JANE L CONA CORDOVA PAOLA DEL MILAGRO MED NA QUISPE KEL NETH JENNIFER CONDOR HUAMAN BRAYAN CONDORI JILAPA KAROL NA PFOCCO QU SPE EZEQU EL INTEGRANTES: ENTREGA: PROBLEMÁTICA Y MASTER PLAN EN SECTOR DE SAN PEDRO CUSCO 2022 LAMINA: L-02 CALLE GENERAL BUEN DIA CALLE CCASCAPRO PALETA DE COLORES CALLE HOSPITAL AVISO DENTRO DE VANO AV SO COMERC AL S N O FONDO AV SO COMERCIAL CO TABLERO DE FONDO AVISO EN PORTADA PR NC PA AVISO FUERA DE VANO ESQUEMAS DE AVISAJE 1 1 2 2 3 3 CALCULO DE ALTURA MAXIMA DE EDIFICACION AREA LIBRE MINIMA ALTURA MAXIMA Y MINIMA POR SECTORES DE PARAMETROS ESTA PROHIB DA LA CONSTRUCC ON DE SOTANOS POR DEBAJO DE LOS ESTRATOS ARQUEOLOG COS HALLADOS EN EL B EN INMUEBLE EN CASO DE ANDENES ESTA PROH BIDO EL MOVIM ENTO DE SUELOS SE PERMITEN ESTAC ONAMIENTOS EN NMUEBLES QUE NO CUENTEN CON LA CATEGOR A DE CATALOGAC ON PM P SOTANOS Y SEMISOTANOS COEFICIENTES MAXIMOS DE EDIFICACION POR SECTORES DE PARAMETROS AE I RETIROS Los ret ros no están perm t dos en el CHC con excepc ón de as s gu entes v as donde s son ex g dos ALINEAMIENTO DE FACHADAS ESTACIONAMIENTOS Se proh be cua qu er t po de ret ro u ochavo que modif que a neam entos ex stentes ara los nmueb es con categor a de ca a ogac ón VC I y EP IV os estac onam en os se oca zarán dentro de lote s empre y cuando no se vu nere o atente contra os e ementos de va or patr monia conten dos en d cho nmueble INCLINACIÓN DE TECHOS Se proh be a ut zación de techos curvos Se proh be a ut zación techos horizonta es (azoteas) Los techos tendrán una nc nac ón m n ma de 22° y una máx ma de 28° TECHADO DE
ACTIVIDADES
ACT V DADES ECONOM CAS ACTUALES ACTIVIDADES ECONOM CAS TRAD C ONALES
en
e CHC
SERV C OS COMERC O ACT V DAD F NANC ERA ACT V DAD TUR ST CA ACT V DAD NFORMAL AR O COS ENTA M B S OYAS C R OS A TEAR A LANAS

v

Concent

I MONUMENTALES Y PATRIMONIALES DE INTERVENCION PRIORITARIA

PLANO DE SECTORIZACION DEL CENTRO HISTORICO SECTORES DEL CHC EN EL AREA A INTERVENIR ZONIFICACION DE USO DE SUELOS ÁREAS DE TRATAMIENTO PREFERENCIAL POR MANZANAS CATALOGACION DE INMUEBLES MOVILIDAD Y ACCESIBILIDAD AREAS DE PROTECCION AMBIENTAL res denc a dens dad med a comerc o zona mercado comerc o comerc o y serv c os es a ec m ento re g oso y cu tura mov dad u bana v v enda ta ler dens dad med a educac ón bás ca zonas de recreac ón ac va zonas de recreac ón púb ca educac ón super or tecno og ca GRUPO 3 02. NORMATIVIDAD DEL SECTOR FECHA: 21/11/2022 U N V E R S D A D A N D I N A D E L C U S C O F A C U L T A D D E I N G E N I E R I A Y A R Q U T E C T U R A E S C U E L A P R O F E S I O N A L D E A R Q U T E C T U R A C A T E D R A : T O R R E S S E R N A D I S E Ñ O V I ARQ MARCO ANTONIO SERNA CUBA ARQ MARIA CECILIA TORRES VARGAS DOCENTES: CARDENAS MONCADA DANNA MERY JANE L CONA CORDOVA PAOLA DEL MILAGRO MEDINA QUISPE KEL NETH JENN FER CONDOR HUAMAN BRAYAN CONDORI JILAPA KAROL NA PFOCCO QU SPE EZEQU EL INTEGRANTES: ENTREGA: PROBLEMÁTICA Y MASTER PLAN EN SECTOR DE SAN PEDRO CUSCO 2022 LAMINA: L-0| SG - 6 SG - 7 SG - 8 PLANO DE CATALOGAC ON DE NMUEBLES PLANO DE ZON FICACION DE USO DE SUELOS A berga ev denc a a queo óg ca preh spán ca or g na y eut zada concentrando un mayo po centa e de nmueb es po casa pat o de va or patr mon a nd v dua y con va o con ex ua Área de n ervenc ón Á ea de ntervenc ón Á ea de ntervenc ón Área de n e venc ón Área de ntervenc ón Área de n ervenc ón Á ea de ntervenc ón Área de Intervenc ón A berga ev denc a arqueo óg ca eut zada presenta mayor dens dad hab tac ona y ca ácter comerc a ed f cac ones repub canas y con empo áneas con va or con ex ua e nmueb es s n va or patr mon a espec f co Destacan nmueb es de va or monumental e nd v dua en a P azo eta Sant ago y P azo eta A mudena a berga ev denc a arqueo óg ca eut zada nmueb es t po casa pat o con va or contextua y con empo áneos s n va o INMUEBLES DECLARADOS COMO PATRIMONIO MONUMENTAL DE LA NACIÓN LOTES POR CATEGOR A DE CATALOGACIÓN EN EL CHC
ac ón de nmueb es con de er oro s co serv c os bás cos nsat s echos y nmueb es pat mon a es en r esgo
concen
I son os nmueb es con va o monumen a en mayor r esgo de co apso y que t enen pr mera pr o dad en su ntervenc ón GRADO segunda pr oor dad
tercera p o dad GRADO DE NTERVENC ÓN PR OR TARIA
Amb entes Urbanos con deter o o f s co con am nac ón amb enta mpacto soc a negat vo y
rac ón de e emen os pat mon a es en fachada GRADO
GRADO
as preferen emente peatona es con rest cc on veh cu ar v as con to eranc a veh cu ar ard n huer o v as de uso m xto v as exc us vamente peatona es v as ar e a DU
DE ESPAC OS VERDES Y NATURALES
Eneste p anose dent f can • 5áreasconvocac ónpara centrosde ntercambiomodal (mu t func ona mu t moda y mult esca ar)atend endoa ámb tosy tempora dades oscua esa suvezse d ferenc anendosesca asd ferentes de mayory menor ntens dad PUNTOS MODALES CON VOCAC ÓN PARA NTERCAMB O MODAL esca a esca a areas com pos bi dades para nfraestructura de ntercambios modales v a férrea de reserva area ransporte AREA DE RESERVA PARA TRANSPORTE
RED
MOVILIDAD Y ESPACIOS PÚBLICOS APROBADO

Po med o de una res ruc urac ón de a nf aestructu a v a se planteara un ordenam en o que permi a una me or ar icu ac ón de centro h s ór co Se p antea la renovac ón urbana de á eas con potenc a de convert rse en ugares de encuent o para a conex ón de os d feren es usuar os y espac os de man festac ón cu tura Se reub ca espac os que actua mente obstruyen e desar o o adecuado de as ac iv dades as m smo como a remodelac ón de nmueb es que actua mente es an deter orados y t enen potenc a de conver rse en espac os que at endan a pub co po sus carac er st cas As m smo por med o de as macromanzanas se recupe ara a pertenenc a con e bar o desarro ando as recuperar as costumbres y trad c ones V endo as e nuevo terreno como un punto de conex ón d nám ca de ambos d str tos que perm i a permeab dad de espac o y os bar ios para e desa ro o de act v dades cu tu a es gast onóm cas económ cas y soc a es

GRUPO 3
4. INTERVENCIÓN DE LA MANZANA FECHA: 21/11/2022 U N I V E R S I D A D A N D I N A D E L C U S C O F A C U L T A D D E I N G E N E R A Y A R Q U T E C T U R A E S C U E L A P R O F E S O N A L D E A R Q U T E C T U R A C A T E D R A : T O R R E S S E R N A D I S E Ñ O V I ARQ MARCO ANTONIO SERNA CUBA ARQ MAR A CECILIA TORRES VARGAS DOCENTES: CARDENAS MONCADA DANNA MERY JANE L CONA CORDOVA PAOLA DEL MILAGRO MED NA QUISPE KEL NETH JENNIFER CONDOR HUAMAN BRAYAN CONDORI JILAPA KAROL NA PFOCCO QU SPE EZEQU EL INTEGRANTES: ENTREGA: PROBLEMÁTICA Y MASTER PLAN EN SECTOR DE SAN PEDRO CUSCO 2022 LAMINA: L-02
es a de san ped o e
a san pedro casa
hosta p
come
a pa r mon a comerc
or de
nmueb
n eg an e de pat mon o cu ura de a nac on nueva estac on cu u a de t an a u bano cen ro ecno og co a tesana
c aus
ped
remode
g
tanc
nn
aza
c
a
an s
e
p aza y
ro de san
o renovac ón a v a pea ona me ora de v a veh cu a e tens ón de á ea e ter o de g e a has a e te reno
ac ón de ho e monas er o con aber ura hac a a nueva p aza
emode ac ón de v endas dete oradas a edañas
R UB C DOSALA NU VAS V NDASCO EC VA aber
bordados cirios cueros y pieles indumentaria tipica picanteria tetería ch cheria picanteria tetería bordados cir os cueros
ch cher a
emode ac ón de panade a y pas e e a remode ac on de comerc os en a ca e p oce ona o n m a c come c o av e é c to hote es para ab r a e e proces ona de nuevo te reno zona come c a ca n ce as y v endas v v endas
ura para conecc on con e er eno
y p e es ndumentar a t p ca
p canter a teter a con va or patrimonia ndiv dua con a gun elemento patr mon a dec arados patr monio monumenta

en taxis, más congestionada estará la ciudad, por lo que esta forma de mov lización debe frenarse e incluso reducirse.

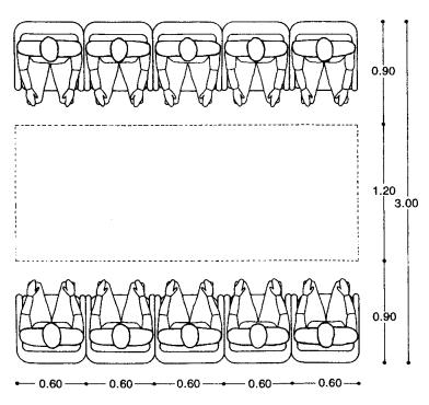
El tren local cuenta con 5 vagones para pasajeros y algunos otros de carga

El vagon del tren local tiene una capacidad maxima de asientos para pasajeros

GRUPO 3 MOVIMIENTO DE VEHÍCULOS QUE SE INGRESAN Y SALEN DEL CENTRO HISTÓRICO FECHA: 21/11/2022 3. ANALISIS DE LA DEMANDA U N I V E R S I D A D A N D I N A D E L C U S C O F A C U L T A D D E I N G E N E R A Y A R Q U T E C T U R A E S C U E L A P R O F E S O N A L D E A R Q U T E C T U R A C A T E D R A : T O R R E S S E R N A D I S E Ñ O V I ARQ MARCO ANTONIO SERNA CUBA ARQ MAR A CECILIA TORRES VARGAS DOCENTES: CARDENAS MONCADA DANNA MERY JANE L CONA CORDOVA PAOLA DEL MILAGRO MED NA QUISPE KEL NETH JENNIFER CONDOR HUAMAN BRAYAN CONDORI JILAPA KAROL NA PFOCCO QU SPE EZEQU EL INTEGRANTES: ENTREGA: PROBLEMÁTICA Y MASTER PLAN EN SECTOR DE SAN PEDRO CUSCO 2022 LAMINA: L-02 La repart ción modal en la ciudad del Cusco, es que el 54 9% de los pasajeros se movilizan en transporte público, el 6 22 % viaja en taxi, el 30 25% v aja a pie y el 8 63% en otro modo de transporte; según los resultados de la encuesta Origen /Destino 2011 A PIE TRANSPORTE PUBLICO TAXI OTRO MODO 448.121 * 54.9% = 246.018 población demandante de servicio de transporte publico 448 121 habitantes CANTIDAD DE PERSONAS QUE USAN EL TRANSPORTE PUBLICO EN CUSCO Se verifica una mportante sobreoferta de vehículos
capac dad de transportac ón en los per odos
hora valle para casi la total dad
rutas, y en hora punta
am, en la
y en la tarde
pm
18:45 pm ) MOVIMIENTO DE PERSONAS QUE SE INGRESAN Y SALEN DEL CENTRO HISTÓRICO REPARTICION MODAL DE PASAJEROS EN LA CIUDAD DEL CUSCO DEMANDA DE PASAJEROS PERIODO MAÑANA DEMANDA DE PASAJEROS PERIODO MAÑANA DEMANDA DE PASAJEROS PERIODO MEDIO DIA DEMANDA DE PASAJEROS PERIODO MEDIO DIA DEMANDA DE PASAJEROS PERIODO TARDE DEMANDA DE PASAJEROS PARA UN TREN LOCAL DEMANDA DE TRENES PARA CANTIDAD DE PASAJEROS DEMANDA DE PASAJEROS EXCEDENTES ACTUALMENTE DEMANDA DE PASAJEROS PERIODO TARDE CAPACIDAD MAXIMA POR OMNIBUS CAPACIDAD DEL TREN LOCAL CAPACIDAD PROMEDIO DE TAXI 7 303 / 437 = 16,71 pasajeros por ómnibus 4 864 / 868 = 5 66 pasajeros por taxi PERIODO MAÑANA 2 260 PERIODO MEDIO DIA 1 778 PERIODO TARDE 2 567 7 303 / 335 = 14.76 pasajeros por ómnibus 3 866 / 696 = 5.55 pasajeros por taxi 7 303/ 384 = 15 99 pasajeros por ómnibus 5 * 60= 300 PERSONAS 2200 / 300 = 7.3 LA CANTIDAD DE TRENES QUE CIRCCULARAN POR LA ESTACION CULTURAL SERAN 7 4 850/ 761 = 6 37 pasajeros por taxi 2 de moverse todos en microbús,
CHC estaría menos congestionado que en el presente; la demanda por capacidad vial se reduciría en un 60%. Por cada 10 vehículos
el centro
la
7 son taxis lo que
transporte
de baja
de
de las
(de 7:10 am a 8:10
mañana
de 17:15
a
el
en
de
ciudad
hace que el centro histórico se congestione En definitiva, dicho de otra forma, mientras mayor sea el
PLAN REGULADOR DE RUTAS DE TRANSPORTE PÚBLICO URBANO E NTERURBANO EN LA CIUDAD DEL CUSCO FUENTE E aborac on prop a en base a da os obten dos de p an urbano de transporte cusco FUENTE E aborac on prop a en base a datos obten dos de p an urbano de transporte cusco PLAN REGULADOR DE RUTAS DE TRANSPORTE PÚBLICO URBANO E NTERURBANO EN LA C UDAD DEL CUSCO
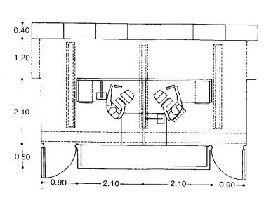
GRUPO 3 OF CINA 5. ANTROPOMETRIA ESTACION CULTURAL ...... FECHA: 21/11/2022 U N I V E R S I D A D A N D I N A D E L C U S C O F A C U L T A D D E I N G E N E R A Y A R Q U T E C T U R A E S C U E L A P R O F E S O N A L D E A R Q U T E C T U R A C A T E D R A : T O R R E S S E R N A D I S E Ñ O V I ARQ MARCO ANTONIO SERNA CUBA ARQ MAR A CECILIA TORRES VARGAS DOCENTES: CARDENAS MONCADA DANNA MERY JANE L CONA CORDOVA PAOLA DEL MILAGRO MED NA QUISPE KEL NETH JENNIFER CONDOR HUAMAN BRAYAN CONDORI JILAPA KAROL NA PFOCCO QU SPE EZEQU EL INTEGRANTES: ENTREGA: PROBLEMÁTICA Y MASTER PLAN EN SECTOR DE SAN PEDRO CUSCO 2022 LAMINA: L-04 CAFETERIA
GRUPO 3 OF CINA 6. ANTROPOMETRIA ESTACION CULTURAL ...... FECHA: 21/11/2022 U N I V E R S I D A D A N D I N A D E L C U S C O F A C U L T A D D E I N G E N E R A Y A R Q U T E C T U R A E S C U E L A P R O F E S O N A L D E A R Q U T E C T U R A C A T E D R A : T O R R E S S E R N A D I S E Ñ O V I ARQ MARCO ANTONIO SERNA CUBA ARQ MAR A CECILIA TORRES VARGAS DOCENTES: CARDENAS MONCADA DANNA MERY JANE L CONA CORDOVA PAOLA DEL MILAGRO MED NA QUISPE KEL NETH JENNIFER CONDOR HUAMAN BRAYAN CONDORI JILAPA KAROL NA PFOCCO QU SPE EZEQU EL INTEGRANTES: ENTREGA: PROBLEMÁTICA Y MASTER PLAN EN SECTOR DE SAN PEDRO CUSCO 2022 LAMINA: L-04 CIRCULACIONES TAQUILLAS PARA INFORMES Y COMPRA DE BOLETOS CIRCULACION PARA COMPRA DE BOLETOS
GRUPO 3 6. ANTROPOMETRIA ESTACION CULTURAL ...... FECHA: 21/11/2022 U N I V E R S I D A D A N D I N A D E L C U S C O F A C U L T A D D E I N G E N E R A Y A R Q U T E C T U R A E S C U E L A P R O F E S O N A L D E A R Q U T E C T U R A C A T E D R A : T O R R E S S E R N A D I S E Ñ O V I ARQ MARCO ANTONIO SERNA CUBA ARQ MAR A CECILIA TORRES VARGAS DOCENTES: CARDENAS MONCADA DANNA MERY JANE L CONA CORDOVA PAOLA DEL MILAGRO MED NA QUISPE KEL NETH JENNIFER CONDOR HUAMAN BRAYAN CONDORI JILAPA KAROL NA PFOCCO QU SPE EZEQU EL INTEGRANTES: ENTREGA: PROBLEMÁTICA Y MASTER PLAN EN SECTOR DE SAN PEDRO CUSCO 2022 LAMINA: L-04 TALLER ALMACEN
GRUPO 3 CUADRO RESUMEN DE ÁREA 6. ANTROPOMETRIA PLAZA CULTURAL ...... FECHA: 21/11/2022 U N I V E R S I D A D A N D I N A D E L C U S C O F A C U L T A D D E I N G E N E R A Y A R Q U T E C T U R A E S C U E L A P R O F E S O N A L D E A R Q U T E C T U R A C A T E D R A : T ARQ MARCO AN ARQ MAR A CEC DOCENTES: RY JANE LAGRO FER LAMINA: L-04 ILUMINACION Y ANGULO DE VISUALIZACION
GRUPO 3 ARCH VO CAFETER A OF CINA CUARTODE CONTROL TALLER ALMACEN FUNC ONAM ENTO DER ELES 6. ANTROPOMETRIA ESTACION CULTURAL Y CENTRO TECNOLOGICO ARTESANAL C RCU AC ONES TAQUIL ASPARA NFORMESYCOMPRADEBOLETOS SALADEESPERA S H C RCULAC ONPARACOMPRADE BOLETOS AREADEACCION PARAP M R ...... FECHA: 21/11/2022 U N I V E R S I D A D A N D I N A D E L C U S C O F A C U L T A D D E I N G E N E R A Y A R Q U T E C T U R A E S C U E L A P R O F E S O N A L D E A R Q U T E C T U R A C A T E D R A : T O R R E S S E R N A D I S E Ñ O V I ARQ MARCO ANTONIO SERNA CUBA ARQ MAR A CECILIA TORRES VARGAS DOCENTES: CARDENAS MONCADA DANNA MERY JANE L CONA CORDOVA PAOLA DEL MILAGRO MED NA QUISPE KEL NETH JENNIFER CONDOR HUAMAN BRAYAN CONDORI JILAPA KAROL NA PFOCCO QU SPE EZEQU EL INTEGRANTES: ENTREGA: PROBLEMÁTICA Y MASTER PLAN EN SECTOR DE SAN PEDRO CUSCO 2022 LAMINA: L-04 ESTACION CULTURAL Y CENTRO TECNOLOGICO ARTESANAL ESTACION CULTURAL Y CENTRO TECNOLOGICO ARTESANAL

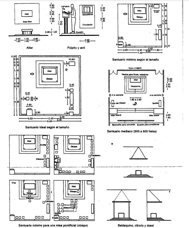
SANTUAR OS

GRUPO 3
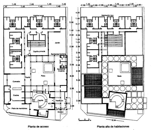
SALACAP TU AR REFECTORIO En este ugar se reun a a comun dad de monjes con e abad para hacer e Cap tulo (que se rea zaba en a com da es dec reco dar as escr u as de a reg a adoptada y conversar sob e asuntos conce n entes a monaster o y sus hab tan es Todos os e giosos se encuen ran en es a g an sa a para as dos o t es com dasde d a ugar sag ado o san o ded cado a una de dad espec f ca an epasado héroe, má t r santo, demon o, o una f gu a de espeto s m a , en donde son vene adosoadorados
NTATIVO
6. ANTROPOMETRIA ...... FECHA: 21/11/2022 U N I V E R S I D A D A N D I N A D E L C U S C O F A C U L T A D D E I N G E N E R A Y A R Q U T E C T U R A E S C U E L A P R O F E S O N A L D E A R Q U T E C T U R A C A T E D R A : T O R R E S S E R N A D I S E Ñ O V I ARQ MARCO ANTONIO SERNA CUBA ARQ MAR A CECILIA TORRES VARGAS DOCENTES: CARDENAS MONCADA DANNA MERY JANE L CONA CORDOVA PAOLA DEL MILAGRO MED NA QUISPE KEL NETH JENNIFER CONDOR HUAMAN BRAYAN CONDORI JILAPA KAROL NA PFOCCO QU SPE EZEQU EL INTEGRANTES: ENTREGA: PROBLEMÁTICA Y MASTER PLAN EN SECTOR DE SAN PEDRO CUSCO 2022 LAMINA: L-01 PLAZA DISEÑO DE CAMINOS Y PLAZAS PARQUES INFANTILES MUSEO LUGAR DE LA MEMORIA ILUMINACION Y ANGULO DE VISUALIZACION CLAUSTRO

8. CUADRO RESUMEN DE ÁREAS BARRIO SAN PEDRO

En este sentido, en términos de renovación urbana la estación se reutiliza g obalmente como un espacio urbano de costura, creando espacios púb icos comercoales culturales que integran el contexto contemporáneo que sufre la ciudad, pero en términos de conex ón con el paisaje se pretende hacer referenc a a lo que nvestigó Tom Zuidema según el concepto de sistema ceque y e enfoque de la perspectiva planteó la hipótesis de que el diseño espacial inca del Cuzco estaba relac onado con su paisa e y territorio Por o tanto la ciudad del Cuzco debe respetar los espacios o vac os urbanos, diseñados y deliberadamente dejados como espacios que revalorizan el pa saje del valle y son de util dad para los ciudadanos, promov endo el pr ncipal evento público del Cuzco, el desfi e

BIBLIOGRAFIA

Castil o, M R (1997) H storia urbana de as p azas púb icas del Centro Histórico Monumental de la ciudad del Cusco (Tesis de maestría) Un versidad Naciona de Ingeniería, L ma Paliza V (1995) Arqu tectura cusqueña en los albores de la república Tamayo, J (1978) Historia Soc a del Cusco Repub icano Cusco, Perú Un versidad Naciona San Antonio Abad del Cusco Tamayo, J (1992) Histor a general del Qosqo Cusco, Perú: Municipa idad de Qosqo Tom Zu dema (2015) El calendario inca: Tiempo y espac o en la organ zación r tual de Cusco L ma: Fondo Editorial del Congreso de Perú y Fondo Editorial de la Pontif c a Universidad Católica del Perú UNESCO (1979) Cursos de restauración de monumentos Conservación de centros sit os h stóricos Documento sumario Cusco 1975 1978 Cusco, Perú Proyecto Regional de Patrimonio Cultural UNESCO

ArchDaily (20 de septiembre de 2018) https://www archdai y pe Obtenido de archda ly pe https //www archda ly pe/pe/901871/conoce el diseno ganador de la exp anada civica del b ob o en concepcion chi e?ad source=search&ad med um=projects tab

ArchDaily (24 de enero de 2017) https //www archdai y pe Obtenido de archdaily pe: https //www archda ly pe/pe/803972/moneo brock plus rafael moneo presentan diseno de la plaza de espana en republica dominicana?ad source=search&ad medium=projects tab

ArchDaily (20 de enero de 2020) https://www archdaily pe Obtenido de archdaily pe: https://www archdaily pe/pe/932426/nueva plaza del ayuntam ento en mansi la mayor ocamica tudanca arquitectos?ad source=search&ad med um=pro ects tab

Cerda, P A (2018) https://www archdaily pe/ Obtenido de archdaily pe: https://www archdaily pe/pe/905166/centro consistorial de la comuna de pedro aguirre cerda gmm arquitectos#: text=Direcci%C3%B3n%3AAv ,Aguirre%20Cerda%2C%20Regi%C3%B3n%20Metropolitana%2C%20Chi e

GRUPO 3
G R A C I A S
CONCLUSIÓN
FECHA: 21/11/2022 U N V E R S I D A D A N D I N A D E L C U S C O F A C U L T A D D E I N G E N I E R I A Y A R Q U T E C T U R A E S C U E L A P R O F E S I O N A L D E A R Q U T E C T U R A C A T E D R A : T O R R E S S E R N A D I S E Ñ O V I ARQ MARCO ANTONIO SERNA CUBA ARQ MARIA CECILIA TORRES VARGAS DOCENTES: CARDENAS MONCADA DANNA MERY JANE LICONA CORDOVA PAOLA DEL MILAGRO MEDINA QU SPE KELINETH JENN FER CONDOR HUAMAN BRAYAN CONDORI JILAPA KAROL NA PFOCCO QU SPE EZEQUIEL INTEGRANTES: ENTREGA: PROBLEMÁTICA Y MASTER PLAN EN SECTOR DE SAN PEDRO CUSCO 2022 LAMINA: L-04

Turn static files into dynamic content formats.

Create a flipbook
Issuu converts static files into: digital portfolios, online yearbooks, online catalogs, digital photo albums and more. Sign up and create your flipbook.