P O R T A F O L I O K E L I N A R A N G O A R Q U I T E C T A

![]()
P O R T A F O L I O K E L I N A R A N G O A R Q U I T E C T A

PERFIL
- Hoja de vida .......................................................... Pág. 02
- Centro integral de Arte y Cultura (Edificio mixto)
“TEJIENDO MEMORIA” ................................... Pág. 05 - 10
- Apartamento Bagatelle ................................ Pág. 11 - 14
- Cantina La Milagrosa .................................... Pág. 15 - 18
- Club Naútico MAKANI ................................... Pág. 19 - 21
- Restaurante MAKANI ........................................ Pág. 22 - 23
- CASA 44 ............................................................ Pág. 24 - 26
- Contacto ......................................................... Pág. 27

PERFIL
Arquitecta
Contacto
Cel: 3194770615
Correo: arangokelin@gmail.com
LinkedIn: https://www.linkedin.com/in/kelin-a-7335a9117/
Urbanismo participativo obra, desarrollo edificios de vivienda,
Mi perfil produciendo espacios de las personas persona apasionada para trabajar aprendizajes Además, proyectos.
• Pregrado Javeriana
• Bachiller Hungría
ACTUALIZACIÓN PROFESIONAL
• Voluntariado (OCT
• Festival Urbanas
• Taller metodología 2024
• Curso programación (JUL
• Congreso industria ISO 55000 (OCT 2022)

• Taller Seminario de equipamiento para el trabajo. Cali, Valle del Cauca. (JUL 2021)
DISTINCIONES ESPECIALES
• Beca Que nada te detenga. Pontificia Universidad Javeriana Cali. (ENE 2018 - JUL 2022)
HABILIDADES
PROGRAMAS
2023 –JUL 2022 –arquitectura diseño comerciales, técnicos, modelado y – 15 JUL constructivos proyectos para cabidas. (04
• CONSTRUCTORA JARAMILLO ARQUITECTOS SAS.
K E L I N A R A N G O A R Q U I T E C T A
• Autocad Avanzado
• Revit Avanzado
• Sketchup Avanzado
• Lumion Avanzado
• Twinmotion Avanzado
• Enscape Avanzado
• Navisworks Intermedio
• Illustrator Intermedio
• Photoshop Intermedio
• Power Point Avanzado
• Excel Avanzado
• Word Avanzado
• Project Intermedio
IDIOMAS
• Inglés Intermedio
Arquitecta Junior Habilidades en tramites de licencias de construcción ante curaduría, proyectos de diseño de edificios de vivienda multifamiliar, modelado 3D, procesos de posventa y supervisión de obra en procesos de mampostería e instalaciones eléctricas.
(09 FEB 2023 – 02 JUN 2023)
ING QUIMICO JAVIER GÓMEZ
Proyectista de REVIT y supervisora BIM . Modelado arquitectónico, estructural y MEP en el software REVIT con un LOD de hasta 450 y revisión BIM (18 JUL 2022 – 22 DIC 2022)
P R O Y E C T O S
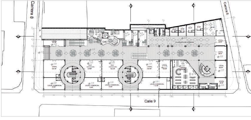
Cl. 9 con Cra. 6 y 8 La Merced, Cali, Valle del Cauca

Reconocimiento: Tercer puesto en entrega final Periodo: 2021 - 1
El centro integral de arte y cultura “Tejiendo memoria, busca generar una relación permeable con su contexto en primera planta, se inserta en un contexto muy consolidado y marcado por esa historia fundacional de la ciudad de Cali.
El proyecto consta de una plaforma comercial, que absorve niveles topográficos y conforma un zácalo comercial. A nivel, sobre la esquina de la Cl. 9 con Cra. 6 se genera una plazoleta cubierta que da continuidad a la plazoleta de San francisco, realizando un gesto de bienvenida que atrae el flujo zonal desde el bulevar del río Cali. Este mismo espacio, se encarga de articular todos los usos del proyecto.
En las primeras plantas todo está pensado para un comercio cultural, y apartir de la plataforma con la galería de exposiciones temporales, el edificio adopta la función educativa integrando salas de exposiciones, talleres de artes visulaes y de música, las cuales están formalmente separadas por una terraza de transición. La fachada responde al uso y actividad que se genera al interiro de los espacios.










LONGITUDINAL K E L I N A R A R Q U I T







SOLIDEZ/ACÚSTICA

PERMEABILIDAD /ILUMINACIÓN

TRANSPARENCIA









Cali, Valle del Cauca
Proyecto desarollado durante las prácticas profesionales en OPAL SAS.
El apartamento Bagatelle es un proyecto de remodelación de baños, cocina y zona de ropas bajo un concepto moderno-contemporaneo.
Las condiciones del cliente incluian la bÚsqueda de un estilo diferente en cada uno de los baños renovados y con tendencias en tonos sobrios generando un ambiente elegante y moderno.



















Santa Marta, Magdalena

Proyecto desarrollado como diseñadora Freelance en OPAL SAS.
Cantina La Milagrosa es un proyecto de remodelación de una casa antigua en el centro historico de Santa Marta, la cual se encuentra ubicada muy cerca al Parque de los novios.
Este proyecto fue solicitado para un uso comercial, siendo la Cantina una mezcla entre restaurante y bailadero, por lo cual, en su estilo este proyecto debía integrar elementos que evocaran la cultura mexicana y a la vez la rusticidad de la casa antigua y el contexto que la encierra, jugando con la mezcla de texturas, tonos oscuros, luces cálidas en tonos rojizos para ajustar la experiencia en el espacio y elementos que complemetnan el espacio con su carácter propio.



















Calima El Darién, Valle del Cauca
Proyecto desarrollado durante las prácticas profesionales en OPAL SAS.
El Club Naútico MAKANI, es un proyecto de urbanización realizado en un lote cerca al Lago Calima, con el cual buscaban complementar la experiencia para una zona de cabañas que quedan hacia la parte superior de Club.
En este proyecto se desarrolló la zona de parqueo con el restaurante sobre una plataforma principal que abarca las actividades del restaurante, la zona de preparación de alimentos, los baños, la tarima hacia la visual y zonas verdes que sirven como extensión del restaurante para actividades campestres y en caso de realización de eventos grandes al exterior.
En la zona media se desarrolló lo que seria un volumen al lado del angar que contiene la administración y el gimnasio; además en la zona posterior se generó una playa artificial y dos muelles, uno de salida y otro de entrada para las lanchas pertenecientes a las personas que utilizan los servicios ofrecidos por el club naútico.



Vista general proyecto Club Naútico MAKANI
En general este complejo naútico contine una variedad de actividades, las cuales fueron desarrolladas en el proyecto, buscando el carácter único de cada esapacio según su uso y actividad.









Vista exterior restaurante. La ambientación es naútica, muy dada al uso y la actividad que ofrece el club.






Ciudadela Pasoancho, Cali, Valle del Cauca
Proyecto de diseño obra nueva, se desarrolló el diseño, distridución e interiorismo del tercer piso de una casa unifamiliar al sur de la ciudad de Cali.
Este proyecto se desarrolló con espacios con un estilo modernocontemporaneo al gusto de los usuarios.
Comenzamos desde el acceso con un hall que conecta a una zona de balcón exterior retranqueado de la fachada principal; en el interior se diseñó la habiatción principal con una antesala y una zona de vestier algusto de los usuarios que conecta con el baño principal, el cual tiene una ducha con iluminación cenital.



vista habitación principal



vista desde antesala accediendo a la habitación principal


Vista Antesala habitación principal







Vista








Kelin Arango
linkedin.com/in/kelin-a-7335a9117 arangokelin@gmail.com cel. 3194770615