ESTIMADO/A
Le doy la bienvenida a mi portafolio de arquitectura, el cual muestra una selección de los proyectosdepregradoqueherealizadodurantelosaños2017-2022.
Mi portafolio reúne los proyectos académicos (diseños conceptuales) en los que, a través delproceso,heaprendido,exploradoyentendidolosprincipiosarquitectónicosenfunción de los requisitos y necesidades de los clientes; mostrando los diversos proyectos que he diseñado,cómoaplicoelpensamientocríticoyrealizodiseñoscreativosyfuncionales.
CARRERAP.KEISLYNA
Creatividad.Atenciónaldetalle. Organización.Trabajoenequipo.
PERFIL
Mi objetivo es crecer continuamente, colaborando con equipos talentosos para crearespaciosinspiradoresysignificativos.
Estoycomprometidaatrabajararduamentey adquirir experiencia práctica para desarrollarme profesionalmente. Mi pasión porlaarquitecturasereflejaenlaexploración constante de nuevas tendencias y enfoques endiseñosostenible.
ESTUDIOS
2023
UniversidadCatólicaSantaMaríaLa
Antigua
LicenciaturaenArquitecturaEstructural
2016
ColegioSecundariodeRenacimiento
BachillerenCiencias
2011
EscuelaPrimariadeRíoSereno
EXPERIENCIA
2023
AxiomaBoqueteConstructionS.A. AsistenteLaboral-PrácticaProfesional Supervisada(3meses)
2022
DepartamentodeIngenieríaMunicipalMunicipiodeRenacimiento AsistentedeIngenieríaMunicipal-Pasantía(6 meses)
CURSOS
2021-ARCUX
DiseñadordeInterioresprofesional
2020-INADEH
Dibujodeplanosdefontanería
Interpretacióndeplanosdefontanería
2019-ARCUX
IntroducciónalaArquitecturaSustentable
IntroducciónaArchiCAD
CONTACTO
Chiriquí,Panamá
keislyn.carrera@gmail.com
keislyn carrera
Lumion
SketchUp
Revit
ArchiCAD
PRESENTACIÓN
VIVIENDASUSTENTABLE
VIVIENDAUNIFAMILIAR
APARTAMENTOS(DUPLEX)
CENTROCOMERCIALECOLOGICO
INTERVENCIÓNENUNESPACIOPÚBLICOPAMEDA
INTERVENCIÓNURBANA-DAVID
INTERVENCIÓNURBANA-BOQUETE
MAQUETA-MALLAESPACIAL
UNA VIVIENDA SUSTENTABLE
ArquitecturaBioclimática
El proyecto de la vivienda sustentable es una impresionante estructura diseñada para aprovechar al máximolosrecursosnaturalesyminimizarsuimpactoen el medio ambiente. Con un área total de 167,52 metros cuadrados, esta vivienda incorpora una variedad de características y tecnologías eco-amigables para garantizar una experiencia de vida cómoda y respetuosa conelentorno.
Unodelospilaresfundamentalesdeldiseñoeslaeficiente cosechadeaguadelluvia.Loscanalesestratégicamente ubicados en el techo permiten recolectar y almacenar el agua de lluvia, que luego se utiliza para diversas necesidades domésticas, reducir la dependencia del aguapotableycontribuiralahorroderecursoshídricos.
Parasatisfacerlasnecesidadesenergéticasdelavivienda demanerasostenible,sehaninstaladopanelessolaresen el techo. Estos paneles generan electricidad limpia y renovable, lo que contribuye a reducir el consumo de energíaprocedentedefuentesnorenovablesyadisminuir lasemisionesdegasesdeefectoinvernadero.
El diseño arquitectónico también ha sido pensado para aprovechar al máximo la luz solar a lo largo del día. La vivienda se encuentra estratégicamente posicionada en el terreno para optimizar la iluminación natural, lo que no soloreducelanecesidaddeiluminaciónartificialsinoque también crea un ambiente interior más acogedor y confortable.
El estacionamiento de la vivienda también juega un papel importante en la sustentabilidad. Se ha instalado un techo verdesobreelestacionamiento,quenosolo ofrece sombra y protección a los vehículos, sino que también favorece la absorción de CO2 y reduce la generación de calor urbano.
Uncomponenteadicionaleslacreaciónde un lago como espejo de agua en los alrededores de la vivienda. Esta característica no solo agrega un elemento estético atractivo al diseño, sino que también tiene una función práctica al refrescar el entorno, especialmente en épocasdecalorintenso.
El entorno del terreno está enriquecido con una abundante vegetación, cuidadosamente seleccionado para cumplir funciones específicas como la mejoradelacalidaddelaire,lacapturade CO2 y la promoción de la biodiversidad. Además, esta vegetación proporciona una sensación de tranquilidad y armonía con la naturalezaparalosresidentes.
PORTAFOLIO | Keislyn A. Carrera P.
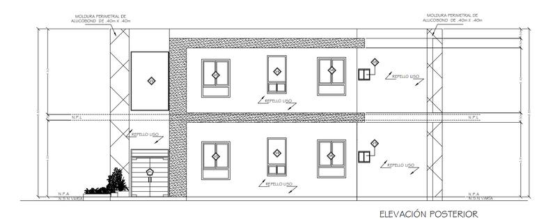
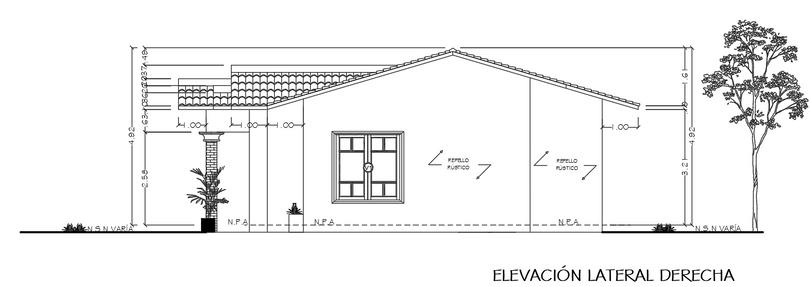
VIVIENDA UNIFAMILIAR
El proyecto de este hogar familiar se caracteriza por su diseño convencional y acogedor, pensado para satisfacer las necesidades de una familia. Con un enfoque en la funcionalidad y la comodidad, esta vivienda cuenta con todas las comodidades necesarias para una vida cómoda y placentera.
Una característica destacada de este proyectoessudiseñoquepermiteunafutura expansión. Existe un espacio previamente planificado para la creación de una habitación adicional y otro baño, lo que brinda la oportunidad de adaptar la vivienda según las necesidades cambiantes de la familia o para aumentar la capacidad de alojamiento.
APARTAMENTOS
Elproyectoesunedificiomodernodedepartamentosdedosplantas,diseñadoenestilodúplex,queofreceuntotalde6 departamentosindependientes.Laarquitecturadeesteedificiosedestacaporsueleganciayfuncionalidad,brindando a sus residentes un espacio cómodo y contemporáneo para vivir. Cada departamento cuenta con una distribución en concepto abierto, que combina la sala de estar, el comedor y la cocina en un amplio y luminoso espacio. Esta disposiciónfomentarálainteracciónylaconvivenciaentrelosresidentes,creandounambientecálidoyacogedor.
Losdepartamentosestándiseñadosparaoptimizarelusodelespacioylaprivacidad.Cadaunidadcuentaconunbaño completo, equipada con todas las comodidades necesarias. Además, se ha incluido una lavandería dentro de cada departamento,facilitandolastareasdomésticasygarantizandolaindependenciaycomodidaddelosinquilinos.
CENTRO COMERCIAL ECOLÓGICO
Conceptualizaciónydiseño
PORTAFOLIO | Keislyn A. Carrera P.
PORTAFOLIO | Keislyn A. Carrera P.
INTERVENCIÓN - PAMEDA
Conceptualizaciónydiseño
CONCEPTO:
LAHUELLACONLARELACIÓNA UNÓCTAGONO
PORTAFOLIO | Keislyn A. Carrera P.
INTERVENCIÓN URBANA
CiudaddeDavid-Chiriquí
PORTAFOLIO | Keislyn A. Carrera P.
INTERVENCIÓN URBANA
UrbanismoTáctico.Boquete-Chiriquí.
Basándonos en el urbanismo táctico y los comercios pop-up tiene como objetivo revitalizar y transformar espacios urbanos,creandounaatmósferavibranteydinámicaquebeneficietantoalacomunidadlocalcomoalosvisitantes.Con suenfoqueenlatemporalidadylaversatilidad,estasinterrupcionespermitenexperimentarnuevasideasyoportunidades comerciales,brindandounaexperienciaúnicayenriquecedoraenelentornourbano.
PORTAFOLIO | Keislyn A. Carrera P.
Maqueta - Malla Espacial
Galeríadearte.
Las mallas espaciales son estructuras diseñadas con el propósito de abarcar grandes luces y lograr un edificio atractivo y seguro, lo que significa una ventaja a la ora de diseñar.
Analizamos e investigamos los parámetros para la realización de una malla espacial y realizamos una maqueta a escala de suestructura.
PORTAFOLIO | Keislyn A. Carrera P.
"Laregladelaarquitectura,es hacerlascosasconamory obsesión,engranproporción"

