MONEVA_PORTFOLIO

Page 1

portfolio. kyle moneva selected works 2018-2023

MONEVA, KYLE DANIEL A.

B.S. ARCH.

A self-motivated and hardworking fresh graduate of BSArchitecture with a specialization in Project Construction Management. A person driven to contribute to the building of outstanding and notable structures. With a keen interest in being part of a built industry aiming for a better living future.

EDUCATION

BS- Architecture

Mapua University | 2018-2023

Senior Highschool

Mapua University | 2016-2018

Junior Highschool

St. Mary's Academy of Nagcarlan

Laguna | 2012-2016

Elementary

Sanctuario de San Antonio

Children Learning Center | 20052012

TECHNICAL SKILLS

AutoCAD 2021

SketchUp Pro 2021

Photoshop 2020

Microsoft Office tools

Canva

Lumion 11

Wondershare Filmora

PERSONAL SKILLS

Creative

Problem Solving

Time Management

Competitive

Strong willingness to learn

WORK EXPERIENCE

Internship

Company name: EnPraxis.inc

Training Period: September to November 2021

Assigned Department: Design and Planning

Projects:

1) Urban Farming

@ NHA Southville 7, Brgy. Dayap

Calauan, Laguna

2) Recreational Resort

@ Caliraya Lumot Watershed Muns. of Lumban, Cavinti, & Kalayaan

Career Highlights:

1) Able to execute ideas and strategies for the projects.

2) Received a total rating of 4.86/5.00 in performance evaluation, rated by principal architect of Enpraxis.inc.

3) Produced 3d models, renderings, and video animations.

AFFILIATIONS / ACHIEVEMENTS

“Biomimicry: Sustainable Design Inspired by Nature”
Two-time Half Academic Scholar 2018
UAPSA Mapua University Chapter - Member 20182019 MAPUA SAE Webinar:
2021
contents. TOWN HOUSE MIXED-USE BULDING SCHOOL BULDING LEVEL 1 HOSPTAL PUBLC BUILDNG MASTER PLANNNG 03 05 06 01

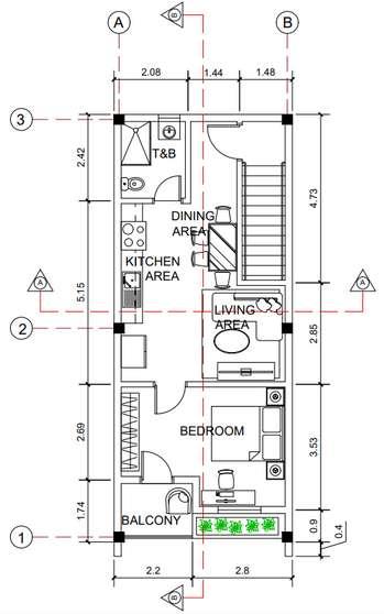
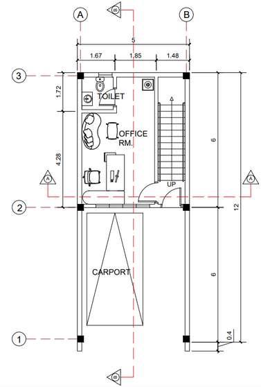
PROPOSED 10-UNIT 2-STOREY TOWNHOUSE

The proposed townhouse will be situated on third to fourth lots from the corner of Cuenca Street along Ayala, Alabang. The vacant lot has a total area of 1023sqm with flat terrain and regular shaped with the total frontage has 35.28 meters. Along with site analysis, the lots are surrounded by grasses together with few trees that can be seen on the corners of the lot. Additionally, its free from noisy roads and having no evidence of flooding, this means that it will be a perfect place for future users to live in stress-free environment.

01
NOT TO SCALE
NOT TO SCALE NOT TO SCALE
NOT TO SCALE NOT TO SCALE
NOT TO SCALE NOT TO SCALE
NOT
NOT
TO SCALE
TO SCALE

PROPOSED MIXED-USE 4-STOREY BUILDING

The proposed project is situated along the Intramuros, manila, in which buildings are constructed with design provision under the Intramuros administration. Thus, the proposed project is integrated with Spanish architectural features, considering the height and facade restrictions.

02
M I X E D - U S E 4 - S T O R E Y B U I L D I N G

PROPOSED K-12 SCHOOL BUILDING

In designing a k-12 school building, DepEd design guidelines are necessary to conform in order to achieve the functions and needs of the user. In order to achieve a well-designed school building, the proposed design must complied with the DepEd design standards and guidelines.

03

PROPOSED LEVEL 1 DISTRICT HOSPITAL

People who are hospitalized are often fearful and apprehensive regarding their health condition. Together with a complex environment of healthcare facility, it further contributes into stressful situation that makes them more frustrated and causes to impede patient's recovery. This psychological effects of environment can be solved by bringing nature into building, a sense of natural indoor environment that eliminates environmental stressors and provides positive impact for patients and even for healthcare workers.

04

THESIS PROJECT

A PROPOSED MUNICIPAL BUILDING IN MUNICIPALITY OF LILIW, LAGUNA

The existing Liliw municipal hall was one of the oldest buildings in the province of Laguna. The town hall was inspired of Spanish Colonial Architecture that was featured specially by Capiz windows. However, due to its outmoded structures, the building wasn't able to conserve energy particularly given the excessive use of electrical lighting during daytime. Additionally, due to the population growth and increasing workforce, rooms and spaces exceeded its capacity which happened to have compressed rooms and unability to have access of natural lighting. With that, the proposed project aims to solve the problem given with the design solutions incorporated in this project.

05
LILIW, LAGUNA BRGY.ILAYANG TAYKIN

B B O O A A R R D D

LL A A Y Y O O U U T T

INTERNSHIP PROJECT

MASTER PLANNING: URBAN FARMING

There are 4 target locations for the proposed urban farming, such as Brgy.

Dayap Calauan, Laguna, Brgy. Cabuco, Trece Martires City, Camarin Residences in Caloocan City, and Villa Lois in Pandi Bulacan. These are the local places that will be given a support in farming needs from the government support.

06
WALKTHROUGH THESIS PROJECT A
SCAN/CLICK THE QR CO
Municipal Building in Municipality of Liliw, Laguna

ANIMATIONS

WALKTHROUGH

OJT PROJECT

A Master Plan for Urban Farming in Brgy. Dayap, Calauan, Laguna

DE FOR VIDEO
thank you. 907-B Rosarito St. B-Balic Sampaloc, Manila +63 966 314 3588 kd21moneva@gmail.com

Turn static files into dynamic content formats.

Create a flipbook
Issuu converts static files into: digital portfolios, online yearbooks, online catalogs, digital photo albums and more. Sign up and create your flipbook.