KCL Engineering_2024 Firm Profile

Page 1


KCL Engineering makes it our mission to help build a world we all want to live in.
Our focus on empowerment, flexibility, and opportunity creates a workplace of happy employees who provide superior customer service, deliver high-quality projects, and delight clients with innovative solutions.

Since 2008

62 employees Services

Mechanical

HVAC Systems, Geothermal Heat

Exchangers, Mechanical and Natural Ventilation, Energy Management, Central Plant

Plumbing

Major Markets

K-12

Higher Education

Healthcare

Senior Living Government

Community Industrial Commercial

Multi-Family

Luxury Development

Domestic, Sanitary, Storm, Solar Thermal Collection, Water Reduction and Reuse, Specialty Systems: Compressed Air, Vacuum, Nitrogen, Oxygen, and High Purity Water Systems

Fire Protection

Fire Sprinkler, Gas and Foam Extinguishing, Fire Pumps and Tank

Building Energy Performance

Energy Modeling, Feasibility Analysis, Life Cycle Cost Analysis, Energy Monitoring, Systems Commissioning

Electrical

Power Distribution, Essential and Emergency Power, Medium Voltage Site and Campus Distribution, Solar PV and Battery Storage, Microgrid, Power System and Arc Flash Hazard Studies

Lighting

Architectural, Interior Emergency and Egress, Exterior Site / Roadway, Sports, Theatrical Lighting, Lighting Controls, Photometric Modeling and Analysis

Technology

Telecommunications Infrastructure, Wireless LAN, Fire Detection and Alarm, Audio/Video, Access Control and Intrusion Detection, Video Surveillance, Emergency Communication, Paging and Intercom, Distributed Antenna, Nurse Call

Top Engineering Firms

Inc. Best Workplace
At KCL Engineering, we bring to life three pillars that distinguish how we make our mark in the world.

Perfect Extension of Your Team

Doing great work is just the beginning.

Every client has their own way they like to work and interact. We match your preferences through a process we built. We also focus on hiring and training people you are proud to put in front of your constituents who can speak human, architect, and engineer.

We appreciate and strengthen every relationship

Client syncing happens at every level

You can be proud of KCL as your partner

Relentless Attention to Detail

We do our best to plan and strive for perfection.

Part of excellence is our best-in-class process to prevent any issues in the first place with an optimal response approach when an issue may occur.

Consistent team from start to finish

Cross-discipline engagement and coordination

Quick course correction that minimizes costs and disruption

Practical, Inspired Innovation

We measure what matters.

We measure client enthusiasm and shoot above the level of just being satisfied to a higher level where our clients love their results. That means we look for smarter, more meaningful innovations to standard work.

We love purposeful innovation to solve real problems

Our culture supports imagination, innovation, and creativity

We seek high caliber, trailblazing customers

K-12 Project Experience

High Schools

Clarinda High School Mechanical and Electrical Upgrades and Classroom Addition, Clarinda, IA

North Linn High School/Middle School Mechanical and Electrical Upgrades, Coggon, IA

West Fork High School/Middle School Mechanical and Electrical Upgrades, Sheffield, IA

Tracy High School Mechanical and Electrical Upgrades, Tracy, MN

Dallas Center-Grimes High School Addition and Renovation, Grimes, IA

Maquoketa High School HVAC and Lighting Upgrades, Maquoketa, IA

Westridge Alternative High School HVAC Assessment, Oakridge, OR

Akron-Westfield K-12 Building Renovation, Akron, IA

North Linn K-12 Building Renovation, Coggon, IA

Wapsie Valley High School HVAC and Electrical Upgrade, Fairbank, IA

Ackley-Geneva-Wellsburg-Steamboat Rock High School Addition and Renovation, Wellsburg, IA

Knoxville High School Renovation, Knoxville, IA

Easton Valley Junior/High School Addition, Preston, IA

Tipton High School Boiler Replacement, Tipton, IA 300+ K-12 PROJECTS 125+ DISTRICTS

5,000TONS GEOTHERMAL

East Sac County High School Classroom Addition, Lake View, IA

Janesville K-12 Building Classroom and Gymnasium Additions, Janesville, IA

Graettinger-Terril MS/HS Classroom and Gymnasium Additions, Graettinger, IA

Okoboji High School MEP Upgrades, Milford, IA

I-35 High School Addition and Renovation, Truro, IA

Midland Middle/High School Addition & Renovation, Wyoming, IA

East Buchanan High School Renovation, Winthrop, IA

Bondurant Farrar High School Classroom and Auditorium Addition, Bondurant, IA

Marshalltown High School Gym and Wrestling Room Addition, Marshalltown, IA

Solon High School Athletic Addition, Solon, IA

Roland-Story High School HVAC, Science, Safety/Security Modernization, Roland & Story City, IA

Roland-Story CSD District-wide HVAC Upgrades, Roland and Story City, IA

South Tama High School Addition, Tama, IA

Howard-Winneshiek Jr/Sr High School Fiber Upgrades, Cresco, IA

New London Jr/Sr High School Renovation, New London, IA

Ames High School Phase I Planning, Ames, IA

South Hamilton High School Renovation and Auditorium Addition, Jewell, IA

Fort Dodge High School Wrestling Room Addition, Fort Dodge, IA

Garner-Hayfield-Ventura High School Renovation, Garner, IA

Solon High School Performing Arts Addition, Solon, IA

Wahlert High School Renovation, Dubuque, IA

St. Ansgar High School Gymnasium Addition, St. Ansgar, IA

Regina Catholic High School Locker Room Remodel, Iowa City, IA

Hempstead High School Additions and Renovations, Dubuque, IA

Tripoli High School Gymnasium Addition, Tripoli, IA

Middle Schools

Harrison Park Middle School Conversion, Portland, OR

Ackley-Geneva-Wellsburg-Steamboat Rock Middle School Renovation, Wellsburg, IA

Southeast Junior High School Classroom Addition, Iowa City, IA

Southeast Junior High School Kitchen Renovation and Addition, Iowa City, IA

West Delaware Middle/Elementary School Renovation, Manchester, IA

Sioux City Middle School Chiller Replacement, Sioux City, IA

Knoxville New Middle School, Knoxville, IA

West Liberty Middle School Addition and Renovation, West Liberty, IA

Union Middle School HVAC and Low Voltage Upgrade, Dysart, IA

Bondurant Middle School Renovation, Bondurant, IA

Okoboji New Middle School, Milford, IA

Dallas Center-Grimes New Middle School, Grimes, IA

North Central Jr High School Addition/Renovation, Iowa City, IA

Southeast Junior High School Addition/Renovation, Iowa City, IA

Tipton Elementary/Middle School Addition/Renovation, Tipton, IA

Callanan Middle School HVAC Modernization, Des Moines, IA

Charles City New Middle School, Charles City, IA

Solon New Middle School, Solon, IA

Ames Middle School Auditorium Lighting Replacement, Ames, IA

Elementary Schools

North Linn Elementary School Controls Upgrade, Coggon, IA

West Fork Elementary School Mechanical and Electrical Upgrades, Rockwell City, IA

Tracy Elementary School Mechanical and Electrical Upgrades, Tracy, MN

McKinley, Elmonica and Chehalem Elementary School Piping Upgrades, Beaverton, OR

Cooper Mountain Elementary School Seismic Upgrades, Beaverton, OR

Elmonica and Greenway Elementary HVAC Upgrades, Beaverton, OR

Shimek Elementary School Lunchroom Addition, Iowa City, IA

Evans Middle School HVAC Upgrade, Ottumwa, IA

Nodland Elementary School HVAC Upgrade, Sioux City, IA

Lincoln Center Renovation and Addition, Albia, IA

East Sac County Elementary School Addition, Sac City, IA

Graettinger-Terril Elementary School Secure Entrance, Terril, IA

Raleigh Park Elementary School HVAC and Electrical Upgrade, Beaverton, OR

Dallas Center-Grimes 5/6 School, Dallas Center, IA

Okoboji Elementary School MEP Upgrades, Milford, IA

Gilbert Intermediate and Elementary Schools MEP Upgrades, Gilbert, IA

Lincoln Elementary School Renovation, Iowa City, IA

Alexander Elementary School Addition, Iowa City, IA

Springville New Elementary School, Springville, IA

Solon New Elementary School, Solon, IA

Heritage Elementary School, Grimes, IA

North Mahaska Elementary School Cooling, New Sharon, IA

Rock Creek Elementary School Classroom Addition, Ankeny, IA

Prairie Trail Elementary School Classroom Addition, Ankeny, IA

Lake Mills Elementary School Classroom Addition, Lake Mills, IA

Terrace Elementary School Gymnasium Addition, Ankeny, IA

West Elementary School Addition, Knoxville, IA

Battle Creek-Ida Grove Elementary School Addition, Ida Grove, IA

Briggs Elementary School Renovations, Maquoketa, IA

Rock Creek Elementary School, Ankeny, IA

Other K-12 Education

Southeast Polk Football Stadium, Altoona, IA

Southeast Polk Softball Field/Restrooms/Press Box, Altoona, IA

Akron-Westfield Football Stadium Lighting and New Concessions Building, Akron, IA

Access Academy Electrical and Technology Upgrades, Portland, OR

Educational Service District 112 - Mental Health Facility Renovation, Vancouver, WA

Beaverton CSD Summit Office Renovation, Beaverton, OR

Portland PPS Holladay Annex HVAC Modernization, Portland, OR

Eugene School District 4J – Multi-Site High School Athletic Facilities, Eugene, OR

Creative Science School Seismic Upgrade, Portland, OR

Waukee School District Aquatics Facility, Waukee, IA

West Liberty CSD Early Learning Center, West Liberty, IA

West Liberty CSD Athletic Fields, West Liberty, IA

West Liberty CSD Bus Barn, West Liberty, IA

Ackley-Geneva-Wellsburg-Steamboat Rock CSD Sports Complex and Bus Facility, Wellsburg, IA

Union CSD Phone System Upgrade, Albia, IA

Lake Mills CSD Bus Garage, Lake Mills, IA

Waukee Timberline Stadium Improvements, Waukee, IA

Okoboji High School Football Field Lighting, Okoboji, IA

Lisbon High School Football Field Lighting, Lisbon, IA

Nevada High School/City of Nevada New Baseball Complex, Nevada, IA

Nevada High School Stadium Expansion, Nevada, IA

Madrid Baseball and Softball Field Lighting, Madrid, IA

Dallas Center-Grimes Baseball Field Lighting, Dallas Center, IA

Battle Creek Ida Grove Community School District, New Athletic Sports Lighting, Ida Grove, IA

St. Ansgar Outdoor Sports Lighting, St. Ansgar, IA

Iowa Falls CSD PV Array, Iowa Falls, IA

Dallas Center-Grimes Baseball Field Lighting, Grimes, IA

Centerville Wrestling Building, Centerville, IA

Centennial High School Athletic Field Lighting, Ankeny, IA

Ames District Facility Maintenance and Bus Facility, Ames, IA

Waukee CSD Facility Maintenance and Bus Facility, Waukee, IA

Garner-Hayfield-Ventura CSD Facility Maintenance and Bus Facility, Garner, IA

Dallas Center-Grimes CSD Bus Maintenance Facility, Dallas Center, IA

High School Projects

Central Academy HVAC Upgrade

Central Academy Boiler Replacement

Central Academy Pottery Studio

Central Campus Agricultural Science Building

Central Campus Aviation Technology Academy

East High School Auditorium Renovation

East High School Boiler Replacement

East High School Family and Consumer Science Renovation

Hoover High School Auditorium and Power Upgrades

Lincoln High School Office Modernization and Secure Entrance

Lincoln High School Pool HVAC Upgrades

Roosevelt High School Athletic Modernizations

Roosevelt High School Auditorium Lighting and Power Upgrade

Roosevelt High School Track and Field Lighting Upgrade

Middle School Projects

Harding Middle School Auditorium Improvements

Harding Middle School Nursing Station

Callanan Middle School HVAC System Modernization

Callanan Middle School FCS/Science Classroom Renovation

McCombs Middle School Addition

Weeks Middle School Secure Entrance

Since 2010

90+ projects

51 buildings

$150 million construction costs

Elementary School Projects

Carver Elementary School Secure Entrance

Cattell Elementary School Secure Entrance

Cattell Elementary School Cafeteria and Classroom Addition

Findley Elementary School Modernization

Findley Elementary School Addition

Greenwood Elementary School Grease Interceptor

Greenwood Elementary School Kitchen Cooler Improvements

Greenwood Elementary School Exiting Upgrades

Howe Elementary School Addition and Renovation

Hubbell Elementary School Boiler Replacement

Jackson Elementary School Gymnasium and Classroom Addition

Jefferson Elementary School Modernization

Jefferson Elementary School PV Array

Jesse Franklin Taylor Education Center

Lovejoy Elementary School Modernization

Madison Elementary School Boiler Addition to Geothermal System

Madison Elementary School New Entrance

McKinley Elementary School HVAC Modernization

Moore Elementary School Modernization

Monroe Elementary School Community Room Renovation

Monroe Elementary School Grease Interceptor

Moulton Elementary School Modernization

Morris Elementary School Kitchen Cooler Improvements

Park Avenue Elementary School Boiler Addition to Geothermal System

Park Avenue Elementary School Restroom Renovation

Phillips Elementary School Classroom Addition

Pleasant Hill Elementary School Gymnasium Addition and Renovation

River Woods Elementary School Chiller Replacement

River Woods Elementary School Classroom Addition

River Woods Elementary School Kitchen Cooler Improvements

Studebaker Elementary School Addition and Renovation

Walnut Street 5th Floor Remodel and High Rise Upgrades

Walnut Street Chillers

Weeks Middle School Secure Entrance, Des Moines, IA

Wright Elementary School Gymnasium Addition

Wright Elementary School Kitchen Upgrade

Other/Support Building Projects

Air Quality Assessments

Community Stadium at Drake University

Central Nutrition Center HVAC Modernization

Central Nutrition Center Dishwasher

Central Nutrition Center Storage

East High School Walker Street Annex First Floor HVAC Upgrade

East High School Walker Street Annex Remodel

East High School Walker Street Boys & Girls Club

Exterior Lighting Replacements - Phase I, II, III

Print Shop Addition in Warehouse

District Administration Building Modernization

Jesse Franklin Taylor Education Center

Smouse Opportunity School Modernization

Ruby Van Meter School Modernization

Prospect Support Facility HVAC and Electrical Modernization

Bus Barn Breaker Coordination Study

Mitchell Daycare Center Secure Entrance

Woodlawn Preschool Education Center Secure Entrance

Bondurant-Farrar High School Classroom and Performing Arts Addition

Bondurant, Iowa

To address a growing student population, the district built an addition with 20 classrooms, more than doubling the current total of 18. Included in the addition are new science classrooms and, for the first time, a family and consumer sciences classroom. A special education room and an at-risk room, as well as a severe weather classroom with hardened walls and window shutters were also part of the project.

This new performing arts center was designed to address a community request for a venue to serve as the centerpiece for arts and culture. With 710 seats, the performing art center has beautiful architectural features enhanced by KCL Engineering’s house lighting design. Aisle lighting and a robust rigging system are attributes also not found in typical school auditoriums. The HVAC system eliminates noise associated with air movement to ensure thermal comfort is provided without sacrificing the experience at an event. The performing arts addition also includes dressing rooms, scene shop, storage area and a new band room.

Charles City New Middle School

Charles City, Iowa

The Charles City School District was committed to ensuring their investment in a new middle school provided students with a learning environment that was based on modern learning and instruction styles. While the architect laid out unique space configurations, the KCL team implemented LED tunable (color temperature changing) light fixtures and abundant IT and A/V resources. To provide a comfortable environment, the HVAC system is an energyefficient geothermal variable refrigerant flow (VRF) system that provides individual classroom temperature control. Energy recovery ventilators provide an efficient way of ventilating the classrooms. The lighting and mechanical systems are utilized to enhance energy efficiency.

Waukee Northwest High School A/V Design

Waukee, Iowa

390,000 sf

Cost

$2,482,879 (Estimated)

$1,505,354 (Actual)

Design of the new 390,000 sf Waukee Northwest High School required a complex A/V package designated as an owner-provided item. KCL Engineering was not involved in the design of the building until a new administration team took over during construction and discovered the A/V system had not yet been addressed. The District also wanted the A/V package to competitively bid due to its magnitude, but had only 50 days to develop specifications and design documentation for bidding.

The District preferred to hire KCL’s experienced Technology team to design a holistic A/V solution entailing classroom kits, a direct view LED video wall, and performance audio systems for:

• All Classrooms

• Commons

• Seminar Area

• Wrestling Room

• Main Gymnasium

Although going from signed proposal to bid documents in 50 days that included the design of over 100 spaces is not typical, KCL was up to the challenge. Despite the time constraints, KCL still carried out our preferred design process to meticulously understand how the owner intended to use each space. Once system performance was defined, a key factor in selecting product was availability in the marketplace to ensure competitive bids would be received. The final bid package was under budget the District has been happy with the user ease and quality of the A/V design. Completion

• Auxiliary Gymnasium

• Cardio Room

• Weight Training

• Multipurpose Room

• Two Softball Fields

• Two Baseball Fields

• Batting Facility

• Team Room at Football Stadium

• Football Stadium

Knoxville New Middle School

Knoxville, Iowa

This new middle school houses 400 6-8 students in a two-story building co-located with the high school. The design features 21st century learning environments with a variety of academic spaces, flexible areas with natural light for students to collaborate in small groups, a courtyard, and Knoxville CSD’s first storm shelter, which also doubles as the band and choir room.

2023 Honoree

The Willdan Group modeled the low temp VAV system with a 43% KWh savings over baseline, which equates to $13,000 savings a year in energy costs.

The Commercial New Construction program provided a rebate to the District due to the significant energy savings.

KCL Engineering designed an innovative energy-efficient low temp VAV system utilizing a packaged unit (rooftop unit + energy recovery) to achieve the low temperature in lieu of ice storage. In a standard 800 – 1000 sf classroom the fan powered VAV box delivers 1000 cfm of air. A low temp VAV air handling unit delivers the required 350 – 450 cfm of ventilation air at 45 degrees to the VAV box and mixes it with 75 degree air pulled from the ceiling plenum. With this system, air handler sizes are reduced by approximately 45% and ductwork sizes by 30% resulting in a very energy-efficient system that is less costly to install.

Dallas Center-Grimes Oak View 7/8 Building Grimes, Iowa

This new $31 million, 165,000 sf middle school was designed with a progressive, growing district in mind. The school will be the first in the state to use Optical LAN to support all data and communications systems. An owner-initiated idea, KCL Engineering aided the District in becoming informed about this emerging technology. KCL Engineering also introduced the District to Billings Public Schools in Montana, who recently converted the 16,000-student district to Optical LAN.

Singlemode fiber offers many benefits over a traditional copper solution:

• Singlemode fiber can transmit data for miles, which means copper distance limitations are no longer an issue.

• Singlemode fiber is much less expensive than Category 6 copper cabling.

• Traditional network requires a 1:1 distribution method. Optical LAN distribution allows for a 1:many method which saves on cost.

• Singlemode fiber eliminates Intermediate Distribution Frame space and the associated power and cooling requirements.

In addition to the notable technology engineering for this school, a long-term, holistic approach was imperative to ensure the building could accommodate a future auditorium, two-story classroom wing, and athletic field amenities.

Southeast Polk CSD - New Stadium

Pleasant Hill, Iowa

The stadium project transformed 52 acres of land on the southwest side of the high school into an expansive, ADA-accessible stadium with a seating capacity of up to 6,200 people. This amenity-rich facility encompasses junior varsity and varsity locker rooms, a standard IAAF eight-lane track, shot put and discus fields, and a synthetic turf infield suitable for football, soccer, and various sports. The multipurpose stadium enhances physical education opportunities and provides student athletes with a feature-packed space. KCL Engineering provided Mechanical, Electrical, and Technology Design Services for this $19 million project, which includes the design of HVAC, plumbing, electrical, and technology systems, as well as participation in design meetings and cost estimation milestones to ensure the success of this dynamic stadium endeavor.

Completion

Various stages of completion, construction, and design

Size

500,000 sf

Makena Beachfront Residential Golf Community

Maui, HI

A world-class private beach front community and golf club with over 490,000 sf of amenities and residential units comprising a 24-acre resort core development.

KCL Engineering provided MEP services for the 100,000 sf beach club, 18,000 sf spa, 1,500 sf beach bar, ten 3,400 sf beach cottages, ten 4,500 molokini residences, eight 2,100 sf multi-family units and thirty multi-family villas. The design is timeless contemporary with sustainable strategies.

Completion

Various stages of completion, construction, and design

Size

24,000 sf average

Gozzer Ranch Golf & Lake Club

Harrison, ID

KCL Engineering is providing MEPT services for numerous 3-story, luxury cabins in Harrison, Idaho located on Lake Couer d’Alene. The design work consisted of a residential VRF mechanical system, interior and exterior custom lighting, plumbing and temperature control systems, fire alarm systems, voice and data communication systems, security access controls, data cabling for CCTV system, and various home automation system controls including advanced audio/video distribution and dimmable lighting.

Wyndemere Senior Living Expansion

Wheaton, IL

An 82,000 sf, 3-story expansion for 33 one and two bedroom independent living apartments ranging from 1,000 - 1,900 sf. The project aims to deliver the lifestyle amenities sought by today’s seniors with exquisitely designed apartments with individually controlled heating and cooling, high-end meeting spaces, rooftop bar and lounge, and a salt water pool overlooking landscaped grounds. Underground parking is also part of the new addition. A 24-hour emergency response systems helps residents have peace of mind. Completion

Completion

Various completion dates (2022 - 2024)

Quartet

Bettendorf, IA | 2022

Cedar Stone

Cedar Falls, IA | 2023

Holland Farms

Norwalk, IA | 2023

Prairie Trail

Ankeny, IA | 2024

Hickory Trails

Iowa City, IA | 2024

Pinnacle Prairie

Cedar Falls, IA | 2024

Size

400,000+ sf total volume

600+ total living units

Nelson Construction & Development Senior Housing Communities

Various Locations in Iowa

Nelson Construction & Development has built a partnership with KCL Engineering to deliver MEP solutions that balance operability, constructability and value in ways previous consultants and contractors could not. KCL’s design utilizes Air Source VRF to maintain resident comfort with efficiency and health conscious controls. In the next year, KCL’s design team will deliver three senior living community projects for Nelson.

Completion

Smash Park

Pella, Iowa

22,000 sf

KCL Engineering provided MEPT design services for a new 22,000 sf facility to be used by Smash Park, a trend-setting eatertainment venue with multiple Midwest locations. The company’s location in Pella, Iowa consists of indoor and outdoor recreational courts, craft food and dining experiences, room for a variety of games, and large spaces for parties and events.

The building is equipped with energy-efficient and intelligent features such as LED lighting, lighting controls, and an energy-efficient variable air volume HVAC system with direct digital controls. Additionally, technology design was administered for fire alarm systems, voice/data cabling, access control/CCTV systems, and A/V systems.

Completion

Arnolds Park Roof Garden

Arnolds Park, Iowa

17,9107,000 sf

For decades the Arnolds Park Roof Garden was known throughout the Midwest for marquee musical events. In 2019, a new Roof Garden Ballroom was constructed to ensure this iconic component of the Arnolds Park fabric would serve the community for decades to come.

The design pays homage to the original historic features to recreate the same rich experience that has been enjoyed for generations. Modernized amenities including state-of-the-art performance lighting, sound, and technology, energy-efficient HVAC system comprised of gas fired dx cooled roof top units, multiple serving bars and catering kitchens, and large motorized partition provide optimal operation for a wide variety of uses.

Completion

Oak Park Restaurant

Des Moines, Iowa

Oak Park is a masterful fusion of refined Prairie-style architecture, warm hospitality, a worldclass wine program, and modern American cuisine.

The mechanical design prioritizes individualized temperature control through the use of low profile VRF fan coil units and linear air diffusers selected to minimize impact to the space aesthetics while providing accurate temperature control in the varying building exterior exposures. Two roof mounted DOAS units handle ventilation for the building. This ventilation air doubles as makeup air for kitchen exhaust hoods, creating negative air pressure in the kitchen to contain odors.

The lighting design plays a big part in the diner’s experience. Low-level illumination, recessed or hidden light sources in warm color temperature, seating-level scone luminaires, and a feature moment chandelier all extend the unique architecture of the space.

Completion

2018

Size

111,190 sf (Hilton Garden Inn)

7,500 sf (Johnny’s Steakhouse)

124 rooms

Hilton Garden Inn & Johnny’s Italian Steakhouse

Sun Prairie, Wisconsin

KCL Engineering’s team pioneered geothermal-based HVAC systems for Heart of America Group hotel properties. This heating and cooling strategy eliminates a PTAC unit in each room and associated compressor noise and temperature variances. The result is a more comfortable guest experience. The Hilton Garden Inn at Sun Prairie is a six-story, 124-room hotel with 10,000 sf of meeting and pre-function space.

Located inside Hilton Garden Inn is Johnny’s Italian Steakhouse, a fine dining concept with traditional supper club ambiance.

To date, KCL Engineering has designed six hospitality properties for Heart of America Group using renewable energy sources.

Fairfield Inn & Suites, Hyatt Place Hotel and Burger Shed buildings

Geothermal Well Fields

Completion

2017 - 2020

Size

80-ton well field serving Hyatt Place Hotel and Burger Shed

80-ton well field serving Fairfield Inn & Suites

Hospitality Development with Shared Geothermal Well Field

Altoona, Iowa

An example of our application of energy-efficiency in new and different ways is the introduction of geothermal HVAC systems in Heart of America Group hotel and restaurant properties. The Fairfield Inn and Suites in Altoona is served by a geothermal well field. Soon after this property opened, HOA began development of two adjacent properties; Hyatt Place Hotel and Burger Shed. These buildings share a geothermal well field. Traditionally these buildings would be installed with disposable mechanical equipment and very little concern for long-term building ownership. KCL helped our client break status quo with design decisions that are financially responsible and sustainable.

Westfield Office Complex

West Des Moines, Iowa

180,000 sf

The Westfield Office Complex for R&R Realty exhibits modern, urban workplace amenities and is purposefully designed to help tenant companies enhance corporate culture and attract top talent. The complex consists of two 80,000 sf, four-story office wings and a 20,000 sf connecting commons. The building is designed to accommodate a variety of businesses with flexible systems for easy adaptation of space needs should tenants change.

Rooftop air handling units with gas heat and dx cooling with zone level reheat boxes give the end users the highest comfort and the owner future flexibility.

Lighting strategies incorporate R&R’s signature blue color through interior accents and exterior facade washing. Linear fixtures provide continuity between in-ceiling illumination woodpaneled feature walls.

MidAmerican Energy Office Building Renovation

Urbandale, Iowa

This expansive workplace modernization provides MidAmerican Energy team members with multiple workstation, office, collaboration, and large training arrangements.

Electrical design factored in workstation configurations with some areas receiving power and data throughout the floor for maximum flexibility. The entire building was upgraded with LED lighting along with specialty lighting to accent/highlight company core principle icons. Programmed lighting controls provide simple operation with local user overrides. Daylight harvesting occurs in open offices along perimeter windows and at skylights in main corridor. The mechanical system includes Variable Refrigerant Flow (VRF) fan coil units in the enclosed enclave areas to allow flexibility with heating/cooling zones, compared to large heat pumps that serve open office spaces. This HVAC hybrid provides a high efficiency system designed to provide a comfortable environment across many space types and usage needs.

In addition to modern workspaces, an elaborate “conference center” was designed. A platinum level audio-visual system was custom designed based on the corporation’s diverse needs. The system includes a Crestron control system that is robust enough to control all lighting, audio, and visual with high flexibility to enable smaller meetings to occur simultaneously.

A new, larger security operations center includes a vast display wall and provides staff with more room and improved technology.

A unique mechanical solution incorporated into this project is a new mezzanine and equipment platform at the request of the owner for better service accessibility for MEPT equipment. The design team derived a concept to have an equipment platform above the enclave spaces due to the large plenum space within the building. The equipment platform is where the majority of the HVAC, electrical and data equipment are located and it is fully accessible with stairs/lifts, walkways, and railings.

Completion

2018- present

Size

6,000 - 40,000 sf

Reference

Ryan Stansbury Project Manager

MidAmerican Energy 712-277-7618

rtstansbury@midamerican.com

MidAmerican Energy Service Centers

Statewide, Iowa

KCL Engineering has provided MEPT services for numerous service center renovations to provide updated open offices, ready rooms, garages, and support spaces matching company standards and finishes. Building renovations have included new high-efficiency HVAC systems, LED lighting fixtures, and lighting control systems. Dedicated IT and security rooms were created for consistent technology equipment and infrastructure spaces across each location.

MidAmerican Energy Service Center Projects

• Rockwell City Service Center Renovation, Rockwell City, IA

• Sheldon Service Center Renovation, Sheldon, IA

• Storm Lake Service Center Renovation, Storm Lake, IA

• Audubon Service Center HVAC Upgrades, Audubon, IA

• Ottumwa Service Center Remodel, Ottumwa, IA

• Oskaloosa Service Center Remodel, Oskaloosa, IA

• Oskaloosa Service Center Welding Exhaust Study, Oskaloosa, IA

• Ottumwa Service Center Welding Exhaust Study, Ottumwa, IA

Additional MidAmerican Energy Projects

• Neal North Generation Facility Breakroom/Locker Room Renovation, Sioux City, IA

• Neal North Generation Facility Control Room Remodel, Sioux City, IA

• Neal South Renovations, Sioux City, IA

• Davenport Office Building Renovation, Davenport, IA

• Des Moines Training Facility Commissioning, Adel, IA

• Des Moines Urbandale Corporate Office Renovation, Urbandale, IA

• Des Moines Urbandale Corporate Office 2 Renovation, Urbandale, IA

• Ruan 5th Floor Renovation – Printing Room Cooling, Des Moines, IA

First National Bank Renovation

Ames, Iowa

A refreshed clientele experience in a modern banking environment drove design decisions for this complete building renovation. The result includes new entrances with abundant natural light, new circular teller pod formation, ample private meeting spaces, large conference rooms, and new finishes throughout.

KCL Engineering’s design included upgrade of all electrical, plumbing, and HVAC systems. The HVAC system consists of rework of existing variable air volume air boxes and installation of new variable refrigerant systems for additional zone temperature control for spaces not served by the variable air volume air handling equipment. A new air cooled chiller was installed to replace a failing chiller as well as energy recovery ventilator to improve building ventilation.

Electrical improvements included upgraded distribution and grounding system with surge protection to meet current NEC codes. Lighting improvements included new LED lighting for both general wayfinding and aesthetics to accompany architectural features. New automatic lighting controls were designed for both local and building-wide control.

ADDITIONAL COMMERCIAL EXPERIENCE

KCL Engineering Headquarters, West Des Moines, IA

Renovation of 10,000 sf historic auto shop and showroom into commercial office space for KCL Engineering. All new mechanical electrical, data, and plumbing was installed throughout. A unique component of the interior layout is the inclusion of DIRTT modular architectural systems for all conference rooms and break area.

Cognizant Technology Solutions, Des Moines, IIA

Three entire floors of Ruan Two were remodeled to accommodate a highly sophisticated technology company. The scope included re-zoning mechanical systems and a combination of reuse and replacement of existing equipment. Two new data rooms were designed with standalone cooling systems and redundancy. Electrically the space required data storage and workstations to be served by a generator. Unique features include biometric scanners for security and speciality lighting fixtures to enhance workplace aesthetic.

MidAmerican Energy Davenport Office Renovation, Davenport, IA

A 200,000 sf, multi-phased renovation into an open workplace environment. Mechanical and electrical systems were on a high rise office building began with a conditions assessment of all systems and resulted in significant mechanical system upgrades. The mechanical central plant was upgraded with new boilers, chillers, cooling towers, fluid cooler, system pumps, domestic water booster pumps and built up custom air handler modifications. The 25-year old proprietary BAS was upgraded to a new nonproprietary open protocol system to provide better serviceability and user control.

Studio MELEE Architectural Office, West Des Moines, IA

Renovation of 4,500 sf existing building into open workplace environment, conference and gathering areas, and new restrooms. Mechanical design included new furnace and plumbing for sinks and restrooms. Architectural and task lighting creates a well-lit and inviting ambience.

Lane Transit District - Operations and Command Center Renovation and Addition, Eugene, OR

Renovation and expansion of the operations areas within LTD’s Glenwood Headquarters. The envisioned improvements feature contemporary facilities for operations dispatch, operator report sections, training facilities, restrooms, locker spaces, storage areas, and employee break/rest zones. The project will introduce a new entrance and landscape enhancements. With a construction budget set at $8.1 million, the project includes 7,000 sf of new construction and 7,500 sf renovation. New electrical connection for additional x-ray machine.

Dupaco Community Credit Union, Multiple Locations

Dupaco continues to seek ways to evolve their business with customers. KCL matched and surpassed those desires by modernizing the internal infrastructure of their office spaces, providing MEPT solutions for tenant improvements. A continued partner with Dupaco, KCL Engineering has worked within their design guidelines for four Iowa-based projects, including a two-story, 10,000+ sf learning lab branch tasked with teaching Dupaco clients through hands-on demonstrations of Dupaco desktop, tablet and mobile deposit services.

Dupaco Community Credit Union – Renovation, Cedar Rapids, IA

Dupaco Community Credit Union – New Construction, Waukee, IA

Dupaco Community Credit Union – New Construction, Grimes, IA

Dupaco Community Credit Union – Renovation, Dubuque, IA

Union 315 Mixed Use Building, West Des Moines, IA

Located within a historic retail, commercial, and residential neighborhood, this new 3-story, 23,750 sf building includes ground-floor retail, second-floor commercial space, and 10 residential units on the top floor. The building is unique with a double-height first story level showcasing abundant glass for natural light and pedestrian connections.

Completion

Pleasant Hill Public Safety Building and Satellite Fire Station

Pleasant Hill, Iowa

26,000 sf (Public Safety Building)

6,000 sf (Fire Station)

Awards

ASHRAE - Midwest RegionTechnology Award

The City of Pleasant Hill prioritized energy-efficiency when selecting consultants and designing their two new public safety buildings to accommodate the community’s growing population.

The Public Safety Buildings includes police administration, training rooms, locker rooms and weight room, covered area parking, sally port, evidence lab, booking and temporary holding rooms, evidence storage, community education room and emergency operations center. The design included an energy efficient Geothermal VRF HVAC system and emergency generator backup of mission-critical areas and systems.

The satellite fire response station is co-located on the same site and serves short and long-term needs. Designed with all components necessary for a 24/7 operational station, the satellite location serviced all fire response needs while the primary station was renovated and expanded.

Ankeny Fire Station #3

Ankeny, Iowa

A 2019 MidAmerican “Excellence in Energy Efficient Design” awarded project, this new 12,260 sf fire station features three drive-through apparatus bays with gas-fired radiant heat and two low velocity, high volume fans to circulate air, as well as a gas detection and evacuation system. Living quarters, administrative and support spaces are served by a geothermal system with heat pumps. Energy-efficient LED light sources are throughout the facility and a standby generator provides backup power. Special technology systems include access control, public address, fire alerting system, and voice/data.

Triumph Park

Waukee, Iowa

The 66-acre Triumph Park features a sports complex with 12 softball/baseball fields, practice areas, concessions, parking, an 11-acre pond, green spaces and trails. At the center of Triumph Park is a 15,000-square-foot EPIC Inclusive Playground with mobility device access at various levels, rubberized surfacing, sensory features, STEM panels, shade structures, and accessible parking and restrooms included. It is situated near the Greater Iowa Credit Union Miracle League® Field and an ADA-compliant fishing pier.

Performance-leading LED sports lighting illuminates every field. Online, live and recorded game video broadcasting technology provides unprecedented remote access to games. Creative pathway and aesthetic lighting strategies create a cohesive environment by incorporating all portions of the park; playground, pond, fishing pier, and monuments and support structures.

Completion

Riviera Stage & Riverview Park

Des Moines, Iowa

The reinvention of Riverview Park pays homage to the site’s history as an amusement and attractions destination. Today, visitors can experience a unique pedestrian bridge, custom playground, and outdoor concert venue – all with an amusement park theme. New specialty lighting enhances the entrance sign and walking bridge, donor display and history plaza, custom playground, and pathways.

The showpiece of the park is the $1 million Riviera Stage. KCL Engineering designed new electrical distribution capable of powering lighting and audio/video equipment required for large concerts. Permanent, programmable color-changing canopy lighting fastens to the two 60-foot steel arches allowing for custom show and ambience lighting.

KCL Engineering provided power distribution, electrical hook-ups, site lighting, plumbing, and Completion

amenities. This innovative plaza design includes gathering areas and pedestrian walkways, spray ground and ice rink, and food truck/vendor area. A support building houses skate rental, gender neutral restrooms, mechanical room, and covered seating. The site is enhanced with artistic lighting columns, public wi-fi, and security cameras and access control tied into the existing city system.

HEALTHCARE QUALIFICATIONS

Facility Types

Hospitals

Academic Medical Centers

Clinics

Assisted Living

Cancer Centers

Medical Office Buildings

Pharmacy

Healthcare Services

Laboratories

Endoscopy

Negative Pressure Isolation

Operating / Transplant Rooms

Outpatient Care

Pediatric Care

Pharmacy

Sports Medicine

Radiology

(X-Ray, CT, Ultrasound, MRI, Mammography)

HEALTHCARE PROJECT

EXPERIENCE

MercyOne Siouxland - Pharmacy Upgrade, Sioux City, IA

MercyOne in Sioux City was faced with the challenge of bringing a pharmacy constructed in 1982 into compliance with the new USP Standards 797 and 800, in order to be certified to continue to make IV’s and chemotherapy within their facility. Mercy had made minor modifications to bring their cleanrooms into compliance with the 2008 version of USP 797. However, additional requirements from the latest versions of the standards and the addition of USP 800 led to a need to remodel the cleanrooms, including the addition of a dedicated cleanroom air handling unit, pressure controls, and an environmental monitoring system. Eventually the decision was made by the hospital administration to remodel the entire pharmacy and support spaces. This remodel affected not only the pharmacy department, but four other departments in the hospital.

MercyOne Centerville - HVAC Masterplan, Centerville, IA

An HVAC master plan included review of the entire facility to develop recommendations for a multi-year HVAC system improvements.

Central Utilities

Chilled Water Systems

Boiler Plants

Emergency Power

MercyOne Dakota Dunes Laboratory Relocation, Dakota Dunes, SD

This project involved relocating a laboratory from an unsuitable space to a medical office building. It required coordination of new and existing equipment for power, data, plumbing, cooling, and exhaust. Several dedicated exhaust ducts were added, cooling capacity was increased, and a new rooftop unit was installed for ventilation. Existing ductwork was adjusted through field measurements and 3-D modeling. Utility chases were coordinated to minimize visual impact, and floor drains were planned for current and future needs, such as automated lines. The project came in as budgeted by the Construction Manager.

Sandy Health Clinic Renovation and Addition, Sandy, OR Renovation and addition to a 6,700 SF existing retail/office space into a medical health clinic that includes exam rooms, counseling rooms, dentistry areas, labs and support spaces. Scope included assessment of existing HVAC systems and design of new systems to healthcare standards.

MercyOne Pharmacy Upgrade

Family Dental Clinics - Multiple with Downing Construction

Ankeny Children’s Dental Clinic, Ankeny, IA

Edwards & Smith Family Dentistry Clinic, Waterloo, IA

Jones County Family Dental Clinic, Anamosa, IA

The Nest Pediatric Dentistry, Waukee, IA

Capital View Dental, Des Moines, IA

North Ankeny Family Dentistry, Ankeny, IA

Dyersville Family Dental, Dyersville, IA

In a design-build partnership with Downing Studio and Downing Construction, KCL Engineering provides mechanical and electrical design services for multiple family dental clinics, including new construction and renovations.

For each clinic, the electrical design includes electrical service and distribution to support power needs across the facility, including dental chairs, hygiene equipment, x-rays, sterilization labs, and other equipment. LED lighting is designed throughout the facility, with occupancy controls in non-patient care areas. Patient room lighting is specifically designed to meet the required foot-candle levels for treatment areas. The mechanical design includes zoned HVAC systems and piping to dental equipment, including vacuum, compressed air, med-gas, and water.

University of Iowa Hospitals and Clinics - Helipad Fire Protection System Upgrade, Iowa City, IA

University of Iowa Health Care has an active helideck with a fire suppression system requiring an upgrade to meet new regulation requirements. KCL conducted a study to determine the feasibility, project scope and budgetary needs to accomplish these upgrades. The proposed solution entails removing the existing system and installing a new AFFF system in its place. The project will also include upgrades to storm water retention and contaminant capture to prevent fuel from entering the local watershed.

Iowa National Guard - Building S-70 AMEDD Dental Clinic, Camp Dodge, Johnston, IA

Interior renovation and exam room addition. Electrical design included replacement and relocation of existing interior lighting with new LED lighting. Lighting controls were reused where available and added for new exam and conference rooms.

Relocation of existing power receptacles and data devices and addition of new receptacles and data devices where needed. New electrical connection for additional x-ray machine.

Portland Community College - Cascade Campus Nursing and EMS Simulation Theater, Portland, OR

Conversion of a 2,250 sf existing classroom and conference space into an EMT and nursing simulation lab and support spaces. The renovation required a facility assessment to determine which systems could be re-purposed and what systems would require selective demolition and redesign. Power distribution required coordination with simulation lab equipment’s specified requirements and the space received upgraded interior lighting with controls.

Oregon Health & Science University - Child Development and Rehabilitation Center Cooling Replacement, Portland, OR

Mechanical engineering services for replacement of an air handling unit cooling coil and its associated DX cooling system.

Education Service District 112 - Mental Health Facility Renovation, Vancouver, WA

Renovation of a 15,000 sf existing warehouse space into a mental health facility, including therapy rooms, offices, meeting rooms and support spaces. Demolition of the existing HVAC system within the area of renovation was required to design a new heating, cooling and ventilation system required for the change of use of the space.

Rendering provided by
Ankeny Children’s Dental Clinic

Completion

2022 - current

Team Members

Keith Stone

Chris Davis

Jon LaCroix

Mark LaCroix

Robert Dusenberry

Josh Sieglaff

Michael Lortz

Client Reference

Kevin DeRonde

Chief Executive Officer

Mahaska Health (641) 672-3392 kderonde@mahaskahealth.org

Pat Stockton

Owner’s Representative (515) 975-7205 pat@pstockton.com

Mahaska Health - Multiple Projects

Oskaloosa, Iowa

Expansion Master Plan & Facility Assessment (2023)

The master planning process started with a facility assessment of all building systems to identify code compliance, short term maintenance issues, and ability to support master plan initiatives for major renovations and building addition. Several intensive workshops were conducted involving CMAR, Architect, KCL Engineering, Mahaska Health staff, and owner’s rep to identify how to reconfigure and add onto the hospital to meet their operational goals. Project prioritization, sequencing, and funding alignment resulted in a seven-phase master plan which included department relocations, building circulation revisions, site circulation improvements, new main entrance, ED renovation and addition, and surgery expansion.

Laboratory Buildout (2023)

2,900 SF remodel of an existing space into a hospital laboratory. Electrical design included power distribution and equipment connections for both normal and critical power systems, lighting design and controls, and extending the fire alarm system into the new space. Mechanical design included extending existing hot/chilled water system to accommodate new VAV style terminal air boxes, installing new local thermostats for each VAV zone, and installing new plumbing fixtures connecting to existing domestic and sanitary piping systems.

Surgery Improvements (2024)

Conversion of existing rooms into post-operation recovery rooms and making necessary modifications to the mechanical, electrical, and plumbing systems to accommodate new programming and specialty needs.

Pharmacy HVAC Improvements (2024)

To reduce the particle count in the Ante Room, an exhaust grille was added near the door of the Ante Room to capture particles as staff enter from the Pharmacy Work Area. A humidifier was added to the air handling unit and pneumatic controls for the air handling unit were replaced with digital controls to improve temperature and humidity control in the pharmacy.

Chilled Water Plant System Enhancement (2024)

Chilled water was supplied to the medical office building by piping connected to the end of the run in the basement mechanical room. This piping was far too small to supply the basement mechanical room, so separate piping from the chilled plant was routed to the medical office building, allowing sufficient chilled water to be supplied to the medical office building air handling unit and the basement mechanical room air handling units. The secondary chilled water pumps were also replaced to match the flow rate of the primary chiller pumps.

Completion

2025 (estimate)

Size

12,500 sf

Team Members

Nick Johnson

Jake Cunliffe

Chris Davis

Client Reference

Garen Carpenter

Chief Executive Officer

Van Buren County Hospital 304 Franklin Street Keosauqua, IA 52565 (319) 293-8725 garen.carpenter@vbch.org

Van Buren County Hospital - Emergency Department and Dietary Renovations

Keosauqua, Iowa

This modernization project involves renovating approximately 12,500 square feet of hospital space, including the Emergency Department, Dietary areas, and support spaces. The existing mechanical system’s rooftop unit will be replaced with a new unit to transition the hospital from a steam system to an electric heating system. This new unit will also ensure compliance with required ventilation guidelines. The electrical service will be upgraded throughout the entire facility to meet increased demand. Life safety and emergency loads will be connected to the recently installed generator. Additionally, high-efficiency LED lighting will be installed throughout the renovation, along with updates to the fire alarm, nurse call, and security systems for the Emergency Department.

Completion

2024 (estimate)

Size

1,000 sf

Team Members

Robert Dusenberry

Michael Lortz

Keith Stone

Nick Johnson

Client Reference

Matt Miller

Senior Design Project Manager University of Iowa (319)-470-4061 matthew-miller-3@uiowa.edu

University of Iowa Hospitals and Clinics - MRI Replacement

Iowa City, Iowa

This project entails removing an outdated MRI machine and installing a new one in its location. Key aspects include managing delivery logistics, updating room finishes, and renovating critical systems. The mechanical design involves analyzing existing air and chilled water systems, along with emergency vent systems, and designing new systems as needed to align with the new equipment. The electrical work includes upgrading MRI room lighting to LED fixtures and renovating local electrical systems to accommodate both current and future power requirements.

HIGHER EDUCATION QUALIFICATIONS

Facility Types

Student Housing

Athletic Facilities

Academic Libraries

Academic Classrooms

Vocational Training

Specialty Services

Facility Assessments

Energy Audits

Photovoltaic Array Sizing

Sports Lighting

Arc Flash Studies

Standards Consulting

Iowa Institutions

University of Iowa

Iowa State University

University of Northern Iowa

Drake University

Luther College

Central College

Mercy College of Health Sciences

Northeast Iowa Community College

North Iowa Area Community College

Northwest Iowa Community College

Southeastern Community College

HIGHER EDUCATION PROJECT EXPERIENCE

University of Iowa, Iowa City, IA

National Advanced Driving Simulator (NADS) AHU Replacement

Mossman Business Services Building RTU Replacement

Iowa State University, Ames, IA

Richardson Court Student Housing Restroom Remodels

Parks Library Restroom Remodels

Tau Kappa Epsilon Fraternity Renovation and Addition

Phi Gamma Delta Fraternity Renovation and Addition

Beta Theta Pi Fraternity Renovation and Addition

Extension Office Building

State Gym Renovation

Maple Willow Larch Rec Field Lighting

Ames/ISU Ice Arena LED Lighting Upgrade

University of Northern Iowa, Cedar Falls, IA

Kamerick Art Building Lighting Retrofit

Bartlett Hall Commissioning

Campus Energy Audits - 5 Buildings

Drake University, Des Moines, IA

Shivers Basketball Practice Facility

Drake Library New Finishes and Decorative Lighting

Aliber Hall Study Hall

Des Moines Public Schools Community Stadium

Luther College, Decorah, IA

Gerdin Recreation Center Renovation

Central College, Pella, IA

Cox-Snow Music Center Renovation

Facilities Management Building

Mercy College of Health Sciences, Des Moines, IA

Mercy Court Student Housing Apartments

Northeast Iowa Community College, Peosta and Calmar, IA

Student Union Remodel and Addition

Ambulatory Simulation Laboratory

Ag Technologies Building

Wind Turbine and Welding Laboratory Renovation

Drake University - Shivers Basketball Practice Facility

HIGHER EDUCATION EXPERIENCE

Buena Vista University, Storm Lake, IA

New Student Housing

North Iowa Area Community College, Mason City, IA

Gymnasium Relighting

Pappajohn Business Center

Kitchen/Dining Room Addition and Remodel

Northwest Iowa Community College, Sheldon, IA

Building D - Automotive Technologies Renovation

Building C - Welding Lab Renovation

Southeastern Community College, West Burlington, IA

Vocational Tech Building

University of South Dakota, Vermillion, SD

Wellness Center Expansion

University of Oregon, Eugene, OR

A/E On-Call

Knight Library Master Plan

Knight Library Testing Center

Willamette Hall Wet Lab Remodel

Lillis Hall Custodial Office Remodel

Hendricks Hall Elevator Modernization

Esslinger Hall Classroom Remodel

Heritage Surge Project

McMorran House - HVAC and ADA Upgrades

Straub Hall Sleep Lab

Barnhart Hall RA Units Remodel

Tree Tops Assessment

Early Childhood Cares Preschool

Jordan Schnitzer Museum of Art - Feasibility Study

Oregon State University, Corvallis, OR

A/E On-Call

Pride Center Renovation

Oak Creek Greenhouse

University of Portland, Portland, OR Lund Dining Hall

Portland Community College, Portland, OR

A/E On-Call

Rock Creek Building 3 - HVAC and ADA Upgrades

Public Safety Office Remodel - Cascade Campus

Cascade Campus Nursing and EMS Simulation Theater

Lane Community College, Eugene, OR

A/E On-Call

Regional Pickleball Complex

United Hawaii College, Hilo, IA

Facility Assessment and Building 2 Renovation

University of Hawaii-Hilo, Hilo, HI

Student Housing Air Conditioning and PV Array

Pacific Aquaculture Facility

Iowa State University - Maple Willow Larch Recreation Field Improvements
Oregon Coast Community College, Newport, OR Facility Assessments

Buena Vista University - New Student Housing

Storm Lake, Iowa

Designed to meet the evolving needs of today’s students, this new four-story, apartment-style residence hall will offer three different fully furnished room styles, with all units having selfcontained heating and cooling units with individual temperature-controls and code-required ventilation, kitchenettes, private bedrooms, and private bathrooms. Building amenities also include open and private social lounges, study spaces, meeting rooms, laundry facilities, fitness center, and three elevators. Completion

Completion

University of South Dakota Wellness Center Expansion

Vermillion, SD

An expansion of the Wellness Center adds 45,800 sf to the facility to house an indoor 50-meter competition pool and seating for 400 people. Support spaces include athletic and recreation locker rooms, offices and wet classroom.

Several other components of the expansion include:

$25

Reference

Brian Muehlbeier – Sr. Construction

The University of South Dakota 605-202-1301 (mobile) brian.muehlbeier@usd.edu

• A 40-foot by 25-foot wellness pool

• Wet classroom

• Hot tub that accommodates 25 users

• Steam room

• Athletic locker rooms

• Expanded wellness locker rooms

• Meet management rooms

• Coaches’ offices

• Lifeguard rooms

• ‘NinjaCross’ – a fully customizable obstacle course that can be raised or lowered from the ceiling to create three-dimensional challenges for swimmers.

The HVAC system for the building utilizes a high efficiency combined chilled water and heating water system. This will feature a heat-recovery chiller to capture rejected heat from cooling and apply it toward the pool heating system for added efficiency to achieve Green Globes requirements. The boiler system consists of (2) 4,000 MBH condensing boilers sized for redundancy and initial pool fill requirements. Pool area HVAC is provided by custom rooftop units using the building’s chilled water / heating water systems. The rest of the building is served by chilled water / heating water fan coils.

University of Hilo-Hawaii –Student Residence Cooling, PV Array, and Battery Storage, Hilo, Hawaii

$4,971,259 (cost opinion)

$4,959,000 (bid amount)

For use by the public, a maker space includes 3D printer, laser cutter/engraver, CNC routers, 3D scanning technology, computer programming, sewing machine and art supplies, and a variety of hand tools. A demonstration kitchen provides culinary literacy and health opportunities. Completion

KCL Engineering providing technology engineering for this new, award-winning 107,000 square foot library. The audio-visual systems encompassed general area information signage, classrooms, conference rooms and large scale partitionable meeting spaces. Crosscoordination was required with various design consultants to achieve lighting control and life safety systems integration.

Completion

Size

338,000 SF

Reference

David Mason

University of Oregon Design & Construction 541.346.5679 dsmason@uoregon.edu

University of Oregon –Knight Library Master Plan Study

Eugene, Oregon

New comprehensive vision and plan for the future of the University of Oregon’s historic Knight Library, which is listed on the National Register of Historic Places and lives within the heart of the University’s campus. The new master plan will respond to the needs of a contemporary research facility, and advance the University’s mission of marrying historic context with innovation to meet the needs of tomorrow’s scholars and students.

The team will present opportunities for advanced technology integration, infrastructure improvements and enhanced learning environments in their final deliverable. The master plan is scheduled to be completed in 2023 with anticipated improvements kicking off in 2024.

Additional University of Oregon Projects

Knight Library Testing Center

Willamette Hall Wet Lab Remodel

Lillis Hall Custodial Office Remodel

Hendricks Hall Elevator Modernization

Esslinger Hall Classroom Remodel

Heritage Surge Project

McMorran House - HVAC and ADA Upgrades

Straub Hall Sleep Lab

Barnhart Hall RA Units Remodel

Tree Tops Assessment

Early Childhood Cares Preschool

Jordan Schnitzer Museum of Art - Feasibility Study

Completion

Construction took place over two consecutive summers while the buildings were not utilized.

Summer 2017 - Phase 1

Summer 2018 - Phase 2a/2b

Size

24 new restroom groups in 6 buildings - Barton (1916), Birch (1922 & 1925), Freeman (1916), Lyon (1914), Roberts (1936), and Welch (1929)

Reference

David Blum

Project Manager

dblum@iastate.edu 515-294-8461

Iowa State University –Richardson Court Restroom Remodels

Ames, Iowa

Multi-phased renovation of existing restrooms in historic dormitory buildings on Iowa State’s campus, including Barton, Birch, Freeman, Lyon, Roberts, and Welch.

The nearly 100-year-old buildings had not received major restroom upgrades since the 1960s. Prior to the upgrade, the restrooms did not meet current ADA requirements, were not well ventilated, did not provide code-required fixture counts, and were not a convenient or private restroom/shower option for students.

The goal of this project was to create private restroom and shower stall concepts while also stacking the restrooms on each floor (which was not the case in every building) to achieve mechanical and electrical system efficiencies. The new restroom concept and floor stacking required additional space, which was achieved by incorporating an adjacent dormitory room.

The upgrade effort consisted of removing all existing plumbing fixtures, steam heat, exhaust systems, fire sprinklers, lighting, and receptacles. All associated piping, ductwork, wiring, and conduit were removed back to the main source. Close coordination within the existing structure was required to allow new systems to be routed through existing floors.

TECHNOLOGY DESIGN

Technology Services

Telecommunications Infrastructure

Traditional Distribution (Copper/Fiber)

Passive Optical LAN Carrier coordination (Fiber/Copper Services)

Diverse and Redundant Service

Planning

Telecommunication Space Build Outentrance facility, equipment rooms, floor distributors

Audio and Video Systems

Performance Spaces Classrooms

Commons Areas

Athletic/Competition Spaces

Telecommunications Grounding and Bonding

IP Telephony

Access Control and Intrusion

Detection

Team Members

Chris Davis, RCDD, DCDC Chief Technology Engineer

James Harris, CTS-D Senior Technology Engineer

Video Surveillance

General Purpose Paging and Intercommunications

Centralized Clock Systems

Fire Detection and Alarm

Emergency Communications Systems

Distributed Antenna Systems

Justin Lorenz, CTS-D Technology Engineer

Brandon Chandler Technology Designer

Kai Whitt, RCDD Technology Designer

David Pivonka Technology Designer

Jon DeWild, RCDD Technology Designer

Omer Alnaeemi Technology Designer

T-Mobile- Immersive Igloo

Missoula Public Library - Maker Space and Demonstration Kitchen

Missoula, Montana

KCL Engineering providing technology engineering for this new, award-winning 107,000 square foot library. The audio-visual systems encompassed general area information signage, classrooms, conference rooms and large scale partitionable meeting spaces. Crosscoordination was required with various design consultants to achieve lighting control and life safety systems integration.

For use by the public, a maker space includes 3D printer, laser cutter/engraver, CNC routers, 3D scanning technology, computer programming, sewing machine and art supplies, and a variety of hand tools. A demonstration kitchen provides culinary literacy and health opportunities.

Completion

T-Mobile - Overland Park Renovation

Overland Park, Kansas

Reimagined collaboration areas create exceptional user experiences with robust technology integration and magenta branding. T-Mobile’s 12,500 sf atrium event space boasts a premium audio-visual system including a giant LED wall, speech and music audio system, and seamless integration with Cisco WebEX video conferencing.

Additional revamped spaces in this T-Mobile corporate location include a more intimate pubstyle gathering area with tiled video wall and an “igloo” collaboration space with 360 degree projection and video conference integration

Completion

2023

Size

163,000 sf

T-Mobile - 2340 Dulles Office Renovation

Herndon, Virginia

Technology Engineering design for audio/visual, telecom, and security systems as part of an expansive, 8-story commercial office renovation project. KCL Engineering’s scope of work included understanding dozens of different space usages within the building and coordinating with the architect and project team on system requirements including equipment and device functionality, power, data, and cooling with documentation to build a complete technology package to T-Mobile standards. Security design involved an integrated system entailing access control, door hardware coordination, and infrastructure planning for vendor-provided cameras all in an effort to provide a safe but convenient working environment.

Size

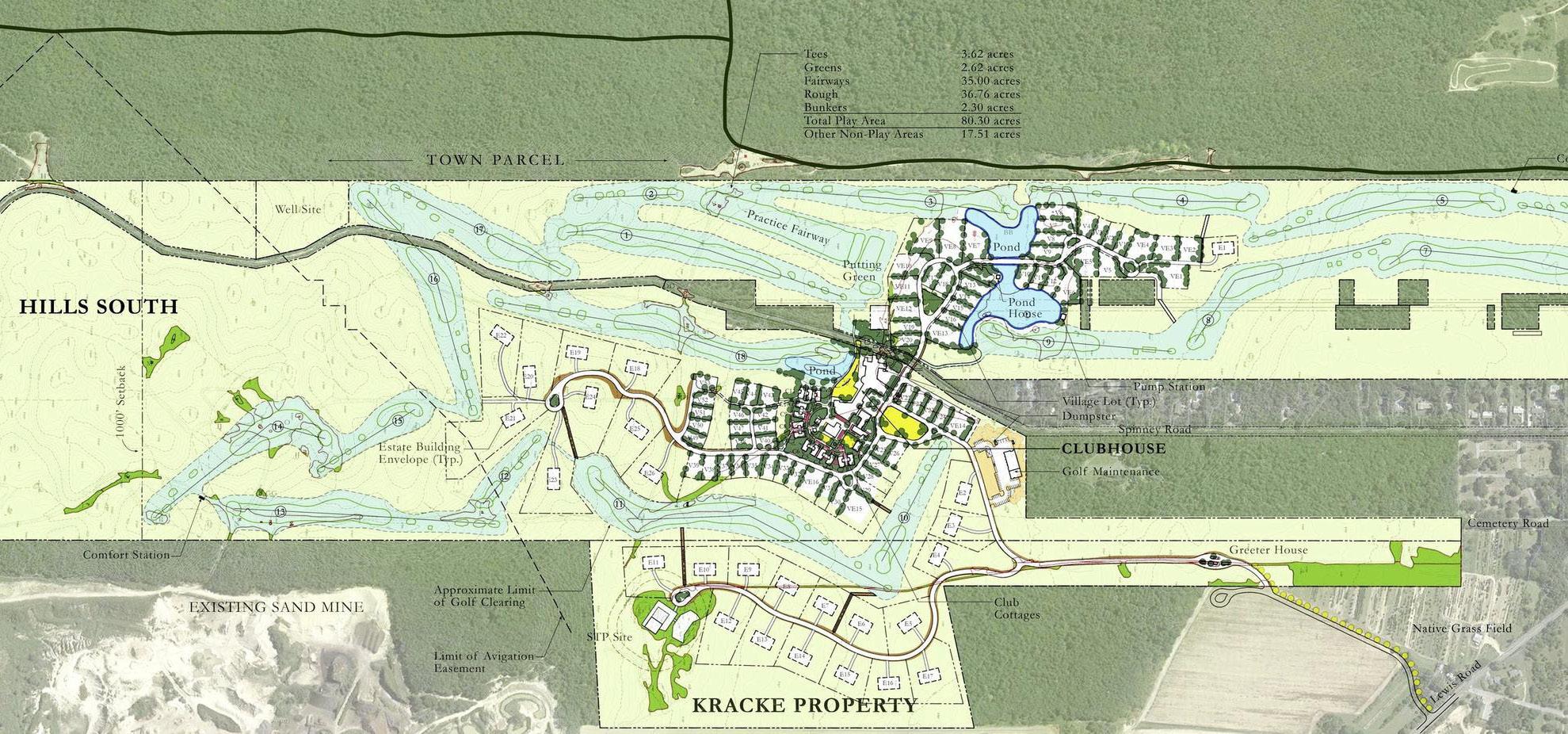
600 acre site

118 homes

18-hole golf course

The Hills Golf Club

The Hamptons, NY

A modern take on the cherished summertime escape to The Hamptons, The Hills Golf Club and Residential Development will operate on a seasonal basis and provide 118 homes (8 clubhouse units, 15 village cottages, 53 village lots, 16 village estates, 26 woodland estates and 12 workforce housing units), an 18-hole course, and recreational facilities on a 600 acre site. KCL Engineering’s technology team is providing Outside Plant (OSP) design for sitewide infrastructure for a private wide area network along with site design to accommodate the local telecommunications service provider (Altice) pathways. KCL will coordinate desired fiber presence for all potential vertical construction components. In total, over 7 miles of new underground fiber-optic infrastructure (pathways and cabling) will be routed around the development.

Additionally, KCL Engineering is designing technology systems for the development’s vertical infrastructure, including telecommunications, audiovisual, security systems design for the campus clubhouse, gate house, pro shop, fieldhouse, comfort stations, tennis house, four typical private residences, workforce housing, administration building, turf/maintenance building, driving range, golf support buildings and outdoor gathering spaces.

Turn static files into dynamic content formats.

Create a flipbook
Issuu converts static files into: digital portfolios, online yearbooks, online catalogs, digital photo albums and more. Sign up and create your flipbook.
KCL Engineering_2024 Firm Profile by KCLEngineering - Issuu