Senior Capstone Project: REHABCONNECT

Page 1

REHABCONNECT Charlotte

REHAB REHAB CONNECT CONNECT

BACKGROUND

WHAT IS COMMUNITY-BASED REHABILITATION?

IN 2021, THE POVERTY RATE AMONGST RESIDENTS IN CHARLOTTE, NORTH CAROLINA WAS 11.6%. IT IS PROVEN THAT POVERTY PLAYS A VITAL ROLE IN ACCESS TO HEALTH CARE AND RESOURCES (OBSERVER). THIS CAN OFTEN STEM FROM ISSUES WITH HEALTH INSURANCE, DISTRUST IN HEALTH CARE PROVIDERS, AND A LACK OF EDUCATION. COMMUNITY-BASED REHABILITATION WAS FORMED BY THE WORLD HEALTH ORGANIZATION (WHO) AND IS A COMMUNITY DEVELOPMENT STRATEGY THAT WORKS TO ENHANCE THE QUALITY OF LIFE FOR PEOPLE WITH PHYSICAL DISABILITIES AS WELL AS HELPING THEM COPE WITH THE PSYCHOLOGICAL ISSUES THAT STEM FROM THEIR DISABILITY. BY FOCUSING ON COMMUNITY-BASED REHABILITATION, THE REHABILITATION CENTER WILL WORK TO SUPPORT CAREGIVERS AND FAMILY MEMBERS AS WELL. CBR IS NOW CONSIDERED A MULTI-SECTORAL APPROACH, AND WORKS TO EQUALIZE THE OPPORTUNITIES AND SOCIAL INCLUSION OF PEOPLE WITH DISABILITIES (KHASNABIS & MOTSCH).

IMPACT | PROBLEM STATEMENT

DESIRED OUTCOME/POSITIVE IMPACT

A SAFE SPACE THAT INSPIRES HEALING AMONGST PATIENTS WITH DISABILITIES, FOCUSED ON COMMUNITY-BASED REHABILITATION (CBR), USING NATURE AND COMMUNITY AS A WAY TO PROMOTE HEALTH AND WELLNESS.

HOW? WHO?

ANYONE NEEDING PHYSICAL REHABILITATION AS WELL AS THE CARETAKERS OF THE INDIVIDUALS NEEDING REHABILITATION. THIS INCLUDES POST INPATIENT REHABILITATION, INPATIENT REHABILITATION, OUTPATIENT REHABILITATION, AND INDIVIDUALS ARE ALSO INVITED TO SCHEDULE THERAPY APPOINTMENTS IF THEY ARE STRUGGLING TO FIND THE MOTIVATION TO GET BETTER OR IF THEY ARE STRUGGLING WITH THE IDEA OF BEING DISABLED. THERAPEUTIC SERVICES ARE ALSO OPEN TO CARETAKERS. THE REHABILITATION CENTER WILL AIM TO ALLOW LOW-INCOME INDIVIDUALS TO HAVE ACCESS TO REHABILITATION SERVICES AS WELL AS THERAPEUTIC SERVICES.

BACKGROUND

WHAT?

PHYSICAL REHABILITATION CENTER/COMMUNITY WELLNESS CENTER. OUTPATIENT SERVICES ARE AVAILABLE FROM 7AM TO 7PM, WHILE INPATIENT USERS HAVE 24/7 CARETAKER AVAILABILITY. THROUGH THE INTEGRATION OF COMMUNITY RESOURCES AND STRONG CONNECTIONS AMONG REFERRAL CENTERS, MEDICAL PROFESSIONALS, THERAPISTS, AND PATIENTS, WE STRIVE TO PROVIDE COMPREHENSIVE REHABILITATION SERVICES. THE CENTER WILL BE WELL CERTIFIED, FEATURING AMPLE NATURAL LIGHT AND BIOPHILIC DESIGN ELEMENTS TO FACILITATE HEALING. DONATIONS ARE APPRECIATED TO ASSIST LOW-INCOME INDIVIDUALS AND THOSE WITHOUT INSURANCE IN ACCESSING HEALTHCARE SERVICES.

HOW?

REHABCONNECT TREATS AND HEALS FAMILIES NOT JUST INDIVIDUAL MEMBERS BY INCORPORATING A COMMUNITY CENTER WHERE PATIENTS AND CARETAKERS CAN ACCESS NECESSITIES. APPOINTMENTS FOR OUTPATIENT CARE CAN BE SCHEDULED OVER THE PHONE, ONLINE VIA THE REHABILITATION CENTER'S WEB PORTAL, OR IN PERSON AT OUR RESOURCE CENTER. MENTAL HEALTH PROFESSIONALS WILL BE ON-SITE MONDAY THROUGH FRIDAY FROM 7AM TO 7PM. THE CENTER IS DEDICATED TO TREATING AND SUPPORTING FAMILIES HOLISTICALLY, OFFERING ACCESS TO ESSENTIALS AND ADDRESSING INDIVIDUAL PATIENT NEEDS. TO ENSURE THE EFFICACY OF THIS HOLISTIC APPROACH, IT IS IMPERATIVE TO MAINTAIN ROBUST CONNECTIONS BETWEEN REFERRAL CENTERS, MEDICAL PROFESSIONALS, THERAPISTS, AND PATIENTS. BUILDING UPON THIS NECESSITY, THE SUCCESS OF REHABILITATION SERVICES HINGES ON FORGING CLOSE, SYMBIOTIC RELATIONSHIPS WITH DOCTORS, THERAPISTS, AND CAREGIVERS. BY CO-LOCATING ALL THESE ESSENTIAL COMPONENTS UNDER ONE ROOF, WE AIM TO OPTIMIZE THE SUPPORT PROVIDED TO OUR END USERS. THE REHABILITATION CENTER WILL BE WELL CERTIFIED AND PROVIDE AN ABUNDANCE OF NATURAL LIGHT AND BIOPHILIC DESIGN FEATURES IN ORDER TO HELP PROMOTE HEALING. DONATIONS CAN BE MADE TO THE REHABILITATION CENTER THAT WILL WORK TO PROVIDE HEALTH SERVICES TO LOW-INCOME INDIVIDUALS/PEOPLE WHO DO NOT HAVE INSURANCE.

Community-Based Rehabilitation Principles

Inclusivity Active Participation SelfEmpowerment Sustainability OEqualpportunity Universal Accessibility

Community-Based Rehabilitation Principles

Provide HolisticHealing Strategies

HImproveealthand Well-being

EnhanceCommunity Connections

Provide Aroundthe ClockCare

OfferMental CopingTechniques

USER PROFILE

Sandra

Rodriguez, 42

Inpatient Resident

Sandra Rodriguez is a 42-year-old mother of two who has recently undergone major surgery to address a spinal injury. Her injury resulted from a car accident, leaving her with limited mobility and in need of comprehensive rehabilitation. Sandra has a background in elementary education and is an active member of her local community. She will be staying for 6 weeks in our inpatient resident zone. Sandra was referred to CBRC by her orthopedic surgeon to receive specialized inpatient care and rehabilitation after her surgery. Her rehabilitation journey at CBRC focuses on regaining mobility, managing pain, and achieving a level of independence that allows her to return home safely. Sandra's daily routine at CBRC is tailored to her specific rehabilitation needs. This includes daily physical therapy sessions working to regain strength, balance, and mobility. Sandra also engages in occupational therapy sessions to relearn daily living skills and regain independence in tasks such as dressing, bathing, and meal preparation. Other daily tasks include tackling pain management, emotional support, and community engagement.

Sandra can be described as resilient. Despite her physical challenges, Sandra remains determined to regain her independence and resume her role as an active member of her family and community. She is open to trying new techniques and therapies as part of her rehabilitation process, showing a willingness to adapt to changes in her daily routine. Sandra's motivation for recovery is deeply rooted in her desire to reunite with her family and fulfill her responsibilities as a mother. She always maintains a positive outlook on her rehabilitation journey, which not only benefits her progress but also inspires those around her. Sandra's natural optimism shines through even during challenging moments in her rehabilitation journey. Her positive outlook not only motivates her but also uplifts the spirits of fellow residents and staff members. Sandra's sense of responsibility extends to her determination to regain her independence. She is committed to fulfilling her role as a mother and an active community member, which drives her rehabilitation efforts.

When Sandra is not at the rehabilitation center, she enjoys reading and staying connected with her family through video calls. She is also passionate about community involvement and plans to resume her role in local volunteer activities once she has regained her mobility. Sandra Rodriguez is an example of the diverse and resilient individuals who receive care at CBRC. Her determination to regain her independence, combined with the comprehensive support and rehabilitation services provided by the center, ensure that she is on the path to recovery and a return to her active life within her family and community. Sandra's family is at the center of her life, and she looks forward to participating in family activities like board games and movie nights upon her return home. She has a creative side and enjoys arts and crafts. This interest allows her to engage in activities that promote mental well-being and creativity during her rehabilitation.

USER PROFILE

Dr. Mark Johnson, 34

Physical Therapist

5 Year Tenure

Mark Johnson is a highly skilled and compassionate physical therapist with a strong commitment to helping individuals recover and regain their mobility. He holds a Doctorate in Physical Therapy and has several years of experience in the field, with a particular focus on community-based rehabilitation. As a Physical Therapist at Community-Based Rehabilitation Charlotte (CBRC), Mark's role is pivotal in facilitating the recovery and rehabilitation of patients. His responsibilities include patient-centered care, physical rehabilitation, educating and supporting patients, and monitoring the progress of each patient. Mark is dedicated to providing individualized care to each patient, taking into consideration their unique needs, goals, and medical history. He conducts assessments and develops customized rehabilitation plans that best suite the needs of the individual. He offers ongoing support, answering questions and providing guidance throughout the rehabilitation journey.

Mark can be described as an empathetic, dedicated, and adaptable doctor. Mark has an innate ability to motivate and inspire his patients, encouraging them to push their limits and stay committed to their rehabilitation goals. His positive attitude and unwavering belief in their potential serve as a source of strength for those under his care. Mark's compassionate nature and ability to empathize with his patients create a supportive and caring environment for their recovery. He is deeply committed to helping patients achieve their goals and is willing to go the extra mile to ensure their well-being. Mark remains flexible in his approach, adapting to the evolving needs of his patients and the guidance of the interdisciplinary team. He pays close attention to the specific needs and progress of each patient, ensuring that rehabilitation plans are tailored to their unique circumstances. These additional traits highlight Mark's ability to inspire and guide patients through their rehabilitation journey with empathy, clear communication, and a resilient spirit. His multifaceted approach to care ensures that patients not only recover physically but also mentally and emotionally under his guidance at CBRC.

Outside of his professional life, Mark is an advocate for physical fitness and wellness. He enjoys participating in community fitness events and often encourages his patients to engage in physical activities that align with their rehabilitation goals. He is a nature enthusiast and appreciates the healing power of the outdoors, which resonates with the CBRC's biophilic design philosophy. Mark Johnson's dedication and expertise as a physical therapist at CBRC play a vital role in the rehabilitation journey of patients. His commitment to patient-centered care and his ability to work collaboratively with other healthcare professionals contribute to the holistic approach that CBRC is known for. With Mark's guidance and support, patients at CBRC are empowered to regain their mobility and improve their overall quality of life.

CONCEPT & SCHEMATIC DESIGN

CONNECTION

CONCEPT CONNECTION

The idea and conceptual meaning behind "connection," is to seamlessly integrate biophilic design principles to reconnect individuals with nature. By incorporating elements like indoor greenery and natural light, the design promotes holistic healing, addressing the disconnect of modern living. Simultaneously, the concept extends to community-based rehabilitation, fostering connections between patients and vital resources. This dual approach creates spaces that not only aesthetically please but serve as catalysts for transformative and profound connections, both with nature and within communities.

Our mission extends beyond individual patients to embrace families, integrating a community center where patients and caretakers access essentials. This holistic approach serves as a roadmap for rehabilitation activities seamlessly extending into the community, leveraging local resources. Open from 8 am to 8 pm daily, our center offers outpatient and inpatient care, including mental health services. Low-income individuals gain access to rehabilitation and therapy, transcending financial barriers.

The success of our approach relies on close collaborations between referral centers, medical professionals, therapists, and caregivers. By co-locating essential components under one WELL-certified roof, we optimize support and overall connections. The center prioritizes natural light and biophilic design to promote healing.

CONCEPT

CONNECTION

CONNECTING PEOPLE WITH THEIR COMMUNITY

CONNECTING PATIENTS TO VITAL RESOURCES

CONNECTING HUMANS WITH NATURE

CONCEPT CONNECTION

CONNECTING PEOPLE WITH THEIR COMMUNITY

CONNECTING HUMANS WITH NATURE

CONNECTING PATIENTS WITH VITAL RESOURCES

VISIONING AND VIBE:

COMMUNITY DRIVEN AREAS

ARCHITECTURAL LIGHTING INTERACTIVE CEILING FEATURES
NATURAL LIGHTING FUNKY, LIVE GREEN FEATURES
BOLD, BRIGHT WAYFINDING
TECH INTEGRATED FEATURES

VISIONING AND VIBE: PHYSICAL THERAPY SPACES

BIOPHILIC, INCLUSIVE SEATING FLOOR-TO-CEILING WINDOWS SOFT SPACE DIVIDERS TECH INTEGRADED CEILING FEATURES OPEN & ENCLOSED AREAS
OPEN, AIRY SPACES

VISIONING AND VIBE: INPATIENT AREAS

WARM, UNIVERSAL HANGOUT SPOTS FUNCTIONAL STORAGE SYSTEMS OPEN, WARM SPACES ACCESSIBLE, ORGANIC WALKWAYS MULTILPE LOUNGE OPTIONS COMFORTABLE COMMUNIAL SPACE

SCHEMATIC DESIGN

PARTI DIAGRAMS

BUBBLE DIAGRAM

STRONG CONNECTION

NECESSARY CONNECTION

WEAK CONNECTION

PUBLIC
PRIVATE

SCHEMATIC DESIGN

3D DIAGRAMS

PLANS, AXONS, AND ELEVATIONS

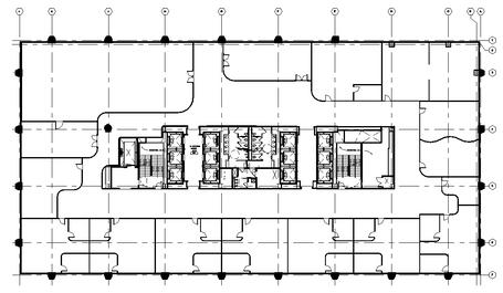
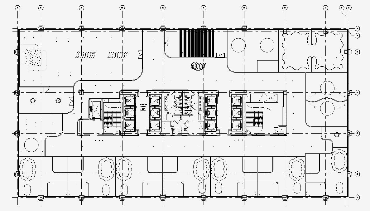
LEVEL 2 DETAILS

LEVEL 2 FURNITURE PLAN

CENTER
COMMUNITY
COMMUNITYMARKET
YOGA
PHYSICAL THERAPY RESOURCE CENTER
LOBBY
INPATIENT SUITES
NURSE STATION NURSE STATION

LEVEL 2 RCP

LEGEND RECESSED CAN LIGHT DROPLET PENDANT
LIGHTING

AXON

LEVEL 2 COMMUNITY CENTER AXON

KEY PLAN: LEVEL 2

ELEVATIONS

LEVEL 2 COMMUNITY CENTER ELEVATIONS

KEY PLAN: LEVEL 2

AXON

LEVEL 2 PHYSICAL THERAPY AXON

KEY PLAN: LEVEL 2

ELEVATIONS

LEVEL 2 PHYSICAL THERAPY ELEVATIONS

KEY PLAN: LEVEL
3

RENDERINGS

LOBBY

LOBBY

COMMUNITY CENTER

COMMUNITY CENTER

COMMUNITY CENTER LOUNGE

YOGA STUDIO

COMMUNITY MARKET

COMMUNITY MARKET

COMMUNITY MARKET

RESOURCE CENTER

RESOURCE CENTER

REHAB SPACE

REHAB SPACE

Inpatient Suites

Inpatient Suites

Inpatient Suites

PLANS, AXONS, AND ELEVATIONS

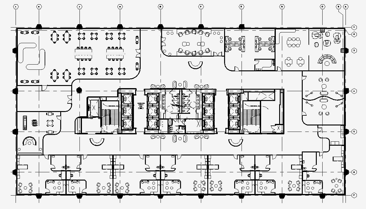
LEVEL 3 DETAILS

LEVEL 3 FURNITURE PLAN

CAFE GROUP THERAPY OFFICE CARETAKERS LOUNGE PRIVATE THERAPY PRIVATE THERAPY GAME ROOM NURSE STATION NURSE STATION INPATIENT SUITES LOBBY

LEVEL 3 RCP

LIGHTING LEGEND GOLD PENDANT RECESSED CAN LIGHT DROPLET PENDANT

AXON

LEVEL 3 CAFE AXON

KEY PLAN: LEVEL 3

ELEVATIONS

LEVEL 3 CARETAKERS LOUNGE ELEVATION

KEY PLAN: LEVEL 3

RENDERINGS

CAFE

CAFE

CAFE

PRIVATE THERAPY

PRIVATE THERAPY

CARETAKERS/WELLNESS LOUNGE

CARETAKERS/WELLNESS LOUNGE

PLANS, AXONS, AND ELEVATIONS

LEVEL 4 DETAILS

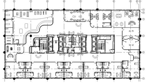
LEVEL 4 FURNITURE PLAN

GROUP
OFFICE CARETAKERS
THERAPY GAME ROOM NURSE STATION NURSE STATION
INPATIENT SUITES
THERAPY
LOUNGE PRIVATE
PRIVATE THERAPY PHYSICAL THERAPY

LEVEL 4 RCP

LIGHTING LEGEND GOLD PENDANT RECESSED CAN LIGHT DROPLET PENDANT

ELEVATIONS

LEVEL 4 PHYSICAL THERAPY ELEVATION

KEY PLAN: LEVEL 4

RENDERINGS

GROUP THERAPY

REHAB SPACE

REHAB SPACE

Turn static files into dynamic content formats.

Create a flipbook
Issuu converts static files into: digital portfolios, online yearbooks, online catalogs, digital photo albums and more. Sign up and create your flipbook.
Senior Capstone Project: REHABCONNECT by Kaylie Stadler - Issuu