Student Portfolio - Kaylee Griffith

Page 1

STUDENT PORTFOLIO

KAYLEE GRIFFITH

ALFRED STATE COLLEGE

A COLLECTION OF RECENT WORK…

UPDATED 06/12/2023

THE DESIGNER

KAYLEE GRIFFITH

I am a student in my third year at Alfred State College, planning to graduate in 2025 with a bachelor's degree in Architectural Technology, with also having minored in Construction Management. I hold a strong interest in project management/engineering roles and aspire to achieve such a career in the building world. While studying at Alfred State, I have become a proud member of the National Society of Leadership and Success, creating new relationships and learning how to grow as a leader. I have gained experience through my architectural studies and am skilled in using online modeling, rendering, and design programs. I have also had experience interning under a project engineer, giving me the opportunity to learn and gain more knowledge in the construction industry. Through my schoolwork and experience in the professional world, I hope to accomplish my future goals and make a positive impact!

kayleegriffith7@yahoo.com (716) 940-3224 |

STUDENT DEVELOPMENT CENTER ANALYSIS

PLAN VIEWS

MODULAR DISABILITY HOUSING

SITE ANALYSIS | SPACE | FORM

ELEVATIONS | SECTION | FLOOR PLAN

ACCESSABILITY FEATURES

FINAL RENDERS

EXTERIOR WALL MOCKUP & CONSTRUCTION DOCUMENTS

PRECEDENT STUDY: SHIGERU BAN & JEAN DE GASTINES

FORM | MATERIALS | SITE

TIMBER VIEW AT THE LAKE: WEDDING VENUE

SITE ANALYSIS

EXPLODED STRUCTURAL AXON

WALL DETAIL | OCCUPANCY | CONNECTIONS

SECTION | ELEVATIONS | FACADE MATERIALS

FLOOR PLAN

FINAL RENDERS

FINAL RENDERS

TABLE OF CONTENTS

01. 02. 03. 04. 05. 06. 07. 08. 09. 10. 11. 12. 13. 14. 15. 16. 17. 18.

STUDENT DEVELOPMENT CENTER ANALYSIS

AXONOMETRIC SKETCH

01. ALFRED STATE FALL 2021

C0NCEPT STATEMENT

The objective of this design was to pick a building on campus and do an in-depth analysis involving many strategies, in which my analysis included an axonometric sketch, site analysis, and site plan view. The building that I chose was the Student Development Center (SDC); I gathered various photos of the structure to help aid me in making sure I captured every aspect in my sketch. I first created the sketch from an axonometric view because I believe it strongly portrays the main concept of the building’s exterior. I then moved onto creating my site analysis by observing the surrounding factors of the building, incorporating variables such as the sun path, wind direction, noise, parking lots, foot traffic, vehicular traffic, contours, and significant views. The last piece of this analysis was the site plan, which helps to show the top view of the building and its relationship to the vegetation, paths, roads, lots, and the adjacent structures that surround it.

SITE ANALYSIS

SITE PLAN

02. ALFRED
FALL
PLAN VIEWS
STATE
2021

ALFRED STATE FALL 2022

MODULAR DISABILITY HOUSING C0NCEPT STATEMENT

PRECEDENT STUDY

This design process was driven by the required ADA accommodations due to a lower limb disability. The subject of disability was the main aspect that influenced the creation of the interior layout of the home. Heights, space, movability, fixtures, and safety were all taken into consideration for the use of a wheelchair, as well as combining the preferred aesthetic designs of the client. The goal was to create a home that would promote a sense of comfortability and ease throughout everyday living with a disability.

03.

MODULAR BREAKDOWN SPATIAL DIAGRAM

04.
ALFRED STATE FALL 2022
SITE ANALYSIS SITE PLAN

SOUTH ELEVATION

EAST ELEVATION

TRANSVERSE SECTION

05. ALFRED
FALL
STATE
2022
FLOOR PLAN

ACCESSIBILITY FEATURES

GRAB BARS

GRAB BARS

KNEE SPACE

HANDRAILS

SLIDING DOOR

SHOWER SEAT

AUTOMATIC PUSH BUTTON STEP IN

SHOWER

06.
ALFRED STATE
FALL 2022
07.
FALL
BEDROOM BATHROOM KITCHEN | DINING | LIVING
ALFRED STATE
2022 OFFICE
FINAL RENDERS

EXTERIOR WALL MOCKUP

SCAN TO CHECK OUT THE CONSTRUCTION DOCUMENTS:

08.
ALFRED STATE FALL 2022

ALFRED STATE

SPRING 2023

PRECEDENT STUDY: SHIGERU BAN & JEAN DE GASTINES

CENTRE POMPIDOU-METZ – METZ, FRANCE | 54,000 SQFT

EAST ELEVATION

CONCEPT

ECOLOGY

SPATIAL LAYOUT

09.

FORM & CONSTRUCTION MATERIAL PALETTE

SITE | GARDEN PLACEMENT

10. ALFRED STATE
2023
SPRING

TIMBER VIEW AT THE LAKE

C0NCEPT STATEMENT

PRECEDENT STUDY

11.
ALFRED STATE SPRING 2023
FORM & SPACE

SITE SECTION

SHADOW STUDY

12. ALFRED STATE SPRING 2023 SITE ANALYSIS

ALFRED STATE

SPRING 2023

EXPLODED STRUCTURAL AXON

13.

STRUCTURAL CONNECTIONS

14. ALFRED STATE SPRING 2023 OCCUPANCY
WALL DETAIL v v

ELEVATIONS

15.
ALFRED STATE SPRING 2023 TRANSVERSE SECTION
16. ALFRED STATE SPRING 2023
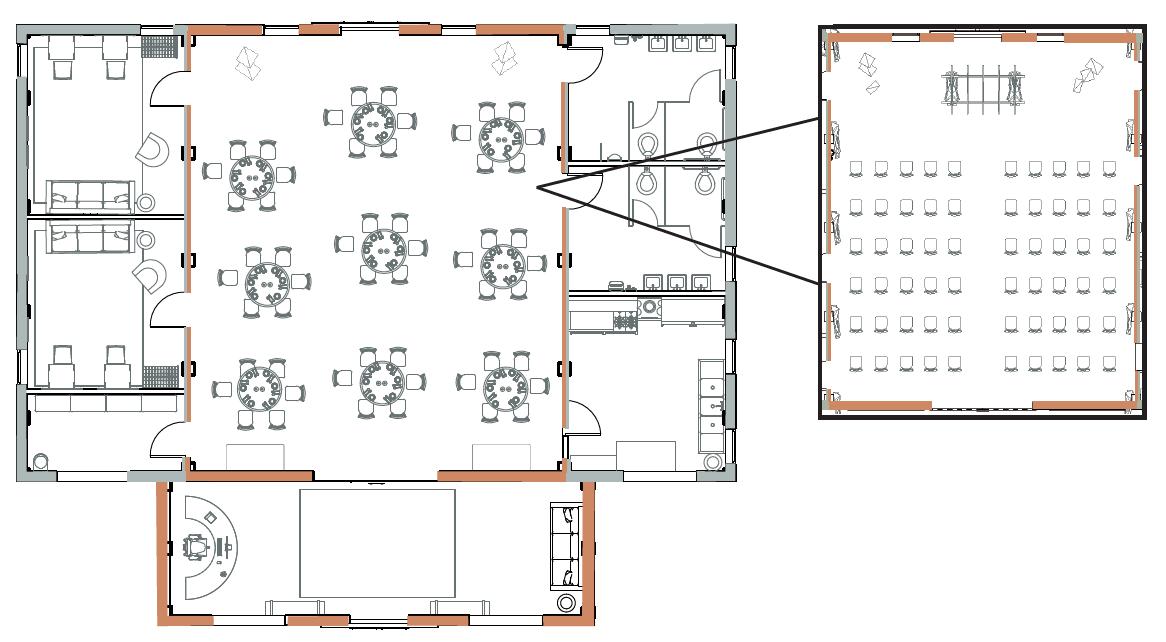
FLOOR PLAN

FINAL RENDERS

ALFRED STATE

SPRING 2023

INDOOR DINING

WOMEN’S PREPARATION ROOM

MEN’S PREPARATION ROOM

17.
LOBBY

OUTDOOR CEREMONY

OUTDOOR DINING | RECEPTION

18. ALFRED STATE SPRING 2023
kayleegriffith7@yahoo.com (716) 940-3224 | THANK YOU FOR YOUR TIME! kayleegriffith7@yahoo.com (716) 940-3224 |

Turn static files into dynamic content formats.

Create a flipbook
Issuu converts static files into: digital portfolios, online yearbooks, online catalogs, digital photo albums and more. Sign up and create your flipbook.
Student Portfolio - Kaylee Griffith by Kaylee Griffith - Issuu