KAYLA HARRIS PORTFOLIO

Page 1

portfolio.

K A Y L A H A R R I S
INTERIORDESIGN

ABOUT

IAM KAYLAHARRIS,ASTUDENTATTHE UNIVERSITYOFGEORGIA,CURRENTLY STUDYINGINTERIORDESIGN. IAM MOSTLYINTERESTEDINRESIDENTIAL DESIGN.WHILE HAVINGTHE OPPORTUNITYTOSTUDYINTERIOR DESIGN ILOOKFORWARDTOCONTINUE MYEDUCATION INARCHITECTURE.

IWOULDLIKETOPERSONALIZEMYIDEAS ANDDESIGNS INAWAYTHATSHOWSMY INTERESTSANDPASSIONS.IWANTMY WORKTOBEPERSONALANDUNIQUEIN HOPESOFCREATINGSOMETHING SPECIALANDWORTHREMEMBERING.

REMODELEDFOURSQUARE HOUSE A S C H O O L P R O J E C T O N H A N D D R A F T I N G 04 CONTENTS 01 BEND,OREGONHOUSE A S C H O O L P R O J E C T O N B E N D , O R E G O N ’ S R E A L E S T A T E 02 STEELCASENEXTOFFICE A O F F I C E S P A C E F O R T H E S T E E L C A S E N E X T C O M P E T I T I O N HOME&OFFICE/GALLERY A S C H O O L P R O J E C T O N H A N D D R A F T I N G 03

R E L A T I O N S H I P I N C O N J U N C T I O N

W I T H T H E A D J A C E N T N A T U R A L

E L E M E N T S L O C A T E D I N B E N D ,

O R E G O N L E A D T O T H E

D E V E L O P M E N T O F T H I S H O U S E ’ S

D E S I G N I N C L U D I N G I N T E N T I O N A L

O U T D O O R S P A C E S

01 BEND,OREGONHOUSE
S C H O O L P R O J E C T O N B E N D , O R E G O N ’ S R E A L E S T A T E LOCATION B E N D , O R E G O N DATE M A Y 2 0 2 3
A
T H E C O N C E P T F O R T H I S P R O J E C T W A S T O E V A L U A T E T H E
R E L A T I O N S H I P B E T W E E N P U B L I C
A N D P R I V A T E S P A C E S W I T H I N A
S I N G L E F A M I L Y R E S I D E N C E T H E
E V A L U A T I O N O F T H I S
T R A N S V E R S E S E C T I O N L O N G I T U D I N A L S E C T I O N 1 L O N G I T U D I N A L S E C T I O N 2
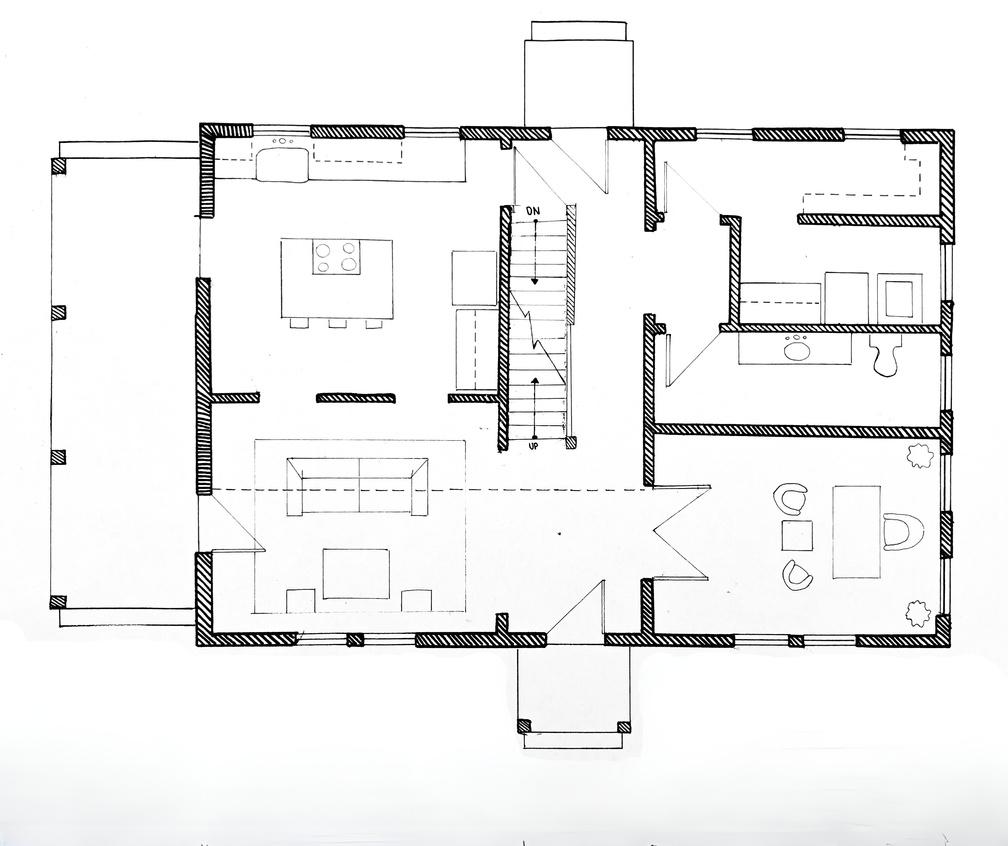
LEVEL1FLOOR PLAN 1 F R O N T P O R C H 2 . S T A I R S 3 L I V I N G R O O M 4 . U N D E R S T A I R S S T O R A G E 5 P A N T R Y 6 . K I T C H E N 7 B A T H R O O M 8 . L A U N D R Y R O O M 9 . G A R A G E 1,124SF
LEVEL2FLOOR PLAN 1 B A L C O N Y 2 . B E D R O O M 1 3 B E D R O O M 2 4 . P R I M A R Y B E D R O O M 5 . B A C K P O R C H 1,124SF

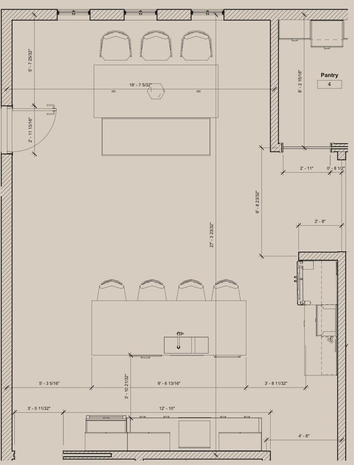
KITCHEN

ENLARGEDKITCHENFLOORPLAN

ENLARGEDKITCHEN ELEVATION K I T C H E N : 5 0 0 S F P A N T R Y : 4 8 S F
ENLARGEDLIVINGROOM ELEVATION LIVINGROOM 2 9 5 S F
ENLARGED LIVINGROOMFLOOR PLAN
PRIMARYBEDROOM B E D R O O M : 2 7 6 S F C L O S E T : 3 1 S F

ENLARGED PRIMARYBATHROOM ELEVATION

ENLARGED PRIMARYBATHROOM FLOOR PLAN

PRIMARYBATHROOM
5 7 S F

BEDROOM 1

B E D R O O M : 2 1 8 S F

B A T H R O O M : 4 0 S F

C L O S E T : 3 2 S F

BEDROOM 2 B E D R O O M : 2 2 1 S F B A T H R O O M : 4 2 S F C L O S E T : 2 0 S F

02

STEELCASENEXTOFFICE

P R O J E C T O V E R V I E W : D E S I G N A N O F F I C E

S P A C E F O R A N A R C H I T E C T U R E A N D I N T E R I O R

D E S I G N F I R M F O R T H E S T E E L C A S E N E X T

S T U D E N T C O M P E T I T I O N ( 2 0 2 3 ) .

C L I E N T D R I V E R S :

T H E Y A R E C O M M I T T E D T O E N H A N C I N G

P E O P L E ’ S L I V E S T H R O U G H T H E I R

D E S I G N S A N D C O N T I N U E T O P U T

S U S T A I N A B I L I T Y , D I V E R S I T Y , E Q U I T Y , A N D

I N C L U S I O N A T T H E F O R E F R O N T O F W H A T

T H E Y D O F O R O U R C O M P A N Y A N D T H E

C O M M U N I T I E S W E S E R V E .

S I T E L O C A T I O N :

2 6 0 1 V I C T O R Y

A V E . S U I T E 3 0 0

D A L L A S , T X

7 5 2 0 1

B U I L D I N G : L E A S E S P A C E

3 R D F L O O R

( A P P R O X I M A T E L Y 1 1 , 0 0 0

S F ) W I T H A N A D D E D

M E Z Z A N I N E L E V E L

( A P P R O X I M A T E L Y

4 , 0 0 0 S F )

LOCATION D A L L A S , T E X A S DATE D E C E M B E R 2 0 2 3
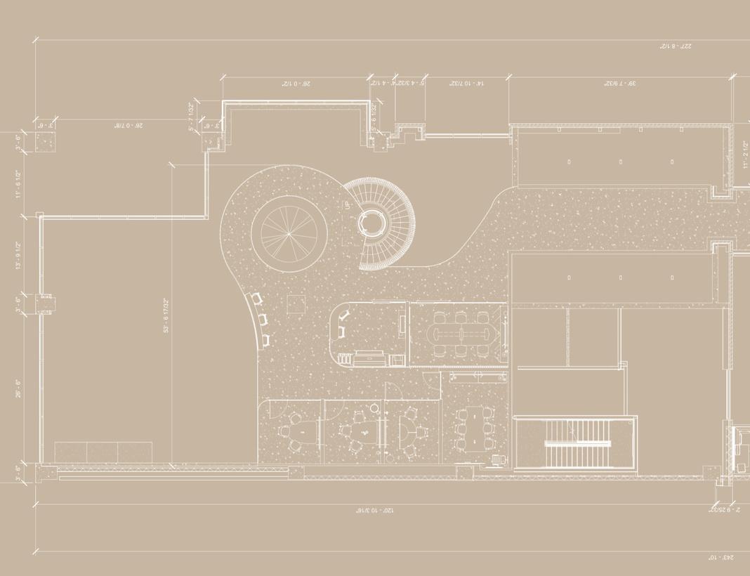
R E C E P T I O N
S T A I R S
. E L E V A T O R
W I L D C A R D
P A C E
S M A L L M E E T I N G R O O M S
C A F E
. I N N O V A T I O N
A B
. D E S I G N L I B R A R Y
. R E S O U R C E R O O M
0 . H U D D L E R O O M
LEVEL1FLOOR PLANS 1
2
3
4
S
5
6
7
L
8
9
1
1 1 . P R I V A T E O F F I C E S 1 2 W O R K S T A T I O N S 1 3 M O T H E R ’ S R O O M

MEZZANINELEVELFLOORPLANS

1 S T A I R S

2 E L E V A T O R

3 . W I L D C A R D

S P A C E

4 . M E E T I N G

R O O M

5 R E S O U R C E

R O O M

6 H U D D L E R O O M

7 C O N F E R E N C E

R O O M

8 W E L L N E S S

R O O M

9 T R A I N I N G

C L A S S R O O M

SECTIONS V E R T I C A L S E C T I O N H O R I Z O N T A L S E C T I O N
M E Z Z A N I N E L E V E L L E V E L 1

C O N C E P T : A W E L C O M I N G

S P A C E T O G R E E T A N D H O S T

C L I E N T S W A I T I N G F O R

M E E T I N G S & O T H E R N E E D S

A P P R O X I M A T E L Y 3 0 0 S F

RECEPTION
E C E P T I O N
R

C O N C E P T : A C O M M U N A L A N D

S O C I A L S P A C E F O R

E M P L O Y E E S T O D I N E

T O G E T H E R O R A L O N E A

M U L T I P U R P O S E E N V I R O N M E N T

F O R B O T H W O R K I N G A N D

E A T I N G .

A P P R O X I M A T E L Y 1 , 0 0 0 S F

CAFE
C A F E

C O N C E P T : A

S P A C E T O H O U S E

P H Y S I C A L

M A T E R I A L S A N D

F I N I S H E S A N

A R E A T O

P R E S E N T A N D

D I S C U S S

P R O J E C T S

A P P R O X I M A T E L Y

2 5 0 S F

D E S I G N L I B R A R Y I N N O V A T I O N L A B
DESIGNLIBRARY

INNOVATIONLAB

C O N C E P T : A

S P A C E T O H O U S E T O O L S A N D

E Q U I P M E N T ( 3 D

P R I N T E R , L A Z E R

C U T T E R , T A B L E

S A W ) F O R

C R E A T I N G

M O D E L S A N D

P R O T O T Y P E S .

A P P R O X I M A T E L Y 2 5 0 S F

R E S O U R C E R O O M RESOURC C O N C A S P A C O F F N E E I N C L U C O P Y I N T I F I L I N S T O R A P P R O E L Y 1 E A

C E P T : C E F O R F I C E E D S , U D I N G

N G / P R I N G , N G , & R A G E .

I M A T

1 5 0 S F C H

E S O U R C E R O O M CEROOM
R
X
C O N C E P T : T W O S P A C E S E Q U I P P E D T O S E A T 6 T P E O P L E . U S E D F O R S M A C L I E N T P R E S E N T A T I O N S V E N D O R M E E T I N G S , A N D I N T E R N A L T E A M M E E T I N O P T I M I Z E D F O R V I D E O A N D C O N T E N T S H A R I N G A P P R O X I M A T E L Y 2 0 0 2 E A C H DEDICATEDMEETINGAREAS M E E T I N G R O O M 1 M E E T I N G R O O M 2
H U D D L E R O O M 1 H U D D L E R O O M 2 C O N C E P T : F O U R S P A C E S E Q U I P P E D T O S E A T 2 T O 4 P E O P L E . U S E D F O R S M A L L E R I N T E R N A L T E A M M E E T I N G S . O P T I M I Z E D F O R V I D E O C A L L S A N D C O N T E N T S H A R I N G . A P P R O X I M A T E L Y 1 0 0 1 5 0 S F E A C H .
S M A L L M E E T I N G R O O M S / P H O N E R O O M S C O N C E P T : F O U R S P A C E S T O A C C O M M O D A T E 1 P E R S O N F O R A C O U P L E H O U R S O F W O R K I N P R I V A T E . A P L A C E W H E R E E M P L O Y E E S C A N T A K E A P R I V A T E P H O N E C A L L O R V I D E O C A L L A W A Y F R O M O P E N P L A N W O R K P L A C E A S W E L L A S A Q U I E T S E T T I N G F O R F O C U S E D I N D I V I D U A L W O R K . A P P R O X I M A T E L Y 3 6 4 8 S F E A C H
INDIVIDUALWORK SPACES

W I L D C A R D S P A C E ”

C O N C E P T : A U N I Q U E S P A C E

T H A T E N C O M P A S S E S “ N E X T ’ S ”

O B J E C T I V E S A N D V I S I O N

K E E P I N G “ N E X T ’ S ” G O A L O F

I N C O R P O R A T I N G W E L L N E S S A N D

U N I Q U E W O R K S E T T I N G S I N

M I N D T H I S S P A C E C R E A T E S A

W O R K E N V I R O N M E N T T H A T

P R O M O T E S H E A L T H A N D

W E L L N E S S I N T H E W O R K P L A C E .

I N D I V I D U A L T A S K B A R
W O R K S T A T I O N S A N D P R I V A T E O F F I C E S C L O S E U P P L A N P R I V A T E O F F I C E C L O S E U P P L A N
WORKSTATIONS & PRIVATEOFFICES

P R I V A T E O F F I C E 1

W O R K S T A T I O N S

C O N C E P T : E I G H T

S P A C E S F O R

M A N A G E M E N T

T H A T A L L O W S

F O R F O C U S E D

W O R K A S W E L L

A S T H E A B I L I T Y

T O C O L L A B O R A T E

W I T H 1 2

G U E S T S , A S

W E L L A S A

S P A C E F O R

S M A L L E R C L I E N T

M E E T I N G S

A P P R O X I M A T E L Y

1 2 0 S F E A C H

C O N C E P T : 3 7

I N D I V I D U A L

W O R K S T A T I O N S & 6 V I S I T O R

W O R K S T A T I O N S

T H A T A L L O W

P E O P L E T O

F O C U S A S W E L L

A S C O L L A B O R A T E

W I T H A D J A C E N T

T E A M M A T E S

A P P R O X I M A T E L Y

3 6 4 8 S F E A C H

03 HOME&OFFICE/GALLERRY A S C H O O L P R O J E C T O N H A N D D R A F T I N G DATE D E C E M B E R 2 0 2 2 FLOOR PLANS F I R S T F L O O R S E C O N D F L O O R
SECTIONS T R A N S V E R S E S E C T I O N L O N G I T U D I N A L S E C T I O N
EXPLODEDPLANOBLIQUE
PERSPECTIVES K I T C H E N / L I V I N G R O O M O F F I C E / G A L L E R Y
04 REMODELEDFOURSQUAREHOUSE A S C H O O L P R O J E C T O N H A N D D R A F T I N G DATE O C T O B E R 2 0 2 2 FLOOR PLANS F I R S T F L O O R S E C O N D F L O O R
SECTIONS T R A N S V E R S E S E C T I O N L O N G I T U D I N A L S E C T I O N
K I T C H E N L I V I N G R O O M
PERSPECTIVES
T H A N K Y O U K H
KAYLA
Harris

Turn static files into dynamic content formats.

Create a flipbook
Issuu converts static files into: digital portfolios, online yearbooks, online catalogs, digital photo albums and more. Sign up and create your flipbook.
KAYLA HARRIS PORTFOLIO by Kayladharris - Issuu