Kayla Pyles Portfolio

Page 1

kayla pyles

Architectural Portfolio

1
3 2 CONTENTS TABLE OF 01 05 02 03 04
ROOTS: AN EXTENSION OF CIUTADELLA
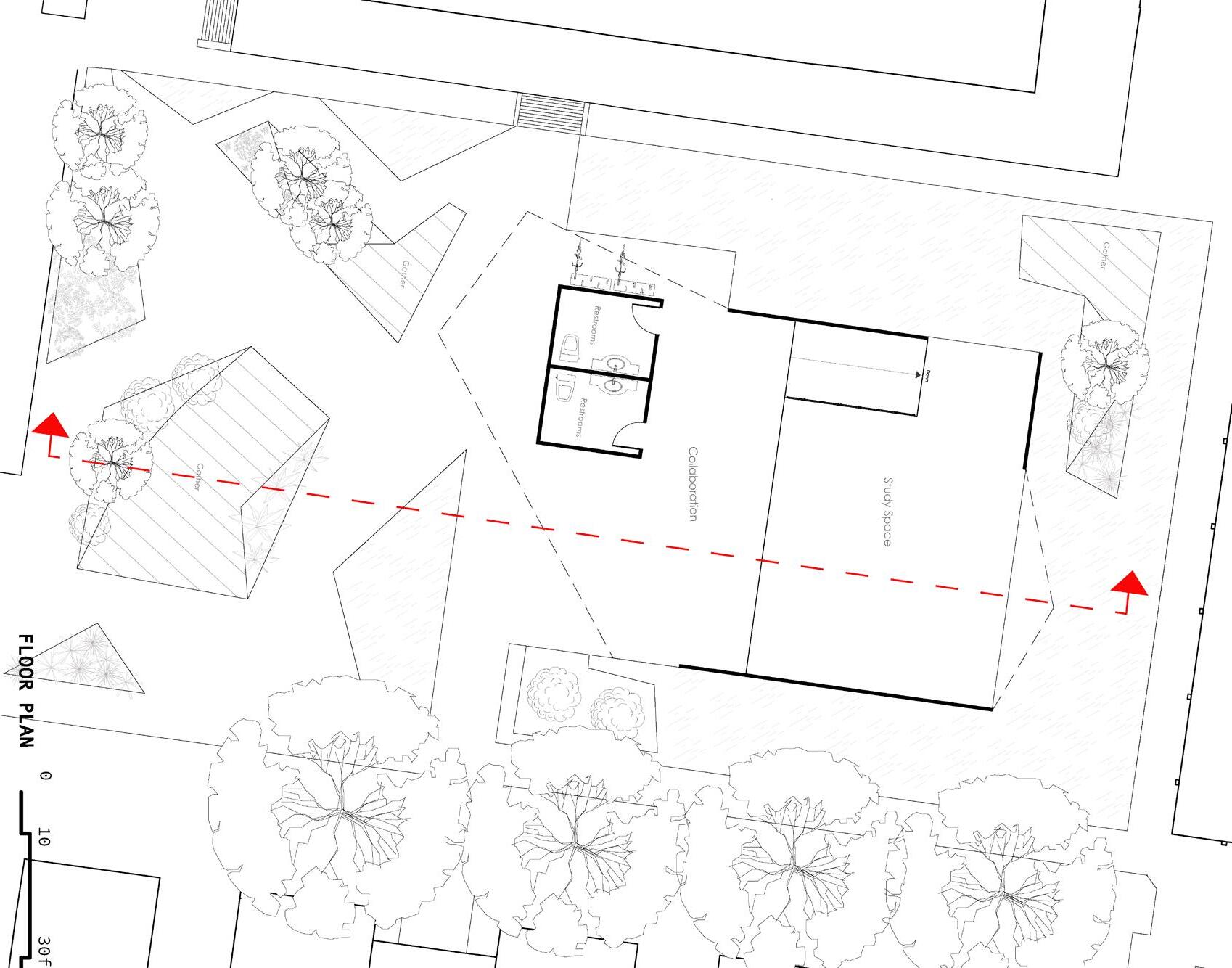
IL: ILLUMINATING CULTURE
CLASSROOMS: CLEMSON UNIVERSITY
SC: ART CENTER CHELSEA, NY: PERMEABILITY THROUGH THE VOID 06 LOS ANGELES, CA: SOCIAL HOUSING
URBAN
BRONZEVILLE,
COVID
CAYCE,

URBAN ROOTS: AN EXTENSION OF CIUTADELLA

ARCH 3540 - Spring 2022: Professor Miguel Roldan & Zana Bosnic I Partner: Abigail Spears TAMU

When recognizing the relationships between the green spaces around our site and the public activity they foster, we were prompted with the question of how to simultaneously create a space that facilitates these urban connections while also housing an archive. Through studying the abstracted anatomy of a tree, we discovered the elements of roots, trunk, and canopy which have beneficial organizational rules in both the natural and human environments. By blending these natural biologies with architecture, we were able to create a vertical park to serve as an extension of the Ciutadella.

This vertical garden references the appearance of a tree through its structure and functionality. The natural processes of a tree define the program and circulation of both people and services. The archive is placed underground as the main root system where it absorbs both people and artifacts before they are dispersed through the trunk and canopy. Through this system of circulation, the artifacts enter and are stored in a central location, but have the ability to move throughout the trunk freely to the offices, classrooms, photo rooms, workshops and exhibitions that fill the canopy space above. There are three main points of connectivity that connect people from the metro, the UPF

campus buildings, and the elevated park across the street, which connects the city with the sea. Using our building’s ramps which act as reaching branches and an extension of our ground plaza, these entry points are fed into the building to the first floor where the main doors are. From there, people and artifacts can access the central towers, or trunks, allowing them access to the upper levels.

Each floor has its own ring shaped truss system with radial beams that allows for a free floor plan which can be adapted depending on the special needs of the program assigned to that floor. Each floor is designed to frame views through glazing, creating nodes of rest, or create exterior terraces with respect to views, green space adjacency, and solar orientation.

Barcelona’s density creates a desire for open space which our building creates through doubling the ground using expansive ramps and placing the archive underground. This ultimately opens up the site to nature and pedestrians, giving them the freedom to occupy it. Our project does not express itself as an intervention to the site, but a compliment of it, as it accents the organic theme of the surrounding Ciutadella Park area.

5
01

Location wise, the site is oriented adjacent to 3 parks, a train station and university buildings. The elements of roots, trunk, and canopy which have beneficial organizational rules in both the natural and human environments. By blending these natural biologies with architecture, I was able to create a vertical park to serve as an extension of the

Ciutadella. The natural processes of a tree define the program and circulation of both people and services. Additionally, there are three main points of connectivity that extend out to bridge people from the metro, the UPF campus buildings, and the elevated park across the street.

When abstracting the body of a tree, I used the archive as the roots, two strong structural cores as the trunk, a series of platforms acting as the offices above as the canopy, and expansive ramps as reaching branches. All together, these components provide a working system

for absorbing the outside into the building and dispersing people and artifacts to the layers of platforms above. The ramps provide substantial spaces to our site, creating an additional 60% of ground coverage for recreational activities.

7 6
View from the 7th floor entertaining space
11 10

Through the section and elevation, we can get a better look at below ground floor, where we have the first floor of the archive, where artifacts are delivered and processed to be stored below. The relationship with the gardens and bridge and the building that provides the connection. Looking inside, there is the stacking of horizontal platforms, or grounds, and how the program assigned to each floor changes how closed off or open that floor

presents itself. We can also see the different types of terraces provided and how they adapt to the activity on each level, whether that be private or public. The very top floor which acts as the event space provides substantial views of the city, including the nearby parks and the beach.

13 12

COVID CLASSROOMS: CLEMSON UNIVERSITY

ARCH 2510 - Fall 2020: Professor Kendall Roberts

In 2020, Covid 19 swept across the world changing how everyone acts and reacts. With this in mind, the way teaching and what a classroom, university, education, would look like became a question. At the height of the six foot rule between individuals, the idea of an outdoor learning space evolved. For this project I chose challenge myself with the concept of folding and study the rigid edges of a folded object. This allowed for the rigidity of the canopy to react the in accordance to the way all of the rules felt towards the nation during the pandemic. Within the rigid canopy, underneath houses the activity allowing people to move in and out of this new set of rules with ease. The sunken level of the pavilion acts as a peekaboo into the activities

performed within the classroom. This design also facilitates the preexisting student derived paths that cross the site. By choosing specific areas to peel apart from its foundation, this also creates nodes of rest under the canopy and areas where volume can be reduced for students studying. The upper level is more public, while the lower facilitates more secluded study spaces.

15
02
17
Walking up the ramp towards the Academic Success Center

CAYCE, SC: ART CENTER

ARCH 2520 - Spring 2021: Professor Byron Jeffries

For this project, I created an art center located in Cayce, SC to help revitalize the cultural and community energy within the city. For my art center design, I chose to focus on bringing the charismatic personality of Cayce locals into this center for creativity. The basis of my design revolved around a large centralized patio space that facilitates outdoor eating, live entertainment, nodes of rest, and the main entrance and exit as well. This space is designed as a circulation for those who enter the building for its mixed program. There is a variety of program within the building, ranging

from a theater, to classrooms and an exhibit space. This building itself was also positioned to have its largest brick facade along the train tracks to muffle its sound. Sourcing local bricks for the build was also a driving design component as well as creating a space where local artists have the opportunity to have pop up performances or paint a mural along the exterior of the building.

19
03
South Elevation
23
Ground Floor

CHELSEA, NY: PERMEABILITY THROUGH THE VOID

ARCH 3500 - Fall 2021: Professor Douglas Hecker I Partner: Nicolle Rebolledo

The Highline is one of New York City’s most popular, dynamic and distinctive parks. It’s become an icon of contemporary landscape architecture. I have been tasked to design a multi-use high rise office building that is to be placed directly adjacent to the Highline and that elevates the urban landscape of the neighborhood of Chelsea. Being able to integrate the building to the site while also celebrating the Highline’s beauty and dynamism is a main priority within the proposal. Oftentimes, buildings are viewobstructing and don’t integrate with their environment. The goal is to create a building that allows for community gathering and involvement while also relating to the Highline’s urban landscape. I’ve proposed a void that is made up of a language of

subtractive and additive parts within to create an intriguing interior that creates the opportunity for interesting ledge points and greenery that elevates the voids experience.

The main concern as designers is to propose a building that serves the public as a space of meaningful congregation and a monument that is intentional in relation to the surrounding site. The design is an effective strategy to integrate community involvement and to create a building that is permeable to surrounding landscapes through the use of a void structure and a public plaza that is beneficial to the neighborhood’s culture. A space with blurred boundaries creates a community.

25 24
04

Permeabillity: the flow in a space; Architecture of Permeability is proposed as a solution for urban redevelopment. It works with the existing urban fabric and increases the permeability of spaces in three distinct aspects: Light, Air, and Human trajectory.

Starting with the building envelope, on a 100’ x 200’ site, we simply extruded up to understand the maximum square footage the site has to offer.

Cutting a void out from 10th street to the Highline allows for the Highline to be integrated into the building design rather than close it off from the urban landscape. This now creates a destination within the middle of our building.

Understanding the importance and benefits of permeability through our building and site, adding another set of voids, this time between 26th and 27th street frames views surrounding the site.

Creating a final void, from top to bottom allows for light to pass through the building at all points of the day. This also frames the largest void and allows for permeability through 2 modes: Light and Air.

The final massing allows for all three modes of permeability to occur. The dichroic glass sky bridges allow for humans to pass seamlessly between program. Program is now permeable.

26
1 1 2 2 3 3 4 4 5 5
29 28
Public Use Art/Studio Spaces Terraced Gathering Amenity Enriching the Public Spaces With Pop Up Culture Generously Large open spaces for meaningful gathering Entering the urban plaza from 26th street. Passing through a dichroic glass sky bridge over the urban plaza. The Urban Plaza is a means of integrating the greater public to a space that is meaningful in congregation in congregation and gathering. The relationship between the public realm and the use of our building is key to overall design.

See floor plate call out below

OPEN WORK ROOM

This area is meant for singular work or collaborative work

SOUND PROOF STATION

Private work booths allow workers to maintain nose levels at a minimum

COLLABORATIVE CUBES

These terraced work spaces provide an optimal view of the buildings void and offers a more secluded area for private meetings

SINGULAR WORK SPACES

These private work spaces are semi meant for private calls or work tasks that require semi-privacy

MEETING SPACE

Meeting tables are placed for large gatherings and group activites

31 30
COWORKING OFFICE Coworking offices are beneficial to the public by enabling collabortive and inclusive spaces INTRA-VOID MOVEMENT Catwalks within the void incentive movement from one side of the building to the other COLLABORATIVE CUBES Catwalks within the void incentive movement from one side of the building to the other PUBLIC ART/STUDIO By integrating public art domain spaces on the ground floor the building engages the publics’ interest in art and culture URBAN PLAZA The addition of an urban plaza space allows the public to flow throughout the building by creating a destination space that acts as a center of meaningful congragation
View into the urban plaza from a second floor office.

PARAMETRIC CURTAIN WALL

A parametric curtain wall creates a fractalized design along the facade of the building. This effect further pushes the conept of the core disinegrating as is extends past the center void.

32

BRONZEVILLE, ILLINOIS: ILLUMINATING CULTURE

ARCH 3510 - Fall 2022: Professor Tim Brown I Partners: Brianna Ogburn & Samantha Mount

Our building is designed as a hub of connections that bridges the defragmentation present around Bronzeville. We wanted to encourage interaction among the public through our circulation while also addressing the desire for cultural spaces that will be managed and run by the community. The proposal not only physically bridges the neighborhood together, but also socioculturally. By grafting “the Stroll” which was a prominent block of jazz clubs during the 20th century in the Bronzeville neighborhood, we have regenerated a safe, inclusive space for the community of Bronzeville, as well as the rest of the south side.

Our proposal creates a ground scraper rather than a skyscraper to validate the storefront experience of the many jazz clubs

historically placed along the Stroll which ran from 26-39th street. With this in mind, we kept a central circulation route throughout our site which mimics continuity of the archived Stroll. In order to develop a massing, we considered aspects like scale, building heights, surrounding attractions, existing grids, indoor/outdoor spatial relationships, and public transportation accessibility.

35
05
Building Elevation

Our program is arranged to generate curiosity and to bridge all of these community-driven spaces together. We have created overlapping massings that connect the programs to each other, and a program that is based off of the size of the massing, to allow for the community to drive the use of our cultural hub. The relationship between the interior and exterior can allow visitors to choose if they’d like to stay inside and explore the building, or explore along the exterior.

37 36
39 38 Ground Floor Plan

Our proposal aims to be an inclusive project with the community. When it comes to the operation of our groundscraper, our intentions lie with allowing the community to manage the spaces upon opening. This allows for the community to immediately support itself and its neighbors by employing one another to create a successful, energetic environment.

It will be inclusive of all modern music and culture for Chicago and the south side neighborhoods. We aim to create a visual and experiential amenity for all.

41 40

LOS ANGELES, CA: a commUnity for women

ARCH 4520 - Spring 2023: Professor David Franco I Partner: Samantha Garland

“Everyone living in the United States should have safe, accessible, sustainable, and permanently affordable housing: a Homes Guarantee.”

- People’s Action, A National Homes Guarantee ” If we had to single out an issue related to architecture and the built environment as causing social distress in the US, the lack of access to adequate housing would arguably be one of the strongest candidates from any reasonable perspective. Some of the most dramatic societal problems in American cities—from homelessness or gentrification to inequalities of opportunity in education and healthcare—are, at least partially, caused by the current housing affordability crisis and the displacements it creates. However, very little of the innovative drive of architecture, as an academic discipline and a profession, is used to imagine alternatives to the current situation. While plenty of policy think-thanks, urban planners,

and social science scholars are proposing strategies, plans and ideas to combat the housing affordability crisis, the dominant architectural discourse largely ignores this issue. In my exit studio for undraduate, my partner and I chose to combat this. Skid Row in downtown Los Angeles is a national hub for homlessness, where women especially are at a disadvantage as they try and re-enter society.

Women experiencing homelessness are more vulnerable to the dangers of homelessness. By partnering with the Downtown Women’s Center (DWC), we envision a Los Angeles in which every woman is housed & on a path to personal stability. Our mission is to provide affordable permanent housing to single women experiencing homelessness, work with the DWC to provide more healthcare for women, and promote our core values of community, identity & accountability.

Homelessness should not be a cyclical problem- the cycle needs to be

43 06

skid row is ~.4 square miles and houses 11% of the Los Angeles homeless population.

3.849 million people live in Los Angeles and of that 41,290 people experience homelessness.

3,600 women are homeless on Skid Row

By recognizing the adversities that face Skid Row, my partner and I were able to design “a commUnity for women” as a safe space that partenrs with the Downtown Women’s Center to build women back up so they can enter a place in society. Historically speaking, women face extreme adversity, especially within the homeless population.

ground plan

the issues:

nity for women: 107 units

density of tents in Skid Row:

weingart tower: 278 units the alvidrez: 151 units

downtown women’s center 5th

st.

san pedro st. comm

the issues:

1 out of every 5 American women have been the victim of an attempted or completed rape in her lifetime 1 out of every 71 American men have been the victim of an attempted or completed rape in their lifetime

1 in 4 women and 1 in 9 men experience severe intimate partner physical violence, intimate partner contact sexual violence, and/or intimate partner stalking

people who have been sexually assaulted are:

3.4x more likely to use marijuana

6x more likely to use cocaine

the solutions:

10x more likely to use other major drugs

in 2019 there were 59 reports of rape cases from homeless women as victims

core values

in-house counseling and rehab services located on the second floor allow residents to have access to 24/7 care with trusted medical professionals

partnering with the Downtown Women’s Center we offer female health services free of charge to residents, located on the first floor

Women are 47% more likely to suffer severe injuries in car crashes because safety features are designed for men

151,107 more women than men in Los Angeles county, which is 1.49% of the total population

women of color now representing almost 70% of women in Los Angeles county. Latinas, representing the largest proportion of women

secure entrances and women only living facilitate a safe environment with support resources located throughout the building

permanent supportive housing creates stable housing for women who have experienced homelessness, prolonged extreme poverty, domestic abuse, poor health, disabilities, mental illness and/ or addiction can lead safe, stable lives in wellness

49 48

individual sers

apartment nits for single adult women

nits combine and stack to create micro communities among users

combined nits intersect to create a greater community, as well as, aiding in the rigid structure

micro community

51 50 phrases sentences
letters words
top floor bottom floor
U

unit types

4bed/4bath

a group of women all recovering from different addictions

2beds/2baths

an elderly mother and daughter who lost their home paying for medical bills

1bed/1bath

social worker who works in the first floor heath center

2bed/2bath

two women recovering from business foreclosure as a result of Covid19

2bed/2bath

two young women looking to attain their college degree and get themselves back on their feet.

2bed/2bath

two women who enjoy hosting neighbors and connecting with others in their community

women’sdowntowncenter

(existingstructure)

52
we provide shared bikes by partnering with local bike shops and donation centers, allowing for convenient access to transportation. an in house women’s health clinic provides STD and HIV testing, tuberculosis and cancer screenings, vaccinations, mammograms, and physical as well as mental health assessments. offices for case workers located along the perimeter to expand the resources of the DWC allowing them to help 10% more of the homeless population. bicycles case workers double height spaces in Units provide increased sunlight & ventilation through a luxurious common space. spacious bedrooms allow for flexibility of one queen sized bed or 2 twins to fit comfortably for adaptations dependent on resident conditions upon move-in MICRO COMMUNITY the U structures range in height from 2 to 4 stories tall, this creates variations of micro communities as well as different experiential spaces on the exterior terraces in individual Units. the structure is strengthened through the 90° rotation of U structures. rigidity is achieved by this simple move and runs through the building. founded in 1978 the DWC is the only organization in Los Angeles focused exclusively on serving and empowering women experiencing homeless and formerly homelessness public resources along the building’s exterior keep non-residents separate from residents maintaining high levels of safety will still aiding the community 75% direct access with the DWC expands the only health clinic exclusively serving women on Skid Row. the two buildings will operate jointly tripling the resources of the DWC. upon installation, 30% of the total upfront cost for the new solar panel system will be deducted from a Federal Tax credit. after installation, the panels will reduce electricity bill by 75% sanpedrost. 5thst. key card entrance points public services connection to DWC history of DWC double height spaces flexible bedrooms layered community rotation solar panels health clinic security

micro community

micro communities within the U facilitate all sub categories of our core values, community, accountability, and identity. Within these spaces women can look to each other for growth, support, knowledge and comradery.

the individual Units within the larger U structure are diverse in resident profile creating a melting pot that flows into the greater building.

54 MICRO COMMUNITY
56 female owned coffee shop to support local small business as well as provides residents with an employment opportunity. health care & wellness center focusing on womens’ health in collaboration with the Downtown Women’s Center. library and computer room offering resources and a quiet community space for learning. public grab & go cafeteria and public restrooms with showers to aid those on the streets. access to these facilities is separate from our building to ensure female security. indoor community spaces provide flexibility for residents. whether set up as a yoga studio one night, or a book club another, it adapts to residents interests. light weight steel truss foam insulation cement board aluminum cladding structure assembly exterior community spaces create nodes of rest with breaths of fresh air for residents. these spaces are available for all residents to use and are throughout the building. mullions act as a variation of the U modules throughout the building. they additionally shadows cast by them creates unique interior spaces for residents. interior atrium provides views across each tower for residents and large safe outdoor community gathering spaces with ample natural light and fresh air. lightweight foam prefabricated U are stacked and threaded through steel columns that fall within a smaller grid system that runs throughout the length of the building. adaptive space outdoor space secluded space mullion variation library and computers wellness center employment public restrooms fitness center located on the second floor where group fit classes are offered weekly. buildability of U structure prefabricated light weight U’s allow the assembly process to be cut down by 1/3 This reduces costs as well as limits the disruption of the urban fabric during construction connection micro communities create connections vertically and horizontally throughout the building U elements are clad with aluminum panels that reflect both sunlight and the colors of the Los Angeles skyline. aluminum panels are a low cost solution to keeping construction costs low. windows in each Unit are floor to ceiling with 3 variations in width: 3’ ,6’, and 12’ modeled off the 12’ structural grid fitness center construction cost window grid exterior terraces on Units provide residents with a space for greenery that not only acts as a noise and pollution barrier but also as a place for fresh air within their unit. vegetation
from
view the roof of the Downtown Women’s Center looking east. view from the 20th floor looking across the Los Angeles skyline looking south. exterior outdoor spaces act as flexible group spaces. here, one has views across the interior atrium as well as to the Downtown Women’s Center. view across the atrium towards 5th street, the view also helps to encourage a feeling of community across Units.
58 kayla pyles Architectural Designer & Freelance Graphic Designer kaylaapyles@gmail.com (717) 818 2704

Turn static files into dynamic content formats.

Create a flipbook
Issuu converts static files into: digital portfolios, online yearbooks, online catalogs, digital photo albums and more. Sign up and create your flipbook.