Architecture Portfolio

Page 1

KAYAORONA

UNIVERSITYOFARIZONA|CLASSOF2023 ARCHITECTURE PORTFOLIO

KAYA ORONA

EMAIL: kayaorona@email.arizona.edu

PHONE: (602) 550-0069

INSTAGRAM: @kayaorona_architecture

ISSUU: kayaorona

EDUCATION

University of Arizona

• College of Architecture, Planning, and Landscape Architecture (CAPLA), NAAB-Accredited Bachelors of Architecture, Graduation Year: 2023

• Dean’s List with Academic Distinction, GPA: 3.95

• College of Architecture, Planning and Landscape Architecture (CAPLA) | Lead Ambassador

• American Institute of Architecture Students (AIAS) | Board Memb er: NCARB Advisor (2021) and Student Mentor (2018-2022)

EXPERIENCE

University of Arizona | ARC321 Teaching Assistant | 2021-2022

• Building Technologies II - Concrete, Wood, and Steel Structures

EXTRA ACTIVITIES

University of Arizona | Student Assistant | 2022

• Work with College of Architecture (CAPLA), Office of Native American Advancement & Tribal Engagement (NAATE), Native Peoples Technical Assistance Office (NPTAO) to help in the process of designing a Native and Indigenous student center on UArizona’s campus

• Facilitate student focus groups

• Gather research and create graphics for the public

• Assist students with assignments and assist instructors with gr ading Corgan | Commercial Architecture Intern | 2022

• Complete drawing sets and all 3D modeling in Revit

• Design mood boards and presentation graphics for client meeting s

• Provide research and conceptual sketches for pre-design phases

SPS+ Architects | Architecture Intern | 2020-2021

Commercial, Educational, and Multi-Family:

• Complete drawing sets and renders in Revit, Illustrator and Photoshop

• Design graphic booklets for award submissions and clients in In design

• Provide research and sketches for pre-design phases

#iamHUMAN Media | Graphic Designer, Editor | 2017-Present

• Designed and created the main logo for #iamHUMAN Media and Indi genous Cafe

• Edit public service announcement scripts and short-video script s

• Use Photoshop and Illustrator to produce CD Covers

Native American Performer

• Public Speaker

• Recorded Singer

• Jingle Dress Dancer

• Co-writer of a Native Anthem, “Liberation” written with Aloe Blacc and Maya Jupiter

Artist

• Designed a mandala to be put on t-shirts, banners, and fliers

• Design logos for small businesses

• Design art to be put on CD Covers

AWARDS

CAPLA City Immersion Scholarship | 2022

• Researched contemporary Indigenous art and architecture in Seattle, Washington and made a presentation on findings to share with UArizona

CAPLA Externship | The M Group | Reston, Virginia | 2022

• Shadowed the principals and learned the inner workings of the f irm

RKA Prize | 2022

• Architectural Narrative: Honor Award

• Urban Catalyst: Honorable Mention

AGM Universal Design Winner | 2021

• Innovation Award: Sustainability

Studio Faculty Award | 2021

• Design Excellence

SKILLS

Technical Skills

• Rhino 3D Modeling + Drafting

• Revit 3D Modeling + Drafting

• Hand Drafting

• Creative Cloud including Illustrator, Indesign, Photoshop

• Mac/Windows PC Proficient

Soft Skills

• Public Speaking

• Teamwork

• Leadership

• Time Management

• Organization

Highly motivated Bachelors of Architecture student interested in further developing skills in a design-driven field.

STATEMENT

01-06 7 GENERATIONS 07-12 FOR A BETTER FUTURE SUMMERHAVEN, ARIZONA

13-20 TRANSCEND TUCSON, ARIZONA TUCSON, ARIZONA

21-26 ALL IN THE JOURNEY BISBEE, ARIZONA

27-30 DAPPLED TUCSON, ARIZONA

31-32 HAND DRAWING ARC101-ARC401

7 GENERATIONS |

TUCSON, AZ

CREATING PLACE. BUILDING COMMUNITY. PRESERVING HERITAGE.

7 Generations focuses on the idea that the decisions we make today will have an impact on future generations to come. The project acknowledges the uncertainty of the future by celebrating the opportunities that we have for positive change by being a demonstration of built environment innovation.

7 Generations grows from the roots of Tucson by its use of local materials and integration within the environmental and cultural context to provide for the area on both a macro and micro scale; creating a node in the city for all to inhabit. 7 Generations is a destination built off of the knowledge that we have learned and that we are going to learn in the time to come and being able to build and expand for future generations.

THE PEOPLE OF THEN, NOW, AND THE FUTURE.

“Attach great importance to the Indigenous population of America... should they be educated and guided, there can be no doubt that they will become so illuminated as to enlighten the whole world.”
-Abdu’l-Baha

Site Slope Emerge Span Fold Flow

7 GENERATIONS 03 PROCESS SITE MAP

Low E-Coated Glass

Higher levels of comfort, reduce radiant heat

Reclaimed Walls + Floors Durable material

Reclaimed Wood Roof Renewable material

Mass Timber Truss Eco-conscious material

Mass Timber Framing Regenerative materials

Rammed Earth Walls Resource taken from existing site

7 GENERATIONS 04 MATERIALS SECTION

Built 2060 | Public Market Built 2090 | Temporary Housing

Built 2030 | Education + Event Space

7 GENERATIONS 05
FUTURE SITE PLAN

Site Manipulated | 2025 Buildings Constructed | 2030

Vegetation Growing | 2060

Vegetation Flourishing | 2090

Water is sacred and ceremonial.

Precipitation

HVAC Greywater

Water Detention Area

Water flows to larger pools.

7 GENERATIONS 06
SECTION GROWTH OVER TIME

FOR A BETTER FUTURE |

SUMMERHAVEN, ARIZONA

The design of the Planetary Health Science Learning Center emerged through the process of analyzing the environment, researching planetary health science and considering universal design principles to influence the form, program, and experience of the space. The analysis of the environment led to the design decision to lift the form above the ground to fully take in the views of the trees that surround. In order to create this design, the use of a full truss system and a vertical circulation core enables this design to float amongst the trees. This process led to the discovery of planetary health and how this science calls for humans to appreciate the land in order for the land to be minimally disturbed for future generations. Therefore, the theme of efficiency furthered the design through the use of a free plan, considering environmental properties like air flow and using spaces for multiple functions. Lastly implementing an equally accessible experience by considering the universal design principles allows for all users to visit the design and appreciate the environment that surrounds, ultimately leading to human growth “For a Better Future.”

THE SCHOOL OF ARCHITECTURE THE AMERICAN INSTITUTE OF ARCHITECTS DESIGN EXCELLENCE PROGRAM This students work was advanced to Stage 2 of the Design Excellence competition by nomination of the studio Faculty. STAGE 1 STUDIO FACULTY AWARD KAYA ORONA ARC 301 Director, Robert Miller Dean, Nancy Pollock-Ellwand, PhD
FOR A BETTER FUTURE 09
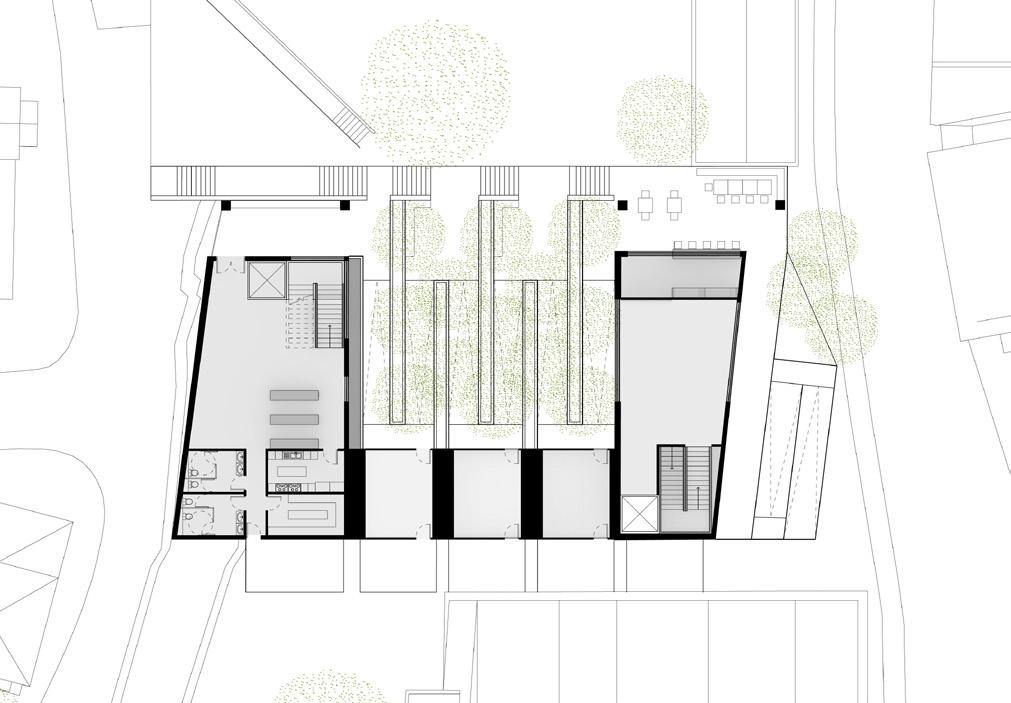
SITE PLAN
-2 LEVEL PLAN -1 LEVEL PLAN 0 LEVEL PLAN

CIRCULATION + VIEWS

MATERIALS + STRUCTURE

WIND + WATER

10
FUTURE
PLAN
FOR A BETTER
FOR A BETTER FUTURE 11 UNIVERSAL DESIGN Equitable Use Flexibility in Use Simple + Intuitive Perceptible ELEVATION
Information 12 FOR A BETTER FUTURE Tolerance for Error Low Physical Effort Size + Space SECTIONS

TRANSCEND

| TUCSON, ARIZONA

Transcend is on the University of Arizona campus and is directly adjacent to the 6th Street parking garage and ENR2. The study of the urban fabric as well as the study of Dia de los Muertos shaped TRANSCEND’s form, function, qualities. The circulation of the design creates fluid paths through, to, and around the site, creating livability for all visitors. The two structural systems bring diversity to the building through the use of a concrete-enclosed, cantilevered space that sits within a glass enclosure; symbolizing the souls who have passed being brought back to life by the living. The continuous steel structure and accommodation for all users being vitality to the design through both physical and functional strength. The design serves to create a juxtaposition between life and death, light and dark, and light and heavy in a simple but intuitive way that bring viability to the design in a direct connection to the site. Dia de los Muertos is a time where souls who have passed go beyond their world into the physical world just as TRANSCEND surpasses its limits through form, cantilevers, and materiality.

URBAN ISOMETRIC TRANSCEND 15
16 TRANSCEND
URBAN SECTIONS TRANSCEND 17
18 TRANSCEND

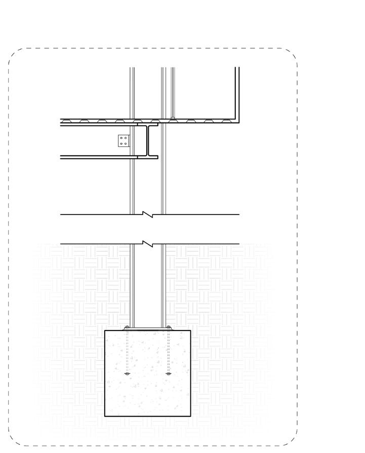
DETAIL A | Exterior

DETAIL B | Ground

TRANSCEND 19 CONSTRUCTION SECTION
20 TRANSCEND CONSTRUCTION SECTION
DETAIL C | Sky DETAIL D | Interior

ALL IN THE JOURNEY |

BISBEE, ARIZONA

The community and retreat center is designed for all users to have an equal opportunity to experience the individual space while being immersed into nature when circulating. A series of low physical effort ramps were created to connect the structures and allow for meditative and reflective moments while going through the site. Storefront facades welcome users into interior spaces by revealing a sense of clarity between the interior and exterior. Roof overhangs connect the three structures in the design but also interact with the existing structures. The design welcomes the community to grab a cup of coffee at the walk-up coffee shop, take part in the activities being held or to simply meditate on their own. Every visitor’s journey will be different but they are all connected by the equal opportunity to experience it.

4TH LEVEL PLAN

3RD LEVEL PLAN

2ND LEVEL PLAN

1ST LEVEL PLAN

ALL IN THE JOURNEY 23
24 ALL IN THE JOURNEY MEDITATION SPACE SLEEPING AREA CLASSROOMS LOBBY

UNIVERSAL DESIGN

Equitable Use Flexibility in Use Low Physical Effort SECTIONS

ALL IN THE JOURNEY 25

Size + Space Perceptible Information Tolerance for Error

26 ALL IN THE JOURNEY

DAPPLED | TUCSON, ARIZONA

Combining the models of to disarrange, to wander, and nonlinear, the design features a new path through the site to allow for a shaded as well as quicker access to the other side of the existing path. To disarrange is shown through the disarrangement and stacking of the roofs. Some of the structures are pulled apart from the path for inhabitants to take a break from walking/biking. Each disarranged roof features a bench or a table for people to sit, eat, talk or relax in shade with the breeze flowing from the Southeast. To wander is presented through the new path itself, wandering off the existing path and into the new path. Nonlinear is illustrated through the form of the open and closed roofs of the design.

PHYSICAL

DAPPLED 29 CONCEPT MODELS
MODEL Across Drought Non-linear Shadow SITE MODEL To Contour
30 DAPPLED SECTION Contour To Disarrange To Flow To Laminate To Wander SITE MAP
HAND DRAWING | ARC101-ARC401 HAND DRAWING 31 HAND SKETCHING | Black Pen HAND DRAWING | Charcoal

2D HAND DRAFTING | Drafting Pencil

DRAWING 32
HAND
3D HAND DRAFTING | Drafting Pencil and Pen
KAYAORONA@EMAIL.ARIZONA.EDU (602)550-0069
THANKYOU

Turn static files into dynamic content formats.

Create a flipbook
Issuu converts static files into: digital portfolios, online yearbooks, online catalogs, digital photo albums and more. Sign up and create your flipbook.