Architecture Portfolio

Page 1


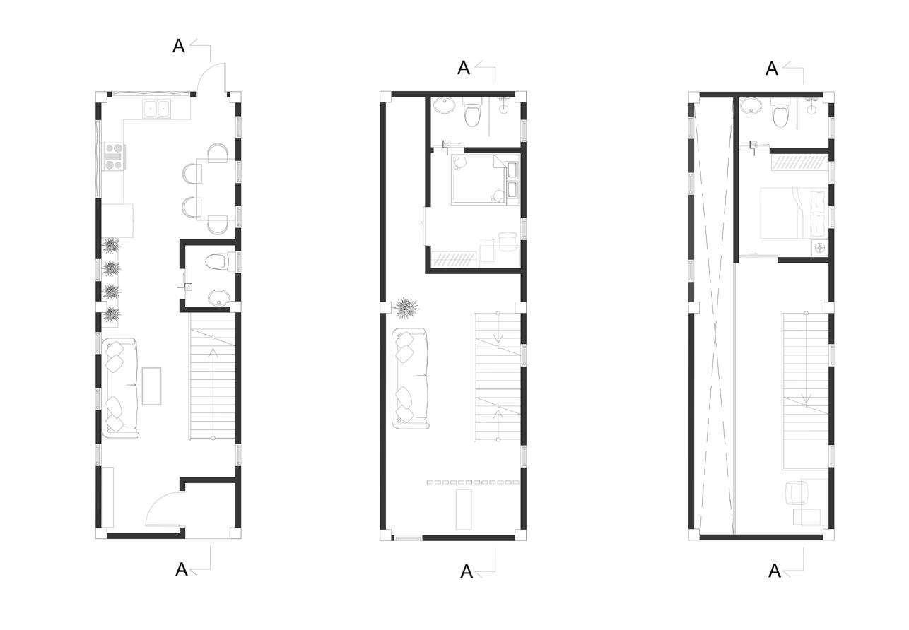
239 SKINNY HOUSE

The combination of minimalist plaster architecture and monochrome interior design transforms the challenges posed by a skinny house into opportunities for creativity. By embracing simplicity, functionality, and visual cohesion, this architectural approach can create a unique and elegant dwelling that stands out for its distinctive blend of style and spatial efficiency.The goal is to create a harmonious blend of simplicity, functionality, and aesthetic appeal within the constraints of a narrow footprint.

CONCEPT DIAGRAM

NATURAL LIGHTING

MASTER BEDROOM
HOBBY CORNER
BATH & W.C

MANAU CAFE 4.0

The renovation of the café in Myitkyina, Kachin State, reflects a thoughtful blend of tradition and innovation, creating a vibrant gathering space that honors Kachin culture while embracing the contemporary needs and aspirations of its patrons. The renovation introduces flexible seating arrangements that accommodate varying group sizes and preferences, from intimate booths and communal tables to cozy corners and alfresco dining options. The outdoor seating area is expanded and landscaped to create a serene oasis that harmonizes with the surrounding environment.

EXTERIOR PERSPECTIVE FLOOR PLAN

COFFEE SHOP AREA
COFFEE SHOP AREA
COFFEE SHOP AREA
COFFEE SHOP AREA
COFFEE SHOP AREA
OUTDOOR AREA
OUTDOOR AREA
Manau Cafe
VIP ROOM
VIP ROOM
VIP ROOM
VIP ROOM

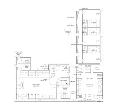
SHWE BON THAR

The interior design of the Gold Shop in Mandalay combines opulence, comfort, and local culture to create a mesmerizing environment that resonates with customers seeking luxury and quality in their gold shopping experience. The careful selection of colors, materials, lighting, and displays transforms the space into a lavish sanctuary for those who appreciate the finer things in life. The aim is to create a space that immerses customers in a world of elegance and extravagance, while incorporating local cultural influences.

AXONOMETRIC DIAGRAM

Gypsum Board
Gold Composite
Mirror Panel
Logo
Cashier Counter
Display Counter
Mirror Panel
Mirror Panel
Ads Board Gold Composite
Glass BLock (Existing)

FLOOR PLAN

ALIBABA & THE COSMOS

Alibaba Amusement & The Cosmos in Yangon offers a unique and engaging shopping experience. The thoughtful design blends playful amusement park elements with the intrigue of space exploration, creating a magical environment that delights visitors of all ages. The use of vibrant colors, interactive displays, and thematic decor ensures that the space is both fun and functional, inviting customers to explore and enjoy the wonders within. It’s a delightful retail space designed to captivate both children and adults. The interior design reflects a blend of whimsical amusement park themes and cosmic adventure, creating an inviting and enchanting environment.

ENTRANCE AREA

ENTRANCE AREA

AREA

AREA

AREA

SHOWROOM AREA
SHOWROOM
SHOWROOM
SHOWROOM

AREA

AREA

SHOWROOM
SHOWROOM
SHOWROOM AREA

ENTRANCE AREA ARCADE

I-BAR

The interior design of the Futuristic I-Bar in Yangon complements its innovative architectural expression, creating a dynamic and immersive environment that reflects the spirit of modernity and technological advancement. Through a harmonious fusion of form, function, and futuristic aesthetics, the interior spaces of the I-Bar offer a transformative experience for visitors, blurring the boundaries between physical and virtual realms. By seamlessly integrating cutting-edge technology with human-centered design principles and sensory experiences, the I-Bar offers a glimpse into the future of interactive environments.

PORTAL PHOTOBOOTH
BAR AREA
BAR AREA
BAR AREA
STAIRCASE
VIP ROOM-1
VIP ROOM-1
VIP ROOM-2
VIP ROOM-2
GUEST ROOM
GUEST ROOM
FEMALE TOILET
MALE TOILET

LEVEL-2 MUSIC LOUNGE

The interior design of the music lounge in Yangon embraces a futuristic theme characterized by sleek lines, innovative materials, and cutting-edge technology. The design aims to create an immersive and dynamic environment that captivates the senses and transports visitors to an otherworldly experience. Lighting plays a crucial role in shaping the futuristic ambiance of the space. The interior design of the futuristic music lounge epitomizes innovation, creativity, and sophistication, offering guests an unparalleled sensory experience that transcends traditional notions of entertainment and hospitality.

BAR LOUNGE FLOOR PLAN
KTV WALKWAY
KTV WALKWAY
KTV WALKWAY
KTV ROOM-A
KTV ROOM-A
KTV ROOM-A
KTV ROOM-B
KTV ROOM-B
KTV ROOM-B
KTV ROOM-C
KTV ROOM-C
KTV ROOM-C
KTV ROOM-C
KTV ROOM-C

Turn static files into dynamic content formats.

Create a flipbook
Issuu converts static files into: digital portfolios, online yearbooks, online catalogs, digital photo albums and more. Sign up and create your flipbook.