Portfolio - Kathryn Tablada

Page 1

The Selected Works

Kathryn Tablada

Bach. Architecture

v Table of Contents
Modernizations and New Additions
Exterior Design
Front Entry Design
Instantiated Skins and Adhesive Blockages 5 Escape the Streets: High Sierra Living 6 Hapa Cultural Center 7 Multi-Family Housing and Construction Documents 8 Thesis
1
2
3
4

Modernizations and New Additions

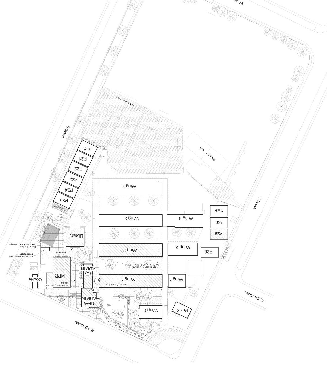
Margaret Sheehy ES Admin Addition

Project

Education: Modernization and Addition

Architect of Record Grant Dodson

Site

Margaret Sheehy Elementary School Merced, CA

Team

Kathryn Tablada, Grant Dodson, Martin Ilic

*This project was produced under Darden Architects, and was put together as a member of this team

This project, located in Merced, CA was completed under the Darden Architects Design Team. This was part of an incremental, campus-wide modernization. This Admin Addition, specifically, was part of the Increment 2 portion of this project, which included the 1,600 SF Admin addition and new site design

KATHRYN TABLADA POST COLLEGE WORK
8/9
KATHRYN TABLADA B. ARCH 2021-2023 8
THE SELECTED WORKS 9 PROJECT 1
KATHRYN TABLADA B. ARCH 2021-2023 10
THE SELECTED WORKS 11 PROJECT 1
KATHRYN TABLADA B. ARCH 2021-2023 12
THE SELECTED WORKS 13 PROJECT 1

Exterior Design

Parlier HS New CTE Building

Projects

Education: New CTE Building and Master Site Design

Architect of Record Grant Dodson

Site Parlier High School Parlier, CA

Team Kathryn Tablada, Grant Dodson, Martin Ilic

*This project was produced under Darden Architects, and was put together as a member of this team

This project, located in Parlier, CA was completed under the Darden Architects Design Team. This Career Technical Education (CTE) Building was designed to pull apects from the existing campus, and make way for an overall master plan for the school.

KATHRYN TABLADA POST COLLEGE WORK
18/19
KATHRYN TABLADA B. ARCH 2021-2023 18 EAST
THE SELECTED WORKS 19 PROJECT 2
SOUTH-EAST
KATHRYN TABLADA B. ARCH 2021-2023 20
PLAN
MASTER
THE SELECTED WORKS 21 NORTH-EAST PROJECT 2

Front Entry Design

Hanford HS Front Entries

Projects

Education: New Entrance designs

Architect of Record Grant Dodson

Site Hanford High School Hanford, CA

Team

Kathryn Tablada, Justo Padron, Grant Dodson

*This project was produced under Darden Architects, and was put together as a member of this team

This project, located in Hanford, CA was completed under the Darden Architects Design Team. These renderings for the new front entrance to the school and pool deck were produced to give the client an idea of what the design will look like when completed.

KATHRYN TABLADA POST COLLEGE WORK
26/27
KATHRYN TABLADA B. ARCH 2021-2023 26
THE SELECTED WORKS 27 PROJECT 3
KATHRYN TABLADA B. ARCH 2021-2023 28
THE SELECTED WORKS 29 PROJECT 3
KATHRYN TABLADA B. ARCH 2021-2023 30
THE SELECTED WORKS 31 PROJECT 3

Adhesive Skins and Instantiated Blockages

Prosthetic Development Studio

Course

Site Operations and Tectonic Systems

Instructor Alex Neyman

Site

Dog Patch, San Francisco

Team

Kathryn Tablada, Robert Villanueva, Bobby Wijaya, Sara Berting

This course will emphasize the design process and rule driven design methodology. Students will develop two and three dimensional drawings and experiment with model-making techniques based on specific methods of design. Focus will be placed on understanding the behavioral aspects of space and structure

KATHRYN TABLADA PROJECT 04
36/37
KATHRYN TABLADA B. ARCH 2015-2020 36
THE SELECTED WORKS PROJECT 4 37
KATHRYN TABLADA B. ARCH 2015-2020 38
THE SELECTED WORKS 39 PROJECT 4
KATHRYN TABLADA B. ARCH 2015-2020 40
THE SELECTED WORKS 41 PROJECT 4
KATHRYN TABLADA B. ARCH 2015-2020 42
THE SELECTED WORKS 43 PROJECT 4
44 2015-2020 B. ARCH KATHRYN TABLADA
45 PROJECT 4 THE COLLECTED WORKS
46 2015-2020 B. ARCH KATHRYN TABLADA
47 PROJECT 4 THE COLLECTED WORKS
KATHRYN TABLADA B. ARCH 2015-2020 48

DENSE: Audience members come together

EXPANDED: As new ideas form, members extend outward throughout the structure to spread these ideas.

Congestion 100%

Congestion 80%

Congestion to Dispersement

Congestion 10%

Congestion 30%

Congestion 60%

PROGRAM: UNITS: SPATIAL CONDITIONS: STUDIO 2,000 SF BLOCKING BACKSTAGE 1,000 SF LINE TO SURFACE CONTROL ROOM 500 SF SUBSTITUTION LOBBY 4,000 SF NESTING THERAPY ROOMS 1,000 SF REDUCTION PRODUCTION LAB 4,000 SF TRANSFORMATION DESIGN LAB 1,000 SF CONGESTION OF TISSUE PRIVATE OFFICES 3,000 SF DEFERRAL OF INTERIORITY RESTROOMS 3,000 SF SURFACE TO LINE STORAGE 1,000 SF STUFFED SKIN UTILITY 200 SF SURFACE TO LINE CIRCULATION 5,800 SF SPREADING USERS: STUDENTS CLIENTS ACTORS PRESENTERS CRITICS TEACHERS SCIENTISTS DESIGNERS ANCHORS: LOBBY STUDIOS THERAPY ROOMS PRODUCTION LAB AGENTS: BACKSTAGE CONTROL ROOMS PRIVATE OFFICES DESIGN LAB PROGRAMS: STUDIOS (2) BACKSTAGE (2) CONTROL ROOMS (2) LOBBY THERAPY ROOMS (5) PRODUCTION LAB DESIGN LAB PRIVATE OFFICES (30) RESTROOMS (20) STORAGE UTILITY PROGRAMS: 8AM 10AM 12PM 2PM 4PM 6PM 8PM 10PM STUDIOS BACKSTAGE CONTROL ROOM LOBBY THERAPY ROOMS PRODUCTION LAB DESIGN LAB PRIVATE OFFICES RESTROOMS STORAGE UTILITY Program Diagram 0 300250200150 10050 400 350 NUMBER OF PEOPLE 0%10%20% 90%80%70%60%50%40%30% 100% PROGRAM ACTIVITY 012 9 876 5 4 310 PROGRAM IMPORTANCE PROGRAM SUMMARY:ing.+ + A and B B, not A, not Neither nor The concept of open, bulging space would be the building to be used more as place to The structure would change from public to certain areas to be more prominent and spacious while others are more There would be greater and closed space which allows for a more program within those The structure of the consistent throughout each program and no new feelings could be from one area to another. A: What the edges of the building housed the more secluded ERASURE + +and not A, not B Neither A nor The intertwining within the building would be more disconnected and separate certain audience. throughout the current current building. would be as unique as would be able to encounThe audience would be knowledge put forth in while also being able toORIGINATION + +and not A, not Neither nor more monumental space. disconnected throughout while also keeping theout the structure would programs. The structure would allowing all programs to TRANSFORMATION + +and B, not A, not B Neither nor The audience would be based on the process product. The growth would the site while allowingthroughout each program Viewers would be introduced to the purpose of the program thus allowing for a stronger basis to build new ideas from. begin at an earlier stage thus allowing a more rapid growth of other A: What if the main studios were located near the entrance B: What if the infected spine started to consume the neck and MIGRATIONspeakers and audience members. The large area that consumes the sporadic form in the center main gathering space for the consultants collaborate to create constructed. This needs to be one of smaller programs within the building.
collaborate on new
for prosthetics.
to
ideas
THE SELECTED WORKS 49 PROJECT 4

Exoskeletal Iden ty DIagram

The building, being comprised of mainly structural beams, sits on the site, s cking out and not u lizing the elements of the surrounding area.

The landscape gets pulled and stretched over the structural beams, begining the process of crea ng a canopy that has been derived from the landscape.

The arrows represent the current mo on and ow of the founda on and surrounding landscape.

As the landscape becomes more manipulated and stretched out, the arrows show the process of how the land gets pulled up and around the structure.

In the nal outcome, the landscape gets draped over the the structure, crea ng a skin like canopy. This helps the the building to become more integrated into the site and appear less seperated.

KATHRYN TABLADA B. ARCH 2015-2020 50

AtriumPier

SURVEILLANCE

In each major occupied space such as the studio, the lobby, the atrium, and the pier, there is a certain amount of privacy that is implemented in each loca on. Such as the studio, you get the least amount of privacy because it has the most cameras and surveillancewithin the main space and in the backstage area. the lobby is slightly less surveilanced, yet you are s ll being watched becaues the lobby is where you begin to have access to all parts of the building. The atrium is by far the least surveillanced because it is the direct route to the Ramp, which is a very public area and open to anyone to come into. The pier, however, is at about the same privacy level as the studio because of it being open to both visitors and sta . You want to be able to know how the sta interacts with the clients and visitors to the building.

Privacy: 0% Opacity: 100% Privacy: 40% Opacity: 60% Privacy: 70% Opacity: 30% Privacy: 30% Opacity:70%
Studio Lobby Atrium Pier Backstage
Iden ty Diagram
Studio Lobby
THE SELECTED WORKS 51 PROJECT 4
KATHRYN TABLADA B. ARCH 2015-2020 52
THE SELECTED WORKS 53 PROJECT 4
54 2015-2020 B. ARCH KATHRYN TABLADA
55 PROJECT 4 THE COLLECTED WORKS

Course

Site Culture and Integral Urbanism

Instructor

Doron Serban, Sameena Sitabkhan

Site San Francisco

Team

Kathryn Tablada

Escape the Streets, High Sierra Living

Urban Spaces Studio

This course explores the role of architecture within the context of evolving urban environments. It unearths the history, currency, and culture of our urban terrain while developing a mindful discipline for articulating a stance and conceiving a responsive program within the parameters of a specific site

KATHRYN TABLADA PROJECT 05
60/61
KATHRYN TABLADA B. ARCH 2015-2020 60
THE SELECTED WORKS PROJECT 5 61
KATHRYN TABLADA B. ARCH 2015-2020 62
THE SELECTED WORKS PROJECT 5 63
Ground Floor Plan LIVING A A Golden Gate Ave. Market St. Kitchen Elevator KATHRYN TABLADA B. ARCH 2015-2020 64
KATHRYN TABLADA B. ARCH 2015-2020 68
THE SELECTED WORKS PROJECT 5 69

HAPA Cultural Center

Cultural Integration Studio

Course

Tectonics and Structure

Instructor

Karen Seong, Eric Reeder

Site

Mission, San Francisco

Team

Kathryn Tablada

This course posits new ways to inhabit large urban structures through a process-driven methodology. By challenging type-driven formulaic structural responses, conflicts between architectural priorities and structural efficiencies are celebrated as the starting point of a dialogue that instigates structural adaptations creating rich tectonic expressions, complex spatial configurations, new program relationships.

KATHRYN TABLADA PROJECT 06
74/75
KATHRYN TABLADA B. ARCH 2015-2020 74
THE SELECTED WORKS PROJECT 6 75
KATHRYN TABLADA B. ARCH 2015-2020 76
THE SELECTED WORKS PROJECT 6 77
KATHRYN TABLADA B. ARCH 2015-2020 78
THE SELECTED WORKS PROJECT 6 79
KATHRYN TABLADA B. ARCH 2015-2020 80
THE SELECTED WORKS PROJECT 6 81
KATHRYN TABLADA B. ARCH 2015-2020 82
THE SELECTED WORKS PROJECT 6 83
KATHRYN TABLADA B. ARCH 2015-2020 84

Residential Clustering Around Schools 3D Map

Newer Apartment Buildings Victorian Style Apartment Buildings Public Plazas and Open Space Roads and Sidewalks (Connections) School Buildings Galileo Academy Urban School of SF Within the Mission District along the roads of Mission and Valencia, there is a concentration of housing surrounding two private K-7 schools. From these center points, we see an outward expantion away from the schools, beginning to thin and become less dense the farther they are from the school. The expantion of the map shows the different elements within the grid. Each series is connected and has relation to the schools. The housing is seperated based on type, but all have connections back to one another as well as the schools and plazas through the roads and sidewalks. There is a trend surrounding the congregation of multi-family housing around schools. Two examples of this are Galileo Academy (9-12) and Urban School of San Francisco (9-12).
Model shows the main dwellings that reside within these school districts. These are the closest in proximity as well as those that congregate around a central area. THE SELECTED WORKS PROJECT 6 85
KATHRYN TABLADA B. ARCH 2015-2020 86
THE SELECTED WORKS PROJECT 6 87

Multi-Family Housing and Construction Documents

Multi-Use Housing Studio

Course

Housing & Comprehensive Design

Instructor

Bradley Sugarman, Goetz Frank

Site

Dog Patch, San Francisco

Team

Kathryn Tablada, Sara Berting

This studio is taken concurrent with ARH 440, and requires students to conceive and execute a comprehensive design proposal for an urban housing complex. Students will examine space at the scale of a module, and its role in shaping a larger entity that relates to context. Students will research housing typologies and their role in shaping the urban fabric

KATHRYN TABLADA PROJECT 07
92/93
KATHRYN TABLADA B. ARCH 2015-2020 92
THE SELECTED WORKS PROJECT 7 93
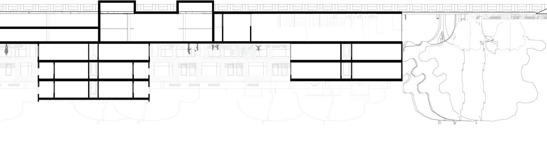
South Elevation KATHRYN TABLADA B. ARCH 2015-2020 94
THE SELECTED WORKS PROJECT 7 95
Section A KATHRYN TABLADA B. ARCH 2015-2020 96
EL. 0’ First Floor EL. 8’ Second Level Parking EL. 16’ Second Floor EL. 26’ Third Floor EL. 36’ Fourth Floor EL. 56’ Sixth Floor EL. 66’ Roof EL. 46’ Fifth Floor EL. -6’ Parking Pit THE SELECTED WORKS PROJECT 7 97
East Elevation KATHRYN TABLADA B. ARCH 2015-2020 98
THE SELECTED WORKS PROJECT 7 99
KATHRYN TABLADA B. ARCH 2015-2020 100
THE SELECTED WORKS PROJECT 7 101
KATHRYN TABLADA B. ARCH 2015-2020 102
THE SELECTED WORKS PROJECT 7 103
KATHRYN TABLADA B. ARCH 2015-2020 104
THE SELECTED WORKS PROJECT 7 105

Reclaiming Maiden Lane: Activating Spaces Through the Senses

Thesis Studio

Course Studio Thesis

Instructor

Mini Chu, Philip Ra

Site Maiden Lane, San Francisco

Team

Kathryn Tablada

This studio is completed over a course of two semesters, Studio 510 and Studio 550. The idea behind this studio is to research a desired topic, find a location within the city of Sanfrancisco, and create a building/structure that embodies the researched thesis topic. The first studio is completed in conc ourse with ARH 529 Thesis Development. The second studio is where the final thesis is put together and finalized

KATHRYN TABLADA PROJECT 08
110/111

Reclaiming Maiden Lane

Ac va ng Spaces Through the Senses

P.O.R.T

Problem: Event and performance spaces are more concerened about the actual event space that they neglect the concourse which contains all of the community interac on

Opportunity: Design a space that sees the concourse as a space that is just as important as the event space itself

Response: Merging together the performance space and the concourse, crea ng a more interac ve atmosphere that brings a social aspect into a performance environment

Technique: Study the acous c proper es of well-known concert halls and compare those to urban sites within the city, as well as study how music in our history has been a key role in bringing the community aspect back into society

Thesis Statement

Music used to be a means of bringing a community together, combing the social aspect of society with the performance atmosphere that outdoor concerts brought. Now, we see performance spaces sepera ng the social aspect and the event space. We no longer interact during a performance or event un it is all over and we gather in the concourse outside of the facility. The Idea of music events is to bring together an audience with a common interest, yet they are unable to discuss this interest during the event. If we pay a en on to the concourse and merge it with the event space, we would be crea ng a cohesive space that allows for large communal gatherings with an emphasis on social interac on, thus crea ng an atmosphere that drives people to engage with one another in a more public se ng.

Concept Statement

By u lizing the forgo en space in the city that contain the acous c proper es similar to concert halls, public entertainers will be given the opportunity to produce and perform for the community within an open, public loca on. This will begin to act as the merger for both event and community space; blurring the line and crea ng an atmosphere that engages the public in a mul ple sensory experiencing while engaging in social interac on, crea ng the community aspect that is lacking within the busy city.

p://designingsound.org/2014/09/29/sonic-architecture/ The Philips Pavilion, based on hyperbolic paraboloids originally used in Metastaseis musical piece by Iannis Xenakis Precedent Research ps://www.archdaily.com/157658/ad-classics-expo-58-philips-pavilion-le-corbusier-and-iannis-xenakis Year: 1958 Brussel’s World’s Fair Loca on: Brussels, Belgium Architect: Le Corbusier & Iannis Xenakis Engineer: Hoyte Duyster The Philips Pavilion was designed as a way to show o the technological expanses of the current year since the end of WWII. Instead of showing o some new form of electronics, Philip’s Company wanted to wow the World’s Fair with something extravogant. The design was meant to capture the senses through sound. The interior was designed my Corbusier and based o of mathema cs and curved like the “stomach of cow”. The exterior was designed by Xenakis. It too was based on mathema cal equa ons and took the form of hyperbolic parabaloid. The geometry of the space was designed to capture the musical design of Xenakis and create an experience for 500 people every ten minutes. ps://www.arch2o.com/architecture-blind-lighthouse-renova ps://www.arch2o.com/architecture-blind-lighthouse-renova Acous (Hollow sounds and hard surfaces) Signage and Brail Polished Concrete Floors for Main Walkway (Carpet for si ng areas) Lighthouse for the Blind and Visually Impaired ps://www.arch2o.com/architecture-blind-lighthouse-renova ons/ ps://www.arch2o.com/architecture-blind-lighthouse-renova Opaque Lighted Walls (Majority Blind Perceive Light or Brightness) Wood Slats (Con nue from ceiling to walls for con nuity and texture) SPORTS Collaborative: Passageways 2.0 Sports Collabora ve creates this con nuous pathway not as piece of artwork, but as a way to bring the people of the city into one space with mul ple func ons. is means to act as social connector where the actors of the city can come together for unique and di erent program layouts and an unformal hangout. The alley begins to become broken up and transformed into series of di erent urban rooms that become in mate spaces and reinforced by di erent painted graphics on the alley walls. p://www.sportscollabora ve.com/
KATHRYN TABLADA B. ARCH 2015-2020 110
Pedestrian Congestion Busker Corners Urban Performance Halls Cavernous Locations POPOS Plazas Overlapping Conditions p://conges on.sfcta.org/ Maiden Lane: Narrow alley that spans two blocks in length. Characteristics of reverberative space. i.e. cavernous, Hall like Noise lessens from the busy surrounding streets when in alley conveniently located near popular tourist destination Union Square: Open public Plaza Projects sound out and away Still contains that Cavernous characteristic Large, popular, well-known location 50-2 Yerba Buena Lane: Open Public Plaza Used mainly as passage rather than public place Has cavernous, lingering sound to the space opens up to market and funnels toward Yerba Buena Garden Powell BART Station: Underground public transportation Concourse is between interior and exterior Creates a cavernous sound desireable sound for buskers (reverberative and amplifying) Located in middle of Downtown, desirable location for exposure and transit Cadmapper Ideal Site Location: Maiden Lane Is located in a prime location. It is stationed within two blocks of San Francisco’s Union Square, but is unknown and ignored by passerbys looking for the next shopping spree. Locals see it as a quiet alley that has the occasional seats and little “patios” for public use and people watching. It is the perfect spot to introduce an experiential, interactive space that allows foor more people to go and experience space that is normally ignored. This site has the characteristics of a Box shape Theater and the acoustic potential to be like a reknown concert hall/venue. 1853 Site Survey 1857 Site Survey 1857 Site Survey 1906 Before Earthquake p://www.foundsf.org/index.php? tle=Maiden_Lane_and_the_Pot-holes_of_History Insurance Map A er 1906 Maiden Lane: Maiden lane was first developed in 1852, but was known as St. Mark’s Place. By 1857, the alley was fully developed and began developing a small series of reidencies and shops. The alley, however, began to accumulate a series of Brothels to the area from 1858-1884, in which the streets name was changed to Morton Street. The alley began to push out any existing residents and began to take in more “cribs”. The alley became one of the leading Red Light Districts up until 1883 when the city began to raid and clean out the alley in attempts to clean up the streets. This was successful, and pushed the brothels out of Union Square and back to the darker parts of the city. The end of the slums within Morton Alley came during the 1906 Earthquake and fires. From there, the alley Became known as it is today, Maiden Lane. The alley was filled with little local shops mixed with high-end shops. The alley was closed to traffic in 1955, allowing a more pedestrian friendly experience. But now, today in 2019, the alley is home to only the high-end market and no longer contains the shops of the people, of the locals. The call for class is high, but has resulted in an alley that has very few people treading through other than the seasonal high spender. We see a drop in use of this alley today, when back in the early 50’s, it had a mush higher demand by the general public. Maiden Lane Analysis ps://www.sfgate.com/bayarea/ar cle/Morton-Street-gave-way-to-Maiden-Lane-a Maiden Lane: 1950’s ps://www.tripadvisor.com/A on_Review-g60713-d311689-Reviews-Maiden_Lane-San_Francisco_California.html Maiden Lane: 2019 MAIDEN LANE POST POST POST GEARY GEARY GEARY STOCKTON STOCKTON STOCKTON GRANT GRANT GRANT UNIONSQUARE 1/32” 1’-0” 3/32” = 1’-0” Sound Loca Di usion Sound 100%75%50%35%25% Siteplan
Analysis THE SELECTED WORKS PROJECT 8 111
Site

RetailRetail

These sec ons highlight the elegance of the form itself while also illustra ng the programs that lie below.

The dancing gures ar ean excellent portrayal of the elegance of the form and the movement that is implied in the structure. Each dancer portrays their movements in beauty and smooth choreography.

Sec ons
Sec
on BB
Cafe
KATHRYN TABLADA B. ARCH 2015-2020 112

Within this perspec ve, we get a view of the entry to the Lane. The scene showcases the diverse dynamic where people gather for not just shopping, but just to go and be with friends and enjoy the community space in its whole being.

S
ve
Perspec
THE SELECTED WORKS PROJECT 8 113
Sec on CC Retail Retail Amphitheater KATHRYN TABLADA B. ARCH 2015-2020 114

The wind in San Francisco comes from the West. The “sails” within the aley may create a light air tunnel affect. This is bene cial in the summer, allowing the Bay breeze to lter through, crea ng a pleasent exterior atmosphere for group gatherings.

Being in an alley, Maiden Lane doesn’t allow much direct light into the space. Most of the light is ambiant and re ects o of the neighboring building facades. One possible way to allow light in would be through strategic openings in the canvas material.

The more feasible op on would be the introduc on of lights. This would be installed into the ground and would be directed up into the canopies themselves.

Tensile Fabric Catenary Cable End Cap 6’-0” West Winter Angle Summer Angle East West East
Wind and Sun Diagrams Canopy Connec ons Ligh ng Diagrams LED Strip Ligh ng: Installa on Wind Path Sun Direc on Alternate Ligh ng Strategy Single-Point igh ng: Below Ground LED Strip Ligh ng: Below Ground Tensile Structure
Diagrams
THE SELECTED WORKS PROJECT 8 115
KATHRYN TABLADA B. ARCH 2015-2020 116
N THE SELECTED WORKS PROJECT 8 117

Acknowledgements

To...

Jennifer Asselstine, Carol Burhman, Eva Chiu, Alex Neyman, Doron Serban, Sameena Sitabkhan, Karen Seong, Reic Reeder, Goetz Frank, Bradely Sugarman, Mini Chu, Philip Ra, Braden Engel, and Greg Grundstrom. Thank you for supporting me and pushing me to be the best I can be through these long five years.

Mom, Dad, Mason, Andrea, Lola, and Jerrica. Thank you for standing by me through the thick and thin and all of my breakdowns.

My Art U Athletics team and family. You know who you are. Thank you for standing by me, making me laugh, and giving me something to look forward to throughout my time in the athletic department. I wouldn’t be where I am without you.

Colophon

1 School Academy of Art University

School of Architecture

2 Course

Senior Portfolio

Mary Scott

3 Book Binder Blurb

4 Photography

Katie Tablada

5 Paper

Cover Stock Image Wrap

Matt Finish

6 Text Stock, Mohawk Superfine Eggshell, Ultrawhite 100lbs, 148 gsm

7 Fonts Athelas Regular, Bold Acumin Pro Light, Regular

8 Contact 559.593.5523 katietablada10@gmail.com

https://katietablada10.wixsite.com/kathryn

Turn static files into dynamic content formats.

Create a flipbook
Issuu converts static files into: digital portfolios, online yearbooks, online catalogs, digital photo albums and more. Sign up and create your flipbook.
Portfolio - Kathryn Tablada by Katie Tablada - Issuu