Portfolio

Page 1

College of DuPage | Spring 2024 Interior Design Portfolio Katherine Evans

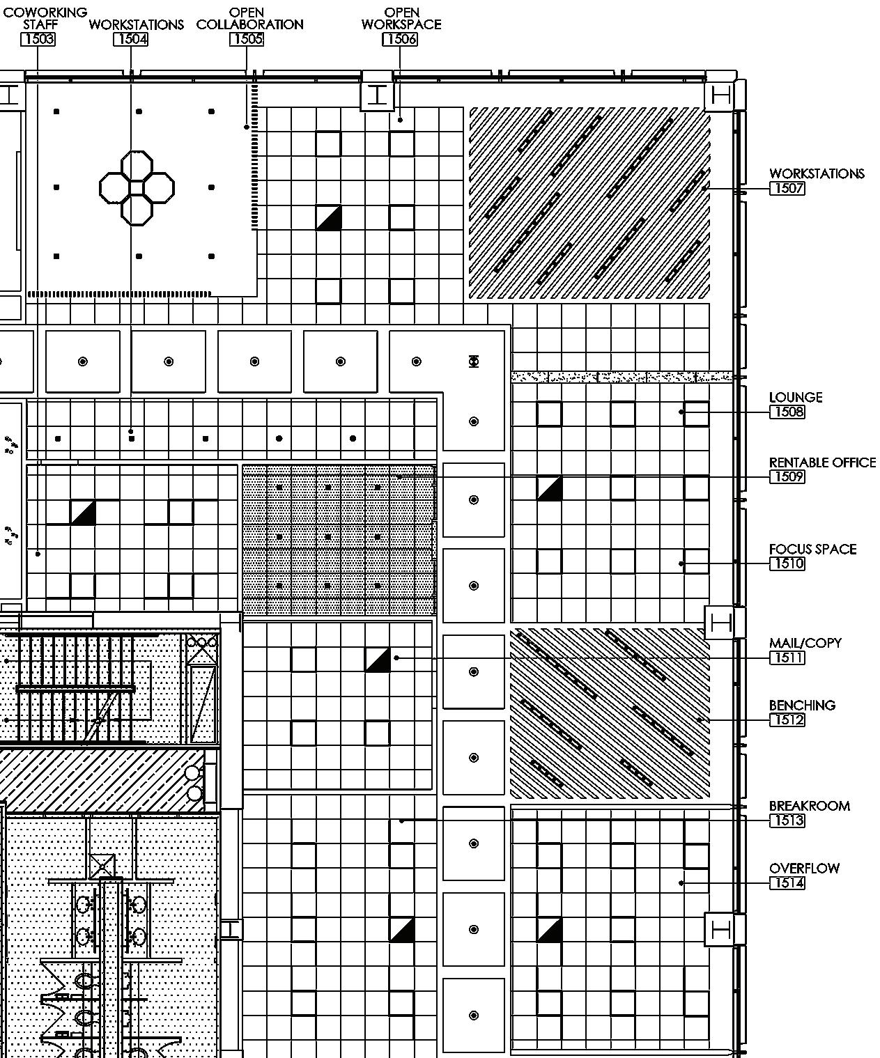
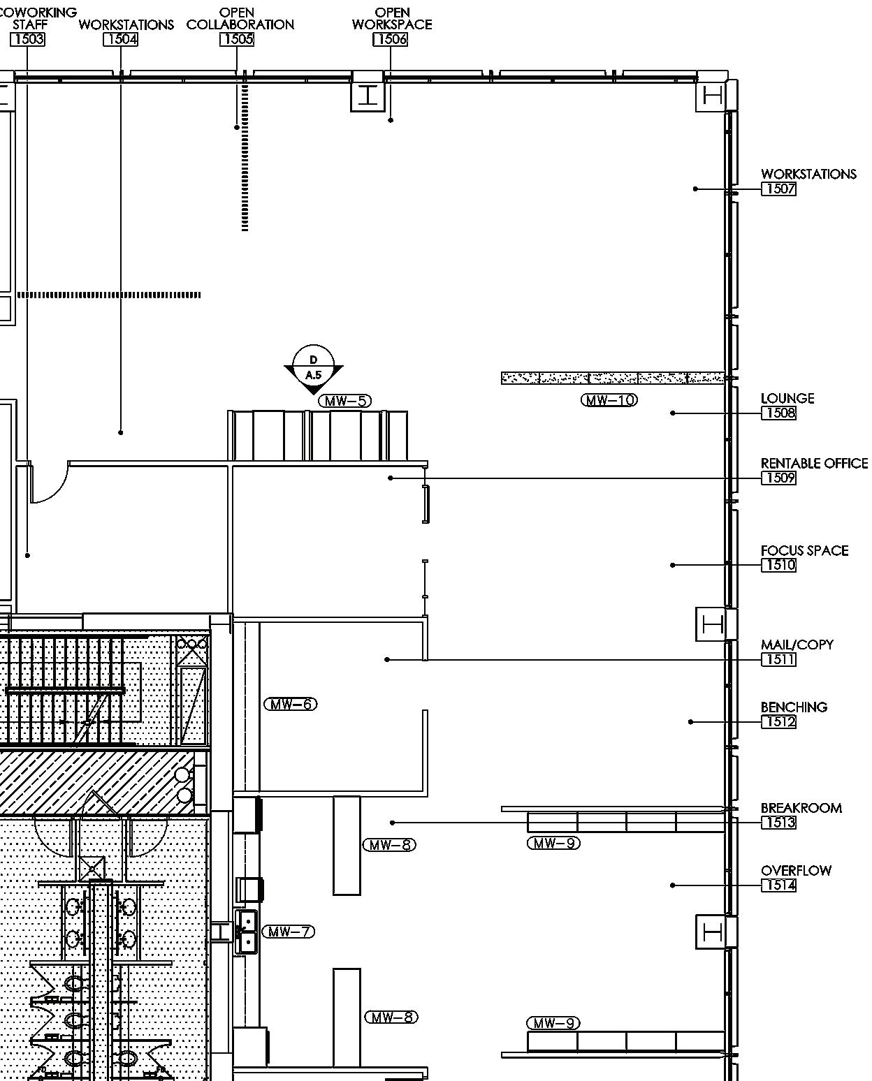
Building Blocks Coworking

Office Design

Coworking Office

Building Blocks Coworking is influenced by the idea that we all need similar resources for their work environment. This is a place for new companies and individual employers to come and share an office and the necessary building blocks to grow a business.

Design Considerations:

- Clear direction of egress through flooring material and ceiling features

- maximize daylight by placing shared open spaces along window line and private closed spaces at the core - incorporate branding through the use of the brand’s color scheme - use of Skyfold vertical folding wall between conference and collaboration room to allow the space to convert to a larger event space

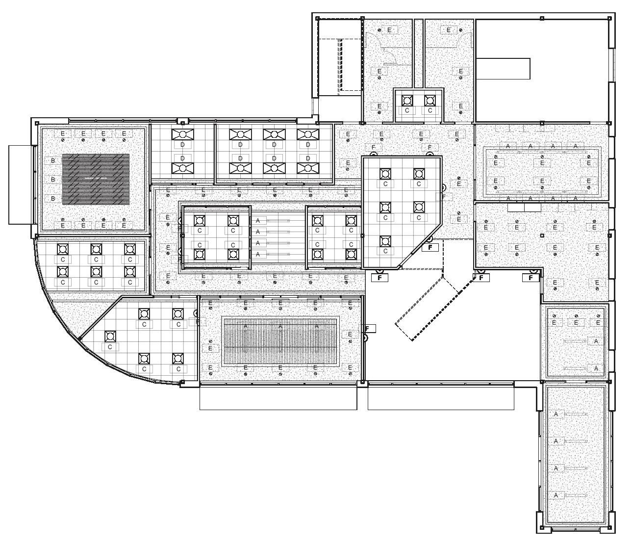
Rendered Floor Plan

1. Flooring - Mohawk Group resilient sheet - Juniperus II Flaxen 2. FlooringMohawk Group carpet tile - Communal Path Stonehedge 3. Flooring - Mohawk Group carpet tile - Quiet Musings Charlotte 4. Flooring - Armstrong Flooring SDTExcelon SDT Beach 5. Flooring - Mohawk Group resilient sheet - Medella Dove
floor plan produced in AutoCAD and rendered in Adobe Photoshop Drawings available upon request | Drawings not to scale but representative of industry standard Drawings produced in Autodesk AutoCAD, rendered in Sketchup and Enscape and enhanced in Adobe Photoshop Mandatory Adjacency Convenient Adjacency Undesirable Adjacency Y - Yes N - No Adjacency matrix provided to show mandatory, convenient and undesirable adjacency between all of the rooms. The matrix provides information on plumbing and other adjacency related considerations.
Office Design | Office Studio 1. 2. 3. 4. 5.
Rendered

Reception Elevation

Scale: 1/2” = 1’-0”

Reception Two - Point perspective

Space Plan

Scale: 1/8” = 1’-0”

Conference Room Auditorium

Millwork Plan

Scale: 1/8” = 1’-0”

Scale: 1/8” = 1’-0”

Ceiling Plan
Reflected

Rosy Posy

Contract

Retail Design

Rosy Posy is a local flower shop aiming to bring happiness to the community. The name is a play on the word Rose and the word Posy meaning a small bunch of flowers. Our mission is to spread kindness through giving to others

Design Considerations:

- Use of color to reinforce brand identity

- placing cash wrap and higher end products at the back of the store to pull customers in to the back to see more merchandise - strategically place merchandise to increase product sales, including placing impulse products near the cash wrap

Merchandise Plan

Exterior Facade Elevation

Scale: 3/16” = 1’-0”

Merchandise plan is to show the placement of different merchandise throughout the space. You will see impulse products are strategically placed near the cash wrap to encourage impulse purchasing. You will also see seasonal products placed at the front to promote customers to enter the store.

Merchandise Plan

Scale: 1/8” = 1’-0”

Flooring Finish Plan

Scale: 1/8” = 1’-0”

Retail Design | Contract Studio Drawings not to scale but representative of industry standard Drawings produced in Autodesk AutoCAD, rendered in Sketchup and Enscape and enhanced in Adobe Photoshop

Sunset Cafe

Sunset Cafe is a local high end cafe that transforms into an evening restaurant highlighting the bar area. It brings a natural element through the use of biophilic elements, natural wood tones, and natural lighting. The concept is to bring the outside environment into the design space. You will see green used throughout to include branding along with the science behind the color. Green is known as both a health color as well as a hunger inducing color.

Floor Plan

Design Considerations:

- ADA compliant design with 5% of seating being ADA seating, ADA compliant men’s and women’s restrooms, and proper ADA clearances - Include layered lighting through different forms of ambient lighting, task lighting, and accent lighting

- Use lighting to help wayfinding throughout the space

- Consistent color temperature by using different dimming levels for certain fixtures

Rendered Floor Plan

Scale: 1/8” = 1’-0”

Bar Elevation

Scale: 3/8” = 1’-0”

Contract Restaurant Design
1. Currey & Company Tobago Pendant | paired with Philips LED bulb 2. ET2 Lighting Half Moon Pendant | LED 3. ET2 Lighting Mermaid Pendant | LED Rendered
Restaurant Design| Contract Studio Drawings not to scale but representative of industry standard Drawings produced in Autodesk AutoCAD, rendered and enhanced in Adobe Photoshop
1. 2. 3.

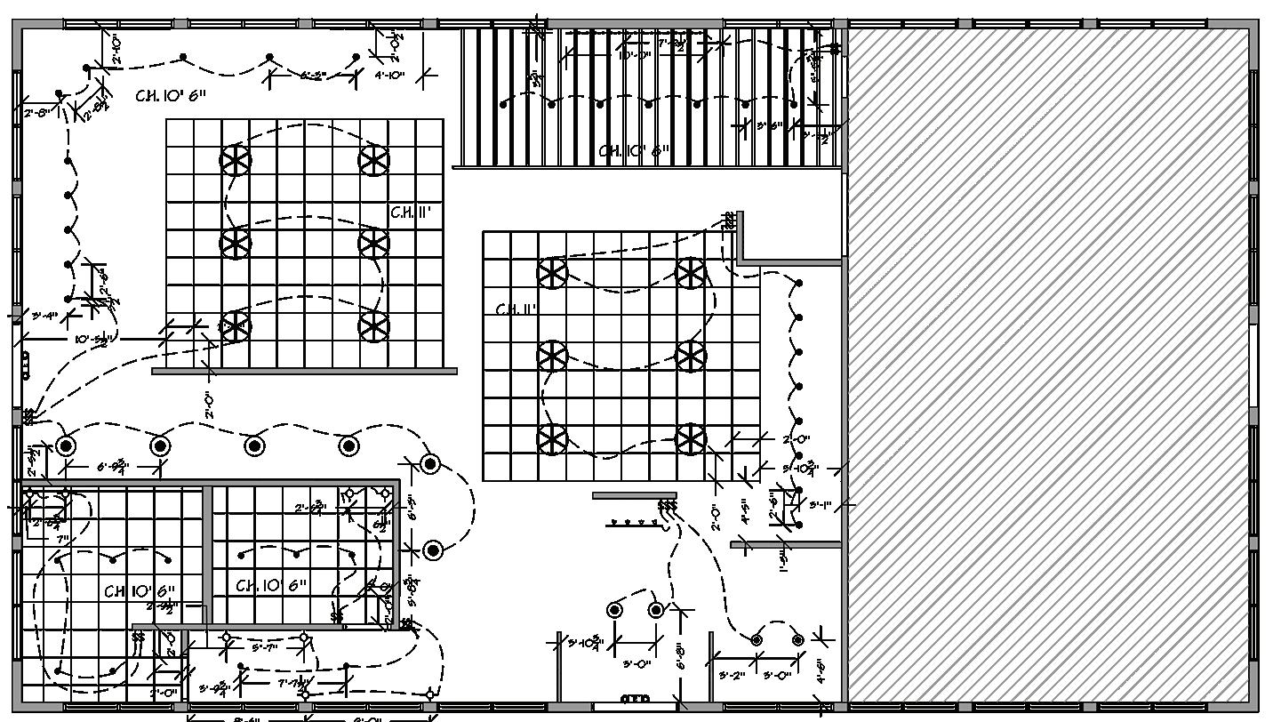
Lighting Plan

Scale: 1/8” = 1’-0”

Reflected Ceiling Plan

Scale: 1/8” = 1’-0”

Bathroom

Remodel

Kitchen & Bath Design I

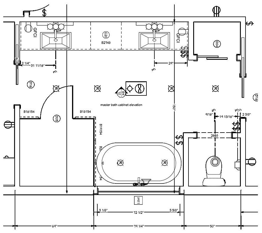
Andre and Simone were looking to renovate their main bath which needed to accommodate themselves, two children, and guests. They would like their complete remodel to include a soaker tub as well as taking a design risk. The layout was provided as part of the NKBA Student Design Competition in which certain standards and restrictions were required to be followed. This project was codesigned with a fellow student, Emilia Bielski

Design Considerations:

- Incorporate aging in place with shower and toilet walls prepped for grab bars as well as non-slip tile flooring

- Sustainability through various materials used

- Mid Century modern design spin with old Hollywood feel through the use of colors and textures

- Include proper clearances per NKBA standards

Budget provided to show products used in the space as well as pricing for each product and quantity of each product. This would be provided to the client as well as to keep for our own knowledge and organization

Drawings not to scale but representative of industry standard Drawings produced in Chief Architect, rendered in Sketchup and Enscape and enhanced in Adobe Photoshop
Plan Scale: 1/2”
1’-0”
Mechanical
=
Budget Bathroom Remodel | Kitchen & Bath Design I

Construction Plan

Scale: 1/2” = 1’-0”

1. Allure Mesmerist - Daltile

|post and pre consumer recycled materials|

2. Miramo Reef - Daltile |post and pre consumer recycled materials and reveal imaging|

3. Eco Spec Hunter Green - Benjamin Moore |Zero VOC’s, certified asthma and allergy friendly, green seal certified|

4. Calacatta Laza Oro - MSI

|LEED and Greenguard Certified|

5. Pebble Oasis Icicle - Daltile

|Made in the U.S.A.|

6. Pebble Oasis Stark - Daltile

|Made in the U.S.A.|

1. 2. 3. 5. 6. 4.

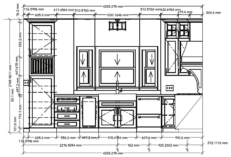
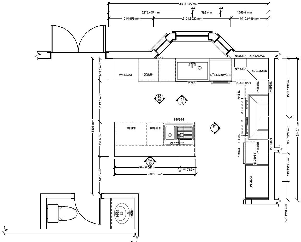
Kitchen & Bath Design II

This kitchen remodel was designed for the Evans Family. It is on the first level of a ranch style home. The family desired to change their cabinetry and appliances The design was inspired by a farmhouse style with a touch of cottage style included. They wanted to add a little color but not too bold. It was decided to use an off white gray with a tint of green color on the cabinets.

Design considerations:

- The design adheres to NKBA standards

- Farmhouse design with a spin of cottage included

Sink Wall Elevation

Scale: 1/2” = 1’-0”

- Custom hood was designed with the proper codes and proper CFM per the range being used Floor

Elevations

Scale: 1/2” = 1’-0”

The elevations provided are to show where cabinets and materials are placed. It is also provided to show cabinet detail. We added detail lines on cabinets that have organization within the cabinet. You can see in the range wall elevation there is a spice rack in a wall cabinet and a lazy susan in the corner cabinet.

Section

1 3/4” = 1’-0”

Scale: 1/2” = 1’-0”

Kitchen Remodel
Kitchen & Bath Design II Drawings available upon request | Drawings not to scale but representative of industry standard | Drawings produced and rendered in Chief Architect and enhanced in Adobe Photoshop
Countertop
Plan
Plan
Cambria Archdale Quartz Countertop
Scale:

Building Information

Modeling

AutoDesk Revit

Chief Architect

Autodesk Revit is a Building Information Modeling (BIM) software that aides in the production of building designs. Starting with detailed 2D construction drawings that simultaneously produce 3D models. Items are placed with parametric values giving it the ability to coordinate changes and maintain consistency through the entirety of a project. This software has the ability to create photorealistic renders through the software cloud or through plugins such as Enscape. Autodesk Revit also has the capability to create schedules that keep up with the changes made to different components within a project.

Chief Architect is a Building Information Modeling (BIM) software that is geared towards residential spaces with NKBA standards implemented. This software gives the ability to create anything from detailed 2D drawings, detailed elevations, to 3D models.

Chief Architect is able to create photo realistic renders through their ray trace feature within the software. This software is able to create schedules along with various detailed drawings of the structure of a home.

Space programming by department is predetermining required spaces. The project began by implementing the names and square footage. Once the floor plan was drafted a formula was implemented to differentiate between the required square footage and the actual square footage provided by the plan.

Autodesk Revit

First Floor Lighting Plan

Isometric - Axonometric Scale: 1/32” = 1’-0”

Building Information Modeling Drawings not to scale but representative of industry standard Drawings produced in Autodesk Revit and rendered in Enscape
Sample of Programming
1/8” = 1’-0”
Scale:
Conference Room

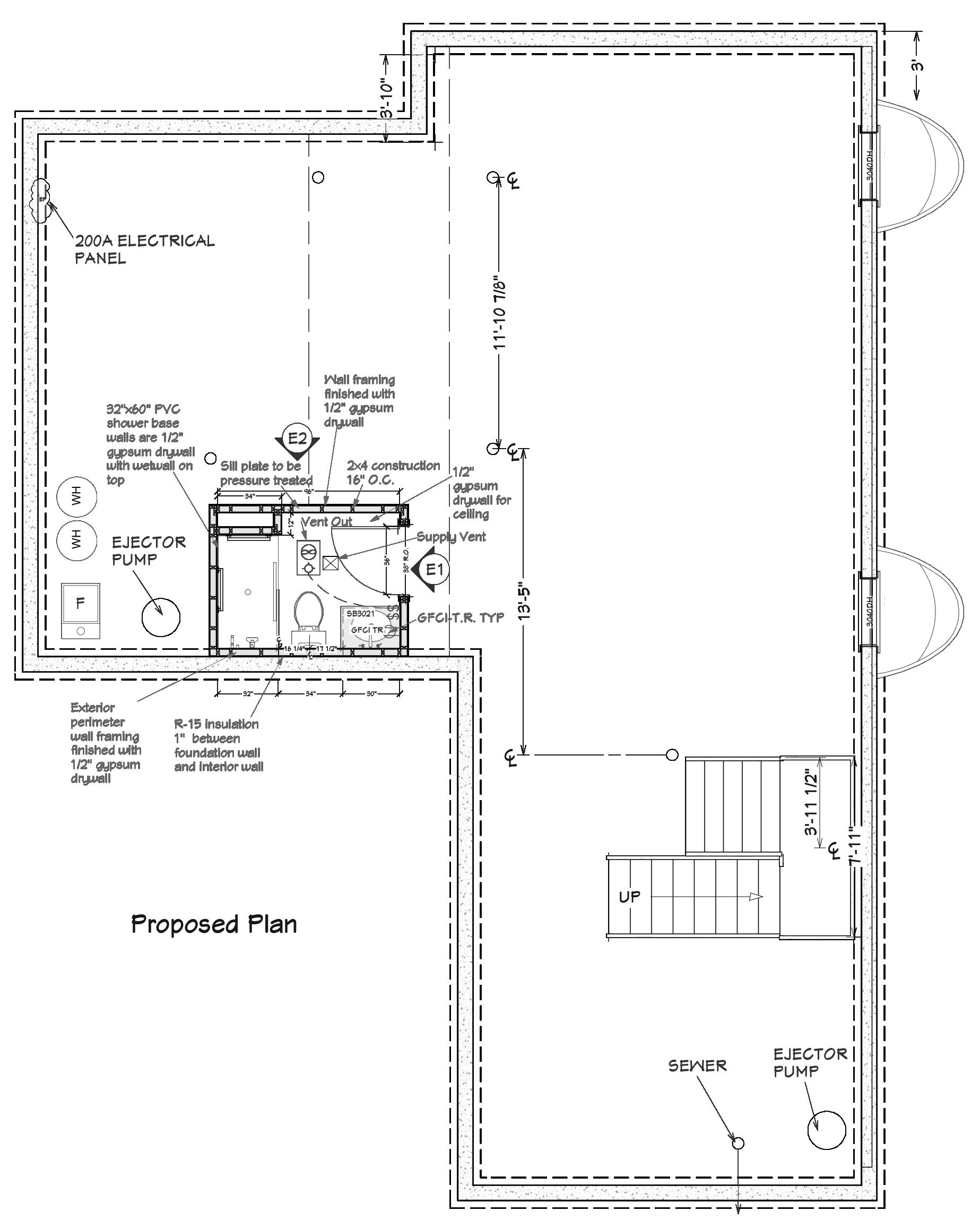
Master Bath Floor Plan

Chief Architect Building Information Modeling
Drawings not to scale but representative of industry standard Drawings produced in Chief Architect Master Bathroom Upstairs Bathroom
Scale: 1/2” = 1’-0” Exterior Elevation Scale: 1/2” = 1’-0”

Project Scope

Adding a bathroom to a basement in ground plumbing is already existing. Add toilet, countertop, faucet, vanity, vanity light and exhaust fan, and shower. Fan will be ducted directly to the exterior. All fixtures will be water sense compliant. Handheld shower will be installed with a vacuum breaker. Add light protect. All lighting will comply with International Energy Conservation Code. Add GFCI/T.R. outlet. All 125 volt single phase 20 amp receptacles will be tamper resistant and installed with an arc fault circuit interrupter. Any existing walls that are opened will be properly insulated with R-15 insulation.

Downers Grove Building Codes:

2021 International Building Code

2021 International Residential Code

2020 National Electric Code

2021 International Mechanical Code

2021 International Fuel Gas Code

2021 International Energy Conservation Code with State of Illinois amendments

2021 International Property Maintenance Code

2021 International Fire Code

2021 International Swimming Pool and Spa Code

2015 Life Safety Code - NFPA 101

State of Illinois Accessibility Code

State of Illinois Plumbing code

Downers Grove Zoning Ordinance

Downers Grove Stormwater & Flood Plain Ordinance

Existing Plan

Scale: 1/2” = 1’-0”

Proposed Plan

Scale: 1/2” = 1’-0”

Drawings not to scale but representative of industry standard | Drawings produced in Chief Architect, rendered in Sketchup and Enscape and enhanced in Adobe Photoshop This
along side Americraft Inc.
Permit Plan
project was completed
Sterling Studios

Lumber List

The lumber list was created in Chief Architect. The list was then provided to the lumber contractor so they would know the required material specifications for new walls to be built.

Wall Framing Elevation

The wall framing elevation was provided on the permit plan and submitted to the municipality. The municipality needs to approve that the construction of the new walls will be built to code to ensure the safety of the home owners and others.

Wall Framing Elevation

Scale: 3/4” = 1’-0”

3 Season Room Floor Plan

Scale: 1/2” = 1’-0”

Section Detail

Scale: 1/2” = 1’-0”

Katherine Evans graduated from the College of DuPage with an Associates of Applied Science in Interior Design along with a Lighting Certificate, a Computer Applications Certificate, and a Kitchen and Bath Design Certificate. She prides herself on her ability to learn, attention to detail, organization, and communication skills. She has a passion to create spaces that improve the wellbeing of others and create designs that are influenced by research.

During her time at the College of DuPage she was a member of NKBA.

She served as the Secretary for COD’s NKBA Student Chapter. She also had the opportunity to give back to those interested in interior design by participating as a judge for the Family, Career and Community Leaders of America (FCCLA) Interior Design High School Competition.

She is proficient in software programs such as Autodesk AutoCAD and Revit, Chief Architect, Sketchup with plug-ins such as Enscape and V-Ray, and Adobe Photoshop and InDesign. Katherine is skilled in 2D technical drawing, 3D modeling and rendering, lighting calculations, space planning, material selection, and product specifications.

708.272.2832

katherine.eliz.evans@gmail.com

www.linkedin.com/in/katherinelizevans

https://issuu.com/katie.evans

Turn static files into dynamic content formats.

Create a flipbook
Issuu converts static files into: digital portfolios, online yearbooks, online catalogs, digital photo albums and more. Sign up and create your flipbook.