
Design Portfolio 2023-2025
![]()

Design Portfolio 2023-2025
Hello, my name is Katia Bass, and I am a junior in the Interior Design program at Virginia Tech. This portfolio showcases a selection of my favorite projects from the past two years, each thoughtfully curated to demonstrate carefully considered concepts, material choices, and design strategies. As an interior designer, I have a strong interest in sustainable design, and I strive to incorporate sustainability and biophilia into my work. My passion for interior design has been a constant in my life since elementary school, driving me to continually explore and innovate within this field. I hope this portfolio provides a glimpse into my dedication, creativity, and the evolution of my design philosophy.
Phone: (757)469-7013
Email: Katiab@vt.edu
LinkedIn: www.linkedin.com/in/katia-bass





Third Year- Fall 2024
Architecture and Design Firm
Revit- Enscape- Photoshop

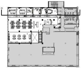
Revamp Interiors, located in Norfolk, VA, utilizes the original structure and framework of buildings. The name “Revamp” signifies our commitment to enhancing and improving the appearance of spaces while preserving their original character. Specializing in residential design, the firm occupies two floors of varying sizes and purposes, each thoughtfully designed to address the challenge of working around columns. Our goal is to create a natural flow within the space, providing open areas that convey a sense of spaciousness while incorporating elements of privacy.


1-Large presentation Room/Huddle Room
2-Private Office X3
3-Client Display
4-Open Offices
5-Reception Desk
6- Waiting Space
7-Phone Booth x2
8-MakerSpace/Material Library
9- Cafe
10: Personal Locker Space
11-Yoga Wellness Room











Design Concept:
Located in Norfolk, VA, Revamp Interiors draws inspiration from the scenic beauty of the nearby Elizabeth River Trail. Our innovative design concept integrates natural materials and a soothing color palette, capturing the essence of nature and the tranquility of water. This approach creates a relaxing and inviting environment within our interior spaces, perfectly blending the outdoors with the indoors. Through our unique design, we aim to foster wellness, creativity, and a harmonious connection to nature.




Café
Lighting:

Seating:


Lighting-Surface-FineliteHP2-SM





Second Year- Spring 2024
Hybrid Retail shop and Cafe
SketchUp-TwinMotion-Photoshop

Southern Sun, located at a beach ocean front, is a unique retail and bakery experience targeting younger female adults. This hybrid project merges the appeal of a bakery with a retail store, allowing customers to enjoy baked goods while shopping for clothes.
Located in Virginia Beach, Southern Sun is a retail and bakery experience that captures the essence of the ocean and the beauty of nature. It’s a place where the shores meet sustainable living. The store’s design features a variety of blues and greens, reflecting the vibrant sea and capturing the essence of the surrounding nature. The interior flows like a wave, with open, airy spaces that invite free-spirited exploration. Materials are carefully chosen for their low environmental impact, supporting the store’s








Flooring




Lighting and Furniture






1. The entrance to the shop is designed to be eye-catching, drawing people inside. A living plant wall serves as a focal point, extending up to the second floor, enhancing the natural aesthetic and inviting atmosphere.

2. In the café, there is a variety of seating options, including booths, stools, and tables, all designed to be accessible to everyone and meet ADA requirements.


Second Year-Fall 2023

Utilizing the Moss Art Center in Blacksburg, VA as an exhibition space, we aim to convey a message and inform people about a topic we are passionate about: beauty standards. My goal is to teach that “society’s ideal imperfections about bodies” are neither right nor true. Everyone is beautiful in their own way. We want visitors to leave this exhibition with a renewed sense of self-love and appreciation for every part of their bodies.
The issue:
Society has labeled certain parts of the body as flaws or imperfections, making people feel like they need to change to fit in. Children are now starting to wear makeup at younger ages to feel pretty or cover acne. Stretch marks are perceived as a sign of excess fat, and hairy arms are considered gross. This is not right. Our bodies are what make us whole, and we should truly love every inch of them. These standards should not exist, which is why I call this exhibition “Breaking Beauty Standards.” I want to show people that we do not need to listen to these so-called standards. If everyone stopped calling these standards, they would lose their power.



Upon entering the exhibition, visitors will be greeted by a receptionist. The entrance features numerous facts and articles posted on the walls, providing context before stepping into the gallery.
Inside the gallery, there is seating available to watch a video titled “Redefine Pretty.”

Floor Plan:




Second Year-Spring 2024
Group Project-2 people
Residential Futuristic Safe House
SketchUp- Rendair- Photoshop- Photoshop AI

Our design takes inspiration from the sun symbol on the Philippines flag. It strives for the ambiance and functionality of the sun in biomimicry, form, lighting, and spatial organization. Each room and furniture piece is in an axial relation to the center in order to mimic the line in which the sun arcs over the building. The use of apertures allows for optimum levels of direct sun influence on the interior through the reflections, shadows, and beams. This design solution will provide comfort and safety during times of refuge.

Futuristic 2050 aspects:
Interactive touchscreen coffee tables
Built-in smart home
Aureus/ photovoltaic cells
Retractable protective shield
Tenting controlled windows
LED strip lighting
Curvature throughout the structure and furniture
Water filtration system
Keywords: Organic Beams of light Illumination Rays Movement/Flow Curvature Exterior



Materials:




Recycled glass: Using recycled glass means less carbon emissions. We would use recycled glass as one of the main components of the exterior to help connect nature to the interior.
Metal: Can be reused and recycled. We would use metal and HYBRIT Steel from SSAB (they eliminate CO2 emissions from operations) in the structure support along with the glass dome shielding during severe weather conditions.
Acrylic: White acrylic plastic sheets. It helps eliminate waste and energy consumption and can be repurposed over and over again. This would be used throughout the interior.
Acacia Wood: Local to that area, and we would reuse the wood. Wood is mainly used on the flooring and in smaller areas throughout the interior.


Early Stage Floor plans:





Furniture:
Sofa- Below the sofa, built-in storage was added
Bathroom mirror- Has built-in storage behind it.
Beds- Under each bed, they have drawers that can pull out.
My contribution:
The Sinking City project was an AI-based Project. In the early stages, we utilized Midjourney to collect ideas and develop our project’s vision. Once my partner and I finalized our concept, we divided the tasks. While she handled all the 3D modeling in SketchUp, I uploaded shots into Rendair until we achieved a satisfactory version. I then imported the photos into Photoshop and used the AI feature to correct mistakes, refine details, and add people into the images.
Thank you!