P OR T F 2025 O L I O
Undergraduate Architecture
“I don’t think that architecture is only about shelter...it should be able to excite you, to calm you, to make you think”
- Zaha Hadid

![]()
“I don’t think that architecture is only about shelter...it should be able to excite you, to calm you, to make you think”
- Zaha Hadid

Hello! I am Katherine, an enthusiastic and dedicated architecture student with a minor in sustainable design. With a focus on thoughtful design and attention to detail I strive to craft environments that enhace the lives of those who use them. Committed to continuous learning and collaboration, I approach each project with care, ensuring that every design meets both aesthetic and practical needs. Thank you for taking the time to review my collected works as I hope they bring inspiration to you.
Bachelors / Marywood University
2022-2027
Study Abroad / ISI Florence
Fall 2024
High School/ Moravia
Graduation Year: 2022
experience
Media Marketing Manager / Owasco Meats
2024-Current
Team Lead / 10-10 BBQ
2023-Current
architecture
Rhinoceros
AutoCAD
Twinmotion
Enscape
graphics
Photoshop
Illustrator
InDesign
others
Concept Design
Space Planning
kjbaylor@m.marywood.edu
@Katherine Baylor
315-730-3229
Moravia, New York
competitions
2025
Richard Leonori Memorial
Top 25 Finalist among 300 (Individual)
2024 Rube Goldberg Machine Design
Participant (Group)
2023 MUSOA Second Year Competition
Top 30 Finalist of class (Individual)





Scranton, PA
6th semester
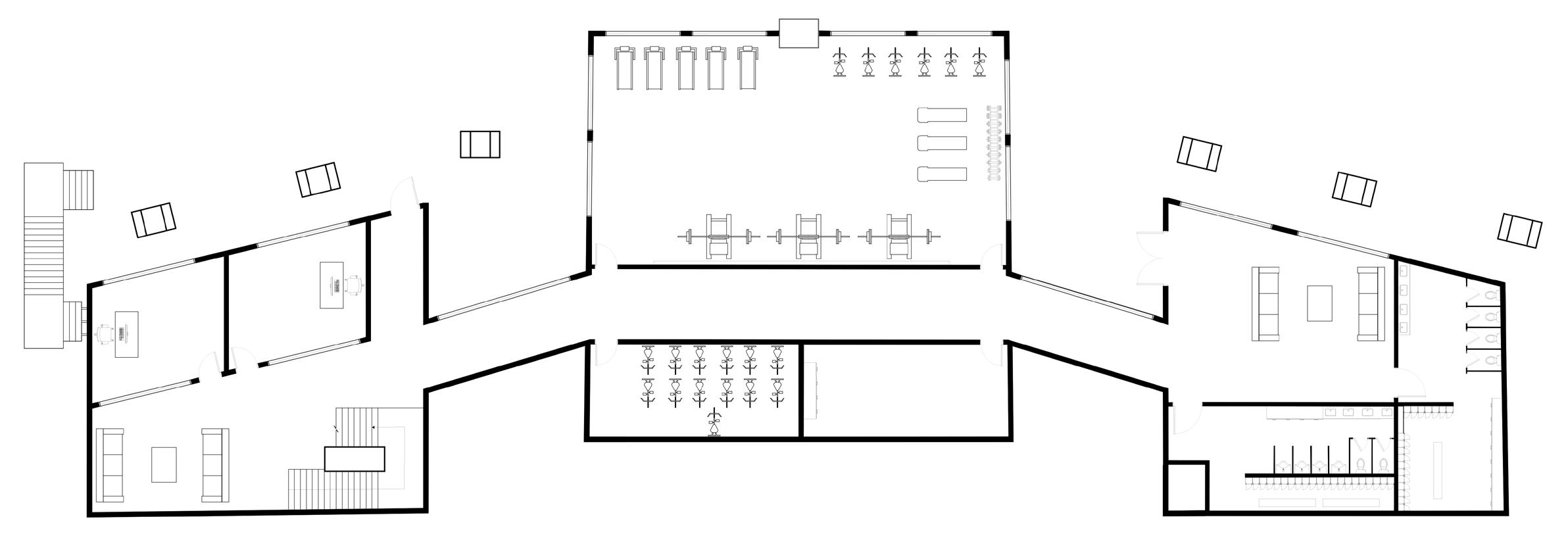
Located outside downtown Scranton, this mixed use apartment complex offers a modern, riverfront living with multiple terraces and green roofs that integrate nature into the design. These features, along with spacious, energy efficient units and a central communal courtyard foster a vibrant, connected community. Surrounded by walking trails, schools, and local amenities, the building blends convenience, comfort, sustainability, and nature creating an ideal space for small families and young professionals seeking a tranquil yet connected lifestyle.






































































































































































































Florence, Italy
5th semester

Located in Florence, a vacant apartment building in Piazza Torquato Tasso within a quiet neighborhood, the La Dolce Terra is an attempt to cultivate a flourishing artisan community and boost housing opportunities for traveling ceramicists. Housing a craft center and pottery studio by redeveloping the florentine architecture standing where creativity takes flight. The adjacent palazzo provides a vibrant communal hub drawing visitors to the gallery and learning facilities, enriching the lives of residents of the community. Complementing this, a courtyard at the back of the studio not only gives space back to the community but transforms into a outdoor learning center to further foster intellectual growth on pottery making and economic opportunity.




















Tunkhannock, Pa
4th semester

In addressing the dynamic between built and natural environments this retreat is nestled on the side of a hill, designed to harmonize with the natural landscape. The retreat focuses on creating a serene, immersive environment for relaxation and rejuvenation, featuring sustainable architecture that blends seamlessly with the terrain. With panoramic views, organic materials, and calming spaces, this space offers a sanctuary for mindfulness, healing, and connection with nature.








3rd semester
This pottery studio, located along the High Line, integrates the art of ceramics with the urban landscape. Large Curved windows, inspired by the organic forms of pottery, evoke the fluidity and abstraction of the ceramic making process. A spacious terrace extends the studio into the surrounding city space, offering both views and potential for outdoor pottery making. Connecting the small studio to the great city that surrounds it.







For this group project, we designed a 6-foot model inspired by our weekend visit to the NYC High Line. Through a combination of site analysis, diagramming, and creative imagination, we explored the unique urban environment and its relationship with nature. The model captures the essence of the High Line’s elevated park, incorporating green spaces, pathways, and surrounding architecture. Through collaborative effort and cafeful craftsmanship, we created a visually striking model that reflects the dynamic interplay between urbanism and nature in this iconic space.

P O R T
F 2025 O L I O