

KATHERINE CABALLERO QUEVEDO

Interior Design
Portfolio

About Me

This portfolio presents selected projects that reflect my creative and human-centered approach to architecture and interior design. Each work highlights my interest in the emotional experience of space, my sensitivity to context and materiality, and my commitment to technical precision. Together, these projects explore how design can enrich daily life and strengthen the relationship between space and well-being.
As an architect, I understand that both architecture and interior design shape emotions, experiences, and the way people inhabit their environment. Through light, materials, proportion, and spatial organization, I seek to create environments that balance functionality and aesthetics while responding to people’s physical and emotional needs.
Each project synthesizes observation, analysis, and design, where technical rigor becomes a tool to express sensitivity. My professional journey has revealed in interior design a field where creativity and empathy connect more directly with human experience. I firmly believe that well-designed spaces can improve quality of life, influence emotions, and accompany individuals through different stages of their lives.
For me, design is the meeting point between knowledge and empathy — a way to give shape to meaningful and purposeful spaces.
RESUME RESUME
CONTACT INFORMATION


EDUCATION
+51989388462
katherine.caballero150@gmail.com
www.linkedin.com/in/KCQ
Toulouse Lautrec School of Higher Education, Lima, Peru January 2023
Diploma Specialization in Interior Design for Architects
Universidad Peruana de Ciencias Aplicadas (UPC), Lima, Peru July 2019 Bachelor of Architecture (B.Arch.)
Graduated with professional licensure eligibility as Architect in Peru. Completed Thesis Project.
PROFESSIONAL EXPERIENCE
Samadhi Perú SAC, Lima, Peru, Project Architect/ BIM Modeler March 2025 – September 2025
Poggione+Biondi Arquitectos, Lima, Peru, Project Design Assistant/ BIM Modeler July 2024- January 2025
Samadhi Perú SAC, Lima, Peru, Project Design Assistant/ BIM Modeler April 2023- June 2024
Consorcio Geo-Solutions, Lima, Peru, Urban Planning And Design Developer November 2022- March 2023
Quadratura Atelier, Lima, Peru, Project Design Assistant October 2021- October 2022
PROFESSIONAL AFFILIATIONS
Colegio de Arquitectos del Peru (National Board of Architects of Peru) 2022 - Present
Professional License - Architect, Peru
SKILLS
Language: Spanish (Native Proficiency), English
Technical: Microsoft Office (Word, PowerPoint y Excel), AutoCAD, Sketchup, Revit BIM, Adobe Photoshop, Adobe Illustrator, Adobe InDesign, Lumion, Vray.


Single-Family Home Renovation
San juan de Miraflores, Lima, Peru
Surco, Lima, Peru 01 02 03 04 05 06 07 08 09 10 11
Office Building in La Victoria
La Victoria, Lima, Peru
Public Sports Complex in Lima
Cercado de Lima, Lima, Peru
Prismatic Tower Hybrid-use Building ia Miraflores, Lima, Peru
Multifamily Housing Project in Barranco
Barranco, Lima, Peru
Multifamily Housing Complex in Colonial Cercado de Lima, Lima, Peru
Youth Tourist Hostel in Huacachina, Ica
Huacachina, Ica, Peru
Interior Design for Milagros and Giovanna
San juan de Miraflores, Lima, Peru
Multicolor Kitchen Design
San Juan de Miraflores, Lima, Peru
Contemporary Apartment Renovation
San Juan de Miraflores, Lima, Peru
Marleny’s Bathroom Renovation
PROFESSIONAL PROJECTS
Design of temporary apartment sales offices - Capri
San Miguel, Lima, Peru
Reference Contact: Jose Ferro Mauricio/ renato.ferro@quadratura.pe
Design of temporary Apartment sales offices - Vernazza
San Miguel, Lima, Peru
Reference Contact: Jose Ferro Mauricio/ renato.ferro@quadratura.pe
Keyla’s Apartment Renovation San Miguel, Lima, Peru
Reference Contact: Jose Ferro Mauricio/ renato.ferro@quadratura.pe
Maria and Jesus’s Apartment Renovation
Barranco, Lima, Peru
Reference Contact: Jose Ferro Mauricio/ renato.ferro@quadratura.pe
Office Interior Design for Ingenio Company
San Borja, Lima, Peru
Reference Contact: Jose Ferro Mauricio/ renato.ferro@quadratura.pe
Norma’s Room Design and Gloria’s Room Design Surco, Lima, Peru
Individual Design Proposal / Client: Norma Molina / norma.molina2503@gmail.com
Antonio Lorena Hospital in Cusco Cusco, Peru
Reference Contact: Lizbet Hidalgo Castro / l.hidalgo@samadhiperu.com
All-Girls Educational Institution in Arequipa Arequipa, Peru
Reference Contact: Jhuliana Taboada Carbajal / jhuliana.taboada@poggionebiondi.com
Control Room Renovation – Luz del Sur Surquillo, Lima, Peru
Reference Contact: Valeria Alata Mariñas / v.alatamarinas@gmail.com
Stephany’s Dental Clinic Design Barranco, Lima, Peru
Individual Design Proposal / Client: Stephany Quevedo / steph_quevedo@hotmail.com
Santa María Catholic University in Juliaca Juliaca, Puno, Peru
Reference Contact: Jhuliana Taboada Carbajal / jhuliana.taboada@poggionebiondi.com
Tanta Restaurant Renovation Project Miraflores, Lima, Peru
Reference Contact: Valeria Alata Mariñas / v.alatamarinas@gmail.com
12 13 14 15 16 17 18 19 20 21 22 23 24
Aviva Clinic in Ate Ate, Lima, Peru
Reference Contact: Lizbet Hidalgo Castro / l.hidalgo@samadhiperu.com

“Single-Family Home Renovation”

Academic Project – 3rd Semester
Individual Design Proposal
This project was developed during the third semester of my architectural studies as a solo design exercise.
Year: 2015
Location: Esteban Tuerten Avenue 1021, San Juan de Miraflores, Lima, Peru
Levels: 3 floors
Area: 160m2
Objective: To select a house over 50 years old and remodel it into a mixed-use residence with a commercial space on the ground floor. The project is designed to accommodate a new family of seven, consisting of a mother, father, two children, grandparents, and household staff.



An architectural survey was conducted on a 60-year-old residence built with a traditional structural system. Its rigid, fragmented layout limited functionality and no longer met contemporary family needs. The project aimed to improve functionality, spatial quality, and adaptability while preserving the original structure and meeting the new inhabitants’ requirements. The proposal establishes a clear hierarchy between public and private areas and introduces fluid transitions that enhance comfort, privacy, and connection with the exterior.
First Level: The layout was reorganized to optimize common and social areas. The main entrance remains a central connection point linking the living room, dining room, kitchen, and garage. The former medical office was converted into a commercial space with independent access, adding a mixed-use component. Side patios improve cross ventilation and natural lighting.
Second Level: Bedrooms were redesigned to open toward patios and terraces, improving lighting, ventilation, and exterior views. Circulation became more continuous and integrated, creating a centrally located semi-private family area that reinforces the sense of community.
Third Level: The upper floor incorporates flexible multipurpose spaces—study, laundry area, terraces, and resting zones— allowing the residence to adapt to different uses and stages of family life, supporting leisure, work, and contemplation.
The intervention strengthens interior–exterior integration through patios and terraces that promote well-being, comfort, and spatial continuity. Enhanced ventilation and natural lighting elevate environmental quality. Overall, the project revitalizes a residence of emotional and architectural value, preserving its essence while incorporating contemporary solutions that support modern family dynamics and daily well-being.
First Floor Plan
Second Floor Plan
Third Floor Plan
Northeast Elevation
Cross Section 1-1
Longitudinal Section 2-2


“Office Building in La Victoria”

Academic Project – 4th Semester
Individual Design Proposal
This project was developed during the fourth semester of my architectural studies as a solo design exercise.
Year: 2015
Location: Paseo de la Republica Avenue 975, La Victoria, Lima, Peru
Levels: 1 basement and 19 floors
Area: 3265m2
Objective: Design a 19-story office-rental building with an entrance hall, lounge areas, 120 offices, 8 commercial units, a dining area, two multipurpose rooms, and a basement with 94 parking spaces and service areas. Located near Lima’s National Stadium and “Parque de la Reserva,” the project aims to respond to its urban context and adapt to the lot’s unique geometry for seamless integration with its surroundings.

Basement Floor Plan



The project is organized around a primary architectural gesture: a cantilever located on the east side of the site, which becomes the main articulating and defining element of the proposal. This prominent volume not only introduces dynamism and directionality to the composition but also functions as a visual landmark, guiding the pedestrian’s gaze toward two significant urban references — the National Stadium of Peru and the emblematic Parque de la Reserva, both architectural and cultural icons of Lima.

The cantilever houses the building’s common area, conceived as a social and gathering space. Its strategic position on the upper levels provides privileged views toward the park and the surrounding urban landscape.
The floor layout is based on a modular structural system with a central vertical circulation core and offices distributed on both sides, ensuring spatial efficiency and functional flexibility. On the upper floors, stepped terraces reinforce the directionality of the cantilever and encourage interaction among users, enhancing their connection with natural light, outdoor views, and surrounding environmental elements. The ground floor opens toward the city, incorporating commercial areas, green spaces, defined accesses, and an entrance plaza that establishes a direct relation with public space.
Typical Floor Plan
Ninth Floor Plan
The façade envelops the building with a grid of horizontal and vertical lines, framing the cantilever, terraces, and common areas, allowing them to stand out within the overall architectural language.
As a whole, the functional organization and formal expression aim to create a coherent and symbolic architecture—one that engages with its urban context while emphasizing the user experience, public space, and visual connections that define the project’s identity.

Longitudinal Section 1–1

East Elevation
West Elevation
South Elevation
North Elevation

“Public Sports Complex in Lima”

Academic Project – 4th Semester
Individual Design Proposal
This project was developed during the fourth semester of my architectural studies as a solo design exercise.
Year: 2015
Location: Madre de Dios Avenue, Cercado de Lima, Lima, Peru
Levels: 2 floors
Area: 5130m2
Objective: Design a public sports complex integrating a multipurpose court, a semi-Olympic pool, a gym, cafeteria, public restrooms, athletes’ locker rooms, first-aid rooms, storage areas, and spectator stands. The project aims to connect with an existing urban sports and recreation axis, creating functional architecture that



Given its proximity to the emblematic Parque de la Reserva and the National Stadium, the proposal seeks to harmoniously integrate with the natural environment, forming part of an urban axis associated with sports, recreation, and physical activity.
The project is conceived as a semi-underground building that blends with the topography, reducing its visual impact and establishing a direct relation with the landscape. Two lateral plazas act as transitional spaces, encouraging social interaction and strengthening the connection with the surrounding green spaces.
In terms of spatial organization, the semi-Olympic swimming pool is located on the right side of the complex, while the multipurpose court —for volleyball, soccer, and basketball— is positioned on the left, both with their respective spectator stands. The central axis houses the main entrance hall and cafeteria, organizing the project with sports areas on the sides and social spaces in the center, favoring interactions and the continuous flow between activities.
The roof incorporates linear skylights that filter natural light, creating patterns of light and shadow in the interior spaces and visually connecting with the surrounding vegetation. The landscape treatment of the plazas echoes the skylight patterns, reinforcing the continuity between architecture and nature.
First Floor Plan
Second Floor Plan
The façade, wrapped in metallic lattices, integrates materials and textures from the surrounding buildings and urban context. Vertical elements in red and white evoke the Peruvian flag, while the overall composition filters light, casts shadows, and enhances thermal comfort, generating a contemporary architecture that integrates both visually and materially with its environment. Additionally, it creates comfortable spaces where users can carry out their sports activities while maintaining a strong connection with nature.while creating user-oriented spaces where athletes and visitors can feel comfortable and supported in their sports activities.

Longitudinal Section 1–1

Cross Section 2-2
North Elevation
South Elevation
East Elevation
West Elevation

“Prismatic Tower Hybrid-use

Academic Project – 6th Semester
Individual Design Proposal
This project was developed during the sixth semester of my architectural studies as an individual design assignment.
Year: 2016
Location: Republica de Panama Avenue 5985, Miraflores, Lima, Peru
Levels: 5 basements, 15 floors and 1 Roof
Area: 1770m2
Objective: Design a mixed-use building comprising rental office spaces, a gym, and a restaurant, based on a defined program.



Prismatic Tower is a mixed-use building that integrates rental office spaces, a gym, a restaurant, and public areas. Its design originates from a prismatic volume that has undergone strategic subtractions, creating interior and exterior interaction spaces, reducing the overall volume, and giving the building a more pedestrian-friendly scale.
The project integrates into the urban context through the fragmentation of three main volumes, allowing different accesses, according to their use, on the lower levels: a corporate entrance at the center, a restaurant on the left block —more visible due to its public character—, and a gym on the right. This organization enables a clear reading of the program while respecting the surroundings height and maintaining continuity with the urban profile.
The upper levels accommodate rental office spaces, which were designed based of criteria of comfort, natural lighting, and flexibility.
2nd Floor Plan
3rd Floor Plan
The façade features a vertical metal structure in an earthy red tone that frames the most prominent volumes, while the recessed volumes are resolved with a glass skin supported by metallic mullions. This contrast between mass and transparency emphasizes the play of offsets and adds depth to the overall composition.
The interior voids transform into landscaped plazas and terraces, encouraging interaction and linking communal areas such as the dining space and rest zones. Additionally, internal bridges connect the different blocks, generating a more dynamic circulation and a spatial experience that is rich and continuous. These elements reinforce the concept of a city within a building, where users do not feel isolated but remain in constant movement and connection with nature and the exterior.
Prismatic Tower proposes a dynamic, open, and contextual architecture, where form expresses function, and every space promotes integration, well-being, and urban connectivity. It also reinforces the users’ connection with natural elements through light, views, and outdoor interaction.

Longitudinal Section 1-1

West Elevation
Longitudinal Section 2-2
South Elevation

“Multifamily Housing Project in Barranco”

Academic Project – 7th Semester
Individual Design Proposal
This project was developed during the seventh semester of my architectural studies as an individual design assignment.
Year: 2017
Location: Almirante Miguel Grau Avenue 477, Barranco, Lima, Peru
Levels: 1 basement and 4 floors
Area: 2685m2
Objective: Design a multifamily building in Barranco that respects colonial architecture. The ground floor will host commercial spaces to enhance urban life, while the upper floors will contain residential units that ensure comfort and privacy. The project seeks harmonious integration with the historic context through appropriate proportions, materials, and volumetry aligned with the district’s colonial character.



The project is located in the historic district of Barranco, renowned for its colonial architecture and open public spaces. It consists of a four-story multifamily building with commercial spaces on the ground floor and residential units on the upper levels, reinterpreting the traditional typology of the district.
To integrate respectfully with its surroundings, the ground floor houses retail spaces arranged around interior corridors and plazas, evoking the colonial fabric of pedestrian streets, courtyards, and meeting points. This layout creates a “minicity” that extends the urban dynamic into the site, articulating the transition between public and private life.
The three upper floors contain apartments organized around central corridors, linear garden balconies, light wells, and connecting bridges. This scheme enhances cross ventilation and fosters a constant sense of openness, avoiding enclosure while promoting community interaction and connection with nature.
A basement level accommodates parking, freeing the ground floor for commercial activity and ensuring vehicular access without disrupting the pedestrian experience.
Third and Fourth Floor Plan
Second Floor Plan
The façade incorporates formal elements from colonial architecture—balconies, lattices, horizontal rhythms, and cornice-like terminations. Furthermore, materials in neutral tones were selected to create a dialogue with the historic surroundings without competing with them. The volume respects the district’s height regulations, emphasizing the ground level with greater height to reinforce its commercial function and connection with the street.
In essence, the project reinterprets the spatial and social values of Barranco through a contemporary and sustainable architectural approach. It also reinforces user-centered design principles, ensuring that individuals experience comfort, wellbeing, and a meaningful connection with natural elements throughout the space. Additionally, the residential units are designed with a strong user-centered focus, ensuring comfort and functional harmony within all interior spaces.


Longitudinal Section 1–1
Cross Section 2-2
East Elevation
North Elevation

“Multifamily Housing Complex in Colonial”

Academic Project – 9th Semester Individual Design Proposal
This project was developed during the ninth semester of my architectural studies as a solo design exercise.
Year: 2018
Location: Argentina Avenue, Cercado de Lima, Lima, Peru
Levels: 2 basement and 20 floors
Area: 2345m2
Objective:



The project consists of a multifamily residential building that integrates commercial spaces on the ground floor and office spaces on the second and third levels, generating a dynamic mixed-use complex. The architectural proposal is based on a volumetric composition that varies according to function: a smaller horizontal base houses the commercial units with independent access from the public street; above it, a more solid and larger volume accommodates the office spaces; and finally, two residential towers rise above, separated by the vertical circulation core.
On the ground floor, interior passages with plazas and social interaction spaces were designed, in addition to the different entrances for the commercial, office, and residential areas; promoting an active public space connected to surrounding green areas. This layout enhances the building’s urban vitality and creates a smooth transition between the street and the interior.
Second Floor Plan
Third Floor Plan
Duplex Modules Floor Plan with Common Areas
Twentieth Floor Plan
Each upper floor contains six apartments with varied layouts, including one-, two-, and three-bedroom units, as well as interspersed duplexes, expressed on the façade through protruding volumes or double-height vertical planes. These volumetric elements create a dynamic reading of the building envelope.
Common areas were incorporated and distributed throughout the complex, visible as glazed volumes offering wide exterior views. These include barbecue zones, a game room, a daycare, a minimarket, and reading spaces, promoting a self-sufficient lifestyle.
All apartments feature balconies that enhance spatial quality and strengthen the connection with the urban and natural environment.
The project also emphasizes efficient, accessible, and flexible circulation, as well as a clear hierarchy in the spatial organization, ensuring that the building responds to user needs through functional, habitable, and self-sufficient spaces that integrate social interaction areas, natural connections, and communal activities.


Longitudinal Section 2-2
Longitudinal Section 1–1
South Elevation
North Elevation


West Elevation
“Youth Tourist Hostel in Huacachina, Ica”

Academic Project – 10th Semester
Individual Design Proposal
This project was developed during the tenth semester of my architectural studies as an individual design assignment and a pre-thesis exploration.
Year: 2019
Location: Angela Perotti Avenue, Huacachina, Ica, Peru
Levels: 1 basement and 3 floors
Area: 6730m2
The thesis identifies a real need within a specific site and selects the most suitable architectural typology to address it. Based on this analysis, it develops a comprehensive, context-responsive project that incorporates strategies to enhance connection and harmony with the surrounding environment.

First Floor Plan




Youth tourism in the province of Ica has shown steady growth; however, there is a notable lack of suitable and affordable accommodation for young adventurers with limited budgets. Currently, Ica has only one hostel affiliated with the Hostelling International network — the Desert Night Youth Hostel — with a capacity for 200 guests. This number is insufficient considering that, according to 2017 data, approximately 78,000 young travelers (46% of the total number of tourists) visit the region annually. The shortage of specialized lodging forces young visitors to stay in places that do not encourage social interaction, contact with nature, or cultural exchange — all fundamental pillars of youth tourism.
In response to this need, the project proposes the design of a youth tourist hostel in Huacachina, aimed at meeting the growing demand from both national and international visitors. The hostel seeks to foster sociocultural relationships among young people in an environment that promotes respect for nature and harmonious coexistence. The architectural proposal integrates concepts of sustainability, bioclimatic design, and biophilia, establishing a direct connection between users and the desert landscape — encouraging creativity, emotional well-being, and environmental awareness.
The architectural design emphasizes strong integration with the natural surroundings through strategies such as blending with the landscape, using local materials (wood, bamboo, huarango, and reinforced concrete), and orienting the building towards key natural landmarks like the lagoon, the dunes, and the protected forest. The concept of biophilia is expressed in the communal spaces through natural lighting, cross ventilation, tactile materials, and sensory interaction with water, sand, and vegetation. These semi-public areas become meeting points that enhance cultural exchange among visitors.
Second Floor Plan
The functional layout of the project is organized along a central axis oriented toward the dunes, dividing spaces according to their level of privacy. The most public areas, such as administration and complementary activities, are located near the entrance to facilitate access. Common areas and lodging are set further back to ensure privacy, while service areas are distributed both perimetrically and centrally around the blocks to optimize logistics and circulation.
The volumetric composition responds to the integration with the four natural elements surrounding the site: dunes, lagoon, vegetation, and existing architecture. The complex is arranged in an L-shaped configuration, creating a central recreational space inspired by the lagoon — evoking the sensation of an oasis. The design combines solid beige concrete volumes with curved roofs and light bamboo structures, achieving a subtle integration with the landscape. Additionally, the concept of Yin and Yang is applied to merge the vegetation of the adjacent forest with the architecture, forming one “L” of nature and another of construction.


Cross Section B-B
Cross Section A-A
Longitudinal Section C-C
Longitudinal Section D-D
Longitudinal Section E-E
Longitudinal Section F-F


Overall, the project aspires to be more than just a place to stay: it aims to become a transformative space for young people, promoting personal growth, cultural exchange, and appreciation of Huacachina’s natural environment.
Elevation 01
Elevation 02
Elevation 04
Elevation 03















“Interior Design for Milagros and Giovanna’


Design Moodboard – Kitchen
Kitchen and Bedroom Designed with a User-Centered Approach
Course Design Process and Conceptualization – Interior Design Diploma
Individual Design Proposal
Year: 2022
Location: Manuel Velarde 851 Avenue, San Juan de Miraflores, Lima, Peru
Level: 1 floor
Intervention Area: Kitchen (22 m²) and Bedroom (24.5 m²)
Objective: To understand and apply the different stages of the interior design process—conceptualizing, defining, and materializing a space. The assignment consisted of designing a kitchen and a bedroom for a family composed of a girl, her mother, and her grandmother. The proposal sought to integrate the functional and emotional needs of the users.

Design Moodboard – Bedroom



The design of this kitchen was inspired by the lifestyle of Alexandra and her mother, Norma. Alexandra is a modern mother who values family life, contact with nature, and a mindful lifestyle. She enjoys cooking and hosting family gatherings, so a spacious, social, and multifunctional kitchen was conceived, featuring a central island that promotes interaction with her children and loved ones while she cooks, becoming the heart of the home.
Norma, a traditional grandmother passionate about baking, expresses her affection through the preparation of desserts. Her area was designed to be accessible and comfortable, with open shelving, wide countertops for manual work, and organic bamboo planters where she can grow herbs and aromatic plants, connecting her culinary practice with nature.
The colors, materials, and finishes reflect the users’ personal preferences. Textured green melamine, Alexandra’s favorite color, adds freshness and vitality to the space, contrasted with Calacatta quartz, natural wood, and neutral white tones, which balance the composition with warmth and elegance. The views toward the vertical garden and the indoor vegetation reinforce this connection with nature, while warm lighting enhances textures and creates a cozy atmosphere.
Every design decision—from material selection to spatial distribution—responds to the habits, values, and emotional bonds of both women, resulting in a kitchen that celebrates family connection, functionality, and harmony with nature.
First Floor Plan
Section A-A
Section B-B

The bedroom design focuses on a girl transitioning into adolescence, with interests in crafts, study, and social interaction. The proposal accompanies her growth through a space that blends playfulness with functionality, fostering creativity, independence, and a connection with nature.
Taking advantage of the room’s double height, a mezzanine was designed as an elevated social zone for playing and sharing with friends or her mother, furnished with light pieces to encourage interaction. In this area, custom shelves were integrated to display and organize her toys, creating a playful yet organized atmosphere. The space beneath the staircase was optimized with storage modules, a shoe rack, and integrated shelving, making full use of every corner while maintaining visual openness.
An interactive chalkboard, a craft table with open shelving, and a functional study desk define dedicated areas for play, creativity, and academic activities. The vanity and study desk express her feminine identity and reflect the transition from childhood to adolescence.
Each element — colors, shapes, and materials — was chosen according to the user’s preferences. Soft tones such as pastel pink, white, and beige combine with light wood and warm lighting, create a harmonious and comfortable environment. A large window overlooking a vertical garden brings in natural light and greenery, strengthening her connection with the outdoors.
Altogether, the project offers an intimate, cheerful, and adaptable environment, designed to accompany the user through the different stages of her growth and development.

Second Floor Level +5.85
Section A-A
Section B-B
First Floor Level+3.75






“Multicolor Kitchen Design”

Application of Color Schemes in Kitchen Design
Course Color – Interior Design Diploma
Individual Design Proposal
Year 2022
Location: Manuel Velarde Avenue 851, San Juan de Miraflores, Lima, Peru
Levels 1 floor
Objective: The course project involved designing a kitchen intervention using color theory to explore how color affects aesthetics, spatial perception, and user emotions. Based on an analysis of family profiles, four color schemes were proposed: monochromatic, analogous, direct complementary, and split complementary.

DIRECT COMPLEMENTARY
SCHEME – RED, ORANGE, AND BLUE-GREEN
This proposal uses a direct complementary palette—orangered and blue-green—to create a dynamic, modern, and expressive kitchen for a young couple (a fashion designer and a lawyer) who enjoy bold colors, original spaces, and a strong connection to nature and the sea. Blue-green cabinetry provides calmness, freshness, and serenity, while orange-red accents on shelves and chairs add energy, vitality, and creativity. Blue geometric tiles unify the composition and introduce visual rhythm.
A light gray ceiling was applied to visually balance the room’s height and achieve harmonious proportions. Materials such as white marble, dark gray metal, and light wood add texture, warmth, and balance, and the vegetation visible through the windows reinforces the natural connection.
Overall, the palette harmonizes contrasting emotions—energy and calm, intensity and serenity— resulting in a vibrant, functional, and expressive kitchen that reflects the couple’s personalities. The colors and finishes reference the sea, prioritizing their tastes and well-being to create a home where they feel comfortable, connected to nature, and happy in daily life.
First Floor Plan
Section A-A
Section B-B

ANALOGOUS SCHEME – RED, RED-ORANGE, AND ORANGE
This proposal works with an analogous color scheme within the warm spectrum, combining red, red-orange, and orange to create a vibrant, cozy, and energetic environment. The users are a 35-year-old communications professional and her 10-yearold daughter, who value creativity, originality, and spaces that promote family interaction.
The kitchen was conceived as a social space designed to foster communication, appetite, and interaction, reflecting the owner’s profession and personality as a communicator. Warm tones were applied strategically to reduce the perceived height of the space, while the dark porcelain tile flooring reinforces visual stability and balance. To counteract chromatic intensity, white walls and ceilings were introduced, along with neutral materials such as gray granite and metallic details, bringing freshness and harmony.
Beyond its aesthetic value, the color scheme aims to generate a positive emotional impact — creating an active and stimulating environment for a shy child with little appetite, encouraging vitality, well-being, and emotional bonding between mother and daughter.


First Floor Plan
Section A-A
Section B-B
Section D-D
Section C-C

MONOCHROMATIC SCHEME – EARTH RED
This proposal is based on the use of earth red as a monochromatic base, complemented by cool neutrals such as gray, white, and black. The project is designed for a 35-year-old architect who lives with her retired mother and teenage son. Together, they value the kitchen as a space for gathering, connection, and daily enjoyment.
The earth red color was selected according to the family’s tastes and lifestyle, as they enjoy travel, nature, and all things organic. Applied to both the furniture and the double-height ceiling, this tone evokes the earth, warmth, and vitality, while helping scale the space to a more human proportion. To balance its intensity, white floors and walls were used to bring brightness and visual lightness, complemented by dark stone countertops and black metallic details that introduce contrast and elegance. Cool neutrals act as visual counterweights, maintaining balance between energy and serenity.
Decorative tiles in red, gray, and white add a handcrafted texture and chromatic continuity with the shelves and cabinetry, reinforcing the warm and contemporary character of the space. Altogether, the design conveys harmony, vitality, and a connection with nature, reflecting the identity and values of its users.


First Floor Plan
Section A-A
Section B-B
Section D-D
Section

SPLIT COMPLEMENTARY SCHEME – RED, YELLOW-GREEN, AND BLUE-GREEN
This proposal was developed for a 49-year-old administrator and her 19-year-old son, a culinary student. Both enjoy cooking together and appreciate bright, dynamic, and calm spaces.
The split complementary scheme combines red, yellow-green, and blue-green, resulting in a cheerful and balanced atmosphere. Blue-green brings freshness and serenity; yellow-green adds dynamism; and red — used subtly in the chairs — introduces a vibrant accent that stimulates energy and communication.
The colors and finishes were selected according to the user’s personal preferences, as she feels drawn to the sea and her connection with nature. For this reason, a white porcelain tile with soft curved lines was incorporated, evoking the movement of water, along with Calacatta quartz surfaces that add elegance and visual continuity. Planters with greenery reinforce this natural connection.
Since the kitchen features a double-height ceiling, it was painted light gray, with gray porcelain flooring to balance spatial proportions. Cool neutrals harmonize the overall composition, creating a functional, welcoming, and socially engaging environment.


First Floor Plan
Section A-A
Section B-B
Section C-C
Section D-D

“Contemporary Apartment Renovation”



Interior Design of an Apartment
Applying the Contemporary Trend
Trend Course – Interior Design Diploma
Individual Design Proposal
Year: 2022
Location: Ayacucho Avenue 234, Santiago de Surco, Lima, Peru
Levels: 1 floor
Area: 65.90 m²
Objective: This project was developed as part of the Trend course in the Interior Design Diploma, where the assignment consisted of intervening in an apartment by applying the principles of the contemporary style.



Design Moodboard – Terrace Design Moodboard – Living Room Design Moodboard – Receiver
Moodboard – Dining Room


The contemporary trend prioritizes functional, open, and harmonious spaces with visual cleanliness, natural light, and modern materials. Its sober aesthetic avoids excess decoration, favoring straight lines, a neutral palette with subtle accents, and refined textures like metal, glass, linen, and microcement— balancing elegance and comfort across different contexts. Based on this approach, spacious and coherent environments were designed using neutral colors, clean lines, and modern materials to achieve a serene and warm atmosphere.
The entrance incorporates gray lattices and floating furniture with black metallic details, establishing a sober and sophisticated entryway. In the living room, pure-lined furniture —sofas and armchairs in green and gray linen— is complemented by Calacatta marble tables and metallic structures, key elements of the contemporary style.
The dining room stands out for its black granite table and Cantilever chairs, which reinforce the elegant contrast of the composition. Modern pendant lamps and abstract artworks provide balance and character, acting as discreet focal points.
The finishes play an essential role: gray SPC flooring unifies the environments, while microcement walls and neutral paint consolidate the minimalist aesthetic. The terrace maintains the same language, with black furniture, natural textiles, and controlled vegetation that add freshness and relaxation.
Overall, the project integrates functionality, elegance, and balance, reflecting the essential values of contemporary interior design.
Section
Section









“Marleny’s Bathroom Renovation”
Bathroom Design and Finishes Application
Finishes Course – Interior Design Diploma
Individual Design Proposal
Year: 2022
Location: Ayacucho Avenue 234, Santiago de Surco, Lima, Peru
Levels: 1 floor
Area: 5.90 m²
Objective:
Design and remodel a deteriorated bathroom, focusing on how finishes should respond to the user’s needs and aesthetic preferences.


Design Moodboard – Bathroom

The project was developed for a young architect who values order and simplicity. The proposal seeks to create a functional, balanced, and personalized space where finishes carry both aesthetic and emotional meaning, resulting in a warm, elegant, and cohesive atmosphere.
The concept centers on the dialogue between complementary materials. Marble-effect porcelain with golden and iridescent veins adds sophistication and brightness, while wood-textured porcelain provides warmth and natural comfort. The latter was applied strategically in areas like the shower and toilet to create focal points that visually organize the space.
A white quartz countertop reinforces purity and continuity, contrasting with matte black fixtures—faucets, lighting, and hardware—that introduce modernity and balance between light and dark tones.
Lighting combines general illumination, decorative wall lamps, and LED strips that enhance spatial perception and highlight textures. The wood-textured melamine cabinetry provides functional storage, aligned with the user’s need for order and efficiency.
Overall, the design reflects the lifestyle and personality of its owner: a contemporary, organized, and serene bathroom where each finish strengthens the harmony between aesthetics, functionality, and well-being, creating an atmosphere where the user feels connected to the space and comfortable within it.

Section A-A
Section B-B
“Temporary Apartment Sales Offices –Capri”

Interior design project developed for Quadratura Atelier, where I collaborated as an interior design assistant during my time at the firm.
Year: 2022
Location: Los Precursores Avenue 725, San Miguel, Lima, Peru
Levels: 1 floor
Area: 40 m²
Objective: Design a temporary sales pavilion that is functional, visually appealing, and aligned with D’Kasa’s corporate identity. The project aims to attract potential clients by offering a warm, professional, and contemporary environment where they can explore the company’s residential projects and receive personalized assistance.

Design Moodboard – Of Temporary Apartment Sales Offices “Capri”


The Temporary Apartment Sales Office project was developed for the real estate company D’Kasa, with the objective of creating a functional, contemporary space aligned with the brand’s visual identity. Under the direction of Quadratura Atelier, I collaborated on the interior design of this temporary sales office, intended to receive clients interested in purchasing apartments.
The design is based on D’Kasa’s corporate colors and brand values, combining natural materials such as wood, greenery, and concrete-like finishes with reddish accents. This combination seeks to generate visual coherence between the company’s identity and the materiality of the space, conveying trust, professionalism, and warmth to clients.

The façade was designed to attract public attention and encourage clients to enter, functioning as a visual communication element that reflects the brand’s style. Its dynamic composition, accompanied by graphic and natural elements, makes it a point of reference.
Inside, the spatial layout is organized in a clear and functional way: a reception and waiting area, a customer service area, and a private meeting room for the project’s lead architect. A corporate mural displays D’Kasa’s previous projects, reinforcing the company’s trajectory and building client confidence.
Lighting plays an essential role in the ambiance: spot and pendant fixtures were used to highlight customer service areas and enhance the natural textures of the materials, while warm, diffuse light creates a welcoming and elegant atmosphere. Altogether, the project achieves a balanced integration between brand, design, and client interaction. The spatial experience was also carefully designed to ensure that clients feel comfortable, confident, and welcomed when entering the space, especially as they seek guidance on an important decision such as purchasing a home. The design strengthens the connection with the brand’s identity, creating an environment that is both inviting and trustworthy for effective customer engagement.
Longitudinal Section A-A

Longitudinal Section B-B
Cross Section
Cross Section



“Temporary Apartment Sales Offices – Vernazza”

13
Interior design project developed for Quadratura Atelier, where I collaborated as an interior design assistant during my time at the firm.
Year: 2022
Location: Andres Razuri Avenue 364, San Miguel, Lima, Peru
Level: 1 floor
Area: 35 m²

Objective: To design a temporary apartment sales office that integrates D’Kasa’s visual identity with a warm, functional, and nature-connected spatial experience. Design Moodboard – Of Temporary Apartment Sales Offices “Vernazza”


The Vernazza project was developed for the real estate company D’Kasa, under the direction of Quadratura Atelier, during my role as a interior design assistant. The proposal aimed to create a temporary sales office that serves as a meeting point between the brand and its potential clients, emphasizing comfort, spatial fluidity, and aesthetic coherence. Unlike other projects, the site allowed for more generous garden and access areas, resulting in a more open and welcoming experience for clients.
The façade plays a key role in attracting attention, designed to invite clients to enter and request information about the residential project. Its composition integrates an illuminated garden entrance with graphic elements and the D’Kasa corporate logo, reinforcing the visual presence of the brand.
Inside, the layout is efficient and organized, featuring a reception and waiting area, a customer service zone with two modules, and a small children’s area where parents can leave their children while receiving information about the apartments.
The material palette combines wood, melamine, exposed concrete, and natural greenery, creating a balanced and contemporary atmosphere. A decorative mural displaying the company’s logo alongside vegetation panels reflects D’Kasa’s values of modernity and sustainability.
Warm and focused lighting highlights textures and attention areas, while diffuse light unifies the environment, conveying elegance and comfort.
The spatial experience was also carefully designed to ensure that clients feel comfortable, confident, and welcomed when entering the space, especially as they seek guidance on an important decision such as purchasing a home. The design strengthens the connection with the brand’s identity, creating an environment that is both inviting and trustworthy for effective customer engagement. Overall, the project delivers a coherent and inviting design that strengthens the relationship between brand, architecture, and client experience.


Longitudinal Section A-A
Longitudinal Section B-B
Cross Section C-C
Cross Section D-D



“Keyla’s Apartment Renovation”

Interior design project developed for the company Quadratura Atelier, where I collaborated as an interior design assistant during my time at the firm.
Year: 2022
Location: Roma Building, Los Patriotas Avenue 280, 4th Floor, San Miguel, Lima, Peru
Level: 1 floor
Area: 78 m²
Objective: To develop the interior design of an apartment for architect Keyla, encompassing the living room, dining area, master bedroom, and bathroom, with the goal of creating a contemporary, functional, and personalized environment based on her tastes and needs.


Design Moodboard – Living Room
Design Moodboard – Dinning Room
Design Moodboard – Bedroom


The project was carried out under the direction of Quadratura Atelier, where I participated as an interior design assistant. The proposal was tailored to the client’s aesthetic preferences, incorporating triangular geometric forms and a color palette inspired by her favorite shade of green, complemented by gold, gray, beige, and natural wood tones. These combinations create a modern and balanced atmosphere that reflects her personal style, conveying warmth and elegance. Every decision—from the selection of materials to the finishes—was made in line with her preferences, integrating visual unity and character throughout.
In the living and dining areas, space was optimized for social gatherings through the integration of a sofa, armchair, coffee table, and custom-designed TV cabinet, along with strategically placed mirrors that expand the space and enhance natural light. The furniture was conceived as a cohesive ensemble, with finishes and lines that relate to one another and to the surrounding materials, reinforcing a sense of spatial continuity.
The master bedroom maintains design coherence through wood panels, geometric details, and a backlit false ceiling that frames the room and conceals structural beams. Bedside tables, a vanity, and pendant lighting were incorporated to balance functionality and comfort. The private bathroom complements the proposal with light-toned finishes, wooden cabinetry, and indirect lighting, reinforcing the perception of spaciousness and well-being.
Overall, the project achieves a comprehensive and personalized interior design, where each space reflects the client’s essence through a cohesive composition of materials, color, and lighting, resulting in an environment that is elegant, comfortable, and contemporary. This design also fosters positive emotions and a sense of happiness for the client, allowing them to feel truly connected to their home — a space that supports their daily life and enhances their everyday experience.


Longitudinal Section A-A
Longitudinal Section B-B
Longitudinal Section C-C
Cross Section D-D
Cross Section E-E




“Maria and Jesus’s Apartment Renovation”

Interior Design developed for Quadratura Atelier, where I collaborated as an Interior Design Assistant during my time at the company.
Year: 2022
Location: Ignacio Maria Tegui Avenue, Barranco, Lima, Peru
Levels: 1 floor
Area: 77 m²
Objective:
To design and remodel an existing apartment, adapting its layout and materiality to meet the requirements of a young couple seeking a functional and welcoming space with personality.









The project was conceived under a concept of chromatic contrast and visual coherence, combining a variety of tones, textures, and materials selected according to the users’ tastes and lifestyle. Each space was designed to have its own identity within an overall sense of harmony, balancing light and dark surfaces with natural materials that contribute to a contemporary, warm, and sophisticated atmosphere.
The social areas —living room, dining room, and kitchen— were redistributed to optimize circulation and encourage interaction, reflecting the owners’ fondness for family gatherings and social events. In the living and dining rooms, neutral tones with warm accents and clean-lined furniture dominate, while backlit shelves, focused lighting fixtures, and light wood finishes add texture, depth, and visual comfort.
In the kitchen, materials were chosen to achieve an elegant and functional contrast: decorative porcelain tiles with geometric motifs are paired with black stone and light wood melamine cabinetry, achieving a balance between sobriety, functionality, and dynamism.
In the private zone, the bedrooms maintain a soft and relaxed palette that enhances calm and privacy. The walk-in closet, conceived as an independent space, integrates custom-made furniture, LED lighting, and warm finishes, while the bathrooms preserve aesthetic coherence through geometric wall tiles, black faucets, and light-toned cabinetry.


Section A-A
Section B-B
Section C-C
Section D-D
Section E-E
Section F-F


On the terrace, an additional laundry area was incorporated alongside a barbecue and gathering zone, separated by a dividing wall. This strategy allowed the design to respond to the clients’ desire for a practical daily-use area and, at the same time, a terrace where th ey can share moments with family and friends while enjoying the connection to the outdoors.
Overall, each environment was carefully designed to reflect the clients’ preferences, emotions, and lifestyle, prioritizing their tastes in colors, materials, forms, and spatial organization. The result is a home where every space is functional, emotionally resonant, and aligned with the users’ identity — a place where the clients feel comfortable, connected, and genuinely happy living within their daily environment.
Section G-G
Section H-H
Section I-I









“Office Interior Design for Ingenio Company”

Interior Design Project developed for Quadratura Atelier, where I collaborated as an Interior Design Assistant during my time with the firm.
Year: 2022
Location: Primavera Avenue 517, San Borja, Lima, Peru
Levels: 1 floor
Area: 255 m²
Objective: To design the administrative offices of Inmobiliaria Ingenio, reflecting the company’s identity through a contemporary and industrial spatial language that combines functionality, corporate aesthetics, and workplace comfort.




Design Moodboard –Reception Design Moodboard –Showroom


The project was conceived under a design concept focused on office environments, prioritizing materials, finishes, and tones that convey professionalism, order, and modernity. An industrial trend was adopted, characterized by metal structures, furniture, and ceiling elements in black, clean-lined surfaces, and materials with natural textures. The exposed ceiling installations were painted white and black, emphasizing the technical and industrial character of the space.
To distinguish the different areas, two types of melamine were used: a darker tone in the left section —dedicated to client service and the showroom— and a lighter tone in the right section, corresponding to staff work areas and private offices. The color palette is complemented by white calacatta surfaces, black metal panels, and purple details representing Ingenio’s corporate identity.
First Floor Plan

The design also integrates corporate branding elements, such as logos, informational murals, and panels showcasing the company’s previous projects, reinforcing the brand’s presence throughout the space. On the left side, the public area includes a reception, waiting lounge, information desk, and a showroom that recreates a living-dining-kitchen setup using the company’s signature finishes. On the right side, the private workspace contains modular desks, enclosed offices, and a meeting room.
Green walls and vegetation were incorporated mainly into the common areas, providing texture and visual balance. Additionally, frosted glass panels were installed in the private office modules to ensure visual privacy, while linear and spot lighting accentuate material contrasts, consolidating a contemporary, functional atmosphere that reflects the company’s identity. Each space was carefully designed to improve the users’ work environment, creating an atmosphere that is comfortable, functional, and suited to their daily tasks.
The selection of materials, finishes, and lighting responds to the project’s intention to provide a safe, inspiring, and efficient workspace where employees can feel motivated and creatively engaged.
Additionally, the showroom, reception, and customer service areas were conceived to highlight interior finishes and reflect the company’s identity, ensuring that both workers and clients experience environments aligned with comfort, well-being, and the project’s user-centered design approach.

Section A-A
Section B-B
Section C-C
Section D-D



“Norma’s Room Design and Gloria’s Room Design”

Individual Design Proposal
Customer: Gloria and Norma
Year: 2022
Location: Ayacucho Avenue 234, Santiago de Surco, Lima, Peru
Levels: 1 floor
Area: 13.5 m² and 17.5 m²
Objective: Design and remodel the bedrooms of Gloria and Norma, based on their personal tastes and specific needs.



The project consisted of the remodeling of a bedroom under the concept of a contemporary natural refuge, with the objective of transforming the space into a serene, functional, and aesthetically harmonious environment. The design was developed based on the preferences of the user, who valued the connection with nature, tranquility, and elegant details, seeking a bedroom that would reflect her personality and lifestyle.
A palette of soft green tones —the client’s favorite color— was used, combined with light wood and golden accents that provided brightness and sophistication. The green wall behind the bed, framed with vertical wooden slats, acts as the focal point of the space, generating depth and warmth. The circular mirrors and golden lamps complement the composition, adding dynamism and a contemporary air with feminine touches.
The large side window plays a leading role by allowing an abundant entry of natural light and opening the space toward an exterior full of vegetation. This visual connection with the exterior reinforces the feeling of well-being, expanding the spatial perception and generating a relaxing and natural atmosphere.
The layout was designed based on the requirements of the user, incorporating a vanity next to the window, which takes advantage of natural lighting and offers a functional area for her daily routine. The bed is located at the center of the space, flanked by floating nightstands and punctual lighting that emphasize the symmetry and balance of the whole.
In summary, the design combines elegance, balance, and comfort, achieving a space that reflects the essence of its owner and her search for harmony with nature, responding to her personal tastes, needs, and way of living to create an atmosphere where she feels comfortable and connected to a space tailored to her lifestyle and well-being, where each material, color, and
First Floor Plan
The project consisted of the complete remodeling of a bedroom under a contemporary approach with Japanese inspiration, designed for Mrs. Gloria. The objective was to create a cozy, functional, and visually balanced environment that would reflect her calm personality, her preference for simplicity, and her appreciation for orderly and bright spaces.
The proposal is based on a concept of serenity and visual balance, where clean lines, natural materials, and natural lighting play an essential role. The color palette combines neutral and warm tones —such as beige, gray, and light wood— accented with dark blue, the user’s favorite color, which adds depth and contrast. The use of vertical wooden slats provides texture and warmth, while black shoji-style panels define the areas with an elegant and understated language.


First Floor Plan


The bed is positioned as the central element, framed by a symmetrical composition of nightstands and pendant lighting. Behind the headboard, a wall with wooden slats and modern artwork reinforces the sense of balance. To one side, a customdesigned desk fulfills the client’s wish to have a functional area for her personal activities.
The large panoramic window allows abundant natural light to enter and establishes a direct connection with the outdoor environment —a key element in the design due to the user’s affinity for nature. Floating planters and ornamental plants add freshness, while accent and decorative lighting highlight textures and materials.
Overall, the design creates a harmonious and serene space that integrates functionality, aesthetics, and user well-being, responding to the occupant’s needs to provide a comfortable atmosphere where they can feel at ease and happy in their room.


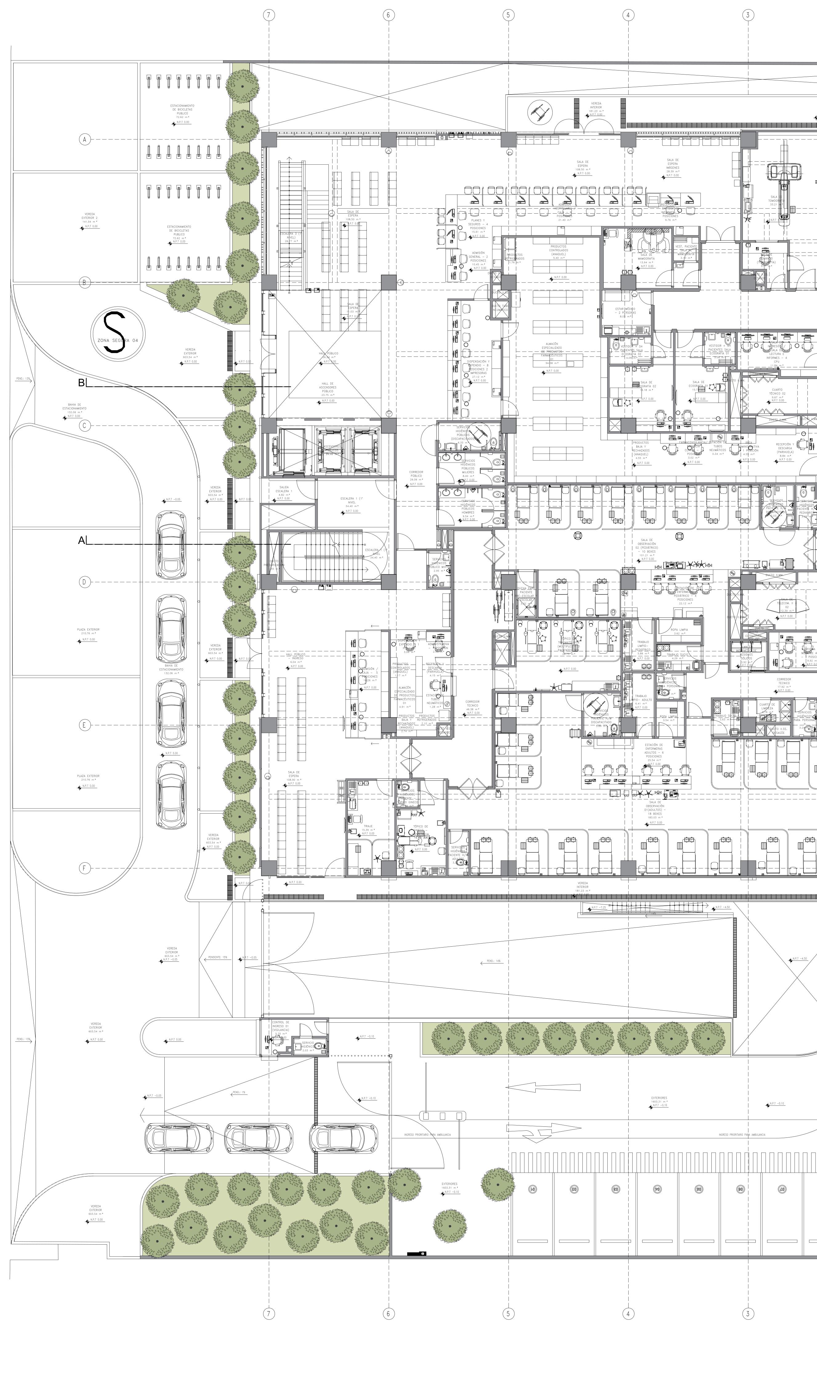
“Antonio Lorena Hospital in Cusco”

Architectural project developed by Samadhi Perú SAC, where I contributed as a BIM Modeler and Design Assistant.
Year: 2023
Location: Carlos Ugarte Avenue, Cusco 08007, Peru
Levels: 5 floors and a rooftop
Area: 19,125 m²
Role: I was part of the company Samadhi Perú SAC and supported the development of the hospital’s architectural technical file, serving as a Revit modeler under the BIM methodology and as a design assistant.

General Plan of the Hospital






The Antonio Lorena Hospital, an 80-year-old and highly significant healthcare center in the region, has undergone multiple incomplete modernization efforts, resulting in a complex history of unfinished works and structural changes. This project focuses on adapting and completing its high-complexity infrastructure to meet the specialized healthcare needs of a region with high medical demand.
The architectural proposal reorganizes the partially built structure to optimize circulation flows, meet current healthcare regulations, and accommodate updated technical and medical requirements. The hospital is organized into seven interconnected functional sectors across five levels, ensuring a clear separation between public, medical, and technical areas and facilitating efficient vertical and horizontal circulation.
The project comprises nine operating rooms; adult, pediatric, and neonatology hospitalization units; intensive and intermediate care units; emergency and obstetric areas; imaging diagnostics; nuclear medicine; oncology; and all required logistical support services. The architectural proposal applies principles of biosafety, energy efficiency, and environmental comfort, incorporating modern ventilation, lighting, and building control systems to ensure safe and efficient operation.
My role included developing architectural drawings and BIM models (Revit LOD 300), designing interior layouts, finishes, and furniture specifications in accordance with healthcare standards, and preparing detailed interior drawings and key technical documents. I also participated in BIM coordination and clash detection to integrate interior solutions with architectural and MEP systems, and supported quality control using Autodesk Docs and Revizto throughout the project’s development.
The design responds to the topographical and urban conditions of Cusco, prioritizing accessibility, integration with the environment, and climate adaptation. The hospital’s architecture combines functionality, technology, and spatial flexibility, enabling future changes or expansions without compromising service continuity.
General Longitudinal Section
General Longitudinal Section
General Longitudinal Section
General Longitudinal Section








“All-Girls Educational Institution in Arequipa”

Educational Infrastructure Improvement – Señoritas School, Arequipa, Peru
Architectural project developed by Poggione + Biondi Arquitectos
Year: 2024
Location: Lucas Poblete 214, Arequipa, Peru
Levels: 4 floors
Area: 21,260 m²
Role: Design Assistant – I was part of the design team, supporting the development of the project’s technical documentation. I contributed to the preparation of landscape drawings, descriptive reports, finishes chart, and technical specifications.



The project proposes the comprehensive architectural renovation of the “Señoritas” Educational Institution in Arequipa, Peru, located in an urban context with a strong historical identity but marked by structural deterioration and functional deficiencies. The intervention aims to modernize the existing infrastructure and provide optimal conditions for contemporary education through a sustainable, accessible, and pedagogically innovative design.
The proposal follows the guidelines of the National Program for Educational Infrastructure (PRONIED) and is organized through interconnected functional blocks that house the primary and secondary levels, administrative zones, service areas, and sports facilities. These volumes are articulated by plazas, courtyards, and pedestrian circulations at different levels, taking advantage of the site’s natural topography and creating a fluid and hierarchized spatial sequence.
My contributions included producing architectural drawings and BIM models (AutoCAD and Revit LOD 200), ensuring design accuracy and coordination. I designed classroom layouts and finishes, prepared technical documents and finish schedules, developed furniture and material proposals, and supported landscape design as well as BIM integration with architectural and MEP systems.
The architectural design prioritizes natural lighting, cross ventilation, and passive solar control using perforated metal lattices and large openings that enhance thermal comfort and energy efficiency. The material palette combines exposed concrete, metal, and warm earthy tones, evoking Arequipa’s identity and referencing the volcanic texture of local sillar stone in a contemporary way.
Interior design supports the educational experience through ergonomic furniture, pedagogically aligned equipment, and finishes and colors that stimulate concentration, creativity, and active learning. Elevated bridges and ramps ensure universal accessibility, while outdoor areas—green spaces, courtyards, and bio-gardens—promote outdoor learning. Altogether, the project reimagines public education as a modern, inclusive, and emotionally engaging environment.








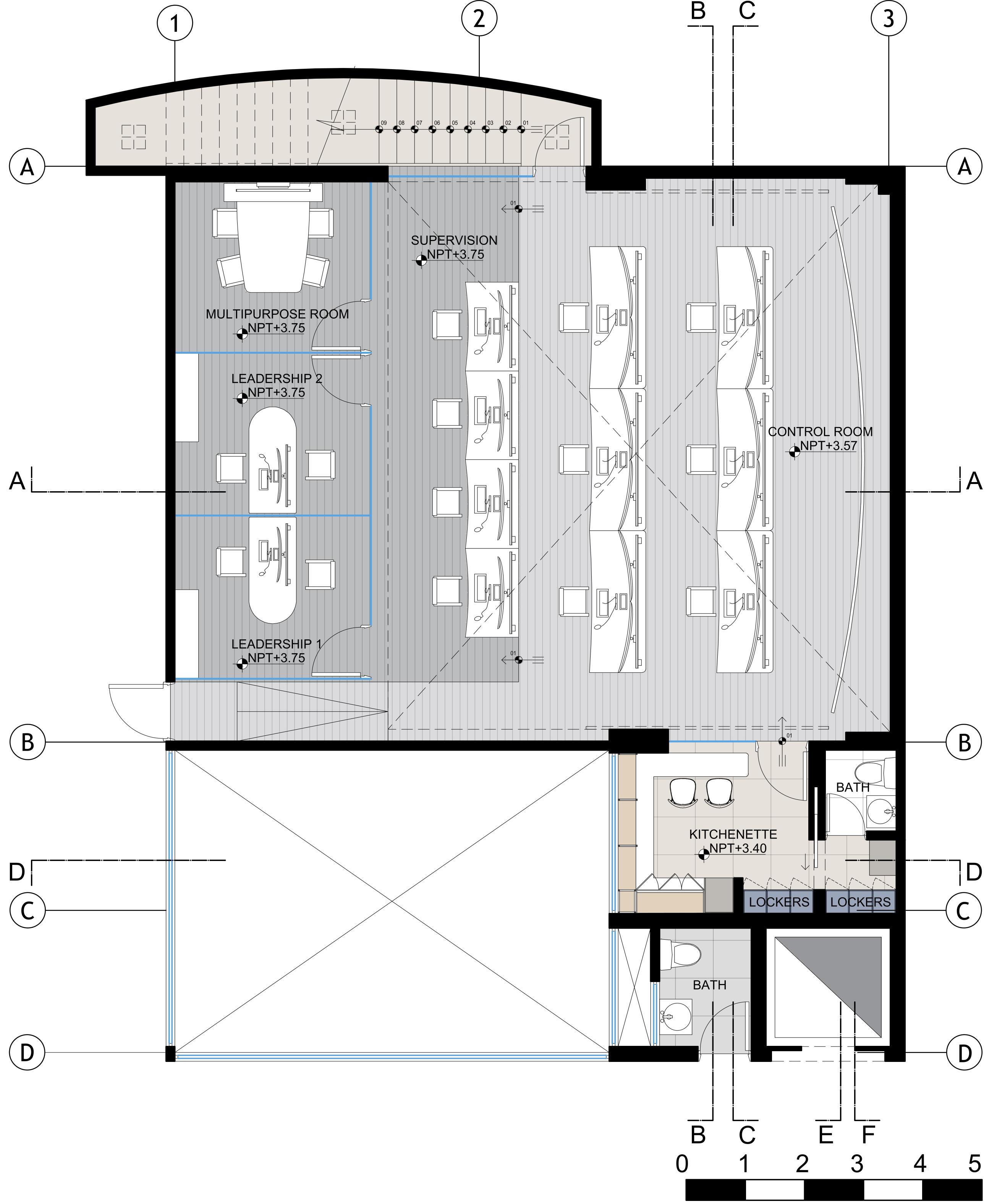
“Control Room Renovation –Luz del Sur”


Individual Design Proposal
Year: 2024
Location: Ricardo Palma Avenue 461, Miraflores, Lima, Peru
Levels: 1 floor
Area: 150 m²
Objective: Together with architect Valeria Alata, we designed this control center for the company Luz del Sur, which commissioned us to remodel its existing facility with a modern identity that reflects the company’s brand values.

Design Moodboard – Kitchenette
Design Moodboard – Control Center


This project consisted of the comprehensive design of the new Control and Monitoring Center for Luz del Sur, one of the main electric power providers in Lima. The goal was to create a functional, technological, and ergonomic environment that enables the team to supervise system incidents in real time.
The main space is the monitoring room, equipped with highperformance workstations, curved screens, and a videowall that centralizes real-time data. The design responds to the need for focus and efficiency through a sober color palette based on whites, grays, and blacks, complemented by technical lighting that provides visual rhythm without distraction.
Behind the control area are private meeting rooms, organized in glass-enclosed modules that offer privacy while maintaining visual connection. The complementary service area—which includes a kitchenette, restroom, and changing rooms— introduces Luz del Sur’s institutional colors: blue and yellow. The kitchenette was conceived as a comfortable and multifunctional space, featuring custom-made furniture, numbered lockers, a breakfast bar, and efficient storage solutions. The restrooms and changing rooms use durable finishes, focused lighting, and a functional layout.
One of the project’s key elements is the staircase, completely clad in yellow and accentuated by linear lighting that reinforces its vertical connection and creates architectural dynamism.
A practical layout was prioritized to promote organization, cleanliness, and daily comfort for employees, integrated into a clear overall scheme where each zone fulfills a specific function while maintaining a balance between technology, user wellbeing, and corporate aesthetics. The proposal aims not only to optimize team operations but also to reinforce the modern and innovative identity of Luz del Sur.
Additionally, the design seeks to create an atmosphere that stimulates employees’ motivation, emotional vitality, and collaborative mindset, fostering a workspace where they feel energized, connected, and encouraged to perform their tasks effectively within a contemporary and inspiring environment.


Section A-A
Section B-B






“Stephany’s Dental Clinic Design”

Individual Design Proposal
Year: 2024
Location: Almirante Grau Avenue 1350, Barranco, Lima, Peru
Level: 1 floor
Area: 35 m²
Objective: To design a personalized dental office for dentist Stephany Quevedo López, according to her aesthetic and functional preferences. The design reflects her appreciation for elegant and welcoming spaces through a palette of cream and gold tones with aqua-green accents, optimizing the distribution and use of every square meter.

Design Moodboard – Dental Clinic


The project develops a compact and carefully organized space in which the color palette and materials respond to the client’s aesthetic preferences and functional requirements. Cream and gold tones provide brightness, elegance, and warmth, while aqua green is applied at focal points —such as chairs and furniture details— to create contrast and a sense of freshness. Calacatta marble-style panels with golden veining reinforce the sense of sophistication, integrating a contemporary and harmonious interior language.
The entrance leads to a reception area designed to convey a professional yet welcoming first impression. This space includes a small waiting area, a reception desk, and a rear display cabinet for dental products. Given the limited dimensions, a large mirror was incorporated to reflect light and visually expand the space. A front panel with the dentist’s logo and name marks the entry and strengthens the identity of the clinic.
The treatment area is organized with a consultation desk, two patient chairs, and a procedure room equipped with a dental chair, technical instruments, and custom-made furniture. This built-in cabinetry optimizes storage, facilitates cleaning, and maintains clinical order, complying with health regulations that require smooth surfaces and the absence of visible wiring or exposed installations, ensuring a safe and easy-to-maintain environment.
Technical lighting plays a fundamental role, especially in the operating zone, where focused, high-intensity fixtures were installed according to dental practice standards. Additionally, the use of warm tones, welcoming finishes, and balanced lighting creates an atmosphere that conveys confidence and calm to patients, making the experience more comfortable and emotionally positive. Natural vegetation adds balance and wellbeing.
Altogether, the project achieves an elegant, functional space consistent with the dentist’s personality and fully adapted to the needs of her professional practice. The design was developed according to her personal tastes and specific work dynamics, creating a clinic where she can feel comfortable, confident, and emotionally supported while attending each appointment with her patients, turning her everyday workspace into a place that she enjoys and feels happy to inhabit.


Section A-A
Section B-B
Section C-C
Section D-D



“Santa Maria Catholic University in Juliaca”

Architectural project developed by Poggione + Biondi Arquitectos, where I contributed as a BIM Modeler and Design Assistant.
Year: 2024
Location: Industrial Avenue, Juliaca, San Román, Puno, Peru
Levels: 7 floors and a rooftop
Area: 41,880 m²
Role: I was part of the design team at Poggione + Biondi Arquitectos as a Design Assistant for a university project, collaborating in the development of architectural drawings and details, furniture and equipment proposals, BIM modeling in Revit, landscape design, and coordination with sanitary, mechanical, and electrical specialties.



First Floor Plan





The project proposes an architectural and landscape complex that integrates educational spaces with student gathering areas to promote interaction, community life, and connection with nature. A clear circulation and zoning structure links plazas, pathways, viewpoints, and green areas with the built volumes, creating a continuous network of learning, rest, and contemplation while organizing access.
Site planning responds to Juliaca’s topography, solar radiation, and prevailing winds. The main block—housing classrooms, a library, and offices—is strategically oriented to reduce solar gain, maximize natural lighting, and ensure thermal comfort and energy efficiency. Its reddish concrete façade harmonizes with the Andean landscape, reinforcing visual integration with the surroundings.
The complex is composed of four blocks: Educational and Administrative, Auditorium, Dining Hall with a Multipurpose Room, and General Services. Each volume fulfills a function yet integrates within a unified system that promotes spatial continuity, dialogue between interior and exterior, and adaptation to the high-altitude climate.
Within the classroom block, interior spaces incorporate vegetation, finishes, and textures that reflect the natural context, creating comfortable environments that stimulate learning. Ergonomic furniture and equipment were selected in harmony with the interior design and student needs. The landscape integrates native vegetation and an intangible waruwaru area—linked to local agricultural heritage—preserved and transformed into a viewpoint and open-air classroom.
Sustainable and locally sourced materials—reddish concrete, wood, and compacted earth—ensure durability, low maintenance, and coherence with Andean constructive traditions, fostering new educational, social, and cultural dynamics within the university community.
First Floor Plan – Classroom Block








“Tanta Restaurant Renovation Project”

Individual Design Proposal
Year: 2025
Location: Vasco Núñez de Balboa Avenue 660, Miraflores, Lima, Peru
Levels: 1 floor
Area: 215 m²
Objective: Together with architect Valeria Alata, we remodeled the kitchen, bar, and dessert area of the Tanta restaurant. The goal was to modernize the spaces, improve their functionality, and strengthen the brand’s identity through design.


First Floor Plan


This interior remodeling project for the renowned restaurant chain Tanta aimed to modernize and optimize three key zones— the bar, dessert area, and kitchen. The design maintains the brand’s contemporary and vibrant identity, preserving its Peruvian essence through a sophisticated, functional, and technological visual language with a rustic-industrial aesthetic.
The proposal introduces a new spatial layout and reorganizes equipment to improve workflow and enhance the experience for both users and staff. Finishes include white veined marble countertops, rustic reddish brick walls, metal lattice ceiling panels, and textured green porcelain tiles. The palette blends earthy and neutral tones with natural wood and warm lighting to create an inviting and elegant atmosphere.
An L-shaped bar integrates the bar and dessert areas, featuring a backlit structure with clean, modern lines. Above it, illuminated hanging panels create a more dynamic visual experience for beverage selection. The dessert area includes larger display cases and illuminated shelving that enhance product visibility and improve self-service organization.
The kitchen underwent a full renovation focused on operational efficiency. Circulation between reception, preparation, and dispatch was reorganized, defining clear zones for pre-cooking, hot cooking, salads, and washing. Durable, easy-to-clean work surfaces were installed, along with efficient industrial equipment, optimized LED lighting, and proper ventilation and extraction systems to ensure a safe and hygienic environment.
Overall, the intervention creates a modern, dynamic space aligned with Tanta’s visual and operational identity, integrating design, functionality, and technology within a warm, rusticindustrial material palette.
Section
Section G-G
Section D-D
Section E-E
Section F-F
Section C-C
Section A-A
Section B-B


“Aviva Clinic in Ate”

Architectural project developed by Samadhi Perú S.A.C., where I contributed as a BIM Modeler
Year: 2025
Location: La Molina Avenue 180, Ate, Lima, Peru
Levels: 1 basement, 5 floors, and a rooftop
Area: 6,607 m²
Objective: During my professional experience at Samadhi Perú S.A.C., I participated in the Clínica Aviva project as an architect and BIM modeler, collaborating in the development and coordination of the architectural and interior design.



Clínica Aviva is a private healthcare infrastructure project designed under the technical guidelines of the Peruvian Ministry of Health for second-level healthcare facilities, specializing in gynecological-obstetric care and complementary outpatient surgery services. The design seeks to balance functional efficiency with the emotional experience of the user, recognizing that healthcare architecture must actively contribute to the recovery process.
In this project, I supported the development of the hospital by producing architectural drawings and BIM models (Revit LOD 300) and designing interior layouts, finishes, and furniture specifications aligned with healthcare standards. I also prepared detailed interior drawings and key technical documents, and participated in BIM coordination and clash detection to integrate interior solutions with architectural and MEP systems. Additionally, I assisted with quality control through Autodesk Docs and Revizto during the project’s development stage.
The building develops within a compact five-story volume, with a basement for parking and technical areas, and a rooftop reserved for electromechanical equipment. The functional units are efficiently organized, separating ambulatory, technical, and emergency flows. Public areas such as outpatient consultation, pharmacy, diagnostic imaging, and rehabilitation are located on the lower levels, while the upper floors accommodate hospitalization, surgical, obstetric, and intensive care units, ensuring privacy, environmental control, and direct connection to technical services.
Interior design plays a central role in creating a healthy and welcoming atmosphere. The proposal uses warm and cheerful colors, natural wood finishes, and soft-textured materials that evoke calmness and empathy. Interior courtyards and landscaped terraces introduce natural light and vegetation, creating spaces for rest and contemplation that strengthen the user’s connection with nature. This biophilic approach not only enhances indoor environmental quality but also helps reduce stress and promote emotional well-being among patients, families, and medical staff.
The waiting areas, cafeteria, and patient rooms were designed with a human scale and coherent visual language: ergonomic furniture, warm lighting, outdoor views, and turquoise and wood tones that convey optimism and serenity. The result is a contemporary healthcare facility that combines medical functionality, environmental comfort, and spatial empathy, establishing itself as a model of human-centered design in healthcare architecture.


General Section











An architectural survey was carried out on a 60-yearold house. The dwelling, with a traditional structural system, featured a rigid and fragmented layout.
The main objective of the project was to reorganize and optimize the functionality and spatial quality of the residence while respecting its original structure. The proposal establishes a hierarchy between public and private spaces, with a fluid transition that enhances comfort, privacy, and the relationship with the surrounding environment.
First Floor:The interior layout was reconfigured to optimize the use of common areas. The main entrance was preserved and now connects the living room, dining area, kitchen, and garage. The former consulting room was adapted into a commercial space. Cross ventilation was prioritized through side
Second Floor:The bedroom distribution incorporates views toward patios and terraces, improving natural lighting and ventilation. Circulation was made more open, and a semi-private gathering space was intro-
Third Floor:Flexible spaces were proposed, including a study, laundry area, terraces, and resting zones.
The intervention enhances the indoor-outdoor relationship through patios and terraces, promoting well-being and comfort. The project revitalizes a home with architectural and emotional value, adapting it to new family and functional dynamics.
