Katherine Thomas work samples 2023

Page 1

KATHERINE THOMAS DESIGN PORTFOLIO Selected Design and Architecture Works 2023

Design Project: Tsinghua University Qingdao Hospital

Location: Quingdoa, China

Project Type: Health Care + Education

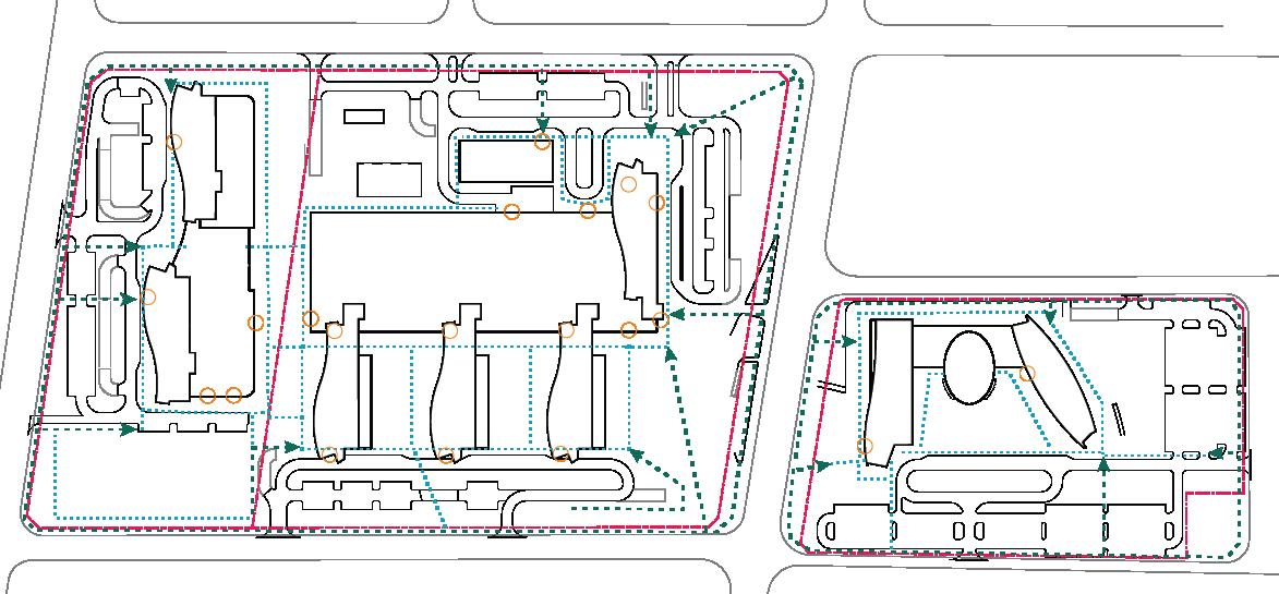
The Tsinghua University Qingdao Hospital, located in a seaside resort city, design aims to build a facility which has an international advanced medical concept, provides comfortable and pleasant medical experience for patients, and integrates the latest approach to medical technology. The Client wished to further stitch the relationship between Medicine and Research. This resulted in a large site of 345,500 square meters that included; Teaching Facilities, Research Facilities, General Hospital, Infectious Disease Center, International Hospital, Maternity Unit, Specialty Clinics, Specialty Hospital, Shared Services Buildings, and Housing.

People-oriented and medical experience is one of the core design concepts. It meant Patients were treated as Welcome Guests, bringing utmost consideration of the user experience of patients, medical staff, logistics people, researchers etc., This also means we needed to rethink the operational model and approach within the landscape and how it reacts to all the different facilities it corresponds to. The Landscape Spaces ranged from rooftop healing gardens, zen gardens, and garage level Sunken Gardens.

Rendered Site Plan Planting Zones Architectural Zones Landscape Promenade Concept Illustration Garage Level Sunken Garden Illustration Pedestrian Circulation Vehicular Circulation

Building Levels

Ground Level Softscape and Sunken Gardens

Green Roof
Tree
Canopy
Specialty Hospital Tower Section Landscape Elements Axo Explosion Winter Shade Diagram
Diagram
Hardscape
Summer Shade

Design Project: The Ohio State University Roof and Patient Drop off Location: Columbus, Ohio

Project Type: Health Care

The prestigeous Ohio State University needed Rooftop Garden that served as a communal space adjacent to the cafe inside and a view from the VIP patient rooms, while most importantly works as an emergency fire exit. The site’s design intent is to create a serene space where patients, family, and staff can find peace or gathering space. Meanwhile the Patient Drop off on the main level serves mostly as functional in its interface with the roads and Rain Canopy. It includes planting islands, a sculpture garden, Seating areas, and an Emergencies Lane through the middle. The client emphasized lower maintenance plantings while still providing aesthetic appeal.

New Tower Roof Seating Space
Roof Planter Seat and Canopy Render
Render
Roof Garden Render
Roof Colour Site Plan
LST2 Aronia melanocarpa LST1 3,016 sf Deschampsia cespitosa `Northern Lights` / Northern Lights Hair Grass 1,881 PLUG 60% @ 12" oc Penstemon digitalis / Beard-tongue 784 4" POT 25% @ 12" oc Sedum x `Autumn Fire` / Autumn Fire Sedum 209 #1 15% @ 18" oc LST2 3,489 sf LST-1
'Northern Lights' Sedum
Penstemon
digitalis Deschampsia cespitosa
'Autum Fire'
Ground Floor Plant Mix Aronia
'Low Planting Plant Plant Schedule Landscape plan Bird’s Eye View Sculpture Garden Render Roof Garden Planting Seat Render Roof Garden Planting Specifications
Planting Diagram for LST-1 (NTS)
melanocarpa
Lavandula angustifolia

Design Project: Makkah Gate City

Location: Mecca Province, Saudi Arabia

Project Type: Urban Planning and Civic

The plan for Makkah Gate City Design is grounded first in ethics and spirit, only then physical form. It is located in the most holy place, within the Makkah precinct in close proximity to Masjid-al-Haram and the Kaaba. The client asked for a thoughtful city plan balancing the

North + South Parkway Colour Plan 1.6 m 3.25 m 4 m 5 m 6.12 m 7.43 m 9.7 m 14.3 m
Transit Hub and Plaza Detail plan Souk Al Jami Space Detail plan Transit Hub and Plaza visualization Souk Al Jami Space Render Transit Hub and Plaza visualization
Design Project: Makkah Gate City

Design Project: London Circadia

Location: London, United Kingdom

Project Type: Student Project

This Student project is a response to adult sleep statistics in London, and the general lack of sleep and down time anticipated in the year 2050. It featured strategically placed jetties alongside public parks along the Thames to create a system of boats that can be used as sleep or nap pods. Taking advantage of the river movements to facilitate sleep. The surrounding parks of the jetty locations use tactical plantings to aid relaxation and signify the nap jetties through sensory and visual attributes. The biophillic advantages lush aesthetics for the Jetty landing spaces, create different relaxation zone where one could almost believe they aren’t in London anymore but nearing a detached dream scape.

Bridge Approach Illustration
Bridge Approach Illustration
Site and other connected sites
Key
Key Jetty connector Design
Site Plan and Key Points
Concept Illustration
Experiential Story board through Landscape Path Concept Image Prompt and Concept Developent

Design Project: Hand Sketches and Mood Board for Shoot Proposal

Location: New York, New York

Project Type: Freelance

The Concept The Pose The Look The Sketch

Design Project: Personal Works

Design Project: Neemar North Coast Resort

Location: Cairo, Egypt

Project Type: Master Planning

Beach Resort Neighborhood masterplan and design located along the North Coast of Egypt. The Design is to make a high end beach oasis to pull in luxury clients. The neighborhood offers a range of activities from leafy promenades to full beaches all in easy walking, biking, or vehicular access to its residents. The curated planting palette and destinct lush planting serves as this resorts identity putting it apart from neighboring resorts.

Pool Planting Seat Render Pool Section
Neighborhood Promenade Section Neighborhood promenade Render

Design Project: Elmor Stout School Junior and Senior Campus

Location: British Virgin Islands

Project Type:

In September 2017, Hurricane Irma slammed through the British Virgin Islands, leaving massive destruction across the island, and especially in Tortola. The Elmore Stoutt School’s Junior and Senior High School Campus was flooded and largely flattened, and when students returned, it was to temporary trailers. A team from HDR’s Design 4 Others (D4O) was brought in by Construction for Change, a not-for-profit project manager, to first assist by developing a space program and master plan for revitalizing the devastated campus, and then, to provide design drawings for the first phase replacement facilities to accommodate both Junior and Senior High School programs.

The master plan is founded on creating a walkable, open campus with a clear, logical, and welcoming arrival sequence. A series of orienting courtyards create a distinct sense of place, and can be used for various activities, including outdoor educational programming, recreation, dining, and socializing between classes. A central courtyard contains a retaining basin below grade to assure that the new city storm water management system does not fail, as it did during Irma, and the school is protected from future flooding.

The new, two-story buildings are appropriately scaled for students and teachers, and employ a simple roof structure with minimal extensions or overhangs to assure that high winds cannot lift them. Using local readilyavailable materials—concrete, wood, metal, and glass—the goal is to bring tilt-up slab construction to the island by educating local builders through Construction for Change. The single-loaded classroom blocks with corridors lining the courtyards are awash in natural light. In addition to pleasant circulation space with easy access to the courtyards, the graciously sized corridors can display students’ art and other projects, to help foster a welcoming sense of community.

Site Plan Concepy Collage or Court Yard
Site Plan Building Views and Context Building Views and Context

Turn static files into dynamic content formats.

Create a flipbook
Issuu converts static files into: digital portfolios, online yearbooks, online catalogs, digital photo albums and more. Sign up and create your flipbook.
Katherine Thomas work samples 2023 by katherine.thomas2097 - Issuu