Katherine Thomas Environmental Design Work Samples

Page 1

Selected Design and Architecture Works 2023

Design Project: The Ohio State University Roof and Patient Drop off Location: Columbus, Ohio

Project Type: Health Care

The prestigeous Ohio State University needed Rooftop Garden that served as a communal space adjacent to the cafe inside and a view from the VIP patient rooms, while most importantly works as an emergency fire exit. The site’s design intent is to create a serene space where patients, family, and staff can find peace or gathering space. Meanwhile the Patient Drop off on the main level serves mostly as functional in its interface with the roads and Rain Canopy. It includes planting islands, a sculpture garden, Seating areas, and an Emergencies Lane through the middle. The client emphasized lower maintenance plantings while still providing aesthetic appeal.

New Tower Roof Seating Space
Roof Planter Seat and Canopy Render
Render
Roof Garden Render
Roof Colour Site Plan
LST2 Aronia melanocarpa LST1 3,016 sf Deschampsia cespitosa `Northern Lights` / Northern Lights Hair Grass 1,881 PLUG 60% @ 12" oc Penstemon digitalis / Beard-tongue 784 4" POT 25% @ 12" oc Sedum x `Autumn Fire` / Autumn Fire Sedum 209 #1 15% @ 18" oc LST2 3,489 sf LST-1
'Northern Lights' Sedum
Penstemon
digitalis Deschampsia cespitosa
'Autum Fire'
Ground Floor Plant Mix Aronia
'Low Planting Plant Plant Schedule Landscape plan Bird’s Eye View Sculpture Garden Render Roof Garden Planting Seat Render Roof Garden Planting Specifications
Planting Diagram for LST-1 (NTS)
melanocarpa
Lavandula angustifolia

Design Project: Tsinghua University Qingdao Hospital

Location: Quingdoa, China

Project Type: Health Care + Education

The Tsinghua University Qingdao Hospital, located in a seaside resort city, design aims to build a facility which has an international advanced medical concept, provides comfortable and pleasant medical experience for patients, and integrates the latest approach to medical technology. The Client wished to further stitch the relationship between Medicine and Research. This resulted in a large site of 345,500 square meters that included; Teaching Facilities, Research Facilities, General Hospital, Infectious Disease Center, International Hospital, Maternity Unit, Specialty Clinics, Specialty Hospital, Shared Services Buildings, and Housing.

People-oriented and medical experience is one of the core design concepts. It meant Patients were treated as Welcome Guests, bringing utmost consideration of the user experience of patients, medical staff, logistics people, researchers etc., This also means we needed to rethink the operational model and approach within the landscape and how it reacts to all the different facilities it corresponds to. The Landscape Spaces ranged from rooftop healing gardens, zen gardens, and garage level Sunken Gardens.

Rendered Site Plan Planting Zones Architectural Zones Landscape Promenade Concept Illustration Garage Level Sunken Garden Illustration Pedestrian Circulation Vehicular Circulation

Ground Level Softscape and Sunken Gardens

Green Roof Building Levels Tree Canopy
Specialty Hospital Tower Section Landscape Elements Axo Explosion Winter Shade Diagram
Diagram
Hardscape
Summer Shade

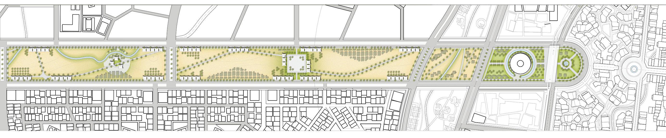
Design Project: Makkah Gate City

Location: Mecca Province, Saudi Arabia

Project Type: Urban Planning and Civic

The plan for Makkah Gate City Design is grounded first in ethics and spirit, only then physical form. It is located in the most holy place, within the Makkah precinct in close proximity to Masjid-al-Haram and the Kaaba. The client asked for a thoughtful city plan balancing the

North + South Parkway Colour Plan 1.6 m 3.25 m 4 m 5 m 6.12 m 7.43 m 9.7 m 14.3 m
Transit Hub and Plaza Detail plan Souk Al Jami Space Detail plan Transit Hub and Plaza visualization Souk Al Jami Space Render Transit Hub and Plaza visualization
Design Project: Makkah Gate City

Design Project: Westchester Medical Center Tower

Location: New York, USA

Project Type: Healthcare

Medical tower expansion including 300 extra beds and parking and circulation access to existing Medical Hospital in New York. Coordinated with Civil engineers and previous architects to create the best entry ways and drop off locations with the limits of the steep topography surrounding the building. The design included a Zen pebble garden underneath the opening of the tower to create a serene and welcoming entrance for workers and visitors.

100% CD Package Hardscape Enlargement

Design Project: Eemar North Coast Resort

Location: Cairo, Egypt

Project Type: Master Planning

Beach Resort Neighborhood masterplan and design located along the North Coast of Egypt. The Design is to make a high end beach oasis to pull in luxury clients. The neighborhood offers a range of activities from leafy promenades to full beaches all in easy walking, biking, or vehicular access to its residents. The curated planting palette and destinct lush planting serves as this resorts identity putting it apart from neighboring resorts.

Pool Planting Seat Render Pool Section
Neighborhood Promenade Section Neighborhood promenade Render
SD Planting Planting Typology
SD Hardscape Paving Expansion Hardscape Strategy

Design Project: Elmor Stout School Junior and Senior Campus

Location: British Virgin Islands

Project Type:

In September 2017, Hurricane Irma caused severe destruction in the British Virgin Islands, particularly Tortola. Elmore Stoutt School’s Junior and Senior High School Campus was flooded and flattened, and students temporarily relocated to trailers. HDR’s Design 4 Others (D4O) team, working with Construction for Change, developed a master plan to revitalize the campus and provided design drawings for replacement facilities. The plan emphasizes a walkable and open campus, with courtyards serving various purposes and a central courtyard with a retaining basin for flood prevention. The new two-story buildings are designed to withstand high winds and utilize local materials. They feature well-lit corridors for circulation and the display of students’ artwork, fostering a sense of community.

Site Plan Building Views and Context Building Views and Context
Concepy Collage or Court Yard

Design Project: London Circadia

Location: London, United Kingdom

Project Type: Student Project

This Student project is a response to adult sleep statistics in London, and the general lack of sleep and down time anticipated in the year 2050. It featured strategically placed jetties alongside public parks along the Thames to create a system of boats that can be used as sleep or nap pods. Taking advantage of the river movements to facilitate sleep. The surrounding parks of the jetty locations use tactical plantings to aid relaxation and signify the nap jetties through sensory and visual attributes. The biophillic advantages lush aesthetics for the Jetty landing spaces, create different relaxation zone where one could almost believe they aren’t in London anymore but nearing a detached dream scape.

Key Site and other connected sites

Key Jetty connector Design

Bridge Approach Illustration
Bridge Approach Illustration
Site Plan and Key Points
Concept Illustration
Experiential Story board through Landscape Path Concept Image Prompt and Concept Developent

Design Project: Hand Sketches and Mood Board for Shoot Proposal

Location: New York, New York

Project Type: Freelance

The Concept The Pose The Look The Sketch

Design Project: Personal Works

Turn static files into dynamic content formats.

Create a flipbook
Issuu converts static files into: digital portfolios, online yearbooks, online catalogs, digital photo albums and more. Sign up and create your flipbook.