Kathy(Katie)_Portfolio_2023

Page 1

PORTFOLIO KATHY KOJI (KATIE) 2023
02
PROJECTS 04 03 12 20 26 32

THE INTROVERTED REBEL 2023

04

A NEIGHBORHOOD BRANCH LIBRARY THAT ALSO HAS AN APARTMENTS SECTION. IT’S INTROVERTED WITH ITS INWARD BALCONIES AND LARGE COURTYARD GARDEN, AND WANTS TO REBEL WITH ITS ORGANIC FORM.

05

FIRST FLOOR SECOND FLOOR THIRD FLOOR FOURTH FLOOR FIFTH FLOOR

06
ELEVATION
07 SECTION PERSPECTIVE 1 SECTION PERSPECTIVE 2

APPROACH TO BUILDING

08
AXON AND APPARTMENTS APPROACH 09

BRIDGE PUZZLE PAIRS 2022

10

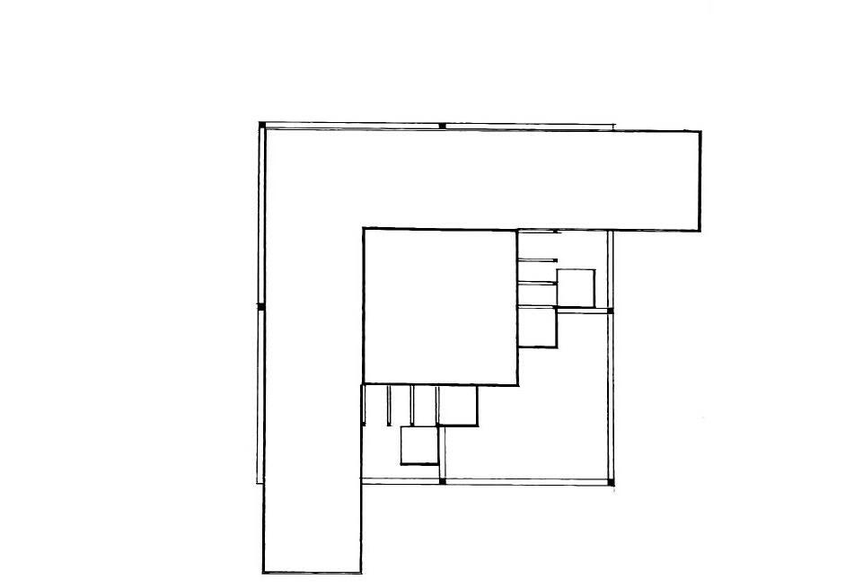
AN INTERGENERATIONAL ROW HOUSE PROJECT THAT IS FOR THE COMMUNITY OF THE POWELTON AREA. IT CREATES VARIOUS OPPORTUNITIES TO ENGAGE WITH OTHERS INSIDE AND OUTSIDE THE TIGHT WALLS OF A ROW HOUSE. IT ALSO TRIES TO MAKE A SPACE THAT IS CONNECTED WHILE MAINTAINING ITS DISCONNECTION WHICH IS REFLECTED ON THE BRIDGE ELEMENTS.

11

ELEVATION

12
13
CIRCULATION
ACCESS COMMON SPACES UNITS
Floor Plans 1/4" = 1'-0" FIRST FLOOR THIRD FLOOR SECOND FLOOR 14 Floor Plans 1/4" = 1'-0" FIRST FLOOR THIRD FLOOR SECOND FLOOR Floor Plans 1/4" = 1'-0" FIRST FLOOR THIRD FLOOR SECOND FLOOR FIRST FLOOR SECOND FLOOR THIRD FLOOR

LONGITUDINAL SECTIONS

15

CROSS SECTION

16
17
PLAN
LOCATION
DETAIL SECTION SITE
BRIDGE

PROCESS MODELS

18

KEY LOCATIONS IN THE PROJECT THAT WOULD CREATE OPPORTUNITIES FOR INTERACTION WITH THE NEIGHBORING ROWHOUSE

19

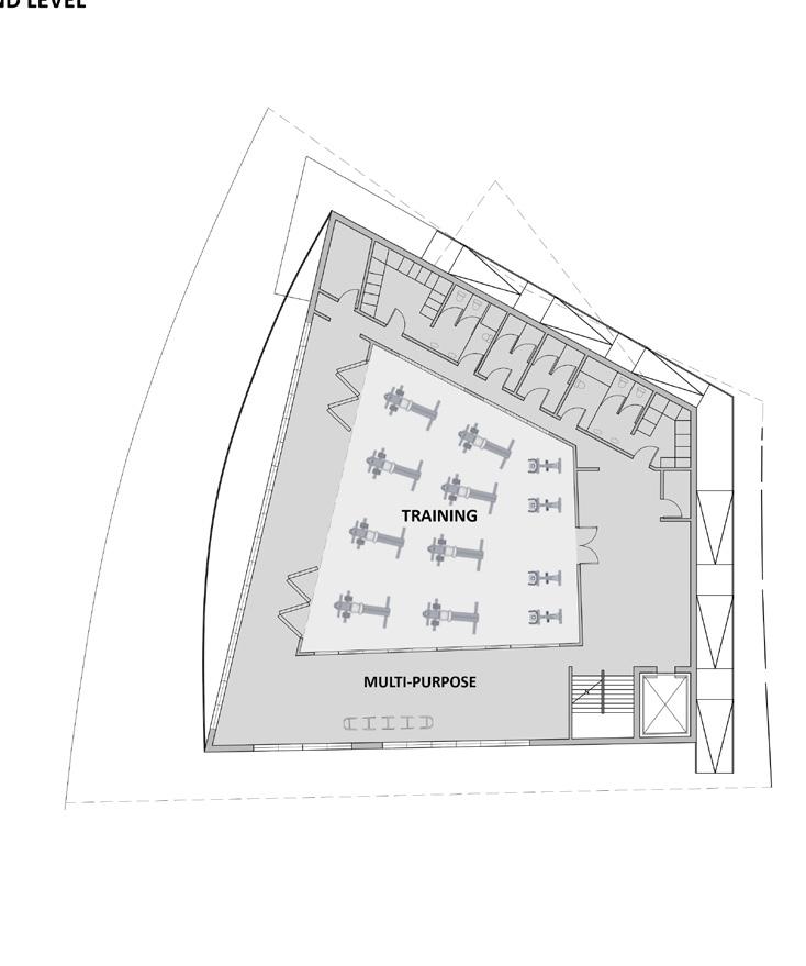
PCR BOATHOUSE 2022

20

THIS PROJECT IS FOR ROWER STUDENTS WHICH WOULD MAXIMIZE VIEWS AND CREATE SPACES TO ENGAGE WITH VISITING GUESTS WHILE STILL MAINTAINING PRIVACY FOR TRAINING. IT ALSO GIVES THE STUDENTS THE OPTION TO TRAIN OUTDOOR OR INDOOR WITHOUT COMPROMISING SECURITY.

21
22
SECOND FLOOR THIRD FLOOR FOURTH FLOOR FIFTH FLOOR FIRST FLOOR RHINO MODEL
23
24 DAY + NIGHT COLLAGES
25 STUDY MODELS

UNBOXED PAVILION 2021

26

A PAVILLION THAT IS ONLY MADE OF SQUARES TAKING BASIC IDEAS OF DREXEL’S MAIN BUILDING DESIGN. PATTERN AND THRESHOLD ARE THE MAIN CONCEPTS TO ITS MAKING.

27

FIRST FLOOR

THIRD FLOOR

SECOND FLOOR

28

HAND RENDERED EPISODIC

29
30 FINAL MODEL
31
HAND DRAWN AXONOMETRIC

SUPPLEMENTAL WORKS

32
33

Turn static files into dynamic content formats.

Create a flipbook
Issuu converts static files into: digital portfolios, online yearbooks, online catalogs, digital photo albums and more. Sign up and create your flipbook.