Adaptive Reuse Thesis Interior Architecture

Page 1

Vera d oria

VERADORIA A

Thesis

Presented to the Undergraduate Faculty of

The NewSchool ofArchitecture & Design

In Partial Fulfillment of the Requirements for the Degree of Bachelor of Interior Architecture & Design

June 2024

San Diego, CA I

© 2024

KATARINA-NASTASJA

SIVCEV

ALL

RIGHTS RESERVED

III

Abstract

This thesis addresses the pressing challenge of urban decay and the underutilization of historic buildings in downtown San Diego, with a focus on the adaptive reuse of the Centre City Building at 233 A Street. The significance of revitalizing such structures lies in their potential to enrich urban life and preserve architectural heritage. The study explores the problem of integrating modern residential and commercial needs into a historic fabric without compromising its integrity. Through a combination of architectural analysis, case studies of similar projects, and literature review, this thesis develops a comprehensive approach to adaptive reuse. The implications of this study suggest that adaptive reuse can be an effective strategy for uban development. Design solution offers a sustainable approach to growth while preserving historical landmarks, transforming the Centre City Building into a mixed-use development featuring residential units, commercial spaces, and public areas.

Keywords: adaptive reuse, historic preservation, sustainable design, mixed-use

V

Approved by:

VERADORIA A

Thesis

Presented to the Undergraduate Faculty of The NewSchool

ofArchitecture

& Design

Studio Instructor: John McMahon Date by

Undergraduate Chair: Elena Pacenti Date

VII

Acknowledgements

I would like to thank my studio instructor, John McMahon, for his valuable guidance and support throughout this project. His expertise and encouragement have been instrumental in shaping this project and thesis.

A special thanks to Travis Stine for his helpful lessons on research and thesis writing, which provided a strong foundation for this work.

I would also like to express my great appreciation to Elena Pacenti, Dario Miticocchio, Amin Espandiari, and Denise Homme. Thank you for your continuous support and insightful feedback, which greatly contributed to the development of this project.

Finally, I extend my gratitude to all those involved, including my peers, for their encouragement and collaboration. Your contributions have been greatly appreciated.

IX

D edication

Your patience, guidance, and constant support have been the foundation of all my achievements.

Thank you for being my enduring source of strength and inspiration.

For you, mama.

XI

TITLE PAGE

COPYRIGHT

ABSTRACT

SIGNATURE PAGE

ACKNOWLEDGEMENTS

DEDICATION

Contents 00 01 02
I III V VII IX XI INTRODUCTION PROBLEM STATEMENT THESIS STATEMENT PROJECT RATIONALE PROJECT OBJECTIVES CASE STUDIES CALIFORNIA THEATRE ACE HOTEL LA 625 BROADWAY CONCEPT 18 21 23 27 28 33 36 38 40 45

SITE ANALYSIS

TARGET USERS

PROGRAMMING

SCHEMATIC DESIGN

DESIGN DEVELOPMENT

LOBBY

ART GALLERY

RESTAURANT

RESIDENTIAL

ROOFTOP

03 04 05
FUTURE DEVELOPMENTS MEET THE DESIGNER BIBLIOGRAPHY IMAGE SOURCES 38 55 56 62 66 78 79 80 82 83 86 88 90 91
01

Introduction

This thesis focuses on the adaptive reuse of the Centre City Building, a historic site in downtown San Diego, which exemplifies the broader challenges and opportunities of repurposing historical structures. As cities evolve, the increased vacancies in office buildings pose a significant risk to historical structures, which otherwise succumb to neglect or demolition. By transforming these structures to accomodate modern residential and hospitality functions, adaptive reuse not only preserves these landmarks but also injects new vitality into urban areas. The project is named “Veradoria,” combining ‘vera,’ meaning ‘true’ in Latin, which reflects the commitment to preserving the building’s historical essence, with ‘doria,’ suggesting ‘gift,’ reflecting the project’s benefits to the community. This name captures the vision of blending tradition with modern functionality, showcasing the strategy for updating this historic building. This study will cover a comprehensive analysis starting with a detailed problem statement, followed by an exploration of relevant case studies that provide insights into similar projects. A thorough literature review will underpin the theoretical framework, complemented by a site analysis that examines the specific conditions and potential of the Centre City Building. The project development section will detail the proposed design solutions, demonstrating how adaptive reuse can be implemented effectively to merge historical preservation with modern needs. This multifaceted approach ensures a holistic understanding of adaptive reuse as a strategic approach to urban development, emphasizing its role in preserving historical integrity while fostering urban revitalization.

18
19

Problem Statement

The demand for traditional office spaces has decreased, due to more people working remotely and changes in city life. This has made many historic buildings prone to neglect and possible demolition. Such a trend not only risks losing important architectural heritage but also affects the cultural identity of urban areas. The challenge is to create lasting strategies that both preserve these historical buildings and adapt them for today’s and tomorrow’s city needs. The Centre City Building, known for its historical importance and central location, offers a perfect example to study how adaptive reuse can meet these challenges, turning unused spaces into active community centers that add to the economic and social life of the city.

21

Thesis Statement

22

Veradoria challenges the prevailing practices in adaptive reuse by advocating for a balanced integration of historical preservation and modern urban necessities, arguing that this approach not only revitalizes but also sustains the socio-cultural fabric of urban centers. This thesis contends that such a model not only preserves architectural legacies but also acts as a catalyst for sustainable community development and economic revitalization.

23

One of the great beauties of architecture is that each time, it is like life starting all over again

-Renzo Piano
26

Project Rationale

The adaptive reuse of the Centre City Building, which is named “Veradoria,” represents a bold plan to breathe new life into unused historic buildings in the city. This effort arose from the need to tackle the problems of buildings becoming underused and decaying, which has gotten worse as the way we work and live in cities changes. “Veradoria” seeks to show how adaptive reuse can serve as a sustainable solution, preserving the historical essence while repurposing the space for modern needs.

27

Project Objectives

Preservation of Historical Integrity

To maintain the architectural heritage and historical value of the Centre City Building, ensuring that any modification respect its original aesthetic and structural significance

Modernization for Contemporary use

To update the Centre City Building with modern features and spaces that cater to the needs of current residents and businesses, including highquality residential units, hospitality area, and versatile public spaces

28

Community Engagement

To design spaces within “Veradoria” that encourage people to gather and engage in cultural and social activities, making the building a central spot for community life

Sustainability and Innovation

To apply sustainable construction methods and creative design solutions that reduce environmental impact and increase energy efficiency and comfort for users.

Setting a Precedent

To position “Veradoria” as an example for other similar adaptive reuse projects, showing how such efforts can revive neighborhoods and encourage more investments in saving historic buildings.

29
02
32

Case Studies

This chapter presents an examination of selected case studies that illustrate various outcomes of adaptive reuse and preservation efforts in historical buildings. Three case studies have been carefully chosen to provide insight into challenges and successes associated with revitalizing historic structures, each offering valuable lessons for the Veradoria project. The first case study explores the California Theatre, a once-vibrant cultural icon that faced prolonged neglect and is being threatened with demolition. The second case involves the Ace Hotel in Los Angeles, which successfully transformed the historic United Artists Building into a thriving hotel and entertainment venue. Lastly, the 625 Broadway project in San Diego is examined, where a historic office building was successfully converted into residential units. Together, these case studies provide a comprehensive overview of the potential paths and impacts of adaptive reuse projects. They serve as both warnings and models, informing the strategies employed in the “Veradoria” project to ensure it not only preserves the historical significance of the Centre City Building but also transforms it into a functional, sustainable space for the community.

33

The longer I live, the more beautiful life becomes. If you foolishly ignore beauty, you will soon find yourself without it. Your life will be impoverished. But if you invest in beauty, it will remain with you all the days of your life.

California Theatre

CA 92101

The California Theatre, a remarkable cultural landmark in San Diego, was originally constructed in 1927. Designed as an ornate movie palace, it served not only as a cinematic venue but also as a major center for vaudeville act. The theatre’s elaborate Spanish Colonial Revival style echoed the historical narratives and aesthetic preferences of the era, making it a vital piece of the city’s architectural and cultural history.

1122 Fourth Ave San Diego,
36

However, after decades of operation, the California Theatre closed its doors in 1990, falling into a state of disrepair and abandonment. Over the years, the theatre faced multiple threats of demolition due to its deteriorating condition and the high costs associated with restoration. Recently, there have been plans to demolish the existing structure to make way for a new condominium complex, which has sparked debates among preservationists and developers about the best course of action.

The case of the California Theatre underscores the challenges faced in preserving large historical buildings that have lost their original utility. For the ‘Veradoria’ project, the California Theatre serves as an example of the potential fate awaiting historic buildings if not repurposed in timely manner. It emphasizes the need for innovative adaptive reuse strategies that not only maintain the architectural integrity of such structures but also redefine their utility to ensure relevance and vibrancy in contemporary urban landscapes.

37

Ace Hotel

929 S Broadway

Los Angeles, CA 90015

The Ace Hotel in Los Angeles, located in the historic United Artists Building, exemplifies a successful adaptive reuse project in an urban environment. Originally constructed in 1927 by Walker & Eisen for the United Artists film studio and featuring distinctive Spanish Gothic architectural style, the building was transformed into the Ace Hotel in 2014. The renovation, undertaken by the GREC Architects, skillfully blended the building’s historical aesthetics with contemporary amenities.

38

Despite its closure in January 2024 due to operational challenges during pandemic time from 2020, the legacy of the Ace Hotel continues. The building remains a landmark of successful adaptive reuse, maintaining its function in the hospitality sector and serving as a vibrant cultural and social venue. This enduring usage underscores the project’s success in demonstrating how historical buildings can be sustainably transformed to meet contemporary needs. The Ace Hotel serves as a valuable case study for the ‘Veradoria’ project, illustrating the potential for historic structures to become dynamic, functional spaces that enrich urban communities, even amidst challenges.

39

625 Broadway

625 Broadway

San Diego, CA 92101

The 625 Broadway building in San Diego shows a successful adaptive reuse, transforming a historic office building into modern residential units. Originally constructed in 1926, this building was reimagined by the MW Steele Group, an architectural firm known for its commitment to revitalizing urban spaces. The renovation repurposed the building into residential units, effectively converting the once commercial space into a vibrant living environment.

40

This transformation into residential units has breathed new life into the building, making it a valuable asset in downtown San Diego’s housing market. The redesign carefully preserved the building’s historical architectural elements while integrating modern amenities and safety features. This adaptive reuse project is particularly relevant to the ‘Veradoria’ project as it demonstrates the potential of historic buildings to serve modern purposes.

41
44

Concept Statement

“Veradoria” embodies the essence of timelessness, merging the classical elegance of neoclassical design with contemporary urban living. The project seeks to create a space that transcends the typical constraints of time and style, offering a seamless blend of historical depth and modern functionality. This architectural vision is crafted to enrich the community by providing a living environment that is both sustainable and adaptable, ensuring its relevance and beauty endure through the ages. “Veradoria” is designed not just to exist within its urban context but to set a benchmark for future developments. Preservation is more than just maintaining walls; it is about celebrating craftsmanship, style of an era, and a community that has evolved around the building.

45
03

Site Analysis

Location

233 A St, San Diego

The Centre City Building is located in the heart of downtown San Diego. This area is a vibrant urban hub, known for its rich blend of historical and modern architecture. The building is strategically positioned within walking distance of numerous cultural, commercial, and recreational amenities, making it an ideal candidate for adaptive reuse into a mixed-use development.

Built: 1927

Architect: Frank W. Stevenson

Height: ~160ft

48

The Centre City Building itself is a significant historical landmark. Built in the early 20th century, it embodies the neoclassical architectural style, characterized by its grand columns, ornate moldings, and timeless elegance. Preserving this building is not only crucial for maintaining the architectural heritage of San Diego but also for providing a tangible link to the city’s past.

49

Transportation & Amenities

Located near popular cultural, historical, and entertainment destinations, the building benefits from high foot traffic and visibility, making it an ideal candidate for adaptive reuse that targets both local residents and tourists. Downtown San Diego boasts a robust transportation network, enhancing the accessibility of the Centre City Building. The area is well-served by multiple modes of public transport.

GASLAMP QUARTER PETCO PARK SAN DIEGO CONVENTION CENTER SEAPORT VILLAGE USS MIDWAY MUSEUM MARITIME MUSEUM
50

San Diego Trolley: The building is conveniently located near several trolley stations, including the Civic Center and Fifth Avenue stations. The trolley network provides easy access to various parts of the city, including key destinations like Old Town, Mission Valley, and San Diego State University.

Bus Services: Numerous bus routes pass through downtown San Diego, with stops close to the Centre City Building. These services connect the area with other parts of the city and surrounding regions.

Downtown San Diego is highly walkable, with wide sidewalks, pedestrian-friendly crossings, and a plethora of nearby amenities. This enhances the appeal of the area for residents, workers, and visitors.

51
Centre City Building Trolley Route Bus Route

Demographics 92101

The San Diego 92101 area, encompassing a significant portion of downtown San Diego, presents a diverse demographic landscape crucial for urban development projects like “Veradoria.” As of the latest data, the area is characterized by a vibrant and growing population, with a notable concentration of young professionals. The demographics support the targeted user base for the “Veradoria” project, which aims to provide modern living spaces that blend historical preservation with contemporary needs. Understanding these demographics helps ensure that the project’s offerings are well-aligned with the expectations and lifestyles of potential residents, making it a valuable addition to the neighborhood.

52

Rental Properties by Number of Rooms

Families vs Single

Total Population by Age

Households with Kids

Household Income

Children by Age

Estimated Population over Time

53
54

Target Users

The target users of “Veradoria” include a diverse array of individuals each seeking unique interactions with this revitalized historic site. Young professionals and cultural enthusiasts will appreciate the residential spaces that blend modern living with historical ambiance. The restaurant, which doubles as a book exchange and purchase point, will attract not only residents but also local community members and tourists seeking a unique dining experience that integrates literary culture. This multifunctional space caters to artists, performers, and art students using the gallery and communal areas for creative pursuits and community events. Families and educational groups are also key users, benefiting from the building’s versatile public spaces designed for a range of cultural and social activities. Each design element in “Veradoria” is thoughtfully crafted to meet these varied needs, ensuring the building serves as a dynamic hub for community interaction and cultural exchange.

55

Programming

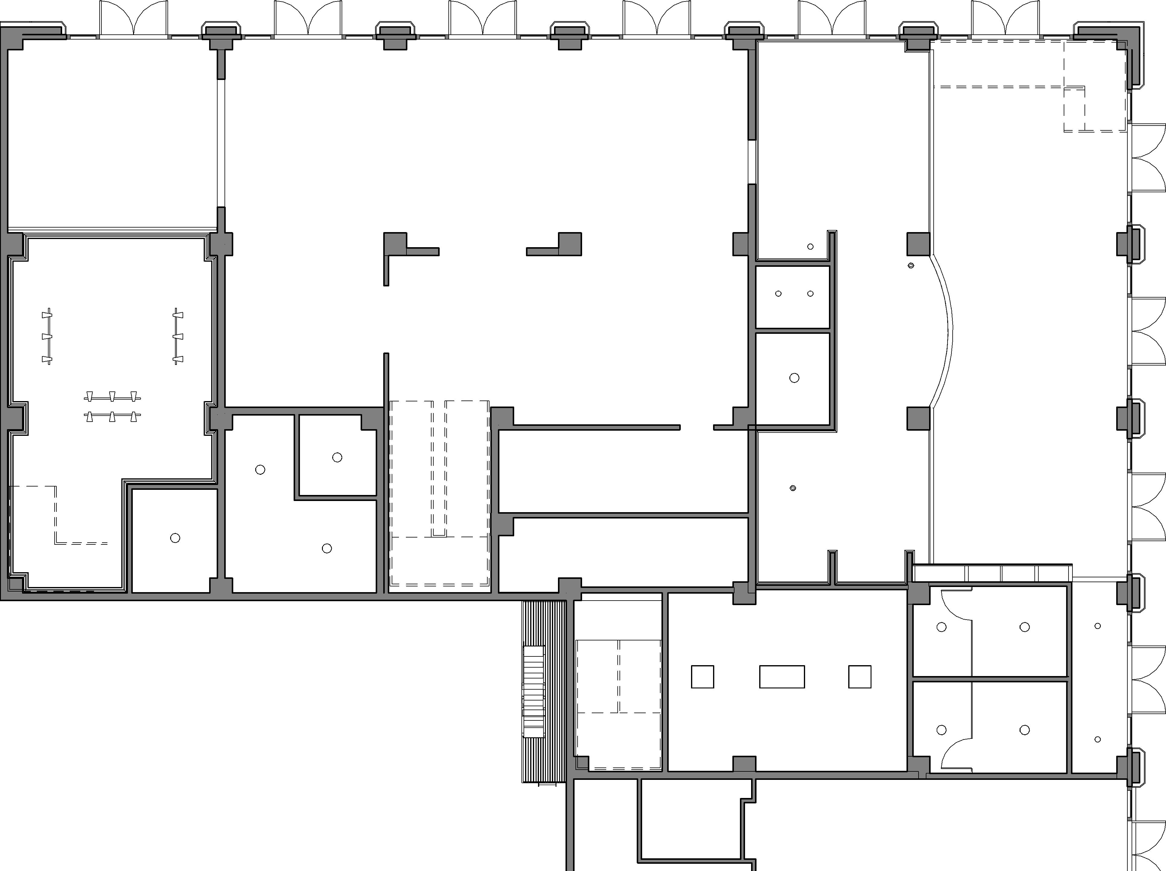
The Centre City Building is a historically significant structure that requires careful consideration in its adaptive reuse. The existing floor plan includes several key elements that will be preserved to maintain the building’s architectural heritage. The existing lobby features important elements such as framed display of building’s history, decorative ceilings, and a grand staircase. The original elevator area with its historical ceiling and finishes will remain unchanged. The building’s structural framework provides a robust foundation for the adaptive reuse project.

56

The primary goal of the programming phase is to develop a functional layout that balances preservation with modern needs. This involes preserving historical elements; enhancing usability by creating spaces that are functional and meet the needs of residents, guests, and visitors; promoting community engagement by designing areas that foster social interaction and cultural activities; and incorporating sustainable practices and materials where possible.

57
988 SF Area 1811 SF Area 2676 SF Area 1786 SF Area 4582 SF Area 2678 SF Area 7261 SF Area AREA 988 SF AREA 1811 SF AREA 2676 SF AREA 1786 SF AREA 4582 SF AREA 2678 SF AREA 7261 SF ROOFTOP HOTEL ROOMS RESIDENTIAL ART WORKSHOP/GALLERY LOBBY RESTAURANT FRESH PRODUCE MARKET 58

Lobby Boutique Hotel

The lobby is the first point of contact and sets the tone for the building. A well-designed lobby enhances the user experience and showcases the building’s historical elegance.

Incorporating hospitality services supports the building’s mixed-use concept. It offers shortterm accommodation and attracts a diverse range of visitors.

Restaurant Residential Units

Combining a restaurant with a library creates a multifunctional space that serves both dining and leisure purposes. It encourages social interaction and provides a unique amenity for residents and guests.

Art Gallery

An art gallery supports cultural engagement and provides a platform for local artists. It will enhance the building’s community role and attract visitors.

Converting parts of the building into residential units addresses the demand for housing and ensures continuous use of the building. These will feature modern amenities while respecting the building’s historical character.

Rooftop

The rooftop will provide a recreational space for residents and guests, promoting relaxation and leisure. The space will have a graden and a pool, enhancing the building’s appeal and contribute to a higher quality of life.

59
04

Schematic Design

62

The first floor of Veradoria is designed for seamless flow between the lobby, restaurant, and art gallery. The open concept allows easy access from the grand, historically preserved lobby directly into the restaurant and art gallery. This layout supports an integrated and inviting environment, enhancing both usability and the visitor experience while preserving key historical elements.

Restaurant with an integrated library at Veradoria envisions a versatile and inviting space that seamlessly blends dining with casual reading and social interaction. This open-concept area features distinct zones: the main dining area, private booths on the mezzanine, and a cozy library corner with bookshelves. The mezzanine overlooks the dining space, creating a dynamic visual connection between the levels while maintaining an intimate atmosphere.

64

The rooftop garden transforms the top level into a serene oasis, offering lush greenery, a luxurious pool, and comfortable lounge areas. This space is designed to provide residents and hotel guests with a retreat from the urban environment.The garden and seating areas are thoughtfully arranged to maximize views and sunlight, while the pool and adjacent lounge areas create a perfect setting for both social gatherings and quiet reflection.

65

Design Development

Level 1

Level 2

The first floor features a welcoming lobby that connects directly to the restaurant and art gallery. This layout supports easy navigation and provides open, accessible spaces for guests and visitors.

The second floor includes the mezzanine level of the restaurant, offering private dining areas, and the art gallery’s workshop, adding depth and functionality to these spaces.

S1 S2
S1 S2 S E N W 66

Typical Floor Plan

These floors accommodate residential units and hotel rooms, designed for optimal living comfort. Some units have been adapted by removing two windows to create an outdoor spaces within the existing façade.

Rooftop

The rooftop offers a relaxing retreat with a garden, pool, and lounge areas. This floor plan maximizes outdoor space, providing a serene environment for residents and guests to enjoy.

67
1/32”=1’-0”

The exterior elevation views showcase its historical architecture, maintaining the building’s classic façade. For the residential units, some windows have been removed to create outdoor spaces within the apartments, providing balconies without altering the building’s exterior appearance. This approach preserves the original look while offering modern amenities for residents.

East Exterior Elevation

0’ 10’ 20’ 40’ E 1/32”=1’-0”
68

Level 16

142’-6”

Level 15

133’-0”

Level 14

123’-6”

Level 13

114’-0”

Level 12

104’-6”

Level 11

95’-0”

Level 10

85’-6”

Level 9

76’-0”

Level 8

66’-6”

Level 7

57’-0”

Level 6

47’-6”

Level 5

38’-0”

Level 4

28’-6”

Level 3

19’-0”

Level 2

9’-6”

Level 1

0’-0” N 1/32”=1’-0”

North Exterior Elevation

69

West Exterior Elevation

0’ 10’ 20’ 40’ W 1/32”=1’-0”
70

South Exterior Elevation

Level 16

142’-6”

Level 15

133’-0”

Level 14

123’-6”

Level 13

114’-0” Level 12

104’-6” Level 11

95’-0”

Level 10

85’-6”

Level 9

76’-0”

Level 8

66’-6” Level 7

57’-0” Level 6

47’-6” Level 5

38’-0” Level 4

28’-6” Level 3

19’-0” Level 2

9’-6”

Level 1 0’-0” S 1/32”=1’-0”

71
RCP/Lighting 72

The reflected ceiling plan ensures that the ceilings complement the building’s neoclassical style. Many areas feature ceilings with elegant crown moldings, similar to thhe original design. These detailes are highlighted with uplighting to enhance the architectural feature. The ceiling designs in other parts of the building will follow this style and pattern, creating a cohesive and visually appealing environment throughout.

73 1/16”=1’-0”

S2 1/16”=1’-0”

Level 4 28’-6” Level 3 19’-0” Level 2 9’-6” Level 1 0’-0”
S1 1/16”=1’-0”
Sections 74

First Floor Section:

This view highlights the seamless connection between the lobby, art gallery, and restaurant, illustrating how these three spaces flow together. It shows the open plan that allows easy access and interaction among these areas.

Restaurant Section:

The restaurant section reveals the varying ceiling heights, with the second mezzanine floor having a higher ceiling than the first floor. This design element adds to the spaciousness and creates a distinct atmosphere for the main dining area below and the more private, elevated dining spaces above.

75

Materials

Original Roman Travestine Marble
76
Travestine Marble Marble Polished Concrete Polished Concrete Hardwood Hardwood
77
Hardwood Tiles Tiles Carpet Carpet Marble Tile Stone

Lobby

The design blends classical elegance with modern comfort. Palette of warm, rich colors and gold ornaments reflect the building’s historic grandeur. The preserved elevator space and ornamental ceiling celebrate the building’s original craftsmanship, while the greenery introduces a fresh, vibrant element that softens the space and connects with nature.

78

Art Gallery/Studio

The art gallery and studio is an extension of the lobby’s design. It features mezzanine art studio that enhances creative ambience. The gallery’s clean lines and neutral tones provide a perfect backdrop for showcasing artwork, while the ironwork railing of the mezzanine adds a touch of historical elegance.

79

Restaurant

The color palette features a harmonious blend of beige walls and long dark columns, accented with touches of gold, creating a warm and elegant atmoshpere that complements the rich history of the Centre City Building. The mezzanine level provides more private areas ideal for readers, or group discussions.

80

The design features a grand chandelier and floor-to-ceiling windows, which fill the space with natural light, highlighting the elegant furnishing. The lush greenery throughout the restaurant add a refreshing touch, creating a serene dining experience.

81

Residential Unit

Residential units feature light-colored walls and furniture, along with wood flooring, to create a spacious and airy feel. Touches of wood and gold accents align with the overall design’s elegance.

The integration of balconies replaces the original windows, providing residents with inviting outdoor space that enhances their living experience while maintaining the building’s timeless charm.

82

Rooftop

The rooftop is designed for residents and hotel guests, combining indoor and outdoor elements to maximize comfort and style. The lounge area, set beneath the existing roof, offers a cozy yet spacious with wide range of seating and lush greenery. On the other side, the pool area begins under the roof and extends outward, providing seamless transition sheltered relaxation to open-air enjoyment.

83
05

Future Developments

Future plans for this project would focus on expanding its role as a community hub and enhancing its sustainability features. Plans would include introducing more green technologies, smart building technologies, expanding hospitality offerings, exploring opportunities for additional retail or business spaces that would create a vibrant commercial environment within the building. These developments would complete the vision of Veradoria and ensure that the building continues to thrive as a versatile and valuable asset to the urban landscape, balancing historical preservation with modern innovation.

86
87

Meet the Designer

Born and raised in Serbia, my journey into the world of constructions began at the Technical High School Mileva Maric Einstein, where I studied Structural Engineering for three years. In 2014, I moved to the USA, where I was captivated by the diverse approaches to design and architecture. This exposure ignited my passion for space planning and interior design, steering me toward a fulfilling career in creating innovative and functional spaces.

I have a profound appreciation for historical architecture and enjoy exploring old buildings and places. This fascination has made my current project - transforming the Centre City Building into Veradoria - particularly special. Through my design work, I strive to honor the legacy of historical structures and classic designs, blending timeless elegance with contemporary needs. My goal is to keep these spaces vibrant and relevant, ensuring they continue to inspire and serve future generations.

88
89

Bibliography

Ace Hotel DTLA. Architect Magazine

Bullen, P. A., and P. E. D. Love. The rhetoric of adaptive reuse or reality of demolition: Views from the field. Cities, vol. 27, no. 4, 2010.

Coons, Bruce. The California Theatre. Save Our Heritage Organisation, Jan. 2023,

Huard, Ray. Once All Business, 625 Broadway Reimagined. San Diego Business Journal, 23 Sept. 2019.

Plevoets, B., and K. V. Cleempoel. Adaptive reuse as an emerging discipline: An historic survey. Structural Studies, Repairs and Maintenance of Heritage Architecture XII, WIT Press, 2011.

Schilling, Joseph M. The revitalization of vacant properties. 2002.

Shipley, R., S. Utz, and M. Parsons. Does adaptive reuse pay? A study of the business of building renovation in Ontario, Canada. International Journal of Heritage Studies, vol. 12, no. 6, 2006.

ThereSanDiego. 625 Broadway Brings the Newest Stylish and Luxurious Living to Downtown. There San Diego, 5 Apr. 2022.

Yung, E. H. K., and E. H. W. Chan. Critical social sustainability factors in urban conservation: The case of the central police station compound in Hong Kong. Facilities, vol. 30, no. 9/10, 2012.

90

Image Sources

Centre City Building - California Collection Photographs. San Diego History Center.

Grayscale photography of people walking near buildings. Pexels. Photo by Ingo Joseph

Fascinating photos of the Centre City Building. Cool San Diego Sights.

Centre City Building - National Archives Catalog.

Ace Hotel, Downtown Los Angeles. Architect Magazine.

625 Broadway. MW Steele Group.

625 Broadway Brings Luxurious Living to Downtown. There San Diego.

Two antique chairs. Photo by Daniel Neves Cotta on Pexels.

Books. Photo by Ricky Esquivel on Pexels.

Retro lamps illuminating cozy cafeteria. Photo by Valeria Boltneva on Pexels.

Brown hotel interior. Photo by Pixabay on Pexels.

Chandelier with ornament and shiny lights in darkness. Photo by Maria Orlova on Pexels.

91

Katarina Nastasja Sivcev

Undergraduate Interior Architecture & Design Thesis Project

2024

Turn static files into dynamic content formats.

Create a flipbook
Issuu converts static files into: digital portfolios, online yearbooks, online catalogs, digital photo albums and more. Sign up and create your flipbook.