KARTHIK PORTFOLIO

Page 1

enriching heritage experiences 07
enriching heritage experiences 09
CO_LIVING SPACE 11
KEY PLAN UNDERGROUND FLOOR PLAN @-1.5M
FLOOR
GROUND
PLAN @1.5M EXPLODED VIEWS
08 CO_LIVING SPACE- SECTIONS
15
CONCEPT

DIAGONALLY PLACED ELEVATED UP TO CONNECT SPACES BLOCKS RESPONDING TO THE SCALE

SCALE OF THE AUDITORIUM AND ADMIN BLOCK WITH RESPECT TO CONTEXT

CUTTING DOWN THE MASS OF DIAGONAL BLOCK HOLDS THE ACADEMIC BLOCK

DIAGONAL CONNECTION OF THE BREAKOUT SPACES ENHANCING THE CONNECTION BY MOVEMENT

THUS GIVING RESPONSE TO THE CONTEXT

To have a pause point

To increase usable area

To break the idea of diagonal by movement and enhancing the net usable area

To allocate people equally at all platforms

MOVEMENT ITSELF BECOMES NODE BACKED BY LIBRARY BLOCK

law institution 17
AND IDEA…
CONCEPT
EXPLODED VIEWS
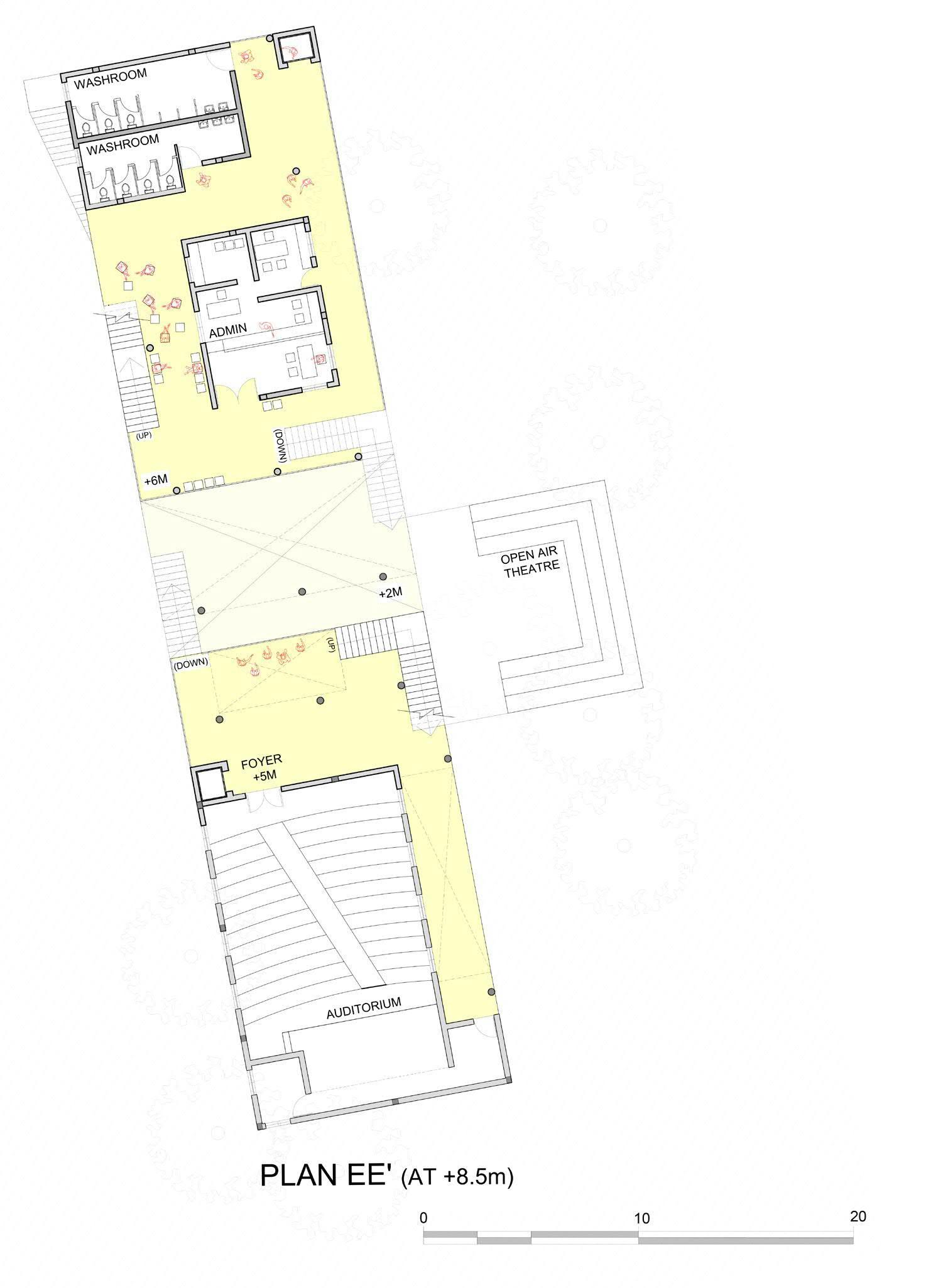
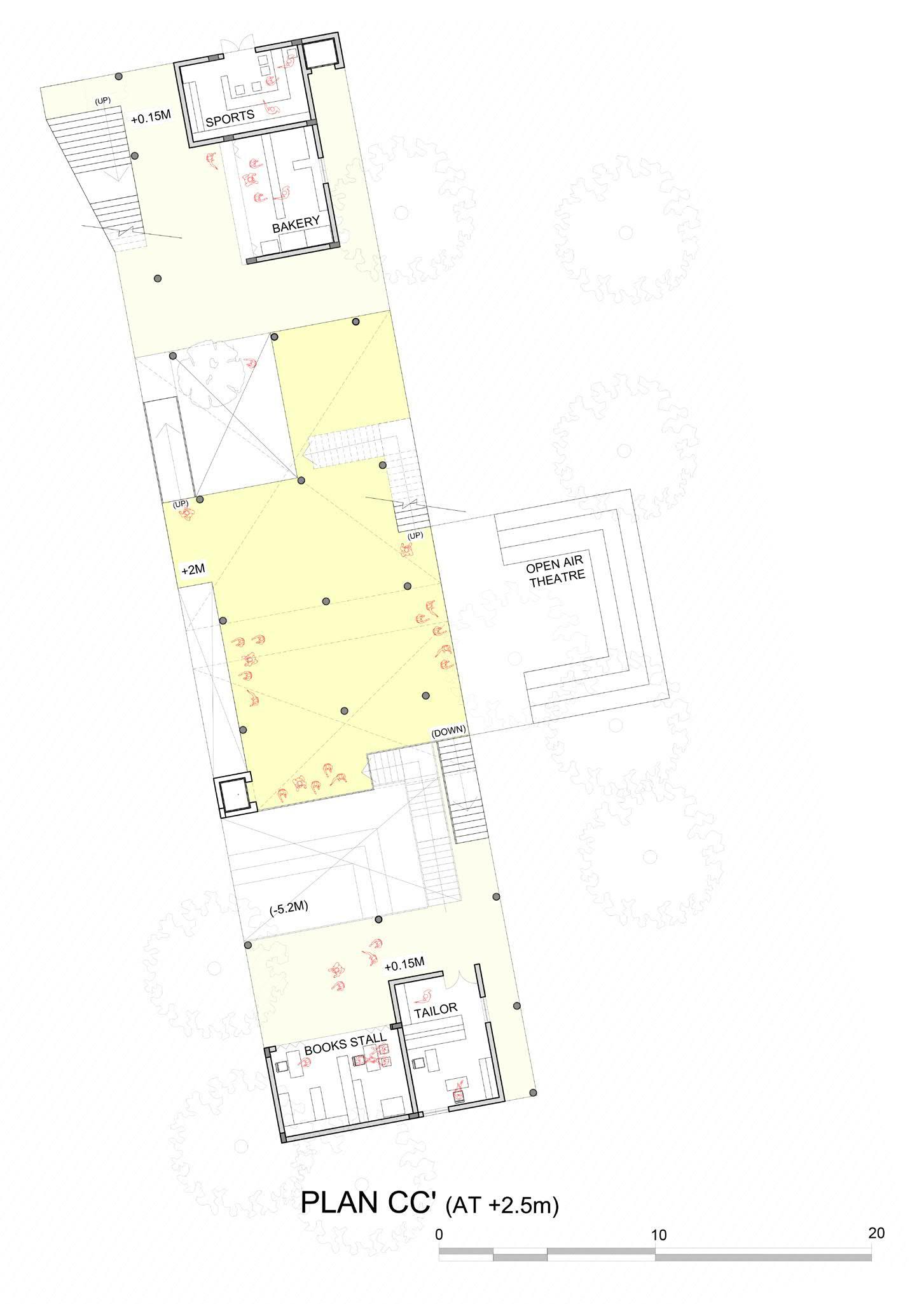
FIRST FLOOR PLAN @+6.0M SIXTH FLOOR PLAN @+21.0M GROUND FLOOR PLAN @ +2.5M FOURTH FLOOR PLAN @+16.5M FIFTH FLOOR PLAN @+20.0M SEVENTH FLOOR PLAN @+27.0 M

PRODUCED BY AN AUTODESK

BOOKS STALL TAILOR +0.15M +2M BAKERY (DOWN) (UP) (UP) (-5.2M) (UP) OPEN AIR THEATRE SPORTS STORAGE SPACE WASHROOM
STUDENT VERSION KEY PLAN

Connecting space through a diagonal axis

2 diagonal axis in 3D meets at center.

So when we are at the center we have clear view of every movement through the space

Enhancing central puncture by pushing site boundaries towards east.

Thus restricted acess to the school if there is a public building inbetween both the spaces where our public building can act as a transition space.

3 entrances- one from school side and one in middle and one from public ground

16 PUBLIC BUILDING- PLANS AND EXPLODED VIEWS MOVEMENT IDEA :
23

RSP DRAWINGS

Studio guide : Prof.Vidhyashankar and Prof.Chinchu

Basava Beedi is East-West oriented and runs parallel to Dodda Beedi, sloping down toward the East. The street saw a lot of thoroughfare because it ran along a large stretch of the village and connected the bypass road with the panchayat road.

18 RSP Drawings- Street and Transistion
Elevation 5 Elevation 6 Section E
E E F F H H G G
Section F Section G
CARPENTERS

Due to the positioning of houses along this street there were several staggers, which created smaller enclosures along its length. Along with this, shifts in the axis of the street broke it up into smaller segments, which were visually disconnected (partially) from each other.

The street had comparatively more vegetation than its immediate neighbours, and was lined with papaya, pomegranate, and other fruit bearing trees.

I I Temple
CLUSTER 25
CARPENTERS

CUT-SECTIONAL ROTATING MODEL

DETAILED ROTATABLE MODEL

Turn static files into dynamic content formats.

Create a flipbook
Issuu converts static files into: digital portfolios, online yearbooks, online catalogs, digital photo albums and more. Sign up and create your flipbook.
KARTHIK PORTFOLIO by Karthik U - Issuu