

RESUME KARTABYAREGMI

B.Arch|FourthYear
KathmanduUniversity
Dhulikhel,Nepal
Address: Duwakot,Changunarayan-02, Bhaktapur,BagmatiProvince,Nepal
Email: kartabyaregmi7@gmail.com
Phone: +9779843218583
EDUCATION ABOUTME
As an architecture student, I believe in creating designs that reflect my passion. My academic journey has given me a strong understanding of architectural practices, refined through various projects. Eager to apply my classroom knowledgeinareal-worldsettingthrough an internship, I am enthusiastic about learning from industry professionals to growasafuturearchitect.
• 2019 – Present | Bachelor of Architecture
KathmanduUniversity
Dhulikhel,Nepal
• 2017-2019 | Higher Secondary Education
TrinityInternationalCollege
Kathmandu,Nepal
• 2017 | Secondary Education Examination
AdarshaVidyaMandirHSSchool
Lalitpur,Nepal
• Secretary, KUARC, 2023/24
Overseecluboperations,Organizing meetings,Takingminutes
• Joint-Secretary, KUARC, 2022/23
Preparingdocumentsandletters, Organizingevents
• Sub-Event Personnel, Prarambha Committee, 2022
Organizingdesigncompetitionand architecturalexhibitions
EXPERIENCE SOFTWARESKILLS PERSONALTRAITS LANGUAGE
• CAD/BIM and Modeling AutoCAD(Advanced),Sketchup (Intermediate),Rhino(Intermediate)
• Rendering Enscape(Intermediate),Lumion(Beginner)
• Adobe Photoshop(Advanced),Indesign (Intermediate),Illustrator(Beginner)
• Microsoft Office Word(Advanced),PowerPoint(Advanced), Excel(Intermediate)
SOFT SKILLS
• Leadership
• Teamwork
• Communication
• Integrity INTERESTS
• Sports
• Travel
• History












01 COZYHOMES
COLLABORATIONWITH:
SabalShrestha,SupriyaBhuju,PujaSilwal,JyotikaShrestha
PROJECT: HousingandApartment
TYPE: Academic
YEAR: 2023
LOCATION: Dhulikhel–06,Kavrepalanchok,Nepal
SOFTWARE: AutoCAD,Sketchup,Rhino,Enscape, Photoshop
DESCRIPTION
Cozy Homes is a housing project developed for the teachingandnon-teachingstaffsofKathmanduUniversity. The master plan is centered around a looping design of road network, which reduces the total area required for streets and maximizes the number of available plots. This layout also incorporates interconnected green spaces, enhancing the sense of community among residents. On thenortheastern sideofthesite,six apartment blocksare structurallyconnectedtoimproveaccessibility.Theoverall emphasisoftheprojectisonprovidingampleopenspaces in the center of the site, ensuring all residents have equal accesstothesecommunalareas




MASTERPLANDEVELOPMENT

COZY HOMES

1) AXISDEVELOPMENT
Themajoraxisgivesaccessfromtwo mainentrances,whileminoraxes ensureeasymovementinall residentialareas.


3) OPENSPACES
Theopenspacesfeatureapublicgreen networkwithareasforrelaxationand interactions,andagreenconnecting loopforwalking,jogging,andcycling.


2) ROADNETWORKS
Theroadnetworkincludes8mmain roads,6mminorroadsbranchingfrom mainroads,and4minnerroadsto plots.


4) DENSITYDISTRIBUTION
High-endhousesarenearthemain entranceandopenspaces,rowhouses aroundtheoutercore,andapartmentinthe northernareatominimizesunlightimpact.


MASTERPLAN


LEGEND
MAINENTRANCE
MAINGATE(PRIMARY)
BACKGATE(SECONDARY)

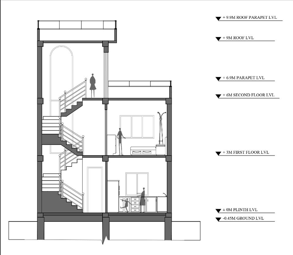
2BHKHOUSING

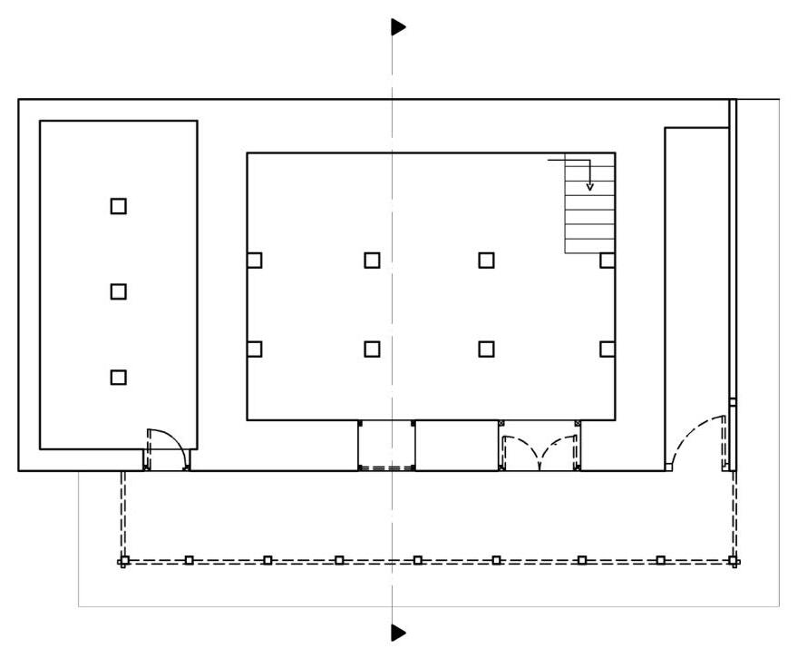
GROUNDFLOORPLAN

FIRSTFLOORPLAN



SECONDFLOORPLAN SECTIONATA-A

1)BUILDING MASSING

Programmassing basedonthesite coverageandarea
APARTMENTDESIGNCONCEPT
2)BLOCK DIVISION 3)CONNECTIONS 4)HIERARCHY

Divisionintoblocks foramplelighting andventilation

Interconnected apartmentblocks embracingshared greenpockets

Heightdifference forabundance sunlight distribution



FIRSTFLOORPLAN
BLOCKA

SECONDFLOORPLAN




02 CANOPYREVERIE
ASYMPHONYOFPLAYFULNESSANDTREES
PROJECT: Children’sPark
TYPE: Academic
YEAR: 2023
LOCATION: Tripureshwor,Kathmandu,Nepal
SOFTWARE: AutoCAD,Sketchup,Enscape,Photoshop
DESCRIPTION
Canopy Reverie is an elevated woodland park where children can feel connected to nature. It features an elevated walkway among the treetops, leading to birdnest-like spaces, offering a magical feeling of walking in the air. A nearby stream, fed by a river, attracts insects like dragonflies. On the ground level, the park provides space for kids to play freely and grow socially and holistically. Canopy Reverie combines the beauty of nature with the joy of childhood, creating a memorable placeforexplorationandimagination






03 WATERFALLPAVILION
MOUNTAINARCHITECTURE:RAMKOT
COLLABORATIONWITH:AnuragKafleandSrizanK.C.
PROJECT: VernacularSettlementStudy
TYPE: Academic
YEAR: 2023
LOCATION: Ramkot,Tanahun,Nepal
SOFTWARE: AutoCAD,Sketchup,Enscape,Photoshop
DESCRIPTION
OurclasswentonacollectivejourneytoRamkotvillage for our mountain architecture studio. During our oneweek stay, we conducted thorough physical documentation of the vernacular houses, which were laterdigitized.Thishands-onprocessallowedustolearn aboutthetraditionalconstructiontechniquesusedinthe village. Wewere able to gain deep understanding of the culture and traditions of the Magar community residing there. This documentation of the unique vernacular architecture, can help preserving the distinctive architecturalheritageoftheplace.










PROPOSAL
Duringourstay,it becameevidentthat waterscarcityis the most pressing issue in the community. In response, our team conducted thorough research to design a proposalaimedataddressingthischallenge.Inspiredby the Warka Tower in Ethiopia, our proposed structure is capable of providing 100 to 200 litres of water daily to meetthevillagers'needs.
The tower is constructed entirely from locally available materials and operates without the need for energy, promoting sustainable practices within the village. Its simplicity and scalability make it an ideal solution for thisruralcommunity,offeringapracticalandsustainable approachtowateraccess.
The tower is also designed as a pavilion, providing a seatingareawherepeoplecanrelaxandenjoythescenic views from the highest point in the village. This multifunctional structure not only addresses water scarcitybut alsocomplements the pre-existingchautari, enhancingthecommunalspace.









Windgoes throughcarrying fogparticles
WATERCOLLECTIONPROCESS

Meshinthe tower collectsfog

Fogwastepasses throughleaving waterdropletson themesh

Dropletsdropdown themeshcollecting waterinthe reservoirbelow

SITEELEVATION
Water is distributed from waterfall pavilion through gravitydistributionmethod.
Waterisdirectly nearest houses



STRUCTURALBREAKDOWN


STRUCTURE
The main structure is a triangulated truss system for robustness and structural strength The10metrestalltowerisdivided into five easily connected modules that are stacked on top of each other. This modular approachallowsforquickassemblywithout modern equipment. The stability of the structure is ensured by tightly connecting themodulesusingnailsorropes.
MESH
A permeable mesh of nylon or polypropylene (also called 'shade cloth') allows air or fog to pass through it, capturingwaterdropletswhichrolldownby gravityaftergainingenoughweight.
COLLECTOR

Water droplets falling from the mesh are caught by collector which channels the water to the overflow space. It can also act asdewcondenseritself.
directlysuppliedtothe houses that are most ofwater


Existingtankcanbeutilizedasan efficient method of distributing waterthroughoutthevillage




DETAIL AT 3
Strongfiberropetyingtwoormore bamboopoststoformatruss

DETAIL AT 1
Gutter made of half-cut bamboo with1-2layerof slate on eaves level


DETAIL AT 2
A layer of concrete filled between the stone base and vertical bamboo post for better strength. A bamboo column is then stacked ontopofitandnaileddownusingsteelpegs.

4layersoffiltrationsystemisprovided beforethewaterissuppliedtothe maintanktopreventcontamination.
Themainconcretewatertankof 45,000Lcapacityisbuilt undergroundforwatercollection


04 REVITALIZATIONOF SATTAL
CONSERVATIONSTUDIO:BANGLAMUKHI
COLLABORATIONWITH:BibhaDevkotaandJyotikaShrestha
PROJECT: HeritageConservation
TYPE: Academic
YEAR: 2024
LOCATION: KumbeshwarTemple,Lalitpur,Nepal
SOFTWARE: AutoCAD,Sketchup,Enscape,Photoshop
DESCRIPTION
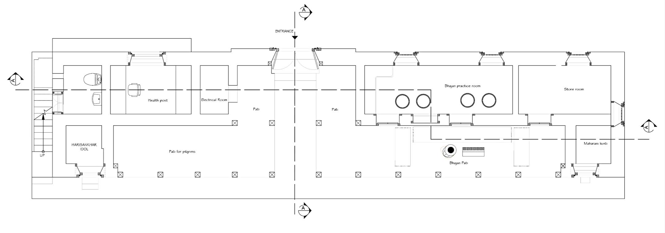
Konti Sattal is a two-storey traditional building serving as the main entrance to the Kumbeshwar Temple complex in Lalitpur. During our documentation process, we discovered that this remarkable heritage site is underutilized, with minimal efforts made towards its preservation. To address these issues, we propose a reorganizational design aimed at enhancing police facilities and optimizing the overall use of thebuilding'sspace.




DOCUMENTATION

GROUNDFLOORPLAN

FIRSTFLOORPLAN


SOUTHELEVATION


NORTHELEVATION
PROPOSAL
Theprimarygoalwastorestorethestructure'soriginal authenticity and enhance its heritage appearance. The redesign improved existing functions, added the BanglamukhiManagementCommitteeofficeonthefirst floor, and established a permanent police post with separate bedrooms and kitchens The previously restricted pati on the ground floorhas been opened for more visitors, and the Bhajan Mandali area is now accessible for public interaction. Unused spaces, like attics and areas under window seatings, were repurposed for storage. The most significant improvement is the elevation, maintaining the structure'ssymmetrywithsimilarwindowelements.





PROPOSEDGROUNDFLOORPLAN


PROPOSEDFIRSTFLOORPLAN





05 MAGICWORDSPVT.LTD.
OFFICEINTERIORPLANNING
PROJECT: InteriorDesign
TYPE: Freelancing
YEAR: 2023
LOCATION: Shankhamul,Kathmandu,Nepal
SOFTWARE: AutoCAD,Sketchup,D5Render,Photoshop
DESCRIPTION
The interior design project for MagicWords Pvt. Ltd. focuses on creating a functional and contemporary small-scale IT office Situated on the second floor of the building, the previouslyvacantspacehasbeentransformedintoadynamic workplace.Thelargehallservesasthemainworkstationarea for 10-12 employees at once. The open layout encourages communication, essential for their research and sharingbased tasks. To meet the client's need for a meeting room, glasspartitionsareinstalled,alsoallowingamplesunlightinto theworkspace.Additionally,asmallofficekitchenisequipped with a coffee machine and refrigerator for refreshments and snacks The overall design follows a contemporary style with minimal decorative elements, aligning with the client's preferenceforacleanandmodernaesthetic






GROUND


OFFICE ROOM



BASIC ISOMETRIC VIEW

MISCELLANEOUS
(MeasuredDrawings,PhysicalModels, DigitalWorks,Photographs)
MEASURED DRAWINGS










PHYSICAL MODELS




DIGITAL WORKS






PHOTOGRAPHS






