UNIDAD 1

Page 1

TALLER DE DISEÑO ARQUITECTÓNICO 10 UICO BUENDIA E R A L D A 1 0 0 % COMPLEJO DE CONSERVACIÓN Y DIFUSIÓN DE LA CULTURA Q U I Ñ O N E Z A L B A N K A R O L Y N 1 0 0 % HINOSTROZA AREYAN BRIGITTE 100% MANGOMARCA
ÌNDICE 1 ANALISIS DEL SECTOR ELEGIDO - PROBLEMATICA 2 DEFINICIÓN Y JUSTIFICACIÓN DE LA NECESIDAD 3 DEFINICION DEL EQUIPAMIENTO QUE PODRIA SATISFACER LA NECESIDAD 5 PROGRAMACIÓN ARQUITECTONICA 4 ANALISIS DE CASOS EXITOSOS: 1 NACIONAL Y 1 INTERNACIONAL 6 ZONIFICACION EMPLAZADA - CRITERIOS PRIMARIOS DE DISEÑO

ANALISIS DEL SECTOR ELEGIDO

1

1.1 UBICACIÓN DEL TERRENO

PERÚ - DISTRITO DE SAN JUAN DE LURIGANCHOSECTOR 1

Huaca de Mangomarca

ÁREA: 9 000M2

Complejo arqueo óg co de Mangomarca

Entre el cruce de las Av. Mangomarca y El Santuario Estratégicamente ubicado ya que se encuentra cerca de las Huacas de Mangomarca y el Complejo Arqueológico Mangomarca.

0 1 U B I C A C I Ó N G E O G R Á F I C A

EL IMPERIO DE MANGOMARCA ( AÑO 900 D.C.- HASTA LA LLEGADA DE LOS ESPAÑOLES )

Fue un centro poblado en la época Wari teniendo cierta vinculación con Cajamarquilla.

A la llegada de los Ruricancho Mangomarca se convirtió en un importante centro ceremonial y político, pero a la llegada de los españoles quedó abandonado.

EL DESCUBRIMIENTO DE LA HUACA DE MANGOMARCA EN EL AÑO 1930

MANGOMARCA Y LA EVOLUCIÒN DE URBANIZACIÒN DESDE LOS AÑOS 60-1999

En la década de 1930, aquí investigó y excavó Julio C. Tello. El padre de la arqueología peruana clasificó los sectores de la huaca Mangomarca; encontró fardos funerarios y cerámica.

EL NOMBRE PROVIENE DE LA QUECHUA COSTEÑA “MANQU MARCA” QUE SIGNIFICA “PUEBLO DE LOS SEÑORES”.

LA MUNICIPALIDAD DE S.J.L INTERVIENE (2017LA ACTUALIDAD).

A partir de lo años sesenta empezó la urbanización de Mangomarca gracias a los propietarios agrícolas, con el Banco Comercial del Perú . Se da un mayor incremento de los habitantes desde (1980-1999) por la gran ola migratoria pues varias de las residencias se empiezan a dar en alquiler.

Luego de más de 50 años en estado olvidado el municipio de San Juan de Lurigancho puso en valor el Complejo Arqueológico de Mangomarca; gracias a lo cual, hoy en día podemos aprender más del lugar.

Mencionar que el 70% de la huaca se ha perdido.

0 2 A N T E C E D E N T E S
FUENTE:MUNCIPALIDAD S.J LI

FUENTE:SENAMHI

TOPOGRAFÍA

TIPO DE SUELO

VIENTO

SUR Y SUROESTE

2 A 4 M/S

El terreno presenta una topografía plana, no cuenta con cambios brucos de niveles, ya que fue adherido para una zona recreacional. El terreno plano da más estabilidad.

FUENTE:GOOGLE EARTI

Terreno con una elevación mínima: 231m con una elevación máxima: 235m

LEYENDA En general es un área residencial densamente poblada.

Suelo muy arto para edificar

Suelo moderado para edificar

Suelo malo

No edificar

FUENTE:MUNICIPALIDAD DE S.J.L

DENSIDAD DEL SECTOR 2023 AL 2030

NIVEL DE EDUCACIÓN POR EDADES

CONCLUSION:

La mayoria de la población solo cuenta con estudios secundarios. Muy pocos son universitarios.

NIVEL DE EDUCACIÓN / ANALFABETISMO

FUENTE:MINEDU

A A 2018 247 245 hab Secundaria 439% Primaria 201% Universtaria 178% SuperiornoUniversitara 144% Inicia 37% ETAPA EDAD HAB NIÑO 0-11 26 512 ADOLESCENTE 12-17 5 808 ADULTO JOVEN 18-29 30 882 ADULTO 30-59 79 710 0 3
S
E C T O S B I O F Í S I C O Y
M O G R A F I C O S Suelo granulares finos 21°C EN JULIO 26°C EN FEBRERO
A
P
D E
PITAC ÓN MED A ANUAL ES 16 MM
Y 85% DURANTE
EL
233m CLIMA PREC
80%
TODO
AÑO PRECPITACION HUMEDAD TEMPERATURA

ZONIFICACIÓN

Mangomarca se encuentra ubicada en la zona 1 del distrito, conformando la comuna 4 y está considerada como zona residencial dentro de la zonificación distrital. Sin embargo, está muy cerca de la zona industrial de la urbanización de Zárate.

Instituto Peruano del Deporte

SISTEMA VIAL - ACCESIBILIDAD

La zona de Mangomarca cuenta con distintos tipos de vías dentro de su trama, pero se requieren mayor accesibilidad a la zona de reserva por vehículos públicos o privados.

C.D. Mangomarca

Institución Educativa 112

Andrés Avelino Cáceres

Av. Mangomarca

Av. El Santuario

Centro Social Cultural "Villa de Arma"

Vías principales

MEDIOS DE TRANSPORTE Transporte público Transporte en mototaxi

Av. Las Lomas Acceso

Acceso directo
vecinales
Vías secundarias Vías
personal
al lugar Transporte
0 5 A S P E C T O S U R B
N O S
A
FUENTE:MUNICIPALIDAD DE S.J.L FUENTE:MUNICIPALIDAD DE S.J.L

PUNTOS DE ENCUENTRO

PROBLEMATICA

Mobiliarios urbanos deteriorados yinexistentes.

Falta de espacios para actividades recreativas,

Parque Villa Mangomarca

PUNTOS DE RIESGO

Parque Cívico Mangomarca

Parque "San Pablo"

Parque Esther

Grande de Bentin

LEYENDA

Micro comercialización de drogas y consumo.

Delincuencia común. Pandillaje.

Micro comercialización de drogas y consumo

Pandillaje

Delincuencia común

Residuos solidos en la huaca

0 6 A S P E C T O S S O C I A L - R I E S G O S
FUENTE:MUNICIPALIDAD DE S.J.L
DE S.J.L
FUENTE:MUNICIPALIDAD

PARÁMETROS URBANÍSTICOS

Para el sector ubicado, los parámetros urbanísticos que la municipalidad de San Juan de Lurigancho indica son los siguientes:

A. RELACIONADAS CON LOS PARÁMETROS URBANÍSTICOS Y EDIFICATORIOS:

A.1 Las edificaciones para locales comerciales, culturales, centros de diversión y salas de espectáculos cuenten con máximo un de 30,000 m2 de área construida.

PERFIL URBANO

Para el sector ubicado, los parámetros urbanísticos que la municipalidad de San Juan de Lurigancho indica son los siguientes:

0 4 P A R Á M E T R O S U R B A N I S T I C O S
1 2 3 AV. EL SANTUARIO 1 2 3 AV. MANGOMARCA 4 1 2 3 CA. HATUN COLLA 4
FUENTE: PARAMETROS DE MANGOMARCA.

CARACTERÍSTICAS DE DISEÑO EN RAMPAS Y ESCALERAS

El ancho libre mínimo de una rampa será de 1.00 m., entre los muros que la limitan. Se permitirán mantener las pendientes máximas que se indican para:

Diferencias de nivel de hasta 0.25 mts.

Diferencias de nivel de 0.26 hasta 0.75 mts.

Diferencias de nivel de 0.76 hasta 1.20 mts.

Diferencias de nivel de 1.21 hasta 1.80 mts.

Diferencias de nivel de 1.81 hasta 2.00 mts.

Diferencias de nivel de 1.21 hasta 1.80 mts.

Diferencias de niveles mayores

CARACTERÍSTICAS DE DISEÑO EN RAMPAS Y ESCALERAS

La longitud máxima de una rampa es de 9.00 m de largo, considerando un descanso de 1.50 m, para permitir que en cada tramo la persona en silla de ruedas o movilidad reducida recupere fuerzas para continuar.

Altura:

La altura debe satisfacer las siguientes condiciones:

a) La obra nueva debe integrarse con el paisaje.

b) No introducir elementos fuera de escala con los Monumentos.

c) La altura debe corresponder a la dominante de los Monumentos.

CONDICIONES GENERALES DE ACCESIBILIDAD EN TODAS LAS EDIFICACIONES

Dimensiones de espacios accesibles:

El espacio que ocupa una silla de ruedas es de 75 cm. x 1.20 m.

El ancho libre mínimo será para el paso de una silla de ruedas de 90 cm, para el paso de dos sillas de ruedas = 1.50 m.

De utilizarse puertas giratorias o similares, deberá preverse otra que permita el acceso de las personas en sillas de ruedas.

1 0 R E G L A M E N T O N O R M A T I V O
12% 10% 8% 6% 4% 6% 2% 9.3.1
FUENTE: REGLAMENTO NACIONAL DE EDIFICACIONES

LAVATORIOS E INODOROS

El distanciamiento entre lavatorios será de 0.90 m. entre ejes.

Deberá existir un espacio libre de 0.75 m. x 1.20 m. al frente del lavatorio para permitir la aproximación de la silla de ruedas.

El cubículo para inodoro tendrá dimen mínimas de 1.50 m. x 2.00 m. con una puerta de ancho no menor de 0.90 m. y barras de apoyo tubulares adecuadamente instaladas.

SALA PARA ESPECTADORES

En las salas con asientos fijos al piso se debe disponer de espacios para personas en sillas de ruedas, a razón de 1 por los primeros 50 asientos.

El espacio mínimo para un espectador en silla de ruedas es de 0.90 m de ancho y de 1.20 m.

Considerar una ruta accesible que conecte las salas de espectadores con las áreas de servicios de la edificación.

ANEXO 06

CÁLCULO DE AFORO

LOCALES CON ESPECTÁCULOS Y RECREACIÓN

RNC: NORMA 10 SALIDAS > DE 100 PERSONAS = 02 PUERTAS MENOS DE 100 PERSONAS

1 persona por asiento

1 vehiculo por persona

1 0 R E G L A M E N T O N O R M A T I V O
DE 100 A 500 PERSONAS DE 500 A 1000 PERSONAS DE MAYOR DE 1000 PERSONAS 1 PUERTA 2 PUERTA 3 PUERTA 4 PUERTA SERVICIOS COMUNALES OFICINAS ADMINISTRATIVAS 10.0 M2 por persona AMBIENTES DE REUNIÓN 1.0 M2 por persona AREA DE EXPECTADORES DE PIE 0.25 M2 por persona RECINTOS PARA CULTOS 1.0 M2 por persona SALAS DE EXPOSICION 3.0 M2 por persona
GENERAL 16.0 M2 por persona
M
persona
ESTACIONAMIENTO
AUDITORIO
1
por asiento 1 persona por asiento
FUENTE: REGLAMENTO NACIONAL DE EDIFICACIONES

PROBLEMÁTICA FUNDAMENTAL

La zona de Mangomarca cuenta con distintas problemáticas pero base el diagnostico se identifica que realiza diferentes actividades artísticas y culturales en delación a la huaca pero no cuentan con un espacio determinado.

FACTORES

LA FALTA DE UN ESCENARIO ARTÌSTICO Y CULTURAL

LA FALTA DE UN EQUIPAMIENTO DE CONSERVACIÒN Y DIFUSIÒN DE LA CULTURA PARA VALORAR Y CONSERVAR LA IDENTIDAD DE MANGOMARCA

LA FALTA DE CONSERVACIÒN DE LAS HUACAS FALTA DE DIFUSIÓN DE LA CULTURA

En la zona de Mangomarca se realiza muchas actividades artísticas y culturales, pero no se da el respaldo de un escenario adecuado.

Por la falta de mantenimiento y seguridad por parte de la municipalidad de S.J.L. la huaca se encuentra en un punto de deterioro por actos vándalos.

INSEGURIDAD

Por la falta de difusión existe la ignorancia los propios residentes del lugar no aprecian la cultura y piensan que es un lugar descampado.

Por la falta de afluencia y iluminación en los exteriores y al interior de la huaca se sitúa el vandalismo y la delincuencia.

0 8 P R O B L E M Á T I C A

DEFINICIÓN Y JUSTIFICACIÓN DE LA NECESIDAD

2

ACTIVIDADES

CONCIERTOS

SE PRESENTA

CONCIERTOS DE DIFERENTES GENEROS POR EL MINISTERIO DE CULTURA Y KILKA AGENCIA CREATIVA

S A.C.

TURISMO

SE DA RECORRIDO TURISTICOS AL EXTERIOR DE LA HUACA POR PARTE DE LA MUNICIPALIDAD

S J L. DURANTE TODO

EL AÑO

TALLER DE LECTURA- ARTE

EXPOSIXIÒN DE ARTE

SE PRESENTA EXPOSITORES COMO

LA EXPOSICIÓN

PAGAPU DE LA ARTISTA PLÁSTICA

TANIA AGÜERO SOBRE

LA CULTURA DE MANGOMARCA.

CEREMONIAS

SE DA CEREMONIAS Y CONFERENCIA

SOBRE LA CELEBRACIÒN

HISTORICA DE LA HUACA COMO SUS

57 AÑOS (13 DE ENERO)

SE DA TALLERES DE LECTURA Y DIBUJO EN LA COMUNIDAD

GRACIAS A LA MUNIFERIA CULTURAL ORGANIZADA POR LA MUNICIPALIDAD DE SAN JUAN DE LURIGANCHO

DANZAS-TEATRO

SE PRESENTA OBRAS TEATRALES COMO DANZAS AL EXTERIOR DE LA HUACA POR LA MUNICIPALIDAD EL MINISTERIO DE CULTURA DONDE PARTICIPA LA COMUNIDAD

PROBLEMATICAS

ECENARIO IMPROVISADO INSEGURIDAD (BANDALISMO Y DELICUENCIA). NO CUENTA CON MOBILIARIO URBANO SALUBRIDAD NO CUENTA CON AMBIETES DE SERVICIOS BASICOS

0 7 A C T I V I D A D E S A R T I S T I C A S Y C U L T U R A L E S

Actualmente los mismos vecinos y usuarios de la reserva, organizan proyectos educativos entorno al cuidado del ambiente y del patrimonio ubicado en Mangomarca. Así como también, los mismos estudiantes difunden el patrimonio en mural antes lleno de grafitis.

Actividades artísticas

Recorridos turísticos

Desfiles educativos

Charlas educativas y culturales

Limpieza y cuidado por vecinos

“Sensibilizar e involucrar a los miembros de la comunidad en la revalorización, cuidado, protección y difusión de la zona arqueológica de Mangomarca”.

J
1 0
U S T I F I C I Ó N

DEFINICIÓN DEL EQUIPAMIENTO QUE PODRIA

2
SATISFACER LA NECESIDAD

COMPLEJO PARA LA CONSERVACIÓN Y DIFUSIÓN DE LA CULTURA

Descripción de las necesidades 1.

ZONA EDUCATIVA

ZONA DE MUSEO CENTRO DE INVESTIGACIÓN TALLERES ARTISTICOS AUDITORIOS

SALAS DE EXPOSICIONE

ALUMNO: CÁTEDRA: CURSO: GRUPO: LAMINA:

P R O P U E S T A
01
Papuico Buendia,
Hinostroza Areyan, Brigitte Cortijo Centurion, Zulma de Jesus Cruzado Villanueva, Jhonatan Enmannuel TALLER DE DISEÑO ARQUITECTÓNICO X GRUPO 04 L-01
Quiñonez Alban, Karolyn Marlen
Esmeralda

ANALISIS DE CASOS

EXITOSOS: 1 NACIONAL Y 1

INTERNACIONAL

3
CHAN CHAN
REFERENTE NACIONAL COMPLEJO ARQUEOLÓGICO

INFORME GENERAL

DENOMINACION: COMPLEJO ARQUEOLÓGICO CHAN CHAN

UBICACIÓN PERU

DEPARTAMENTO TRUJILLO

DISTRITO HUANCHACO

RESPONSABLES MINISTERIO DE CULTURA

DESCRIPCIÓN: EL COMPLEJO ARQUEOLÓGICO CHAN CHAN ES UN MUSEO PERUANO, QUE ESTÁ SITUADO EN EL DEPARTAMENTO DE LA LIBERTAD.

EL MUSEO TIENE SALAS DE EXPOSICIÓN PERMANENTES Y DE EXPOSICIÓN TEMPORAL. TAMBIÉN RECREA A TRAVÉS DE MAQUETAS LA EDIFICACIÓN DE CHAN CHAN. LA ZONA ARQUEOLÓGICA CHAN CHAN FUE DECLARADA COMO PATRIMONIO DE LA HUMANIDAD POR LA UNESCO EN 1986 E INCLUIDA EN LA LISTA DEL PATRIMONIO DE LA HUMANIDAD EN PELIGRO EN EL MISMO AÑO. ALBERGA ALREDEDOR DE 15 MIL PIEZAS ARQUEOLÓGICAS DE CERÁMICA, PIEZAS LÍTICAS Y DE METALES, TEXTILES Y RESTOS ÓSEOS.

ALUMNO: CÁTEDRA: CURSO: GRUPO: LAMINA: Quiñonez Alban, Karolyn Marlen Papuico Buendia, Esmeralda Hinostroza Areyan, Brigitte

TECNICA
FICHA
01
Cortijo Centurion, Zulma de Jesus Cruzado Villanueva, Jhonatan Enmannuel TALLER DE DISEÑO ARQUITECTÓNICO X GRUPO 04 L-01 F I C H A T É C N I C A

1.1 LOCALIZACIÓN Y UBICACIÓN

País: Perú

Localización: Trujillo

Distrito: Huanchaco

El complejo arqueológico cuenta con un museo de sitio y fue creado con la finalidad de conservar y exhibir la historia del lugar.

Quiñonez Alban, Karolyn Marlen

Museo de sitio

01 ALUMNO: CÁTEDRA: CURSO: GRUPO: LAMINA:
Centurion, Zulma de Jesus Cruzado Villanueva, Jhonatan Enmannuel TALLER DE DISEÑO ARQUITECTÓNICO X GRUPO 04 L-01
Papuico Buendia, Esmeralda Hinostroza Areyan, Brigitte Cortijo
U B I C A C I Ó N
LEYEDA Acceso 1 Patio Principal 2 Flat Funeraria 3 Canchón 4 LEYEDA

1.2 USO DE SUELOS

1.3 ACCESIBILIDAD Y TRANSPORTE

Av. Mansiche

Av. Jesús de Nazareth

RUINASDE CHANCHAN

PRADERASDE SANISIDRO

Av. La Libertad

DISTRITO HUANCHACO

URB.“SOLILUZ” ELVALLE 1ETAPA

DISTRITODE TRUJILLO

URB. “ELINGENIO”

Quiñonez Alban, Karolyn Marlen

Papuico Buendia, Esmeralda

Hinostroza Areyan, Brigitte

Av. Metropolitana II

Vía principal LEYEDA

ALUMNO: CÁTEDRA: CURSO: GRUPO: LAMINA:

Cortijo Centurion, Zulma de Jesus Cruzado Villanueva, Jhonatan Enmannuel TALLER

1 2 3 4
Museo de Sitio Chan Chan Vía arterial Vía colectora
01
ARQUITECTÓNICO X GRUPO 04 L-01 A S P E C T O U R B A N O
DE DISEÑO
1 2 3 4

1.4 ACCESIBILIDAD

Autobuses:

Vehículo diseñado para transportar numerosas personas a través de vías urbanas.

Mototaxis: Medio de transport popular para trechos cortos. No transitan por vías expresas.

Autos particulares:

Vehículo común para transporte de personas y uso particular.

Transportan en vías.

1.5 CONTEXTO INMEDIATO

Coliseo

Museo de Sitio

Chan Chan

Autos particulares LEYEDA

Autobuses

Concentración de vehículos

Museo Chan Chan LEYEDA

Leyenda general Leyenda equipamientos Educación

Recreación pública

Otros usos

Leyenda de conexiones Directa Indirecta

ALUMNO: CÁTEDRA: CURSO: GRUPO: LAMINA:

Quiñonez Alban, Karolyn Marlen

Papuico Buendia, Esmeralda Hinostroza Areyan, Brigitte

Cortijo Centurion, Zulma de Jesus Cruzado Villanueva, Jhonatan Enmannuel TALLER DE DISEÑO

01
X
04 L-01 A S P E C T O U R B A N O
ARQUITECTÓNICO
GRUPO
de gallos Ruinas de Chan Chan Colegio American S. Complejo Chan Chan
1 2 3 3 4 1 2 3 4

Volumen actual Sustracción

Adición

Sustracción

Vemos un paralepipedo rectangular, genera nuevos espacios importantes substrayendo tres de esquina y un espacio medio en el fondo del volumen.

Ambos

Adición

Se enlaza tres figuras, un triángulo, un rectángulo y el paralepipedo. Generando nuevos esquemas de volumetrías.

Jerarquía

El museo de sitio por su volumetría de un solo piso es la única que se destaca en el entorno inmediato.

Pauta

Esta marcada por el recorrido lineal hacia el museo de sitio, conduce directamente al acceso principal.

La parte frontal del museo cuenta con muros rectangulares de diferentes alturas ubicados de forma lineal.

También cuenta con diferentes formas geométricas como formas rectangulares o intersectados.

1 2 3 4 2.1 VOLUMETRÍA (PRINCIPIOS ORDEADORES) 01
Alban, Karolyn Marlen Papuico Buendia, Esmeralda Hinostroza Areyan, Brigitte Cortijo Centurion, Zulma de Jesus Cruzado Villanueva, Jhonatan Enmannuel TALLER DE DISEÑO ARQUITECTÓNICO X GRUPO 04 L-01 A S P E C T O V O L U M É T R I C O
ALUMNO: CÁTEDRA: CURSO: GRUPO: LAMINA: Quiñonez

2.2 ZONIFICACIÓN

LEYEDA

3 espacios

1 espacio

6 espacios

3 espacios

4 espacios

3 espacios

1 espacio

2 espacios

3 espacios

1 espacio

2 espacios

1 espacios

Boletería, 2 SS.HH.

Ingreso del público

Sala de expo 1, 2 y 4, hall de ingreso y 2 almacenes.

Dirección, laboratorio foto y diorama.

Cafetería, plaza, sala de video y laboratorios F y Q.

Sala de maqueta, almacén de cerámica y salón Pat.

Gabinete de trabajo.

Sala de exposición 3 y 5.

Biblioteca, investigación y lavaderos.

Patrulla

2 Almacenes INC

Depósito

Circulación

LEYEDA DE ZONIFICACIÓN

Zona de exposición

Zona de investigación

Zona administrativa

Zona de recreación

Zona de cafetería

Zona de servicios

El museo cuenta con 6 zonas y 30 ambientes. Un total de 800 m2 son ambientes provisionales contando con la nueva zona de investigación ubicada en la parte posterior del museo.

ALUMNO: CÁTEDRA: CURSO: GRUPO: LAMINA:

Quiñonez Alban, Karolyn Marlen

Papuico Buendia, Esmeralda

Hinostroza Areyan, Brigitte

Cortijo Centurion, Zulma de Jesus Cruzado Villanueva, Jhonatan Enmannuel TALLER

01
DE DISEÑO ARQUITECTÓNICO X GRUPO 04 L-01 A S P E C T O V O L U M É T R I C O

MUSEO DE ANTROPOLOGÍA Pedro Ramirez Vázquez

REFERENTE INTERNACIONAL

INFORME GENERAL

DENOMINACION: MUSEO DE ANTROPOLOGÍA

UBICACIÓN MÉXICO

DEPARTAMENTO CIUDAD DE MÉXICO

AÑO 1963 - 1964

ARQUITECTO PEDRO RAMÍREZ VÁZQUEZ,

DESCRIPCIÓN: LA CONSTRUCCIÓN DEL MUSEO SE ORIGINÓ EN EL AÑO DE 1964 POR EL ARQUITECTO PEDRO RAMÍREZ VÁZQUEZ CON LA COLABORACIÓN DE LOS ARQUITECTOS RAFAEL MIJARES Y JORGE

CAMPUZANO. EL EMPLAZAMIENTO SE LLEVÓ A CABO SOBRE UN TERRENO DE FORMA TRIANGULAR PERTENECIENTE AL BOSQUE DE CHAPULTEPEC DEJANDO LIBRE EL EDIFICIO QUE ACTUALMENTE CORRESPONDE ALA ANTIGUA CASA DE LA MONEDA.

RAMÍREZ CONSIDERABA QUE EL MUSEO DEBÍA CREAR UN SÍMBOLO EMBLEMÁTICO NACIONAL QUE CORRESPONDIERA A LA HERENCIA E HISTORIA DE MÉXICO, Y SIENDO ÉSTE DESTINADO PRINCIPALMENTE A LA EXHIBICIÓN DE PIEZAS PREHISPÁNICAS.

FICHA TECNICA
01 ALUMNO: CÁTEDRA: CURSO: GRUPO: LAMINA: Quiñonez Alban, Karolyn Marlen Papuico Buendia, Esmeralda Hinostroza Areyan, Brigitte Cortijo Centurion, Zulma de Jesus Cruzado Villanueva, Jhonatan Enmannuel TALLER DE DISEÑO ARQUITECTÓNICO X GRUPO 04 L-01 F I C H A T É C N I C A

País: México

Localización: Ciudad de México

Distrito: Delegación Miguel Hidalgo.

Ubicación: Av. Paseo de la Reforma y

Calzada Gandhi S/N Chapultepec.

Superficie: 45,000 m2, 30,000 m2 áreas de exhibición y 15,000 m2 para área académica.

ALUMNO: CÁTEDRA: CURSO: GRUPO: LAMINA: Quiñonez Alban, Karolyn Marlen Papuico Buendia, Esmeralda Hinostroza Areyan, Brigitte

Cortijo Centurion, Zulma de Jesus Cruzado Villanueva, Jhonatan Enmannuel TALLER DE

01
ARQUITECTÓNICO X GRUPO 04 L-01 U B I C A C I Ó N
DISEÑO
1.1 LOCALIZACIÓN Y UBICACIÓN

1.2 USO DE SUELOS

1.3 ACCESIBILIDAD Y TRANSPORTE

Habitacional Habitacional con comercio Habitacional mixto Equipamiento Espacios abiertos Área verde

ALUMNO: CÁTEDRA: CURSO: GRUPO: LAMINA:

Quiñonez Alban, Karolyn Marlen

Papuico Buendia, Esmeralda

Hinostroza Areyan, Brigitte

1 2 3 4
Museo de Antropología Vía arterial Vía colectora
1 2 3 4
SUELO URBANO URB.“SOLILUZ” ELVALLE 1ETAPA URB. “ELINGENIO” Av. P. de la Reforma Ca. Mahatma Gandhi Av. Pdte. Masaryk
MUSEODE
Av. Interior Melchor
ANTROPOLOGÍA
01
TALLER DE DISEÑO ARQUITECTÓNICO X GRUPO 04 L-01 A S P E C T O U R B A N O
Cortijo Centurion, Zulma de Jesus Cruzado Villanueva, Jhonatan Enmannuel
Vía principal LEYEDA

1.4 ACCESIBILIDAD

Autobuses:

MUSEODE ANTROPOLOGÍA

Vehículo diseñado para transportar numerosas personas a través de vías urbanas.

Autos particulares LEYEDA

1.5 CONTEXTO INMEDIATO

Museo de Antropología Autobuses

Concentración de vehículos

MUSEODE ANTROPOLOGÍA

Museo de Antropología LEYEDA

Leyenda general Leyenda equipamientos Educación

Recreación pública

Otros usos

Leyenda de conexiones Directa

Indirecta

1 2 3 4 1 2 3 4 3
01 ALUMNO: CÁTEDRA: CURSO: GRUPO: LAMINA:
Centurion, Zulma de Jesus Cruzado Villanueva, Jhonatan Enmannuel TALLER DE DISEÑO ARQUITECTÓNICO X GRUPO 04 L-01 A S P E C T O U R B A N O
Quiñonez Alban, Karolyn Marlen Papuico Buendia, Esmeralda Hinostroza Areyan, Brigitte Cortijo
Museo Tamayo Arte C. Colegio Nacional Zoológico de Chapultepec Campo de Marte

2.1 VOLUMETRÍA (PRINCIPIOS ORDEADORES)

Descripción

El museo Nacional cuenta con 24 salas de exhibición de las cuales 23 son permanentes y una está destinada a exposiciones temporales, que en ocasiones son muestras museográficas provinientes de diversos museos del mundo.

Sustracción

Vemos que los volumenes son extraidos en distintos lados del proyecto, generando movimiento a nivel visual que percibirá el usuario.

Jerarquía

La gran cubierta resolverá el patio con un gran “paraguas” de 52 x 82 m. dentro del patio que sustentan en el mástil central que actúa como tótem.

La columna, revestida de bronce, presenta unos relieves escultóricos realizados por los hermanos Chávez Morado. La obra, titulada Imagen de México, se descompone en cuatro vistas frontales según los puntos cardinales, y recurre a emblemas y símbolos nacionales, mitos mayas y referencias a la cultura mexicana.

ALUMNO: CÁTEDRA: CURSO: GRUPO: LAMINA:

01
Cortijo Centurion, Zulma de Jesus Cruzado Villanueva, Jhonatan Enmannuel TALLER DE DISEÑO ARQUITECTÓNICO X GRUPO 04 L-01 A S P E C T O V O L U M É T R I C O
Quiñonez Alban, Karolyn Marlen Papuico Buendia, Esmeralda Hinostroza Areyan, Brigitte

2.2 ZONIFIC

El museo cuenta con 6 zonas y 30 ambientes. Un total de 800 m2 son ambientes provisionales contando con la nueva zona de investigación ubicada en la parte posterior del museo.

LEYEDA DE ZONIFICACIÓN

Zona de exposición

Zona de auditorio

Zona administrativa

Zona de emplazamiento

Zona de cafetería

Zona de servicios

ALUMNO: CÁTEDRA: CURSO: GRUPO: LAMINA:

Quiñonez Alban, Karolyn Marlen

Papuico Buendia, Esmeralda

Hinostroza Areyan, Brigitte

Cortijo Centurion, Zulma de Jesus Cruzado Villanueva, Jhonatan Enmannuel

01
TALLER DE DISEÑO ARQUITECTÓNICO X GRUPO 04 L-01
S P E
T O V O L U M É T R I C O
A
C

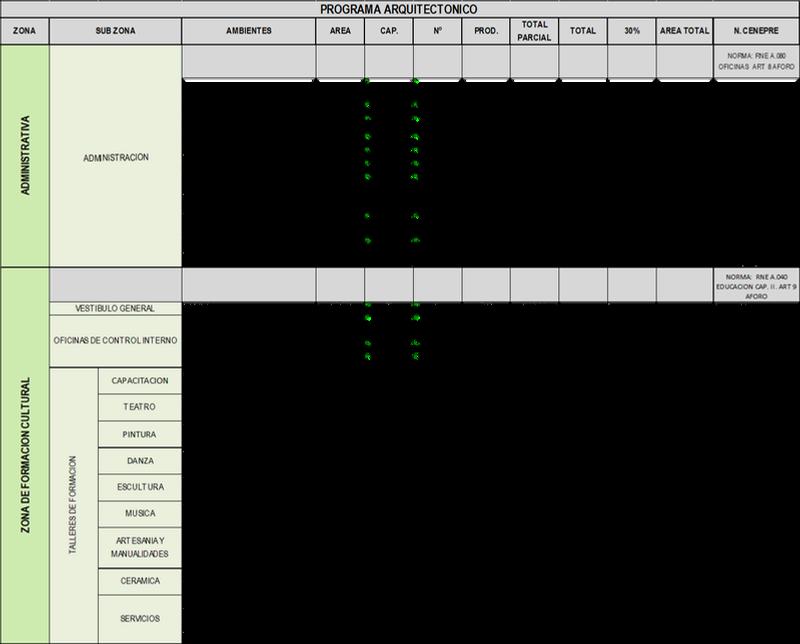
PROGRAMACIÓN ARQUITECTONICA

4

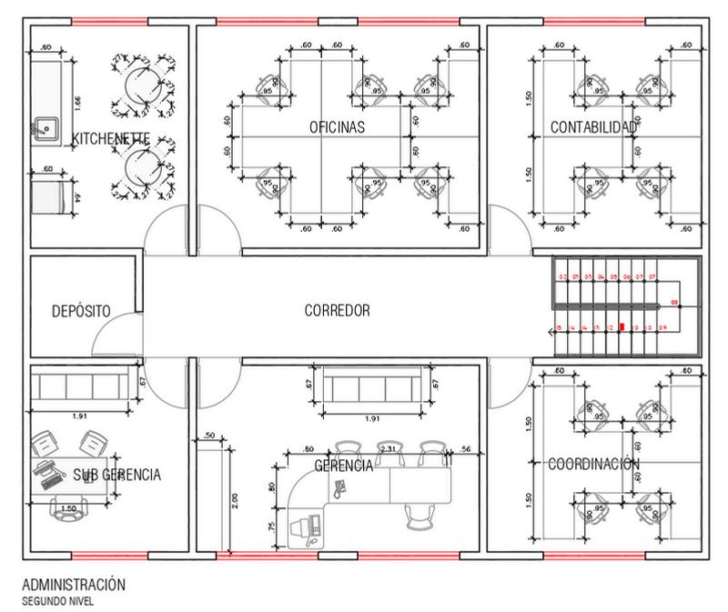
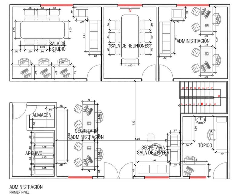
ADMINISTRACIÒN

CAPACIDAD:35

PERSONAS-165.86 M2

FORMACIÒN

CULTURAL: 278

PERSONAS-1593.80 M2

P R O G R A M A A R Q U I T È C T O N I C O

CAPACIDAD:755

PERSONAS-1631.21M2

P R O G R A M A A R Q U I T È C T O N I C O
ZONA MUSEO
P R O G R A M A A R Q U I T È C T O N I C O
MUSEO
302
M2
57
ZONA
CAPACIDAD:
PERSONAS-4962.43
COMERCIO:
PERSONAS- 338M2
P R O G R A M A A R Q U I T È C T O N I C O
RESPETAR EL ÀREA LIBRE DE 30% = 2700 M2 LIBRE ZONA SERVICIO CAPACIDAD: 12TRAB.+88ESTAC. =940.23 M2
9000M2 NORMA
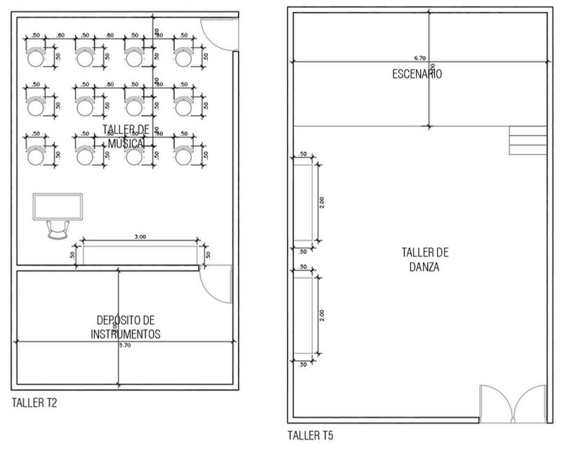
0 9 A N T R O P O M E T R Ì A
PERSONAS)
AFORO (40

AFORO (20 PERSONAS)

AFORO (30 PERSONAS)

0 9 A N T R O P O M E T R Ì A

AFORO (40 PERSONAS)

AFORO (300 PERSONAS)

AFORO (20 PERSONAS)

AFORO (30 PERSONAS)

0 9 A N T R O P O M E T R Ì A

ZONIFICACION EMPLAZADACRITERIOS PRIMARIOS DE DISEÑO

5

ZONIFICACIÓNPROPUESTA1

CRITERIOS DE DISEÑO LEYENDA

En aquellas épocas del imperio incaico vivieron en el sector los Ychmas, por lo que decidimos usar como referencia los tres poderes: La realeza, la nobleza y el pueblo, representándolos en el tamaño de los volúmenes y separándolos entre sí para generar jerarquía de forma escalonada.

ADMINISTRATIVA

COMERCIO

ZONA DE SERVICIO

ZONA DE DIFUSION

CULTURAL

ZONA DE MUSEO

ARQUEOLOGICO

CIRCULACIÓN - NUCLEOS

MIRADOR

ÁREA VERDE

VISTA EXTERIOR

VOLUMETRÍA

VISTA EXTERIOR

VOLUMETRÍA

Conceptualización

LEYENDA

ADMINISTRATIVA

ZONA DE FORMACION CULTURAL

ZONA DE DIFUSION CULTURAL

ZONA DE MUSEO COMERCIÒ

ZONA DE SERVICIOS

CIRCULACIÒN VERTICAL INGRESO PRINCIPAL INGRESO VEHICULAR P INGRESO SERVICIO

El entorno del terrreno

Usa como referencia los tres poderes wari: La realeza, la nobleza y el pueblo

PISO 1 formación cultural difusión cultural museo comercio servicio

Se representa en su forma y jerarquía del volumen se toma en cuenta el asolamiento como la ventilación natural

PISO 2 administración formación cultural difusión cultural museo sótano servicio (estacionamiento)

Z O N I F I C A C I Ò N P R O P U E S T
2
CALLE. 1
A
A.VSANTUARIO A.VMANGO.

Del referente nacional influyo en el proyecto sus conexiones de ambientes.

Vìa alterna se quiere agregar una vía alterna que pueda disfrutar el turista

Área central recreacional La parte central será un plaza donde se realice actividades

Del referente internacional influye la parte central del proyecto. como también aplicar la estrategia de ventilaciòn

Z O N I F I C A C I Ò N P R O P U E S T A 2
MUSEO DE SITIO CHAN CHAN MUSEO DE ANTROPOLOGÍA

Diseñar un complejo artístico para la conservación y difusión de la cultura: Se concluye con una respuesta afirmativa ya que este equipamiento fomentará la identidad cultural de Mangomarca, a través del arte y de la cultura, también fomentará el resguardo de las zonas arqueológicas y el respeto por las mismas.

C O N C L U S I Ó N

https://es.wikipedia.org/wiki/Museo Nacional de Antropolog%C3% ADa (M%C3%A9xico)

https://www.gob.pe/535-consultar-resultados-del-censo-nacional2017

https://censo2017.inei.gob.pe/resultados-definitivos-de-los-censosnacionales-2017/

https://cbb.edu.pe/descubre-mas-sobre-el-complejo-arqueologicomangomarca/

B I B L I O G R A F I A

Turn static files into dynamic content formats.

Create a flipbook
Issuu converts static files into: digital portfolios, online yearbooks, online catalogs, digital photo albums and more. Sign up and create your flipbook.