Portfolio 2022

Page 1

1. PORTUGUESE CENTRUM FOR ART AND INHABITANT CONSERVATION - INTENDENTE PORTFOLIO

Auffzug

Dachaufbau

Aufbau

Saniertes

Erschließungskonzept:

Fachwerkbinder

privat öffentlich

Raumprogramm:

PORTFOLIO 2022 - KARL-VALENTIN LIEBIG Masterarbeit SoSe 2020 +++ Karl-Valentin Liebig +++ Beuth Hochschule für Technik Berlin EG1. OG 2. OG 3. OG Dachaufsicht Grundrisse M 1 : 200
ABBRUCH NEUBAUBESTAND
Treppenraum (Belichtung)
Dach Auffahrrampe Stahlbetondecke Stahlbetopfeiler 1. OG Wendeltreppen Stahlbetonpfeiler EG Verbindungstreppe
Theater Neuer
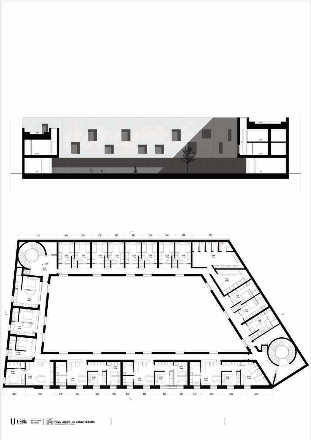
Südansicht Schnitt B-B, M 1 : 200 Schnitt B-B, M 1 : 200 223 Karl-Valentin Liebig Masterarbeit
2020 Beuth Hochschule für Technik
University
of
Applied Science Schnitt D-D M 1:400
PORTFOLIO 2022 - KARL-VALENTIN LIEBIGKarl-Valentin Liebig
PORTFOLIO 2022 - KARL-VALENTIN LIEBIG
PORTFOLIO 2022 - KARL-VALENTIN LIEBIG
PORTFOLIO 2022 - KARL-VALENTIN LIEBIG

Schwarzplan M 1 : 6 000

Schwarzplan M 1 : 25 000

Karte des Wassersystems

mitt. Überschwemmungsgefahr hohe Überschwemmungsgefahr

ger. Abrutschgefahr

mitt. Abrutschgefahr

hohe Abrutschgefahr

natürliche Wasserbecken natürliche Wasserkanäle öffentliche Grünflächen geplante öffentliche Grünflächen Straßen mit Bäumen geplante Straßen mit Bäumen unvollständige Straßenbepflanzung ger. Überschwemmungsgefahr Grünflächen

PORTFOLIO 2022 - KARL-VALENTIN LIEBIG

HOUSING AND PUBLIC

IN ALFAMA

2. SOCIAL
CONNECTION
PORTFOLIO 2022 - KARL-VALENTIN LIEBIG
PORTFOLIO 2022 - KARL-VALENTIN LIEBIG
PORTFOLIO 2022 - KARL-VALENTIN LIEBIG
PORTFOLIO 2022 - KARL-VALENTIN LIEBIG
PORTFOLIO 2022 - KARL-VALENTIN LIEBIG

1.

GROUND

PORTFOLIO 2022 - KARL-VALENTIN LIEBIG FORM FINDING UNSCALED INT. PERSPECTIVES
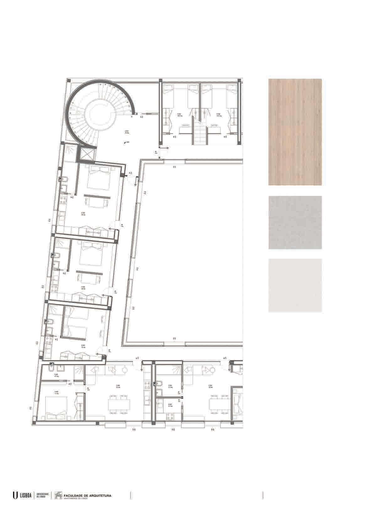
FLOOR M 1:200
FLOOR M 1:200 3. THE NEW CONTEMPORARY ART GALLERY FOR THE OLD „MUSEU DOS COCHES“ IN BELEM
PORTFOLIO 2022 - KARL-VALENTIN LIEBIG GROUND FLOOR M 1:200 1. FLOOR M 1:200
PORTFOLIO 2022 - KARL-VALENTIN LIEBIG
PORTFOLIO 2022 - KARL-VALENTIN LIEBIG FIRST SKATCHES
PORTFOLIO 2022 - KARL-VALENTIN LIEBIG 4.
THE DYNAMIC „ACNE STUDIOS“ HEADQUARTER IN BEATOS CREATIVE HUB

OUTSIDE IN THEME

OUTSIDE INSIDE CLOSEUP

PORTFOLIO 2022 - KARL-VALENTIN LIEBIG GSEducat o a Ve o

FIRST SCATCHES

PORTFOLIO 2022 - KARL-VALENTIN LIEBIG
PORTFOLIO 2022 - KARL-VALENTIN LIEBIG

CENTER FOR LOCAL FISHERMENTRAFARIA

PORTFOLIO 2022 - KARL-VALENTIN LIEBIG KARL.-VALENTIN LIEBIG +++ PROJECT V +++ 2 SEMESTER 5. CULTURE
PORTFOLIO 2022 - KARL-VALENTIN LIEBIG
PORTFOLIO 2022 - KARL-VALENTIN LIEBIG
PORTFOLIO 2022 - KARL-VALENTIN LIEBIG
PORTFOLIO 2022 - KARL-VALENTIN LIEBIG 6. PHOTOGRAPHY
WORK FOR NOÉ DUCHAUFOURLAWRANCE - MADE IN SITU - PORTUGAL
PORTFOLIO 2022 - KARL-VALENTIN LIEBIG

Turn static files into dynamic content formats.

Create a flipbook
Issuu converts static files into: digital portfolios, online yearbooks, online catalogs, digital photo albums and more. Sign up and create your flipbook.