

![]()





“This portfolio captures the progression of my architectural journey, illustrating the development of my own design and technical exploration. Each project showcases the integration of innovative thought while applying spatial dynamics, formal composition, and the interplay between user experience and environment.”
ARCHITECTURE PROJECTS
MODEL BUILDING
A
RAMPSIDE LOFTS
2023- SECTION PROVOST
B
BOTANIC PRESERVES
2024- SECTION THEUT
C
IHANA ISOVISTA
2024- SECTION THEUT
D
HEALTH RIDGE HOUSE
2022- SECTION GROSSI
E
THE SPHERE
2022- SECTION GROSSI
F
THE PROUN
2022- SECTION GROSSI
G
THE CUBE
2022- SECTION GROSSI
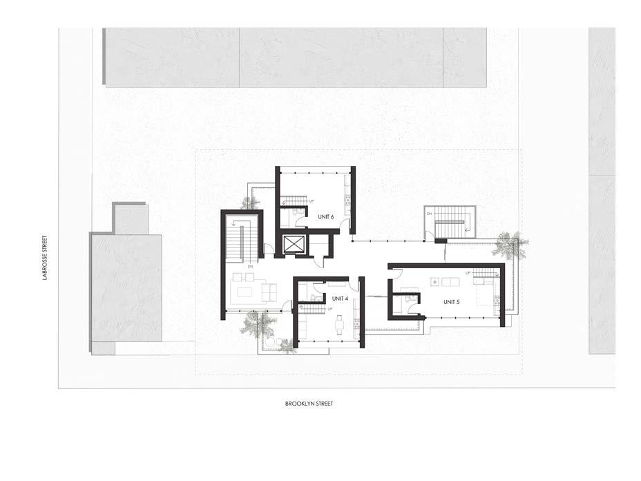
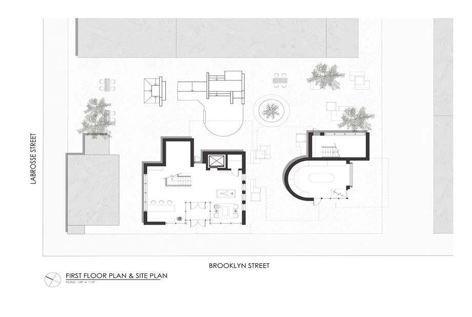
: CARL JANZEN, EDGAR SERRATO GROUP : 1444 BROOKLYN ST, DETROIT, MI Location
Nestled within a community already adorned with various collective housing examples, our studio-scale collective housing project stands as a thoughtful design and community integration. Situated in proximity to an active school, residential homes, a children’s park, and commercial spaces, the proposed site seamlessly weaves into the urban tapestry, enriching the neighborhood fabric.
The overarching concept for this project revolves around three key principles: environmental consciousness, user integration, and the guiding theme of “stagger.” In line with our commitment to sustainability, the choice of materials becomes paramount. Reclaimed wood facades, bamboo structures, hempcrete insulation, and adobe plaster collectively contribute to a design that not only resonates aesthetically but also aligns with principles of ecological responsibility.
User integration is a central focus, fostering a sense of community that extends beyond individual living spaces. The open circulation plan surrounding and within the site encourages movement and interaction, creating a dynamic environment where residents can engage with their surroundings and each other. The strategic placement of residential units emphasizes relationships with neighbors, promoting a sense of communal identity. Throughout the design, specific nodes serve as communal hubs, facilitating social interaction and shared experiences. These carefully curated spaces are integral to the overall design, providing opportunities for residents to connect, collaborate, and contribute to the collective spirit of the housing project.
The concept of “stagger” is a guiding principle influencing form, orientation, and circulation. Preservation of views towards the nearby park is prioritized, ensuring that residents can enjoy the natural beauty of their surroundings. The staggered placement of units creates a harmonious rhythm and balance within the collective, contributing to a visually engaging and cohesive architectural ensemble.






: THIRD FLOORPLAN





: INTERIOR VISUAL RAMPSIDE LOFTS

: EXTERIOR VISUAL RAMPSIDE LOFTS

The private areas within this collective housing project are meticulously designed to prioritize the residents’ comfort, privacy, and personal space. Each unit is configured with careful attention to the staggered arrangement, ensuring that balconies and interior spaces provide optimal privacy while still offering expansive views of the surrounding natural beauty.
In contrast, the semi-private areas serve as transitional spaces that facilitate interaction among neighbors while maintaining a sense of personal space. Shared balconies and circulation corridors are strategically placed to encourage casual encounters and foster a sense of community.
The open areas are the heart of the collective housing project, designed to nurture social connections and communal activities. Communal hubs, such as shared gardens, play areas, and seating zones, are thoughtfully integrated into the overall design, providing opportunities for shared experiences and collaboration.
: HANNAH HESS GROUP
In Chicago’s vibrant Pilsen neighborhood, sits Botanic Preserves, a blend of urban and industrial aesthetics. This mixed-use building is not just a structure but a statement, presenting a carefully considered balance between form, function, and materiality. By incorporating eco-forward solutions, Botanic Preserves plays a crucial role in preserving the rich Mexican heritage of the area. Its design speaks to the cultural significance of Pilsen, marrying modern sustainability practices with traditional values, and creating a space that honors the past while looking towards the future.
At its core, Botanic Preserves is more than a building; it’s a dynamic environment designed to foster innovation and community engagement. The ground floor is anchored by a wide, welcoming atrium that invites the community in, creating an immediate sense of openness and inclusivity. This space seamlessly connects to design studios, laboratories, and collaborative workspaces spread across three stories, all organized to encourage interaction and the free flow of ideas. At the pinnacle of the building, a glass-enclosed commu nity garden serves as a tranquil oasis where residents and visitors alike can reconnect with nature. This garden not only provides a space for reflection but also offers education al opportunities in sustainable living practic es. The building’s materiality is a testament to its thoughtful design, with a juxtaposition of brick, glass, and wood that not only respects the industrial heritage of the neighborhood but also enhances the building’s contempo rary appeal. Thick black mullions frame the expansive windows, offering glimpses into the vibrant activities within, inviting passersby to become part of the story.
Every aspect of Botanic Preserves reflects a deep commitment to accessibility and inclu sivity. The spaces within are thoughtfully cu rated to empower individuals from all walks of life to engage in the creative processes housed within its walls. This is not just a build ing but a hub where transformative ideas about design and community intertwine, shaping new connections and strengthening the fabric of the neighborhood.






































































































































































: ROOFTOP GREENHOUSE VISUAL
INTERIOR : WORKSPACE VISUAL


botanic preserves
: ART CENTER VISUAL
Ascending through the building, the design studios and laboratories are arranged across three stories, each tailored to support creativity and innovation. These workspaces are designed to be highly functional and adaptable, with open floor plans that encourage collaboration. The studios are equipped with state-of-the-art facilities to support a variety of design disciplines, from digital arts to industrial design.
Large, movable partitions allow for flexible use of space, accommodating both individual work and group projects. The laboratories are outfitted with advanced technology and tools, promoting hands-on experimentation and research. The layout ensures that these workspaces are interconnected, creating a continuous exchange of ideas and collaborative efforts.
Characterized by high ceilings and large open spaces, Botanic Preserves creates an airy atmosphere that enhances the sense of openness. Natural light floods the interiors through generously sized windows framed by industrial materials, casting dynamic shadows and adding depth to the space.















































: ANIKA BATTA
GROUP : GRAND MARAIS BEACH, MI Location
Located within Grand Marais, Ihana presents itself with a striking triangular configuration. Despite its foundational square outline, the addition of triangular beams along the patio introduces a unique geometric facet. Embracing contemporary architectural ideals, these beams serve a multifaceted role, transcending mere ornamentation to become essential elements that fortify both the structural integrity and visual allure of Ihana. Inspired by the principles of modern architecture, the strategic placement of these beams not only enhances stability but also contributes to the creation of captivating shadow patterns. Acting as sun louvers, the angular beams intercept sunlight, casting intricate shadows. This interplay of light and shadow adds depth and dimension to the structure, transforming it into a dynamic visual spectacle that evolves throughout the day.
A vertically organized staircase guides visitors from the entrance through the protected covered patio to the main private and open areas of Ihana. These stairs offer an alternative route directly down to Grand Marais Beach, seamlessly integrating Ihana with its natural surroundings. This layout ensures a smooth transition between outdoor and indoor spaces, allowing visitors to fully appreciate both the sauna’s interior and the picturesque landscape.
From a structural perspective, Ihana employs V-joints in its beam configuration, which are reinforced with V-shaped carbon steel. This advanced technique significantly augments the structural integrity, delivering robust support and stability throughout the building. Furthermore, Ihana incorporates a strategically positioned window that allows natural light to permeate the interior. This illumination reflects off the wooden surfaces, producing a gentle, inviting glow that enriches the relaxation ambiance and accentuates the architectural design.


SECTION DETAIL 1

01.
GASKET

TASK: Create a landscape house with the following programmed spaces: a studio with an open studio space, bathroom, and utility room; a house with a living room, two bathrooms, two bedrooms, kitchen, dining room, solarium, and utility room; an outdoor living space that is the circulation point between the house and the studio, and an in-between space. use the same concept as your architect from your precedent study.
Precedent Study: Richard Neutra - Lovell Health House
Inspired by the groundbreaking principles exemplified in Richard Neutra’s Lovell Health House, Health Ridge integrates modern design with a profound respect for the natural environment. This two-story residence features an open, fluid floor plan characterized by expansive windows and broad hallways, which effectively merge indoor spaces with the surrounding landscape. The design emphasizes clean lines and functional aesthetics, fostering a seamless connection with the outdoors and enhancing the overall sense of openness and tranquility.
The residence is enhanced by numerous balconies that extend the living spaces outward, allowing for uninterrupted views and a deeper connection to nature. A solarium is thoughtfully incorporated into the design, providing a dedicated space for relaxation and engagement with the surrounding environment. Additionally, a central island connects the house and the studio across a serene river, further integrating the structure with its natural setting.
Every aspect of Health Ridge is meticulously designed to reflect Neutra’s philosophy of fostering environments that promote both physical and psychological well-being. This residence stands as a modern embodiment of Neutra’s enduring principles, effectively synthesizing contemporary architectural practices with a deep respect for the natural environment. In doing so, it represents a sophisticated convergence of modern design and health-oriented architectural ideals.








The clean, minimalist lines of the structure, combined with its thoughtful integration into the steep hillside, create a sense of balance between the built and natural environments. Inside, the open floor plan and organized spatial arrangements create a sense of openness and hierarchy.





Embodying the principles of the International Style, the design prioritizes health and well-being by emphasizing light, air, and space, creating an environment that promotes physical wellness and overall health.
TASK: Design a spatially dynamic container that protects a sphere. The sphere should be able to easily be placed in and removed from the container. The container should exhibit properties of the sphere and be visually appealing.
In this design, the container is conceptualized using two interlocking hexagons as the main structural elements. These hexagons provide a stable framework, with their geometric configuration contributing to the container’s overall strength. Within the center of this structure, two supporting triangles are strategically placed to meet at the midpoint, effectively holding the sphere aloft. This arrangement not only ensures that the sphere is securely suspended but also enhances the visual appeal of the container by echoing the symmetry and balance inherent in the sphere itself. The integration of these geometric shapes reflects a thoughtful approach to both form and function, as the design seeks to embody the properties of the sphere within the container’s structure.
To further enhance the container’s functionality, two movable L-shaped arms are incorporated on the left and right sides. These arms, which are connected to the main structure via a wooden hooked dowel, can rotate in circular motions, allowing them to catch and grasp the sphere securely in the center. The ability of the L-shaped arms to lock into place adds an extra layer of structural support, ensuring that the sphere remains stable within the container. This dynamic interaction between the arms and the sphere not only serves a practical purpose but also adds a sense of movement and fluidity to the design, making the container a visually engaging and structurally sound solution for protecting the sphere.


: SOLO GROUP : EL LISSITZKY overview
TASK: Create a unique variation of El Lissitzky’s 1920 preliminary sketch for a poster, which exemplifies his Suprematist style and abstract approach. This involves analyzing the original sketch, which is characterized by its geometric abstraction and use of bold, contrasting shapes and colors. The goal is to reinterpret this 2D design, capturing its essential elements and translating them into a new artistic expression while adhering to the principles of Suprematism, such as the emphasis on pure geometric forms and spatial dynamics.
Once the conceptual design is established, the next phase will involve developing a three-dimensional model of the reimagined sketch. This process will require the application of 3D modeling techniques to transform the 2D abstraction into a tangible 3D form, maintaining the integrity of Lissitzky’s original visual language while exploring new spatial relationships and textures. The final 3D model will be a modern interpretation that respects the essence of Lissitzky’s Suprematist vision and demonstrates a creative adaptation of his abstract principles.
In this project, the design is anchored by a central, large triangular shape that serves as the core structural element. Positioned in the foreground is a thin, flat circle, which creates the optical illusion of a larger, thicker circle. This approach reflects the reinterpretation of 2D and 3D shapes inspired by El Lissitzky’s work, merging geometric abstraction with spatial dynamics. Surrounding these primary shapes is a halo-like rectangle that encompasses and secures the central forms, reinforcing their position and enhancing the overall composition. This design effectively bridges the gap between Lissitzky’s original 2D abstraction and a novel 3D interpretationtation.


overview
TASK: The primary objective of this project is to explore and clarify the relationship between mass and void through the deconstruction and subsequent reconstruction of a solid cube. By systematically dismantling the cube into its fundamental components, the goal is to analyze the spatial and material properties that define its structure. This process will involve a detailed examination of how the internal and external voids interact with the solid mass, revealing the intricate balance between filled space and emptiness.
Upon reassembly, the reconstructed cube will aim to visually and conceptually highlight the dynamic interplay between mass and void. This reconstruction will restore the original form, emphasizing the relationship between the solid and the empty spaces within. Through this exploration, the project seeks to deepen the understanding of geometric principles and their implications in spatial design, showcasing the significance of voids in shaping and defining solid forms.
In this project, I began by dividing the solid cube into four equal sections, meticulously analyzing the shapes that resulted from this dissection. By examining which shapes were removed from each section and which were added, I explored how the transformation of these components affected the overall structure. The goal was to create an illusion of protruding shapes, achieving a visual effect where the elements seemed to extend outward, while simultaneously maintaining a symmetrical balance between mass and void.
Through this process, I aimed to create spaces of openness within the form, effectively working with both mass and void to intertwine the objects into a cohesive main structure.

