Portafolio

Page 1

portafolio.

2021-2023
04 10 índice.
Escuela Rural Distrito Includ-em
18
Edificio Departamental
Departamentos estudiantiles Hotel Hotel 22 28 34

escuela rural.

Ubicación: Ocosingo, Chiapas.

04

Escuela Rural el cual se basa en plantear la idea del “Hombre de Maíz”, con el objetivo de que el "hombre vuelva al campo", en algún lugar rural que cuente con territorio propio en producción de esta planta ancestral que es el maíz Se ubica en Ocosingo, uno de los municipios dentro de Chiapas con mayor población indígena y mayor producción de maíz. El perfil para el proyecto son hombres y mujeres hablantes de lengua indígena que hayan terminado la secundaria y el bachillerato.

Flexibilidad de movimiento método de diseño.

1

entrelazamiento.

Permeabilidad

reflejo. 4

Crea núcleos de unión

Crea espacio central

Permeabilidad a los volúmenes ya establecidos

2 extracción.

Mantiene pauta inicial del tejido.

unión. 7

Conexión

Circulación

Unión de espacios

plano urbano ambiental.

simbología.

5 adición.

Dar mayor importancia a los núcleos de unión.

3 adición.

Crea núcleos de unión

Crea espacio central Permeabilidad a los volúmenes ya establecidos

6 rotación.

marco legal.

Seguir lineamiento para personas con capacidades distintas (estacionamiento, baños, simbología, circulaciones adecuadas)

Seguir normas de ingeniería sanitaria

Seguimiento de la verticalidad de la figura original

Se deben seguir los métodos de análisis y requisitos exigidos por las normas oficiales del diseño sísmico.

Crear conexión entre ambas áreas

Acceso al predio para peatones

Nodo positivio

Se busca hacer este punto el acceso vehicular principal

Desarrollar acceso por la parte posterior del predio para crear mas accesos peatonales

Área verde

Zona Residencial

Zona Comercial

Zona escolar

Maizales

Sendas con Banqueta

Sendas Caminables sin Banqueta

Sendas no Caminables

Predio

Cubrir requerimientos para riesgo de incendio

salones.Agricultura1.

Ganadería2.

Artesanía3.

oficinas. Front Desk 1.

Espacio de trabajo 2.

Almacén3.

Sala de juntas 4.

Sala de maestros 5.

laboratorios. Área de aprendizaje 1.

Área de limpieza 2.

Almacén3.

Área de pruebas 4.

áreas.

circulación. Espacio de exposición 1.

cafetería. Almacén1.

Cocina2.

Comedor3.

ladrillo.

biblioteca. Sección de libros 1.

Front desk 2.

Área de leer 3.

Área multitasking 4.

sala de estudio. Salas privadas 1.

Sala de juntas/ estudio 2.

Área de descanso 3.

teja. adobe.
planta arquitectónica baja.
planta arquitectónica alta.
secciones.
elevaciones.

distrito inclu-dem

Ubicación: San Pedro Garza García, Nuevo León.

10

El Distrito Includ-em consiste de una colaboración de la UDEM con el Instituto Nuevo Amanecer. Este proyecto busca encontrar soluciones aptas para la facilitación de la movilidad tanto para una persona con discapacidad como para una persona sin ella, así como mejorar la conectividad con las demás escuelas e instituciones que están alrededor. Sobre todo se busca la comodidad, seguridad y confort de quienes transitan esta zona día con día y ayudar a que este sea el corazón de la inclusión del área metropolitana de Monterrey.

Cruces peatonales

Calles a intervenir

Semáforos peatonales/vehiculares

Instituto Nuevo Amanecer Parque L. Garza Ayala Paradas de autobús Vitopista Rampa

El análisis de Sitio forma parte de cada decisión del plan maestro. Dentro de estos se encuentra las paradas, las inclinaciones en cada calle, nodos de confluencia, porcentajes de personas con discapacidad, vacíos, así como análisis de banquetas. Cada aspecto se trata de solucionar por medio de marcos legales y metodológicos de normas, manuales y reglamentos. simbología.

Masas construidas de nodos Río Santa Catarina

Paradas Inundaciones

Pendiente superior a 5% Banqueta calidad buena Banqueta calidad regular Banqueta calidad mala

Nodos de confluencia

Público Semi-privado Privado Construcciones Intersticial Vialidades

Anacua - Ehretia anacua

Encino Roble - Quercus polymorpha

Nogal de Nuez Lisa - Carya illinoinensis

Palma Sabal - Sabal mexicana

Ébano - Ebenopsis ebano

Encino Siempreverde - Quercus virginiana

2% Porcentaje de personas con discapacidad por distrito

El Distrito Includ-em se dividió en distintos nodos de concentración para su diseño y modificación de la infraestructura de la calle. Cada nodo tiene un punto estratégico que hace un cambio radical dependiendo de la necesidad de la ubicación del nodo, sobre todo para el peatón.

Rampa para entrada al Institutoyreubicaciónde parada

Rampaparasolucionar lapendiente

Intervención de calles paraentradaUdem

Calle estancial y crucespeatonales

Crucespeatonales yampliaciónde banquetas

Dog park y pocketpark

Luminaria decorativadepiso

Luminariade alumbradopúblico

Acercamiento rampapara solucionar pendiente

Parque Lázaro GarzaAyala Paradade autobús

Acercamiento rampadeacceso aNuevo Amanecerypasos pompeyanos

Edificaciones

Mobiliario urbano

Vitapista

Vegetación

Carril compartido

Estacionamiento

nodo 2.

Mesa de picnic incluyente INOPLAY

Ébano - Ebenopsis ebano

Encino SiempreverdeQuercus virginiana

Banca con jardinera con respaldo INOPLAY

Edificaciones

Mobiliario urbano

Vitapista

Vegetación

Acercamiento espacio estancial y de flujo

Edificaciones

Mobiliario urbano

Vitapista

nodo 6 .
Acercamiento de futura conexión con UDEM

edificio departamental.

Ubicación: San Pedro Garza García, Nuevo León.

18

Edificio departamental ubicado en la calle Fernando Montes de Oca. Son departamentos para estudiantes de Universidad y cuenta con distintos tipos de habitaciones, tanto individuales como dobles. El proyecto se desarrolló por medio de un estudio del análisis de sitio, como asoleamiento y vistas en su mayoría, se explicó el por que de cada fachada por medio del diagrama siguiente:

VISTA NULA material sólido N paso de luz

Vista nula

MITRAS

protección contra el sol material sólido vista iluminación natural

iluminación natural

vista iluminación natural

Protección contra el sol material sólido E S O

vista nula material sólido

Nodos vehiculares

Nodos vehiculares

Sendas primarias

Sendas secundarias

Sendas terciarias

Baldío Comercio

Habitacional

Servicio

Mixto

PARQUE FUNDIDORA

análisis de sitio. vistas.

Predio

Tejido disperso

Tejido abierto

Tejido compacto

LA SILLA

elevación norte.

sección transversal.

planta arquitectónica alta. planta arquitectónica baja.

departamentos CRGS.

Ubicación: San Pedro Garza García, Nuevo León.

22

Los Departamentos CRGS son residencias exclusivamente para estudiantes, contiene departamentos con fácil accesibilidad económica y también variedad de departamentos, ya sea para 1 o varios en un mismo departamento. Los departamentos se ajustan al terreno ya sea por la forma, los desniveles y elementos naturales como un cuerpo de agua y vegetación. El predio se ubicaenSantaCatarina,NuevoLeón,enesquinaconlasAvenidasAlfonsoReyesyJoséCalderón.

simbología.

programa arquitectónico.

Entrada peatonal

Departamentos

Departamentos

Estacionamiento nivel mas bajo del terreno

Departamentos

marco legal.

La banqueta es únicamente para peatones

Seguir lineamiento para personas con capacidadesdistintas (estacionamiento, baños, simbología, circulaciones adecuadas)

Cubrir demandas mínimas como agua potable.

Cubrir requerimientos para riesgo de incendio

Seguir normas de ingenieríasanitaria

Se deben seguir los métodosdeanálisisy requisitosexigidospor lasnormasoficialesdel diseñosísmico.

Vistas Viento Predio Ruido N S O 1 2 3 análisis geofísico. 666 m 669 m 672 m 675 m
Recorrido del sol
topografía.
Cuerpo de agua Espacios de uso público Área libre Área trabajadores

Departamentos Departamentos

Departamentos

N1/ Negocios N2/ Bodegas

N1/ Comedor N2/ Departamentos N1/ Gym N2/Área social

Estacionamiento

áreas.
planta arquitectónica baja.
planta arquitectónica alta.

sección longitudinal departamentos

elevación completa de todo el predio.

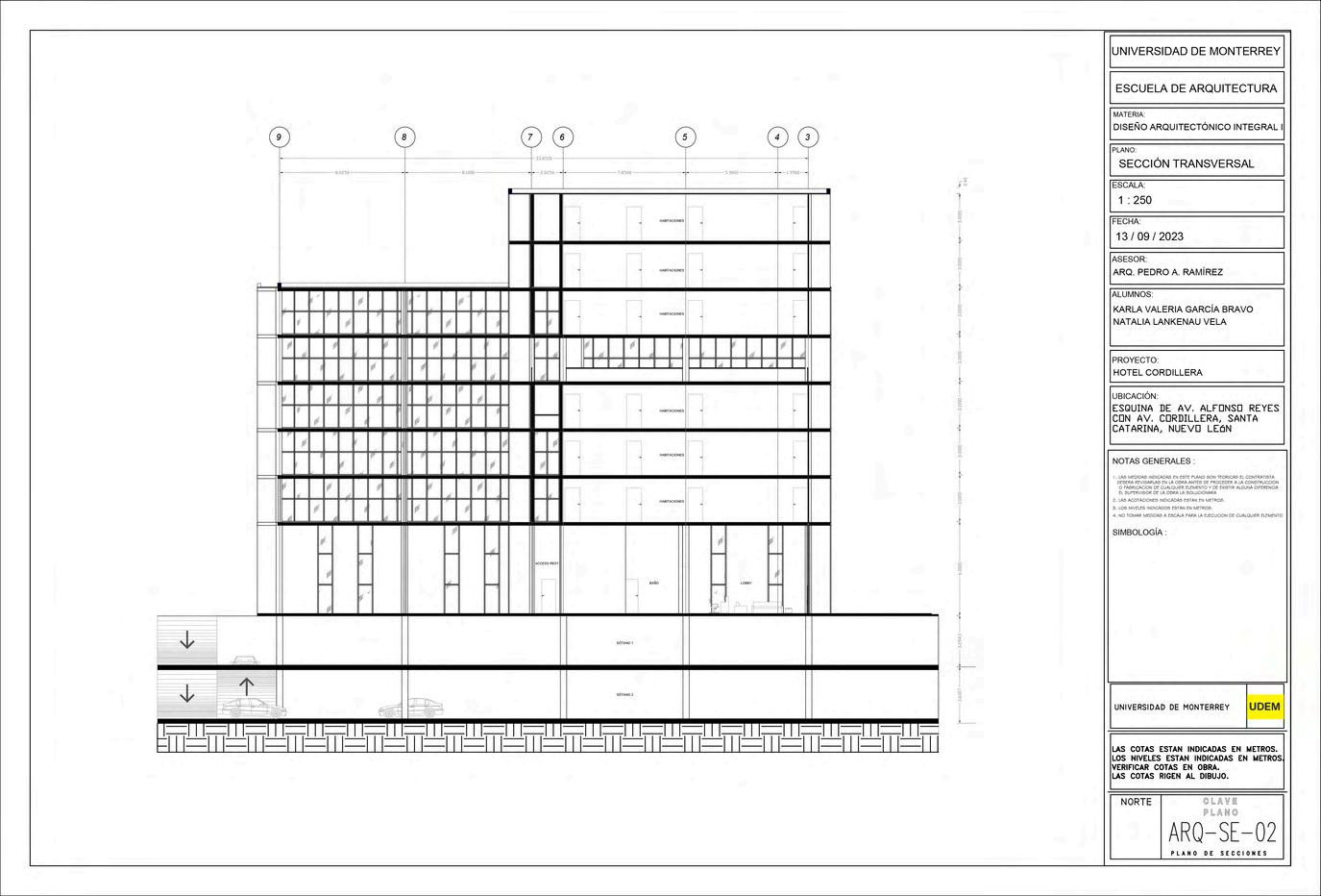
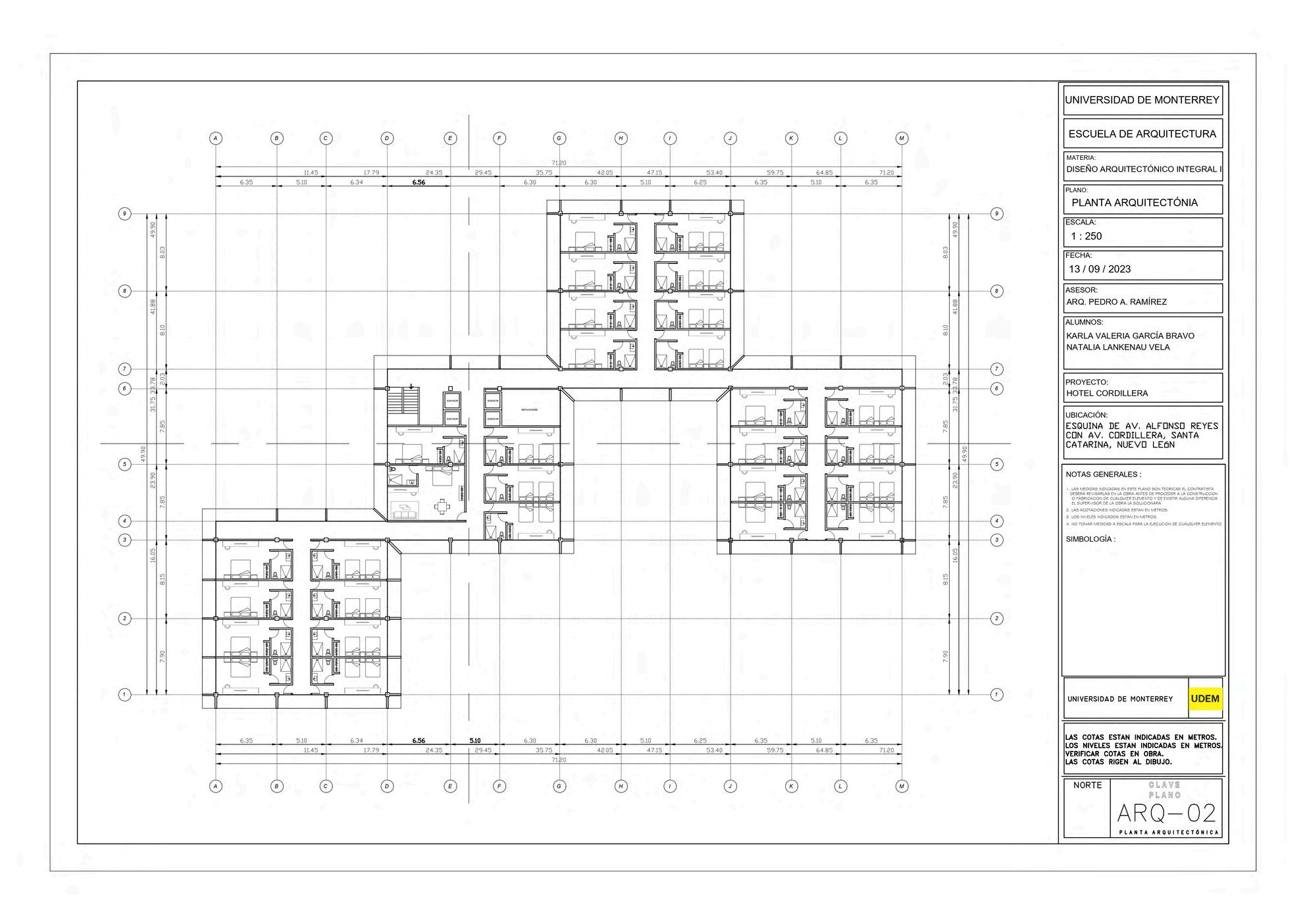
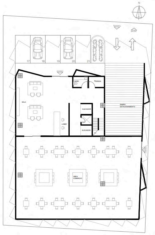
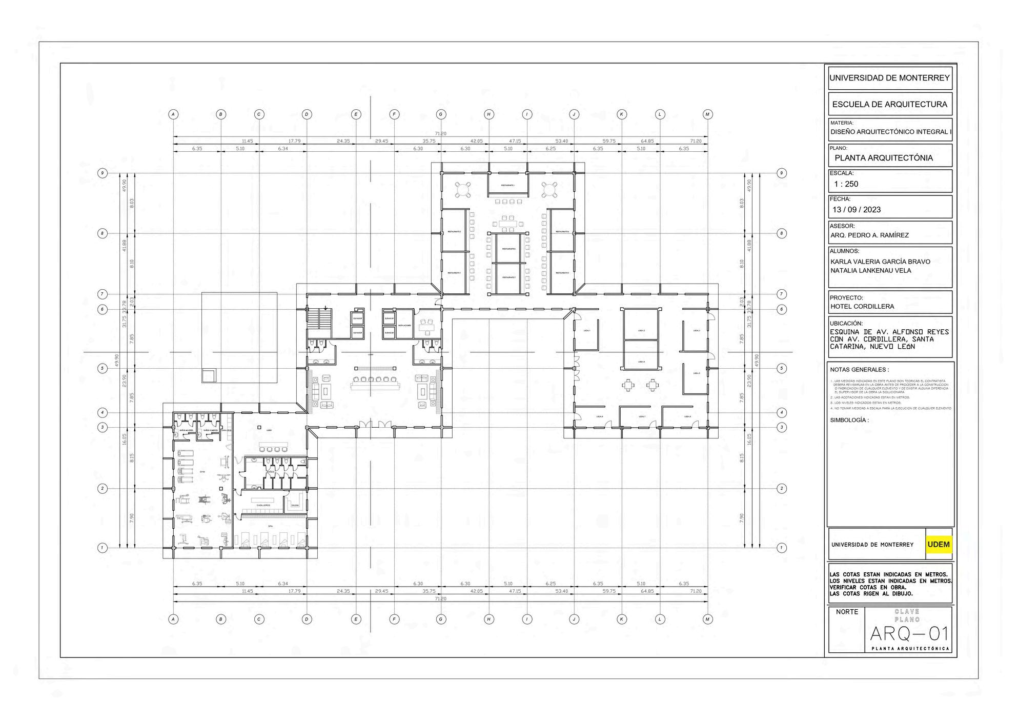
hotel cordillera.

Ubicación: San Pedro Garza García, Nuevo León.

28

Hotel Cordillera esta ubicado en la esquina de Av. Alfonso Reyes con Av. Cordillera. Son 4 edificios conjuntos escalonados con distinta altura y con una terraza en el nivel medio del conjunto. Cuenta con distintas áreas sociales y amenidades, como con restaurante abierto al público y locales comerciales en la planta baja. De igual manera se ajusta a la vegetación existente de la zona y hace conexiones directas a las dos calles principales en su entrada y salida.

Ubicación:

Esquina de Av. Alfonso Reyes con Av. Cordillera.

Perímetro: 385.1 m Área: 10,064.3 m²

COS: 0.75 máx

CAS: 0.25 (área libre) mín

CUS: 5.0, 3-15 niveles

N S O E terreno.
N S O E topografía. volumetría. análisis geofísico. N S O E Amanecer Atardecer simbología. Ruido Asoleamiento Vientos (E)
AV. ALFONSO REYES
AV.CORDILLERA
planta de conjunto.
AV.CORDILLERA

sección longitudinal.

sección transversal.
planta arquitectónica baja.
planta arquitectónica alta.

edificio co-living.

Ubicación: Monterrey, Nuevo León.

34

CentroCassa,esuninnovadoredificiode co-living enelcentrodeMonterreyqueestádestinadoa estudiantes y familias pequeñas. Los dormitorios, van desde 15 hasta 35 metros cuadrados, y se comunican a través de este jardín interior, promoviendo la conectividad entre los residentes y ofreciendo un espacio privado compartido para el descanso y la reflexión. En Centro Casa, es un lugardondesefomentaeltrabajoenconjunto,la yelintercambiodeideas.

Volumetría ortogonal del terreno.

Distintas volumetrías en el mismo terreno para darle movimiento al edificio.

Se sigue formando escalonamiento con los edificios de mayor altura.

síntesis

análisis de sitio.

NODOS:

Teatro de la Ciudad

Capilla de los Dulces Nombres

Faro de Comercio

Casino Monterrey

Museo Metropolitano

Condominio Acero

Catedral Metropolitana

Museo de Arte Contemporáneo

Palacio Municipal

SENDAS:

Sendas Primarias

Sendas Secundarias

Sendas Terciarias

Predio

Nodos vehiculares positivo

USO DE SUELO:

Servicio Comercio

Vivienda

Área verde

ANÁLISIS GEOFÍSICO:

Viento

Ruido

Asoleamiento

Se forma un patio interior.

Escalonamiento para mejorar la vista entre un edificio a otro, y darle movimiento a la volumetría.

Para la fachada y entrada fácil al edificio, un edificio de solo un nivel, seguido de otro edificio con dos

Se forma un edificio más alto para darle jerarquía a la parte trasera, asimismo se forma un último escalonamiento.

planta arquitectónica.
elevación. corte.
planta arquitectónica.
elevación. corte.
gracias.

Turn static files into dynamic content formats.

Create a flipbook
Issuu converts static files into: digital portfolios, online yearbooks, online catalogs, digital photo albums and more. Sign up and create your flipbook.