UPN Taller de Arquitectura 4 Analisis de Casos Nacionales - La Victoria, Sector 5

Page 1

MULTIFAMILIAR T A L L E R D E D I S E Ñ O I V MG ARQ OMAR WINCHO CH LQU LLO DOCENTES: MG ARQ MARICIELO BRENIS GUITARRA GRUPO
CHUMBILE
ANÁLISIS DE CASOS ARQUITECTÓNICOS DE PROYECTO DE VIVIENDA
#2:
HUAMAN NICOLE BARBA MARTÍNEZ NADELY MEGA GOMEZ RODR GUEZ DAYELI CASTRO VILLAREAL BRUNO ALONSO KARLA JUD TH FLORES HUAMANI

I. DEFINICIÓN DE VIVIENDAS

II. INTRODUCCION

III. PROBLEMATICA DEL TEMA

IV. OBJETIVO DE LA INVESTIGACION

V JUSTIFICACION DEL TEMA

VI. MARCO CONCEPTUAL

VII. CASOS ANALOGOS

02

EDIFICIO SANCTUM 03

1. ANALISIS CONTEXTUAL

2. ANÁLISIS DEL USUARIO

3. ANÁLISIS FORMAL VOLUMÉTRICO

4. ANÁLISIS FUNCIONAL – ESPACIAL

5. ANÁLISIS TÉCNICO CONSTRUCTIVO

1. ANALISIS CONTEXTUAL

2. ANÁLISIS DEL USUARIO

3 ANÁLISIS FORMAL VOLUMÉTRICO

4. ANÁLISIS FUNCIONAL – ESPACIAL

EDIFICIO HUALLAMARCA 04

5. ANÁLISIS TÉCNICO CONSTRUCTIVO

EDIFICIO AJAX-HISPANIA 05

1. ANALISIS CONTEXTUAL

2 ANÁLISIS DEL USUARIO

3. ANÁLISIS FORMAL VOLUMÉTRICO

4. ANÁLISIS FUNCIONAL – ESPACIAL

5. ANÁLISIS TÉCNICO CONSTRUCTIVO

EDIFICIO ALICANTE, 06

1. ANALISIS CONTEXTUAL

2 ANÁLISIS DEL USUARIO

3. ANÁLISIS FORMAL VOLUMÉTRICO

4. ANÁLISIS FUNCIONAL – ESPACIAL

5. ANÁLISIS TÉCNICO CONSTRUCTIVO

EDIFICIO SEKONDA

1. ANALISIS CONTEXTUAL

2 ANÁLISIS DEL USUARIO

3. ANÁLISIS FORMAL VOLUMÉTRICO

4. ANÁLISIS FUNCIONAL – ESPACIAL

5. ANÁLISIS TÉCNICO CONSTRUCTIVO

TALLER DE ARQUITECTURA 4 ANAL SIS DE CASOS D STRITO DE MIRAFLORES MG ARQ OMAR WINCHO CHILQUILLO DOCENTES: MG ARQ MAR CIELO BRENIS GUITARRA GRUPO #2: CHUMBILE HUAMAN NICOLE BARBA MARTÍNEZ NADELY MEGA INDICE 01
GOMEZ RODRIGUEZ DAYELI CASTRO VILLAREAL BRUNO ALONSO KARLA JUDITH FLORES HUAMAN

INTEGRANTES:

Arquitectura y diseño de interiores

Soy estudiante de arquitectura y diseño de 4° semestre de la UPN , actualmente tengo 18 años y busco desenvolverme en diferentes áreas de la arquitectura .

Una de mis mayores habilidades es la diagramación y manejo programas como cad, skp,ilustrator y twimotion.

Nadely Barba Martinez

Arquitectura y Urbanismo

Soy estudiante de arquitectura y urbanismo de 6° semestre de la UPN , actualmente tengo 22 años y busco desenvolverme en diferentes

áreas de la arquitectura .

Una de mis mayores habilidades es la digitalización

Arquitectura y diseño de interiores

Soy estudiante de arquitectura y diseño de 5° semestre de la UPN , actualmente tengo 19 años y busco explotar mi capacidad creativa.

Una de mis mayores habilidades es el manejo de cad

Arquitectura y Urbanismo

Soy estudiante de arquitectura y diseño de 5° semestre de la UPN , actualmente tengo 22 años.

Unas de mis mayores habilidades es el manejo de planos a mano y la distribución de espacios, así complementando también con las maquetas a mano.

Arquitectura y diseño de interiores

Soy estudiante de arquitectura y diseño de 5° semestre de la UPN , actualmente tengo 19 años.

Unas de mis mayores habilidades es el manejo de planos a CAD y la distribución de interiores.

NIicole Chumbile Huaman
TALLER DE ARQUITECTURA 4 ANAL SIS DE CASOS MG ARQ OMAR WINCHO CHILQUILLO DOCENTES: MG ARQ MARICIELO BRENIS GUITARRA GRUPO #2: CHUMBILE HUAMAN NICOLE BARBA MART NEZ NADELY MEGA
Dayeli Gomez Rodriguez GOMEZ RODRIGUEZ DAYELI CASTRO V LLAREAL BRUNO ALONSO
KARLA
JUDITH FLORES HUAMAN Bruno Castro Villareal Karla Flores Huamaní

I.DEFINICIÓN DE VIVIENDAS

La vivienda es el lugar cerrado y cubierto que se construye para que sea habitado por personas. Este tipo de edificación ofrece refugio a los seres humanos y les protege de las condiciones climáticas adversas, además de proporcionarles intimidad y espacio para guardar sus pertenencias y desarrollar sus actividades cotidianas

TIPOS

Flat

La vivienda ocupa la totalidad de una planta de la edificación.

Dúplex Dos pisos están superpuestos y conectados a través de una escalera.

Loft

este tipo de viviendas en auge destacan por no tener las tradicionales separaciones entre estancias.

CLASIFICACION

Complejos multifamiliares

Estas son construcciones que pueden ser verticales u horizontales, edificadas en un mismo terreno y en su mayoría es habitada por los dueños de cada inmueble.

Casa multifamiliar

La casa multifamiliar está teniendo gran auge ya que si comparamos una vivienda unifamiliar y multifamiliar, resulta mucho más económico compartir el espacio con más personas.

Edificio multifamiliar

Estos espacios son edificios verticales en los que se comparte piso con más departamentos, en su mayoría son inmuebles en renta.

TALLER DE ARQUITECTURA 4 ANAL SIS DE CASOS D STRITO DE MIRAFLORES MG ARQ OMAR WINCHO CHILQUILLO DOCENTES: MG ARQ MAR CIELO BRENIS GUITARRA GRUPO #2: CHUMBILE
MEGA
HUAMAN NICOLE BARBA MARTÍNEZ NADELY
GOMEZ RODRIGUEZ DAYELI CASTRO VILLAREAL BRUNO ALONSO KARLA JUDITH FLORES HUAMAN

II.INTRODUCCION

La presente investigación ofrece el análisis de viviendas multifamiliares desde una perspectiva crítica. La vivienda como núcleo de la sociedad a visto con el paso de los años cambios en la forma de desarrollar los proyectos de vivienda en las ciudades actuales, donde prima el bienestar individual y la economía del proyecto y, a pesar de los cambios en las familias dichas unidades habitacionales continúan con el mismo enfoque, produciendo un híbrido inmanejable que no atiende a las necesidades reales.

TALLER DE ARQUITECTURA 4 ANAL SIS DE CASOS D STRITO DE MIRAFLORES MG ARQ OMAR WINCHO CHILQUILLO DOCENTES: MG ARQ MAR CIELO BRENIS GUITARRA
GRUPO #2: CHUMBILE HUAMAN NICOLE BARBA MARTÍNEZ NADELY MEGA
GOMEZ RODRIGUEZ DAYELI CASTRO VILLAREAL BRUNO ALONSO KARLA JUDITH FLORES HUAMAN

La investigación pretende analizar la problemática en torno al edificio de vivienda multifamiliar contemporáneo en el Perú. Estas viviendas se integran principalmente en bloques: cuando son edificios de pocas alturas, o en torres: cuando las viviendas forman parte de construcciones de 10 pisos o más. En cualquier caso, las viviendas multifamiliares se agrupan y comparten servicios y bienes referentes a escaleras y ascensores, bajantes de basura y acometidas de servicios, entre otros, pero siguen manteniendo la privacidad en la convivencia en el interior de cada unidad de vivienda.

Las propiedades multifamiliares también pueden ser propiedades ocupadas por el propietario. Las propiedades ocupadas por el propietario se refieren a una propiedad que alquilas y vives en ella, lo que también se conoce como pirateo de casas. Los ingresos que obtienen de los inquilinos pueden ayudar a pagar la hipoteca de la propiedad. Ser propietario de un inmueble multifamiliar es estupendo para construir tu cartera, el flujo de caja, el patrimonio y los ingresos por alquiler

TALLER DE ARQUITECTURA 4 ANAL SIS DE CASOS D STRITO DE MIRAFLORES MG ARQ OMAR WINCHO CHILQUILLO DOCENTES: MG ARQ MAR CIELO BRENIS GUITARRA GRUPO #2: CHUMBILE HUAMAN
BARBA MARTÍNEZ NADELY MEGA
NICOLE
III.PROBLEMATICA DEL TEMA
GOMEZ RODRIGUEZ DAYELI CASTRO VILLAREAL BRUNO ALONSO KARLA JUDITH FLORES HUAMAN

IV.OBJETIVO DE LA INVESTIGACION

Analizar los casos de viviendas nacionales e internacionales, por que estas viviendas son fundamentales para las familias ya que ofrecen servicios basicos, escalera de emergencia , bajante de basura, espacios comodos para los usuarios tanto dentro de la residencia, como por fuera, ya que reguralmente las construyen cerca de areas verdes con acceso a todo público.

Identificar las caracteristicas de los casos de vivienda multifamilar, analizando su sitio, usuario, forma, función e instalalciones para sus servicios. Con el fin de insertivar a las familias que esten en viviendas precarias, piensen en habitar una vivienda multifamiliar, la cual le garantizara para beneficios por sus servicios y bienestar.

TALLER DE ARQUITECTURA 4 ANAL SIS DE CASOS D STRITO DE MIRAFLORES MG ARQ OMAR WINCHO CHILQUILLO DOCENTES: MG ARQ MAR CIELO BRENIS GUITARRA GRUPO #2: CHUMBILE HUAMAN
BARBA MARTÍNEZ NADELY MEGA
NICOLE
GOMEZ RODRIGUEZ DAYELI CASTRO VILLAREAL BRUNO ALONSO KARLA JUDITH FLORES HUAMAN

V.JUSTIFICACION DEL TEMA

La investigación propuesta se enfocará en estudiar las viviendas multifamiliares a traves de casos nacionales e internacionales, ya que fueron desarrollados como una alternativa para sustituir a la vivienda precaria de bajos recursos. El trabajo ,presentara el analisis de 20 casos de estas viviendas, asi mismo reflejando las comodidad que ellas ofrecen para la población

TALLER DE ARQUITECTURA 4 ANAL SIS DE CASOS D STRITO DE MIRAFLORES MG ARQ OMAR WINCHO CHILQUILLO DOCENTES: MG ARQ MAR CIELO BRENIS GUITARRA GRUPO #2: CHUMBILE
BARBA MARTÍNEZ NADELY MEGA
HUAMAN NICOLE
KARLA JUDITH FLORES HUAMAN GOMEZ RODRIGUEZ DAYELI CASTRO VILLAREAL BRUNO ALONSO

VII. ANÁLISIS DE CASOS ANÁLOGOS

EDIFICIO MULTIFAMILIAR SANCTUM

SAN

ISIDRO, LIMA, PERÚ

Arq. Mauricio Lertora/ Arq. Eduardo Chuecas

UBICACION EMPLAZAMIENTO

Este terreno tiene como limites:

Por el norte: Swissotel Lima

Por el sur: Lima Golf Club

Por el este: Embajada de Argelia

Por el oeste: Camino Real

TOPOGRAFIA CLIMA

Este terreno se encuentra ubicado a 109 msnm

POSICIONAMIENTO

Este proyecto se encuentra apoyado en el terreno, el cual cuenta con una área de 569.33 m2

Esta zona se caracteriza por presentar un clima templado

El viento es ligero y la humedad es alta, especialmente en la tarde y noche

La temperatura media anual de 17º centígrados, máxima de 28º y mínima de 13º

EQUIPAMIENTO

MUSEO SITIO HUALLAMARCA

VIAS VEHICULAS -PEATONALES

N O R T E E S T E O E S T E S U R
TALLER DE ARQUITECTURA 4 ANAL SIS DE CASOS D STRITO DE MIRAFLORES MG ARQ OMAR WINCHO CHILQUILLO DOCENTES: MG ARQ MAR CIELO BRENIS GUITARRA GRUPO #2: CHUMBILE HUAMAN NICOLE BARBA MARTÍNEZ NADELY MEGA
ANALISIS CONTEXTUAL 1.
SAN ISIDRO
LIMA GOLF CLUB EDIFICIO SANCTUM PARQUE EL OLIVAR KARLA JUDITH FLORES HUAMANI GOMEZ RODRIGUEZ DAYELI CASTRO VILLAREAL BRUNO ALONSO

EXKLUSIV es una inmobiliaria que nació en el año 2015, quien gracias a su directivo Carlos Pareja quien decidió empezar esta gran aventura como una nueva alternativa a los estándares actuales

Preocupándose siempre de un servicio exclusivo a nuestros clientes, permitiéndoles personalizar sus inmuebles y así crear tu Hogar a tu Gusto . Él junto a su selecto equipo de profesionales, cuidarán al máximo tus detalles con los más altos estándares de calidad.

Buscan desarrollar proyectos innovadores, donde nuestros clientes sientan que han adquirido un hogar hecho a su medida, en los distritos más exclusivos de Lima.

ANTROPOMETRIA

TALLER DE ARQUITECTURA 4 ANAL SIS DE CASOS D STRITO DE MG ARQ OMAR WINCHO CHILQUILLO DOCENTES: MG ARQ MAR CIELO BRENIS GUITARRA GRUPO #2: CHUMBILE HUAMAN NICOLE BARBA MARTÍNEZ NADELY MEGA
2. ANALISIS
KARLA JUD
DE USUARIO
TH
FLORES HUAMANI GOMEZ RODRIGUEZ DAYELI CASTRO VILLAREAL BRUNO ALONSO

3. ANALISIS FORMAL VOLUMETRICO

El terreno donde se edificó el proyecto tiene un área de 569.33m2 con 18.40 m de frente y una capacidad edificable de 4.7 veces el área del terreno.

La fachada del edificio es un reflejo de la distribución interior, así los dúplex cuentan terrazas en doble altura y unos volúmenes girados que sobresalen en el segundo piso y las flats son grandes vanos horizontales al lado izquierdo de la fachada.

Se construyó en total 4770.91m2 8 pisos mas azotea y tres sótanos para los estacionamientos.

Se optó por hacer un flat de 200.00m2 y un dúplex ocupando en el primer piso poco más de 100.00m2. Así tenemos un total de ocho flats y cinco dúplex en todo el proyecto.

TALLER DE ARQUITECTURA 4 ANAL SIS DE CASOS D STRITO DE MG ARQ OMAR WINCHO CHILQUILLO DOCENTES: MG ARQ MAR CIELO BRENIS GUITARRA GRUPO
#2: CHUMBILE HUAMAN NICOLE BARBA MARTÍNEZ NADELY MEGA
KARLA JUDITH FLORES HUAMAN GOMEZ RODRIGUEZ DAYELI CASTRO VILLAREAL BRUNO ALONSO

4.

ANALISIS FUNCIONAL

TALLER DE ARQUITECTURA 4 ANAL SIS DE CASOS D STRITO DE MG ARQ OMAR WINCHO CHILQUILLO DOCENTES: MG ARQ MAR CIELO BRENIS GUITARRA GRUPO #2: CHUMBILE HUAMAN
NICOLE BARBA MARTÍNEZ NADELY MEGA
KARLA JUDITH FLORES HUAMAN GOMEZ RODRIGUEZ DAYELI CASTRO VILLAREAL BRUNO ALONSO

5. ANALISIS TECNICO CONSTRUCTIVO

La elección de los acabados y materiales de la fachada se opto para tener un mantenimiento mínimo y una expresión lo más real posible: concreto caravista, enchapes de mármol, acero corten y vidrios templados con carpintería de cierre hermético en aluminio.

CONCRETO CARAVISTA

TALLER DE ARQUITECTURA 4 ANAL SIS DE CASOS D STRITO DE MG ARQ OMAR WINCHO CHILQUILLO DOCENTES: MG ARQ MAR CIELO BRENIS GUITARRA GRUPO #2: CHUMBILE HUAMAN NICOLE BARBA MARTÍNEZ NADELY MEGA
ENCHAPES DE MÁRMOL VIDRIOS TEMPLADOS
KARLA JUD TH
ACERO CORTEN
FLORES HUAMANI GOMEZ RODRIGUEZ DAYELI CASTRO VILLAREAL BRUNO ALONSO

EDIFICIO MULTIFAMILIAR ALICANTE

LIMA,
Sandro Moro
MIRAFLORES,
PERÚ Arq.

ANALISIS CONTEXTUAL 1.

Este terreno tiene como limites:

Por el norte: San Isidro

Por el sur: Barranco

Por el este: Villa Estela

Por el oeste: La castellana

TOPOGRAFIA CLIMA

Este terreno se encuentra ubicado a 80 msnm

POSICIONAMIENTO

Este proyecto se encuentra apoyado en el terreno, el cual cuenta con una área de 710.49 m2

Esta zona se caracteriza por presentar un clima templado

El viento es ligero y la humedad es alta, especialmente en la noche

La temperatura media anual de 18º centígrados, máxima de 30º y mínima de 12º

EQUIPAMIENTO

VIAS VEHICULAS -PEATONALES

N O R T E E S T E O E S T E S U R TALLER DE ARQUITECTURA 4 ANAL SIS DE CASOS D STRITO DE MIRAFLORES MG ARQ OMAR WINCHO CHILQUILLO DOCENTES: MG ARQ MAR CIELO BRENIS GUITARRA GRUPO #2: CHUMBILE HUAMAN
BARBA MARTÍNEZ
NICOLE
NADELY MEGA
UBICACION EMPLAZAMIENTO
GOMEZ RODRIGUEZ DAYELI CASTRO VILLAREAL BRUNO ALONSO KARLA JUDITH FLORES HUAMAN

BECAMM es una empresa inmobiliaria fundada por un grupo de buenos amigos, empresarios y arquitectos que vienen trabajando en Lima desde el año 2004

Es una empresa que busca participar del desarrollo de la ciudad de Lima, integrando sus obras al espacio urbano con criterios arquitectónicos de vanguardia y lograr ofrecer hogares y oficinas que optimicen al máximo el uso del área construida.

Nos interesa como prioridad darle un buen trato al cliente y ayudar a maximizar su inversión Esto implica tanto el cumplimiento total de los acuerdos, como la flexibilidad necesaria para lograr la satisfacción total de quien adquiere un hogar u oficina.

ANTROPOMETRIA

TALLER DE ARQUITECTURA 4 ANAL SIS DE CASOS D STRITO DE MG ARQ OMAR WINCHO CHILQUILLO DOCENTES: MG ARQ MAR CIELO BRENIS GUITARRA GRUPO #2: CHUMBILE HUAMAN NICOLE BARBA MARTÍNEZ NADELY MEGA
2. ANALISIS
DE USUARIO
KARLA JUDITH FLORES HUAMAN GOMEZ RODRIGUEZ DAYELI CASTRO VILLAREAL BRUNO ALONSO

3. ANALISIS FORMAL VOLUMETRICO

Al tener un terreno en forma de L se plantean flats y duplex para poder sacar provecho a esta configuración de terreno.

El frente de la fachada es estrecho, se planteo dos departamentos hacia ese frente: un flat de 1 dormitorio y otro flat mas grande de dos dormitorios.

Hacia atrás la parte mas ancha del terreno se plantearon 4 pozos de luz para mantener las diferentes áreas de los departamentos planteados bien iluminadas. De esa manera se tiene un duplex y un flat de dos dormitorios en esa zona.

El sexto nivel repite una configuración similar a los anteriores pisos, con la diferencia de contar con el primer nivel de un departamento triplex.

El séptimo nivel con un área techada de 452.42 m2, cuenta con los primeros niveles de 3 dúplex, y el segundo del triplex los cuales cuentan cada uno con últimos niveles en azotea con terrazas y con áreas destinadas al uso de estar, BBQ, áreas verdes y zona de servicio.

El edificio se une al perfil urbano de la cuadra , manteniéndose un perfil homogéneo, para generar algo de movimiento las terrazas de uno de los departamentos que han hacia fachada se desalinean con este perfil generándose terrazas en trapecio.

TALLER DE ARQUITECTURA 4 ANAL SIS DE CASOS D STRITO DE MG ARQ OMAR WINCHO CHILQUILLO DOCENTES: MG ARQ MAR CIELO BRENIS GUITARRA GRUPO #2: CHUMBILE HUAMAN NICOLE BARBA MARTÍNEZ NADELY MEGA
GOMEZ RODRIGUEZ DAYELI CASTRO VILLAREAL BRUNO ALONSO KARLA JUDITH FLORES HUAMAN GOMEZ RODRIGUEZ DAYELI CASTRO VILLAREAL BRUNO ALONSO

4. ANALISIS FUNCIONAL

TALLER DE ARQUITECTURA 4 ANAL SIS DE CASOS D STRITO DE MG ARQ OMAR WINCHO CHILQUILLO DOCENTES: MG ARQ MAR CIELO BRENIS GUITARRA GRUPO #2: CHUMBILE HUAMAN
MARTÍNEZ
NICOLE BARBA
NADELY MEGA
KARLA
GOMEZ RODRIGUEZ DAYELI CASTRO VILLAREAL BRUNO ALONSO JUDITH FLORES HUAMAN

5. ANALISIS TECNICO CONSTRUCTIVO

La elección de los acabados de la fachada se opto por materiales resistentes al paso del tiempo principalmente: ladrillo rococho y vigas metálicas. Las paredes se han acabado en microcemento y las jardineras en terrazo oscuro.

ladrillo rocochoes

vigas metalicas

jardineras

paredes de microcemento

terraza

barandas de vidrio

TALLER DE ARQUITECTURA 4 ANAL SIS DE CASOS D STRITO DE MG ARQ OMAR WINCHO CHILQUILLO DOCENTES: MG ARQ MAR CIELO BRENIS GUITARRA GRUPO #2: CHUMBILE HUAMAN NICOLE BARBA MARTÍNEZ NADELY MEGA
KARLA
JUDITH FLORES HUAMAN GOMEZ RODRIGUEZ DAYELI CASTRO VILLAREAL BRUNO ALONSO

EDIFICIO MULTIFAMILIAR SEKONDA

SANTIAGO DE SURCO, LIMA, PERÚ

UBICACION EMPLAZAMIENTO

Este terreno tiene como limites:

Por el norte: Ate / La Molina

Por el sur: Chorrillos

Por el este: San Juan de Miraflores

Por el oeste: Surquillo/ Miraflores

VIAS VEHICULAS -PEATONALES TOPOGRAFIA

Este terreno se encuentra ubicado a 72 msnm

POSICIONAMIENTO

Este proyecto se encuentra apoyado en el terreno, el cual cuenta con una área de 627.63 m2

CLIMA

Esta zona se caracteriza por presentar un árido. La temperatura durante el día es de cálida.

El viento es ligero y la humedad es alta, especialmente en la noche

La temperatura media anual de 21º

ACCESIBILIDAD

N O R T E E S T E O E S T E S U R TALLER DE ARQUITECTURA 4 ANAL SIS DE CASOS D STRITO DE MG ARQ OMAR WINCHO CHILQUILLO DOCENTES: MG ARQ MAR CIELO BRENIS GUITARRA GRUPO #2: CHUMBILE HUAMAN NICOLE BARBA MARTÍNEZ NADELY MEGA
ANALISIS CONTEXTUAL
SANT AGO DE SURCO
KARLA
GOMEZ RODR GUEZ DAYELI CASTRO VILLAREAL BRUNO ALONSO
JUD TH FLORES HUAMANI
Panamericana Sur Av Primavera

PRINCIPIOS ORGANIZADORES

El encargo fue proyectar departamentos de tres dormitorio con la menor área posible aprovechando al máximo la edificabilidad del terreno

Redujeron el área libre especificada en el certificado de parámetros, colocando un muro verde o jardín vertical visible exteriormente mostrado en el diseño

RITMO

Utiliza modelos recurrentes que organizan una serie similares

SIMETRIA

Presenta simetria que al presenciar el diseño se nota la igualdaden ambos lados.

TALLER DE ARQUITECTURA 4 ANAL SIS DE CASOS D STRITO DE MG ARQ OMAR WINCHO CHILQUILLO DOCENTES: MG ARQ MAR CIELO BRENIS GUITARRA GRUPO #2:
CHUMBILE HUAMAN NICOLE BARBA MARTÍNEZ NADELY MEGA
ANALISIS FORMAL VOLUMETRICO
GOMEZ RODR GUEZ DAYELI CASTRO VILLAREAL BRUNO ALONSO KARLA JUDITH FLORES HUAMAN
TALLER DE ARQUITECTURA 4 ANAL SIS DE CASOS D STRITO DE MG ARQ OMAR WINCHO CHILQUILLO DOCENTES: MG ARQ MAR CIELO BRENIS GUITARRA
CHUMBILE
GRUPO #2: ANALISIS FUNCIONAL
HUAMAN NICOLE BARBA MARTÍNEZ NADELY MEGA KARLA JUDITH FLORES HUAMAN
GOMEZ RODR GUEZ DAYELI CASTRO VILLAREAL BRUNO ALONSO

ANALISIS TECNICO CONSTRUCTIVO

La elección de los acabados de la fachada se opto por materiales resistentes al paso del tiempo principalmente: ladrillo rococho y vigas metálicas. Las paredes se han acabado en microcemento y las jardineras en terrazo oscuro.

MÓDULO MÉTRICO

FORMA: Rectangular

MATERIALIDAD

ILUMINACIÓN Y VENTILACIÓN

Debido a la orientación del terreno el sol muere directamente hacia la fachada principal, es por esto que para disminuir el impacto de los rayos solares se retrocedieron las ventanas del plomo de la fachada, creando así una pasarela frontal la cual da oportunidad de contar con balcones y jardineras así como de dar sombra a los ambientes ubicados hacia la parte frontal

barandas de vidrio

TALLER DE ARQUITECTURA 4 ANAL SIS DE CASOS D STRITO DE MG ARQ OMAR WINCHO CHILQUILLO DOCENTES: MG ARQ MAR CIELO BRENIS GUITARRA GRUPO #2:
CHUMBILE HUAMAN
MARTÍNEZ NADELY MEGA
NICOLE BARBA
GOMEZ RODR GUEZ DAYELI CASTRO VILLAREAL BRUNO ALONSO KARLA JUDITH FLORES HUAMAN

ERGONOMÍA DE LA VIVIENDA CARACTERISTICAS DEL USUARIO

Es una zona exclusiva de parques:

Se conecta con varios distritos: San Isidro, Miraflores y La Molina. Por ende, los centros de labores estarán a escasos minutos.

Es de fácil acceso

Cuenta con espacios turísticos: Entre los que destacan se encuentra el Parque de la Amistad, el Museo Aeronáutico del Perú, la Plazuela de la Vendimia, entre otros.

Tiene Centros comerciales: Jockey Plaza, Centro comercial El Polo, Centro comercial Chacarilla, etc.

ANTROPOMETRIA

TALLER DE ARQUITECTURA 4 ANAL SIS DE CASOS D STRITO DE MG ARQ OMAR WINCHO CHILQUILLO DOCENTES: MG ARQ MAR CIELO BRENIS GUITARRA GRUPO #2: ANALISIS DE USUARIO CHUMBILE HUAMAN NICOLE BARBA MARTÍNEZ NADELY MEGA
KARLA JUDITH FLORES HUAMAN GOMEZ RODR GUEZ DAYELI CASTRO VILLAREAL BRUNO ALONSO

EDIFICIO MULTIFAMILIAR AJAX SAN ISIDRO, LIMA, PERÚ

EMILIO SOYER NASH

NOMBRE DEL PROYECTO:

AJAX HISPANIA

UBICACIÓN:

Lima Peru, San Isidro Alfredo Salazar 615

AÑO DEL PROYECTO: 1980

CONSTRUCCIÓN: 1983

ÁREA CONSTRUÍDA:

1818,15 m2

PISOS: 6 pisos

SOTANOS: 1 sótano

RESPONSABLE DEL PROYECTO: EMILIO SOYER NASH

TALLER DE ARQUITECTURA 4 ANAL SIS DE CASOS D STRITO DE MG ARQ OMAR WINCHO CHILQUILLO DOCENTES: MG ARQ MAR CIELO BRENIS GUITARRA GRUPO
CHUMBILE HUAMAN NICOLE BARBA MARTÍNEZ NADELY MEGA
CASTRO VILLAREAL
ALONSO San Isidro KARLA JUDITH FLORES
#2:
GOMEZ RODR GUEZ DAYELI
BRUNO
HUAMAN

UBICACION EMPLAZAMIENTO

VIAS VEHICULAS -PEATONALES

TOPOGRAFIA

Este terreno se encuentra ubicado a 107 msnm

C Miguel Dasso

C. Victor Maúrtua

SAN ISIDRO

Norte: Lince

Este: San Borja

Oeste: San Miguel

Sur: Surquillo

POSICIONAMIENTO

Este proyecto se encuentra apoyado en el terreno, el cual cuenta con una área de 679 m ²

C. Mariscal Blas Cerdeña

C. Victor Maúrtua

C. Alfredo Salazar

C Francisco Eguiguren

EQUIPAMIENTO

CLIMA

Esta zona se caracteriza por presentar un clima caluroso, bochornoso

Ventoso y la humedad es alta, especialmente en la noche

La temperatura media anual de 25º centígrados, máxima de 27º y mínima de 21º

LARCOMAR

PARQUE ALAYZA GRUNDY

TERRENO

HUACA PUCLLANA

N O R T E E S T E O E S T E S U R TALLER DE ARQUITECTURA 4 ANAL SIS DE CASOS D STRITO DE MG ARQ OMAR WINCHO CHILQUILLO DOCENTES: MG ARQ MAR CIELO BRENIS GUITARRA GRUPO
CHUMBILE HUAMAN NICOLE BARBA MARTÍNEZ NADELY MEGA
#2: ANALISIS CONTEXTUAL
GOMEZ
RODR GUEZ DAYELI CASTRO VILLAREAL BRUNO ALONSO
F R E N T E E N T R A D A L A T E R A L
San Isidro
KARLA JUDITH FLORES HUAMAN

EMILIO SOYER NASH

Emilio Soyer Nash, es un gran arquitecto peruano fue Ganador del primer Hexágono de Oro en la Bienal de Arquitectura del Perú de 1970 y del Premio Chavín en el año 1972, el arquitecto peruano Emilio Soyer Nash mantiene una vasta producción de proyectos construidos entre los que destacan viviendas unifamiliares, multifamiliares y edificios institucionales.

Buscó conectar la cultura peruana con el lenguaje universal al igual que su arquitectura busca integrar el espacio físico y el humano a través del diseño de volúmenes limpios que se componen en referencia al pasado prehispánico.

Con referente al proyecto AJAX este proyecto es de 1980 y la construcción fue en 1983

TALLER DE ARQUITECTURA 4 ANAL SIS DE CASOS D STRITO DE MG ARQ OMAR WINCHO CHILQUILLO DOCENTES: MG ARQ MAR CIELO BRENIS GUITARRA GRUPO #2: ANALISIS DE USUARIO CHUMBILE HUAMAN NICOLE BARBA MARTÍNEZ NADELY MEGA
Isidro
GOMEZ RODRIGUEZ DAYELI CASTRO V LLAREAL BRUNO ALONSO
San
KARLA JUDITH FLORES HUAMAN

INSPIRACIÓN

TRANSFORMACIÓN Sustracción

EJE la escalera principal

SIMETRÍA La escalera principal

ascensor

FORMA: Trapecio

ANAL SIS DE CASOS TALLER DE ARQUITECTURA 4 D STRITO DE MG ARQ OMAR WINCHO CHILQUILLO DOCENTES: MG ARQ MAR CIELO BRENIS GUITARRA GRUPO #2:
CHUMBILE HUAMAN NICOLE BARBA MARTÍNEZ NADELY MEGA
ANALISIS FORMAL VOLUMÉTRICO
GOMEZ
CASTRO V
San Isidro KARLA JUDITH FLORES
RODRIGUEZ DAYELI
LLAREAL BRUNO ALONSO
HUAMANI

7 5 6 1 3 2 4

ANALISIS FUNCIONAL

Cocina Comedor Sala

Terraza

SS.HH Habitación

Penthouse 5to y 6to departamento 1er y 3er departamento 2to y 4to departamento Sótano

Terraza Sala Habitación

Hall SS HH

Terraza Sala

Comedor diariol

SS.HH

Habitación Hall

Terraza Habitación

Comedor diario

Comedor Hall

SS.HH

Cocina Almacén Sala

TALLER DE ARQUITECTURA 4 ANAL SIS DE CASOS D STRITO DE MG ARQ OMAR WINCHO CHILQUILLO DOCENTES: MG ARQ MAR CIELO BRENIS GUITARRA GRUPO #2:
CHUMBILE HUAMAN NICOLE BARBA MARTÍNEZ NADELY MEGA
GOMEZ RODR GUEZ DAYELI CASTRO VILLAREAL BRUNO ALONSO San Isidro KARLA JUDITH FLORES HUAMAN
TALLER DE ARQUITECTURA 4 ANAL SIS DE CASOS D STRITO DE MG ARQ OMAR WINCHO CHILQUILLO DOCENTES: MG ARQ MAR CIELO BRENIS GUITARRA GRUPO #2: PLANIMETRÍA CHUMBILE HUAMAN
San Isidro KARLA
NICOLE BARBA MARTÍNEZ NADELY MEGA GOMEZ RODRIGUEZ DAYELI CASTRO V LLAREAL BRUNO ALONSO
JUDITH FLORES HUAMAN
TALLER DE ARQUITECTURA 4 ANAL SIS DE CASOS D STRITO DE MG ARQ OMAR WINCHO CHILQUILLO DOCENTES: MG ARQ MAR CIELO BRENIS GUITARRA GRUPO #2: CHUMBILE HUAMAN NICOLE BARBA MARTÍNEZ
MEGA GOMEZ
V
San Isidro KARLA JUDITH
PLANIMETRÍA
NADELY
RODRIGUEZ DAYELI CASTRO
LLAREAL BRUNO ALONSO
FLORES HUAMAN
TALLER DE ARQUITECTURA 4 ANAL SIS DE CASOS D STRITO DE MG ARQ OMAR WINCHO CHILQUILLO DOCENTES: MG ARQ MAR CIELO BRENIS GUITARRA GRUPO #2: CHUMBILE HUAMAN NICOLE BARBA MARTÍNEZ
MEGA GOMEZ
V
San Isidro KARLA JUDITH
PLANIMETRÍA
NADELY
RODRIGUEZ DAYELI CASTRO
LLAREAL BRUNO ALONSO
FLORES HUAMAN

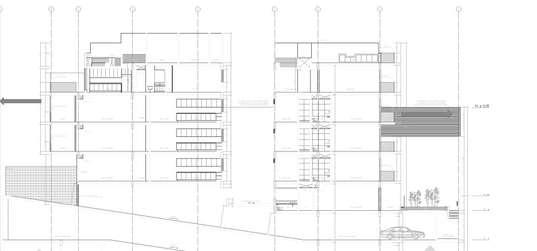
Edifico Ajax- Hispanía trata de un edificio multifamiliar de 7 pisos

-6 Departamentos tipo Dúplex

-1 Departamento Penthouse

TALLER DE ARQUITECTURA 4 ANAL SIS DE CASOS D STRITO DE MG ARQ OMAR WINCHO CHILQUILLO DOCENTES: MG ARQ MAR CIELO BRENIS GUITARRA GRUPO #2: ANALISIS
CHUMBILE HUAMAN NICOLE BARBA MARTÍNEZ NADELY MEGA
FUNCIONAL
GOMEZ RODR
DAYEL
San Isidro KARLA JUD TH FLORES HUAMANI
GUEZ
CASTRO VILLAREAL BRUNO ALONSO

Eje principal en planta que permite el acceso directo a los departamentos

BLOQUES PARALELOS
SE DIVIDE POR UN EJE CENTRAL
TALLER DE ARQUITECTURA 4 ANAL SIS DE CASOS D STRITO DE MG ARQ OMAR WINCHO CHILQUILLO
GENERA UN ESPACIO DOBLE ALTURA
DOCENTES: MG ARQ MAR CIELO BRENIS GUITARRA
COMPOSICIÓN ESPACIAL
GRUPO #2: CHUMBILE HUAMAN NICOLE BARBA MARTÍNEZ NADELY MEGA
San Isidro
GOMEZ RODRIGUEZ DAYELI CASTRO V LLAREAL BRUNO ALONSO KARLA JUDITH FLORES HUAMAN Ascensor Panorámico

En la parte del sótano de pueden visualizar

TALLER DE ARQUITECTURA 4 ANAL SIS DE CASOS D STRITO DE MG ARQ OMAR WINCHO CHILQUILLO DOCENTES: MG ARQ MAR CIELO BRENIS GUITARRA GRUPO #2: CHUMBILE HUAMAN NICOLE BARBA MARTÍNEZ NADELY MEGA GOMEZ
V
San Isidro KARLA
RODRIGUEZ DAYELI CASTRO
LLAREAL BRUNO ALONSO
JUDITH FLORES HUAMAN

Concreto Simple

Concreto armado

Concreto Ciclópeo Cemento

TALLER DE ARQUITECTURA 4 ANAL SIS DE CASOS D STRITO DE MG ARQ OMAR WINCHO CHILQUILLO DOCENTES: MG ARQ MAR CIELO BRENIS GUITARRA GRUPO #2:
CHUMBILE HUAMAN NICOLE BARBA MARTÍNEZ NADELY MEGA
ANALISIS TÉCNICO CONSTRUCTIVO
Cemento y Arena
GOMEZ RODRIGUEZ DAYELI CASTRO V LLAREAL BRUNO ALONSO San Isidro
CIELO RASO REJAS KARLA JUDITH FLORES HUAMAN
Fierro
ESCALERAS
TALLER DE ARQUITECTURA 4 ANAL SIS DE CASOS D STRITO DE MG ARQ OMAR WINCHO CHILQUILLO DOCENTES: MG ARQ MAR CIELO BRENIS GUITARRA GRUPO #2:
CHUMBILE HUAMAN NICOLE BARBA MARTÍNEZ NADELY MEGA San Isidro
VISUALES INTERIORES

EDIFICIO MULTIFAMILIAR HUALLAMARCA

SAN ISIDRO, LIMA, PERÚ Arq. Hernani Canessa

UBICACION EMPLAZAMIENTO

Este terreno tiene como limites:

Por Norte: Lince

Por Este: San Borja

Por Oeste: San Miguel

Por Sur: Surquillo

TOPOGRAFIA CLIMA

Esta zona se caracteriza por presentar un clima caluroso, bochornoso

Ventoso y la humedad es alta, especialmente en la noche

La temperatura media anual de 25º centígrados, máxima de 27º y mínima de 21º

Este terreno se encuentra ubicado a 154

msnm

El Suelo del terreno está formado por conglomerado

POSICIONAMIENTO

El encargo fue proyectar un edificio multifamiliar de cinco pisos más azotea y dos sótanos en un terreno de 870.00m2.

EQUIPAMIENTO

VIAS VEHICULAS -PEATONALES

N O R T E E S T E O E S T E S U R TALLER DE ARQUITECTURA 4 ANAL SIS DE CASOS D STRITO DE MG ARQ OMAR WINCHO CHILQUILLO DOCENTES: MG ARQ MAR CIELO BRENIS GUITARRA GRUPO
CHUMBILE
MEGA
#2:
HUAMAN NICOLE BARBA MARTÍNEZ NADELY
ANALISIS CONTEXTUAL 1.
SAN ISIDRO
CHUMBILE HUAMAN NICOLE BARBA MARTÍNEZ NADELY MEGA KARLA JUDITH FLORES HUAMAN TERRENO LIMA GOLF CLUB NIDO LA TIA CARMELA MUSEO HUALLAMARCA

Construccion Y Desarrollo Inmobiliario Santa Rosa S.A.C. es una empresa en Perú, con sede principal en Lima. Opera en Arrendadores de Bienes Inmuebles sector.

El encargo fue proyectar un edificio multifamiliar de cuatro pisos más azotea y dos sótanos en un terreno de 869.75m2. Se ubica en la avenida El Rosario en el distrito de San Isidro, a media cuadra de la huaca Huallamarca.

El promotor buscaba departamentos de áreas generosas con un hall de ingreso amplio, acabados de primera calidad, considerar aire acondicionado centralizado, domótica y que se contara con áreas verdes importantes en las zonas comunes del proyecto.

ANTROPOMETRIA

TALLER DE ARQUITECTURA 4 ANAL SIS DE CASOS D STRITO DE MG ARQ OMAR WINCHO CHILQUILLO DOCENTES: MG ARQ MAR CIELO BRENIS GUITARRA GRUPO #2: CHUMBILE HUAMAN NICOLE BARBA MARTÍNEZ NADELY MEGA
2. ANALISIS DE USUARIO CHUMBILE HUAMAN NICOLE BARBA MART NEZ NADELY MEGA KARLA JUDITH FLORES HUAMAN

3. ANALISIS FORMAL VOLUMETRICO

La fachada principal del edificio está conformada por tres cuerpos, el primero presenta unos grandes balcones en voladizo delante de la sala comedor de cada departamento

El segundo volumen es más vertical, alberga los dormitorios principales y el tercero retranqueado, sigue paralelo a línea del lindero frontal, este último es un dúplex ubicado en el quinto piso y la azotea.

La Huaca Huallamarca, fue conceptualizada al proyecto, la simpleza de los materiales al natural que envuelve su arquitectura brindó ideas que completaron de definir la composición teniendo en cuenta también la normatividad.

INSPIRACIÓN TALLER DE ARQUITECTURA 4 ANAL SIS DE CASOS D STRITO DE MG ARQ OMAR WINCHO CHILQUILLO DOCENTES: MG ARQ MAR CIELO BRENIS GUITARRA GRUPO
CHUMBILE HUAMAN
MARTÍNEZ NADELY MEGA
#2:
NICOLE BARBA
CHUMBILE
KARLA JUDITH
SUSTRACCIÓN
VOLUMEN
HUAMAN NICOLE BARBA MARTÍNEZ NADELY MEGA
FLORES HUAMAN
COMPOSICIÓN AGRUPADA PAUTA

4. ANALISIS FUNCIONAL

El edificio se ingresa lateralmente por un gran atrio ubicado en el retiro del edificio, con lo cual uno recorre gran parte del frontis del edificio antes de llegar al hall principal, a un metro y medio por debajo del nivel de vereda. Este hall reparte, mediante un corredor zigzagueante con uno de sus lados enchapado en cedro, a los dos ascensores principales, al ascensor de servicio, a la escalera de evacuación del edificio y a los departamentos en esta planta.

TALLER DE ARQUITECTURA 4 ANAL SIS DE CASOS D STRITO DE MG ARQ OMAR WINCHO CHILQUILLO DOCENTES: MG ARQ MAR CIELO BRENIS GUITARRA
GRUPO #2: CHUMBILE HUAMAN NICOLE BARBA MARTÍNEZ NADELY MEGA CHUMBILE HUAMAN NICOLE BARBA MARTÍNEZ NADELY MEGA KARLA JUDITH FLORES HUAMAN

5. ANALISIS TECNICO CONSTRUCTIVO

MATERIALIDAD ILUMINACIÓN Y VENTILACION

Concreto visto entablado

Gracias a este planteamiento las viviendas tienen una menor circulación interior y los espacios son más regulares, mejor iluminados y ventilados .

La iluminación del corredor se realiza través del jardín central del multifamiliar.

Mármol travertino

Acero corten

La fachada posterior para evitar el registro visual a la embajada vecina, presenta unos aleros laterales de concreto en las ventanas de los dormitorios.

Ventanas de vidrio templado con carpintería de aluminio

TALLER DE ARQUITECTURA 4 ANAL SIS DE CASOS D STRITO DE MG ARQ OMAR WINCHO CHILQUILLO DOCENTES: MG ARQ MAR CIELO BRENIS GUITARRA GRUPO
#2: CHUMBILE HUAMAN NICOLE BARBA MARTÍNEZ NADELY MEGA
CHUMB LE HUAMAN NICOLE BARBA MARTÍNEZ NADELY MEGA KARLA JUDITH FLORES HUAMAN

Turn static files into dynamic content formats.

Create a flipbook
Issuu converts static files into: digital portfolios, online yearbooks, online catalogs, digital photo albums and more. Sign up and create your flipbook.