Grupo 5_Laboratorio de Especialidades

Page 1

PROPUESTA DE LUMINARIAS EN EL SÓTANO - UPN

INTRODUCCIÓN

Sabemos que la arquitectura es ciencia y arte a la vez. Pues, notamos claramente el perfecto balance de ambos aspectos encadacreaciónfamosaqueencontramosenelmundo,como laTorreEiffel,funcionalyescultural.

La función arquitectónica consta en varios aspectos: eléctrica, sanitaria y estructural como las principales. Por lo que, la elaboración de este proyecto se enfoca en una sola rama de éstas, siendo la de luminarias, puesto que, el lugar a remodelaryaesfuncionalactualmente.

La Universidad Privada del Norte, ubicada en el molino, cuenta con un sótano para la facultad de arquitectura y diseño. Este ha sido analizado por varios grupos de estudiantes para proponer sus propias ideas acerca de la iluminacióndeesteambiente.

Ugarte

En el siguiente proyecto, haremos una propuesta de luminarias para mejorar el sótano de la UPN-MOLINO; para que se pueda apreciar los distintos trabajos de los estudiantes de arquitectura.

INTEGRANTES

En el presente proyecto, se realizó una propuesta de luminarias para mejorar la iluminación en el sótano de UPN, con el fin de que este espacio pueda servir como una biblioteca de arquitectura a futuro.

En la siguiente presentación se realizará un análisis de iluminación al sótano de la universidad privada del norte de Trujillo con sede en el molino. En el siguiente trabajo propondremos una mejora de iluminación.

Angie Celedonia Torres Luiggi André Palomino Casana

Para este proyecto fue importante ejecutar un acertado levantamiento del espacio a tratar; y así, obtener una buena propuesta de sistema de iluminación,cumpliendoconelobjetivo: exponerproyectosarquitectónicos.

INTEGRANTES

Enlaremodelaciónrealizadaenel sótano de UPN, se propone integrar un espacio de exposición para maquetas y paneles arquitectónicos.Lailuminación fue el punto fundamental en este nuevodiseño.

Enelsiguientetrabajosetienecomo objetivoanalizarelsótanodelaUPN delasededelmolino,paraelaborar una mejor propuesta de iluminación llevada de la mano junto con un buendiseño.

Helena Daniela Esquivel Deza Angie Nicole Guerra Vera Maria Nicole Mauricci Bazán
Introducción Ubicación Deficiencias Propuesta de Luminarias Ficha técnica Planos de eléctricas Alimentadores Luminarias + Interruptores Tomacorriente Planos de Sistema Inmótico Transversal Longitudinal Cortes 01 ÍNDICE 02 03 04 Plano arquitectónico 05 Renders Cámaras de Seguridad 06 07 08 Conclusiones

UBICACIÓN

● VÍAS DE ACCESO

Vía principal: Av.Ejercito

Vía secundaria: Borgoño

● TERRENO SECCIONB-B SECCIONA-A

DEFICIENCIAS

● Deficiente ubicación de luces

● Baja potencia de focos en pasadizos

● Debido a la carencia de iluminación en el sótano; los estudiantes de arquitectura proponen un cambio en este ambiente,lo cual en un futuro se adaptará a cumplir la función de una biblioteca de arquitectura.

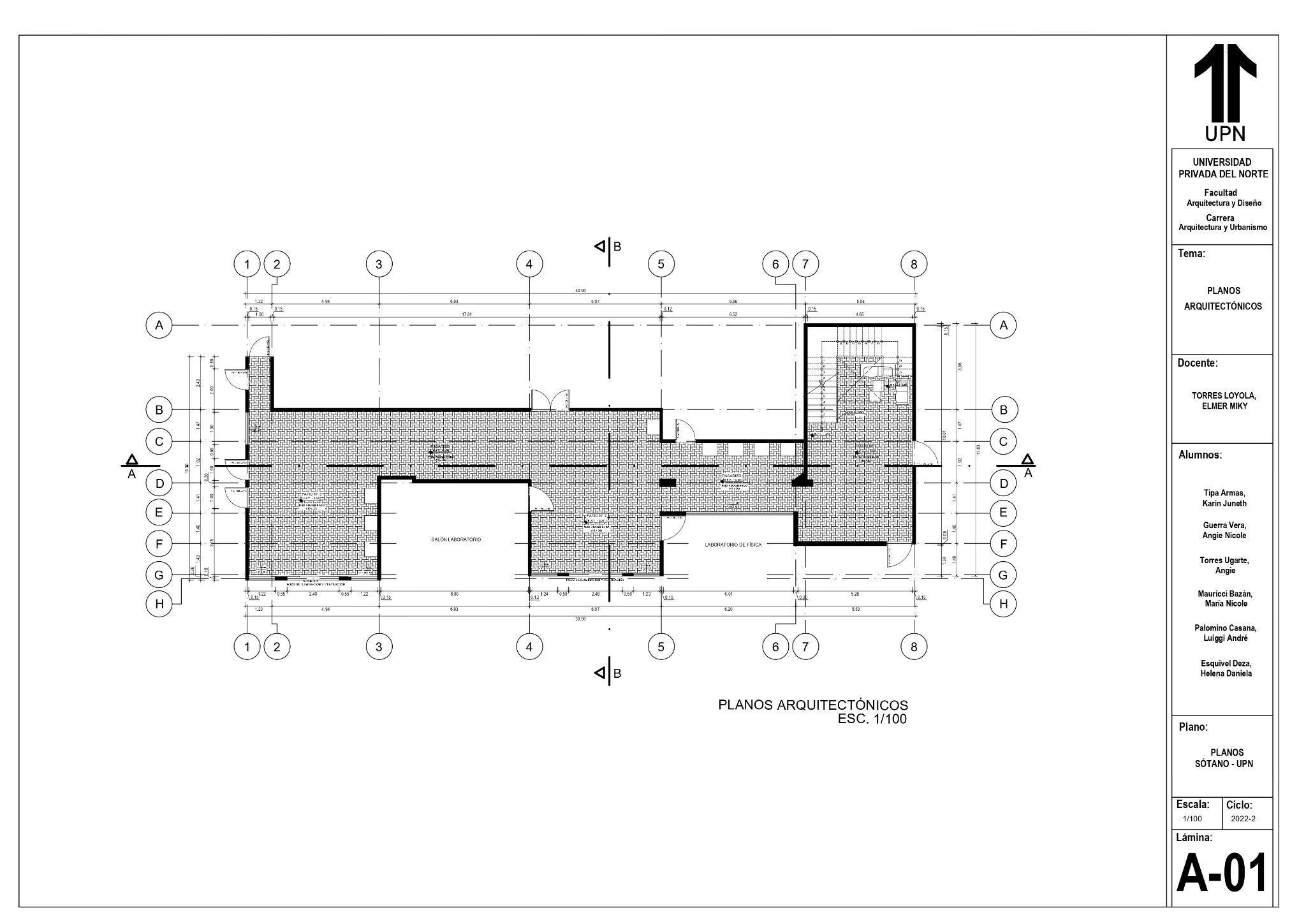
PLANOS ARQUITECTÓNICOS

PROPUESTAS DE LUMINARIAS

PLANOS ARQUITECTÓNICOS CON PROPUESTA DE MOBILIARIOS

Proveedor:

https:// .promart.pe/do nlight-led-pro-a dos-6 -65k-480lm/p?gclid=Cj0KCQiA1ZGcB hCoARIsAGQ0kkoUEYW94KizasI6hWF 3z8 WIXe3RGkasgj9xVtlPA7c8G5qiOsTY2QaAidy EAL _ cB

Características:

Proveedor:

https:// .promart.pe/panel-led-rc048-60x 60-luz-fria-40 /p?gclid=Cj0KCQiA1ZGcBhC oARIsAGQ0kkpOoLcUrWJnLde3lU sLMRN R2Qp EI7o59TSSqzQDW-ELDR3Z_I-MaAqo NEAL _ cB

Características:

Luminaria propuesta: Espacio 1
Espacio 2 Características: Luminaria propuesta: Proveedor: https:// .promart.pe/do nlight-led-pro-ados-6 -65k-480lm/p?gclid=Cj0K CQiA1ZGcBhCoARIsAGQ0kkoUEYW94KizasI6hWF 3z8WIXe3RGkasgj9xVtlPA 7c8G5qiOsTY2QaAidyEAL _ cB

PLANOS DE ELÉCTRICAS

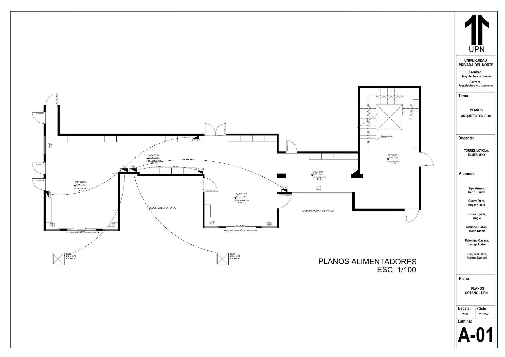
PLANO ALIMENTADORES
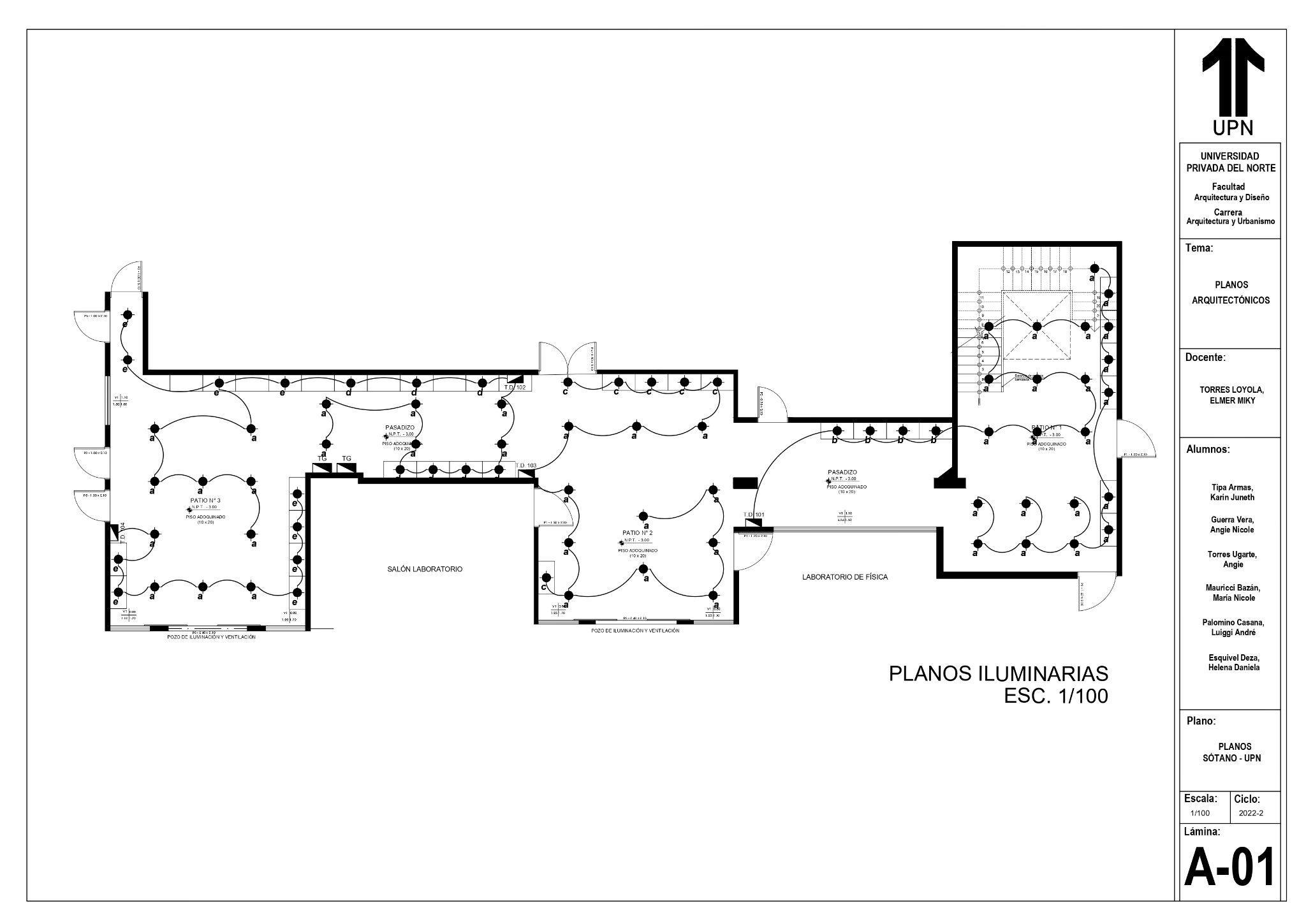
PLANO LUMINARIAS
PLANO TOMACORRIENTES

PLANOS DEL SISTEMA INMÓTICO

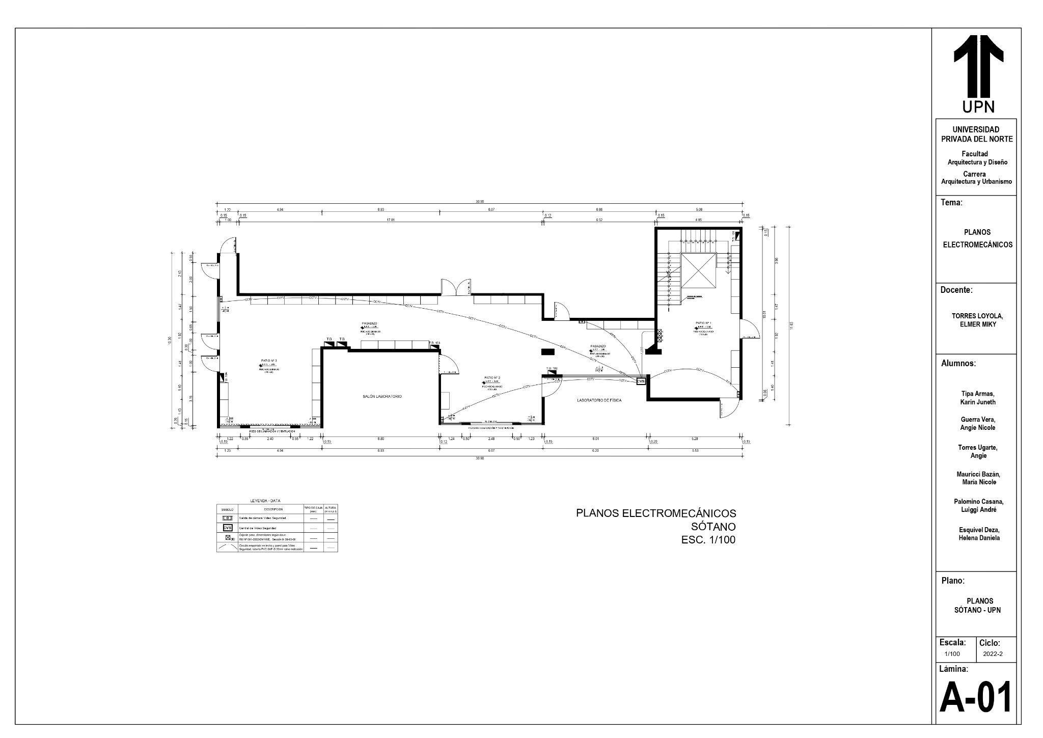
PLANOS ELECTROMECÁNICOS
RENDERS

HALL PATIO N°1

HALL /PATIO N°1
HALL /PATIO N°1

PATIO N°2 PASADIZO ÁREA DE EXPOSICIÓN

EXPOSICIÓN DE ARTE Y PANELES/ PASADIZO EXPOSICIÓN DE MAQUETAS/ PASADIZO

PASADIZO EXPOSICIÓN DE MAQUETAS/

PATIO N°2

EXPOSICIÓN DE MAQUETAS PASADIZO

Visuales extras

HALL PATIO N°2

Visuales extras

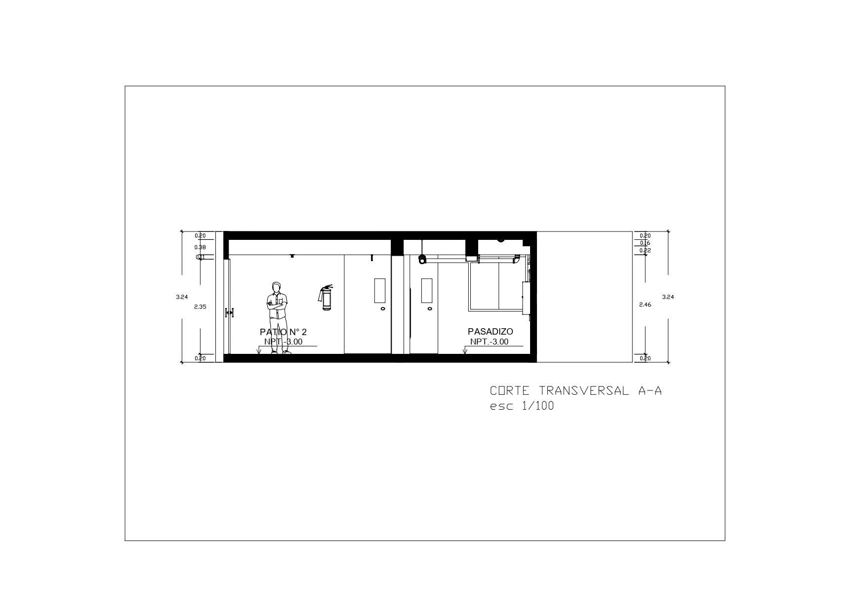
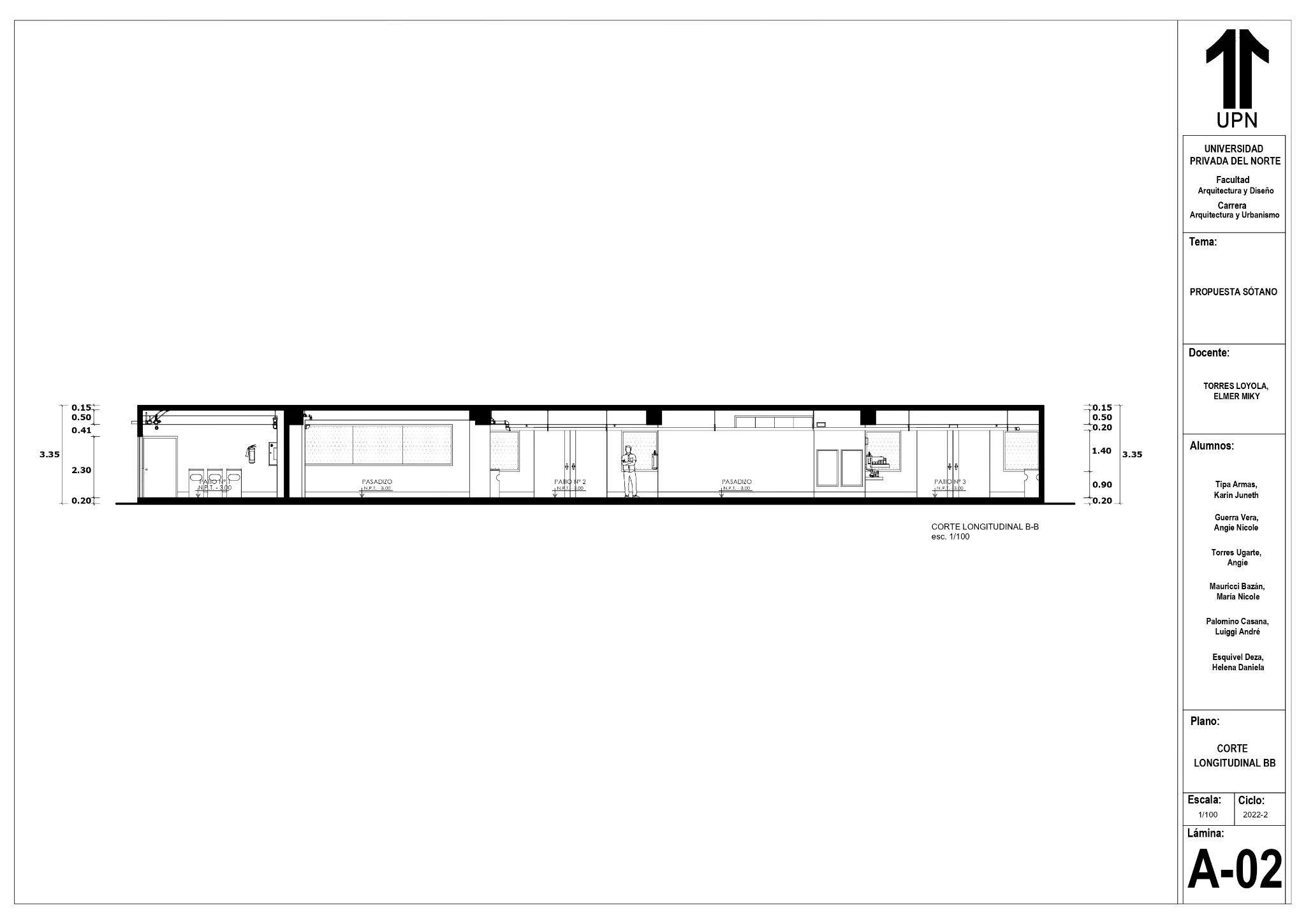
CORTES

CORTE A-A

CORTE BB

CONCLUSIONES

● Para proponer las distintas luminarias es necesario primero conocer las deficiencias que presenta el lugar a remodelar, en este caso el sótano. De acuerdo a esto se pueden elegir la ubicación y el tipo de luminarias más adecuadas para crear un ambiente confortable y bien iluminado.

● Ya que este proyecto está ubicado en el departamento La Libertad, fue necesario investigar y buscar las marcas y proveedores de luminarias a utilizar en la nueva propuesta del lugar, con esto tuvimos mayor acceso a la información de cada una mucho más fácil.

● La remodelación elaborada no solo contó con una nueva propuesta de luminarias, sino fue importante encontrarla relación con el diseño ya establecido en este ambiente por la UPN.

FOTO GRUPAL

GRACIAS

Turn static files into dynamic content formats.

Create a flipbook
Issuu converts static files into: digital portfolios, online yearbooks, online catalogs, digital photo albums and more. Sign up and create your flipbook.