Karerra Meza Interior Design Portfolio

Page 1

PORTFOLIO

INTERIOR DESIGN | KARERRA MEZA

03 11
15 18 NEXT Office
Con Docs
TABLE OF CONTENTS
Voelker Residence
DeafSpace

DeafSpace Hotel

During our studio 8 course, we take a correlating class about designing for supportive environments. In this class, we did a huge research project on your topic of choice. I chose to research how to design for deaf individuals. In our studio class, we took this research paper and created a space. I designed a hotel prototype for deaf individuals.

This project was the first time we had true creative freedom in our design. I picked the user, the type of space, and what my focus would be. We had a square footage requirement of 6,000-8,000 that we had to design within, but everything else was left up to us. This really taught me a lot about managing my time and taking initiative. It was also one of the first times we used really in depth research to guide our design, like theories.

My hotel was based off the design principle, DeafSpace. DeafSpace is a set of guidelines created by Architect Hansel Bauman in collaboration with the ASL Deaf Studies Department at Gallaudet University. Through using these 5 guidelines, you can create not only a well-designed space for deaf individuals, but an inclusive space for everyone.

The total area of the hotel designed was 6,180 square feet. This includes a single guest room, a double guest room, and a suite guest room. Also designed was the lobby area including the check-in experience and a cafe area.

3

Theory of hospitality management Theory of Deaf culture Theory of wayfinding

Encompassing strategic planning, coordination, and delivery of services to ensure customer satisfaction. From hotels to restaurants, anticipating guest needs, and maintaining high standards of service. Success in hospitality management lies in the art of exceeding expectations and leaving a lasting, positive impression on guests.

Deaf culture theory centers on the shared experiences, values, and traditions of the Deaf community. Rooted in sign language and visual communication, it emphasizes the unique identity and contributions of Deaf individuals. This theory promotes the richness of Deaf cultural heritage, recognizing that Deafness is not a deficit but a distinct way of being in the world.

Wayfinding is the process of navigating physical environments. It involves how humans perceive and interact with spaces to reach destinations. Effective wayfinding considers both environmental design and individual cognition.

4
Theory
Research

Space & Proximity Mobility & Proximity Sensory Reach

To maintain clear visual communication, signers stand at a distance to see facial expressions and the full dimension of the signer’s “signing space.” As conversation groups grow, the space between individuals grows

Spatial orientation and the awareness of activities surrounding us are essential to maintaining a sense of well-being. Deaf people “read” activities in their surroundings through an acute sensitivity towards visual and tactile cues.

While walking together in conversation, signers often maintain a wider distance for clear visual communication. The signers also shift their gaze between conversation and their surroundings, scanning for hazards and direction.

LIGHT & Color

Acoustics & EMI

Poor lighting conditions such as glare, shadow, and back-lighting interrupt visual communication and are major contributors to the causes of eye fatigue that can lead to a loss of concentration and even physical exhaustion.

Deaf people can have a range of hearing abilities, and many use assistive devices, such as hearing aids or cochlear implants, to enhance sound. These devices can often amplify reflected sound waves, which can be distracting or painful.

5
Guidelines
DeafSpace
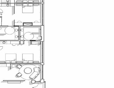
6 6 7 seating space gender neutral toilets Exit Stair 125 9 retail space 10 cafe 12 elevators 11 bar 13 office & help desk 1 2 3 4 5 6 7 9 11 12 13 EXIT STAIRS 14 14 First Floor Plan N Exit Stair 130 Exit Stair 131 OPEN TO BELOW OPEN TO BELOW 2 3 4 5 6 7 8 1 single guest room double guest room suite guest room housekeeping 1 2 3 ada single guest room ada double guest room 4 5 exit stairs elevators 6 7 8 Guest Rooms Floor Plan N
Floor Plans

Floor Plans

hallways extra wide at 10 feet to allow for proper conversation while walking

self check-in kiosks

seating elements placed in a round shape to allow for everyone to properly conversate

SUITE GUEST ROOM INCLUDES A SMALL LIVING SPACE AND BALCONY, A LARGER KITCHENETTE AND DESK

lobby seating space OPEN

SINGLE GUEST ROOMS

FEATURE A BALCONY

EACH FLOOR HAS 2 ADA ACCESSIBLE SINGLE AND DOUBLE GUEST ROOMS

Exit Stair 125 Exit Stair
Enlarged
First Floor
Plan
TO BELOW 1 2 3 4 5 1 2 3 4

Perspectives

8
Wayfinding Cafe Elevator Hallway Hotel Entry Lobby Waiting

Perspectives

9
Single Guest Room Entry Guest Room Bathroom Sinks Guest Room Bathroom Wet Wall Double Guest Room Entry Single Guest Room Bed

Perspectives

10
Suite Guest Room Bed Suite Guest Bathroom Sinks Suite Guest Bathroom Wet Wall Suite Guest Room Entry Suite Guest Room Kitchenette

VOELKER RESIDENCE

This project was an independent study done with 5 other classmates. It was my first project working with actual clients and not just a user given to us by our professors. At the beginning of the project, we traveled to the client’s house in Newton, Kansas to meet them. Their home was built in the 1950’s and has not been truly updated since then. We talked about all the problems the clients had with their home and what they would like to do to fix it. We toured the house, getting a sense of the clients’ personal style and needs. Throughout the project we had check ins with the clients to talk about material choices, furniture selections, and overall design ideas. At the end of the project, we traveled back to the clients house to present our final idea to them.

The clients wanted to update the home, but it was important to them to keep the home in it’s original 50’s aesthetic. Their main concerns were with their master suite - their bedroom, bathroom, and individual closets - as well as their dining room and living room. As part of the project, we got to pick which areas we wanted to focus on. I chose the master suite and dining room.

Some important information to keep in mind is that the clients have young children and want to create their own space in the bedroom and they also like to entertain.

11
12 Floor Plan NIC NIC NIC NIC NIC 2 3 2 3 4 5 6 7 8 1 ENTRY LIVING ROOM TV ROOM HIS CLOSET MASTER BEDROOM HER CLOSET MASTER BATHROOM DINING ROOM 1 2 3 4 5 6 7 8 Floor Plan N

Enlarged Floor Plans

leads to living room

bookshelf storage

counter space for entertaining and extra storage

window seat

leads to patio

leads to Patio hallway entry

entry from tv room room separated into zones to help create usable space in a large room

13
N
Master Suite Plan N 2
Enlarged Dining Room Plan
Enlarged
3

Perspectives

14
Master Bedroom Bed Area Dining Room Window Seat Dining Room Buffet Wall Master Bathroom Master Bedroom Seating Area

Construction Docs

During studio 5 we learned construction documents. We were given a previous project done by one of our classmates, the NEXT Office. These con docs were done as a group, so I have not mastered everything, but we overlooked everything as a group at the end of each phase. I have included the pages I worked on myself.

I focused on the cover sheet, code plan, floor plan, finish floor and finish wall plans along with the corresponding finish schedules, and floor and wall details.

Aside from learning con docs themselves, I learned quite a bit from this project.

First of all, this was a group project. Working in a group is a lesson within itself, but I feel it really prepared me for the construction phase in an actual firm. I will not be doing an entire set of con docs myself, so learning how to make sure that pages are consistent and there is a template for everything is really important.

This project was one of the biggest in my student career as every part was learning something new and more. I will be continuing con docs in my final capstone project which I am currently working on

15
16 Code Plan Finish Schedules SBEK INTERIORS 12773 Sbeck Way Manhattan, NY 10029 PROJECT NUMBER: FARJOHN CONSTRUCTION SONES ENGINEERING 518 Augusta Way Manhattan, NY (316) 226-0111 1018 Laramie St. Manhattan, NY (913) 260-1127 REVISIONS RECORD: NO. DESCRIPTION: CHECKED BY: SYDNEY MARTINSON BEA KAPPLE ELIZABETH FREDRICK KARERRA MEZA DATE: 23-01 101 SEAPORT BLVD, SUITE 600 BOSTON, MA 02210 A6.2 05/02/23 NEXT Office FINISH SCHEDULES FINAL SUBMISSION FLOOR FINISH SCHEDULE CARPET A COLOR ZONE MODULAR J+J FLOORING PRIME XL LVT J+J FLOORING TRUCOR FLOORING MOSS 3386 OLIVE 3375 ALABASTER OAK ULTRASLATE HEXAGON MOSAIC EXISTING FLOORING WAYNE TILE ANTHRACITE CARPET B COLOR ZONE MODULAR STRAIGHT LAY STRAIGHT LAY WALL FINISH SCHEDULE REMARKS NAME MANUFACTUER COLOR PT-1 BENJAMIN MOORE SILVER SONG PT-2 BENJAMIN MOORE ROLLING HILLS PT-3 BENJAMIN MOORE SAYBROOK SAGE PT-4 BENJAMIN MOORE GEORGIAN BAY PT-5 BENJAMIN MOORE SYMPHONY BLUE PT-6 BENJAMIN MOORE BALTIC SEA TILE FIRECLAY TILE NICKEL GLOSS REMARKS NAME MANUFACTUER COLOR PT-7 BENJAMIN MOORE ANTIQUED AQUA EGGSHELL EGGSHELL EGGSHELL EGGSHELL EGGSHELL EGGSHELL EGGSHELL UP 4 5 D.8 E F G 2 D H E.2 F.6 5' 10" 6' 0" 12' 1/4" 4' -4 3/4" 223'2" S B RECEPTION WAITING MEETING SPACE WELLNESS ROOM 106 MOTHER'S ROOM 101 PRODUCT STORAGE 120 111 WORK STATION 112 119 PRIV. OFFICE PRIV. OFFICE 117 PROJECT ROOM WORK STATION 122 EXIT STAIR WOMEN'S TOILETS MEN'S TOILETS TEAM SPACE 113 RETAIL MOCK-UP 102 72'FROMEXIT TOEXIT WORK CAFE 103 NIC C C WORK STATION 110 60 60 E E E E E E E E E SBEK INTERIORS 12773 Sbeck Way Manhattan, NY 10029 PROJECT NUMBER: CONSULTANTS: FARJOHN CONSTRUCTION SONES ENGINEERING 518 Augusta Way Manhattan, NY (316) 226-0111 1018 Laramie St. Manhattan, NY (913) 260-1127 CHECKED BY: SYDNEY MARTINSON BEA KAPPLE ELIZABETH FREDRICK KARERRA MEZA DATE: 23-01 101 SEAPORT BLVD, SUITE 600 BOSTON, MA 02210 A1.1 05/02/23 NEXT Office CODE PLAN FINAL SUBMISSION PLUMBING FIXTURE COUNT OCCUPANCY 120 WOMEN OCCUPANCY 60 WATER CLOSETS REQUIRED WATER CLOSET PER 25 OCCUPANTS FOR FIRST 50 OCCUPANTS 50 25 REQUIRED WATER CLOSETS CODE DETAILS SQ. FT. 12,000 BUILDING CONSTRUCTION TYPE 2A OCCUPANCY GROUPS B-2, A-2 OCCUPANT LOAD 168 PROPERTY ADDRESS 101 SEAPORT BLVD, SUITE 600 BOSTON, MA 02210 BUILDING CODES ADOPTED BY JURISDICTION: IBC 2015 IEBC 2015 IMC 2015 IECC 2018 IECC 2021 IECC 2015 NFPA 1 2021 NFPA 2015 NFPA 13 2013 NFPA 70 2020 NFPA 72 2013 NFPA 221 2015 ASME A17.1 2013 SPRINKLERED YES 1 CODE PLAN ADA 2015 PER REMAINING 50 OCCUPANTS 60 OCCUPANTS 50 10 LEFT + REQUIRED WATER CLOSETS REQUIRED WATER CLOSETS WOMEN TOTAL MEN OCCUPANCY 60 WATER CLOSETS REQUIRED WATER CLOSET PER 25 OCCUPANTS FOR FIRST 50 OCCUPANTS 50 25 REQUIRED WATER CLOSETS PER REMAINING 50 OCCUPANTS 60 OCCUPANTS 50 10 LEFT + REQUIRED WATER CLOSETS REQUIRED WATER CLOSET MEN TOTAL URINALS REQUIRED 2/3 OF REQUIRED WATER CLOSETS SHOULD BE URINALS WATER CLOSETS URINALS WATER CLOSETS URINALS REQUIRED WATER CLOSET REQUIRED URINALS REQUIRED LAVATORY LAVATORIES REQUIRED LAVATORY PER 80 OCCUPANTS REQUIRED LAVATORY 60 WOMEN OCCUPANCY 60 MEN OCCUPANCY MEN TOTAL WOMEN TOTAL SYMBOL LEGEND S SMOKE DETECTOR ROOM NAME 100 ROOM TAG WITH NUMBER ROOM OCCUPANCY LOAD # 200 SF/100 FIRE EXTINGUISHER 5' 6" ADA TURN RADIUS EXIT SIGN SCALE: 1/16" = 1'-0" 0' 8' 16' ADA DOOR CLEARANCE/APPROACH COMMON PATH OF EGRESS EMERGENCY LIGHT E Cover Page Floor Plan UP 3 4 6 D.8 E F G 2 7 D H E.2 F.6 A4.1 A4.3 1 A4.5 A4.6 A4.4 A4.2 A4.4 81' 8" 1/2" 27' 11" 14' 43' 180' 0" 50' 3" 108 107 103 105 QUIET ROOM MOTHER'S ROOM 104 109 101 PRODUCT STORAGE 121 RESOURCE CENTER 110 WORK STATION 112 119 PRIV. OFFICE 118 114 WORK STATION EXIT STAIR 123 124 125 EXIT STAIR RECEPTION SEATING 100 RETAIL MOCK-UP 126.1 122.1 122.2 124.1 125.1 123.1 126.2 126.3 104.1 106.1 121 111.1 12' 1/2" 28' 1/2" 0" 19' 1/2" 114.1 117.1 118.1 119.1 108.1 107.1 31' 0" 12' 35' 1/2" 1/2" A6.3 12 13 A6.3 14 A6.3 25' 10 1/2" 11"1/2"-5" A A AAA A A A A A A D D D D D D C C C B B B B B B D B B 9" 17' 20' 1/2" 24' 10 1/2" 8' MOSS WALL1 21' 7" 11' 1/2" -21 SBEK INTERIORS 12773 Sbeck Way Manhattan, NY 10029 CONSULTANTS: FARJOHN CONSTRUCTION SONES ENGINEERING 518 Augusta Way Manhattan, NY (316) 226-0111 1018 Laramie Manhattan, NY (913) 260REVISIONS RECORD: NO. DESCRIPTION: DATE: SYDNEY MARTINSON BEA KAPPLE ELIZABETH FREDRICK KARERRA MEZA 23-01 101 SEAPORT BLVD, SUITE 600 BOSTON, MA 02210 A1.2 05/02/23 NEXT Office FLOOR PLAN FINAL SUBMISSION 1 FLOOR PLAN SCALE: 3/32" 1'-0" 0'1'4' 8' 16' GENERAL PARTITION NOTES 1. REFER TO A1.5 - FINISH WALL PLAN FOR WALL TILE AND PAINT TYPES AND LOCATION. 2. REPLACE 5/8" GYP BOARD PTD. WITH 5/8" BACKERBOARD AT ALL WALL TILE LOCATIONS. A INTERIOR WALL -EVERWALL (SEE SCHEDULE) UP TO CEILING B INTERIOR WALL -TYPICAL 5/8" MTL FRAMING WALL 5/8" GYP BOARD PTD; UP TO CEILING C INTERIOR WALL -TYPICAL 6" PLUMBING WALL 5/8" BACKERBOARD, 1/4" TILE ON INTERIOR SIDE, 5/8" GYP BOARD PTD ON EXTERIOR; UP TO CEILING D INTERIOR WALL -TYPICAL 5/8" MTL. FRAMING SOUND INSULATED WALL 5/8" GYP BOARD PTD; UP TO STRUCTURE MTL FRAMING 5/8" GYP BOARD PT 5" 6" 5" 2 WALL TYPE DETAILS SCALE: 3/4" 1'-0" 5/8" GYP BOARD PT 5/8" GYP BOARD PT MTL FRAMING MTL FRAMING INSULATION BATTING A-101A 1 Name Elevation A2222 SIM Room name CENTERLINE ELEVATION (INTERIOR) ELEVATION MARKER HEAD GRID HEAD LEVEL HEAD SECTION HEAD SPOT ELEVATION TARGET NORTH ARROW ROOM TAG SYMBOL LEGEND SBEK INTERIORS 12773 Sbeck Way Manhattan, NY 10029 CONSULTANTS: FARJOHN CONSTRUCTION SONES ENGINEERING 518 Augusta Way Manhattan, NY (316) 226-0111 REVISIONS RECORD: NO. DESCRIPTION: CHECKED BY: SYDNEY MARTINSON BEA KAPPLE ELIZABETH FREDRICK KARERRA MEZA 23-01 101 SEAPORT BLVD, SUITE 600 BOSTON, MA 02210 A0.1 05/02/23 NEXT Office COVER SHEET FINAL SUBMISSION INDEX CODE PLAN COVER FLOOR PLAN RCP FINISH PLAN FLOOR RETAIL MOCK-UP WALL DETAILS FLOOR DETAILS FINISH SCHEDULES DOOR SCHEDULE EVERWALL SCHEDULE GENERAL NOTES ABBREVIATIONS LEGEND ACOUSTIC CEILING TILE ABOVE FINISHED FLOOR ALUMINUM CEILING COLUMN CARPET CERAMIC TILE DIAMETER ACT A.F.F. ALUM BOT CLG COL BOTTOM CPT CT DIA 1.THE FOLLOWING CONTRACT DOCUMENTS INCLUDE WORKING MODIFICATION AND DRAWINGS AND GENERAL CONDITIONS OF CONSTRUCTION AND SPECIFICATIONS OF THE NEXT OFFICE HEADQUARTERS FROM JADYN WOLF S DESIGN PROPOSAL SUBMISSION FOR THE NEXT STEELCASE COMPETITION. 2.THE CONTRACT DOCUMENTS ARE INSTRUMENTS OF SERVICE AND SHALL EMAIN THE PROPERTY OF THE ARCHITECT WHETHER THE PROJECT FOR WHICH THEY ARE PREPARED IS EXECUTED OR NOT. THE CONSTRUCTION DRAWINGS ARE BASE ON THE PROJECT DESIGN DEVELOPMENT OF JADYN WOLF. 3.HORIZONTAL DIMENSIONS INDICATED ARE TO/FROM FINISHED FACE OF CONSTRUCTION, EXCEPT AS NOTED. 4.VERTICAL DIMENSIONS ARE FROM TOP OF FLOOR SLAB, EXCEPT WHERE NOTED TO BE FROM ABOVE FINISHED FLOOR (AFF). FINISH PLAN WALLS FURNITURE PLAN ELECTRICAL PLAN LIGHTING PLAN A0.1 A1.1 A1.2 A1.3 A1.4 A1.5 A1.6 A1.8 A1.9 A4.2 A5.1 A5.2 A6.1 A6.2 A6.3 RECEPTION DIMENSION DIM A4.1 WORK CAFE A4.4 KITCHEN A4.6 RESOURCE CENTER A4.8 TOILET ROOMS A4.10 FLOOR FIXTURE GYPSUM MINIMUM PAINT REFLECTED CEILING PLAN FLR FIXT GYP MIN PT RCP DOOR DR DRAWING DWG EVERWALL EVRW UNLESS OTHERWISE NOTED U.N.O. 2 RENDERED PERSPECTIVE 1 VICINITY MAP ENLARGED ENL FURNITURE SCHEDULE A1.7 PRIVATE PRIV METAL MTL TYPICAL TYP INTERIOR INT HOLLOW METAL HM PAINTED PTD SCHEDULE SCHED LUXARY VINYL TILE LVT RECEPTION DETAILS A4.9 MEN'S TOILETS A4.13 TOILET DETAILS A4.14 A4.3 RECEPTION DETAILS RETAIL TABLE A4.5 WOMEN'S TOILET A4.11 WIDTH W ON CENTER O.C. MECHANICAL, ELECTRICAL, AND PLUMBING MEP HEIGHT FIRE TREATED FT AT @ WORK CAFE DETAIL A4.7 A4.12 KITCHEN DETAIL EXIT STAIR A4.15 CEILING BAFFLES A4.16 PROJECT LOCATION DOOR DETAILS A5.3
Con Docs
17
Walls
Finish Plan -
5/8" GYP BOARD PTD 6" MTL. BOTTOM TRACK ACOUSTIC BATTING INSULATION CONCRETE FLOOR STRUCTURE GYP CEILING PTD, SEE RCP 4" RUBBER BASEBOARD WALL TILE, SEE FINISH PLAN/SCHED 5/8" BACKERBOARD 6" MTL FRAMING @ 16" O.C. CEILING HEIGHT, SEE RCP ACOUSTIC BATTING INSULATION 4" RUBBER BASEBOARD 5/8" GYP BOARD PTD 5/8" MTL. BOTTOM TRACK ACOUSTIC BATTING INSULATION GYP CEILING PTD, SEE RCP CONCRETE FLOOR STRUCTURE CEILING HEIGHT, SEE RCP 5/8" MTL FRAMING @ 16" O.C. 4" RUBBER BASEBOARD 5/8" GYP BOARD PTD 5/8" MTL BOTTOM TRACK ACOUSTIC BATTING INSULATION CONCRETE FLOOR STRUCTURE GYP CEILING PTD, SEE RCP 5/8" MTL FRAMING @ 16" O.C. CEILING HEIGHT, SEE RCP ACOUSTIC BATTING INSULATION CONCRETE FLOOR STRUCTURE GYP CEILING PTD, SEE RCP 3 5/8" MTL. BOTTOM TRACK EVERWALL, SEE SCHEDULE 5/8" MTL FRAMING @ 16" O.C. GYP CEILING PTD, SEE RCP CEILING HEIGHT, SEE RCP 6" MTL HEADER SBEK INTERIORS 12773 Sbeck Way Manhattan, NY 10029 PROJECT NAME: PROJECT NUMBER: FARJOHN CONSTRUCTION SONES ENGINEERING 518 Augusta Way Manhattan, NY (316) 226-0111 1018 Laramie St. Manhattan, NY (913) 260-1127 REVISIONS RECORD: NO.DESCRIPTION: DATE: CHECKED BY: SYDNEY MARTINSON BEA KAPPLE ELIZABETH FREDRICK KARERRA MEZA DATE: 23-01 101 SEAPORT BLVD, SUITE 600 BOSTON, MA 02210 A5.1 05/02/23 NEXT Office WALL DETAILS FINAL SUBMISSION C TYP 6" PLUMBING WALL SECTION Scale: 3/4" = 0" D SOUND INSULATED INTERIOR WALL SECTION Scale: 3/4" 1' 0" B TYP INTERIOR WALL SECTION Scale: 3/4" 1' 0" A TYP EVERWALL TO CEILING SECTION Scale: 3/4" 1' 0" EVERWALL, SEE SCHEDULE UP 4 5 D.8 E F G 2 7 D H E.2 F.6 54' 1/2" 34' 1/2" 29' 10" 39' 1/2" 28' 7 1/2" 13' 0 3/4" 13' 3/4" 13' 1 1/2" 5' -0" 23' 7 1/4" 19' 1 3/4" 12' 2 1/2" 15' 4" 19' 1/2" 24' 1/2" 9' 1 1/2" 6' 0 3/4" 5' 0" 10' 3 1/2" 14' 1/2" 4' 3/4" 5' 11" 9" 9 3/4" 8' 6" 29' 1/4" 20' 8" 33' 8" 20' 1/2" 20' 1/2" 10' 1/2" 13' 3/4" 26' 1/2" 27' 1/2" WORK STATION 115 TEAM SPACE 116 PROJECT ROOM 114 PRIV. OFFICE 118 PRIV. OFFICE 119 PROJECT ROOM 111 WORK STATION 110 TEAM SPACE 109 RESOURCE CENTER 120 INCLUSIVE DESIGN LAB 108 LARGE MEETING ROOM 107 WELLNESS ROOM MOTHER'S ROOM 104 EXIT STAIR WOMEN'S TOILETS 124 MEN'S TOILETS 125 101/2" 103/4" 2' 1/2" 8' 1" 19' 4 1/2" 2'-8" 4' 2 1/2" 1'-11" 7" 6' 5 1/2" 7' 33/4" 1'-41/2" 5'-3" 19' 7 1/2" 6' 11 1/2" 5'-111/4" 9' 10" 10' 3" SBEK INTERIORS 12773 Sbeck Way Manhattan, NY 10029 PROJECT ADDRESS: PROJECT NUMBER: FARJOHN CONSTRUCTION SONES ENGINEERING 518 Augusta Way Manhattan, NY (316) 226-0111 1018 Laramie St. Manhattan, NY (913) 260-1127 REVISIONS RECORD: NO. DESCRIPTION: DATE: CHECKED BY: SYDNEY MARTINSON BEA KAPPLE ELIZABETH FREDRICK KARERRA MEZA DATE: 23-01 101 SEAPORT BLVD, SUITE 600 BOSTON, MA 02210 A1.5 05/02/23 NEXT Office FINISH PLAN WALLS FINAL SUBMISSION PT-1, U.N.O PT-3 PT-4, U.N.O PT-1, U.N.O PT-1, U.N.O 1 FINISH PLAN - WALLS GENERAL NOTES 1.ALL ARROWS ARE RADIUS DIMENSION OF CURVE. 2.ALL FINISH MATERIALS AND FINISH ASSEMBLIES SHALL CONFORM TO THE REQUIREMENTS OF ALL CODES AND REGULATIONS OF ALL GOVERNMENTAL, AUTHORITIES HAVING JURISDICTION. ALL FINISHES MUST HAVE FLAME PREAD RATING OF 200 OR LESS, AND A SMOKE GENERATION RATING OF 450 OR LESS AS DETERMINED IN ASTM E 84. 3.ALL SEAMS AND JOINT OF FINISH MATERIALS SHALL BE STRAIGHT, SMOOTH, AND CLEAN. 4.ALL RESPECTIVE INSTALLER SHALL ADVISE INNER SPACE OF LOCATION OF CHANGES IN DYE LOTS, BATCHES OR SIMILAR COLOR SHIFTS. 5.BEFORE PROCEEDING WITH PROCUREMENT, THE RESPECTIVE INSTALLER SHALL FIELD VERIFY DIMENSIONS TO ASSURE SUFFICIENT QUANTITIES OF MATERIALS TO COMPLETE THE WORK. 6.NO SUBSTITUTION OF SPECIFIED FINISH MATERIALS WILL BE ALLOWED WITHOUT PRIOR WRITTEN APPROVAL OF INNER SPACE. 7.FINISHES CALLED FOR SHALL EXTEND OVER, UNDER, AND/OR BEHIND ANY ITEM OF BUILT-IN MILLWORK, EQUIPMENT, MIRRORS, ETC. AS INDICATED ON THE DRAWINGS. WALLCOVERING SHALL NOT HAVE SEAMS WITHIN SIX INCHES OF CORNER CUT INSIDE CORNERS ARE NOT PERMITTED. 8.STORE AND DISPOSE OF SOLVENT-BASED MATERIALS, AND MATERIALS USED WITH SOLVENT-BASED MATERIALS, IN ACCORDANCE WITH REQUIREMENTS OF LOCAL AUTHORITIES HAVING JURISDICTION 9.MAINTAIN ENVIRONMENTAL CONDITIONS WITHIN LIMITS RECOMMENDED BY THE MANUFACTURER FOR OPTIMUM RESULTS 10.SAMPLES: SUBMIT FOUR (4) PAPER SAMPLES, 8-INCHES 10-INCHES MIN., ILLUSTRATING SELECTED COLORS FOR EACH COLOR AND SYSTEM SELECTED WITH SPECIFIED COATS CASCADED. EACH PAPER SAMPLE MUST BE TREATED WITH THE SPECIFIED TEXTURE AND SHEEN AND MUST BE APPLIED TO THE SURFACE MATERIAL TO WHICH IT WILL BE APPLIED. EACH SPECIFIC SHEEN OF A GIVEN COLOR REQUIRE A SEPARATE "BRUSH OUT". 11.EVRW EVERWALL 12.ALL WALLS HAVE RUBBER BASE EXCEPT TOILET ROOMS TILE U.N.O LIVE MOSS WALL PT-1 PT-1 PT-1 EVRW EVRW EVRW EVRW EVRW PT-1 PT-1 EVRW, U.N.O. EVRW, U.N.O. EVRW, U.N.O. PT-2 EVRW PT-2 0'1' 4' 8' 16' SCALE: 3/32" 1'-0" PT-2 PT-2 WALL FINISH SCHEDULE REMARKS NAME MANUFACTUER COLOR PT-1 BENJAMIN MOORE SILVER SONG PT-2 BENJAMIN MOORE ROLLING HILLS PT-3 BENJAMIN MOORE SAYBROOK SAGE PT-4 BENJAMIN MOORE GEORGIAN BAY PT-5 BENJAMIN MOORE SYMPHONY BLUE PT-6 BENJAMIN MOORE BALTIC SEA TILE FIRECLAY TILE NICKEL 4 GLOSS PT-7 BENJAMIN MOORE ANTIQUED AQUA EGGSHELL EGGSHELL EGGSHELL EGGSHELL EGGSHELL EGGSHELL EGGSHELL PT-5, U.N.O PT-5 PT-3 HALLWAY, PT-3, U.N.O PT-1 PT-1 PT-1 Finish Plan - Floor Floor Details WALL TILE SEE FINISH PLAN/SCHED. FLOOR TILE SEE FINISH PLAN/SCHED. GROUT LINE AT WALL-FLOOR TILE JOINT 4" RUBBER BASEBOARD 5/8" GYP BOARD PTD CARPET SEE FINISH PLAN/SCHED 5/8" GYP BOARD PTD LVT FLOORING SEE FINISH PLAN/SCHED 4" RUBBER BASE LVT FLOORING SEE FINISH PLAN/SCHED CARPET SEE FINISH PLAN/SCHED TRIM MASTER SQUARE BASE TRANSISTION SBEK INTERIORS 12773 Sbeck Way Manhattan, NY 10029 PROJECT NUMBER: FARJOHN CONSTRUCTION SONES ENGINEERING 518 Augusta Way Manhattan, NY (316) 226-0111 REVISIONS RECORD: NO.DESCRIPTION: DATE: SYDNEY MARTINSON BEA KAPPLE ELIZABETH FREDRICK KARERRA MEZA DATE: 23-01 101 SEAPORT BLVD, SUITE 600 BOSTON, MA 02210 A5.2 05/02/23 NEXT Office FLOOR DETAILS FINAL SUBMISSION 3 TILE TO TILE BASE DETAIL Scale: 1 1/2" = 1' 0" 1 CARPET TO WALL BASE DETAIL Scale: 1/2" 1' 0" 2 LVT TO WALL BASE DETAIL Scale: 1 1/2" = 1' 0" 4 CARPET TO LVT TRANSISTION Scale: 1 1/2" = 1' 0" CONCRETE FLOOR STRUCTURE CONCRETE FLOOR STRUCTURE CONCRETE FLOOR STRUCTURE CONCRETE FLOOR STRUCTURE 5/8" BACKERBOARD 3 5/8" MTL BOTTOM TRACK ACOUSTIC BATTING INSULATION UP 3 4 6 D.8 E F G 7 D H E.2 F.6 54' 1/2" 34' 1/2" 29' 10" 39' 1/2" 28' 7 1/2" 12' 0 1/2" 13' 0 3/4" 13' 2 3/4" 13' 1 1/2" 15' 2" 26' 3/4" 29' 0" 29' 1/2" 49' 2" -0" 23' 7 1/4" 17'-93/4" 18' 9 3/4" 19' 3/4" 19' 7" 12' 1/2" 15' 4" 9' 6" 10'-0" 9' 1/2" 19' 1/2" 24' 1 1/2" 9' 1/2" 6' 0 3/4" 5' 0" 10' 1/2" 27' 1/2" 14' 3 1/2" 3/4" 11" 5' 9" 4' 9 3/4" 3/4" 8' 6" 29' 0 1/4" 20' 8" 2' -11 1/2" 20' 7 1/2" 20' 7 1/2" 10' 8 1/2" 13' 9 3/4" 26' 1/2" 13' 1 1/4" 18' 4 1/2" 5' 1 3/4" 1' 6" 1' 5" 4'-31/4" 2'-7 1/2" 1'-101/4" 1'-41/2" 9' 10" 1/4" 1/2" 123 WOMEN'S TOILETS MEN'S TOILETS 122 WORK STATION 110 LARGE MEETING SPACE 107 WORK CAFE 103 WELLNESS ROOM 105 QUIET ROOM 106 WORK STATION 112 TEAM SPACE 113 PROJECT ROOM PRIV. OFFICE 117 HOME OFFICE LAB 101 102 6' 1/2" 1/2" 2'-81/4" 101/2" 103/4" 1 A5.2 1 A5.2 A5.2 A5.2 4 A5.2 4 A5.2 3 A5.2 A5.2 SBEK INTERIORS 12773 Sbeck Way Manhattan, NY 10029 PROJECT NUMBER: FARJOHN CONSTRUCTION SONES ENGINEERING 518 Augusta Way Manhattan, NY (316) 226-0111 1018 Laramie St. Manhattan, NY (913) 260-1127 NO. DESCRIPTION: SYDNEY MARTINSON BEA KAPPLE ELIZABETH FREDRICK KARERRA MEZA DATE: 23-01 101 SEAPORT BLVD, SUITE 600 BOSTON, MA 02210 A1.4 05/02/23 NEXT Office FINISH PLAN FLOOR FINAL SUBMISSION FLOOR FINISH SCHEDULE NAME MANUFACTUER CARPET A COLOR ZONE MODULAR J+J FLOORING COLOR PRIME XL LVT J+J FLOORING TRUCOR FLOORING MOSS 3386 OLIVE 3375 ALABASTER OAK LEGEND 1 FINISH PLAN FLOORING ULTRASLATE HEXAGON MOSAIC EXISTING FLOORING WAYNE TILE ANTHRACITE GENERAL NOTES 1.ALL FLOORING SHOULD BE STORED AND INSTALLED IN ACCORDANCE WITH MANUFACTURER'S INSTRUCTIONS AND RECOMMENDATIONS. 2.CONTRACTOR TO PREPARE FLOORS TO RECEIVE NEW MATERIAL BY FOLLOWING MANUFACTURERS INSTRUCTIONS. 3.ALL ARROWS ARE RADIUS DIMENSION OF CURVE. 4.ALL FINISH MATERIALS AND FINISH ASSEMBLIES SHALL CONFORM TO THE REQUIREMENTS OF ALL CODES AND REGULATIONS OF ALL GOVERNMENTAL, AUTHORITIES HAVING JURISDICTION. ALL FINISHES MUST HAVE FLAME PREAD RATING OF 200 OR LESS, AND A SMOKE GENERATION RATING OF 450 OR LESS AS DETERMINED IN ASTM 84. 7.ALL SEAMS AND JOINT OF FINISH MATERIALS SHALL BE STRAIGHT, SMOOTH, AND CLEAN. 8.ALL RESPECTIVE INSTALLER SHALL ADVISE INNER SPACE OF LOCATION OF CHANGES IN DYE LOTS, BATCHES OR SIMILAR COLOR SHIFTS. 9.BEFORE PROCEEDING WITH PROCUREMENT, THE RESPECTIVE INSTALLER SHALL FIELD VERIFY DIMENSIONS TO ASSURE SUFFICIENT QUANTITIES OF MATERIALS TO COMPLETE THE WORK. 10.FLASH PATCH ALL AREAS WHERE FLOOR SURFACES ARE NOT SMOOTH, LEVEL OR TRUE, PRIOR WRITTEN APPROVAL OF INNER SPACE. 11.ALL FINISH FLOOR TRANSITIONS SHALL OCCUR AT THE CENTERLINE OF DOORS OR CASED OPENINGS, UNLESS OTHERWISE NOTED. 12.FINISHES CALLED FOR SHALL EXTEND OVER, UNDER, AND/OR BEHIND ANY ITEM OF BUILT-IN MILLWORK, EQUIPMENT, MIRRORS, ETC. AS INDICATED ON THE DRAWINGS. WALLCOVERING SHALL NOT HAVE SEAMS WITHIN SIX INCHES OF CORNER CUT INSIDE CORNERS ARE NOT PERMITTED. DISTANCE FROM MIDPOINT OF ARC DISTANCE FROM MIDPOINT OF ARC DISTANCE FROM MIDPOINT OF ARC DISTANCE FROM MIDPOINT OF ARC DISTANCE FROM MIDPOINT OF ARC 0'1' 4' 8' 16' SCALE: 3/32" = 1'-0" REMARKS CARPET B COLOR ZONE MODULAR STRAIGHT LAY STRAIGHT LAY
Wall Details
Con Docs

NEXT Office

Steelcase has a competition every year in which students at different universities use an empty office space provided by Steelcase and then given a type of company and requirements they need in a new office. This years business was NEXT, a global consumer robotics company based in Rhode Island.

In fall of 2022, during studio 5, we did the Steelcase NEXT competition. Steelcase hosts this competition every year where they provide a fictional company, an existing building, and a program. For our competition we were given a global consumer robotics company based in Rhode Island, NEXT Robotics. Our building was a high rise office building in Boston, MA where we inhabit half of a floor. We are limited to Steelcase furniture.

This was our first time designing on such a large scale and our first time doing commercial offices. The existing space was roughly 12,000 square feet. We had a list of spaces we had to include as well as their specific square footage requirements.

This project really pushed me and I struggled with the process of such a large space, but by the end of the project I was very proud and enjoyed the final product.

18

LEVEL 1

LEVEL 2

LEVEL 3

LEVEL

Denouement = the climax of a chain of events, usually when something is decided or made clear

When designing this space, the idea of hills was used throughout, derived from the hills of Boston. Within in the NEXT family, there are 6 different teams. Those 6 teams represent the levels, or steps, of the design process. Level 1, development and design. Level 2, engineering and testing. Level 3, retail and approaching market. Level 4, external market

19
Engineering Testing
4 Highly private Early design stage
Retail management Approaching market External engagement Marketing
CONCEPT DEVELOPMENT
Concept Development Concept Statement Company
Logo
20 UP 3 4 5 6 D.8 E G 7 D H E.2 F.6 589 SF Reception 101 1263 SF Work Cafe 149 838 SF Workstations 150 217 SF Resource Center 167 891 SF Workstations 168 138 SF Private Office 169 126 SF Private Office 171 253 SF Inclusive Design Lab 172 62 SF Phone 173 62 SF Phone 174 578 SF Wellness Room 175 167 SF Mother's Room 179 57 SF Phone 182 56 SF Phone 183 439 SF Large Meeting Room 184 112 SF Retail Mock-Up 185 156 SF Home Office Lab 186 112 SF Product Storage 187 251 SF Team Space 188 250 SF Team Space 189 309 SF Project Room 190 309 SF Project Room 191 253 SF Team Space 192 62 SF Phone 193 62 SF Phone 194 809 SF Workstations 195 139 SF Private Office 196 entrance reception work cafe large meeting room retail mock-up home office lab product storage
room wellness room
private
phone room
phone room phone room
DEVELOPMENT
mother’s
team space private office work stations project room inclusive design lab project room work stations work stations
office private office team space team space phone room
phone room
DESIGN
Block Diagram Bubble Diagram

Workstations

Longitudinal Section Cut

Workstations

Transverse Section Cut

Private Offices

Phone Rooms

Work Cafe Kitchen

Work Cafe

Project Rooms

Product Storage

Meeting Room

Private Office

Resource Center

Team Space

0' 4' 8' 16' 32'
Section Cuts

Perspectives

22
Work Cafe Kitchen Team Space Large Meeting Room Workstations Office Entry

EMAIL: KOM21203@gmail.com

WEBSITE: karerrameza.myportfolio.com THANK YOU!

PHONE: (913) 850-0624

LINKEDIN: www. linkedin.com/in/karerra-meza

23

Turn static files into dynamic content formats.

Create a flipbook
Issuu converts static files into: digital portfolios, online yearbooks, online catalogs, digital photo albums and more. Sign up and create your flipbook.
Karerra Meza Interior Design Portfolio by Karerra Meza - Issuu