Karen Chen Wang_Portifólio

Page 1


POR TIFÓ LIO

ArquiteturaeUrbanismo

URRÍCULO

Chen Wang 03/01/2001 RiodeJaneiro,RJ

Contato:

karencw2001@gmail.com

+55(21)96771-8686

https://www.linkedin.com/in/karenchenwang/

Formação:

ColégioPh 09/2012-11/2020 UnidadeBarra

PontifíciaUniversidadeCatólica deRiodeJaneiro 03/2021ArquiteturaeUrbanismo

Línguas:

Português

Chinês

Leitura -Fluente

Escrita -Intermediário Conversação -Fluente

Inglês

Leitura -Intermediário Escrita -Intermediário Conversação -Avançado H

Cursos:

IPStudio 2017-2021 CursodeDesenhoePintura

Brasas 2020-2023 CursodeInglês

Experiências:

Monitoria-ProjetonaÁreaResidencial 04/2022-12/2022

PontifíciaUniversidadeCatólicadeRiodeJaneiro

AuxilieiosprofessoresnoateliêdeprojetoresidencialdocursodearquiteturanaPUC,ondeosalunos sededicavamàcriaçãodecasasunifamiliares.

Minhafunçãoeraservircomopontedecomunicaçãoentreosalunoseosprofessores,facilitandouma trocamaiseficazemrelaçãoàsdúvidasquesurgiamduranteasaulas.Alémdisso,euofereciasuporte aosalunosqueencontravamdificuldadesnodesenvolvimentodeseusprojetos,orientando-osno processocriativo.

Estagiaria-SetordeProdutos 05/2023-08/2023

RJZCyrela

IngresseicomoestagiárianodepartamentodeprodutosdaincorporadoraRJZCyrela,umaárea responsávelpelaconcepçãodosprodutosdaempresa,comoprojetosdecondomínioseestandes. Noentanto,minhaatividadeprincipaleraauxiliarnaconcepçãodeideiasparaosprodutosem desenvolvimento.Euacompanhavadepertoaelaboraçãodosprojetosjuntoàminhasupervisoraetinha aoportunidadedeapresentarminhasprópriasideias,visandoalcançarasmelhoressoluções.Alémdisso, eurealizavaalteraçõesnosprojetosporcontaprópria,utilizandoprogramascomoAutoCAD,SketchUp, CorelDRAW,PhotoshopeInDesign.

Minhasresponsabilidadesincluíamocontroledeorçamentosenotas,ogerenciamentodocontatocom fornecedoreseaadministraçãodessesprocessosdentrodosistemainternodaempresa,garantindoque ascomprasocorressemdentrodosprazosestabelecidos.

Estefoimeuprimeiroestágio,eneleeumedepareicomumavariedadedesituaçõesquenuncahavia enfrentadoantes.Lidarcomoambientecorporativodeumaempresadegrandeporte,ondeeranecessário interagircomdiferentespessoasdiariamente,contribuiusignificativamenteparaoamadurecimentodos meuspensamentos,tornando-osmaisprofissionais.Consequentemente,percebiumareduçãonaminha timidezeumamaiorconfiançanocontatocomosoutros.Alémdisso,adquirinovasabordagensparao desenvolvimentodeprojetos,ampliandominhacriatividadeemdiversasáreasrelacionadasaosprojetos.

08/2023-03/2024

Estagiaria-Projetoexecutivo

CottiArquitetura

Duranteesseperíodo,tiveaoportunidadeprivilegiadadeinteragirdiretamentecomasconcepçõesdos projetos.Essaexperiênciameconcedeualiberdadeparacriarosambientesdemaneiraindividual, expressandominhacriatividadesemrestrições.Ocargoproporcionou-menãoapenasautonomia,mas tambémumvastoconhecimento,umavezqueestiveenvolvidaempraticamentetodasasetapasdos projetos,desdeoseuinícioatéaentregafinaldosapartamentosreformados.Essaimersãopermitiu-me umacompreensãomaisprofundadosdetalhesquemuitasvezespassamdespercebidosduranteo processo. DurantemeuestágionaCottiArquitetura,concentrei-menodesenhodosprojetosexecutivos,emum ambienteespecialmentededicadoàarquiteturadeinteriores.Nessecontexto,meufocoprincipaleraa realizaçãodereformasparaosambientesinternosdosapartamentos,visandoproporcionarsoluçõesmais eficientesparaautilizaçãodosespaçoseintroduzirnovasestéticasaoslares.

Minhasresponsabilidadesincluíamaelaboraçãodasprincipaisplantasnecessáriasparaasreformas, assimcomoodetalhamentodosobjetosquedemandavamfornecedoresexternos,comoarmáriosde marcenariaebancadasdemarmoraria.

Autocad/Sketchup/Vray

Autocad/Sketchup/Vray

Revit/Sketchup/Enscape

Autocad

scolaPúblicacomSistemaFDE

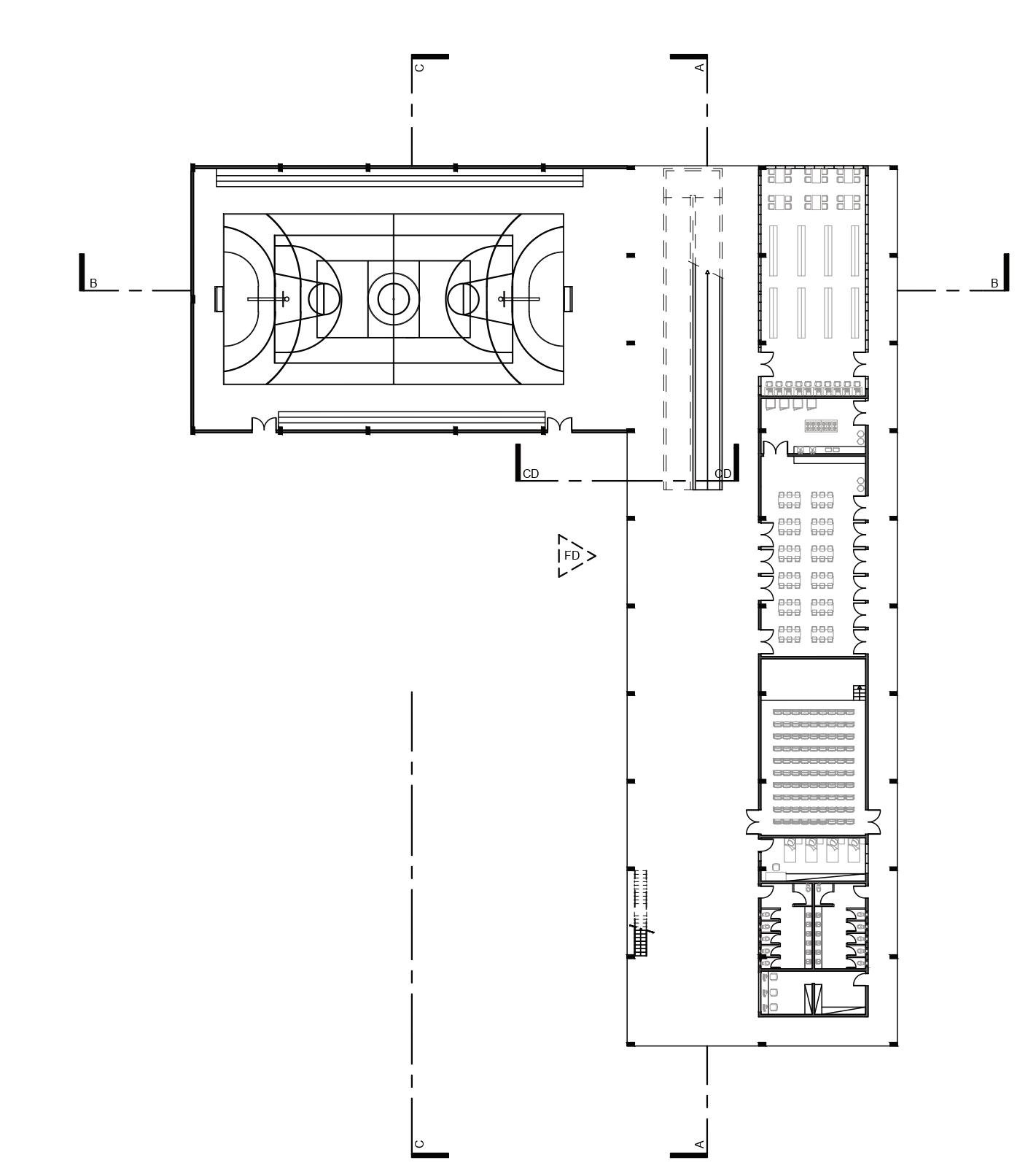
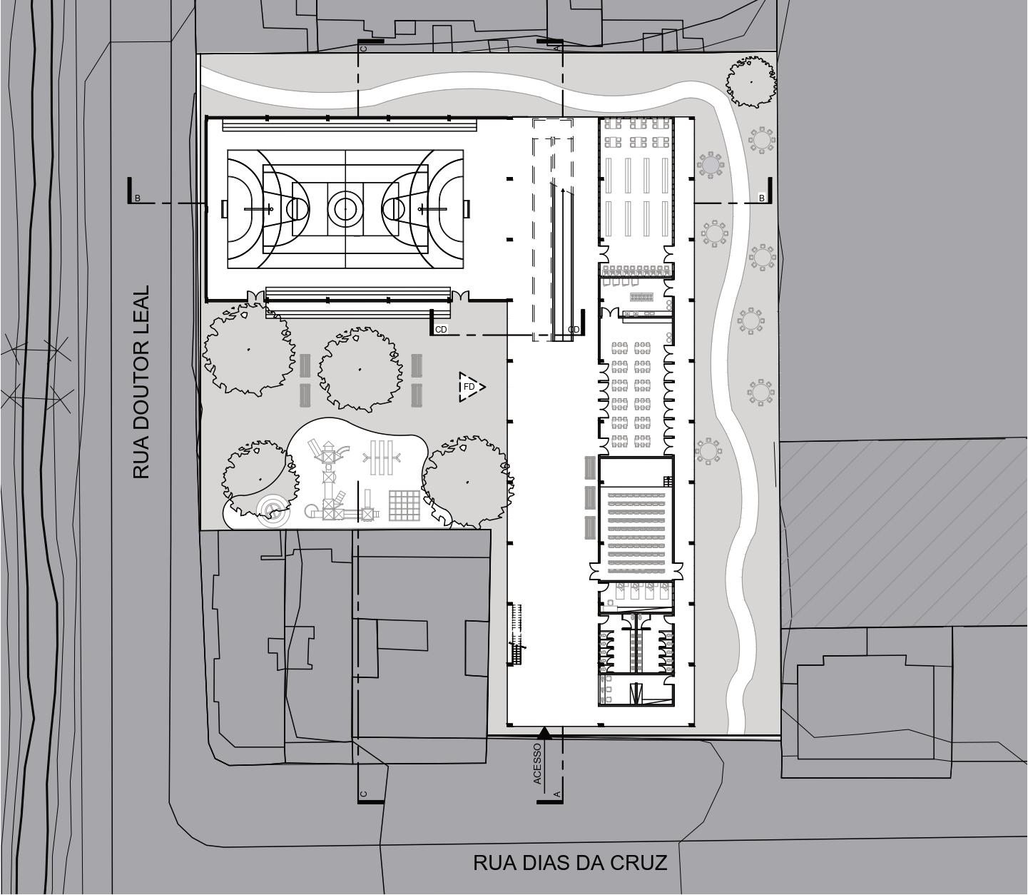
OBREOPROJETO:

DentrodoterrenolocalizadonoEngenhodeDentro,nacidadedoRiodeJaneiro,foi apresentadaumapropostaparaprojetarumaescolapúblicavoltadaparaalunosdoensino fundamentalIatéofundamentalII,incluindoobrigatoriamenteumaquadrapoliesportiva.

Nessecontexto,eranecessárioempregarosistemaestruturaldaFDE(Fundaçãoparao DesenvolvimentodaEducação)paraoprojetodaescola.Essaestratégiadeconstrução envolveousodepilarescomdimensõesde0,60mx0,30mparaformarmódulosde 10,80mx7,20m,ondeaproporçãoéde3espaçamentosde7,20miguala2espaçamentos de10,80m.Alémdisso,asvigaselajesutilizadastinhamalturasrespectivasde0,80me 0,20m.

CortedeDetalheConstrutivo& Elevaçãoampliadacorrespondente

Oterrenoestavalocalizadoemum bairrodensamentehabitado,efoinesse contextoqueminhaparceiraeeudecidimos criarumespaçodentrodaescolaque pudesseserutilizadopelosmoradores duranteosperíodosemqueaescolanão estivesseemfuncionamento.Nossoobjetivo eranãoapenasoferecereducação,mas tambémimplementaroutrasinfraestruturas quepudessemmelhoraraqualidadedevida dosresidenteslocais.

Biblioteca

Apartirdessaideia,todoopavimentotérreofoi concebidocomessepropósitoemmente.Nessa área,planejamosposicionarabiblioteca,o auditório,orefeitórioeaquadraesportiva,todos acessíveisaopúblico.

Todooprogramadaescolafoiconcentradoemuma lâmina,enquantoaoutralâminafoidedicada exclusivamenteàquadra,proporcionandouma visãomaisampladoseuinterior.Aestruturatem trêspavimentosdealturaeécompostapor10 módulosdedimensão.

UADRAQ

Aconfiguraçãodosmóduloscomplicouaconstruçãodaquadra,poisparaalcançarotamanho ideal,serianecessáriounirosmódulos,oqueresultarianapresençadeumpilarnomeiodo espaço,tornando-seumobstáculo.Porisso,optou-sepelousodetreliçasmetálicaspara sustentarotelhado.

Paraisso,foramempregadospilaresna quadracomumaextensãoadicionalno topo,servindocomosuporteparaas treliçasmetálicas.

Alémdisso,instalou-seumbrisena quadraparareduziraincidênciadireta deluzsolaremelhoraravisibilidade dosalunosduranteosexercícios.

Pilarcomponta paraapoiodatreliça
VistaInternadaQuadra
VistaInternadaQuadra
VistaExternadaQuadra

Planta1° Pavimento

SaladeAula

Planta2° Pavimento

Apósdefiniroprogramaparaotérreo,o1e2pavimentosforam projetadosparaatenderàsnecessidadeseducacionais.Esses pavimentosabrigamumtotalde18salasdeaula,alémdeoutros espaçoscoletivosdestinadosaosalunos,comosalasdecoordenação edeprofessoresparaumaadministraçãomaiseficientedos estudantes. Umdosaspectosimportantesdoprojetoforamoscorredores externos,osquaisforamposicionadosaoredordassalasemvezde entreelas.Eueminhaduplabuscamosgarantiriluminaçãoe ventilaçãonaturalparatodososespaçosdaescola,inclusiveparaas áreasdecirculação.

RuaDoutorBulhões/Leste

RuaRamiroMagalhães/Norte

RuaDoutorLeal/Oeste

Assalaseramamplamenteiluminadaseventiladasdevidoàsnumerosasjanelas basculantesqueocupavamsuasparedes,garantindoumaentradagenerosadeluz naturalearfresco.

FachadaLeste
CorteB-B
CorteC-C

CEMA

Centro Educacionaldo MeioAmbiente

OCentroEducacionaldoMeioAmbientefoium projetorealizadonafaculdade,queteveiníciocomaideia derevitalizaroHotelAcapulco,localizadoemCaboFrioe atualmenteabandonado.Porestarsituadoemumaárea depreservaçãoambiental,oprojetofoiconcebidode maneiraavalorizaroentornoefortalecerosentimentode preservaçãodanaturezanaspessoas.

Umdosprimeirospassosfoidemolirgrande partedotérreo,jáque,atualmente,ohoteléum grandeobstáculoqueimpedeaspessoasde apreciaremavistaparaanaturezaaoredor.Acriação deumaáreadepilotispermitiuapassagemdavista, integrandomelhoroambiente.

Demolir Construir

lanta1Pavimento:P

1.ÁreaLanchonete

2.Biblioteca

3.Laboratório

4.Sanitário

5.Saladeinformática

6.Administração

7.Escritório

8.SalasdeAula

Noprimeiropavimentomantivemaioriadasparedesparapodercriar osambientesqueseriamutilizadospelaspessoasdocentroeducacional, apenasdemolindopoucasparedesparaampliarasala.

Abrimosbastantejanelastantoparaocorredorquantoparafora, garantindoatravessamentodevista,iluminaçãoeventilaçãotambémnesse andarsuperior. obre1Pavimento:S

orteA-A:C

orteB-B:C

achada Nordeste:
achada Sudoeste: F
achada Noroeste: F
achada Sudeste: F

difício Costura E

SãoCristóvãopossuiumgrandecontextohistóricoeéconsideradoum bairrodepassagempormuitos.Apresentaumpolocomerciallocalizadono LargodaCancela,alémdepontosturísticosimportantes,áreasindustriaise,ao mesmotempo,éemsuamaioriaresidencial.Ditoisso,épossívelchegarà conclusãodequeobairrosedesenvolveudeformadesorganizada,com edifíciosqueforamseencaixandounsnosoutrossemumpadrão.

OprojetofoiinspiradonobairroSãoCristóvão,trazendosuaessência atravésdesuascaracterísticasmaismarcantes,sejamelasdefeitosouvirtudes. Porisso,háodeslocamentodosblocoseumtérreopúblico,mostrandoque,no final,pormaiscaóticoqueSãoCristóvãopossaparecer,épossível"costurar" tudoefazê-lofuncionardeformaorganizadasemperdersuaessência.

deias Projetuais: I

Apartirdofatoqueoterrenoseencontra pertodolargodacancela,áreapredominante comercial,foipensandoemtrazerparatérreo doprojetoumacontinuidadedaRuaSãoLuiz Gonzaga,proporcionandoumaáreapública, comointuitodegerarumfluxodepessoasaté ocampodeSãoCristóvão.Alémdegeraresse fluxofoipensandoemumpilotisparaum ambientedeestar,trazendoumasegunda opçãoparaaquelesquefrequentamolargo presentenafrentedoterreno.

1-Lojas

2-Administração

3-BanheiroPCD

4-BHO.Masculino

5-BHO.Feminino

6-Instalações

7-Portaria03

8-Portaria02

9-Portaria01

ParamanteraessênciadeintegraçãodobairroSãoCristóvão aoprojeto,aseleçãodavegetaçãofoirealizadacomcuidado.Foram escolhidasinicialmenteduasárvoresprincipais:aSapucaia,comsuas floresrosastípicasdaQuintadaBoaVista,eoPau-ferro,amplamente utilizadonopaisagismolocal.Paracomplementaropaisagismono térreo,foramadicionadasmaisduasespécies.APata-de-vaca,uma árvoredeportemenor,proporcionaumavariaçãodealturaque enriqueceacomposiçãoespacial.JáoIpêRosa,comsuasflores rosadas,harmonizacomaSapucaia,introduzindoumtoquedecorao terreno.DevidoaograndeportedaSapucaia,foipossívelplantá-la apenasnoiníciodoterreno.

JáqueotérreosetornariapúblicooPucseriaexclusivoparaosmoradores, noqualserviriadeintercessãoentreosedifícioscomapresençadeáreascomuns, comosalãodefestas,piscina,áreagourmet,coworkingesalãodejogos.Jáqueo mesmoseencontranaáreacomvistaparaopavilhão,foipensandoquesua circulaçãoocorressepelaslateraisdopavimento,trazendoavistaparaopercurso ecolocandoosambientescomunsnocentrodoedifício.

Sapucaia Pau-Ferro
IpêRosa Pata-de-Vaca avimentodeusocomum:

avimentosTipos:P

Umdosdesafiosdesteprojetofoiacomodar102unidadesresidenciais,distribuídasobrigatoriamente emtrêstiposdeapartamentosdistintos:Studio,de2quartosede3quartos.Essasunidadesforam organizadasemtrêsedifíciosseparados,representandoosgrandespolosdobairroSãoCristóvão,comoo Cadeg,oEstádiodeSãoJanuárioeaQuintadaBoaVista,queatraemgrandespúblicos,mascarecemdeuma conexãodiretaentresi.Adisposiçãodospavimentosnesteprojetorefleteessaideiadesegmentaçãode públicosdistintos,considerandoqueosfuturosproprietáriosdestudiosnãosãoosmesmosqueadquirirão apartamentosde3quartos.

Noentanto,essafaltadeintegraçãonãoéconsideradabenéfica,nemparaobairronemparaoprojeto, umavezqueainteraçãoentreaspessoasésemprevalorizada.Poressarazão,foicriadoumespaçodeuso comumcentralnoedifício,funcionandocomoumapontequeconectatodososedifícioseproporcionandoum pontodeencontroparatodososmoradores.

2Quartos

3Quartos

orteA-A:C orteB-B:C

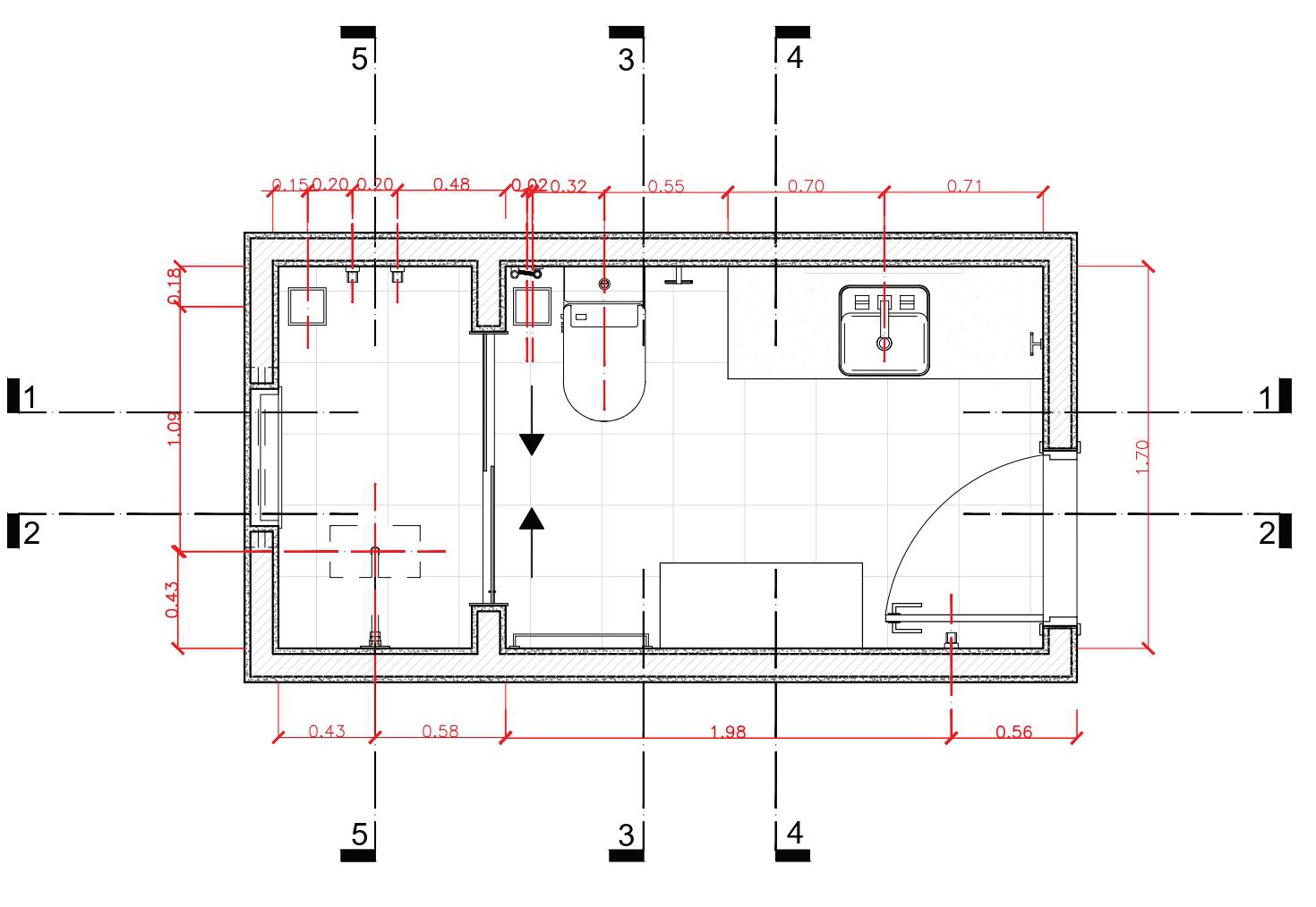
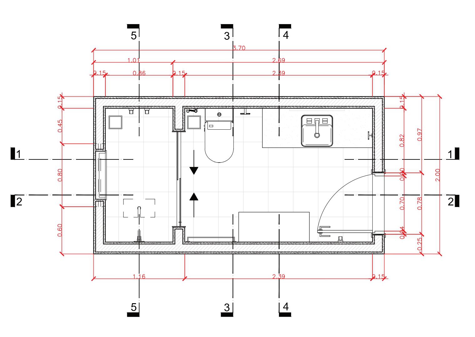
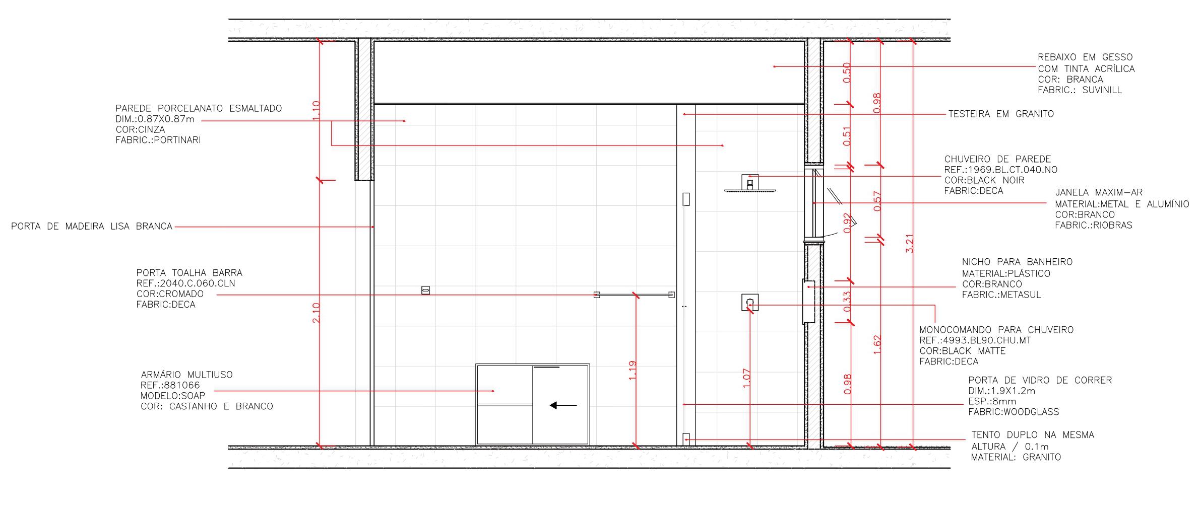
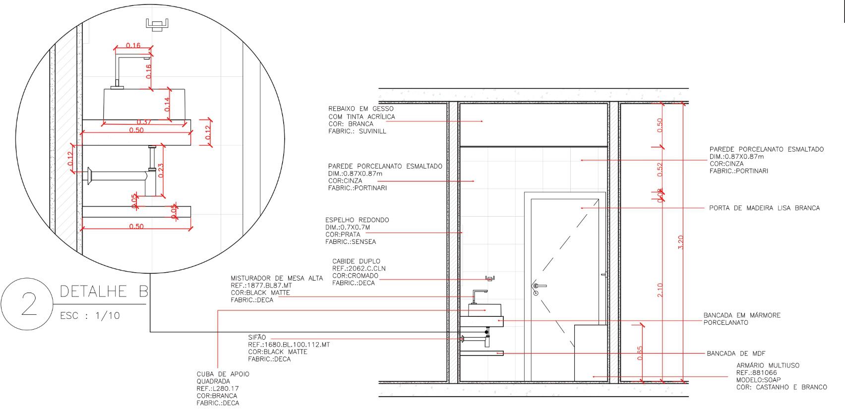
etalhamentoD anheiroB de

Estetrabalhofoirealizadonoiníciodaminhafaculdadeepossuiumfocoespecialno usodoAutoCAD.Decidiincluí-loaquiporqueeledemonstradeformaeficazasminhas habilidadescomestesoftware.

lantadeespecificação:

lantadepontos Hidrossanitários: P

lantaBaixa:P

orte1-1:C

C

orte3-3:C

orte4-4:C

orte5-5:C

orte2-2:
lantaBaixa:P

Obrigada

Turn static files into dynamic content formats.

Create a flipbook
Issuu converts static files into: digital portfolios, online yearbooks, online catalogs, digital photo albums and more. Sign up and create your flipbook.