


![]()



Estudio creado en 2022, dirigido en crear espacios arquitectónicos emotivos en bases del diseño, función, tecnología, forma y materiales.

JC HATS CORPORATIVO, ZAPOPAN, JAL. | 2025
03

UNIVERSE CAPS, PLAZA CEIBA CLN., SIN. | 2024

JC HATS, LOBBY 33 ZAPOPAN, JAL. | 2024
04

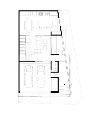
CASA LUZ Y SOMBRA, CLN., SIN. | 2024


JC HATS, PLAZA NUS MAZATLÁN, SIN. | 2024

JC HATS, PLAYA PACIFICO MAZATLÁN, SIN. | 2024
MEXA CAPS, GRAN PLAZA MAZATLÁN, SIN. | 2024
CAMPESTRE HAVARDIA, CLN., SIN. | 2024 07 08

C O N T E N

JC HATS, ANDENES, HERMOSILLO, SON. | 2023


CASA ZUL5916, CLN., SIN. | 2023
11 12
SALON Y JARDIN SALIX, CLN., SIN. | 2023

COCINA ANDALUCIA, CLN., SIN. | 2023


CIELO, CLN., SIN. | 2025 PLAZA NORTH, CLN., SIN. | 2024


C O N T E N
17

RANCHO LOS RAMONES, CLN., SIN. | 2023


JC HATS, TIJUANA, B.C. | 2023
19 20

CASA BENITO, DISEÑO INT. CLN., SIN. | 2023
JC CORPORATIVO DISEÑO INT. CLN., SIN. | 2022

CLASSIC HAUS, DISEÑO INT. CLN., SIN. | 2023
23

VILLA HAUS, DISEÑO INT. CLN., SIN. | 2022

MOON HAUS, DISEÑO INT. CLN., SIN. | 2022
C O N T E N I



Diseñado y construido con una visión clara: crear un espacio
Diseñado y construido con una visión clara: crear un espacio soñado. Un lugar que inspire a la par de crear un refugio, soñado. Un lugar que inspire a la par de crear un refugio, donde cada detalle refleje la identidad única de quien lo donde cada detalle refleje la identidad única de quien lo habita. habita.


Dicha identidad se ve plasmada en cada detalle de este Dicha identidad se ve plasmada en cada detalle de este proyecto. Desde un tipo de diseño moderno y futurista, hasta proyecto. Desde un tipo de diseño moderno y futurista, hasta materiales, mobiliario y accesorios, que brindan un sensación materiales, mobiliario y accesorios, que brindan un sensación de elegancia y sorpresa. de elegancia y sorpresa.











Resultado final Resultado final


Un punto importante de este proyecto fue el darle en cada
Un punto importante de este proyecto fue el darle en cada paso de su recorrido al usuario un vistazo de la historia e paso de su recorrido al usuario un vistazo de la historia e imagen de la marca. Creando una experiencia de conexión imagen de la marca. Creando una experiencia de conexión con el espacio. con el espacio.










Oficina de dirección Oficina de dirección








Área de oficinas y coworking
Área de oficinas y coworking



El diseño de los baños refleja una estética sofisticada y funcional. Cada detalle está pensado para brindar confort y privacidad.




La personalización permite crear un espacio
La personalización permite crear un espacio soñado. soñado.





Un lugar oculto, diseñado Un lugar oculto, diseñado para escapar del ruido para escapar del ruido cotidiano y sumergirse en cotidiano y sumergirse en una atmósfera de misterio, una atmósfera de misterio, elegancia y exclusividad. elegancia y exclusividad.






Cada rincón está pensado para Cada rincón está pensado para respirar marca respirar marca, desde los espacios , desde los espacios expositivos hasta las zonas de reunión, donde la estética y funcionalidad expositivos hasta las zonas de reunión, donde la estética y funcionalidad conviven sin concesiones. El resultado es una oficina contemporánea que conviven sin concesiones. El resultado es una oficina contemporánea que no solo proyecta la fuerza y autenticidad de JC HATS, sino que también no solo proyecta la fuerza y autenticidad de JC HATS, sino que también se convierte en un punto de encuentro entre moda, diseño y arquitectura. se convierte en un punto de encuentro entre moda, diseño y arquitectura.

Este proyecto materializa la esencia vanguardista de JC HATS en un Este proyecto materializa la esencia vanguardista de JC HATS en un espacio comercial contemporáneo. La tienda se concibe como un espacio comercial contemporáneo. La tienda se concibe como un contenedor dinámico de marca, donde el diseño arquitectónico potencia contenedor dinámico de marca, donde el diseño arquitectónico potencia la experiencia del usuario a través de materiales modernos, geometrías la experiencia del usuario a través de materiales modernos, geometrías limpias e iluminación envolvente. limpias e iluminación envolvente.
Cada área está pensada para exhibir, explorar e interactuar, Cada área está pensada para exhibir, explorar e interactuar, convirtiendo la tienda en un punto de encuentro entre moda, cultura y convirtiendo la tienda en un punto de encuentro entre moda, cultura y arquitectura. arquitectura.














Inspirado en un lenguaje futurista y tecnológico, el proyecto plantea una tienda que trasciende el punto de venta tradicional, apostando por la innovación espacial, la estética minimalista y la inmersión sensorial.





El uso de materiales como tipo cemento, acero inoxidable, espejos, acrílicos retroiluminados y superficies digitales genera una atmósfera que remite a un universo alternativo: geométrico, pulcro, casi etéreo.




Una vivienda contemporánea que juega con la dualidad de volúmenes sólidos y vacíos, luz y sombras. Su diseño minimalista utiliza planos blancos, madera vertical y piedra oscura para generar una estética sobria y elegante. La volumetría es limpia y poderosa, diseñada para brindar privacidad, confort térmico y una conexión sutil con el entorno urbano.









El proyecto apuesta por una volumetría limpia y cerrada El proyecto apuesta por una volumetría limpia y cerrada hacia el exterior, priorizando la privacidad y el silencio hacia el exterior, priorizando la privacidad y el silencio visual. Los vanos están colocados de forma estratégica visual. Los vanos están colocados de forma estratégica para capturar luz natural sin exponer directamente el para capturar luz natural sin exponer directamente el iinterior. nterior.



La relación con el cielo se convierte en protagonista: La relación con el cielo se convierte en protagonista: aperturas cenitales y ranuras verticales revelan el paso aperturas cenitales y ranuras verticales revelan el paso del tiempo a través de la luz y la sombra, creando una del tiempo a través de la luz y la sombra, creando una arquitectura viva y sensible. arquitectura viva y sensible.












“Privacidad, sombra y cielo: arquitectura para mirar “Privacidad, sombra y cielo: arquitectura para mirar hacia adentro.” hacia adentro.”






La tienda JC HATS representa un concepto comercial contemporáneo donde producto, experiencia y diseño contemporáneo donde producto, experiencia y diseño arquitectónico convergen para ofrecer una experiencia arquitectónico convergen para ofrecer una experiencia de compra inmersiva y dinámica. de compra inmersiva y dinámica.
La tienda JC HATS representa un concepto comercial


El diseño interior apuesta por un lenguaje futurista y El diseño interior apuesta por un lenguaje futurista y monocromático, con predominancia de tonos negros, monocromático, con predominancia de tonos negros, blancos y luces integradas, que enmarcan el producto blancos y luces integradas, que enmarcan el producto como pieza protagonista. como pieza protagonista.





Los muros curvos con módulos repetitivos de exhibición
Los muros curvos con módulos repetitivos de exhibición generan un ritmo visual envolvente, permitiendo una generan un ritmo visual envolvente, permitiendo una exposición organizada y atractiva de las colecciones. exposición organizada y atractiva de las colecciones.
El proyecto no solo responde a necesidades comerciales, El proyecto no solo responde a necesidades comerciales, sino que eleva la experiencia del usuario, transformando la sino que eleva la experiencia del usuario, transformando la compra en un recorrido visual y sensorial. compra en un recorrido visual y sensorial.



El diseño interior de MEXA CAPS se plantea como un El diseño interior de MEXA CAPS se plantea como un espacio funcional, limpio y altamente optimizado para la espacio funcional, limpio y altamente optimizado para la exhibición masiva de producto. La tienda responde a un exhibición masiva de producto. La tienda responde a un concepto de orden visual y máxima visibilidad. concepto de orden visual y máxima visibilidad.











Este proyecto propone una isla comercial costera que celebra
Este proyecto propone una isla comercial costera que celebra la esencia vibrante, fresca y juvenil de la marca JC HATS, la esencia vibrante, fresca y juvenil de la marca JC HATS, fusionando diseño arquitectónico con identidad de playa y fusionando diseño arquitectónico con identidad de playa y estilo urbano. Ubicada estratégicamente en Mazatlán, Sinaloa, estilo urbano. Ubicada estratégicamente en Mazatlán, Sinaloa, la isla funciona como un punto de atracción visual y comercial, la isla funciona como un punto de atracción visual y comercial, pensado para maximizar el impacto del producto en un pensado para maximizar el impacto del producto en un entorno turístico. entorno turístico.



En su interior, la organización del mobiliario permite una En su interior, la organización del mobiliario permite una exhibición a 360°, donde las gorras se presentan como exhibición a 360°, donde las gorras se presentan como objetos icónicos. Cada vista está pensada para capturar la objetos icónicos. Cada vista está pensada para capturar la atención de los visitantes desde cualquier ángulo del espacio atención de los visitantes desde cualquier ángulo del espacio público. público.




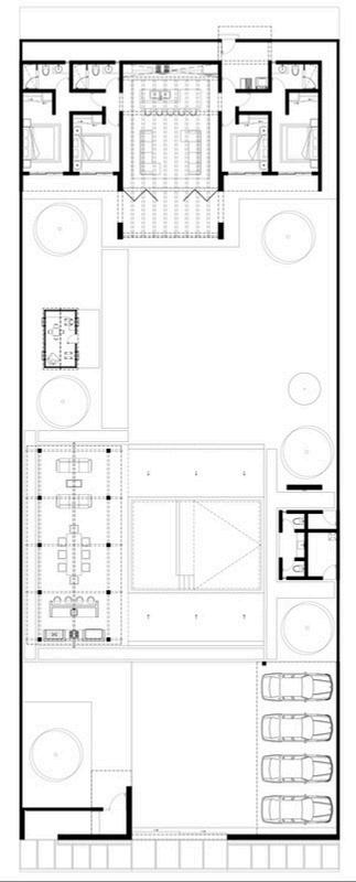
Havardia es un proyecto residencial campestre concebido Havardia es un proyecto residencial campestre concebido para integrarse de forma armónica con el entorno natural, para integrarse de forma armónica con el entorno natural, generando una atmósfera de descanso, contemplación y generando una atmósfera de descanso, contemplación y calidez. El diseño se inspira en la arquitectura vernácula
calidez. El diseño se inspira en la arquitectura vernácula reinterpretada desde un lenguaje contemporáneo: sobrio, reinterpretada desde un lenguaje contemporáneo: sobrio, matérico y profundamente conectado con el paisaje. matérico y profundamente conectado con el paisaje.







El conjunto se organiza en un solo nivel, permitiendo una relación fluida entre interior y exterior, con grandes ventanales que enmarcan el jardín y permiten la entrada de luz natural durante todo el día. La vivienda se protege con muros en abados como chukum, piedra y block arquitectónico aparente, aportando textura, calidez y autenticidad.

Este espacio enmarca un juego matérico entre dos Este espacio enmarca un juego matérico entre dos elementos contrastantes: el muro de block elementos contrastantes: el muro de block arquitectónico expuesto, de textura rústica y tonalidad arquitectónico expuesto, de textura rústica y tonalidad cálida, y el muro de acabado chukum, de superficie cálida, y el muro de acabado chukum, de superficie tersa y matiz neutro. tersa y matiz neutro.


Ambos materiales se integran en un gesto arquitectónico Ambos materiales se integran en un gesto arquitectónico limpio, donde la luz natural revela sus diferencias táctiles limpio, donde la luz natural revela sus diferencias táctiles y cromáticas, generando una atmósfera introspectiva y y cromáticas, generando una atmósfera introspectiva y silenciosa. silenciosa.







Diseñada como un elemento Diseñada como un elemento central del espacio, la alberca central del espacio, la alberca destaca por su acabado en destaca por su acabado en chukum, un revestimiento natural chukum, un revestimiento natural de origen maya que aporta textura, de origen maya que aporta textura, tonalidad cálida y frescura visual. tonalidad cálida y frescura visual. El diseño minimalista, junto con la El diseño minimalista, junto con la iluminación empotrada y el uso de iluminación empotrada y el uso de materiales naturales, acentúa la materiales naturales, acentúa la serenidad del entorno y convierte a serenidad del entorno y convierte a esta alberca en un oasis esta alberca en un oasis contemporáneo. contemporáneo.




El agua cristalina, en interacción con la luz solar, revela un El agua cristalina, en interacción con la luz solar, revela un juego óptico fascinante: inicia con una apariencia translúcida y juego óptico fascinante: inicia con una apariencia translúcida y luminosa en las zonas poco profundas, para oscurecerse de luminosa en las zonas poco profundas, para oscurecerse de forma gradual conforme aumenta la profundidad, generando forma gradual conforme aumenta la profundidad, generando una lectura visual de capas y una sensación envolvente. una lectura visual de capas y una sensación envolvente.


No hay sueño pequeño. No hay sueño pequeño.









Estos corredores no solo conectan, también invitan a

Estos corredores no solo conectan, también invitan a pausar, observar y sentir cómo la arquitectura dialoga pausar, observar y sentir cómo la arquitectura dialoga con el cielo abierto. con el cielo abierto.



Los acabados en tonos blancos y chukum aportan


Los acabados en tonos blancos y chukum aportan calidez, mientras que los acentos en negro como calidez, mientras que los acentos en negro como grifería, ventiladores y luminarias generan contraste y grifería, ventiladores y luminarias— generan contraste y modernidad. Cada espacio fue concebido para ofrecer modernidad. Cada espacio fue concebido para ofrecer confort, iluminación precisa y una atmósfera serena. confort, iluminación precisa y una atmósfera serena.




El diseño de esta cocina fusiona elementos tradicionales El diseño de esta cocina fusiona elementos tradicionales y rústicos con una ejecución moderna. Como y rústicos con una ejecución moderna. Como protagonista una barra de parota maciza, que aporta protagonista una barra de parota maciza, que aporta calidez y carácter artesanal. Los detalles en talavera dan calidez y carácter artesanal. Los detalles en talavera dan textura y color al revestimiento, evocando la identidad textura y color al revestimiento, evocando la identidad mexicana. mexicana.




Proyecto de interiorismo para tienda de gorras JC HATS, en el que se prioriza la experiencia del usuario a través de una distribución funcional, acabados monocromáticos y un lenguaje visual limpio.
El plafón con líneas de luz LED guía al visitante hacia el punto focal, mientras que el mobiliario en blanco y negro genera contraste y orden.







El mobiliario fue diseñado a medida para responder a necesidades El mobiliario fue diseñado a medida para responder a necesidades específicas de exhibición y operación, integrando acabados pulcros y específicas de exhibición y operación, integrando acabados pulcros y líneas contemporáneas. líneas contemporáneas.





El proyecto consistió en una intervención puntual que transformó por completo la imagen de la vivienda, mediante una ampliación superior y un rediseño contemporáneo de fachada.
Se propuso un volumen limpio y geométrico que enmarca la terraza, utilizando líneas inclinadas para generar dinamismo y profundidad.

ZUL5916, CULIACÁN, SIN.
2023



El uso de materiales como tipo madera, cristal templado

El uso de materiales como tipo madera, cristal templado y aplanado blanco acentúa la elegancia y modernidad y aplanado blanco acentúa la elegancia y modernidad del conjunto. La iluminación destaca los ángulos y realza del conjunto. La iluminación destaca los ángulos y realza el carácter del proyecto durante la noche, logrando una el carácter del proyecto durante la noche, logrando una presencia imponente desde la calle. presencia imponente desde la calle.






La propuesta arquitectónica para Salix responde a una visión contemporánea, elegante y funcional, ideal para experiencias contemporánea, elegante y funcional, ideal para experiencias memorables. El diseño parte de una volumetría sobria y lineal, con un memorables. El diseño parte de una volumetría sobria y lineal, con un lenguaje moderno que integra materiales como concreto aparente, lenguaje moderno que integra materiales como concreto aparente, celosías metálicas, muros verdes y grandes ventanales que conectan celosías metálicas, muros verdes y grandes ventanales que conectan interior y exterior. interior y exterior.
La propuesta arquitectónica para Salix responde a una visión




Cocina integral diseñada a la medida. Cocina integral diseñada a la medida. Un espacio donde la Un espacio donde la funcionalidad se encuentra con la estética. Materiales cálidos, funcionalidad se encuentra con la estética. Materiales cálidos, líneas limpias y una isla central que se convierte en el alma líneas limpias y una isla central que se convierte en el alma del hogar. del hogar.



Arquitectura introspectiva, sobria y elegante. Arquitectura introspectiva, sobria y elegante. Un volumen monolítico que se protege del exterior, priorizando Un volumen monolítico que se protege del exterior, priorizando la privacidad y el control de la luz. la privacidad y el control de la luz.






Una plaza urbana concebida como punto de encuentro y

Una plaza urbana concebida como punto de encuentro y circulación libre, donde la arquitectura dialoga con la circulación libre, donde la arquitectura dialoga con la naturaleza, lo comercial y lo cotidiano. naturaleza, lo comercial y lo cotidiano.











Este proyecto parte de una visión
Este proyecto parte de una visión introspectiva de la arquitectura: cerrarse introspectiva de la arquitectura: cerrarse al exterior para abrirse hacia el interior, al exterior para abrirse hacia el interior, generando un ambiente privado, seguro generando un ambiente privado, seguro y sereno. y sereno.






El diseño enfatiza el contraste de
El diseño enfatiza el contraste de materiales: concreto, madera y metal, así materiales: concreto, madera y metal, así como una paleta monocromática que como una paleta monocromática que aporta elegancia y modernidad. La aporta elegancia y modernidad. La volumetría juega con planos limpios y volumetría juega con planos limpios y líneas rectas, generando una fachada que líneas rectas, generando una fachada que comunica orden, protección y carácter. comunica orden, protección y carácter.



Este proyecto de interiorismo parte de la premisa de crear un Este proyecto de interiorismo parte de la premisa de crear un ambiente acogedor, luminoso y sofisticado, donde cada ambiente acogedor, luminoso y sofisticado, donde cada elemento cumpla una función estética y funcional. elemento cumpla una función estética y funcional.




El corazón de este hogar se define por una cocina de El corazón de este hogar se define por una cocina de concepto abierto con barra central tipo isla, diseñada para ser concepto abierto con barra central tipo isla, diseñada para ser tanto un área de trabajo eficiente como un punto de reunión tanto un área de trabajo eficiente como un punto de reunión social. social.


El diseño de este espacio íntimo busca transmitir calma, El diseño de este espacio íntimo busca transmitir calma, sofisticación y funcionalidad mediante una atmósfera sofisticación y funcionalidad mediante una atmósfera cálida, elegante y envolvente. cálida, elegante y envolvente.








El diseño de esta fachada se fundamenta en los principios de El diseño de esta fachada se fundamenta en los principios de la arquitectura introspectiva, priorizando la privacidad, el la arquitectura introspectiva, priorizando la privacidad, el resguardo y la experiencia interior frente a la exposición resguardo y la experiencia interior frente a la exposición exterior. La composición volumétrica busca contener y exterior. La composición volumétrica busca contener y proteger, generando un lenguaje sobrio y elegante. proteger, generando un lenguaje sobrio y elegante.



La geometría limpia y el juego de planos crean un La geometría limpia y el juego de planos crean un ritmo visual que enmarca el espacio sin exhibirlo, ritmo visual que enmarca el espacio sin exhibirlo, construyendo una fachada que habla hacia construyendo una fachada que habla hacia adentro. adentro.

Esta casa de campo está concebida como un refugio natural y Esta casa de campo está concebida como un refugio natural y atemporal, en diálogo directo con el paisaje. La arquitectura atemporal, en diálogo directo con el paisaje. La arquitectura responde a una estética rústica contemporánea, combinando responde a una estética rústica contemporánea, combinando materiales tradicionales como piedra, madera y ladrillo con materiales tradicionales como piedra, madera y ladrillo con una composición limpia y funcional que favorece la una composición limpia y funcional que favorece la convivencia, el descanso y la conexión con el entorno. convivencia, el descanso y la conexión con el entorno.








Este espacio recreativo fue pensado como un lugar de
Este espacio recreativo fue pensado como un lugar de contemplación, reunión y descanso, integrando contemplación, reunión y descanso, integrando funcionalidad y estética en armonía con el paisaje. funcionalidad y estética en armonía con el paisaje.




El espacio, compacto pero de alto impacto visual, está
El espacio, compacto pero de alto impacto visual, está orientado a una experiencia de usuario clara y envolvente. orientado a una experiencia de usuario clara y envolvente.
La envolvente de cristal genera transparencia y apertura

La envolvente de cristal genera transparencia y apertura visual hacia el exterior, permitiendo una exhibición continua de visual hacia el exterior, permitiendo una exhibición continua de producto desde todos los ángulos. producto desde todos los ángulos.



La sala principal destaca por su paleta neutra enriquecida con La sala principal destaca por su paleta neutra enriquecida con texturas suaves, mobiliario de líneas limpias y un impactante texturas suaves, mobiliario de líneas limpias y un impactante cuadro artístico que actúa como punto focal. El uso del cuadro artístico que actúa como punto focal. El uso del lambrin tipo madera aporta ritmo visual y profundidad, lambrin tipo madera aporta ritmo visual y profundidad, generando contraste con los tonos claros y la iluminación generando contraste con los tonos claros y la iluminación puntual tipo acento. puntual tipo acento.





El comedor, recámara y recibidor retoman este diálogo de El comedor, recámara y recibidor retoman este diálogo de contrastes mediante detalles en negro mate, acentos dorados contrastes mediante detalles en negro mate, acentos dorados y composiciones geométricas. Se da especial atención a la y composiciones geométricas. Se da especial atención a la integración de elementos decorativos como espejos, obras de integración de elementos decorativos como espejos, obras de arte y textiles que equilibran lo funcional con lo emocional. arte y textiles que equilibran lo funcional con lo emocional.



El diseño integra una barra funcional y libreros empotrados, El diseño integra una barra funcional y libreros empotrados, que permiten transicionar con facilidad entre lo social y lo que permiten transicionar con facilidad entre lo social y lo privado, entre lo activo y lo introspectivo. Detalles como la privado, entre lo activo y lo introspectivo. Detalles como la alfombra de líneas geométricas, el arte mural vibrante y la alfombra de líneas geométricas, el arte mural vibrante y la iluminación puntual completan un ambiente que invita a iluminación puntual completan un ambiente que invita a habitarlo de múltiples formas, sin perder identidad ni estilo. habitarlo de múltiples formas, sin perder identidad ni estilo.



El proyecto de diseño interior para estas oficinas El proyecto de diseño interior para estas oficinas corporativas parte de una visión joven, audaz y corporativas parte de una visión joven, audaz y dinámica, que busca romper con la rigidez dinámica, que busca romper con la rigidez tradicional de los espacios laborales para dar paso tradicional de los espacios laborales para dar paso a un entorno creativo, versátil y con fuerte identidad a un entorno creativo, versátil y con fuerte identidad de marca. de marca.



Cada área fue concebida para potenciar la productividad y el Cada área fue concebida para potenciar la productividad y el sentido de pertenencia de los usuarios, a través de un sentido de pertenencia de los usuarios, a través de un lenguaje visual vibrante y contemporáneo, donde el color, el lenguaje visual vibrante y contemporáneo, donde el color, el arte urbano y la iluminación juegan un papel protagónico. arte urbano y la iluminación juegan un papel protagónico.













Este diseño de recámara infantil fue concebido como un Este diseño de recámara infantil fue concebido como un universo lúdico y seguro, donde cada elemento despierta la universo lúdico y seguro, donde cada elemento despierta la imaginación y refuerza la individualidad. La propuesta se imaginación y refuerza la individualidad. La propuesta se inspira en un paisaje nocturno estelar, utilizando una paleta de inspira en un paisaje nocturno estelar, utilizando una paleta de colores oscuros con acentos cálidos, estrellas en los muros y colores oscuros con acentos cálidos, estrellas en los muros y luz indirecta para crear una atmósfera mágica y acogedora. luz indirecta para crear una atmósfera mágica y acogedora.


Este diseño transforma la habitación en una experiencia: Este diseño transforma la habitación en una experiencia: un lugar donde dormir, explorar, aprender y soñar son un lugar donde dormir, explorar, aprender y soñar son parte del día a día. parte del día a día.




La recámara principal fusiona estética hotelera con calidez residencial. La recámara principal fusiona estética hotelera con calidez residencial. El cabecero tapizado de doble altura se convierte en punto focal, El cabecero tapizado de doble altura se convierte en punto focal, enmarcado por muros con paneles y espejos verticales que amplifican enmarcado por muros con paneles y espejos verticales que amplifican la percepción del espacio. La selección de arte contemporáneo y la percepción del espacio. La selección de arte contemporáneo y piezas escultóricas aporta carácter y personalidad. piezas escultóricas aporta carácter y personalidad.



El baño se concibe como un spa privado, con una distribución El baño se concibe como un spa privado, con una distribución que prioriza la amplitud visual, la privacidad y la conexión con que prioriza la amplitud visual, la privacidad y la conexión con el exterior. el exterior.




El diseño de este conjunto residencial se caracteriza por su El diseño de este conjunto residencial se caracteriza por su enfoque contemporáneo y elegante, pensado para ofrecer una enfoque contemporáneo y elegante, pensado para ofrecer una experiencia sensorial de confort, sofisticación y funcionalidad. experiencia sensorial de confort, sofisticación y funcionalidad. Cada espacio ha sido planeado con atención al detalle, Cada espacio ha sido planeado con atención al detalle, integrando materiales de alta gama, iluminación ambiental y integrando materiales de alta gama, iluminación ambiental y una paleta neutra acentuada con contrastes de textura y color. una paleta neutra acentuada con contrastes de textura y color.









Ambientes con doble altura y líneas puras que favorecen la entrada de luz natural y potencian la amplitud visual. Se la entrada de luz natural y potencian la amplitud visual. Se eligieron materiales como mármol, madera natural y eligieron materiales como mármol, madera natural y textiles neutros para transmitir elegancia, calma y textiles neutros para transmitir elegancia, calma y modernidad. El arte y la iluminación suspendida actúan modernidad. El arte y la iluminación suspendida actúan como ejes visuales que articulan la narrativa estética. como ejes visuales que articulan la narrativa estética.
Ambientes con doble altura y líneas puras que favorecen






Un refugio privado diseñado desde la simplicidad sofisticada. Un refugio privado diseñado desde la simplicidad sofisticada. Predominan volúmenes limpios, materiales cálidos y Predominan volúmenes limpios, materiales cálidos y acabados texturizados que generan un entorno de descanso, acabados texturizados que generan un entorno de descanso, contemplación y orden visual. contemplación y orden visual.




La composición volumétrica y la selección de acabados logran
La composición volumétrica y la selección de acabados logran un equilibrio entre minimalismo y sofisticación, evocando una un equilibrio entre minimalismo y sofisticación, evocando una atmósfera tipo spa de uso diario. atmósfera tipo spa de uso diario.




Un mundo lúdico y seguro. Elementos de juego, suavidad
Un mundo lúdico y seguro. Elementos de juego, suavidad visual, colores pasteles y diseño educativo que inspira la visual, colores pasteles y diseño educativo que inspira la creatividad de los más pequeños. creatividad de los más pequeños.











Este proyecto de diseño interior se centra en la creación de Este proyecto de diseño interior se centra en la creación de una suite principal y vestidor de lujo, concebidos como una suite principal y vestidor de lujo, concebidos como espacios envolventes, elegantes y funcionales. La propuesta espacios envolventes, elegantes y funcionales. La propuesta destaca por su lenguaje contemporáneo de líneas puras, destaca por su lenguaje contemporáneo de líneas puras, matizado por una atmósfera sofisticada y atemporal. matizado por una atmósfera sofisticada y atemporal.





Cada rincón del espacio ha sido diseñado para equilibrar

Cada rincón del espacio ha sido diseñado para equilibrar funcionalidad, confort y estética contemporánea, elevando el funcionalidad, confort y estética contemporánea, elevando el diseño interior a una expresión de estilo de vida. diseño interior a una expresión de estilo de vida.





Este diseño interior está concebido como una suite integral para un usuario joven, activo y creativo. El concepto parte del para un usuario joven, activo y creativo. El concepto parte del universo gamer y urbano, fusionando estética industrial, universo gamer y urbano, fusionando estética industrial, códigos gráficos contemporáneos y una paleta cromática códigos gráficos contemporáneos y una paleta cromática atrevida. atrevida.
Este diseño interior está concebido como una suite integral







La propuesta abarca una suite principal con vestidor, baño y La propuesta abarca una suite principal con vestidor, baño y área de descanso, conjugando elegancia, funcionalidad y área de descanso, conjugando elegancia, funcionalidad y estética contemporánea. estética contemporánea.




