Karan Kaura-Portfolio

Page 1


KARAN KAURA

PORTFOLIO

My approach to design is rooted in curiosity and adaptability, ensuring that every project is not just a solution but a response to a deeper understanding of context and function.

01_HABITAT

02_WASTE TO ENERGY

03_AQUA HUB

04_URBAN EDGE

05_WELLNESS RETREAT

06_HOUSE 14

07_VARIOUS VISUALS

01 HABITAT

Pratt Advance Studio VI | Spring 2023 | Critic: Peter Zellner | Collaborator: Joe Pignataro

As Los Angeles and California faces a housing crisis, upgrading and adapting existing buildings, mainly commercial structures, for new residential uses has become an increasingly common way to address urban life in Southern California. This adaptive reuse project proposes to re purpose and re-adapt a four-story 1960s commercial office building in West L.A into a housings project.

By using several adaptive reuse strategies such as subtraction, addition, infiltration and co presence, this project proposes an eight story addition to the existing building. The existing four floors on the podium are dedicated to public program such as retail, restaurants, co working spaces and amenities for the residence. Whereas, the addition is dedicated to maximizing green spaces for both the community and residents of community and this is achieved by pushing and pulling the building envelope to provide every residential unit with access to green space. A central atrium acts as the heart of the building and allows for natural ventilation and light to filter throughout the building.

Program such as a vertical indoor farming facility, residence lounge and multiple green roof decks are spread around the atrium. The atrium also features a space for vertical indoor farming facility. The building offers a total of 120 units with multiple unit typologies ranging from studio apartments all the way up to a 5 bedroom multi generational duplex. By creating a city within a building, Habitat aims to create a unique and vibrant living environment that fosters community, social interaction, and environmental consciousness.

STRUCTURE FRAMING DIAGRAMS

EXISTING ENVELOPE
2. CUTTING EXISTING ENVELOPE
3. OPAQUE SHEER WALLS AND ATRIUM TO BE REMOVED
4. INTRIGUE AT BUILDING GATEWAYS
5. INVITING THE COMMUNITY
6. ACTIVATING TERRACES WITH VEGETATION
INTERIOR ATRIUM RENDER
1st FLOOR
FLOOR 1st FLOOR 2nd FLOOR
2 BR-DUPLEX UNIT
3 BR-DUPLEX UNIT
2nd FLOOR
1st FLOOR
2nd FLOOR
3rd FLOOR
4 BR-MULTI GEN UNIT

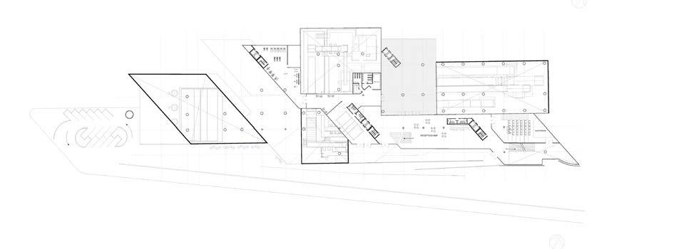
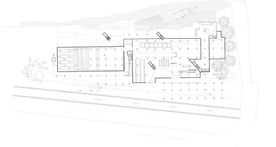
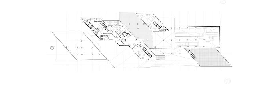
02 WASTE TO ENERGY

Pratt Integrated Studio IV | Spring 2022 | Critic: Landon Brown | Collaborator: Cristy Martinez

Located adjacent to the university heights bridge in Bronx, NY, overlooking the Harlem river, the Hub is a typological experiment which proposes an intersection of a waste-to-energy and recycling plant with education and community recreational facilities. The facility creates layers of transparency and translucency to balance a dialogue across the Harlem River, an urban infrastructure and the surrounding community. We frame the relationship of these dual program elements through a symbiotic approach where programmatic layers are interdigitated to varying degrees, with the public program weaving through the industrial program.

The massing sweeps through the urban fabric, fracturing the relationship from the street towards the water. The axis of arrival from the street , articulates the ground, engaging the public through multiple pathways of the waste to energy recycling center. The layering is achieved by stacking the public programs on top of the industrial program and shifting the masses to create outdoor public spaces for the community. The massing is finally skewed towards the views of the Manhattan skyline. The fractures in the form allows for natural ventilation throughout the facility and also allows for multiple outdoor green terraces for the public. Recreational spaces such as a natatorium, gym, spa and cafe weave through the industrial facility and opens up to the Harlem river. The energy produced through the waste and recycling process in further used to heat up the programs such as public natatorium and thermal baths. The waterfront serves as an point of entrance for the people arriving through the ferry terminal and the waterfront park activates the ground level, providing public space for the community to interact and engage with the water.

PROGRAM BREAKDOWN

GREEN TERRACE PLAN
1. Public program stacked on top of industrial program to separate circulation routes.
2. Program broken down, shifted and weaved to create points of connection for vertical circulation.

3.

and rotated towards the river to frame views out to the city and take advantage of the prevailing south west winds for ventilation.

MASSING DIAGRAM
Volumes skewed
4. Volumes shifted to provide layers outdoor public terraces and green rooftops.
GREEN TERRACE RENDER
ROOF DECK RENDER
THERMAL BATHS RENDER

Perforated Metal Screen

Metal Screen Framing

Insulated Glazing Unit

Vertical Steel Mullion

Steel Pipe Column

Horizontal Steel Mullion

Horizontal Metal Connector

Metal Screen Framing

Concrete Slab on Deck

Spandrel Panel

Insulation

Vapor Barrier

Beam

PLAN CUT DETAIL

Perforated Metal Screen

Metal Screen Framing

Insulated Glazing Unit

Horizontal Steel Mullion

Vertical Steel Mullion

Metal connector

Anchor Plate

Steel Pipe Column

FACADE
NATATORIUM RENDER

03 AQUA HUB

With a projection of the global population rising significantly in urban areas such as New York City, there is an urgency to localize produce as a way to reduce food miles. The Aqua Hub is a self-sustaining aquaculture farm which re purposes an abandoned self-carrier barge into an aquaponic food and algae production facility along with an oyster hatchery. With the ability to be docked at various harbors such as the Red Hook Terminal in Brooklyn, NY, the project utilizes the harbor water available on site, and further filters and collects it to be used for aquaponics farming.

In order to activate the site and the surrounding neighborhood, public programs such as recreational thermal baths, swimming pools and a public garden are incorporated which also make use of the filtered harbor water and occupy the upper deck whereas the lower deck houses the aquaponic farm and labs along with an aquarium to educate people on the types of species being farmed. The massing of the project utilizes the existing openings of the storage compartments of the vessel to carve into it and occupy those volumes as aquaculture greenhouses while the outer shell of the vessel creates openings for light and views while also being turned into an artificial reef for organisms and wild vegetation to grow on.

Pratt Advance Studio V | Fall 2022 | Critic: Alex Barker

04 URBAN EDGE

Pratt Urban Studio III | Fall 2021 | Critic: Erich Schoenenberger | Collaborator: Christine Chan, Equere D.

Located in Brooklyn, New York on the site of Farragut Housing, this project tests the potential of metropolitan housing by forming the edge of an urban courtyard. The building morphology emerged through drawing physical and implicit connections from Farragut’s existing context. The surrounding building edges, streets, and walkways generated our extents while forming this edge.

After taking the place of a playground, this space serves to enhance what was lost by providing a new place for the community to gather, stay active, and grow. The tension caused by smaller scale apartments encourages people to spend less time in their units. By leading people toward public lounges or reading areas, they end up viewing the larger physical activity spaces. This entices residents to use those amenities while interacting with neighbors. In deploying this strategy on a larger scale, this building includes specific areas of transparency which lead people to and through the site. By providing access to this housing experiment at different scales, this space motivates inhabitants to interact and potentially bridge gaps between socioeconomic differences.

APARTMENT UNITS

ROOF GARDEN

INTERIOR CORRIDOR RENDER
STUDIO APARTMENT RENDER

SOIL

GRASS FILTER FABRIC

RESEVOIR LAYER

MOISTURE RETENTION LAYER

AERATION LAYER

RIGID INSULATION

DRAINAGE LAYER

ROOT BARRIER

PROTECTION COURSE

AIR, WATER , VAPOUR BARRIER

ROOF SLAB

CURTAIN WALL SYSTEM

METAL SCREEN

BRICK VENEER

MORTAR

BRICK TIE

WOOD FLOORING

CONCRETE FLOOR SLAB

GALVANIZED STEEL PLATE

RELIEVING ANGLE

RIGID INSULATION

LIQUID APPLIED AIR VAPOR BARRIER

CONCRETE BACK UP WALL

INTERIOR WALL FINISH

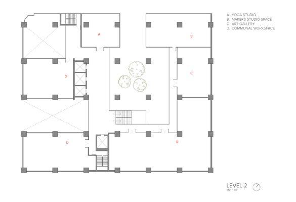
05 WELLNESS RETREAT

A wellness retreat located in Clearlake, California. This project integrates architectural interventions at multiple scales to cultivate an immersive experience that fosters physical, mental, and emotional well-being. Set within a serene natural environment, the retreat is designed to harmonize with its surroundings, enhancing visitors’ sensory awareness and deepening their connection with nature.

The retreat’s master plan employs a dispersed layout, allowing privacy through spatial separation while maintaining a cohesive atmosphere. The architecture emphasizes outdoor circulation, blurring the boundaries between built and natural environments. Each structure is carefully positioned to frame views, invite natural light, and encourage moments of stillness and reflection.

Program elements include a holistic spa with thermal baths, meditation and yoga pavilions, an open-air amphitheater, creative workshop spaces, communal dining facilities, a gathering lounge, and private guest cabins. These spaces, whether experienced collectively or in solitude, provide an opportunity for guests to reconnect with themselves and their surroundings. Through various sustainable design strategies and biophilic principles, the retreat aspires to serve as both a refuge and a catalyst for personal transformation.

CONSTRUCTION DETAILS

3. INFINITY POOL DETAIL
2. WALL SECTION DETAIL
YOGA STUDIO RENDER
THERMAL BATHS RENDER

THERMAL BATH RENDER

DINING HALL RENDER

LODGING RENDER

YOGA STUDIO CORRIDOR
AUDITORIUM RENDER
OUTDOOR WALKWAY RENDER
OUTDOOR FIREPLACE RENDER

06 HOUSE 14

Pratt Design Studio I | Fall 2020 | Critic: Hart Marlow

An architectural anomaly; House 14 is an artist-in-residence located on Governor’s Island in New York City. The site consist of several historical colonial houses. The scheme is to convert one of the houses entitled house 14 to an artist in-residence-program supported by the community and public exhibition space that both functions inside and outside. My strategy involved an experimental approach where I disassemble the parts of the building to come up with a new kit of parts which are then stitched together to come up with new spatial zones on the interior and exterior of the building. The site is activated by altering the landscape around the house to create a slopes and elevated platforms for outdoor use.

PROPOSED ADDITION

PROPOSED ADDITION

N
W ELEVATION
SECOND FLOOR

07 VARIOUS VISUALS

Miscellaneous visualizations created during my time at Pratt Institute.

PROPOSED ADDITION

KARAN KAURA

ARCHITECTURAL DESIGNER

SE ISOMETRIC

Turn static files into dynamic content formats.

Create a flipbook
Issuu converts static files into: digital portfolios, online yearbooks, online catalogs, digital photo albums and more. Sign up and create your flipbook.