SELECTED WORKS









![]()









Architecture is a powerful medium for shaping the human experience, bridging art, science, and technology to create meaningful spaces that inspire, connect, and endure. As I prepare to advance my education through graduate studies, I aim to deepen my understanding of architecture’s capacity to address complex social, environmental, and cultural challenges. My aspiration is to refine my design approach, integrating innovative techniques with a respect for history and context, to create meaningful and sustainable spaces. Graduate school offeres the opportunity to collaborate with diverse minds, engage in cutting-edge research and push the boundaries of what architecture can achieve.







Fourth Year Design Studio I Semester: Fall 2024
Faculty: Gregory Stroh
Digital & Hand Crafted Media Building Integration & Design Synthesis
Designed an Alaskan Research Facility to support scientists studying the unique tundra environment, featuring two purposefully detached buildings connected by a central water feature. The project emphasizes work-life balance through spatial separation of living and working spaces, while integrating sustainable design strategies to harmonize with the extreme environmental conditions.
Exploded Axon

Parti Diagram


Structural Diagram


Circulation Diagram Environmental Diagram

v. Public Space

Overall Site Map



















Second Year Design Studio II Semester: Spring 2023
Faculty: Ryan Scavnicky
Digital & Hand Crafted Media
Project Selected for CAED XGallery
A study into the “Duck” vs “Decorated Shields” architectural theorems through the development of a new building which would transform with the festival once per year. The metamorphosis of the building is itself one of defining moments of the festival and largely plays a role in connecting the people of North Hill, Akron together.







Everyday Library - First Floor Plan

Everyday Library - Second Floor Plan





Third Year Design Studio I Semester: Fall 2023
Faculty: Larissa Burlij
Digital & Hand Crafted Media
Established an Artist in Residence Center to accommodate four collegiatelevel visiting faculty/artists, providing a six month living and working opportunity in close proximity to a university’s satellite Master of Fine Arts program situated at Park Synagogue in Cleveland Heights, Ohio. Emphasizing tectonic modeling to unearth deeper insights into the current conditions is a key aspect of the initiative.
























Undergraduate
Award
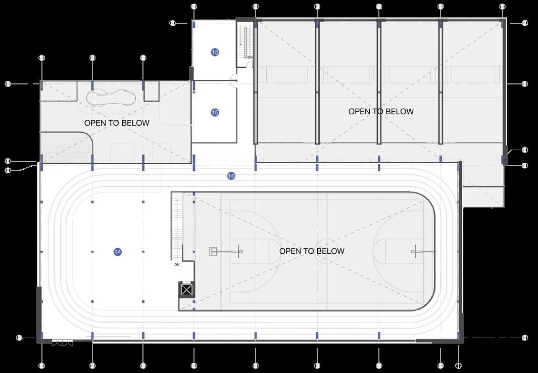
Participated in a team student design competition, creating a sustainable Rec + Wellness Center. The project repurposed a dorm site, addressed a 22’ grade change, and used metal building systems to craft dynamic, wellness-focused spaces.




Co-developed Locker Stocker, a team initiative at Kent State’s CAED, to address material inequity by recycling surplus architectural materials. The program provides students in need with access to donated resources, reducing waste and fostering sustainability within the design community.





