Kanya's Portfolio

Page 1

RaninditaKanya

Portfolio

warmestHi!welcome

//PROJECTS RETAIL RESIDENTIAL;; GRAPHICoffice; undergraddesign;project

BATACAPITOLCHOPARDOPTICAL marie claire primaverafootin THE VIDEO SHOP SINCEREDAPAOSUNRIDERWATCH “During a 6 years of working experience, retail design plays a pivotal role and has been an expertise of its own for me.” /RETAIL

/overseeing space planning & design fea tures for chopard in asia pacif ic market /work within a small team of project mgr&visualiser and collaborate /DELIVER A COMPLETE EXECUTION PACK AGE FROM DESIGN PHASE TO KEY-TURN. /location : Singapore, Thailand , Taiwan 8 9 01/ /role : Interior Designer //reporting to Design Manager as main designer. Objectives

10 11

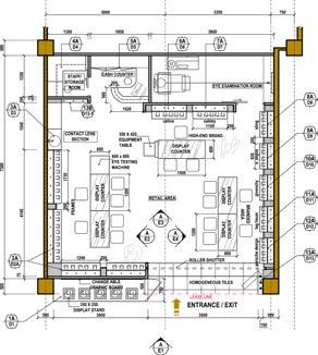
/location : Singapore 02/ /PROVIDES SPACE PLANNING & DESIGN SOLUTION FOR CAPITOL OPTICAL CHAIN /LEADSTORES.ATEAM OF 3D VISUALISER AND PRO Objectives/role : Interior Designer //reporting to Design Manager as main designer. 12 13

/Neutral color with Capitol Optical signature blue color is used.

/Soft touch are applied on upholstery and carpet flooring to fur ther amplfy comfortness of customers.

14 15

-

03/ /Boutique concept for mid to high end merchandise products /f lexible , interchangeable, sustainable /rich in looks with signature classic touch /revamping the brand’s store images of 15 years /role : Interior Designer (collaborating with Sustanaibility consultant and Visual Merchandiser) /location : Emerging Markets /Concept : City Zeus Objectives 16 17

/catering to approximate 1000 lines of merchandise in 1 single store , a neutral color is applied to serve as a canvas for the ever changing and multi variables of products /sustanaible steps is taken in every f ixtures from using led lights to a DIY as semble of furniture 18 19

04/ /Part of bata shoe organisation - in house /providesbrands a revamped store concept for footin brand /aim for a mass volume merchandise dis play & affordable approach. /targeting a young adult customer /role : Regional Senior Store Designer //reporting to Store Concept Development manager as lead designer. /location : APAC & South Asia /Concept : Footin Objectives 20 21

/interchangeable structure allows for easy installation and onsite change to cater to different situations /’raw materials are used s.a. : exposed ceilings, exposed bricks painted white to give a sense of ‘Warehouse hip store’ 22 23

05/ /CATERED EXCLUSIVELY AND INDE PENDENTLY WITHIN ORGANISATION FOR PROFESSIONAL CUSTOMERS. /CLASSIC AND ELEGANT MERCHANDISE WITHIN /SIMPLE & ‘ALMOST MINIMALIST’ BARE AP PROACH TO MIMIC AN UPSCALE BOUTIQUE /location : Malaysia /Concept : Primavera /role : Regional Senior Store Designer //reporting to Store Concept Development manager as lead designer. Objectives 24 25

26 27

/use of only 3 main materials provides cost efficiency on consumables.

/monochrome color is chosen to reflect the brand logo and its bare approach.

/minimalist structure allows for easy on-site assembly

06/a /Part of bata shoe organisation - in house /providesbrands a revamped store concept for marie claire store brand /collaborating with bata indonesia local ar chitect for execution of test store concept in bintaro exchange, jakarta , indonesia /role : Regional Interior Designer /location : Indonesia /Concept : Marie Claire - Parisienne Objectives 28 29

/bronze metals are heavily used as main /Classicstructure.parisienne touch are visible on herriingbone wood flooring and serves as canvas for otherwise a w modern structure

30 31

/Modular cubes allow for easy and fast interchangeable display which allows for week ly rotation of Visual Display throughout the store. /Wall fixture stands firmly on the ground and not attached to the wall due to its heavy bottom. This provides easy assembly on site and less hacking work&support.

06/b /role : Regional Senior Store Designer /location : APAC /Concept : Marie Claire - Paris Je T’aime /Part of bata shoe organisation - in house brands : marie claire /provides a revamped store concept for ma rie claire brand after the new branding took /collaboratingplace. with bata thailand team for mockup store turnkey. /provides tools and manuals for local execu tion Objectives 32 33

34

/Pink-peach base is the main color canvas used for the store.

/Boudouir counter provides a semi personal shopping experience for customers, with trained staff stationed behind and provides a fashion tips and advice , inspired by latest season from the runway 35

/ A touch of gold plays a big part on the main structure on the overall metal parts of the furnitures.

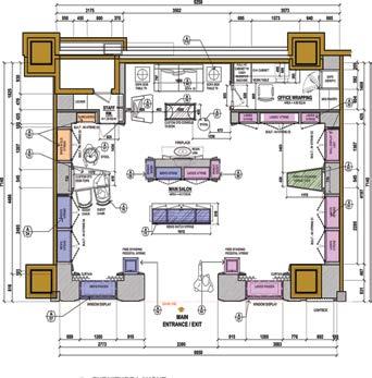
07/ /role : Interior Designer /location : Singapore /Concept : Sunrider Store @ 313 Somerset /Provides a turn-key solution for sunrider mlm or ganisation from concept to execution\; /lead a team of visualiser and project manager for execution of 1st store in 313 somerset. Objectives 36 37

/It aims to create a pleasant and semi-clinical ambiance onto its physical store

/A touch of gold replaces the color of the logo and is strategically placed on the back of the cash counter

/Incorporating client’s signature red logo as part of accent color with white color .

38 39

08/ /role : Interior Designer /location : Singapore /Concept : Dapao Take Away Food shop /Provides concept proposal for dapao food in far east square; /objective is to provide a grab-and-go food counter inspired by new york food joint. Objectives 40 41

42 43

/Retaining its original structure made an impact on its raw and ‘warehouse’ feel of the store as well as minimising the general works needed to be done.

/Retaining its original structure made an impact on its raw and ‘warehouse’ feel of the store as well as minimising the general works needed to be done.

09/ /role : Interior Designer /location : Yewtee, Singapore /Concept : The Video Shop /located at mall’s corridor and circulation area, IT MADE USE OF THE OPEN SPACE PROVIDED WHICH ALLOWS FOR A CIRCU LAR & ever f l owing MOVEMENT of human traff ic . Objectives 44 45

/Inspired by seemingly endless roll of movie strips, black and white color is used with a touch of wooden finishes to bring a modern ambiance. 46 47

Ω Beijing10/T2 Luxrow /location : APAC Region /Concept : Sisley Paris - APAC concept Travel Retail 48 49 DFS Guam /Role : Regional Store Designer Objective : To support travel retail’s area manager on providing a design deck for all TR counters in APAC region as well as liaising with each local contractor’s & countercheck all production drawings to ensure alignment with Travel Retail Merchandising Bible. Updated concept was designed by Regional Merchandising team - APAC exclusively for APAC region in 2018. Total counters till date : 40+ new openings since 2016 DFS Galaxy Macau Kingpower - Thailand BDB Kansai, Japan

50 51 Objective : My role in this concept development is to provide a technical support and to create a Re gional Merchandising Bible exclusively for Travel Retail - APAC concept in addition on providing design support for each counter opening, Downtown 2 - Phuket, Thailand Shanghai Pudong T1 Haitang Bay - Sanya

Local Market & Distributors

Siam Takashimaya - Bangkok, Thailand

Objective : My role is to support Brand Manager’s & their marketing team on providing a design pack for submission to retailers, as well as managing the project together with their local con Intractor.2017, my main objective was to develop an APAC exclusive concept update inspired by our headquarter - La Maison Sisley. Since then, we have been rolling out our concept to all Inregion.addition to that, my role is also to support market on Top Door reno vation and Boutiques on providing a signature & unique design elements

Siam Takashimaya - Bangkok, Thailand Daimaru Sapporo - Sapporo, Japan 52 53

with a total counter renova tions of more than 100+ doors in the span of 2 years. As part of

:

i have also provided support on Soft Merchan dising aspects e.g. providing technical support detail for mega launches Outposts and HPP. Takashimaya - Singapore Far Eastern Kaohsiung - Kaohsiung, Taiwan Upcoming new boutique .....

Local Market & Distributors

Objective To date, we have rolled out this new concept the region Regional Merchandising team,

all over

Ω Tangs,11/Singapore/location : APAC Region /Concept : Guerlain Paris Local Market 56 57 Shinsegae Daejeon, Korea /Role : ‘19-’22 Regional Asst. Merchandising Manager ‘22 - Regional Retail Design Manager, APAC Objective : To provide design support for counter renovations as well as preparing counter opening Managingplanogramthe budget for projects in correpond to CAPEX. Provide project presentation to CEOs and upper management Total counters till date for local market : 15+ new openings since 2019 As of 2022 - lead a team of 2 Retail Design Executives (SD & VM) Central Ladprao, Thailand Crescent Mall , Vietnam Isetan Garden

Ω Local Market Objective : To provide Soft Merchandising Support for SEA OC Market - Staging Guideline & Planogram for each launch (FR/SC/MU) - Counter Opening Planogram for all SEA OC LM new counter opening. - SPP & HPP Launch as part of trade plan* Since 2019 : Market lead in Soft Merchandising for SEA OC LM Abeille Royale Launch Sephora NAC Launch Pad , Singapore Abeille Royale Launch Pitch Sephora ION launch pad , Singapore Abeille Royale launch - Taka MBB Singapore

Travel Retail Objective : To date, we have rolled out this new concept all over the region with a total counter renova tions of more than 100+ doors in the span of 2 years. As part of Regional Merchandising team, i have also provided support on Soft Merchan dising aspects e.g. providing technical support detail for mega launches Outposts and HPP. DFS SUNPLAZA SVB East Upcoming new boutique ..... SanyaLagardere,

the arte condo sentosa riverplaceTreetessarinabungalow-kidsbedroomslodgehdb /RESIDENTIAL “Upon brainstorming for a new idea of Residential design, i always listen to cus tomer’s needs and requirements, with a touch of ‘what if this is my home?’ kind of thinking. With this approach , i always strive to provide the utmost solution to their abode as if i designed for my own houseAlways give 120%” 63

01/ /role : Interior Designer /location : Singapore /Concept : The Arte Residence 64 /A house for a family of 5 & designerd with an elderly-friendly approach; /neutral cream color is used for tranquility environment feel. Objectives 65

/Floating shoe cabinet in geometric shapes to project a continuity of geometric design.

/Main highlight of this house is the breakfast bar/kitchen which allows the occupants to have unrestricted view towards the living room while cooking; 66 /The use of blackglass with hidden cove lights in geometric shapes give a minimalistic luxury feeling upon entering the facade ;

67

02/ /role : Interior Designer /location : Singapore /Concept : Sentosa Bungalow 68 /a vacation abode for an expat bachelor with the sense of italian luxury /boasting 3 rooms with a private deck, this house aims to provide a tranquil space whenever the owner is visiting singapore Objectives 69

/Overlooking beautiful scenery outside the balcony, the master bedroom is furnished with high-end Italian furniture brands ranging from Poliform to Poltrona Frau. 71

/Black Carrara marble combines with creme terazzo are chosen as main materials inroom.;bath bidet and toilet with stand alone bath tub projects a luxurious hospitality design incorporated into a homely estate.

70

/Separate

03/ /role : Interior Designer /location : Singapore /Concept : Tessarina - Kids Room 72 /RENOVATION OF 2 KIDS BEDROOM FOR CLIENT’S TWIN CHILDREN (BOYS & GIRLS); /INTEGRATED CABINET/BED TO MAXIMISE STORAGE CAPACITY; /NEUTRAL MATERIALS WITH POP OF COLORS ON THE WALLS TO BRING ABOUT PLAYFUL AMBIANCE. Objectives 73

04/ /location : Singapore /Concept : Treelodge - 3 rooms HDB unit /role : Freelance Interior Designer 74 /provide turn-key project solution for a fam ily of 4 with small kids on one of hdb estate in singapore Objectives 75

76

/Inspired by modular cabinet system by Poliform, there are 2 prominent storage in living room which doubles as library & work place/TV cabinet.

/Kidstom; bedroom is to be kept neutral as requested & incorporates a low cabinet with integrat ed bed frame to maximise the storage. 77

/Neutral color is highligh preferred throughout the space with a use of cream colored lami nate and wood textured finish;

/Client request to convert one of the spare bedroom and turned it into his&her walk in wardrobe/makeup room is respected and was made with plenty of storage from top to bot

05/ /location : Singapore /Concept : Riverplace Condominium /role : In-house Interior Designer 78 /a house for expatriate clients who are mov ing back to singapore after spending an ample amount of time abroad; /located at one of havelock road’s prominent condominium Objectives 79

/ A round dining table was advised by a geomancy consultant to be placed directly facing the entrance as to provide a better ‘chi’ cirulation. We create a custom -made table with in terlacing steel frame to accomodate this need 80

/ Yellow colors with butterfly wall decals are both the client’s daughters’s favourite color & animal. Keeping the wooden flooring as it is, minimalistic yet fun design are projected. 81

ZTE OFFICE GFS OFFICE /OFFICE 82 “To design an office project is not an opportunity that i often obtained. I viewed this not as my weak point but as a chal lenge to myself to extend my profile on office design should there be an opportunity arrises” 83

01/ /location : Lorong Chuan,Singapore /Concept : ZTE OFFICE /role : Interior Designer 84 Objectives /bidding for turnkey project for one of lead ing communication company ; /relocation of off ice to lorong chuan busi ness complex area 85

/Modular work desk cluster in an open space to allow for employee rotation and flexibility 86 87

02/ /location : Singapore /Concept : GFS office /role : Regional Senior Store Design88 Objectives /AS PART OF REGIONAL DESIGN TEAM , WE ARE CONSTANTLY RENOVATING IN THIS EVERCHANGING OFFICE ENVIRONMENT , ADAPT ING TO A CHANGE OF STRUCTURE&EM PLOYEES IN THE ORGANISATION 89

91

90

/Dominated by grey color with red accents , it exudes professionalism throughout the whole space as it sometimes host an international guests from one of its many brances and loca tions throughout the world.

/Bata vintage posters are framed up and spread all around the offices as a reminder of its long heritage.

CHINTA MANIS NAME WEDDINGTAGSSTATIONERY /GRAPHIC

“On occasional chances, i provide pro-bono graphic design for friends and families as part of freelance projects. In my working period as Designers, providing graphics design are often required as part of total service solution”

93

01/ /location : Chinta Manis /Concept : Chinta Manis restaurant - Peranakan Style cuisine /role : Interior Designer 94 Objectives /TO DESIGN POLAROID-STYLE PRINT OUTS FOR CHINTA MANIS RESTAURANT; /random photographs with vibrant colors and motifs are selected to match the ever-colorful signature style of peranakan culture. 95

02/ /location : Indonesia /Concept : Colors of the ocean and forest. /role : Designer.. & Bride! /Bridesmaid & groomsmen cards 96 Objectives /provide bridesmaid’s card and logo for /Guestweddingbook graphic and placement cards /Guest Book 97

101

PROJECTS/UNDERGRADUATE

“A few of selected projects that i have been working on dur ing my under graduate program helped shape and honed my artistic skills from scratch. Covering from residential up to exhibition design, we were trained from the very beginning to adapt to real-life working situation with tight deadlines and fast-paced projects”

OFFICE RESIDENTIALDESIGNDESIGN 102 CAFE MUSEUMDESIGNDESIGN 103

HOSPITALITY DESIGN DISSERTATION PROJECT (WITH SOCIAL IMPACT)- CITY MOSQUE 104 SUSTAINABLE DESIGN RETAIL DESIGN 105

ANOTHER EXCITING DEVELOPMENT COMING SOON... STAY TUNED!

Turn static files into dynamic content formats.

Create a flipbook
Issuu converts static files into: digital portfolios, online yearbooks, online catalogs, digital photo albums and more. Sign up and create your flipbook.