archmsu2022thesis_Kannika_Part 02

Page 1

SPIRITUAL RETREAT LONGSTAY RESORT

KANNIKA KHUNWANDEE 61011110012
THESIS IN ARCHITECTURE 2022 FACULTYOFARCHITECTURE,URBANDESIGNANDCREATIVEARTS MAHASARAKHAMUNIVERSITY
PART 02

ทองเทยวทเพมขนในจงหวดเชยงใหม

จงหวดเชยงใหม

จํานวนผใชหลก ( คดจากการเปรยบเทยบสดสวน

ของจํานวนหองพกทสามารถรองรในการเขาพกโรงแรมสงสด

ของโครงการและกรณศกษา )

หองชด 35 UNIT

บานเดยว 6 UNIT : 4 คน = 24 คน

จํานวนผใชรอง ( คดจากการเปรยบเทยบสดสวน

ทมาใหบรการโครงการ คดเปน 20% )

กําหนดผใชรองในอตราสวน 80:20 จากผใชโครงการหลก จะ

ได 104

บทท 4 รายละเอยดโครงการ 4.1 ผใชสอยโครงการ ลกษณะของกลมคนทมาพกผอนเชงจตวญญาณ คอ กลนคนท การตองการ หลบหนจากชวตประจําวน อนมาจากความทกข ในเรองตางๆ จงตองการหาสถานทสงบเงยบในการทํากจกรรม เชงจตวญญาณ และแสวงหาการยกระดบจตใจ กลมผใชหลก กลมนกทองเทยวเชงจตวญญาทงชาวไทย และชาวตางชาตทเขามาใชบรการหองพก และกจกรรมภายในโครงการ กลมผใชรอง กลมนกทองเทยวทวไป ไดแก กลมทศนาจร ทเดนทางมาใชบรการหองพกและกจกรรม ภายในโรงแรม กลมองคกร ฝายผบรหารโครงการ ฝายธรการ ฝายกจกรรม ฝายบรการและพนกงาน ตําแหนง จํานวน ตําแหนง จํานวน เจาของโครงการ ผจดการโครงการ ฝายบรหารโครงการ 1 1 หวหนา พอครว ผชวย พนกงาน ฝายอาหาร 1 2 1 2 การเงนบญช ทะเบยนและสถต แผนกบคคล ฝายธรการ 1 1 2 หวหนา พนกงาน ทําความ สะอาด พนกงานซกรด พนกงานสวน พนกงานรกษา ความปลอดภย พนกงานขบรถ หวหนา พนกงาน หวหนา พนกงาน ฝายบรการ แผนกซอมบํารง แผนกนวดสปา 1 3 2 2 2 2 1 3 1 3 หวหนา ประชาสมพนธ พนกงานตอนรบ แผนกตอนรบ 1 2 2 หวหนา พนกงาน ฝายหองพก 1 2 หวหนา ครสอน ผชวย ฝายกจกรรม 1 4 2 รวมจํานวนเจาหนาท ภายในโครงการ 47 4 1 1 กลมเปาหมายผใชสอยอาคาร หองพกเตยงเดยว 26 UNIT : 2 คน = 52 คน หองพกเตยงค 14 UNIT : 2 คน = 28 คน จํานวนผใชโครงการหลกคดเปน 80%
104 คน จํานวนผใชรองคดเปน 20 % = 20 คน 4.1.2 ประมานจํานวนผใชอาคาร จากการศกษาความเปนไปไดของจํานวนหองพกเพอรองรบนก
=
สรปความตองการของ จํานวนหองพกโดยประมาณ 9631 หองในการสรางจํานวนพก กลมรสอรททสามารถเพมขนไดโดยประมานไมควรเกน 1257 หอง โดยคดเปน 13.06 % ของประเภทโรงแรมทงหมดใน
X 20/100 = 20 คน สรปประมาณการ รวมผใชโครงการจํานวน 124 คน 20 ตารางท 4 1 ความเปนไปไดจํานวนพนกงานในโครงการ รสอรทพํานกเพอการพกผอนเชงจตวญญาณ Spiritual Retreat Longstay Resort
0100-2400 0800-2200 0800-2000 0900-1700 0900-1700 0900-1700 0900-1700 0900-1700 0900-1700 0700-0900 0100-2400 0800-1800 0100-2400 1600-1700 0800-1800 ผใชหลก ผใชรอง พนกงาน / SERVICE 4.1.3 พฤตกรรมและความตองการของผใช ผใชหลก ผใชรอง 4.2 การวเคราะหรายละเอยดดานพนทใชสอย หองพกเดยว หองพกเตยงค บานพก โถงตอนรบ สวนพกคอย LOBBY AND RECEPTION หองนํ้าชาย/หองนํ้า หญง หองนํ้าคนพการ ครว หองอาหาร INDOOR/OUTDOOR STORAGE STAFF AREA พนททําสมาธ INDOOR/OUTDOOR พนทเดนจงกลม ฟตเนส สระวายนํ้า หองโยคะ หองการรกษาแบบ สมผสเรก หองสวดมนตเบองตน หองการพดคยเกยวกบ การหลกการทางศาสนา หองสอการสอบถาม อารมณ นวดสปา 4 2 1 องคประกอบโครงการ สวนของหองพก สวนตอนรบ สวนอาหารและเครองดม สวนกจกรรมและบรการ โครงการ หองเจาของโครงการ หองผจดการ หองฝายธรการ หองฝายดแลหองพก หองฝายดแลกจกรรม หองประชม หอง PANTRY หองนํ้าชาย/หองนํ้า หญง หองพกแมบาน หองซกรด หองเกบของ หองพกคนรถ หองพกยาม หอง PANTRY หองนํ้าชาย/หองนํ้า หญง หองควบคม หองเครองไฟฟา หองเครองไฟฟาสํารอง หองปมนํ้า หองเกบของ หองซอมบํารง หองเกบของ หองขยะ จอดรถลกคา จอดรถพนกงาน จอดรถ SERVICE สวนบรหารโครงการ สวนบรการโครงการ สวนงานระบบ สวนของหองพก 21 รสอรทพํานกเพอการพกผอนเชงจตวญญาณ Spiritual Retreat Longstay Resort
องคประกอบ จํานวน (คน) จํานวน (หนวย ) พนท/ หนวย (ตร ม) พนทรวม (ตร ม) หองเตยงเดยว 1-2 26 48 1248 หองเตยงค 2-4 14 64 896 บานพก 4-6 6 128 768 รวม 2912 Circulation 40% 1165 พนทรวมทงหมด 4077 ตร ม โถงตอนรบ 30 1 150 150 สวนพกคอย 15 1 64 64 Lobby /Reception 4 1 12 12 หองนํ้าชาย/หญง 2 30 60 หองนํ้าคนพการ 1 5 5 รวม 291 Circulation 40% 116 พนทรวมทงหมด 407 ตร ม ครว 7 1 90 90 หองอาหาร 1 180 180 Storage 1 16 16 Staff Area 6 1 16 16 หองนํ้าชาย/หญง 2 30 60 รวม 362 Circulation 40% 145 พนทรวมทงหมด 507 ตร ม องคประกอบ จํานวน (คน) จํานวน (หนวย ) พนท/ หนวย (ตร ม) พนทรวม (ตร ม) นวดสปา 1 90 90 ฟตเนส 1 90 90 สระวายนํ้า 1 90 90 หองนงสมาธ 1 30 30 หองโยคะ/ไทซ 2 40 60 หองการรกษา แบบสมผสเรก 1 40 40 หองสวดมนต 1 30 30 หองพดคยหลก การทางศานสนา 1 25 25 หองสอสาร สอบถามอารมร 1 25 25 พนทเดนจงกลม outdoor 1 150 150 รวม 630 Circulation 40% 252 พนทรวมทงหมด 828 ตร ม จอดรถยนต 171 42 12 5 525 จอดรถ service 2 12 5 25 รวม 550 Circulation 60% 330 พนทรวมทงหมด 880 ตร ม
22 รสอรทพํานกเพอการพกผอนเชงจตวญญาณ Spiritual
Resort ตารางท 4 2 รายละเอยดการคํานวณพนทใชสอยโครงการ
4.2.2 รายละเอยดการคํานวณพนทใชสอยโครงการ
Retreat Longstay
องคประกอบ จํานวน (คน) จํานวน (หนวย) พนท/ หนวย (ตร ม) พนทรวม (ตร ม) หองเจาของ โครงการ 1 1 16 16 หองผจดการ 1 1 12 12 ฝายธรการ 4 1 20 20 ฝายดแลหองพก 3 1 20 20 ฝายกจกรรม 7 1 20 20 หองประชม 16 1 30 30 pantry 16 1 25 25 หองนํ้าชาย/หญง 2 12 24 รวม 167 Circulation 40% 69 พนทรวมทงหมด 236 ตร ม หองพกแมบาน 5 1 20 20 หองซกรด 2 1 30 30 หองเกบของ 1 36 36 หองพกคนรถ 2 1 12 12 หองพกยาม 2 1 12 12 pantry 11 1 24 24 หองนํ้าชาย/หญง 2 12 24 รวม 182 Circulation 40% 73 พนทรวมทงหมด 255 ตร ม องคประกอบ จํานว น (คน) จํานวน (หนวย) พนท/ หนวย (ตร ม) พนทรวม (ตร ม) หองควบคม 1 25 25 หองเครองไฟฟา 1 36 36 หองไฟฟาสํารอง 1 36 36 หองปมนํ้า 1 30 30 หองเกบนํ้า 1 25 25 หองซอมบํารง 1 36 36 หองเกบของ 1 36 36 หองขยะ 1 30 30 รวม 254 Circulation 40% 102 พนทรวมทงหมด 356 ตร ม องคประกอบโครงการ พนท สวนหองพก 4,077 สวนตอนรบ 407 สวนอาหารและเครองดม 507 สวนกจกรรมและบรการโครงการ 828 สวนบรหารโครงการ 236 สวนบรการ 255 สวนงานระบบ 356 สวนทจอดรถ 880 รวมพนทใชสอย 7,546 Circulation 40 % 3,018 พนทรวมทงหมด 10,564 23 ตารางท 4 3 รายละเอยดการคํานวณพนทใชสอยโครงการทงหมด รสอรทพํานกเพอการพกผอนเชงจตวญญาณ Spiritual Retreat Longstay Resort

คานทอยชนลางสดของบานหรออาคารเรยกวา

ระบบไฟฟากําลง (ELECTRICAL POWER SYSTEM) เปน ระบบไฟฟาสําหรบสงจายไฟฟากําลงโดยตรง

(ELECTRICAL COMMUNICATION SYSTEM)คอระบบสอสารตางๆภายในและภายนออาคาร ทมวตถประสงคเพออํานวยความสะดวกหรอเพอการ บรการใหแขกผใชบรการเกดความสะดวกสบายปลอดภย ระบบปรบอากาศ SPIT TYPE เหมาะกบโครงการทม

ลกษณะ เปนอาคาร รสอรท หองพก อาคารชด และบาน ระบบนํ้าการจายตรงจากทอนํ้าประปาหลก คอ การตอ ทอเขากบทอนํ้าในอาคารโดยตรง ซงเหมาะกบบานพก อาศยทวไปขนาดไมเกน 2 ชน ปจจบนจงนยมจายนํ้าโดย ผานปมนํ้า โดยระบบนตองมการใชถงเกบนํ้ารวมดวย ทงนไมแนะนําใหตอตรงจากทอประปาเขาสปมนํ้าโดยไม ผานถงเกบนํ้า

เพราะจะทําใหนํ้าในเสนทอนนๆ

ถกดด จากระบบสาธารณะเขามาบานเราโดยตรง สงผลกระทบ ตอการใชนํ้าโดยสวนรวม และยงเปนการกระทําทผดกฏ หมาย โดยถงเกบนํ้าจะถกตอเขากบปมนํ้าเพอสบนํ้าจาก ถงเกบนํ้าเพอนําไปใชภายในอาคารอนๆตอไปและควรจะ มระบบทอบายพาส(BYPASS) สํารองไวดวย เผอกรณปม นํ้าไมทํางาน (เชนไฟดบหรอปมชํารด)ทอบายพาสจะเปน ตวลําเลยงนํ้าจากมเตอรเขาสบานโดยตรง สระวายนํ้า ระบบเกลอ ไมทําใหแสบตาหรอตาแดง

สวนตอนรบ เขาโครงการ ทจอดรถลกคา หองอาหาร สวนใหบรการโครงการ บรหารโครงการ สวนบรการกจกรรม SERVICE งานระบบ หองพกพนกงาน หองหองพกแขก ทจอดรถพนกงาน 4.5 การวเคราะหความตองการดานเทคโนโลย 4.3 การวเคราะหความสมพนธและการจดกลมพนทใชสอย ผใชหลก ผใชรอง พนกงาน 4.4 การวเคราะหความตองการดานโครงสรางอาคาร โครงสรางของเสาและคาน คาน เปนโครงสรางทําหนาทรบนํ้าหนกของพนและผนง แลว จะทําหนาทถายนํ้าหนกไปยงทรองรบอนไดแก เสา อกทอด
เสยหายได
หนง นอกจากนแลวคานยงทําหนาทรดหวเสาไมใหมการโยก หรอการเคลอนตวของโครงสรางปองกนไมใหโครงสรางมขยบ ตวมากจนเกนไปซงอาจมผลทําใหโครงสรางสวนอนไดรบความ
คาน คอดน คานทอยดานบนจะเรยกชอไปตามชนเชน คานชน 2 คานชน 3 เปนตน เสา ทํา หนาทเปนแกนรบนํ้าหนกแนวดงจากโครงสรางสวน อนๆเชนคาน แลวถายนํ้าหนกลงสฐานราก จงเปนโครงสรางท สําคญทสวนหนงของบาน เพราะเปนทงสวนทใชรบถายนํ้า หนก และเปนสวนประกอบทจะตดตอกบสวนประกอบอน ๆ ทสําคญ เชน รอด ตง คาน เปนตน ดงนน การคํานวนขนาด ของเสา การเลอกวสดทมคณสมบตทเหมาะสม และวาง ตําแหนงของเสาใหถกตองจงเปนเรองทไมควรมองขาม สวนระยะหางและของเสานน วศวกรผออกแบบโครงสรางจะ เปนผกําหนด วสดทนํามาใชทําเสาอาจจะเปนไม หรอเหลกซง อนนแลวแตความเหมาะสม ขององค ประกอบอนๆทเกยวของ 24 รสอรทพํานกเพอการพกผอนเชงจตวญญาณ Spiritual Retreat Longstay Resort
ใหแก
อปกรณเครองใชไฟฟาภายในรสอรท ระบบไฟฟาสอสาร

WORLD BEST AWARD-TOP

10 CITIES จากผอาน TRAVEL AND LEISURE นตยสารทอง

เทยวของสหรฐอเมรกา ในป พ ศ 2553 และป พ ศ 2559 ผลปรากฏวา จงหวดเชยงใหมเปนเมองนาทองเทยวอนดบ 2 ของโลก โดยพจารณาจากสถานท

ประเภท BEST

SMALL CITIES

เปนเมองหลกของภาคเหนอ เปนศนยกลางการพาณชย

การคมนาคม

บทท 5
จงหวดเชยงใหม เปนจงหวดหนงทางภาคเหนอของ ประเทศไทย ครอบคลมพนทประมาณ 20,107 ตาราง กโลเมตร ซงใหญเปนอนดบ 2 ของประเทศ มประชากรราว 1.76 ลานคน มากเปนอนดบ 5 ของประเทศ เชยงใหมแบง การปกครองออกเปน
เปนศนยกลางของจงหวด เมอ พ ศ 2552 มการจดตงอําเภอ กลยาณวฒนาเปนอําเภอลําดบท 25 ของจงหวด และลําดบท 878 ของประเทศ ซงเปนอําเภอลาสดของไทย การทองเทยว ในการสํารวจ
วเคราะหทตงโครงการ
25 อําเภอ โดยมอําเภอเมองเชยงใหม
ทศนยภาพ ความสวยงาม และรมรน ศลปวฒนธรรมและประเพณ อาหารการกน แหลง ชอปปง ความเปนมตรของผคน ความคมคา ของเงน เปนตน และในป พ ศ 2563 จงหวดเชยงใหมถกจดเปนเมองนาทอง เทยวอนดบ 2 ของโลก จาก CONDÉ NAST TRAVELER ของ สหรฐฯในหมวดเมองนาเทยวทสดในโลก
จงหวดเชยงใหม
อตสาหกรรมและการคมนาคม จงม เสนทางคมนาคมหลกทงทางรถยนต รถไฟ และทางอากาศ ม ทางหลวงแผนดน ทางหลวงจงหวด และเสนทางมาตรฐาน หลายสาย ทําใหการเดนทางตดตอภายในจงหวด การเดนทาง สจงหวดใกลเคยงและกรงเทพมหานครดวยความสะดวก ภมประเทศ จงหวดเชยงใหมมพนท 20,107 057 ตาราง กโลเมตรหรอประมาณ 12,566,911 ไร มพนทกวางใหญเปน อนดบท 1 ของภาคเหนอ และเปนอนดบ 2 ของประเทศ รอง จากจงหวดนครราชสมา ลกษณะภมประเทศโดยทวไปมสภาพ พนทเปนภเขาและปาละเมาะ มทราบอยตอนกลางตามสอง ฟากฝงแมนํ้าปง ภมอากาศ จงหวดเชยงใหมมสภาพอากาศคอนขางเยนเกอบ ตลอดทงป มอณหภมเฉลยทงป 25 4 องศาเซลเซยส โดยมคา อณหภมสงสดเฉลย 31 8 องศาเซลเซยส อณหภมตํ่าสดเฉลย 20.1 องศาเซลเซยส มปรมาณนํ้าฝนเฉลย 1,100-1,200 มลลเมตร สภาพภมอากาศจงหวดเชยงใหมอยภายใตอทธพล มรสม 2 ชนด คอ ลมมรสมตะวนตกเฉยงใตและลมมรสม ตะวนออกเฉยงเหนอ ภาพท 51 แสดงแผนทเชยงใหม ทมา : WWWWIKIPEDIAORG 5.1 วเคราะหทตงโครงระดบจงหวด 25 รสอรทพํานกเพอการพกผอนเชงจตวญญาณ Spiritual Retreat Longstay Resort

มแหลง นํ้าธรรมชาตและแหลง นํ้าท พฒนาแลวหลายแหลง นํ้าทสําคญ ไดแกแมนํ้าออน

สนกําแพง-หมบานออนหลวย-นํ้าพรอน มปายบอก ชดเจนตลอดเสนทาง เสนทางเชยงใหม-แมออน-สนกําแพง- สถานเพาะ พนธกลาไมสก-นํ้าพรอน (เสนทางนจะผานถํ้าเมอง

คอน ซงอยหาง จากนํ้าพรอน 4 กโลเมตร)

บานพกสไตลธรรมชาต อําเภอสนกําแพง จงหวด

เชยงใหม ลอมรอบไปดวยสถานททองเทยวสําคญ

อําเภอเเมรม A A B A 75 75 60 50 260 นํ้าหนก เกณฑท 1 เกณฑท 2 เกณฑท 3 เกณฑท 4 อําเภอสนกําแพง อําเภอแมออน 30 25 25 20 B B C B 50 50 25 40 C C A C 25 25 75 20 100 165 145 เปนอําเภอหนงใน เขตปรมณฑลของนคร เชยงใหม ทมความเจรญเตบโตอยางรวดเรว ม การพฒนาทก ๆ ดาน เปนอําเภอทมแหลงทอง เทยวมากมายรวมไปถงการมแหลงทองเทยวทาง ศาสนา จํานวนมาก เปนอําเภอหนงในเขตปรมณฑลของนคร เชยงใหมทมการเจรญเตบโตอยางรวดเรว มความ พรอมทก ๆ ดาน จนเปนอําเภอขนาดใหญของ จงหวดเชยงใหม เปนอําเภอทตงของศนยราชการ ทสําคญของจงหวดเชยงใหม มการขยายตวของ ชมชนเมองทรองรบความเจรญเตบโตของนคร เชยงใหม เปน อําเภอ ขนาดเลกใน จงหวดเชยงใหม พนทมทง ภเขาและทราบสําหรบทําเกษตรกรรม นบเปนพนทรอบ นอกสดของเมองเชยงใหม สภาพพนทเปนทราบลมกวาง มพนททงหมด ประมาณ 196 69 ตารางกโลเมตร มลํานํ้าท สําคญ ลํานํ้าแมออน ลํานํ้าแมปคา ลํานํ้าแมกวง เปนแหลงนํ้าสําคญ จงมลกษณะภมประเทศทด เขตชมชนหลายแหลงอยบรเวณลมนํ้าปงแสดง ดานลาง พนทหลายแหงเปนพนทประวตศาสตร ทมความสมพนธเกยวโยงกบนํ้าแมปง ลําดบของ เมองเรยงจากจดเรมตนของแมนํ้าไปถงจดปลาย สด อําเภอแมออน มลกษณะภมประเทศลอมรอบดวยปาไม ภเขา และทรําบลม พนทของอําเภอแมออนอยในเขต พน ทลม นํ้าแมออน
หวย ขนออน หวยแมกะ หวยแมกง และหวยหก เสนทางคมนาคม อําเภอสนกําแพงตดตอกบ จงหวดเชยงใหมโดยทางรถยนตถนนสาย เชยงใหม-สนกําแพง ระยะทาง 13 กโลเมตร เปนอําเภอทรองรบความเจรญของนครเชยงใหม เพอขยายไปยงศนยกลางความเจรญทางตอน เหนอของจงหวดเชยงใหม และเปนทางผานเพอ ไปยง อําเภอปาย ทําใหอําเภอแมรมมสภาพ เศรษฐกจด มการคมนาคมทคบคง รองจาก อําเภอสนทราย และ อําเภอหางดง และเปน เมองทองเทยวทใกลเมองเชยงใหมมากทสด การคมนาคมเขาถงเสนทางเชยงใหม-แมออน-
หลายท รองรบการพกหลายรปแบบทงกลมเลก กลมใหญ ใกลสถานทเทยวสําคญ ทพกราคาถก หองพกมหลายแบบ ปจจบนมการขยายตวของการทองเทยว ทง โรงแรมและรสอรตทถอวามากทสดของจงหวด เชยงใหม อกทงอําเภอแมรมเปนอําเภอทรองรบ ความเจรญของนครเชยงใหมเพอขยายไปยง ศนยกลางความเจรญทางตอนเหนอของจงหวด เชยงใหม บานพกสไตลธรรมชาต อําเภอสนแมออน จงหวด เชยงใหม ลอมรอบไปดวยสถานททองเทยวสําคญหลายท รองรบการพกหลายรปแบบทงกลมเลก กลมใหญ ใกล สถานทเทยวสําคญ ทพกราคาถก หองพกมหลายแบบ สงแวดลอมบรบทรอบพนทมความสงบ ใกลธรรมชาต บรรยากาศด มการคมนาคมเขาถงสะดวก คแขงทางธรกจ 5 2 1 เกณฑในการเลอกทตงโครงการในระดบยาน 1 2 3. 4 5.2 การเลอกทตงโครงการ เกณฑท 1 เกณฑท 2 เกณฑท 3 เกณฑท 4 อําเภอสนกําแพง อําเภอแมรม อําเภอแมออน ภาพท 52 แสดงแผนทเชยงใหมทแสดงยานทเลอก ทมา WWWWKPEDIAORG 26 ตารางท 5 1 การเลอกทตงโครงการในระดบยาน ตารางท 5 2 รายละเอยดขอมลเกณฑในการเลอกระดบยาน รสอรทพํานกเพอการพกผอนเชงจตวญญาณ Spiritual Retreat Longstay Resort
เกณฑในการเลอก A B C บรบทพนทสวยงามมองเหน เงยบ สงบ มองเหนสภาพแวดลอม ใกลแหลงทองเทยวเชงจตวญญาณ ระบบสาธารณปโภคแลสาธารณปการ การคมมานาคมเขาถง เกณฑในการเลอก A B C บรบทพนทสวยงามมองเหน เงยบ สงบ มองเหนสภาพแวดลอม ใกลแหลงทองเทยวเชงจตวญญาณ สาธารณปโภคแลสาธารณปการ มมานาคมเขาถง เกณฑในการเลอก A B C บรบทพนทสวยงามมองเหน เงยบ สงบ มองเหนสภาพแวดลอม ใกลแหลงทองเทยวเชงจตวญญาณ ระบบสาธารณปโภคแลสาธารณปการ การคมมานาคมเขาถง STEA SITEC SITE B บรบทพนทสวยงามมองเหน เงยบสงบ มองเหนสภาพ แวดลอม ใกลแหลงทองเทยวเชงจตวญญาณ ระบบสาธารณปโภคและสาธารณปการ การคมมานาคมเขาถง 5 3 เกณฑในการเลอกทตงโครงการในระดบพนท 1 2. 3 4 5 3 1 ทตงโครงการ A 5 3 2 ทตงโครงการ B 5.3.3 ทตงโครงการ C ขอมลทตง : ตําบลแม รมใต อําเภอแมรม จงหวดเชยงใหม เลขทดน/เลขทโฉนด 9 / 135 ขนาดพนทประมาณ : 8 ไร 1 งาน ขอมลทตง : ตําบลแมรมใต อําเภอแมรม จงหวดเชยงใหม เลขทดน/เลขทโฉนด
ขนาดพนทประมาณ
งาน
ตารางวา ขอมลทตง : ตําบลแมรมใต อําเภอแมรม จงหวดเชยงใหม เลขเลขทดน/เลขทโฉนด 153/13 ขนาดพนทประมาณ : 12 ไร 3 งาน 64 ตารางวา ภาพท 53 แสดงพนททเลอก ทมา : HTTPS://LANDSMAPSDOLGOTH ภาพท 54 แสดงพนททเลอก A ทมา : HTTPS://LANDSMAPSDOLGOTH ภาพท 55 แสดงพนททเลอก B ทมา : HTTPS://LANDSMAPSDOLGOTH ภาพท 56 แสดงพนททเลอก C ทมา : HTTPS://LANDSMAPSDOLGOTH 27 ตารางท 5 3 เกณฑในการเลอกทตง A ตารางท 5 4 เกณฑในการเลอกทตง B ตารางท 5 5 เกณฑในการเลอกทตง C รสอรทพํานกเพอการพกผอนเชงจตวญญาณ Spiritual Retreat Longstay Resort
37,38 /3,4
: 12 ไร 1
40
SITE ภาพท 59 แสดงการวเคราะหพนทโครงการ ทมา : HTTPS//LANDSMAPSDOLGOTH PANGDA ROAD WIND DIRECTION WIND DIRECTI ON 1 FOUR SEASONS RESORT 2 GUDI BOUTIQUE RESORT 3 4 AMARAVATI PAK RAM RESORT 5 4 วเคราะหทตงโครงการ สรปการณวเคราะหทตงโครงการ พนทตงโครงการ C เปน พนททมศกยภาพเหมาะสมทสดทจะทําโครงการมสภาพ แวดลอมโดยรอบโครงการทเงยบสงบ เเละเปนธรรมชาต กวา พนทอน แมจะมปญหาทางดานการเขาโครงการเลกนอย และ เปนพนททตดกบเสนทางทขนไปมอนแจม ใหความเปน ธรรมชาต เหมาะสําหรบการพํานกระยะยาวเพอการพกผอน เชงจตวญญาณ บรบทพนทสวยงามมองเหนสภาพแวดลอมทาง ธรรมชาต พนทมมมมองทเหน แมนํ้าปง และววภเขา พนททเลอกมความหนาแนนนอยมความเงยบสงบและ ความเปนสวนตวมาก เพราะเปนพนททไมใกลเเหลง ชมชนและไมตดถนนใหญา ระบบสาธารณปโภคและสาธารณปการทด การคมนาคมมการเขาถงงายเพราะมความใกลกบถนน ใหญ เพราะไมหางไกลจากถนนสมโภชเชยงใหม 700 ป ขอมลทตง : ตําบลปาตน อําเภอเมองเชยงใหม จงหวเชยงใหม เลขเลขทดน/เลขทโฉนด 153/13 ขนาดพนทประมาณ : 12 ไร 3 งาน 64 ตารางวา วเคราะหทตงโครงการ SITE SITE SITE ภาพท 57 แสดงพนทโครงการ ทมา : HTTPS://LANDSMAPSDOLGOTH ภาพท 58 แสดงบรบททางเขาดานหนาพนททเลอก ทมา : HTTPS://LANDSMAPSDOLGOTH 28 1 2 3 4 คแขงทางการคาในพททใกลเคยง ภาพท 510 แสดงการวเคราะหพนทโครงการ รสอรทพํานกเพอการพกผอนเชงจตวญญาณ Spiritual Retreat Longstay Resort

รสอรทพํานกเพอการพกผอนเชงจตวญญาณ Spiritual Retreat Longstay Resort

การกระทบกบสงปลกสราง ทําใหผใชงานเกดความรสกอบอน

สงบ เมอไดมาสมผส

ภาพท 61 แสดงทศนยภาพโครงการโดยรวม

การออกแบบโครงการรสอรทพํานกเพอการพกผอน

เชงจตวญญาณ นอกจากจะทําใหพนทเกดความเงยบสงบนา อยแลวยงตองคํานงถงความปลอดภยภายในโครงการโดยการ จํากดทศทางการเขาถงโครงการและไดรปแบบการเชอโยง

พนทยงตรงตามแนวความคดยงมพนทวางและการแบงกน

พนทอยางชดเจน

ภาพท 62 แสดงทศนยภาพทางเดนภายในโครงการ

ภาพท 63 แสดงทศนยภาพทางเดนภายในโครงการ

ภาพท 64 แสดงทศนยภาพดานหนาโครงการ

6 1 แนวความคดและประเดนใน การออกแบบ บทท 6 แนวความคดและผลงาน การออกแบบ แนวความคดในการออกแบบโครงการ การวาง ผงตงฉาก 45 องศา กบพนทของโครงการใช เสนและแสงใน การออกแบบโครงการการโดยการนําเสนและแสงทสาดสอง เขาตวอาคาร จากการทมแสงบางๆสองผานชวงเปด และเกด
ทําใหรสกไดมาพกผอนเตมพลงงานจาก โครงการแหงนภาพรวมของโครงการเปนรปแบบอาคารทแยก กนแบงสวนตางๆของโครงการ สวนของทพก สวนกจกรรม และสวนของลอบบแยกออกจากกน จงมการเกดพนทวางใน การจดสวนและนํ้าเพอแบงพนทการใชงานและมกําแพงแบง กนสดสวนอยางชดเจนเพอใหเกดความเปนสวนตวและสงบ มากขน
29

รปแบอาคารเปนกลมเกนไปเหมอนโรงแรมมากกวา

รสอรท ควรแยกหองพกทเปนบานออกจากตวอาคาร พนทตงโครงการมขนาดเลกไปไมเหมาะกบการทํา รสอรทและทางเขาโครงการผดกฎหมาย

แยกสวนตางๆออกจากกนเพอความเปนสวนตวและ

rest room activity services pool lift and fire escape reception and restaurant foodpath 07 00 11 00 14 00 17 00 6 2 การนาเสนอผลงานการ ออกแบบราง ครงท 1
ความสงบภายในพนทโครงการ ปญหาทพบในการตรวจแบบรางครงท 1 ภาพท 65 แสดงแบบรางครง 1 ภาพท 66 แสดงแบบรางครง 1 ภาพท 67 แสดงตวอาคารแบบรางครง 1 30 รสอรทพํานกเพอการพกผอนเชงจตวญญาณ Spiritual Retreat Longstay Resort

แกปญหาทพบในการตรวจแบบรางครงท

ขอมลทตงเดม : ตําบลเหมองแกว

153/13

: 12 ไร 3 งาน 64 ตารางวา

จดผงโครงการโดยการแยกตวอาคารออกจากกนเพอ ความเปนสวนตวและแยกกลมทเขามาใชงานภายใน โครงการ

สวนกจกรรมพนทเดนทําสมาธกบสวนของสระวายนํ้าม ความใกลกนเกนไปอาจมเสยงรบกวนระหวางกน ทางเขาหนาหองพกควรแยกกนเพอความเปนสวนตว หลงคาของตวอาคารสวนตอนรบมการยนชายคาออกมา มากเกนไปทําใหมชองวางระหวางอาคารนอย

6 3 การนาเสนอผลงานการ
เปลยนพนทตงโครงการมาอยทตําบลอําเภอแมรมใต จงหวดเชยงใหม ทําใหมขนาดพนทใหญและเหมาะกบ การทํารสอรท
ออกแบบราง ครงท 2
อําเภอเมองแมรมจงหวดเชยงใหม เลขเลขทดน/เลขทโฉนด
ขนาดพนทประมาณ
1 ขอมลทตงใหม : ตําบลแมรมใต
อําเภอแมรม จงหวดเชยงใหม
ขนาดพนทประมาณ
80 ตารางวา
เลขเลขทดน/เลขทโฉนด557/803
: 6 ไร 2 งาน
ปญหาทพบในการตรวจแบบรางครงท 2 ภาพท 68 แปลนแสดงแบบรางครง 2 ภาพท 69 แสดงทศนยภาพแบบรางครง 2 ภาพท 610 แปลนขยายแสดงแบบรางครง 2 31 รสอรทพํานกเพอการพกผอนเชงจตวญญาณ Spiritual Retreat Longstay Resort
ภาพท 611 แสดงทศนยภาพแบบรางครง 2 ภาพท 612 แสดงทศนยภาพแบบรางครง 2 ภาพท 613 แสดงทศนยภาพแบบรางครง 2 ภาพท 614 แสดงทศนยภาพแบบรางครง 2 ภาพท 615 แสดงทศนยภาพแบบรางครง 2 ภาพท 616 แสดงรปตดแบบรางครง 2 ภาพท 617 แสดงรปดานแบบรางครง 2 32 รสอรทพํานกเพอการพกผอนเชงจตวญญาณ Spiritual Retreat Longstay Resort

6 4 ผลการออกแบบขนสมบรณ

6 4 1 แนวคดในการออกแบ

แนวความคดในการอ

เสนและแสงในการออกแบบโครง

แสงทสาดสองเขาตวอาคาร จากก

เปด และเกดการกระทบกบสงป

ความรสกอบอน สงบ เมอไดมาส

เตมพลงงานจากโครงการแหงนภา

แบบอาคารทแยกกนแบงสวนตาง

สวนกจกรรม และสวนของลอบบ

พนทวางในการจดสวนและนํ้าเพอ กําแพงแบงกนสดสวนอยางชดเจน และสงบมากขน PRIVATE SERVICES PUBLIC ภาพท 618 แสดงโซนนงของโครงการ ภาพท 619 แสดงทศนยภาพโครงการ ภาพท 620 แสดงทศนยภาพโครงการ 33 รสอรทพํานกเพอการพกผอนเชงจตวญญาณ Spiritual Retreat Longstay Resort
แปลน ภาพท 621 แสดงแปลนครงการ 34 รสอรทพํานกเพอการพกผอนเชงจตวญญาณ Spiritual Retreat Longstay Resort
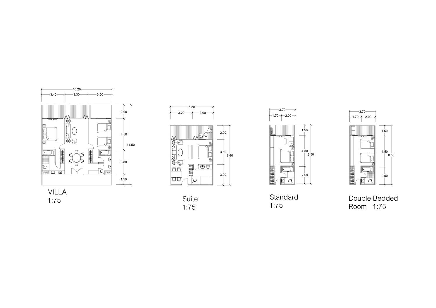
สวนสปา/รกษาแบบสมผสเรก /ราน อาหาร/รานกาแฟ/สํานกงาน สวนตอนรบ สวนพนกงานและ งานระบบ สวนกจกรรม แบบขยายสวนของหองพกแบบ SUITE แบบขยายสวนของหองพกแบบ DOUBLE BEDDED ROOM แบบขยายสวนของหองพกแบบ STANDARD แบบขยายสวนของหอง พกแบบ VILLA แบบขยายแปลน แบบผงบรเวณ ภาพท 623 แสดงผงบรเวณโครงการ ภาพท 622 แสดงแบบขยายแปลนครงการ 35 รสอรทพํานกเพอการพกผอนเชงจตวญญาณ Spiritual Retreat Longstay Resort
รปดาน A รปดาน B รปดาน D รปดาน C รปตด 1 รปตด 2 ภาพท 624 แสดงรปดานทงหมดของโครงการ ภาพท 625 แสดงรปตดของโครงการ ภาพท 626 แสดงรปตดขยายของโครงการ 36 รสอรทพํานกเพอการพกผอนเชงจตวญญาณ Spiritual Retreat Longstay Resort

ภาพท 627 แสดงทศนยภาพภายนอกโครงการ

ภาพท 628 แสดงทศนยภาพภายนอกโครงการ

ภาพท 629 แสดงทศนยภาพภายนอกโครงการ

ภาพท 630 แสดงทศนยภาพดานหนาโครงการ

ทศนยภาพภายนอกโครงการ
37 รสอรทพํานกเพอการพกผอนเชงจตวญญาณ Spiritual Retreat Longstay Resort
ทศนยภาพภายในโครงการ ภาพท 631 แสดงทศนยภาพในโครงการสวนตอนรบ ภาพท 632 แสดงทศนยภาพในโครงการสวนหองพก ภาพท 633 แสดงทศนยภาพในโครงการสวนหองพก ภาพท 634 แสดงทศนยภาพในโครงการสวนหองพก ภาพท 635 แสดงทศนยภาพในโครงการสวนของหองโยคะ ภาพท 636 แสดงทศนยภาพในโครงการสวนของตองรบ ภาพท 637 แสดงทศนยภาพในโครงการสวนของพนทนงพก 38 รสอรทพํานกเพอการพกผอนเชงจตวญญาณ Spiritual Retreat Longstay Resort
ถงบําบดนํ้าเสย บอดกไขมน บอดกขยะและตรวจสขภาพนํ้า ํ้า หมอแปลง งานระบบ ภาพท 631 แสดงงานระบบในโครงการ CPU VRV งานระบบแอร SPLIT TYPE 39 ภาพท 632 แสดงงานระบบในโครงการ รสอรทพํานกเพอการพกผอนเชงจตวญญาณ Spiritual Retreat Longstay Resort งานระบบไฟ เสนทางการ เดนระบบไฟ MDB งานระบบนํ้าด งานระบบนํ้าเสย บอดกขยะและตรวจสขภาพนํ้า นํ้าด ปมนํ้า

สวนงานออกแบบสถาปตยกรรมตองมความเปนเอกลกษณเขา กบกจกรรมและชอดครงการ มจดเดนทนาสนใจเพอดงดดให คนอยากมาพกและคนทมาแลวเกดความประทบใจมความ

การเลอกพนทโครงการเลอกพนททมความหนาแนน นอยเดนทางสะดวก บรบทโดยรอบมความเงยบสงบ

ลกษณะของการวางผงอาคารจะแยกตวอาคารออกจาก กนเพอความเปนสวนตวและความสงบ

แยกกลมเขามาใชงานภายในโครงการ

พนททํากจกรรมภายในโครงการออกแบบแยกกลมเขา มาใชงานภายในโครงการอยางชดเจน โดยมการแบงกน ดวยสวนหรอกําแพงทเปดชองนําแนวความคดเขามาใช การออกแบบภายในหองพกเนนการเปดโลงและ ออกแบบชองเปดแตละหองใหเหนววทกหองเเละใชโทน สใหดอบอน ไมนาเบอเพราะกลมเขามาใชงานสวนมาก

จะมาพกอยระยะยาว

ความปลอดภยภายในโครงการโดยการจํากดทศทางการ เขาโคงการกลมทเขามาใชงานจะแยกกกบกบกลม พนกงานอยางชดเจนเพอความปลอดภยและไมเกด

ความวนวายภายในโครงการ

คลายสบายใจอตราราคากจะสงขนไดเพราะผเขามาพกจะรสก ประทบใจตองการมาพกผอนโดยเปนสวนตว สงบ รมรน

ปราศจากสงรบกวนมจดเดนมมมองทสวยงามไมนาเบอและ เปนสวนตวมากเทาไหรยงไดรบความนยมตามไปดวย

บทท 7
สรปผลการศกษาและขอเสนอแนะ
รวมไปถงการ
7 1 สรปผลการศกษา วทยานพนธนไดศกษาเกยวกบพฤตกรรมของกลม เปาหมาย นํามาวเคราะหหาขอมลในการออกแบบเพอรองรบ โอกาสในอนาคตจงไมอาจมองขามในเรองการทําความเขาใจ แรงจงใจหรอ ทศนคตในดานตาง ๆ ของนกทองเทยวทมผลตอ การพฒนาแหลงทองเทยวได เพราะจะทําใหนกทองเทยว ตดสนใจมายงจดหมายปลายทางนนๆและการมสวนรวมใน กจกรรมการทองเทยวพกผอน รวมถงมพฤตกรรมทอยาก กลบ มาซํ้า นํามาวเคราะหหาขอมลในการออกแบบ ดานแนวความ คด การเลอกทตง และการกําหนดพนทใชสอย เพอหา แนวทางในการออกแบบและการออกแบบสถาปตยกรรมสําห รกการพกผอนระยะยาวเชงจตวญญาณ ไดดงน 1. 2 3 4 5 7 2 ขอเสนอแนะ บรรยากาศมความสําคญมากเพราะสงผลตอผทเขา มาใชงานภายในโครงการ คอการสรางบรรยากาศ การ ออกแบบอาคาร ใหนาจดจํา และประทบใจ เมอเขามาภายใน โครงการแลวรสกปลอดภย ผอนคลายรางกายเเละสงบจตใจ สรางประสบการณใหมในการพกผอนเปนจดขายใหผคนสนใจ
ตองการอยากกลบมาใชซํ้า การออกแบบรสอรท สงสําคญในการออกแบบคอ ความเปนสวนตวและความปลอดภย ซงการมาพกระยะยาวจะ ยงตองมความเปนสวนตวมาจะทําใหคนทเขามาพกรสกผอน
40 รสอรทพํานกเพอการพกผอนเชงจตวญญาณ Spiritual Retreat Longstay Resort

บรรณานกรม

กฎกระทรวง ฉบบท 33. (2535). พระราชบญญตควบคมอาคาร พ.ศ. 2522. คนเมอ 12 ตลาคม 2565, จาก

https://download asa or th/03media/04law/cba/mr/mr35-33-upd69

กฎหมายกระทรวง ฉบบท 55 (2543) พระราชบญญตความควบคมอาคาร พ.ศ 2522. คนเมอ 12 ตลาคม 2565, จาก

https://asa or th/wp-content/uploads/2020/03/

กระทรวงการทองเทยวและกฬา (2563) จํานวนนกทองเทยวทเดนทางมาจงหวดเชยงใหม คนเมอ 12 ตลาคม 2565, จาก https://www mots go th/more news new php?cid=411

นสนธ (2559) วทยานพนธการทองเทยวเชงสขภาวะดานการพฒนาการฟนฟจตวญาณ

สถาบนบณฑตพฒนบรหารศาสตร

ศนยวจยดานการตลาดการทองเทยวแหงประเทศไทย (2559) จํานวนคนทเขามาพกสถานทพก. คนเมอ 12 ตลาคม 2565, จาก https://intelligencecenter tat or th/

(2563) การพฒนาจดหมายปลายทางแหลงทองเทยวเชงจตวญญาณกบพฤตกรรมนกทองเทยว

วจย วารสาร วทยาลยดสตธาน

สรญพร สรวชย (2561) ศกยภาพของการพฒนาแหลงทองเทยวเชงจตวญญาณ

ชนนภา
ปจจยแรงจงใจ ทมอทธพลตอ ความพงพอใจและการตงใจกลบมาทองเทยวซํ้า กรณศกษาจงหวดเชยงใหม. วทยานพนธ คณะการจดการการทองเทยว.
สรญพร สรวชย,สวาร นามวงค
ในจงหวดเชยงใหม
วทยานพนธ คณะการจดการการทองเทยว สถาบนบณฑตพฒนบรหารศาสตร " 41 รสอรทพํานกเพอการพกผอนเชงจตวญญาณ Spiritual Retreat Longstay Resort
ชอ-สกล วนเกด ทอย สถานทฝกงาน E-MAIL วทยานพนธ ประวตการศกษา พ.ศ. 2561 พ ศ 2558 พ.ศ. 2555 นางสาวกรรณการ คณวนด วนพฤหสบด ท 24 มถนายน พ ศ 2542 42/2 ต โคกสงา อ พล จ ขอนแกน 40120 บรษท กด สเปส จํากด จ เชยงใหม POPOO3221PP@GMAIL COM รสอรทพํานกเพอการพกผอนเชงจตวญญาณ ศกษาทคณะสถาปตยกรรมศาสตร ผงเมอง และนฤมตศลป มหาวทยาลยมหาสารคาม มธยมปลาย โรงเรยนเมองพลพทยาคม มธยมตน โรงเรยนเมองพลพทยาคม 42 ประวตสวนตวผจดทําวทยานพนธ รสอรทพํานกเพอการพกผอนเชงจตวญญาณ Spiritual Retreat Longstay Resort

Turn static files into dynamic content formats.

Create a flipbook
Issuu converts static files into: digital portfolios, online yearbooks, online catalogs, digital photo albums and more. Sign up and create your flipbook.
archmsu2022thesis_Kannika_Part 02 by Kannika Khunwandee - Issuu