Architectural Portfolio - Kan Siriniran

Page 1

ARCHITECTURAL PORTFOLIO

FACULTY OF ARCHITECTURE CHIANG MAI

UNIVERSITY Bachelor of Science, Architecture Program Local Wisdom-based Architectural

KAN SIRINIRAN

Chiang Mai, Thailand

CONTACT

Email : kan_siri@cmu.ac.th

FB : Kan Siriniran

Line : karn18ks

Tel : (+66)099-5760952

PROFILE

Education

High school

Montfort College, Chiang mai, Thailand

Bachelor’s degree

Bachelor of Science, Architecture Program Local Wisdom-based Architectural Track Faculty of Architecture Chiang Mai University

ACADEMIC PROJECT

SECOND

HOUSE DESIGN MY PAVILION

ACTIVE ADULT AGEING COMMUNITY

MAI CAPENTRY MUSEUM

LANNA WOOD AND FOREST LEARNING CENTER

LAMPHUN LOCAL WISDOM LEARING CENTER

OTHER PROJECT

BAMBOO PAVILLION COMPETITION

AVES CORRIDOR (TEAM COMPETITION)

CONTENT
FIRST YEAR SMALL
CHIANG
YEAR
THRID YEAR
-
Page 2 6 9 12 15 20 28

ACADEMIC PROJECT

FIRST YEAR PROJECT

Page 1

150 sq.m

SMALL HOUSE DESIGN

This house was designed using the concept of the homeowner's desire to have a Thai-style house and use wood as the main material of the house. By using the concept of raising the house under a high basement and using folding doors as the main element to open the space between the rooms to flow together and not cause the feeling of blocking each room.

Page 2

Small House Design

USER

: Photographer, Housewife

LOCATION : Chiang mai, Thailand

AREA : 150 sq.m

CONCEPT

By using the concept of raising the house under a high basement and using folding doors as the main element to open the space between the rooms to flow together and not cause the feeling of blocking each room.

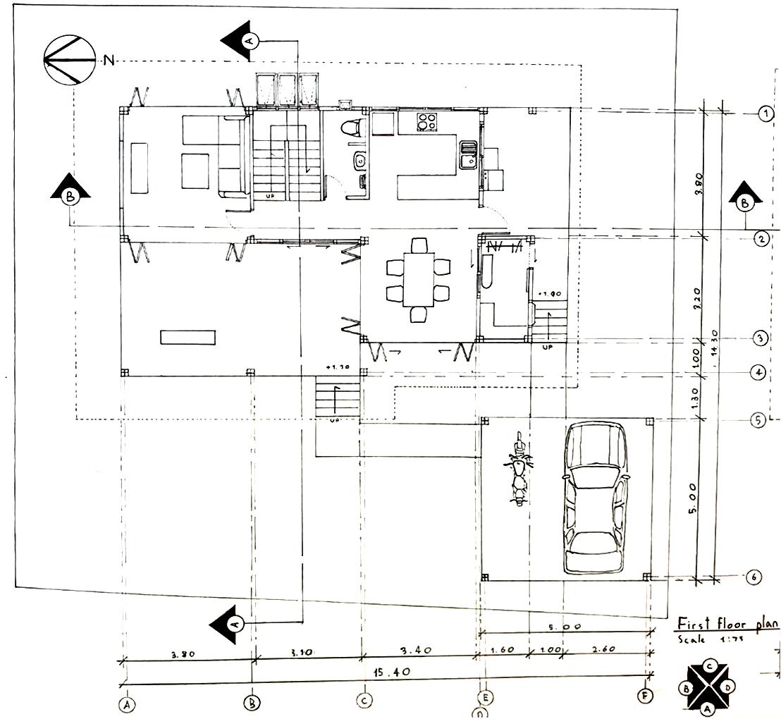
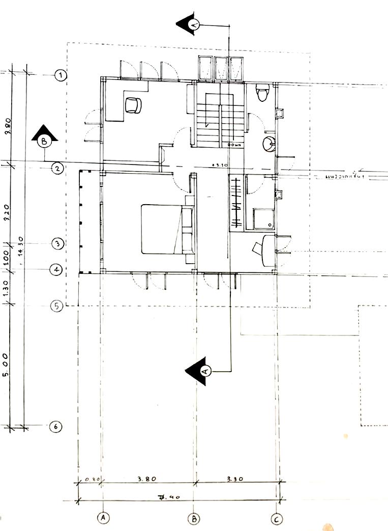
FIRST FLOOR PLAN SECOND FLOOR PLAN Page 3

MODEL

FINAL
Page 4

ACADEMIC PROJECT

YEAR PROJECT

SECOND
Page 5

200 sq.m

MY PAVILION

I, as a person who is quite fed up with living in the city, As a result, there is more and more grabbing that occurs in nature with trees. Sitting and looking makes me feel more comfortable with myself. Therefore, the location of this work was chosen at Pang Ung, a natural reservoir in a beautiful and peaceful valley. The concept therefore comes from the tent site, which is replicated as a pavilion that will convey the identity of oneself. By designing an area where you can sit quietly and enjoy nature and having a camping area.

Page 6

My Pavilion

USER : me

LOCATION : Pang Ung, Mae Hong Son, Thailand

AREA : 200 sq.m

CONCEPT

The concept therefore comes from the tent site, which is replicated as a pavilion that will convey the identity of oneself. By designing an area where you can sit quietly and enjoy nature and having a camping area.

LAYOUT PLAN

PERSPECTIVE
Page 7

MATERIALS

PERSPECTIVE FINAL MODEL ISOMETRIC VIEW
CANVAS GLASS WOOD Page 8

sq.m

ACTIVE ADULT AGEING COMMUNITY

At present, Thai society has fully stepped into an aging society. There fore, there is an idea to develop an area that will serve as a community. that the elderly who still want to have a society to meet friends

Therefore, using the concept of ‘Active Agieng’ or ‘agieng with qual ity’. It is a process that is appropriate and allows for opportunities for health improvement. Involvement, security for the context of friends, neighbors and family members.

500
Page 9

Active Adult Ageing Community

USER

: elderly person

LOCATION : Chiang mai, Thailand

AREA : 500 sq.m

CONCEPT

The design idea was to create a space that accommodated sales activities. Dining, music and work shops which will bring wisdom in various fields Both in food and culture, it will be like a cultural center of Chiang Mai. It is also a good relationship between the new generation and the old.

DESIGN CONCEPT

Design has taken the Ta-Leaw as an fetish The weaving machine is like a representative of both the belief and wisdom of Lanna. To study and create a space.

DESIGN DEVELOPE

PERSPECTIVE Page 10

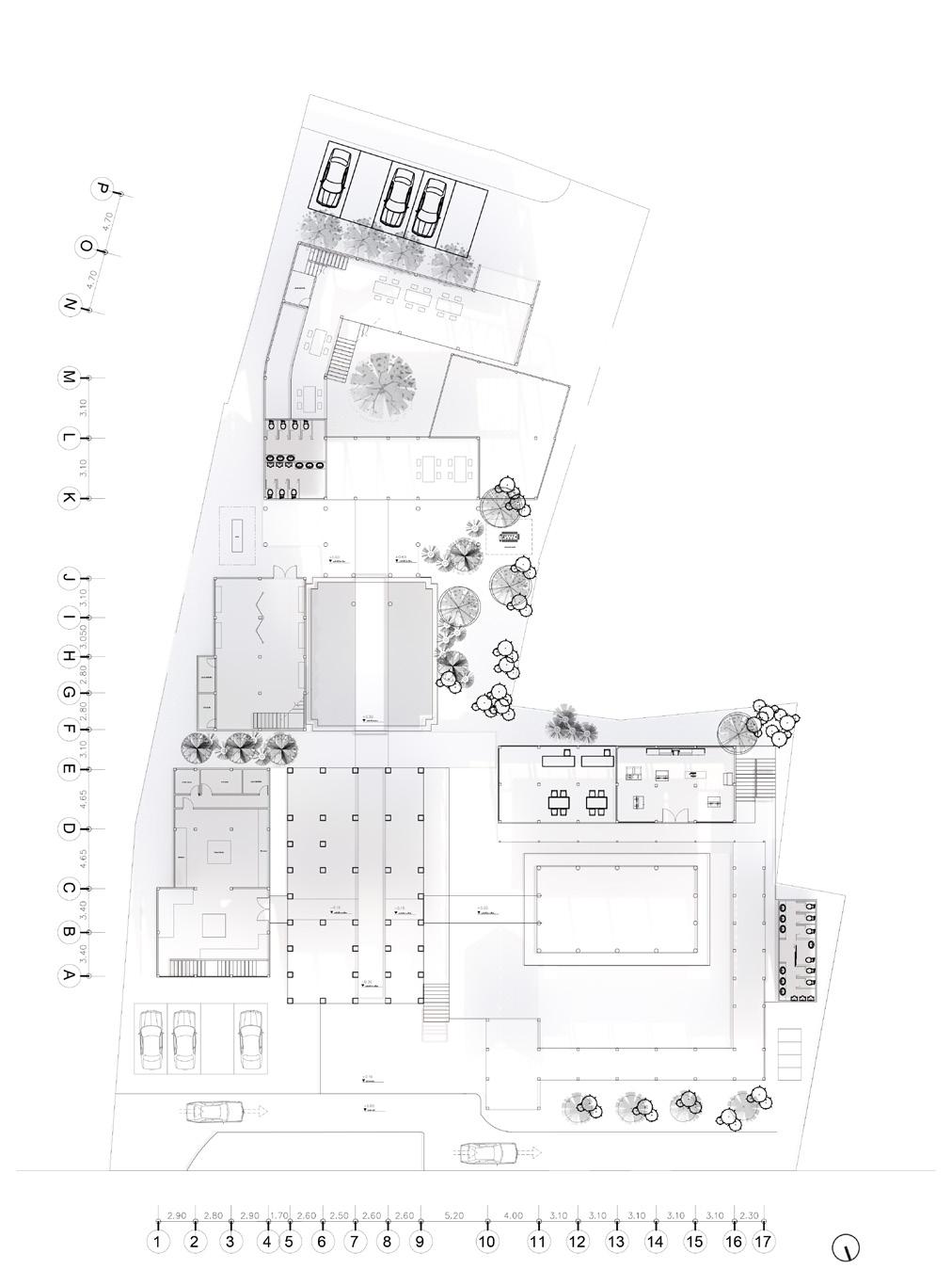
FLOOR PLAN

DETAIL

- Using bamboo to weave overlapping to cre ate a pattern of Ta-Leaw.

- Brick walls leave spaces in parallel according to the interpretation of Ta-Leaw.

- Using the Tan / Chan make a way to the rooftop.

FINAL MODEL Workshop and dining Shop Outdoor
chords
Rooftop The way to the
rooftop
Page 11

1000 sq.m

CHIANG MAI CARPENTRY MUSEUM

Project MASTER ARCHTECT AND ME ,This project is a study of ideas from master architects. that I have chosen to study is Bijoy Jain from Studio Mumbai, whose concept is to combine the science of architecture between being (GLOBAL/UNIVERSAL) and (LOCAL) with the integration of knowledge, techniques, science, art, culture, beauty, society, environment.

Page 12

Chiang mai Capentry Museum

USER : tourist, young people, general

LOCATION : Chiang mai, Thailand

AREA : 1000 sq.m

CONCEPT

Locality and craftsmanship details reflected through the material truth through ancient construction methods, showing the Sustainable in the spirit of craftsmanship. that are idea from Bijoy Jain from Studio Mumbai. that bring ideas to develop to this project.

DESIGN CONCEPT

An area for gathering Lanna carpentry knowledge instead of learning values through the layers of the tree ring to come out as a space of museum.

PERSPECTIVE Page 13
Wood comes to create works. Joining. How to use tools. Metallurgy, Atmospheric blacksmithing, Tool smithy, Wood processing
SECTION Page 14

2000 sq.m

LANNA WOOD AND FOREST LEARNING CENTER

Project From Artist To The Track. This project is a study of ideas Artist. that I have chosen to study is Geoge Nakashima, He is a woodworkers. whose concept in his works is The soul and spirit of the tree. That’s used to inspired to this project.

Page 15

LANNA WOOD AND FOREST LEARNING CENTER

USER : tourist, carpenter

LOCATION : Sankampang, Chiang mai, Thailand

AREA : 2000 sq.m

CONCEPT

The spirit of wood and trees and Lanna craftsmen. Bringing the story of the wisdom of craftsmanship and local handicrafts of Sankampang to promote the Sankampang Craft Community.

DESIGN CONCEPT

Learn how to use the simplest structure to design, implement it in a straightforward way.

- Tech to find the beauty of Lanna wood work. - Mixing local stories of Sankampang Chiang Mai. - Lanna wood cultivation techniquesใ

DESIGN DEVELOPE

Page 16
SECTION PERSPECTIVE FRONT VIEW INTERIOR Page 17

Museum Building Show new wood structure

EXONOMETRICS VIEW

Workshop Building Show new wood structure

PERSPECTIVE

EXONOMETRICS VIEW
Page 18

ACADEMIC PROJECT

YEAR PROJECT

THIRD
Page 19

3000 sq.m

Lamphun Local Wisdom Learning Center

The core of wisdom creates unity with nature. respect nature, Understanding nature for harmonious coexistence with nature Lamphun province has the root of wisdom in many fields. Therefore, the province has high intellectual strength. Therefore, this learning center has gathered the wisdom of the province to keep that wisdom alive and can move forward in the future and for the old and the new generation to interact and have learned to bring him to his friends in the future

Page 20

Lamphun Local Wisdom Learning Center

USER : tourist, young people, general

LOCATION : Lamphun, Thailand

AREA : 3000 sq.m

CONCEPT

Creating an architecture that will appreciate wisdom and build on wisdom in a lively and contemporary way.

DESIGN CONCEPT

Using Tan and Chan’s Space of Lanna houses used in the design and Use the design of the building arrangement in the shape of a band. and use the sala bat in the Lanna temple to connect people with the project in front of the entrance.

PERSPECTIVE FRONT VIEW DESIGN DEVELOPE I DESIGN DEVELOPE II
Page 21
DESIGN DEVELOPE III DESIGN DEVELOPE IV Page 22
LAYOUT PLAN 2 1 3 4 5 6 7 1 2 3 4 5 6 7 8 8 ELEVATION I ELEVATION Page 23 Khum Chao Suriya Exhibition Building 1 Exhibition Building 2 Exhibition & Building Multipurpose Hall Multipurpose Area Workshop Building Glass House
ISOMETRIC VIEW ELEVATION II INSIDE OUT PERSPECTIVE Page 24

Zone

PERSPECTIVE BACK VIEW SECTION A-A FIRST FLOOR PLAN 1 2 3 4 5 6 7 SECOND FLOOR PLAN 1 2 3 4 5 1 12 3 4 5 2 3 4 5 6 7 Page 25 Exhibition Zone 3 Exhibition Zone 5 Shop Exhibition
1 Exhibition Zone 2 Exhibition Zone 4 Exhibition Zone 6 Rest Room Multipurpose Hall Multipurpose Area Workshop Glass House
EXHIBITION INTERIOR WORKSHOP INTERIOR SECTION B-B EXHIBITION INTERIOR Page 26

OTHER PROJECT

Page 27
BAMBOO
PAVILION COMPETITION

AVES CORRIDOR (TEAM COMPETITION)

Due to the migratory of foreign birds that live on this site every year, we are interested in studying the bird’s skeleton patterns and developing properties such as being strong, airy, and flexible. The skeleton that zooms into another deeper level is seen as another structure. It resembles mixed circle sizes gradually. This section was developed and used to achieve an airy structure. The overlapping cross-frames are used as protection from light and rain. They also developed from the study of feathers to create new structures that look airy but are resilient by themselves. It has been devel oping into a structural part of the solid and void sections. The cross sections are not attached to the main structure. When the wind blows, it produces a structure’s movement. Last, the flexibility of the main structure, solid and void, makes the project look curious.

Page 28
Page 29 AVES (TEAM COMPETITION)
USER : tourist
LOCATION
: Nansha Bird Park, Guangzhou, China
Page 30

Turn static files into dynamic content formats.

Create a flipbook
Issuu converts static files into: digital portfolios, online yearbooks, online catalogs, digital photo albums and more. Sign up and create your flipbook.