Architectural Portfolio

Page 1


O R T F O L I O

O N T E N T

01 02 03 04 05 06 07

SCHOOL DESIGN

• Project – Academic,4 th semester

• Topology – Commercial Building

• Location – Kullu Manali

• Total site area - 4.8 acers

Local Materials: Utilize locally sourced materials to reduce environmental impact and support the regional economy. Local stone, timber, and other indigenous materials can blend harmoniously with the surroundings.

Weather-Resistant Materials: Considering Kullu's occasional heavy rainfall and snowfall, use weather-resistant materials for the exterior. Proper waterproofing and durable finishes can protect the building from moisture-related issue

CONCEPTS

Minimalistic architecture sometime refer to the minimalism involve the use of simple design element without orientation or decoration, Pure geometrical shape ,Simple limited plane components, Neat and straight components, Simple open space &Clean lines, Repetition to give a sense of order and unification

CORPORATE OFFICE DESIGN

• Project – Academic,5th semester

• Topology – Commercial Building

• Location - located in front of platinum plaza- Jain Mandir Road, South TT Nagar

• Total site area - 6 acers

MODULE OPEN WORKSPACE OUTER CABINS

CONCEPTS

BREAKING THE MONOTONICITYTHE -

OPEN WORKING OR CUBICLE SYSTEM HAS GROWN TO BE MONOTONUS IN NATURE AND ITS ALMOST BEEN ADAPTED IN EVERY BUILDING TODAY -THE CHANGE IN WORK ENVIRONMENT DOES EFFECT THE QUALITY OF WORK BY REGULATING THE MODULES MONOTONICTY CAN BE REDUCED TO A LARGER EXTEND

TEAM ENCLOSURES-

TEAM OFFICES ALLOW MEMBERS OF THE SAME TEAM TO WORK TOGETHER WITHOUT LOSING FOCUS AND GETTING DISTRACTED BY PEOPLE NOT IN THEIR IMMEDIATE TEAM. THIS IS GREAT FOR CREATIVE TEAMS WHERE BRAINSTORMING AND DISCUSSION ARE A LARGE PART OF THE DAY TO DAY -IDEAS FLOW AND CAN BE DISCUSSED RIGHT AWAY INSTEAD OF WAITING FOR A BOOKED MEETING ROOM OR CALLING FOR A FORMAL DISCUSSION -HOWEVER, INDIVIDUAL PRIVACY IS A DOWNSIDE TO THIS STYLE, AS WELL AS LIMITATION TO PEOPLE NOT IN A SPECIFIC TEAM THIS OFFICE LAYOUT IS PRACTICAL FOR BUSINESSES WHERE MANY TEAMSARE WORKING ON MULTIPLE PROJECTS, FOR EXAMPLE, AN ADVERTISINGAGENCY WITH SALES TEAMS AND CREATIVE TEAMS WORKING ONDIFFERENT CAMPAIGNS

FRONT ELEVATION
SIDE ELEVATION

SHOPPING COMPLEX

• Project – Academic,6 th semester

• Topology – Commercial Building

• Location - New Market, Malviya Nagar, Madhya Pradesh 462003, India

• Total site area - 4.5 acers

CONCEPTS

The building using geometry shapes which giving aesthetic look using modern way construction. A gradient transition from bigger to smaller facade components regulates the exposure of the inside to the outside and enhances the main entrance of the building. The facade therefore becomes an integrated active layer that can be programmed as display windows, vista points or balconies. The facade components follow the articulated geometry of the building and provide constantly changing perspectives

MAIN BUILDING

GREEN AREA

The facade is designed to support the overall design concept of a programmed facade and to create depth for the building envelope. The use of multi-layered components enables a variety of views towards the surroundings, whilst simultaneously providing functional transparency in specifically located areas.

SITE PLAN
BACK ELEVATION
FRONT ELEVATION
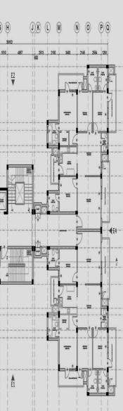
GROUND FLOOR
FIRST FLOOR

HIGHRISE BUILDING

• Project – Academic,7 th semester

• Topology –Residential Building

• Location - Pallavi Nagar, near hoshangabad road, Bhopal ,ward no. 52

• Site area-8.4 acres , Building type-Residential building Soil Type- Black soil

• Latitude-23°11'14 N , Longitude-77 26'47"E

MIG
MIG 3BHK

SITE ANALYSIS

Average literacy rate of Meerut in 2011 were 72.84 compared to 72.84 of 2001. If things are looked out at gender wise, male and female literacy were 80.74 and 63.98 respectively. For 2001 census, same figures stood at 75.00 and 53.12 in Meerut District. Total literate in Meerut District were 2,141,488 of which male and female were 1,254,520 and 886,968 respectively. In 2001, Meerut District had 1,606,469 in its district.

With regards to Sex Ratio in Meerut, it stood at 886 per 1000 male compared to 2001 census figure of 872. The average national sex ratio in India is 940 as per latest reports of Census 2011 Directorate. In 2011 census, child sex ratio is 852 girls per 1000 boys compared to figure of 857 girls per 1000 boys of 2001 census data.

Geography Meerut district lies between 28°57’ to 29°02’ North latitude and 77°40’ to 77°45’ East longitude in the Indo-Gangetic plains of India. It is bound on the north by Muzaffarnagar district, in the south by Bulandshahar district while Ghaziabad and Baghpat districts form the southern and western limits.SEISMIC ZONE OF MEERUT

CONCEPT

Meerut is a place of rich culture and heritage. History and values of the residents of Meerut show a significant devotion towards Lord Krishna. Taking this as concept, the Open To Sky Haat is evolved from the feather of peacock. the space is created as such to have a difference in heights creating segregated spaces, balance and interactive environment. such structure helps in reviving the past and also in creating an innovative space.

STEPS OF CONSTRUCTION

The side walls are made of roller grills moving on the fixed track attached to cloth making up the whole unit

The portable housing comes with a fixed cuboid box, attached to it is the openable housing and space to store the foldable furniture.

The base made of cement board is laid on the framing

The first stage isopened with the base steel framing

The unitcanbe used as a resting space, composed offraming, roof and base.

The roof is then opened with the north light part

The frame islaid, the roof isopened above it.

The walls are pulled out of the unit, the front walls make up the slant wall of the unit

The side part of the roof is made of triangular cloth material

RENDEREDSECTION

WORKING DRAWING

WORKING DRAWING OF KITCHEN

WORKING DRAWING OF KITCHEN

INTERNSHIP WORK

MISCELLANEOUS

Location– DK-2Danish Kunj , kolar road , Bhopal

Plot area – 1513 Sqft

Ground floor Area – 1160 sqft

First Floor Area – 1325 Sqft

Tower – 260 Sqft

Total - 2745 Sqft

INTERIOR

Interior Design Proposal

LED Wall Sconce BRAND- Seit
Rotatable 350° Indoor Wall Mount Lights
CENTER TABLE BRAND - FATIVO Centre Table with Gold Finish Metal Frame and Marble Top

T H A N K Y O U

Turn static files into dynamic content formats.

Create a flipbook
Issuu converts static files into: digital portfolios, online yearbooks, online catalogs, digital photo albums and more. Sign up and create your flipbook.