Architecture Portfolio

Page 1

PORTFOLIO OF WORK

Kamar Shafeeha.

KAMAR SHAFEEHA

kamarshafeeha@vt.edu

+1(540)-558-5483

BLACKSBURG VA

M.ARCH Virginia Tech

B.Arch Anna University

CONTENTS Selected Works (2016 - 23) Academic Green Mount Healing with the Flow Envisioning Shelter Homes 1-5 6-11 12-15 Architecture with Care Mapping Cities Periyamet 16 17-18 19-21 Professional Villa Serena Arbor School 22-25 26-27 Architecture Urban

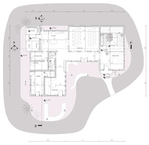
01 Healing with the Flow

Arch and Urbanism Lab I - December 2022

This design lab focuses on both the explicit and implicit interactions between health and wellbeing, and architecture. These interactions were explored through the design for healthcare clinic to serve a community such as Blacksburg through the Virginia College of Osteopathic Medicine.

The design approach simultaneously addresses the needs of both the patients and the healthcare providers.

SITE - INTRODUCTION.

PARTI.

EXPLORATIONS.

Biophilia is the humankind’s innate biological connection with nature.

Salutogenesis is the study of the origins of health and focuses on factors that support human health and well-being, rather than on factors that cause disease. Biophilic design & Salutogenesis

SITE PLAN.

The site is located opposite to the main VCOM building and has a well defined neighbourhood.

Surrounded by lush greenary with a lake on the East and a calm neighbourhood with residence makes it ideal for creating spaces that adds value in terms of overall experiential quality for the patients as well as in developing social interaction.

Location : 2280 Kraft Drive, Opposite the main VCOM building.

Area :

Neighbourhood

01 Healing with the Flow | Academic M Arch | December 2022 | Kamar
2.5 Acres (109000 sq.ft)
N
Context : Residential and Institutional Zone.

MASSING IDEAS.

As a spatial and massing exercise, three different parti concepts were proposed, each with a different approach to integrating the internal green space. The “Hub” features a central open space with other program areas branching off radially

MATERIAL PALLET.

02 SITE INTERPRETATION. N
Healing with the Flow | Academic M Arch | December 2022 | Kamar

NORTH ELEVATION.

Based on the previous site analyses, treatment spaces were located along the north-west making it easily accesible for the patients, while educational/community spaces were oriented to the east, taking advantage of natural airflow and daylight access and views for the exercise and library spaces also considering the heightened privacy requirements. The communal areas and atrium serve as the “front door” and heart of the building, with relaxation and respite areas as a buffer zone and waiting space between the wellness center and the clinic.

FLOOR PLANS.

03
Ground level plan Lower Level plan N Healing with the Flow | Academic M Arch | December 2022 | Kamar
04
Section Healing with the Flow | Academic M Arch | December 2022 | Kamar
SOUTH ELEVATION. STRUCTURE. Sectional View Site

Healing Garden

- Brick

- Bamboo

- Stone

- Earth

- Grass

- Sand

- Water Elements

QUALITY OF A PLACE.

Interacting with nature provides healing benefits to your body and mind.

Research has shown that within minutes of moving outside, positive changes occur in the body, such as lower blood pressure, decreased heart rate, reduced stress, and improved mood

Soothing Waters

A water feature doesn’t have to be elaborate to evoke a relaxing feel. Even a simple rock bubbler provides pleasing sounds and visual appeal. For larger spaces, a pond or waterfall puts nature’s beauty just steps away from your door.

Color Creatively

Usage of low-wattage or LED lighting to set off plants and decorative features to their best advantage when natural light is low. Create beautiful shadows and draw attention to subtle colors and textures of your flowers and plants with discreetly placed lights.

Provide a resting place

Whether it’s a single bench or a suite of comfortable garden furniture, pick a spot or two that invites visitors to sit down and stay a while. Adding an outdoor bookshelf or blanket box to make it easy to kick back and relax.

Mimic mother nature

Pairing trees and wildflowers, boulders and water, or rocks and ferns to create the feel.

05 Healing with the Flow | Academic M Arch | December 2022 | Kamar

02 Envisioning Shelter Homes

Thesis Studio - August 2021

The aim of the thesis is to rethink the design of destitute home by integrating and nurturing senses through built, unbuilt spaces and volumes, thereby creating a community.

COMMUNITY.

City - Workplace - No environmental quality - No peace

SITE - INTRODUCTION.

MASTER PLAN.

The site is located opposite to the Madhavaram horticulture department, with close proximity to basic amenities and has a well defined neighbourhood.

Nestled in between a lush greenery and a calm neighbourhood makes it ideal for creating spaces that adds value in terms of overall experiential quality for woman and children.

Site Area : 12.5 Acres

Bulitup Area : 8,651 sq.m

Plot Coverage Allowed : 40%

Plot Coverage Achieved : 20%

Suburbs - Serene environmentWorkplace & amenities far away - Not many people to interact

Suburbs - Group of people - Interactionsocial support - Workplace & amenities far away

Suburbs - Community providing work place - Serene & secure environment

- Socializing self sustaining

To create better living conditions for inmates, through the design of built volumes keeping in mind the emotional and physical needs.

To create an environment that allows bodily engagement, playful sensory exploration and a seamless relationship between indoor and outdoor spaces.

To design built and unbuilt spaces that are intertwined into a continuous whole. Having public spaces, as well as individual private spaces that gives a sense of belonging and ownership to the inmates.

OSR : 10%

Site Setback : 6M N

06 Envisioning Shelter Homes | Academic B Arch | August 2021 | Kamar

DESIGN DEVELOPMENT PROCESS.

Abstract Process.

Zoning Process.

Network - Road/Pathways. Community >

Activity Study. Love Strength Security Unity Base sepals Radial Network Linear Network Sense of enclosure and solidarity

Evolution Stages. Setting Edges

N

Ref : A Pattern Language : Towns, Buildings, Construction. Book by Christpher Alexander, Murray Silverstein, and Sara Ishikawa

Concept. Pattern Language, by Christopher Alexander. The pattern language contains rules for how ‘Human Beings Interact With Built Forms’ — a pattern language codifies practical solutions developed over millennia, which are appropriate to local customs, society, and climate.

CONCEPTUALIZATION.

Orienting Homes

Pathways

Zoning Semi-public Shelter amenities

Interactive Nodes

Public spaces

Open spaces

Envisioning Shelter Homes | Academic

07
B Arch | August 2021 | Kamar
08 Envisioning Shelter Homes | Academic
GROUND FLOOR PLAN. Guest Lodging - 200 sq.m. Med Clinic - 170 sq.m. Public Amenity- 290 sq.m. Maiden’s Home - 1075 sq.m. Residential Admin - 630 sq.m. Family Home - 810 sq.m. Educational Admin - 420 sq.m. Day Care - 300 sq.m. Kitchen & Dining - 220 sq.m. Vocational Training - 1470 sq.m. Staff Lodging - 430 sq.m. Multi-functional Hall - 500 sq.m. N B Arch | August 2021 | Kamar
MASTER

ISOMETRIC VIEW.

Pause points of rest and changing vistas where small groups can congregate for socializing

Important lessons learnt during the process :

When buildings are designed considering the actions and psychology of the user, the user will automatically react and respond to the building.

Even the smallest ARCHITECTURAL GESTURE plays a vital role in shaping the design.

Flexibility in design gives the user freedom to use it the way they would want to. This assures that there are no set of rules for using it which also makes it more approachable.

09 Envisioning Shelter Homes | Academic SITE SECTION.
Open Spaces creating natural social interaction leading to community participation and giving a visual axis throughout the site pertaining to the safety of the inmates. Children’s Play Area along Day Care. Open Amphitheater acting as a connector between the private and semi-private spaces. Central gathering space creating visual axis.
B Arch | August 2021 | Kamar

MAIDEN’S HOME DESIGN.

4 Units20 Inmates each

EXTERIOR STAIRCASE AS A PLATFORM FOR ACTIVITIES AND SOCIAL INTERACTION

The staircase is designed much more than just a way of getting between the floors.

It encourages social interaction and creates a strong sense of community and interconnection between indoor and outdoor spaces creating a common space.

Its exterior location helps in keeping a check on the movement and activity of inmates thus maintaining security.

Second floor plan

First floor plan

This acts as a living area used for daily chores during the day and for sleeping during night.

Every house has it’s own activity pockets in the form of backyard and balconys and can be personalised the way the users want to in the form of a garden or for drying activities, playing, gathering, reading, sleeping etc., distinguishing between private, semi private and public spaces.

Inspirational walkway with art in the form of Graffitti on the walls of the buildings painted by the inmates residing in the shelter home.

10 Envisioning Shelter Homes | Academic
- Individual Block N N Ground floor plan
Key plan Roof plan View Exploded View Detail View
Section - AA’ East Elevation Material Board
B Arch | August 2021 | Kamar

Lighting Design - December 2024

Architecture Analysis + Calculations

Nestled within the supportive embrace of a communal home for the destitute, this bedroom stands as a sanctuary for a woman and her two children, all seeking solace and stability. The room’s layout is thoughtfully designed to provide individualized spaces for rest, play, and personal growth, while fostering a sense of unity and togetherness.

The lighting design is approached with a deep understanding of the room’s dual nature as both a living and resting place. The intention is to create an environment that not only meets the practical needs of its inhabitants but also nurtures their mental well-being.

CONCEPT STATEMENT.

This lighting design strategically harmonizes the diverse needs of a mother and her children within their shared bedroom.

The design aims to create an atmosphere that encourages learning, relaxation, and imaginative play, fostering a space where wellness and joyful family moments can flourish.

LUMINAIRE SELECTION.

DESIGN APPROACH.

1. Initial Planning: Start by mapping out the bedroom layout and choosing materials that enhance the lighting, aiming for a welcoming and versatile space.

2. Lighting Standards: Use IES guidelines to calculate the required lighting for key activities like reading, dressing, and play.

3. Luminaire Selection: Pick light fixtures based on efficiency, comfort, and how well they fit the space’s needs and aesthetics.

4. Integration and Analysis: Fit the lights into the design, using tools like AGI-32, Elum tools.

5. Refinement: Adjust the design as needed to address any lighting issues and improve the bedroom’s overall feel.

6. Visual Presentation: Create renderings to showcase how the lighting will look and feel in the actual space.

7. Daylight and Finishes: Balance natural and artificial light and ensure they complement the interior finishes, adding to the room’s comfort and ambiance.

LIGHTING CALCULATIONS.

11 M Arch | December 2023 | Kamar
Architecture with Care | Academic

ISOMETRIC-VIEW.

CONCEPT DEVELOPMENT.

03 Green Mount

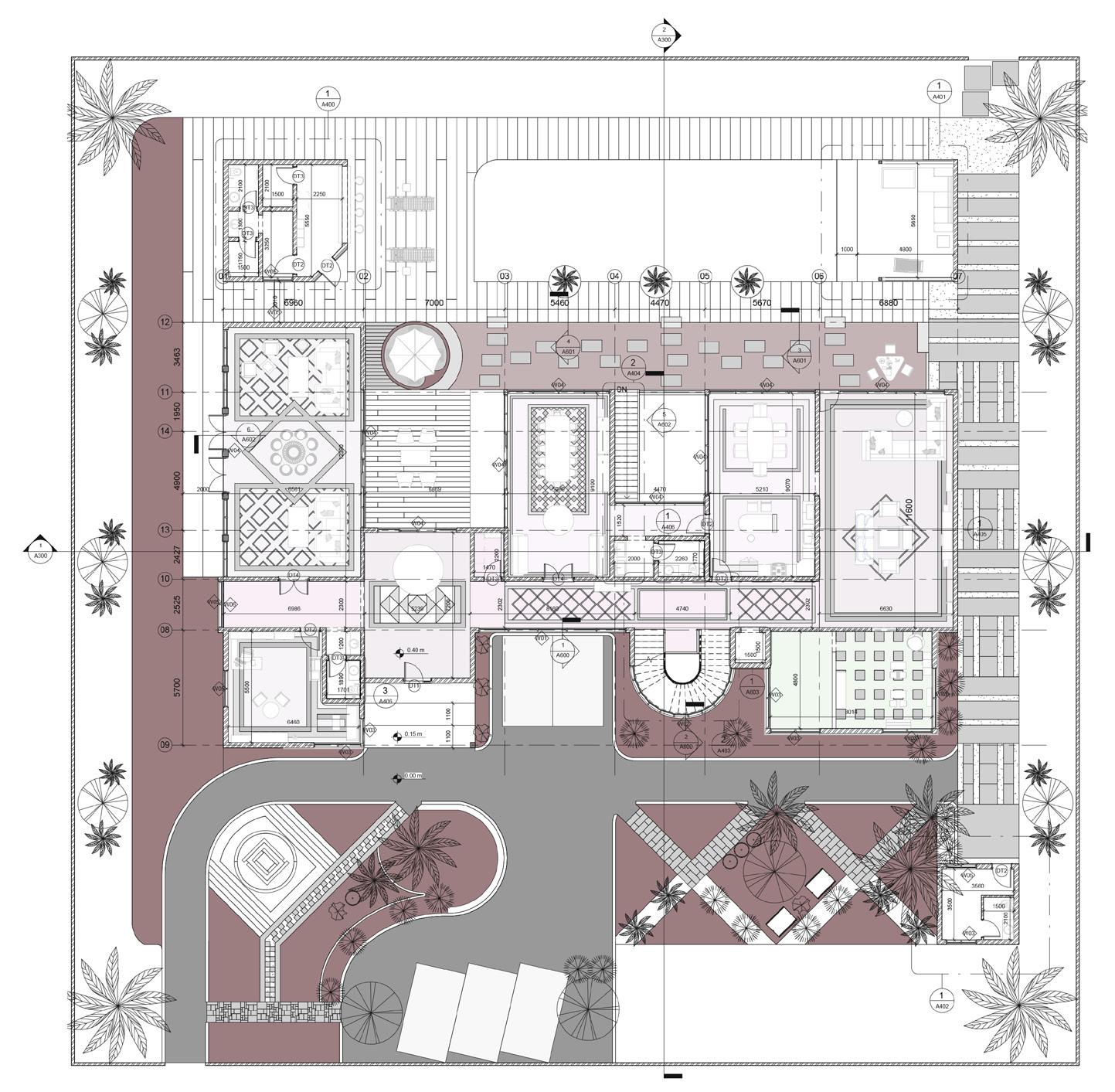
Architectural Design 5 - April 2019

Based in Madurai, this project’s program is to design a five star hotel with emphasis on contemporary styles and create spaces for people of various categories - business, vacation and tourism.

To evolve innovative space comprehensively and, functial and spatial research between the function and spaces involved; Establish appropriate relationships between various parts of the hotel completely; Provide the best hospitality while promoting functional efficiency of spaces and circulation.

12 Green Mount | Academic
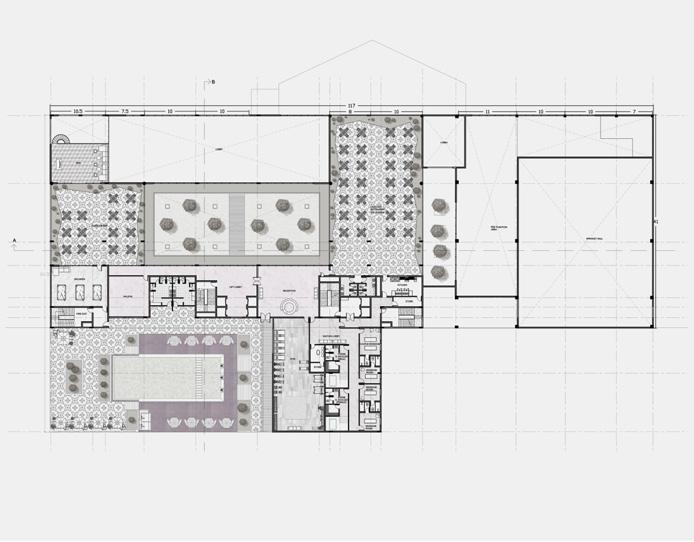
Select prime gate way location Carve for building envelope Welcome sunlight and fresh air Thermal Comfort Air Quality Noise Absorption Better View a unique and intimate public space passage for social interaction naturally Entry Exit Drop off Lobby Hotel rooms Banquet Hall Loading / Unloading Surface Parking Car - 32, Bike - 113 Service Entry
SITE PLAN. Builtup Area : 12,258 sq.m Circulation : 2,451 sq.m Total Bulitup Area : 14,709 sq.m Plot Coverage : 40% - 6,842 sq.m OSR : 1,710 sq.m Site Setback : 7M N Location : NH-38, Near Dwaraka palace, Madurai, India. Area : 4.2 Acres (17,105 sq.m) Neighbourhood Context : Residential, Commercial and Mixeduse Zones (creating a social hub)
B Arch | November 2020 | Kamar

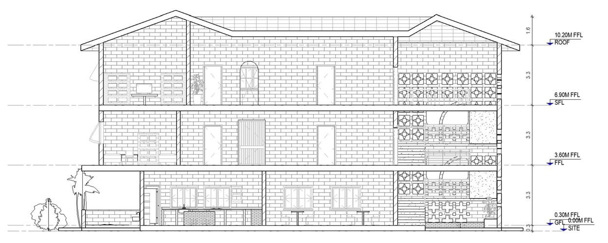
VERTICAL SECTION BB’.

The planning of the floor plates are done in a way that the private and public spaces are well segregated, giving privacy to the users as well as promoting social interaction by intergrating the common spaces naturally.

13 Green Mount | Academic B Arch | April 2019 | Kamar
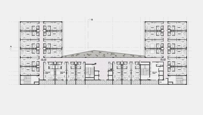
FLOOR PLANS.
Stilt floor plan First floor plan Second floor plan First floor zoning Recreation floor zoning Hotel room floor zoning Guest + Staffs Mandatory Guests Desirable Staffs Service Legend
FLOOR PLANS STUDY.
N
(Views Via Render)

PREMIUM SUITE ROOM.

There are totally six Premium Suite Rooms at the Ninth & Tenth floor. A Space of 1,290 sq.ft. - spacious living room and premium amenities. This suite room is dotted with quintessential art pieces, that add to your experience. And the room has a scenic view.

14 Green Mount | Academic ROOM PLAN. MATERIAL
Third Floor Fourth Floor Fifth & Sixth Floor Ninth Floor Eighth Floor Seventh Floor
BOARD.
Tenth Floor
Standard Room; 04 Premium Room; 01 Family Suite Room; 03 Premium Suite; 01 Presidential Suite Room
03
N B Arch | April 2019 | Kamar

The atrium (outdoor spaces) is the main focus in this design , it acts as a courtyard and also redefines the corridors.●

The overall massing of the hotel is unique and proper allocation of various spaces is achieved without disturbing the circulation of the guest and the staff.●

Multi-level landscape in the facade adds an unique feature to its elevation as comparing to its urban context.

15 Green Mount | Academic LONGITUDINAL SECTION AA’.
Perspective - Green Mount View B Arch | April 2019 | Kamar

04 Achitecture with Care

Arch and Urbanism Lab II - May 2023

This laboratory is an exploration of the making and use of architecture as a device of care: for the city, its ecology, its public life, and (perhaps most of all), its residents. We began by imagining what architectures of care might ‘look like’. Who and which conditions might they serve? How might they operate? We were asked to imagine and describe programs, spatialities and materialities of care for people, the city, the climate, non-human species.

My exploration was based on creating a social infrsstructure and activating a public street based on Washington, DC.

SITE PLAN. N Location : 700 block of Morton St NW, in Washington DC

Neighbourhood Context : Residential andCommercial Zone. STREET SECTION.

16 M Arch | May 2023 | Kamar Architecture with Care | Academic
URBAN STRATEGY.

05 MAPPING CITIES

GIS for Designers - December 2022

Using QGIS and Mapbox, we were assigned to map the cities of Ronoake under various topis. I have learned to collect data and make interactive maps through this, alongside understanding scale, colours, distance, layering and visual analysis of various data.

For my research, I chose to map the Impacts of Jim crow discrimination and Redlining in the city of Knoxville.

Growth of the suburbs of a city in Virginia - Roanoke

Findings :

The Railways and Waterways are moving along side throughout, framing paths for transportation.

The Waterways and topography naturally form a clear boundary outlining the city.

The Roadways differ according to the slopes varying from higher to lower, for instance, cyclway, footway, etc. on the top to the tracks and primary paths at the bottom.

17
M Arch | December 2022 | Kamar Mapping Cities | Academic Parcel Map of Roanoke.
value per parcel Value per sqft per parcel With respect to neighnourhood
Total

The Relationship between

percentage of Non-White population and average age of housing in Knoxville.

Percentage Non - White population

Housing Median Year Built

KNOXVILLE - LANDUSE AND CENSES DATA.

Doing the Distance Matrix calculation, we can completely see that the Non-White areas are more likely to be near Industries than Whites.

I also found that White areas are more likely to be near parks that are well-defined spaces like golf course sports, whereas NonWhite are mostly alongside open spaces.

From this, we can conclude that Non-White neighborhoods in Knoxville are disproportionately near industrial areas versus green space

18 M Arch | December 2022 | Kamar Mapping Cities | Academic

URBAN DESIGN - DOCUMENTATION.

Team - 40 members

Position - Team Leader

06 Periyamet

Urban Studio 6 - November 2020

Concept and Theories - MEHTA RESEARCH PAPER. SITE. N

The aim of this studio was to identify the link between the proposed development strategy of Central plaza and salt cotaurs area as an urban node and its present development condition without compromising the rich heritage possessed by the said intervention area.

Location : Periyamet, Chennai, Inidia

“Look closely & you will see. Listen carefully and you will hear”

The engagement between the elements of the behavioural environment the elements of the physical setting and the places that have special meanings for the community:

Comfortable

Pleasurable

Meaningful

Behavior Mapping : Activity Mapping :

Type of activity.

Certain location of activity.

Actors of activity.

Physical features of the environment which were in that type of activity.

Understand whether those physical features support or inhibit or do not affect that activity.

Activities that were linked with each other.

The Site has been primarily divided into 3 zones to make the study and analysis process easier and to get a better understanding of the site. Furthermore when the basic understanding of the zones have become clear, there is an exchange of information between different zone thereby giving a clear idea of the entire site. This enables to comprehend it better and produce proposals.

Aspects of the area studied:

History | Imageability | Land use and building typology | Accessibility, connectivity | Population density | Services and infrastructure | Space usage | Unused spaces, encroachment | User comfort and pollution | Tree cover I Market detail, Urban street furniture

19 Periyamet | Academic B Arch | November 2020 | Kamar
of
behaviour
human needs and
by empirically of vehicles near Occupied pavements of pedestrians,leaving pedestrians on the marked parking - MEHTA Human Behaviour as basis
Study
human
and to understand
preferences
20 Periyamet | Academic
Building
B Arch | November 2020 | Kamar
Land Use and
Typology - BUILDING TYPOLOGY.

URBAN DESIGN - PROPOSAL.

Team - 5 members

This whole chunk of land comprises of Residential, Commercial and Mixed use zones and the inference is trying to establish a pedestrian friendly zone, giving importance to social behaviour that will enhance safe and healthy environment.

Ecological Social

Need for a green space amongst the densely packed buildings of the neighbourhood which will reduce the pollutants and increase the overall quality of the air.

Lack of open spaces in the area has created a need for a social hub that foster engagement and strengthens community ties & over which the members feel a sense of collective ownership.

- Commerce based development is feasible

- Accessibility from all sides of the site

- Feasible to incorporate TOD principles and promote walkability

Major interventions of the site

Art center

The Art center is a versatile space that could adapt and initiate dialogue between various forms of art.

Retail Complex

Retail Complex is an area of the city where commerce, entertainment, shopping are concentrated. Barracks Extension Road Section -1

21 Periyamet | Academic
Position - Team Leader ZONE 3 - MASTER PLAN. Proposed Master plan
Barracks Extension Road
Legend 1.Wellness center 2.Public park 3.Food street 4.Retail complex 5.Plaza 6.Art center 7.Pedestrian Bridge 8.Hotel 9.OSR
Intent Of Proposal EVK Sampath Road Section Stringers Road Section
Section -2
Food Street
1 Art Center View Food Street
2 Pedestrian Bridge View
Ariel View Retail Complex View
view
view
Key plan Opportunities offered by the site N
B Arch | November 2020 | Kamar

National Engineering Bureau, - April 2020 | Intern Architect

This projects program is to design a Luxury Villa for a client at Jumeirah Village in Dubai, UAE along side the sea.

To meet the clients’ wishes for natural light and a better connection to their expansive backyard, the house’s living spaces have been opened up in plan to allow one to see the backyard from the living room on the other side of the house. The window openings take advantage of the long north and south facing facade. The southern half of house has been extended further into the backyard than the northern half, to create a more private deck off the master bedroom. In addition, the clients requested for a detached pool cabana along the backyard making it accesible for both private and public use.

This project was designed under the guidance of Mostafa Yakout. N SITE PLAN.

22
| Professional Work | April 2020 |
Villa Serena
Kamar
07 Villa Serena
23
| Professional
Ground Floor Plan First Floor Plan Second Floor Plan Work | April 2020 | Kamar
Villa Serena
SOUTH ELEVATION. MASTER GROUND FLOOR PLAN.

VERTICAL SECTION.

WALL SECTIONS.

24 Villa Serena | Professional
Work | April 2020 | Kamar

STAIRCASE DETAIL.

25 Villa Serena | Professional
GLAZING DETAIL. KITCHEN DETAILS.
& View. N Work | April 2020 | Kamar
Floor Layout - GF Section 03 Section 01 Section 04 Section 02 RCP Layout - GF Staircase Section

ATRIUM.

Performance Zone located near the black box and auditorium, this performance space has the added advantage of flexible use with the aid of the cubes to have multiple configurations to suit the need.

Green Walkway acts as a green backdrop visible from the administration area, also separating the busy play area from the activity zone and administration.

Giant Chess Board, games that can be viewed not only from the ground floor but also from the break out spaces, open corridors and staircases on the upper floors.

08 ARBOR SCHOOL

National Engineering Bureau, - April 2020 | Intern Architect

Based in Abu Dhabi, UAE, this project required Conceptualization and Presentation drawings of various areas. I was also given the oppurtunity to interact with clients for the same.

This work was executed along with Ar. Deema and team under the guidance of Mostafa Yakout.

26 Arbor School | Professional Work | April 2020 | Kamar
Climbing Wall Play Area Open play/ Learning Area Seating Area Multi-Configuration Seating Perfomance Area Seating Area Giant Chess Board Play/Learning Area Plantation Area Green Walkway Activity Area Dining Area Extended Seating See-Saw Play Area Planter Box Seating
Plantation
and learning
play
climbing
- Art
activities zone with different kinds of loose furniture, located under the first floor balcony break out space.
Zone and Climbing Wall - Open play
area with planter boxes,
equipments,
walls and trees. Activity Zone
and
Key Plan N

RUSTIC TERRACE.

Barn House wood and tatch roof shaded structure to house small animals and pets.

Water Trough play area water feature and play

Ship Play Area themed play area and structure

Lighthouse Bay themed climbing play

Boulders themed seating area

Access to the terrace

Fishing Net themed relaxation zone

Nest Seating nook

Dovecote clay strcuture to house birds and their nest

Haystack seating and climbing

Art Work Wall and display

Climbing play

tyres, haystack and logs climbing/ seating arrangement

Performance Space Log seating and performance / camping space

Services restricted access

Recycle Zone

Plantation Zone

Staircase Seating Connecting floor above and also acting as an amphitheatre seating

27 Arbor School | Professional
Key Plan Work | April 2020 | Kamar

KAMAR SHAFEEHA

kamarshafeeha@vt.edu

+1(540)-558-5483

BLACKSBURG VA

M.ARCH Virginia Tech

B.Arch Anna University, Inida

Turn static files into dynamic content formats.

Create a flipbook
Issuu converts static files into: digital portfolios, online yearbooks, online catalogs, digital photo albums and more. Sign up and create your flipbook.