Selected Work Portfolio 2019-2024

Page 1


What started out from receiving a pack of colored pencils as a gift and using them to draw on the walls, led to expanding my knowledge on creativity to create these walls and express the art in them.

Swimming has played a major role in my life and has made me realize that swimming is an art and a sport. The water is our canvas, the strokes and techniques used during the races are our media, and we are considered the artists. Kaling Phung

01 wildfire resiliency center

Location: Roseburg, Oregon,

Year: Fall 2024

The Resilient Center in Roseburg, Oregon, is a community refuge and learning hub designed to withstand wildfires and other climate challenges including floods, extreme heat, and drought. Situated in an area prone to wildfires originating from the northwest, the center serves as both a refuge and a learning hub, embodying a dual mission: to provide immediate support to individuals and families affected by wildfires and to educate the community on comprehensive disaster preparedness and mitigation. The facility was designed using the three concept words: layers, harmony, and protection.

Built with fire-resistant materials, defensible landscaping, and sustainable strategies such as rainwater harvesting and passive cooling, it exemplifies adaptive architecture.

Layers
Three Concept Words in Physical Form
Exterior

Instructor: John Rowell & Mark Fretz

Location: Eugene, Oregon,

Year: Fall 2024

Utilizing the lessons learned in the Building Enclosures Course, The objective of the project is to detail an existing building enclosure at Tykeson Hall in the University of Oregon Campus. Skills used in this project includes detailing in Revit and assembling sheets.

Top of Curtain Wall to Terrace

03

barcelona housing project

Instructor: Philip Speranza

Location: Marina del Pratt

Vermell, Barcelona, Spain

Year: Spring 2024

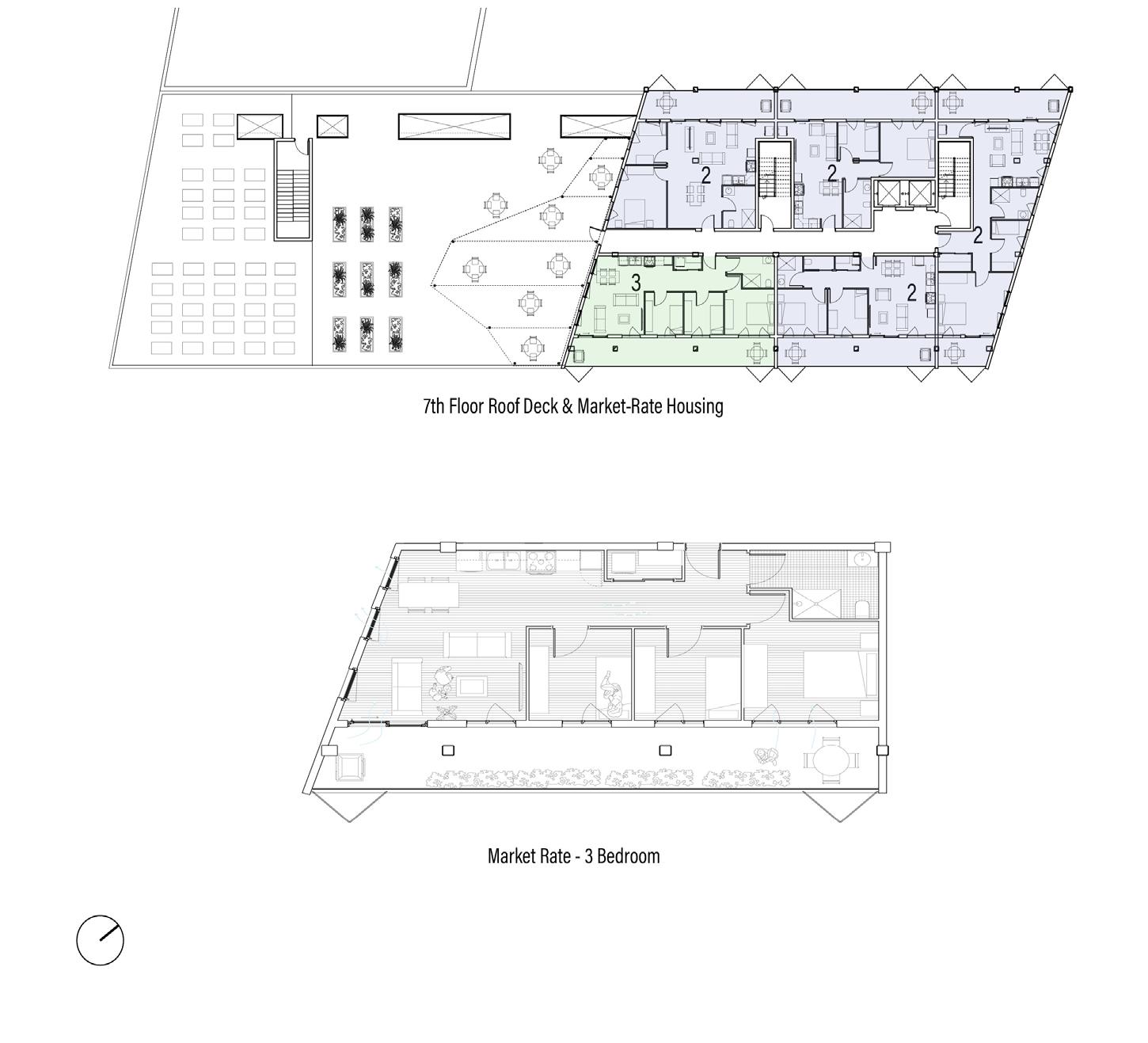
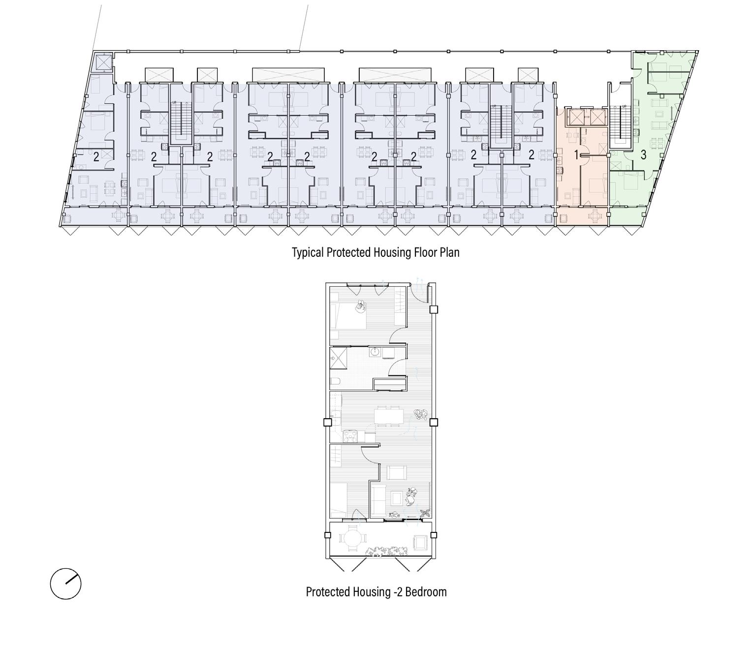
This project addresses the interconnected challenges of housing scarcity, water shortages, and the urban heat island effect that disproportionately affects low-income families. Working withmy role as the Urban Designer project members Eryk Sysmans role as Interiors

Designer, and Jorge Cuesta Burke’s role as Enclosures Designer, the project focuses on sustainable urban planning and design solutions, including protected housing, implementing water management systems, and enhancing urban greenery to mitigate heat and improve air quality.

South Elevation

04 the wine village

Location: Newburg, Oregon, Year: Winter 2024

The Wine Village in NE Kings Grade, Newberg, Oregon, is a harmonious blend of innovative wine production and immersive culinary experiences. The project divides into two main sections: a gravity-fed wine production facility on the east side of the road and a vibrant wine village on the west. The wine production space utilizes gravity to enhance gentle handling of grapes and reduce energy consumption, highlighting an environmentally conscious approach to wine making.

The village features a fromagerie, artisan market, cured meat corner, education center, and a tasting room, each designed to offer visitors a deep dive into the local wine and food culture.

Sustainability is at the core of the architectural strategy, incorporating rammed earth walls for natural temperature regulation, cork insulation for its renewable and excellent thermal properties, and green roofs to reduce runoff and improve insulation.

Exterior of Wine Village
Wall Assembly
Barrel Fermentation Space Tasting Room
First Level Primary Fermentation
Artisan Market

05 root connect share

Location: Coeur d’Alene

Year: Fall 2022

This design focuses on three things: root, connect, and share. The goal is The space facilitates connections to the land and to many people who have lived there since time immemorial.

The project also aims to provide opportunities for sharing these values and connections with the next generation of tribal members and others in the community.

06 beyond architecture

Instructor: Self-taught

Location: All

Year: 2019-Present

A collection of work done outside of the architecture cirriculum. This includes photography and graphic design work done throughout my years.

Turn static files into dynamic content formats.

Create a flipbook
Issuu converts static files into: digital portfolios, online yearbooks, online catalogs, digital photo albums and more. Sign up and create your flipbook.
Selected Work Portfolio 2019-2024 by Kaling Phung - Issuu