KAITLYN WESLEY
selected works 2022-2025

Cover Graphic
Graphite wash of a building on North Main Street in Blacksburg, VA
![]()
selected works 2022-2025

Cover Graphic
Graphite wash of a building on North Main Street in Blacksburg, VA
980-239-2297
kwesley@vt.edu
linkedin.com/in/kaitlyn-wesley
https://issuu.com/kaitlynwesley
Revit
AutoCAD
Sketchup
Rhino
Bluebeam
Adobe Creative Cloud
Microsoft Office Suite
Hand Drafting
Hand Modeling
American Institute of Architecture Students (AIAS)
Member, Aug 2024-present
Alpha Rho Chi
Member, Nov 2021-present
-Professional Fraternity for Architecture and the Allied Arts
-Assisted the social chair with logistics for multiple events
-Organized a portfolio review with professionals and faculty for the School of Architecture to attend
Leadership and Social Change
Residential College
Aug 2020-May 2022
-Living Learning Community
-Took two Exploring Citizen Leadership classes
I’m a fifth year architecture student with a thesis focusing on prefabrication and modular architecture as a way to create affordable housing for people experiencing homelessness. I’m in the process of becoming a licensed architect, having completed 1,122 hours toward my AXP, and am working towards getting LEED certified.
Virginia Tech, 2020-2025
Bachelor of Architecture + Landscape Architecture Minor
Dean’s List Fall, 2020-present
University College Dublin, Spring 2024
Housing + City Architecture Studio
Design-Build
Washington-Alexandria Architecture Center, Fall 2023
Integrative Building Design Studio
Society of Architectural Historians
Cataloging Intern, Sept 2024-present
-Digitized and published photos of architecture taken by architects and scholars
-Collected and archived information about existing monuments and buildings
-Used Journal Storage (JSTOR), a digital library of books, academic journals, primary resources, and photos to document information
BHDP Architecture
Architectural Intern, May-Aug 2023 + May-Aug 2024
-Attended site visits to verify completed construction
-Worked independently on design presentations for client meetings
-Assisted with finish plans and schedules
-Researched exterior materials based on client vision during design development
-Analyzed NavVis 3D scans to model existing conditions with Revit
Architectural Intern, Aug-Dec 2023
-Participated in measuring the existing conditions during site surveys
-Prepared construction documents in Revit
-Modified redlines to enhance the clarity, accuracy, and quality of documents


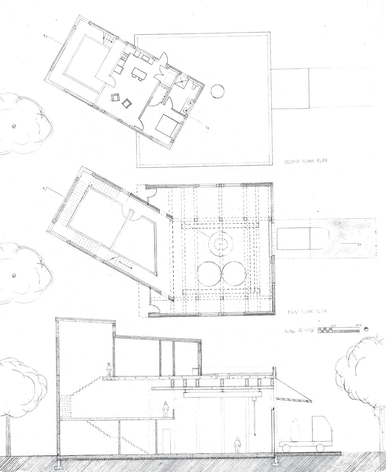
03 Sculptor Studio and Apartment
Fall Semester 3rd Year, 8 weeks

07 Professional Work BHDP Architecture

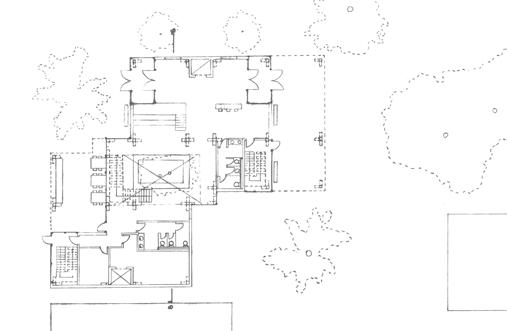
04 Bohemia Gallery and Collection
Spring Semester 3rd Year, 12 weeks

Located in Old Town Alexandria, Virginia is a special collections library dedicated to trees. The library allows people in the community to learn about nature and its importance in our lives. The use of Cross Laminated Timber and tree columns show the different forms a tree can produce. In the center of the library are two trees that you circulate as you travel through the building.















Spring Semester 4th Year, 1 semester, Dublin
Along the Royal Canal is a neighborhood surrounded by fences creating a divide between the water and homes. This divide caused the place to be vacant and not a place for people to gather. The interventions begin to play with accessibility to the water and bringing the life back to the canal.






sketches of different fence and homes conditions along the path


section through homes backyard and fence to the canal











Fall Semester 3rd Year, 8 weeks
Space for a sculptor to reside at Virginia Tech and sculpt rocks for a semester. Situated in the Duck Pond between the upper and lower pond with trees providing privacy and shade from the main walking paths. The form of the building angles toward the pond so you can see it from every room in the building.

material study through exterior axon






0.005” copper
aluminum frame
double pane insulated glass
0.005” copper
8” copper gutter
2” insulation
3” air gap
3/4” basalt stone tiling
5/64” vapor barrier
1” air gap
6” insulation
3/4” plywood
4” x 16” wood beam
plywood
8” diameter concrete column
6” concrete on 2” metal deck
8” insulation
8” cast in place concrete


Thesis Title: Affordable Housing for All: The Role of Modular Prefabrication in Addressing Homelessness
Thesis Statement: How can modular architecture be used in cities with housing crises, more specifically cities with homelessness, to provide quick and easily constructible homes
Homelessness is closely tied to the lack of affordable housing, an issue exacerbated by the ongoing housing crisis. High housing costs and stagnant wages have pushed individuals out of secure housing, contributing to the rising rates of homelessness. This research explores the potential of prefabricated Cross Laminated Timber (CLT) panels to expedite the construction of low-income housing for homeless individuals. By utilizing a kit of parts—comprising a set number of modular components— housing units can be assembled more efficiently, reducing construction time and cost. The focus is on designing a flexible system that can be adapted to various urban environments, making it possible to construct in multiple cities and sites.


model showing different unit configurations by removing modules



one bedroom exploded module
three bedroom exploded module
Spring Semester 4th Year, 1 semester, Dublin
Client: Mud Island Community Garden
Design Team: University College Dublin Architecture and Engineering Majors
Mud Island is a lively place in need of a new stage for performances. The client tasked us to design a stage with a roof that also covers the caravan parked behind for easy entrance to and from the stage.










Right Elevation
Left Elevation
72,000 SF Warehouse Redesign
Location: Memphis, TN
Design Team: BHDP Architecture
Description: The scope of the work includes reimagining and reorganizing existing office space, locker room, break room, employee entrance and visitor entrance.


exterior highlighting the two entrances



















North Office Floor Plan
BREAK ROOM
ROOM
BATH ROOM BATH ROOM


WOMEN LOCKER

WELLNESS JAN

BREAK ROOM








KINGSPAN / QUADCORE OPTIMO / WHITE / VERTICAL
CENTRIA / VERSAWALL WHITE / VERTICAL
PAC-CLAD (PETERSEN) / PAC-3000 RS / WHITE
KINGSPAN / QUADCORE OPTIMO / WHITE
PAC-CLAD (PETERSEN) / PAC-3000 RS / RED
KINGSPAN / QUADCORE OPTIMO / RED
KAWNEER / ANODIZED ALUMINUM #17 / STOREFRONT


